Скачать Серия 2.030-1 Выпуск 1. Узлы стен неотапливаемых промышленных зданий из асбестоцементных волнистых листов. Рабочие чертежиДата актуализации: 01.01.2021
|
| Обозначение: | Серия 2.030-1 |
| Обозначение англ: | Series 2.030-1 |
| Статус: | не определен законодательством |
| Название рус.: | Выпуск 1. Узлы стен неотапливаемых промышленных зданий из асбестоцементных волнистых листов. Рабочие чертежи |
| Дата добавления в базу: | 01.09.2013 |
| Дата актуализации: | 01.01.2021 |
| Дата введения: | 01.03.1993 |
| Дата окончания срока действия: | 30.06.2003 |
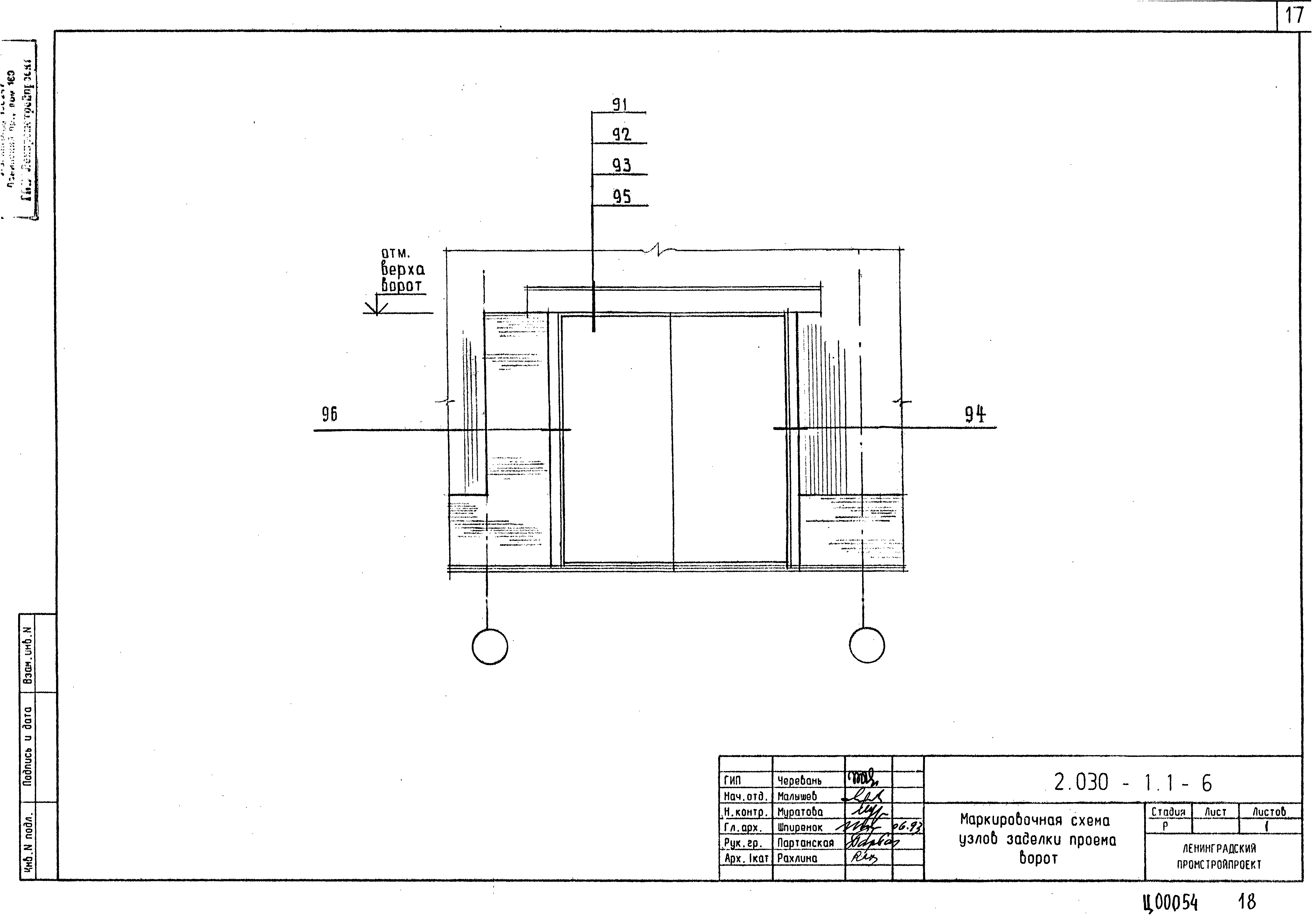
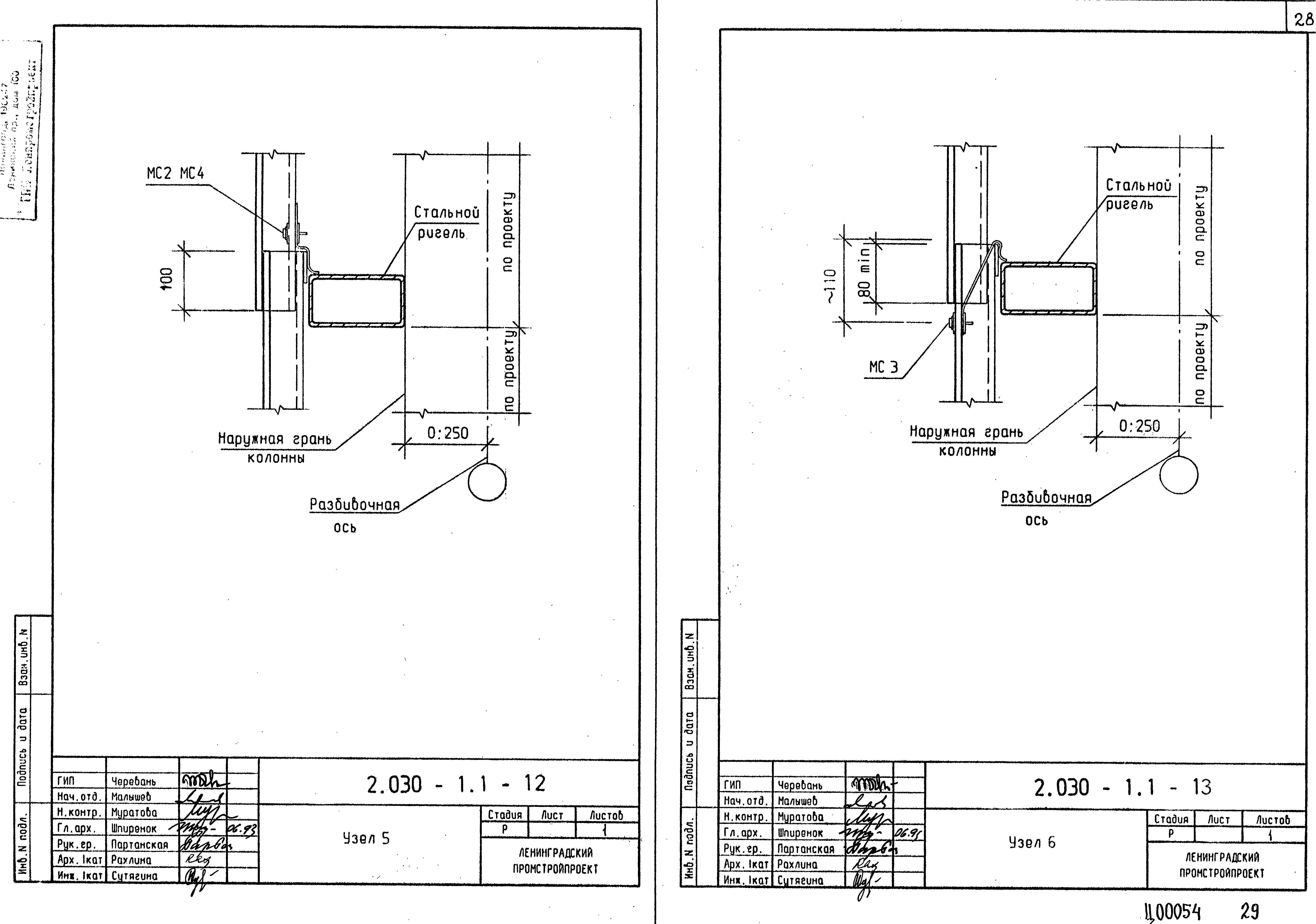
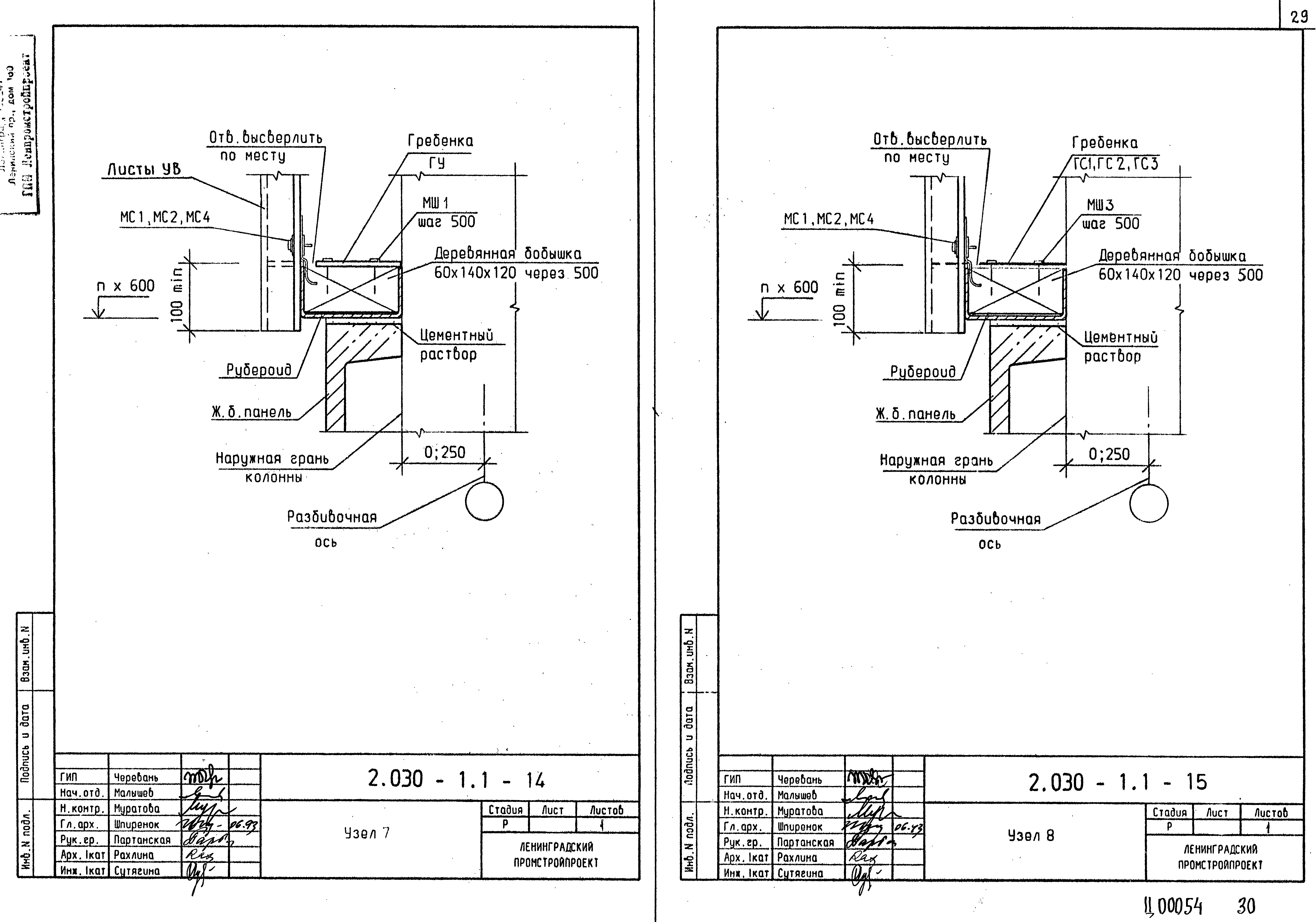
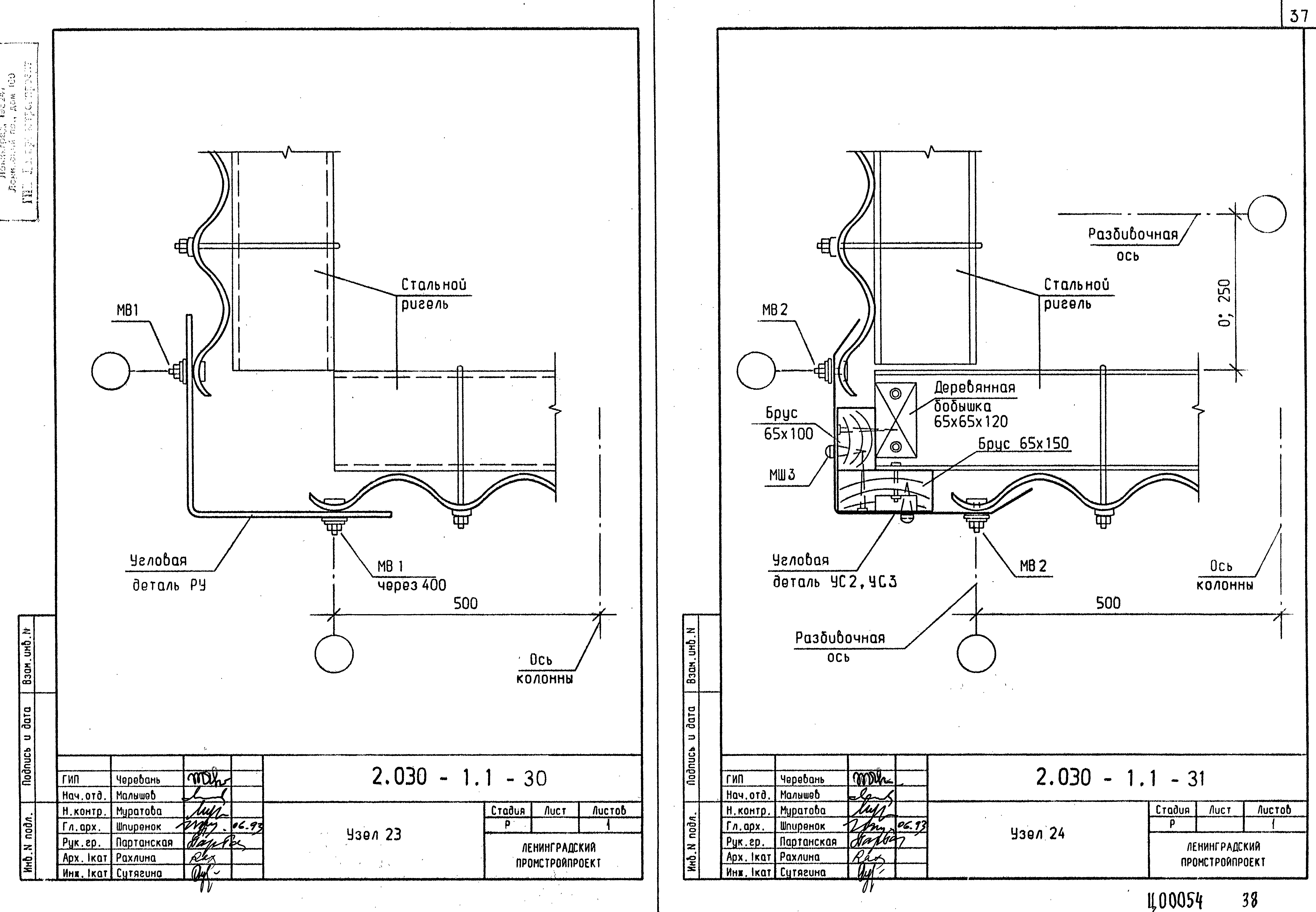
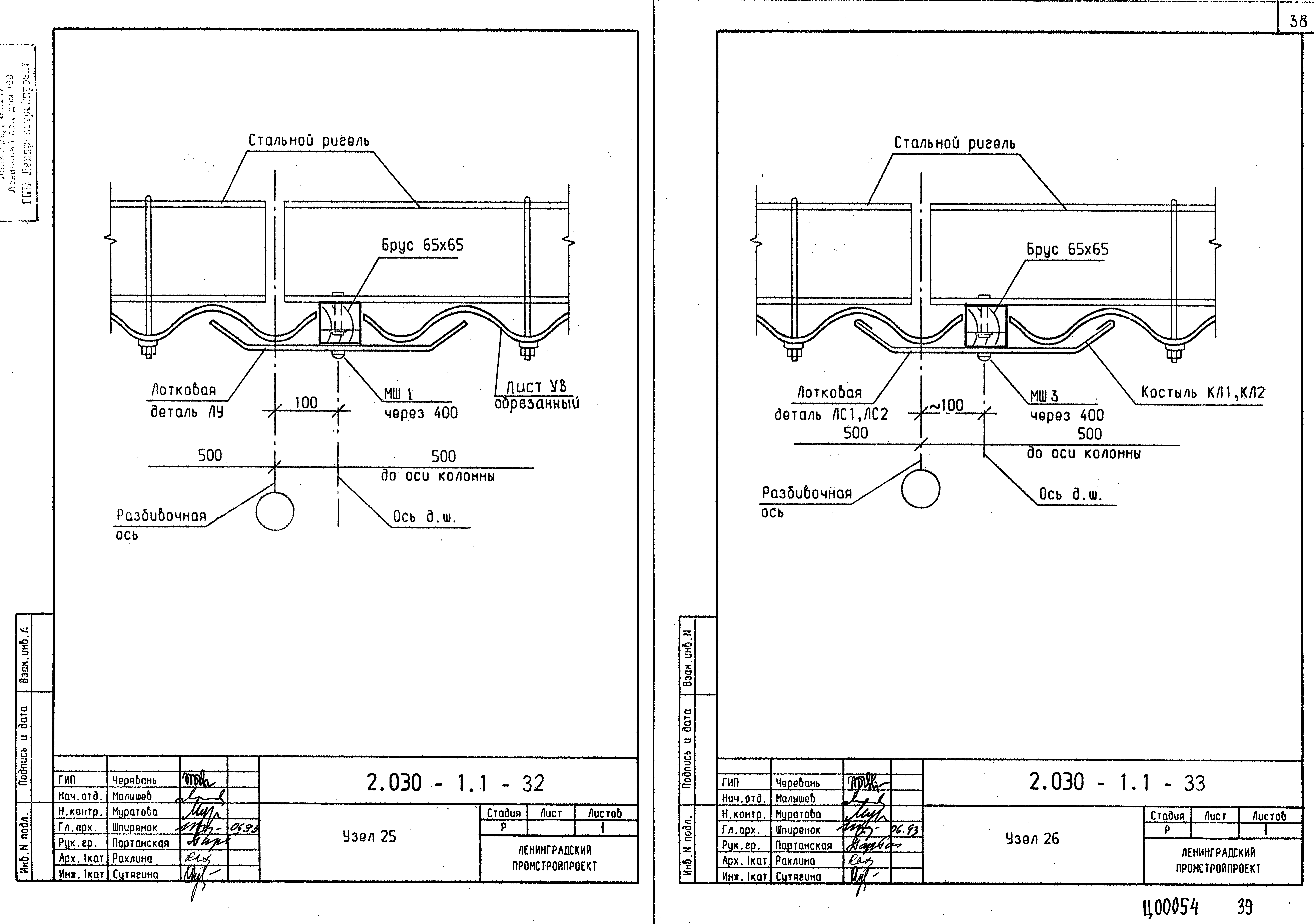
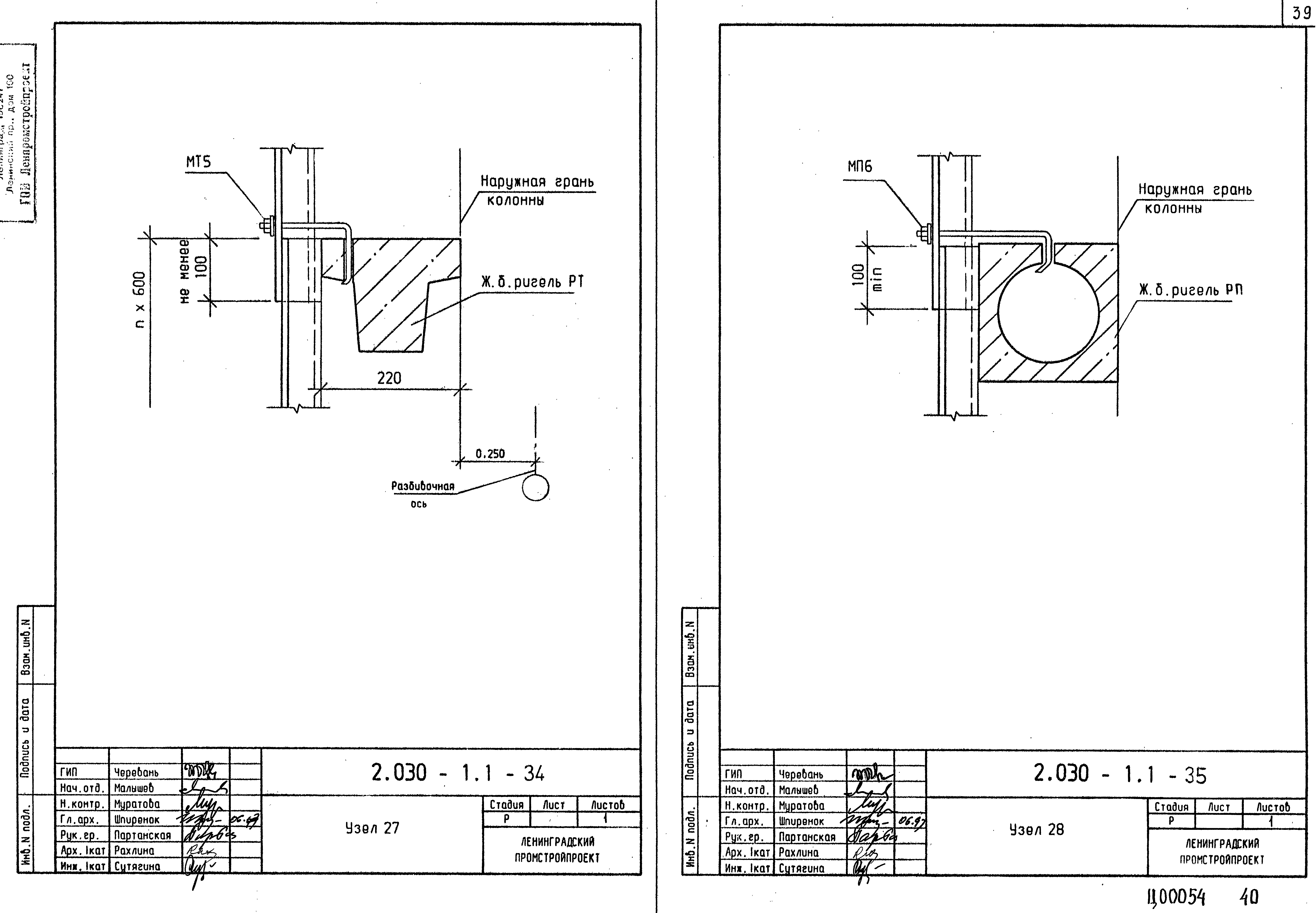
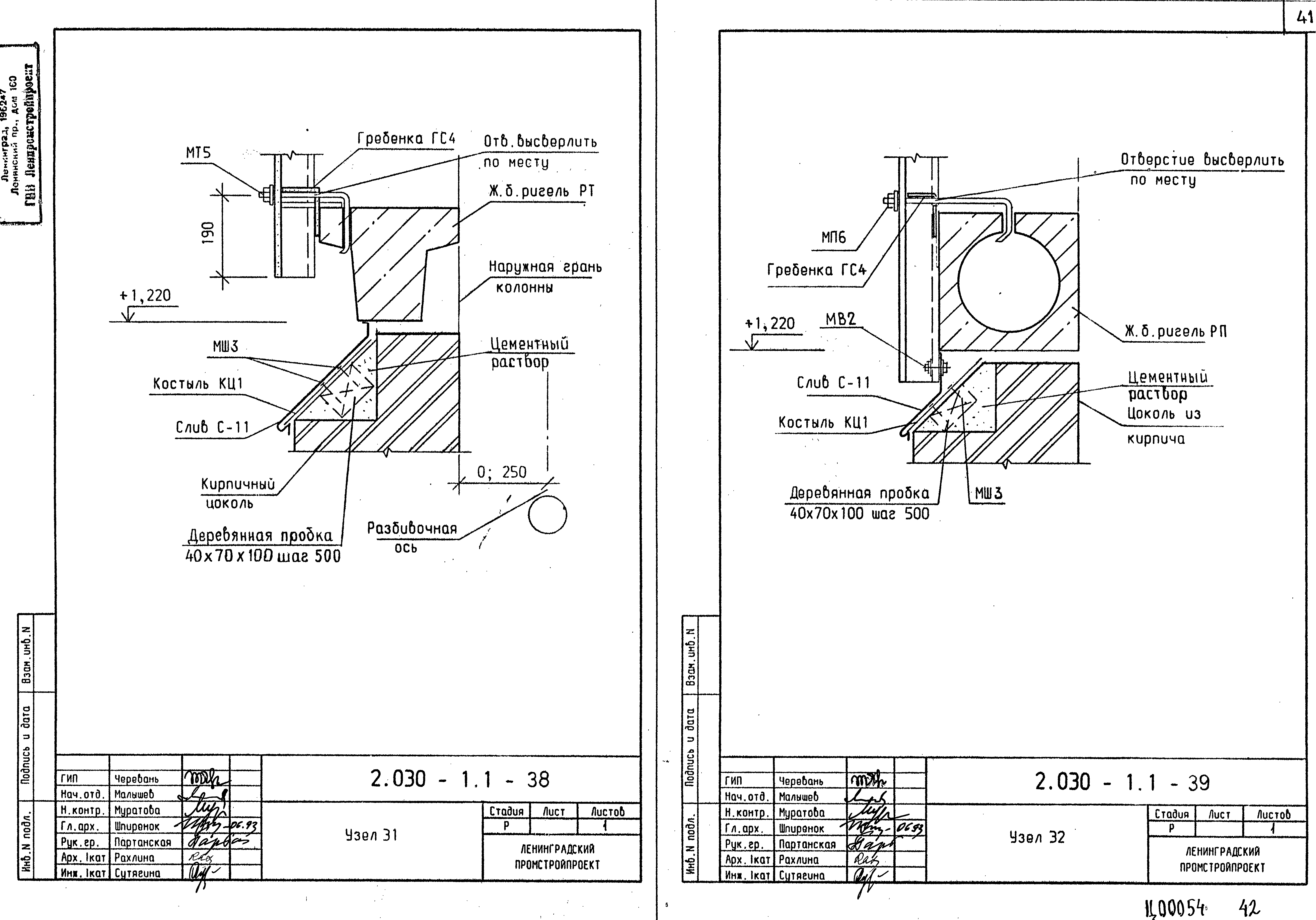
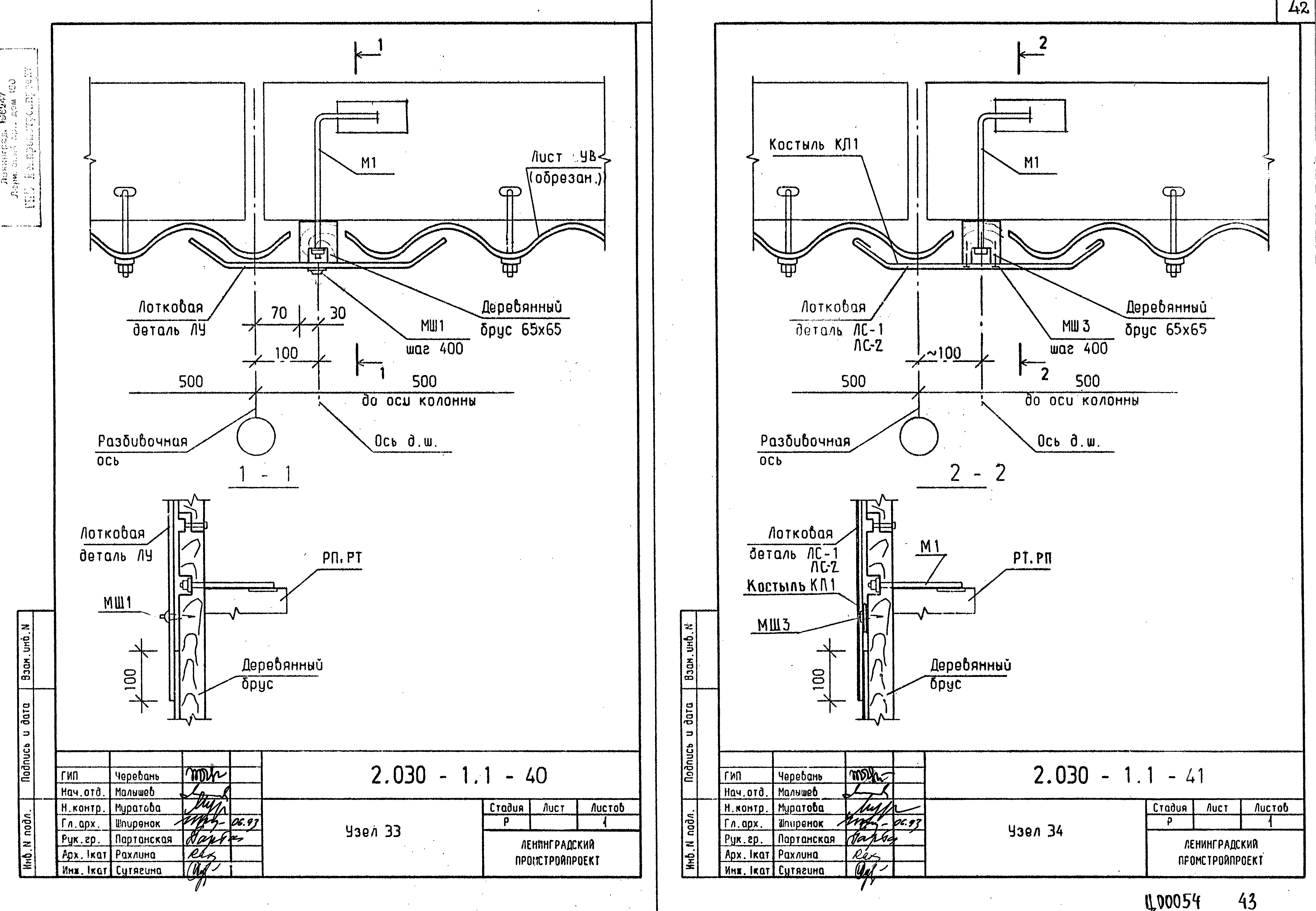
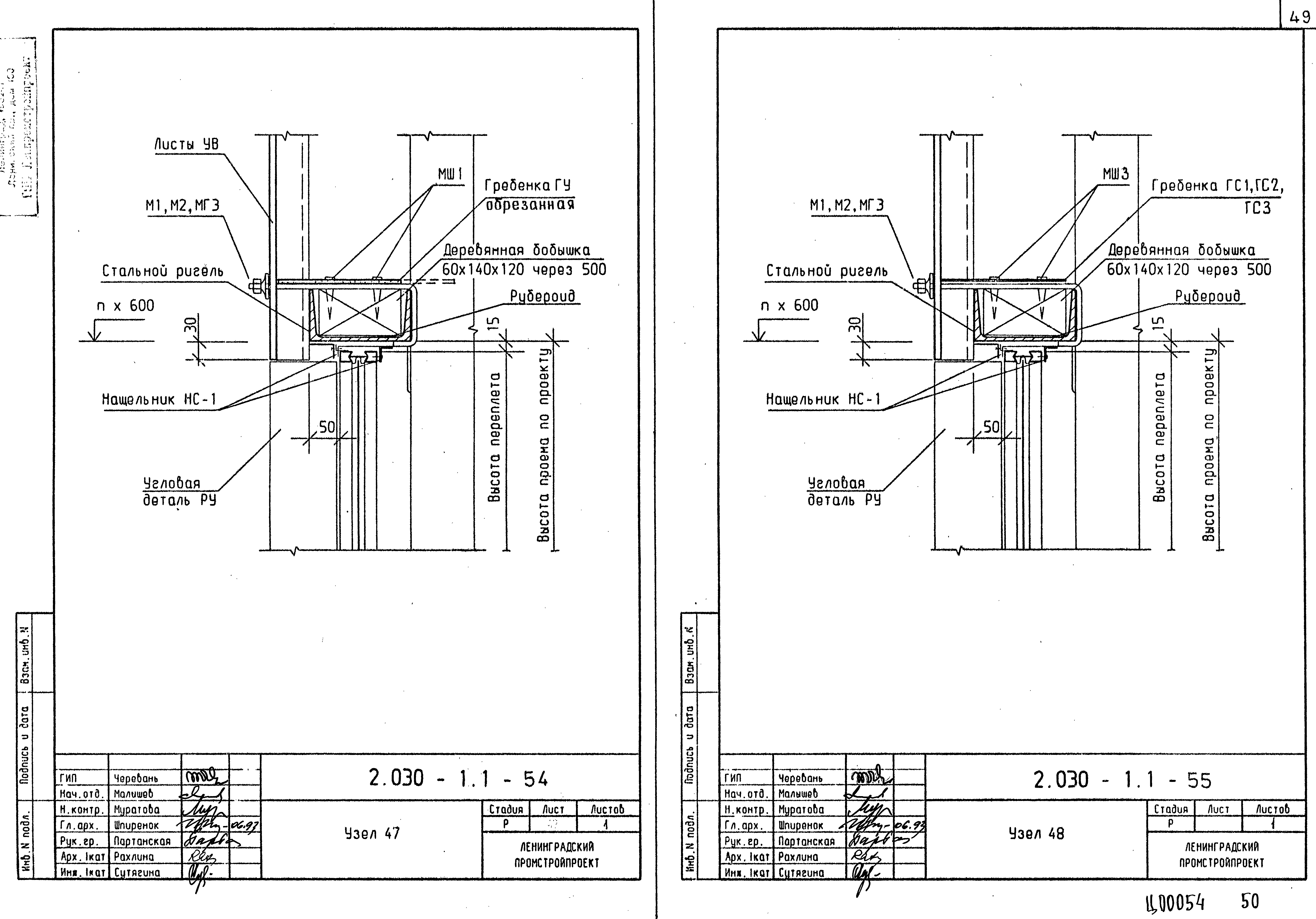
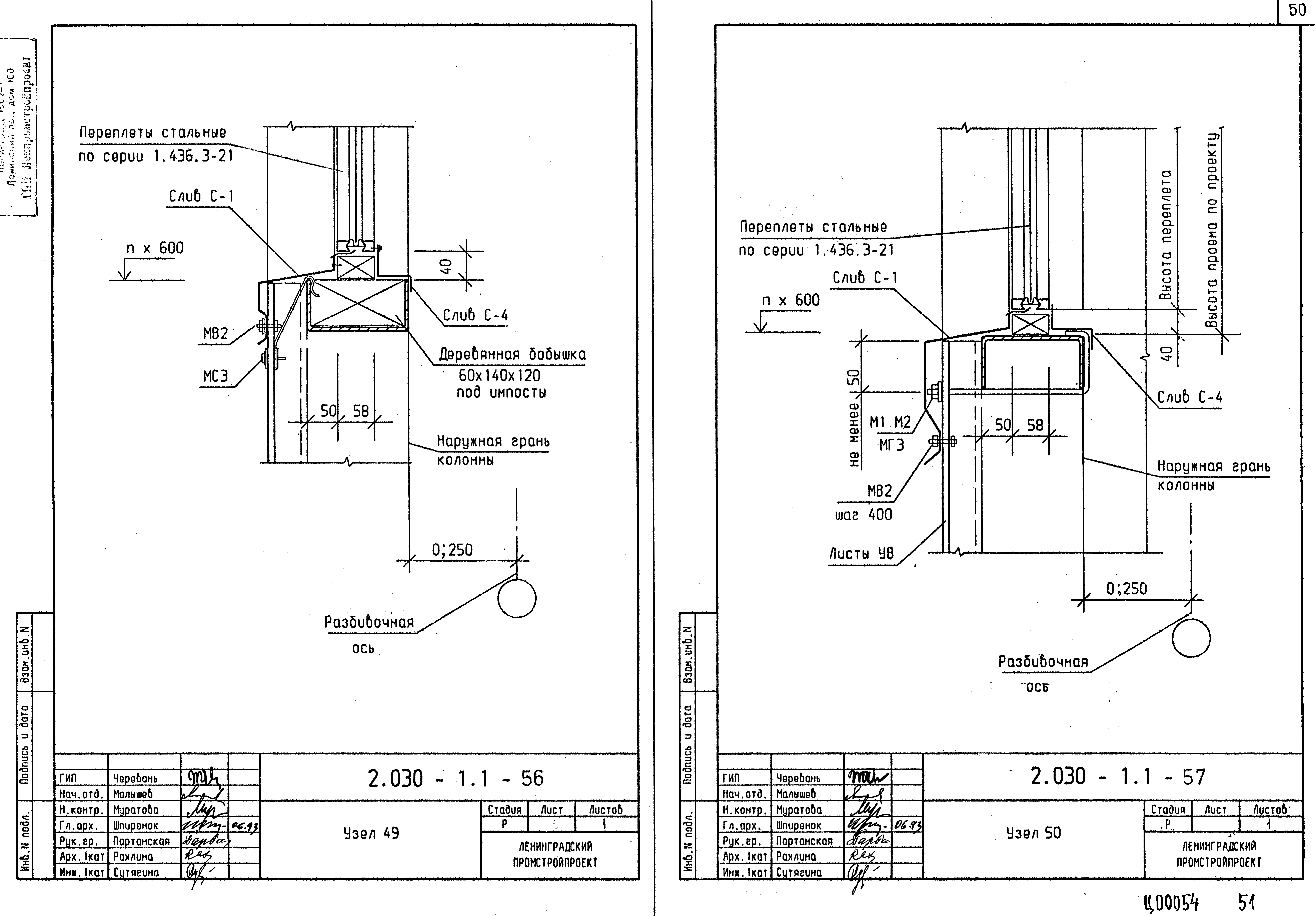
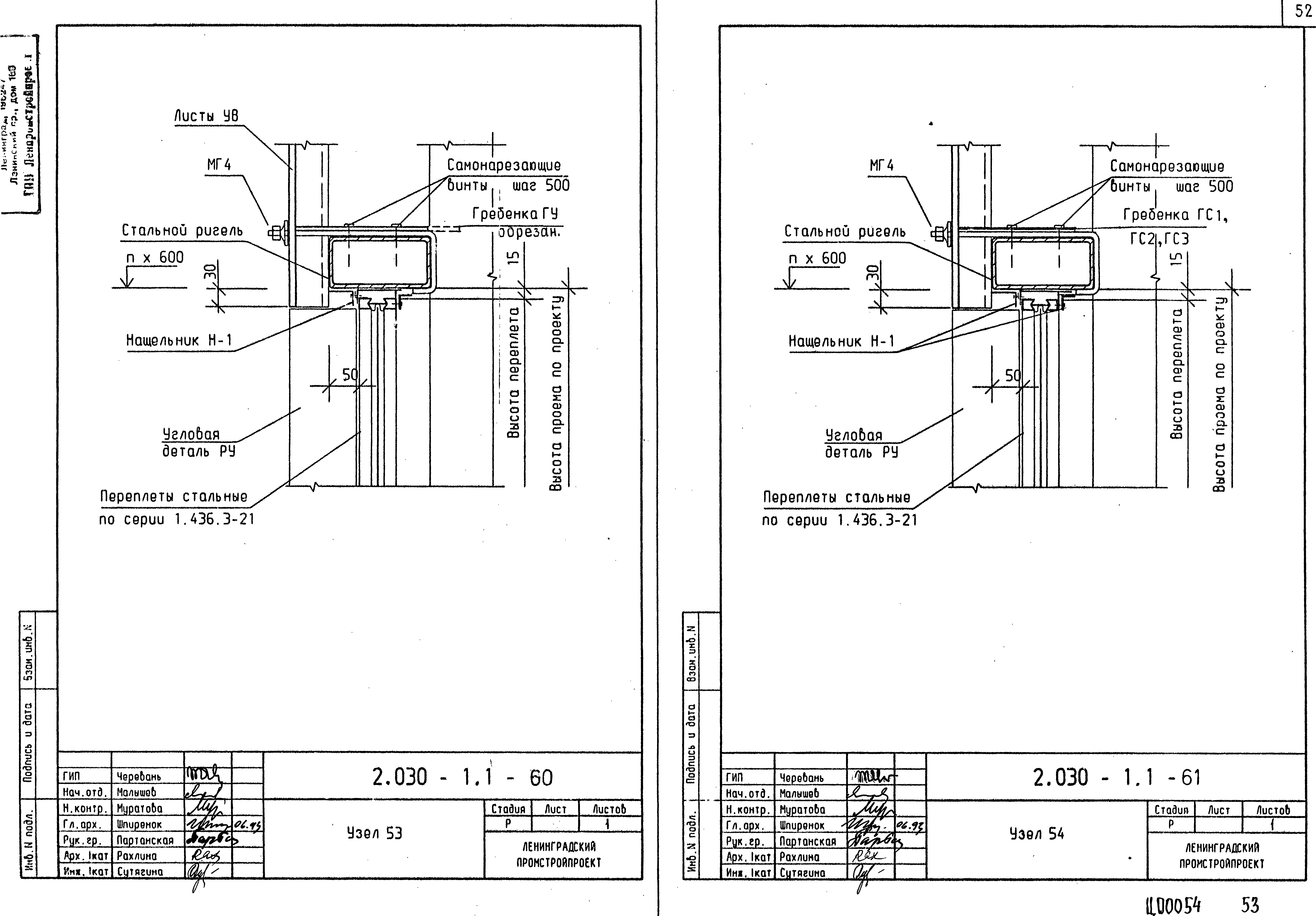
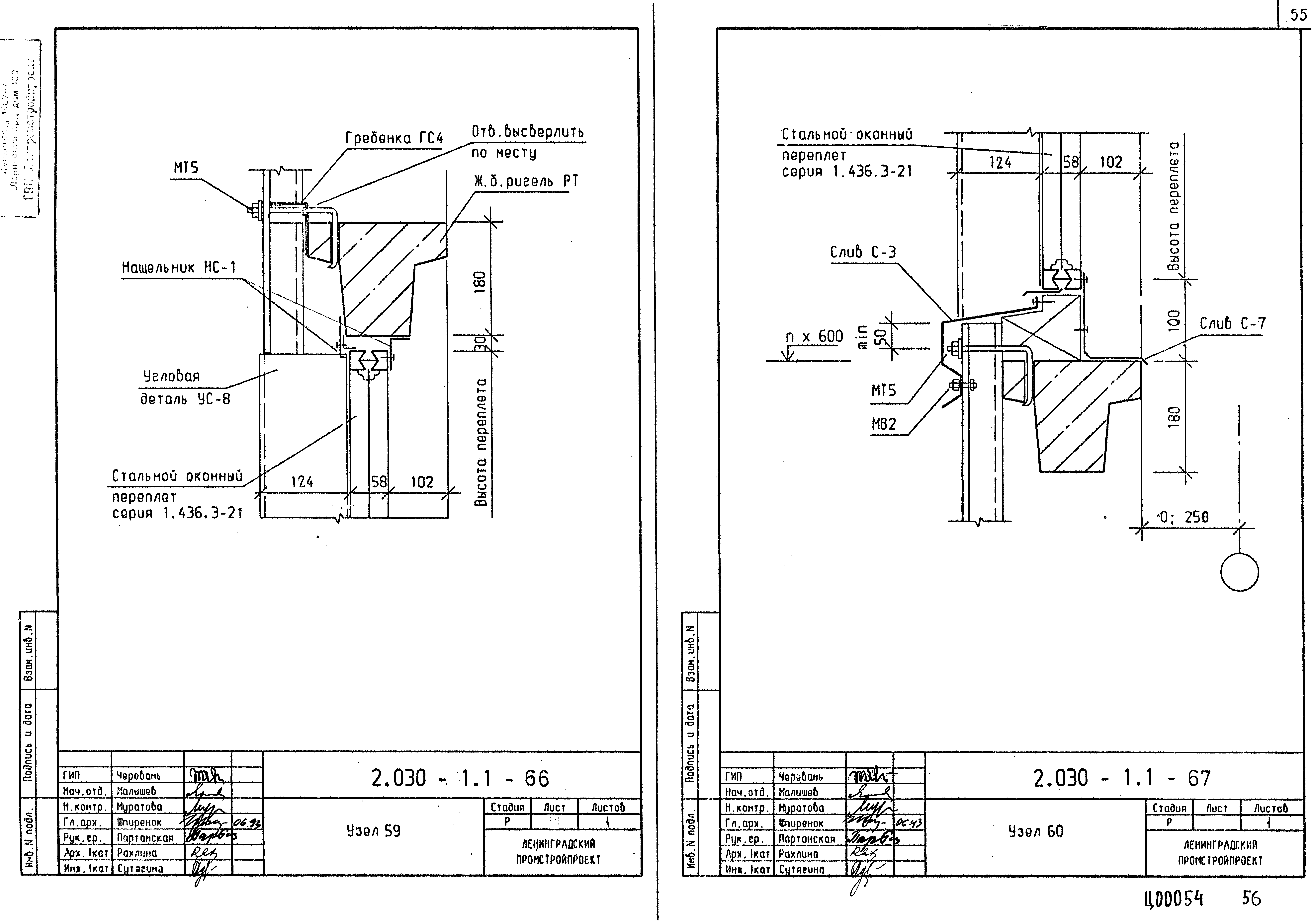
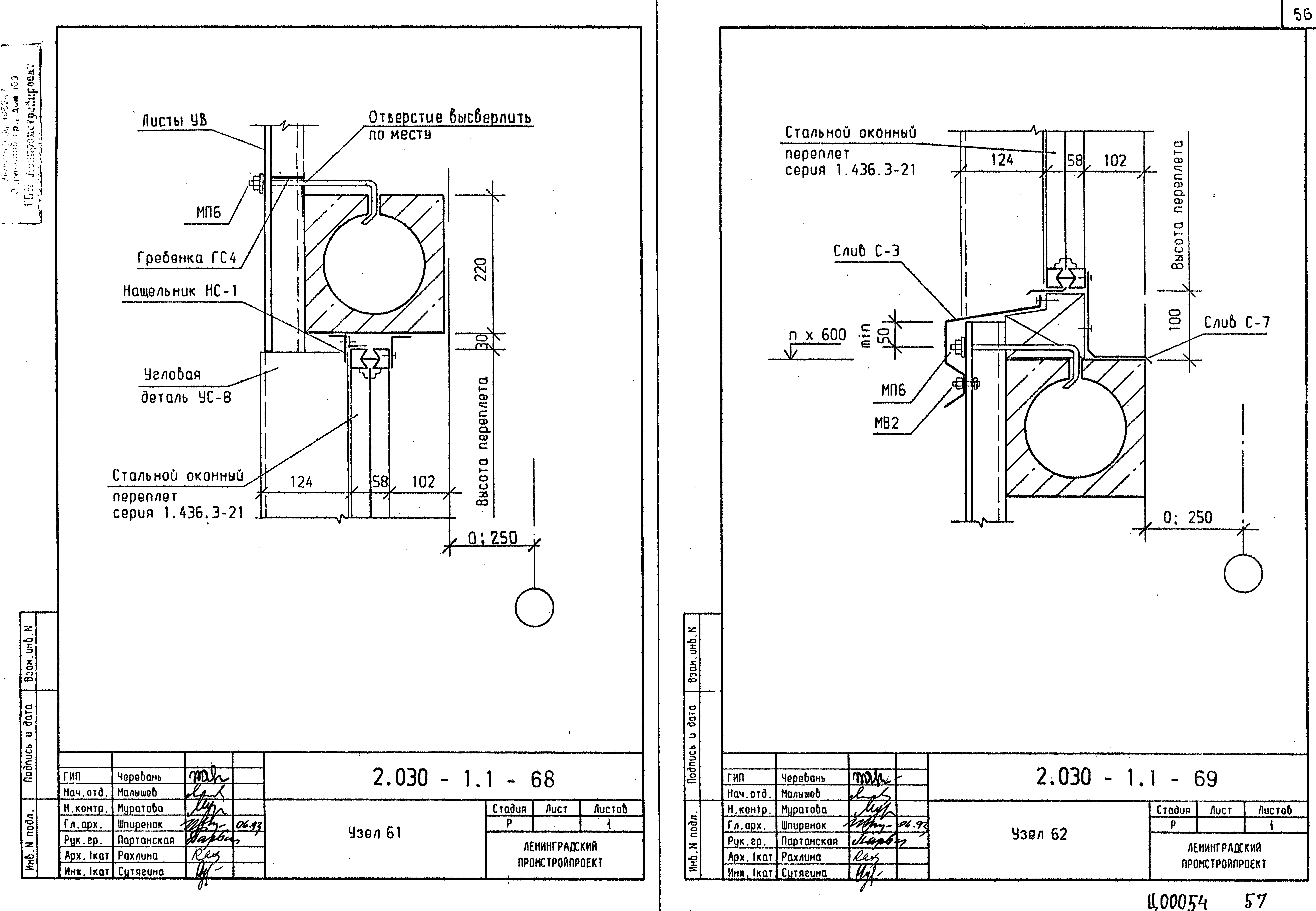
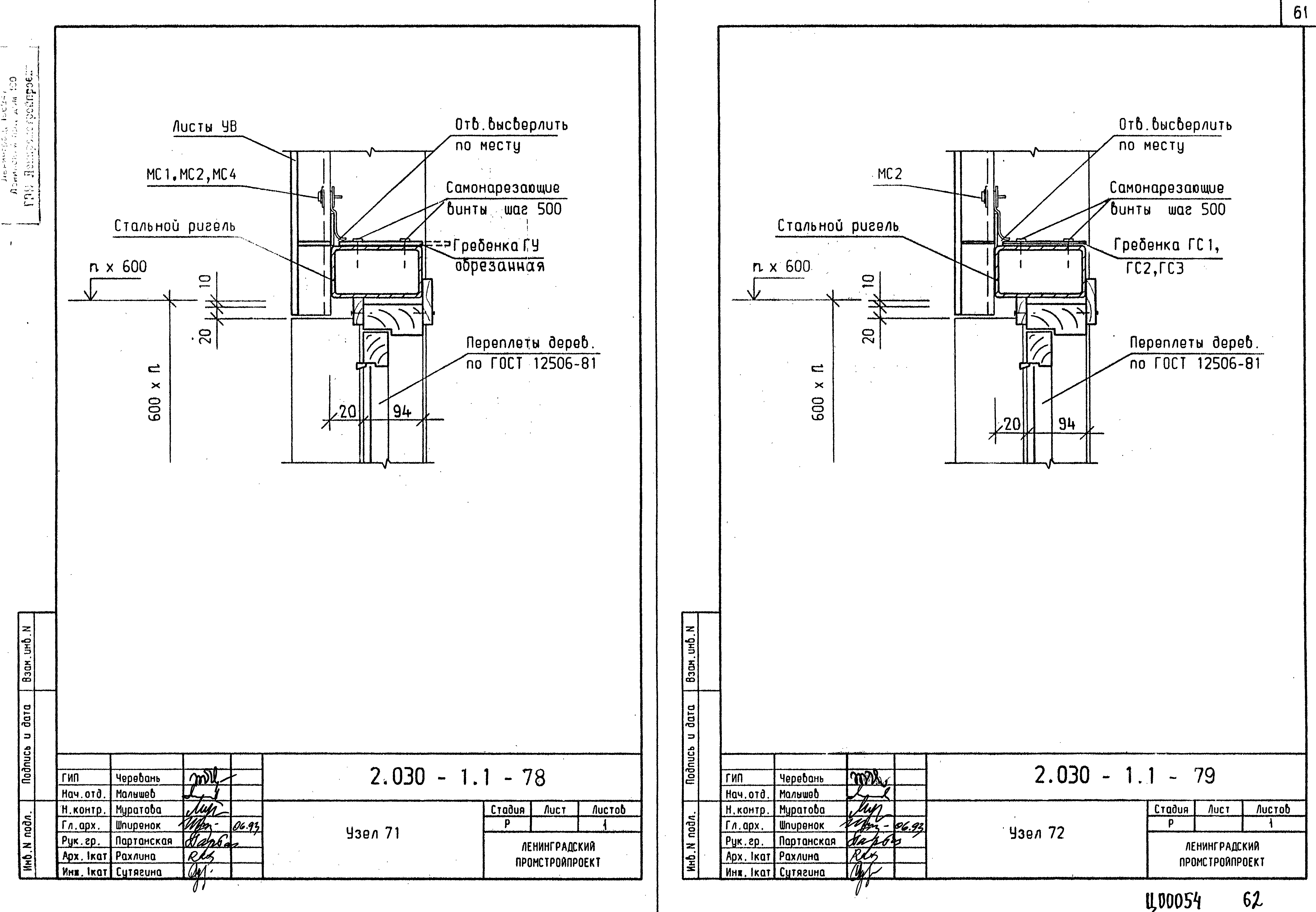
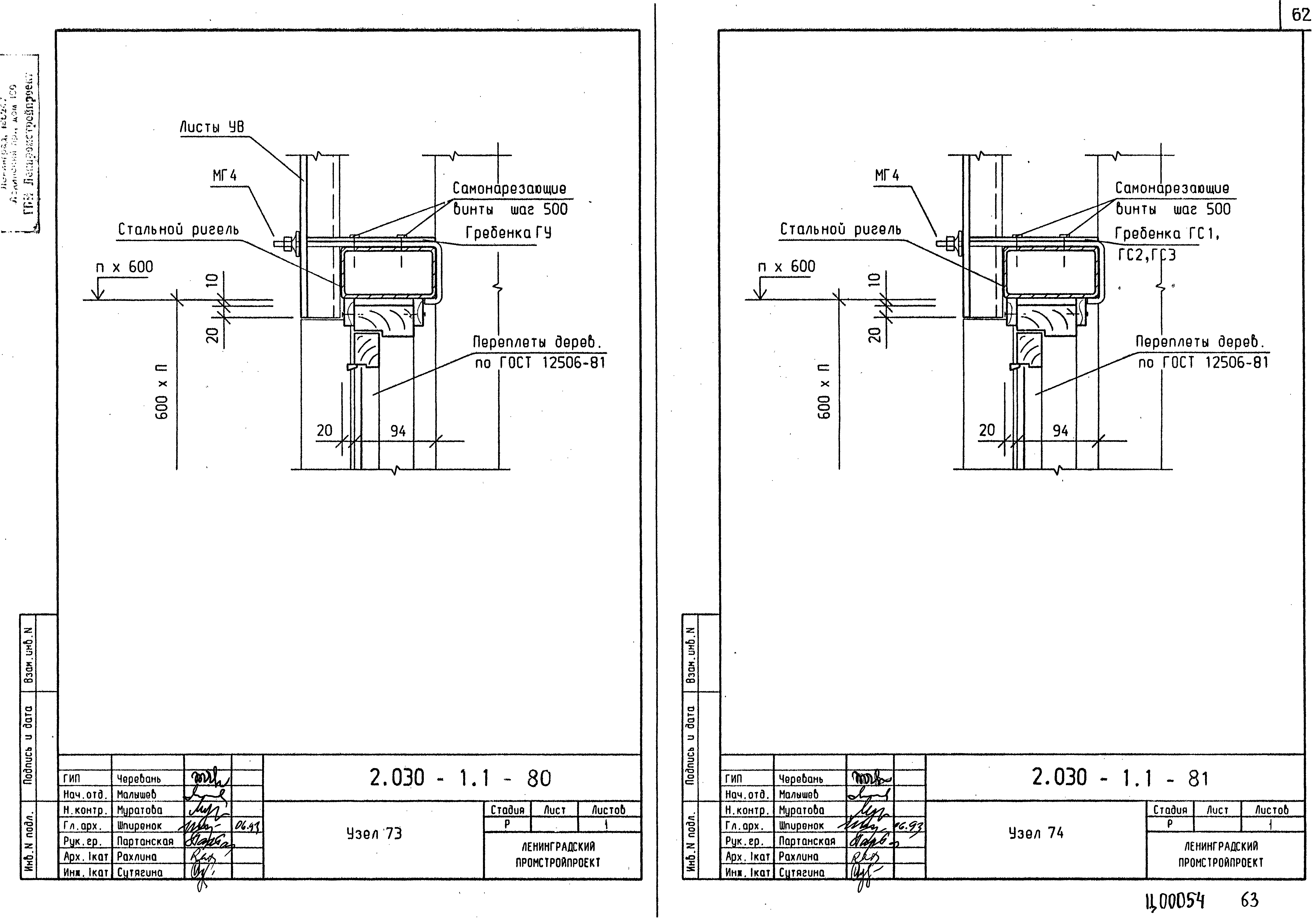
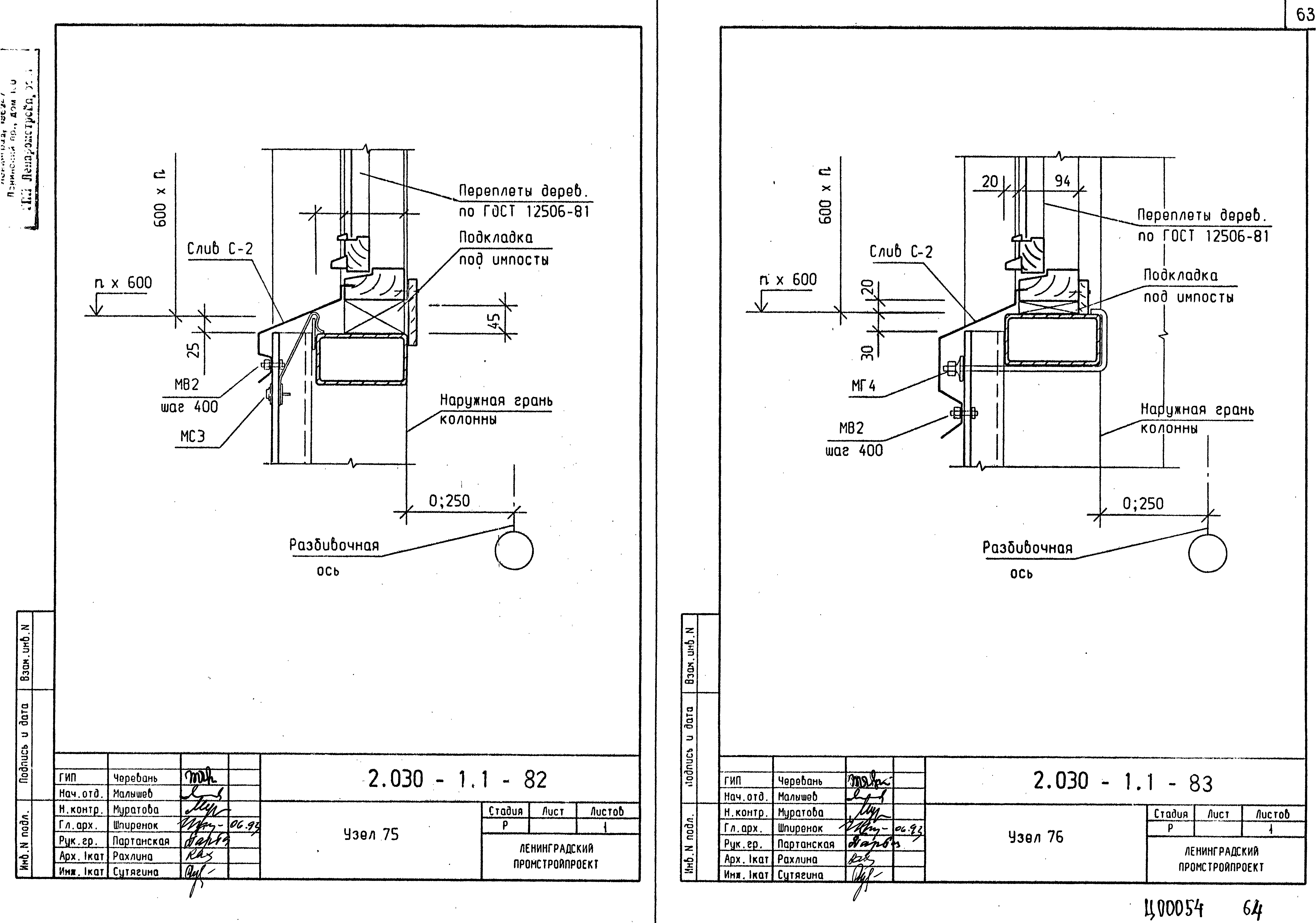
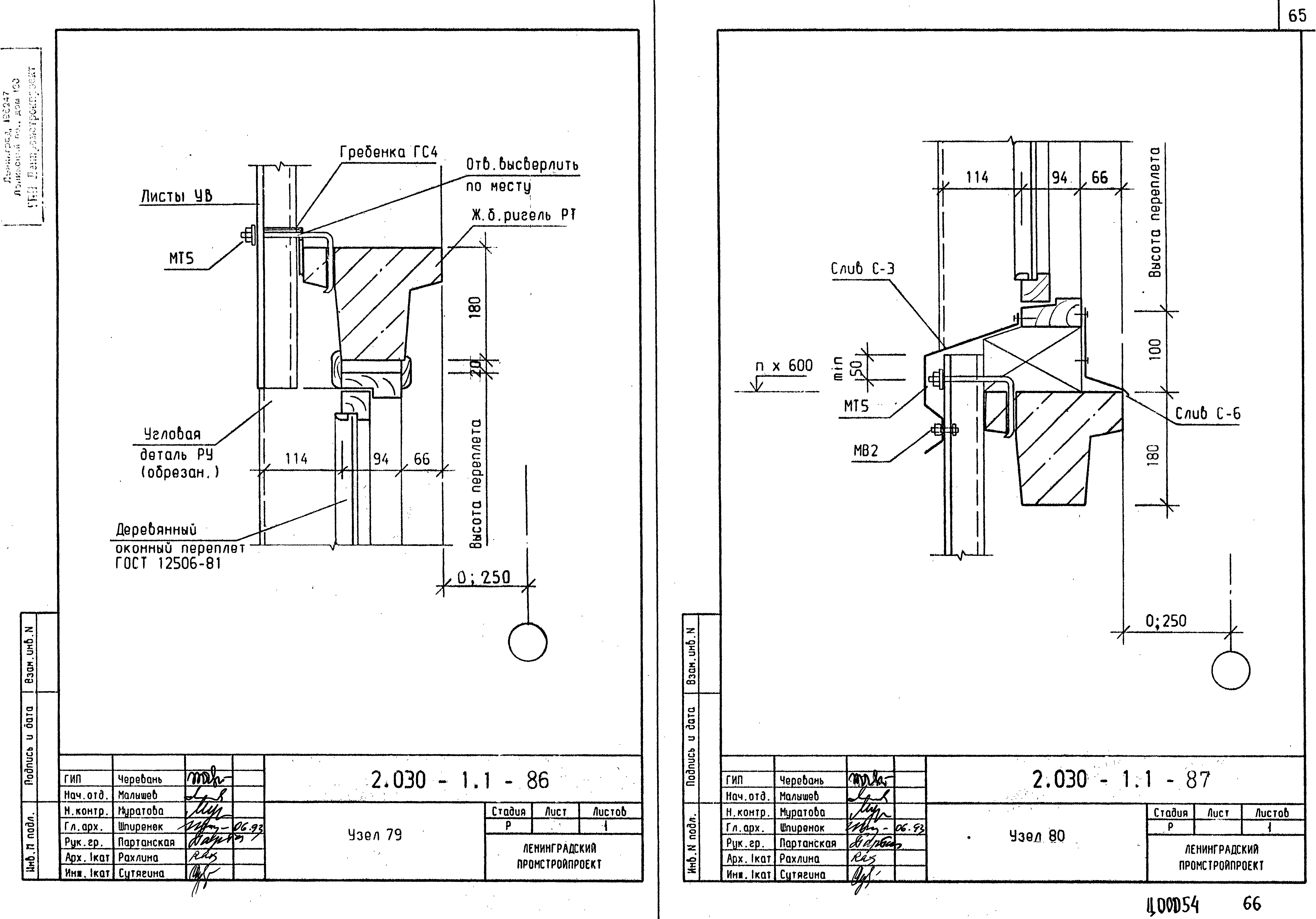
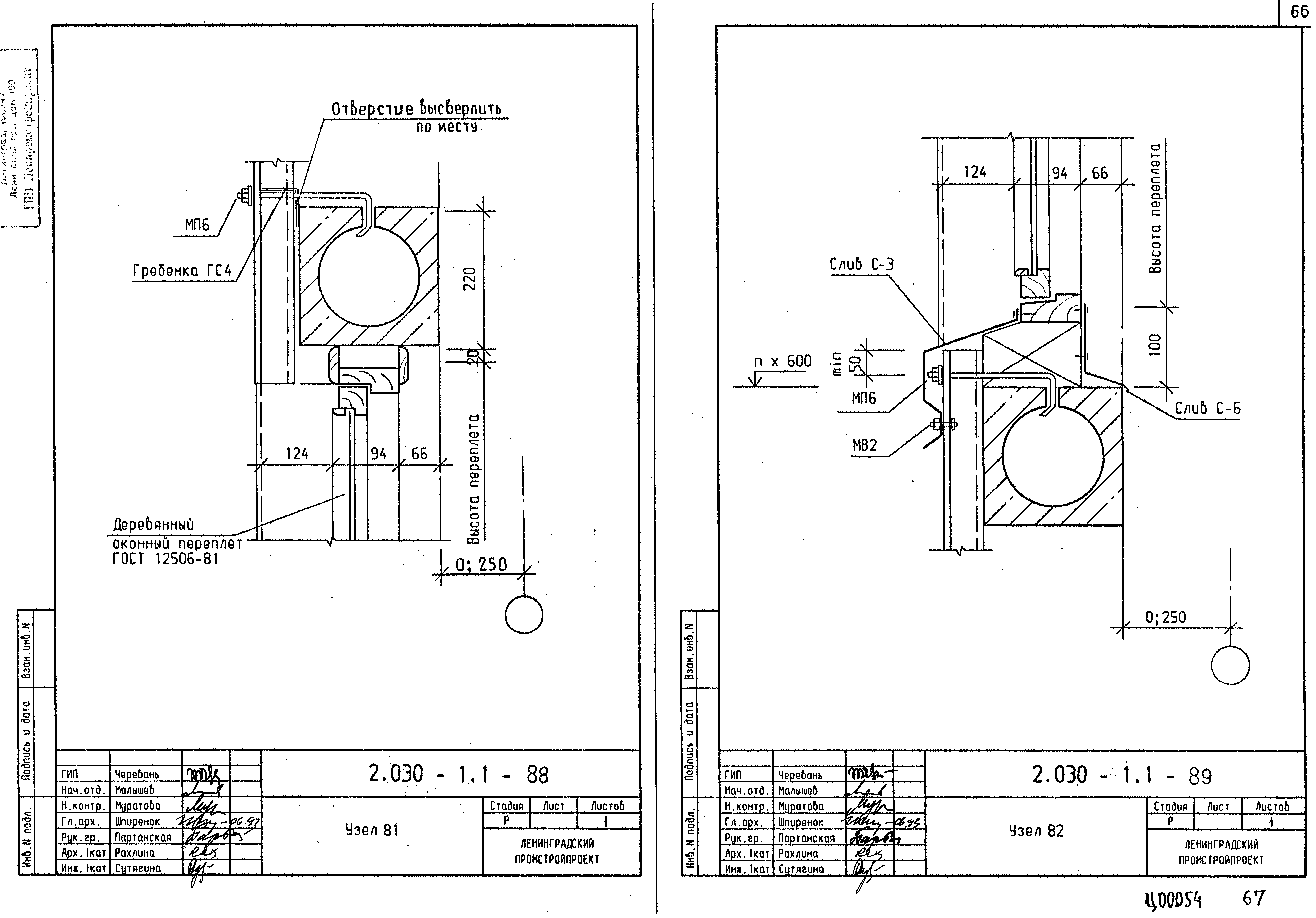
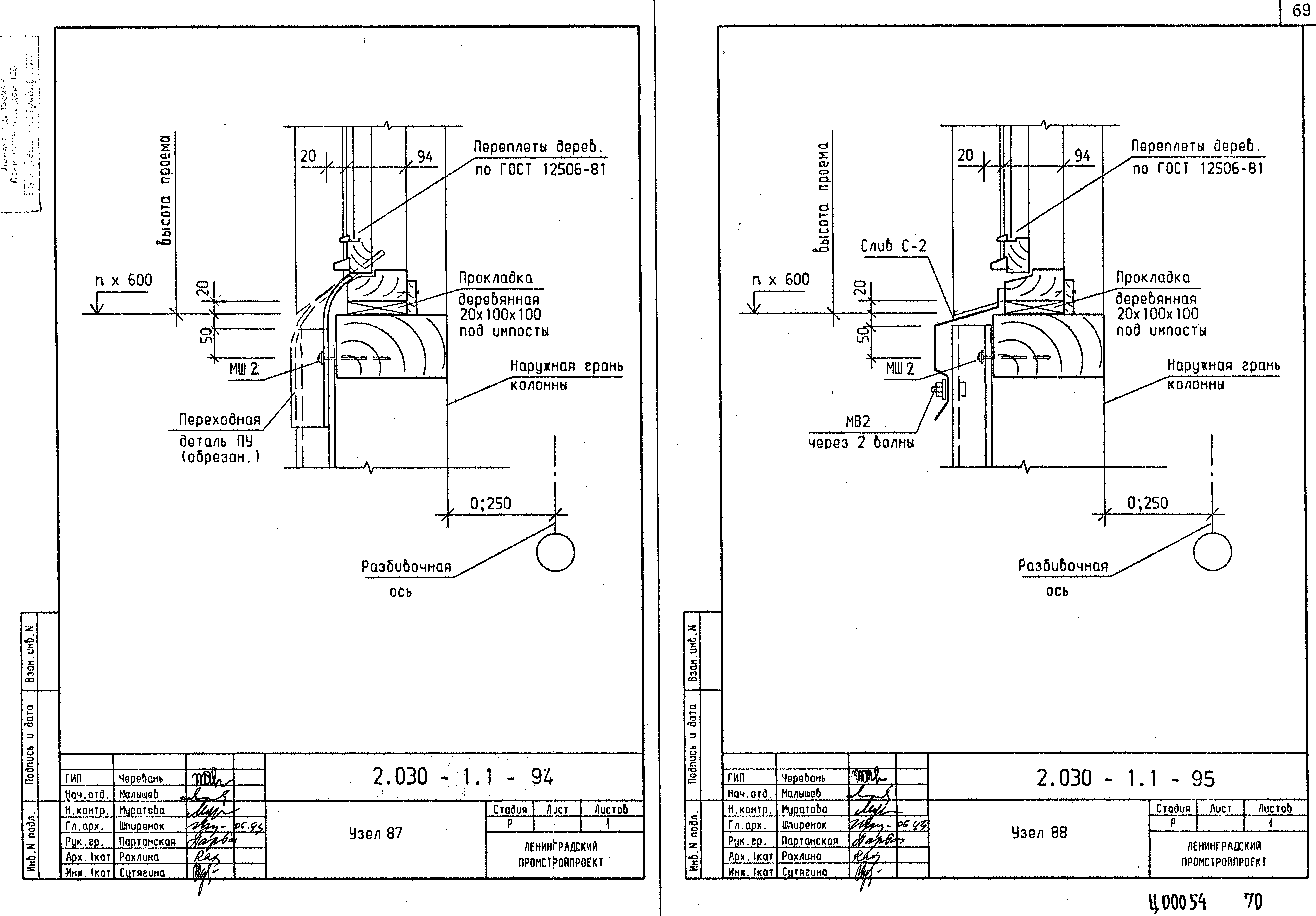
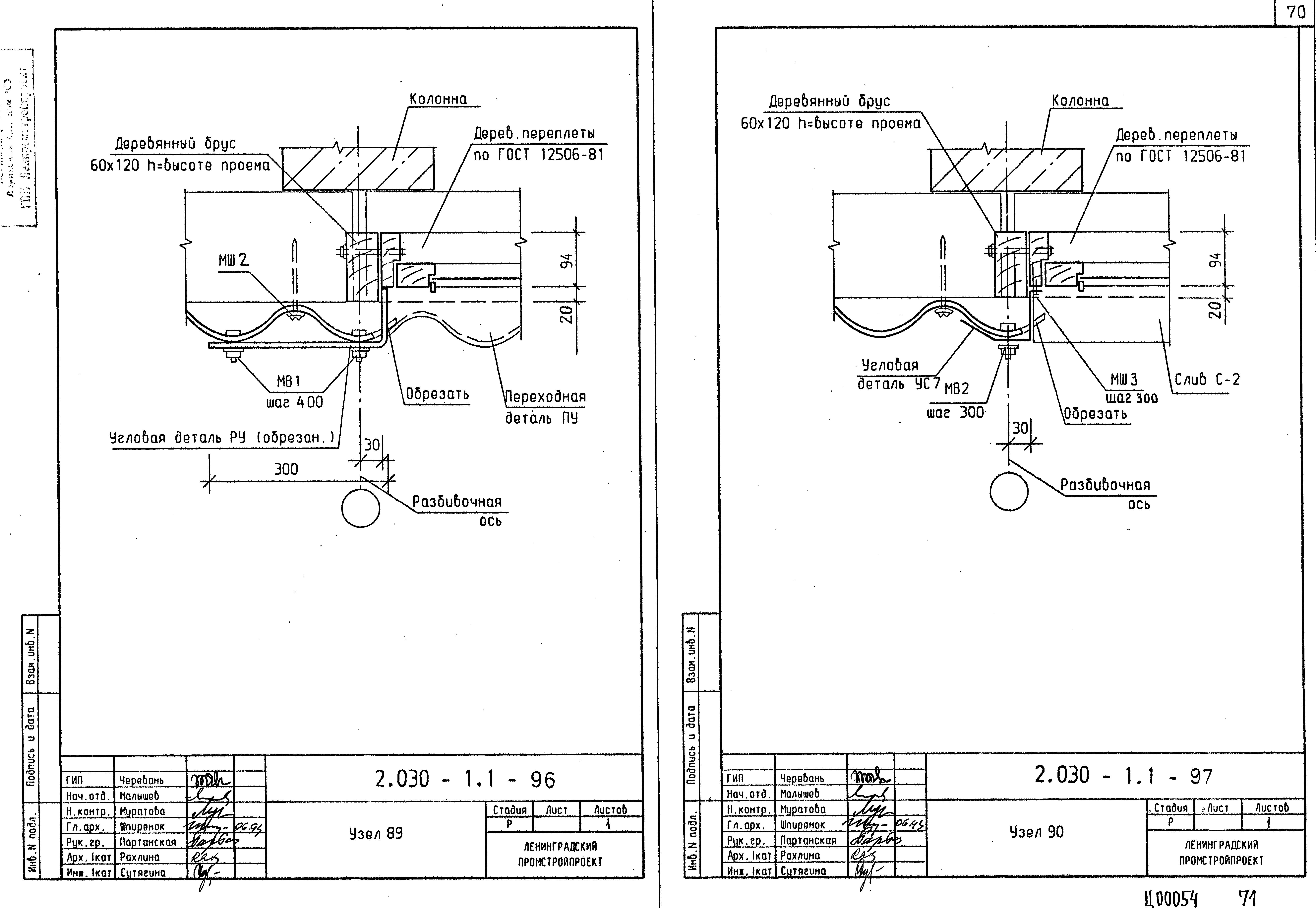
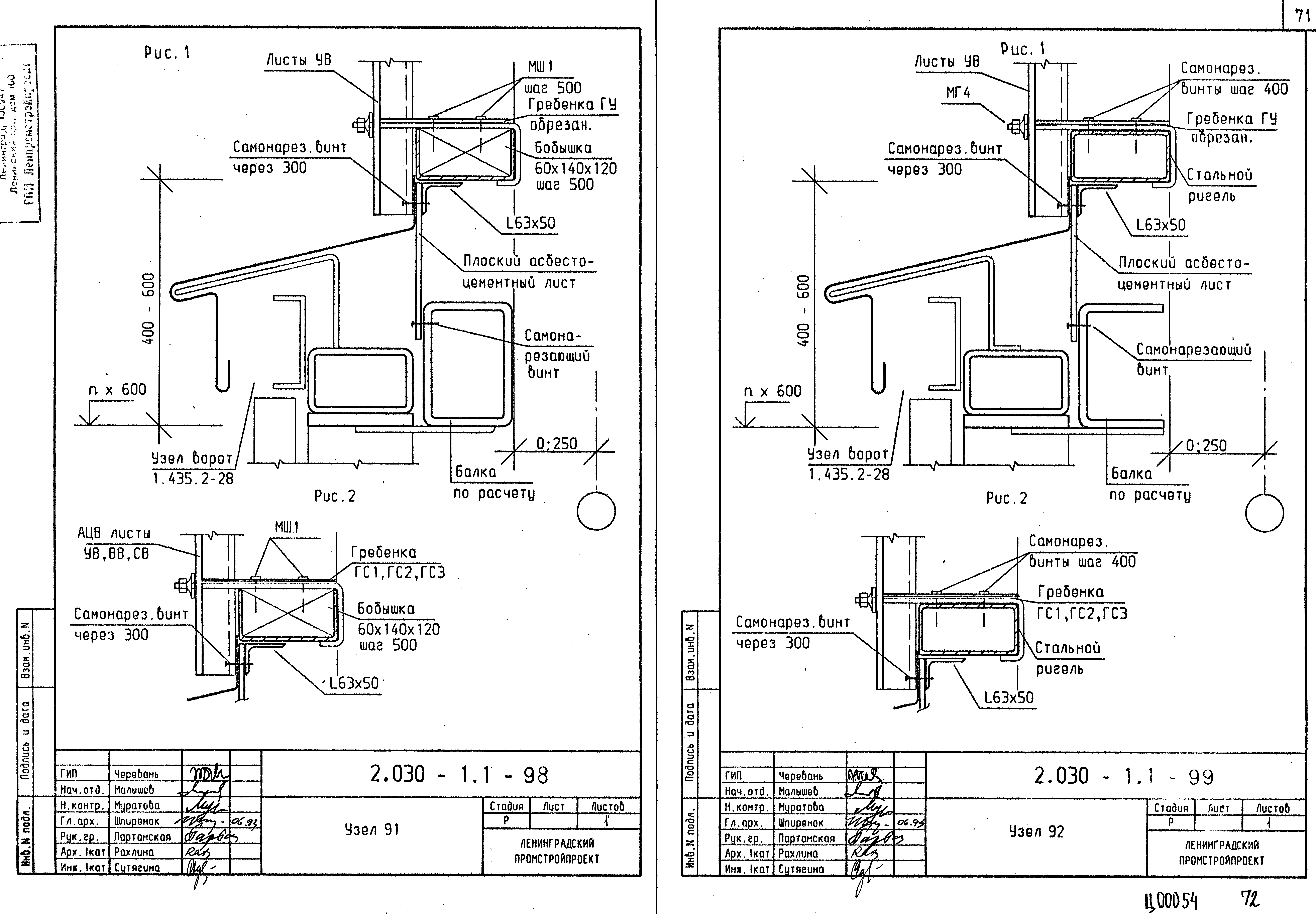
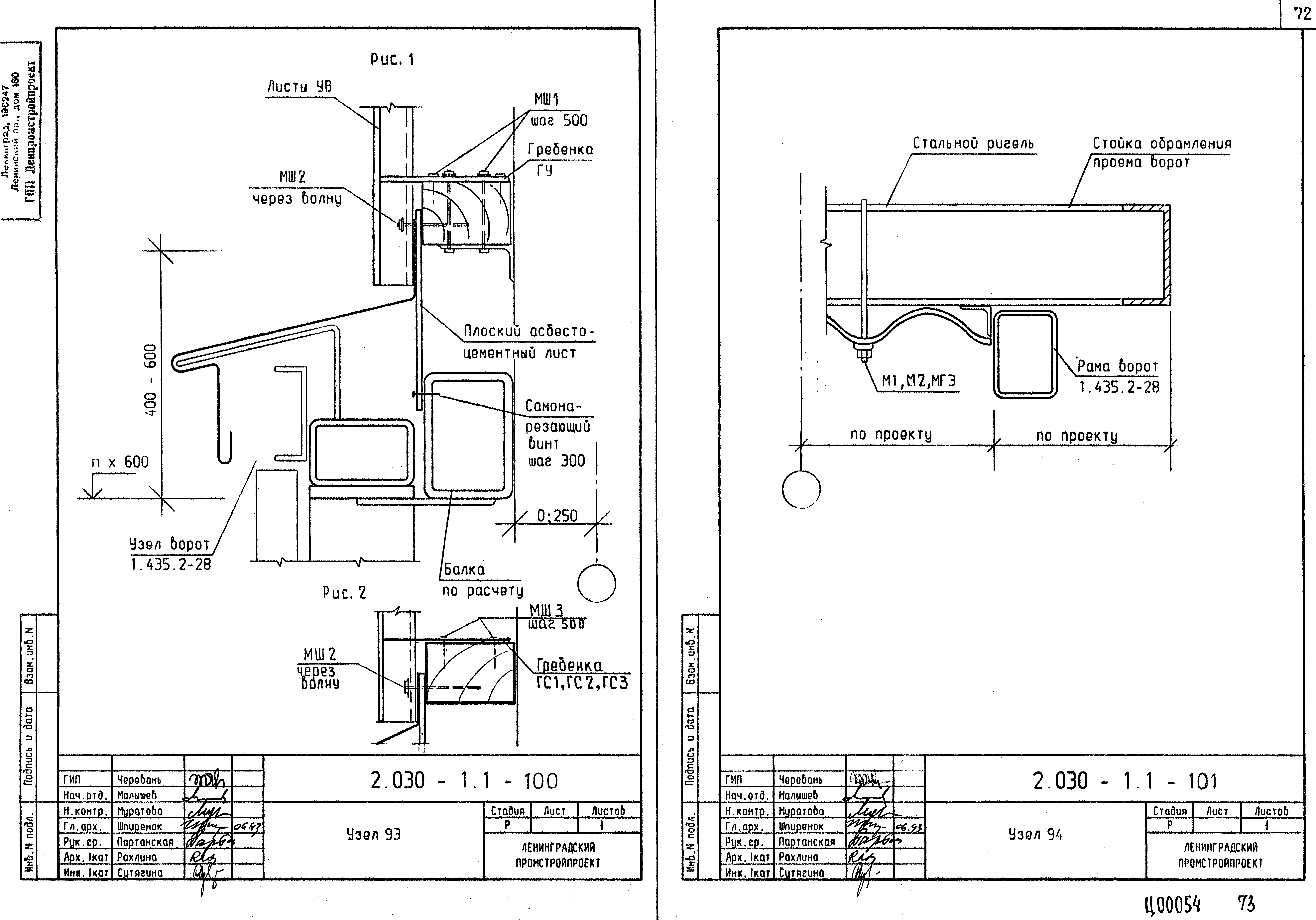
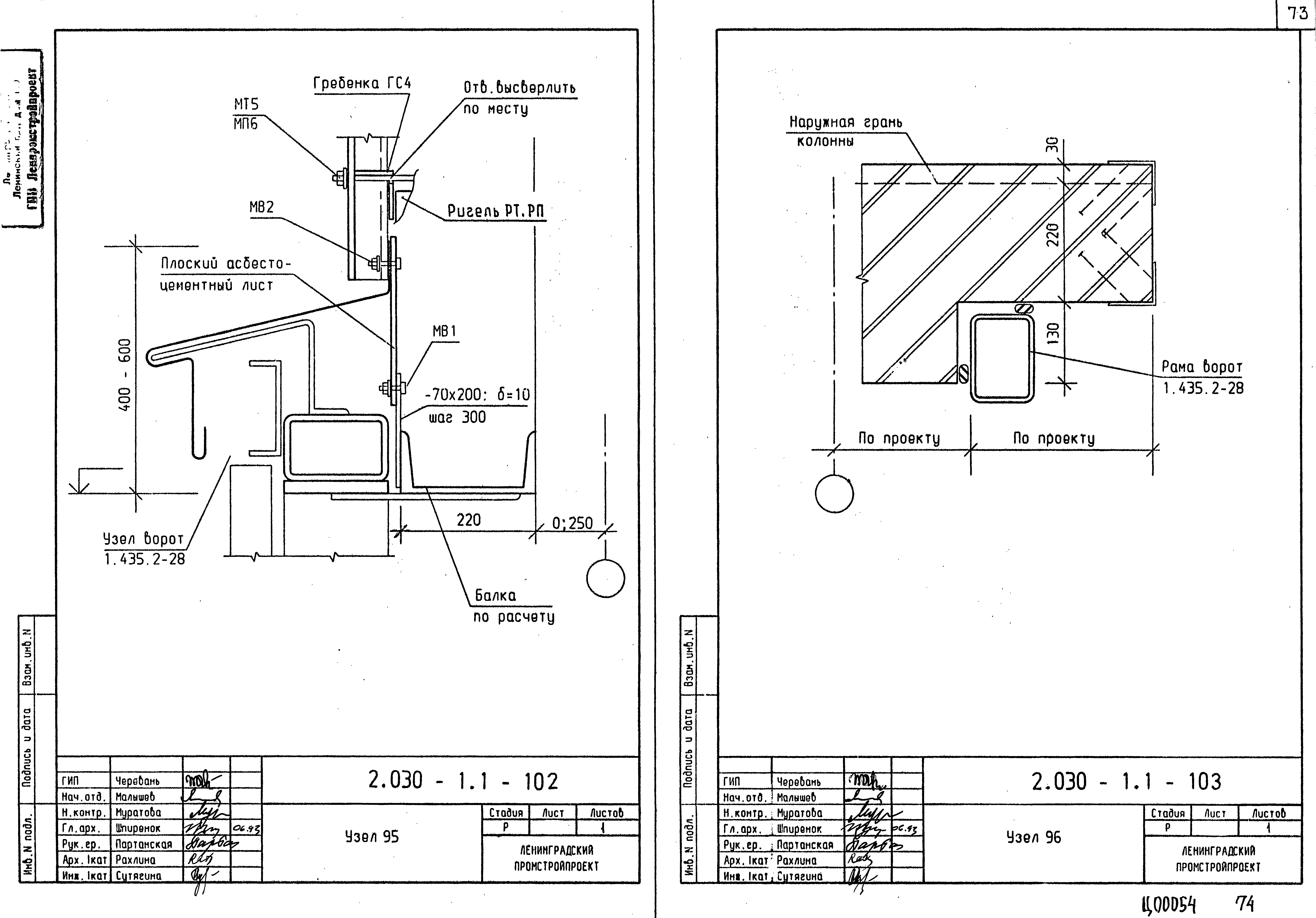
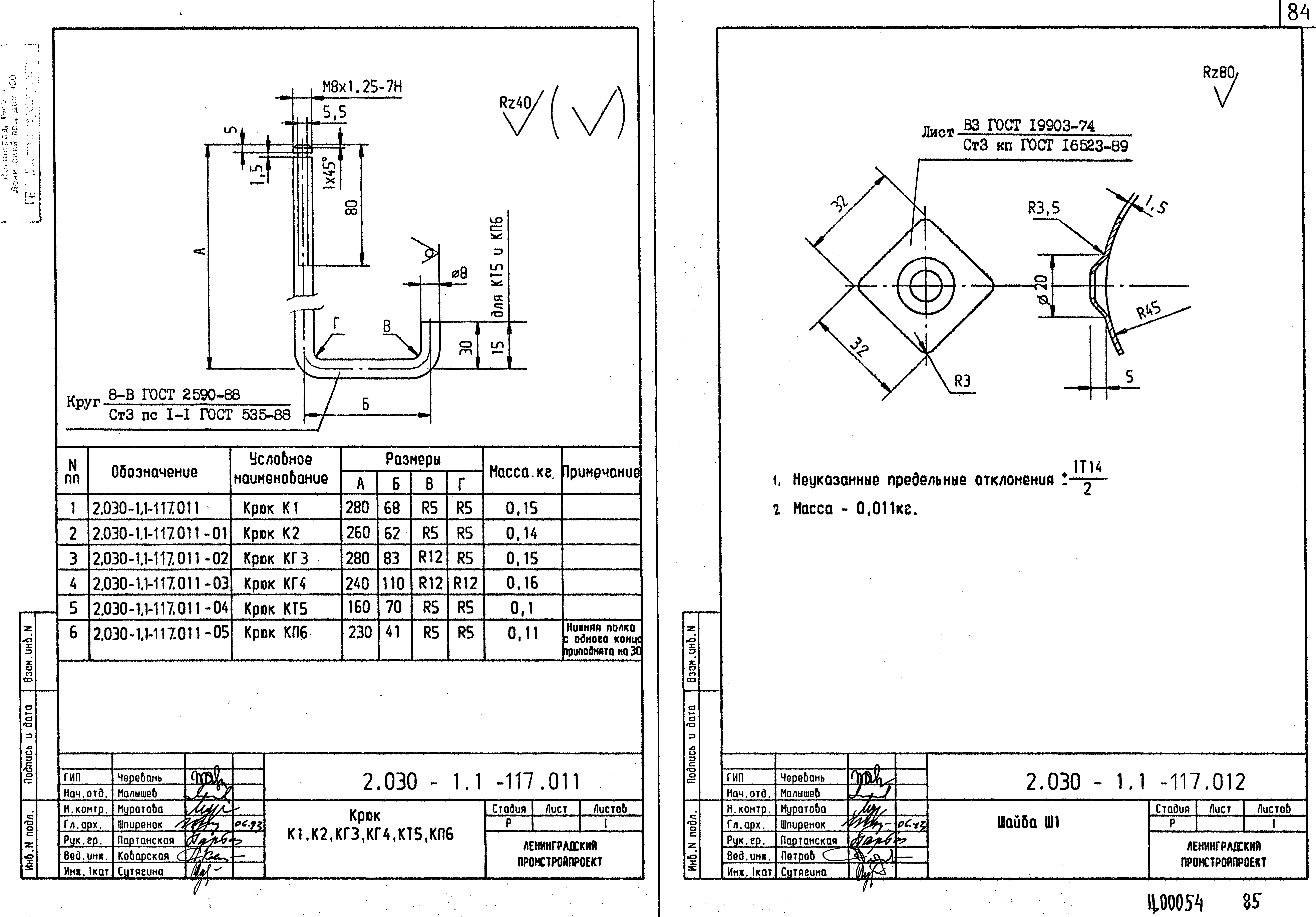
| Оглавление: | 2.030-1.1-ТТ Технические требования 2.030-1.1-1 Номенклатура изделий из оцинкованной стали 2.030-1.1-2 Номенклатура изделий для крепления асбестоцементных волнистых листов 2.030-1.1-3 Маркировочная схема узлов продольных стен 2.030-1.1-4 Маркировочная схема узлов торцевых стен 2.030-1.1-5 Маркировочная схема узлов заделки оконных проемов 2.030-1.1-6 Маркировочная схема узлов заделки проема ворот 2.030-1.1-7 Спецификация доборных деталей и элементов крепления 2.030-1.1-8 Узел 1 2.030-1.1-9 Узел 2 2.030-1.1-10 Узел 3 2.030-1.1-11 Узел 4 2.030-1.1-12 Узел 5 2.030-1.1-13 Узел 6 2.030-1.1-14 Узел 7 2.030-1.1-15 Узел 8 2.030-1.1-16 Узел 9 2.030-1.1-17 Узел 10 2.030-1.1-18 Узел 11 2.030-1.1-19 Узел 12 2.030-1.1-20 Узел 13 2.030-1.1-21 Узел 14 2.030-1.1-22 Узел 15 2.030-1.1-23 Узел 16 2.030-1.1-24 Узел 17 2.030-1.1-25 Узел 18 2.030-1.1-26 Узел 19 2.030-1.1-27 Узел 20 2.030-1.1-28 Узел 21 2.030-1.1-29 Узел 22 2.030-1.1-30 Узел 23 2.030-1.1-31 Узел 24 2.030-1.1-32 Узел 25 2.030-1.1-33 Узел 26 2.030-1.1-34 Узел 27 2.030-1.1-35 Узел 28 2.030-1.1-36 Узел 29 2.030-1.1-37 Узел 30 2.030-1.1-38 Узел 31 2.030-1.1-39 Узел 32 2.030-1.1-40 Узел 33 2.030-1.1-41 Узел 34 2.030-1.1-42 Узел 35 2.030-1.1-43 Узел 36 2.030-1.1-44 Узел 37 2.030-1.1-45 Узел 38 2.030-1.1-46 Узел 39 2.030-1.1-47 Узел 40 2.030-1.1-48 Узел 41 2.030-1.1-49 Узел 42 2.030-1.1-50 Узел 43 2.030-1.1-51 Узел 44 2.030-1.1-52 Узел 45 2.030-1.1-53 Узел 46 2.030-1.1-54 Узел 47 2.030-1.1-55 Узел 48 2.030-1.1-56 Узел 49 2.030-1.1-57 Узел 50 2.030-1.1-58 Узел 51 2.030-1.1-59 Узел 52 2.030-1.1-60 Узел 53 2.030-1.1-61 Узел 54 2.030-1.1-62 Узел 55 2.030-1.1-63 Узел 56 2.030-1.1-64 Узел 57 2.030-1.1-65 Узел 58 2.030-1.1-66 Узел 59 2.030-1.1-67 Узел 60 2.030-1.1-68 Узел 61 2.030-1.1-69 Узел 62 2.030-1.1-70 Узел 63 2.030-1.1-71 Узел 64 2.030-1.1-72 Узел 65 2.030-1.1-73 Узел 66 2.030-1.1-74 Узел 67 2.030-1.1-75 Узел 68 2.030-1.1-76 Узел 69 2.030-1.1-77 Узел 70 2.030-1.1-78 Узел 71 2.030-1.1-79 Узел 72 2.030-1.1-80 Узел 73 2.030-1.1-81 Узел 74 2.030-1.1-82 Узел 75 2.030-1.1-83 Узел 76 2.030-1.1-84 Узел 77 2.030-1.1-85 Узел 78 2.030-1.1-86 Узел 79 2.030-1.1-87 Узел 80 2.030-1.1-88 Узел 81 2.030-1.1-89 Узел 82 2.030-1.1-90 Узел 83 2.030-1.1-91 Узел 84 2.030-1.1-92 Узел 85 2.030-1.1-93 Узел 86 2.030-1.1-94 Узел 87 2.030-1.1-95 Узел 88 2.030-1.1-96 Узел 89 2.030-1.1-97 Узел 90 2.030-1.1-98 Узел 91 2.030-1.1-99 Узел 92 2.030-1.1-100 Узел 93 2.030-1.1-101 Узел 94 2.030-1.1-102 Узел 95 2.030-1.1-103 Узел 96 2.030-1.1-104 Гребенки ГС-1, ГС-2 2.030-1.1-105 Гребенки ГС-3, ГС-3а 2.030-1.1-106 Гребенки ГС-4 2.030-1.1-107 Угловые детали УС-1, УС-2, УС-3 2.030-1.1-108 Угловые детали УС-4 2.030-1.1-109 Угловые Детали обрамления окон УС-5, УС-6, УС-7, УС-8 2.030-1.1-110 Нащельник Н-1 2.030-1.1-111 Сливы подоконные С-1, С-2, С-3 2.030-1.1-112 Сливы подоконные С-4, С-5, С-6, С-7 2.030-1.1-113 Сливы подоконные С-8, С-9, С-10, С-11 2.030-1.1-114 Костыль цокольный КЦ1 2.030-1.1-115 Лотковые детали ЛС-1, ЛС-2 2.030-1.1-116 Костыль лотковый КЛ-1, КЛ-2 2.030-1.1-117.010 Крепежный элемент М1, МГ3 2.030-1.1-117.020 Крепежный элемент М2, МГ4 2.030-1.1-117.030 Крепежный элемент МВ1, МВ2 2.030-1.1-117.040 Крепежный элемент МТ5, МП6 2.030-1.1-117.050 Крепежный элемент МС1, МС2, МС3, МС4 2.030-1.1-117.060 Крепежный элемент МШ1, МШ2, МШ3 2.030-1.1-117.053 Скоба С4 2.030-1.1-117.011 Крюк К1, К2, КГ3, КГ4, КТ5, КП6 2.030-1.1-117.012 Шайба Ш1 2.030-1.1-117.013 Прокладка ПМ1 2.030-1.1-117.031 Шайба Ш2 2.030-1.1-117.032 Прокладка ПМ2 2.030-1.1-117.051 Скобы С2, С3 2.030-1.1-117.052 Скоба С5 2.030-1.1-117.054 Прокладка П1 |
| Разработан: | Ленинградский Промстройпроект |
| Утверждён: | 30.12.1992 Минстрой России (Russian Federation Minstroy 9-1/421) |
| Заменяет собой: |























































































