Скачать Серия 2.473-1 Выпуск 2. Изделия. Технические условия. Рабочие чертежиДата актуализации: 01.01.2021
|
| Обозначение: | Серия 2.473-1 |
| Обозначение англ: | Series 2.473-1 |
| Статус: | действует |
| Название рус.: | Выпуск 2. Изделия. Технические условия. Рабочие чертежи |
| Дата добавления в базу: | 01.09.2013 |
| Дата актуализации: | 01.01.2021 |
| Дата введения: | 01.09.1989 |
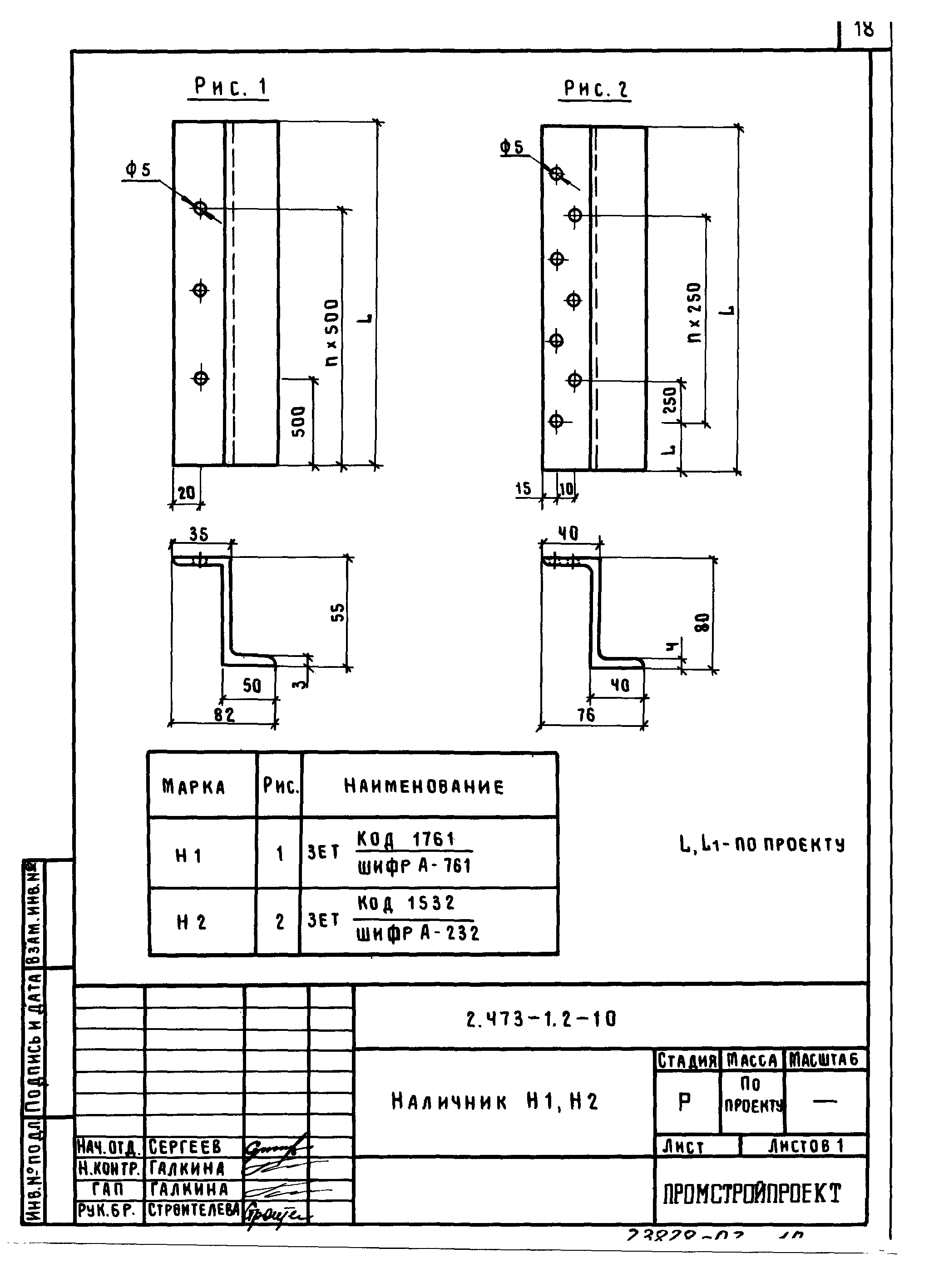
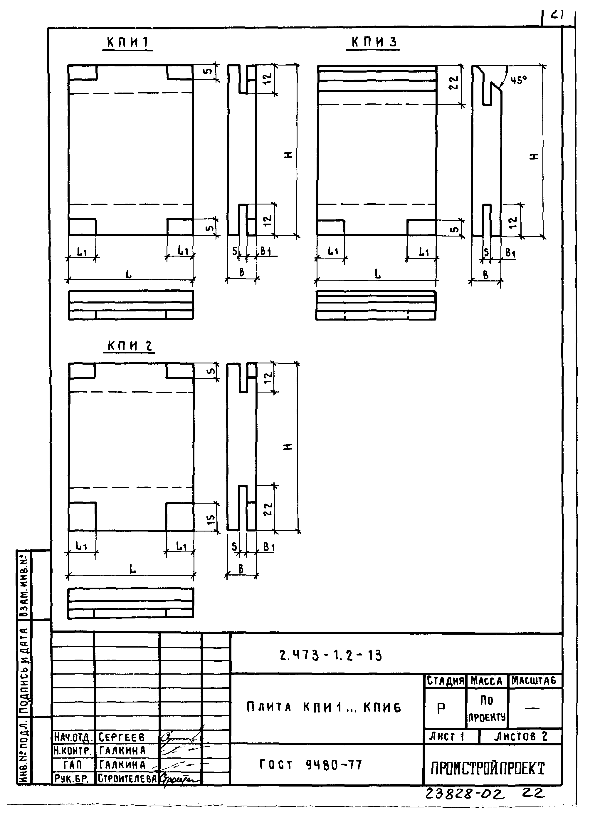
| Оглавление: | 2.473-1.2-ТУ Технические условия 2.473-1.2-1 Закрепа РП1, РП2 2.473-1.2-2 Закрепа РП3, РП4 2.473-1.2-3 Закрепа РП5, РП6 2.473-1.2-4 Закрепа РП7, РП8 2.473-1.2-5 Опора ПР1… ПР3 2.473-1.2-6 Болт Б1… Б4 2.473-1.2-7 Пластина П1… П4 2.473-1.2-8 Стойка СТ1 2.473-1.2-9 Связь СВ1 2.473-1.2-10 Наличник Н1, Н2 2.473-1.2-11 Плита АЛП1 2.473-1.2-12 Плита АЦЛ1, АЦЛ2 2.473-1.2-13 Плита КПИ1… КПИ6 2.473-1.2-14 Плита ДСП1… ДСП3 |
| Разработан: | ГПИ Промстройпроект |
| Утверждён: | 03.02.1989 Госстрой СССР (Государственный комитет Совета Министров СССР по делам строительства) (USSR Gosstroy 4/6-159) |
| Издан: | ЦИТП Госстроя СССР (CITP, Gosstroy (USSR) 1989 г. ) |
























