Скачать Серия 2.160-8 Узлы сопряжения сборных железобетонных изделий теплого чердака и крыш с безрулонной кровлей и мастичной гидроизоляцией. Рабочие чертежиДата актуализации: 01.01.2021
|
| Обозначение: | Серия 2.160-8 |
| Обозначение англ: | Series 2.160-8 |
| Статус: | действует |
| Название рус.: | Узлы сопряжения сборных железобетонных изделий теплого чердака и крыш с безрулонной кровлей и мастичной гидроизоляцией. Рабочие чертежи |
| Дата добавления в базу: | 01.09.2013 |
| Дата актуализации: | 01.01.2021 |
| Дата введения: | 15.02.1987 |
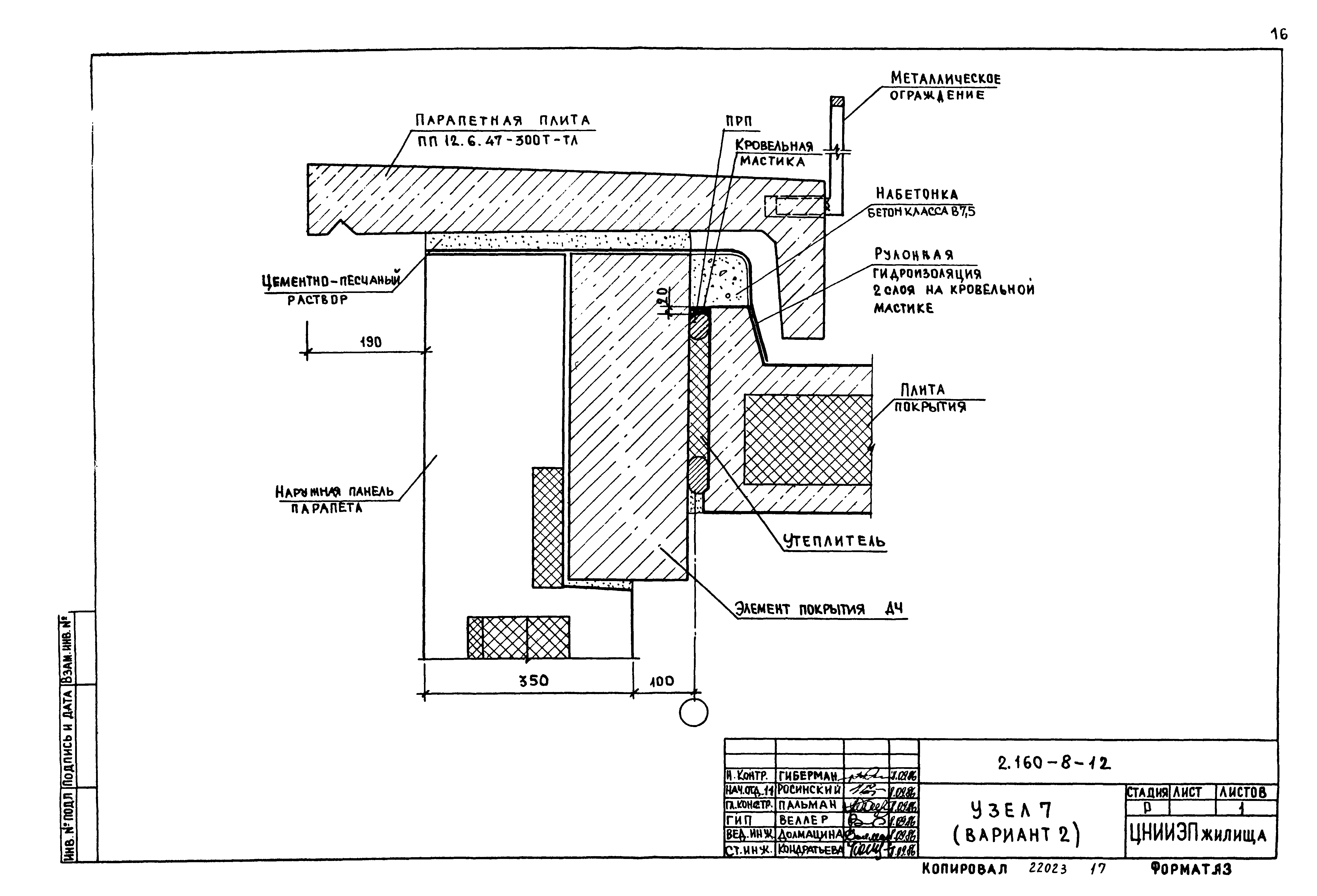
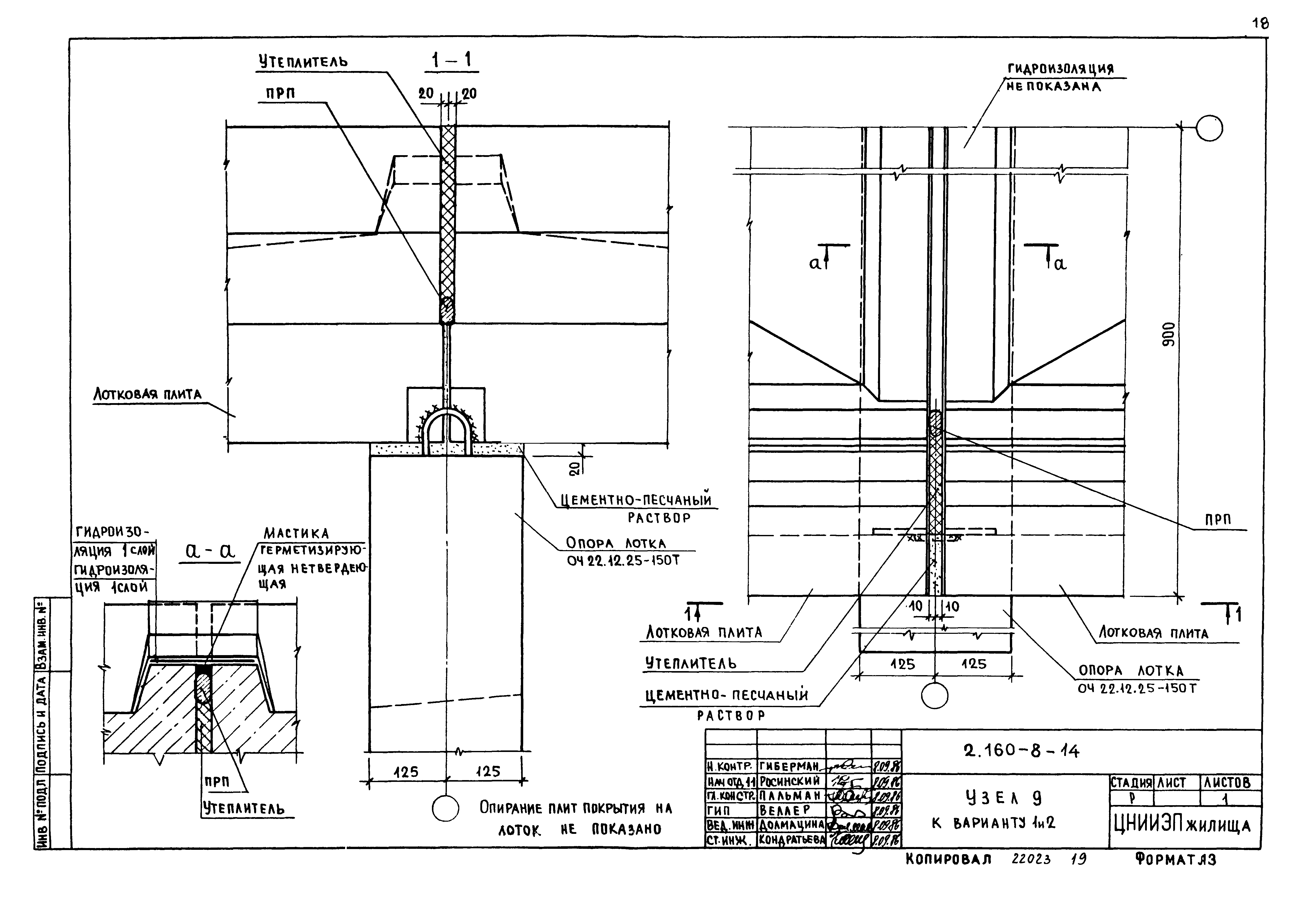
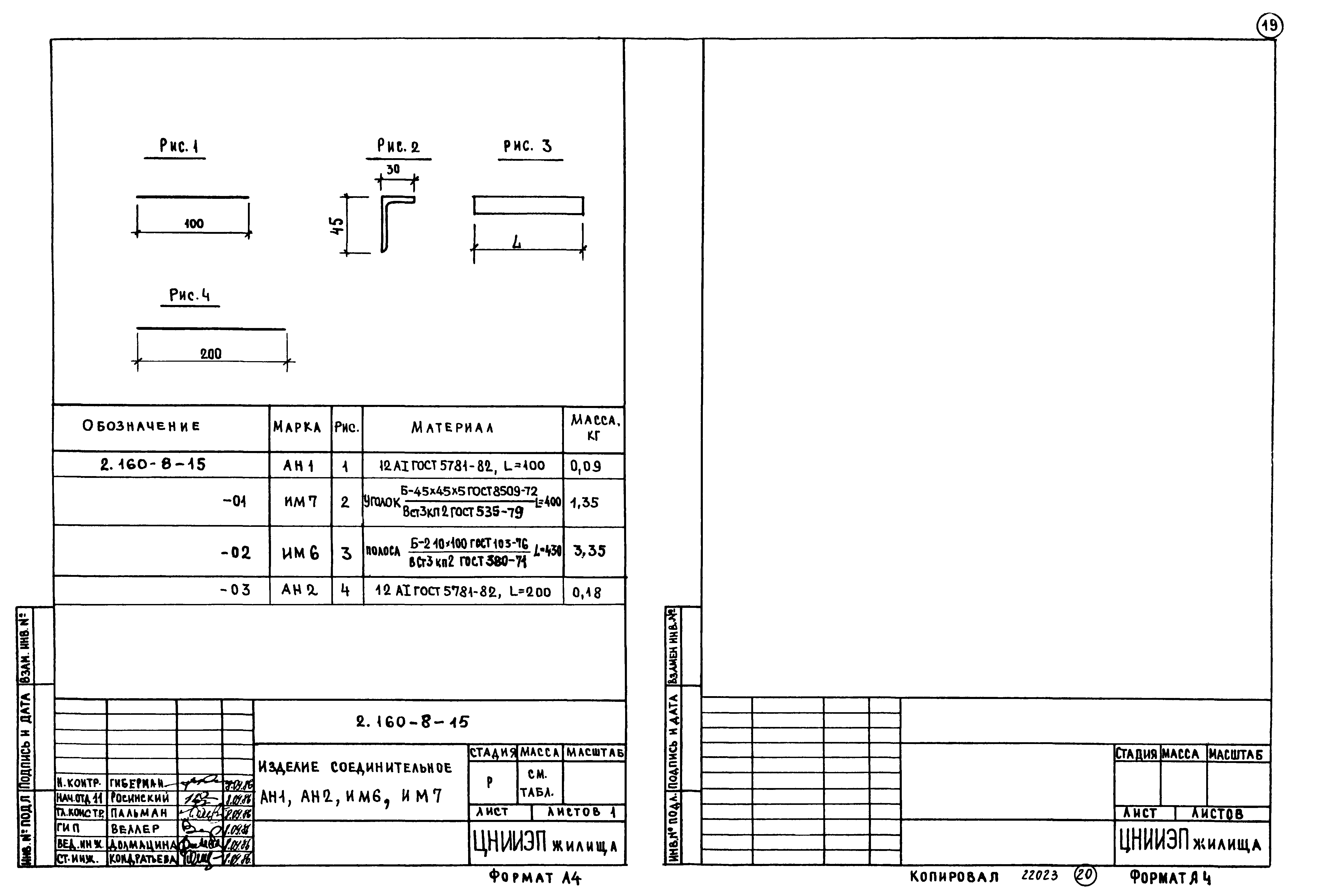
| Оглавление: | 2.160-8-00 ТО Техническое описание 2.160-8-01 Схема раскладки плит покрытия, лотковых и парапетных 2.160-8-02 Разрезы 1-1; 2-2; 3-3; 4-4; 5-5 2.160-8-03 Узлы 1; 2 (вариант 1) 2.160-8-04 Узлы 1; 2 (вариант 2) 2.160-8-05 Узел 3 (вариант 1) 2.160-8-06 Узел 3 (вариант 2) 2.160-8-07 Узел 4 (вариант 1) 2.160-8-08 Узел 4 (вариант 2) 2.160-8-09 Узлы 5; 6 (вариант 1) 2.160-8-10 Узлы 5; 6 (вариант 2) 2.160-8-11 Узел 7 (вариант 1) 2.160-8-12 Узел 7 (вариант 2) 2.160-8-13 Узел 8 (вариант 1; 2) 2.160-8-14 Узел 9 к варианту 1 и 2 2.160-8-15 Изделие соединительное АН1, АН2, ИМ6, ИМ7 2.160-8-00 ТО Техническое описание 2.160-8-01 Схема раскладки плит покрытия, лотковых и парапетных 2.160-8-02 Разрезы 1-1; 2-2; 3-3; 4-4; 5-5 2.160-8-03 Узлы 1; 2 (вариант 1) 2.160-8-04 Узлы 1; 2 (вариант 2) 2.160-8-05 Узел 3 (вариант 1) 2.160-8-06 Узел 3 (вариант 2) 2.160-8-07 Узел 4 (вариант 1) 2.160-8-08 Узел 4 (вариант 2) 2.160-8-09 Узлы 5; 6 (вариант 1) 2.160-8-10 Узлы 5; 6 (вариант 2) 2.160-8-11 Узел 7 (вариант 1) 2.160-8-12 Узел 7 (вариант 2) 2.160-8-13 Узел 8 (вариант 1; 2) 2.160-8-14 Узел 9 к варианту 1 и 2 2.160-8-15 Изделие соединительное АН1, АН2, ИМ6, ИМ7 |
| Разработан: | ЦНИИЭП жилища |
| Утверждён: | 03.02.1987 Госгражданстрой (Gosgrazhdanstroy 23) |




















