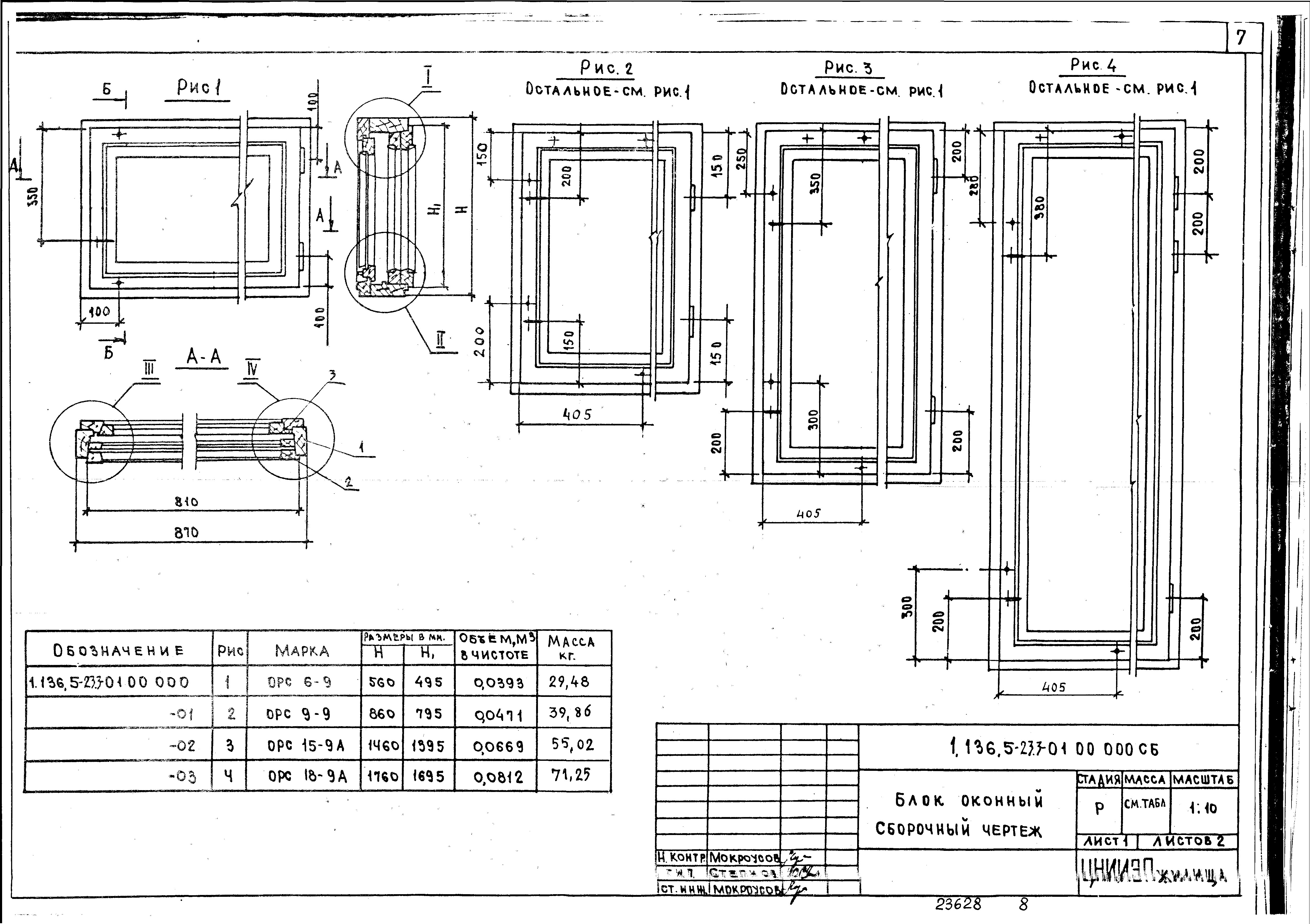
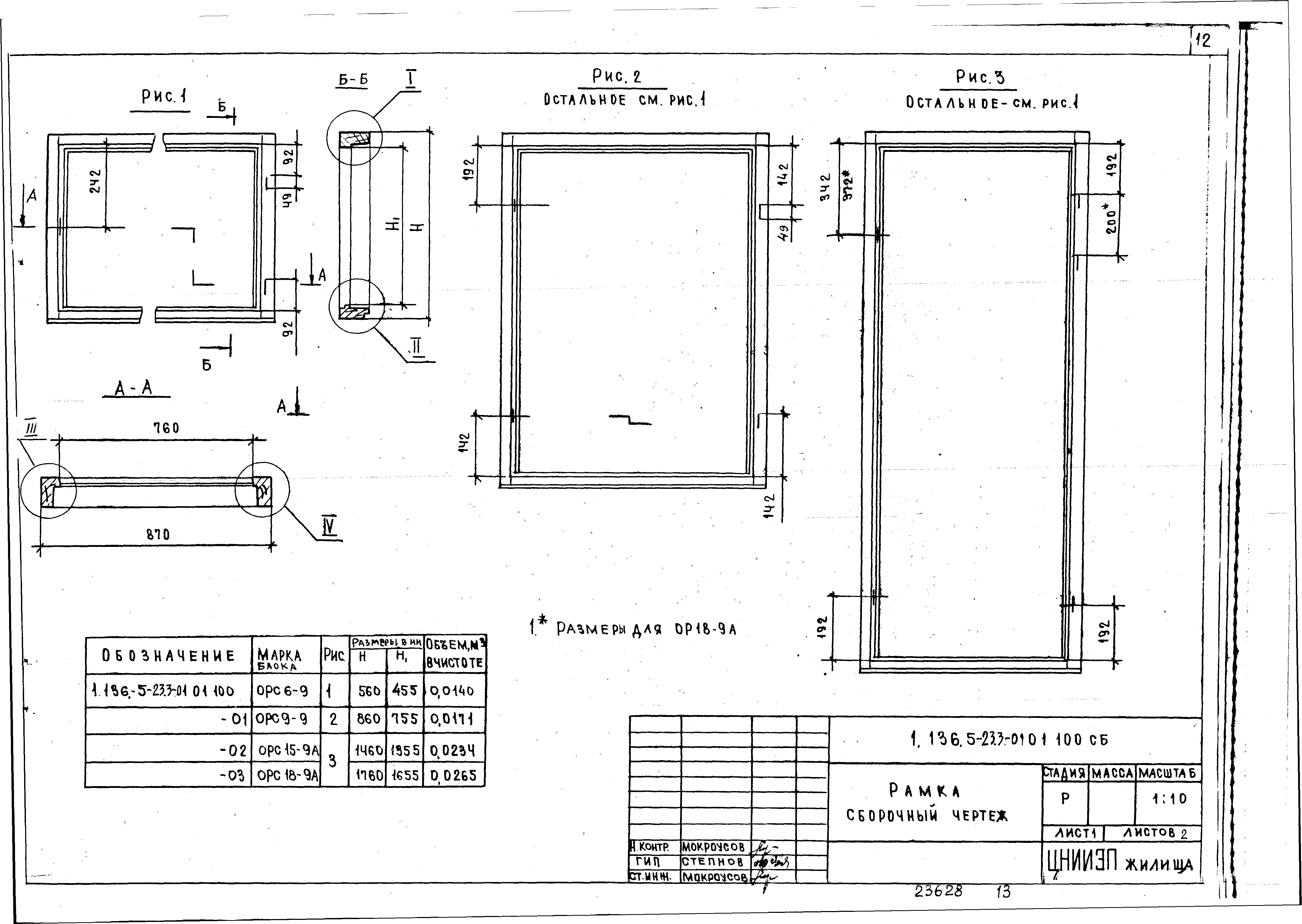
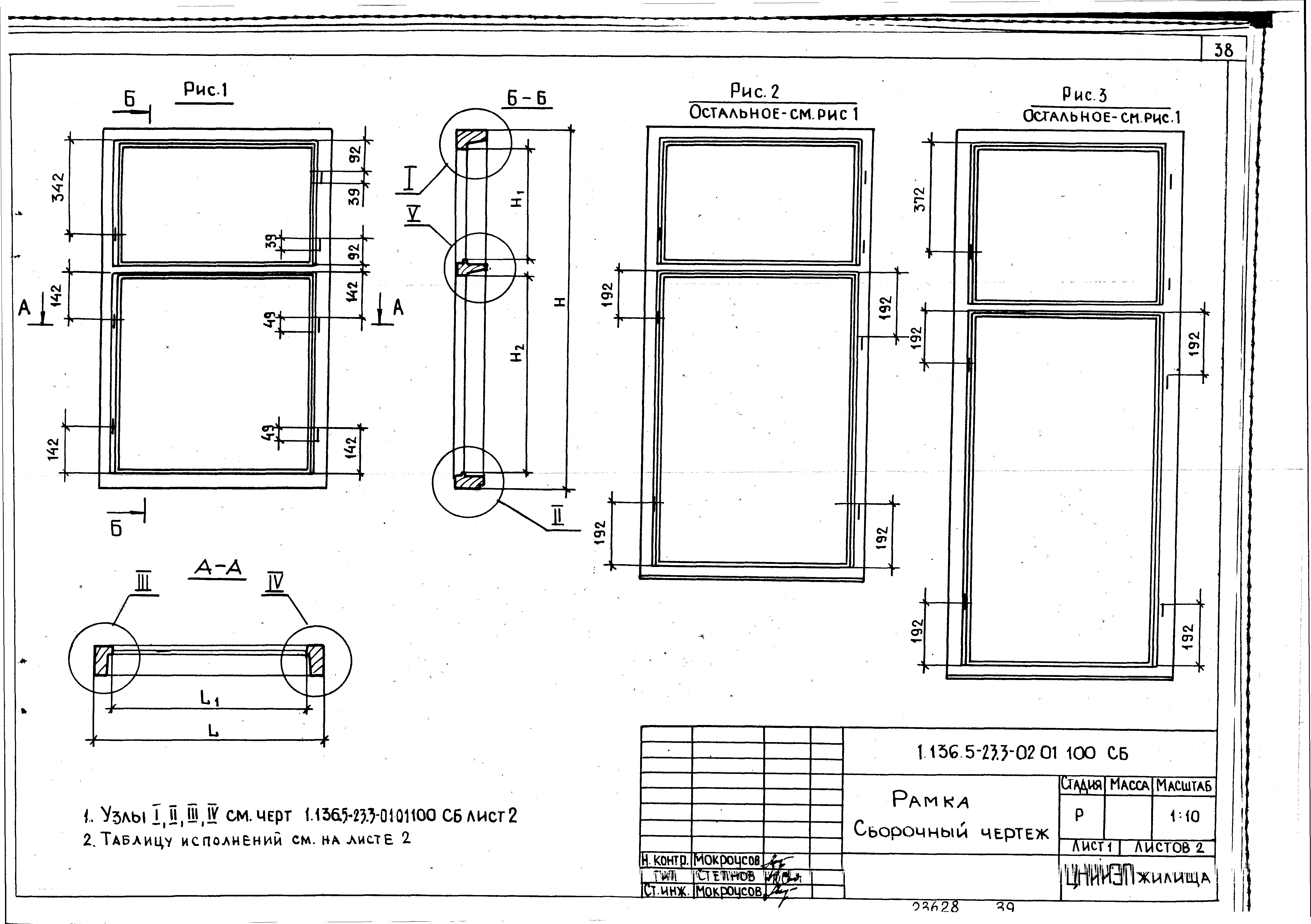
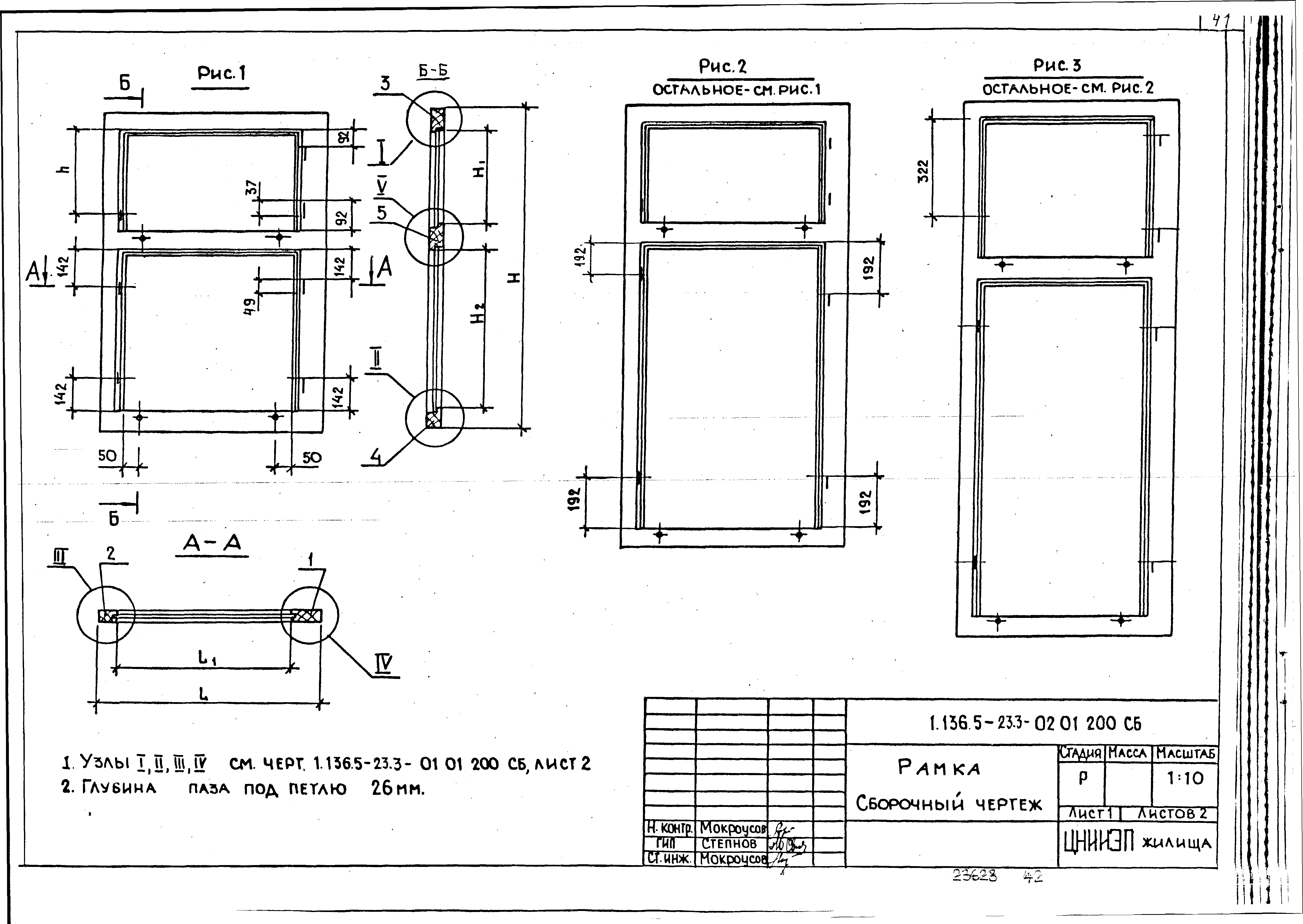
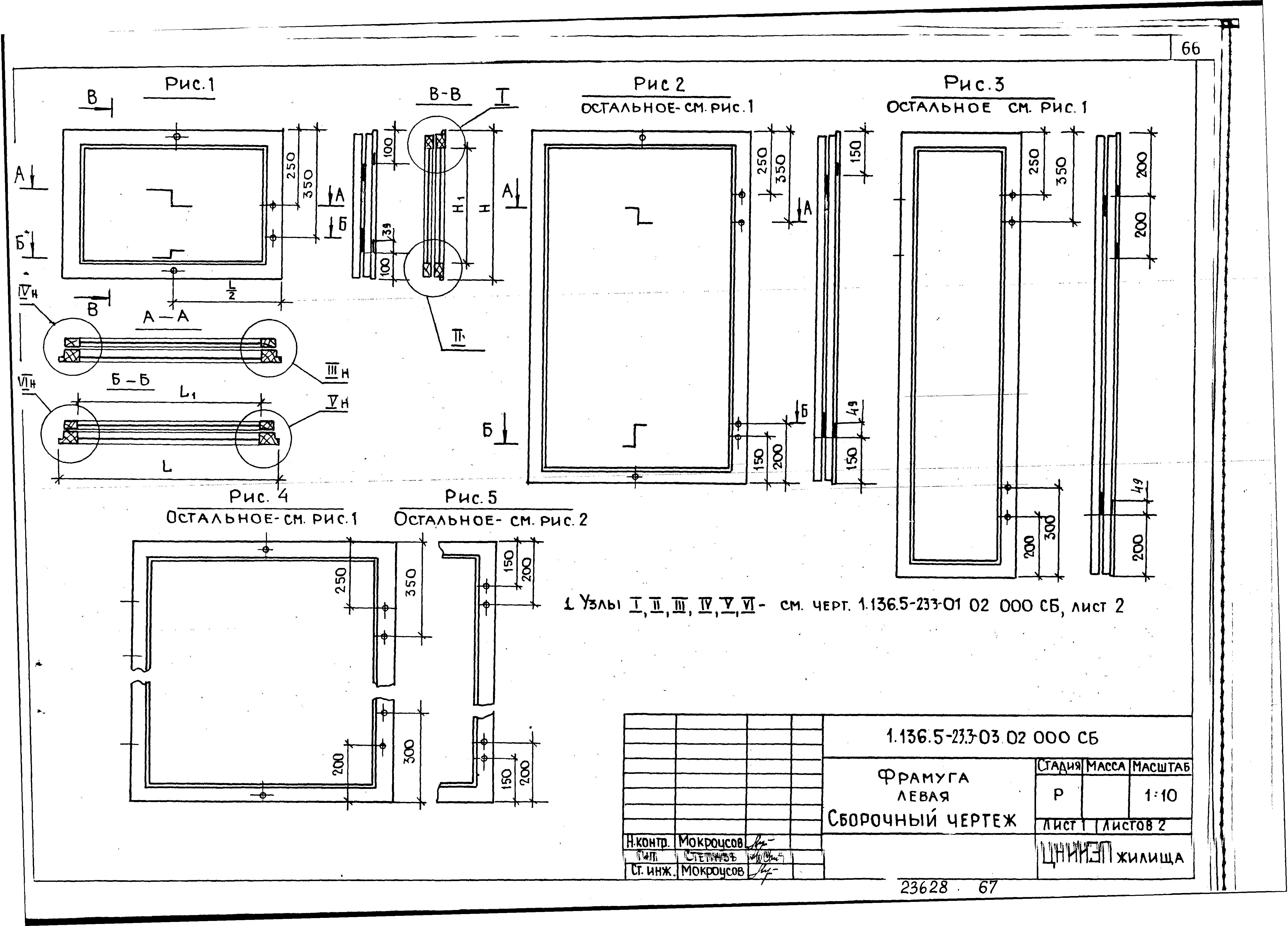
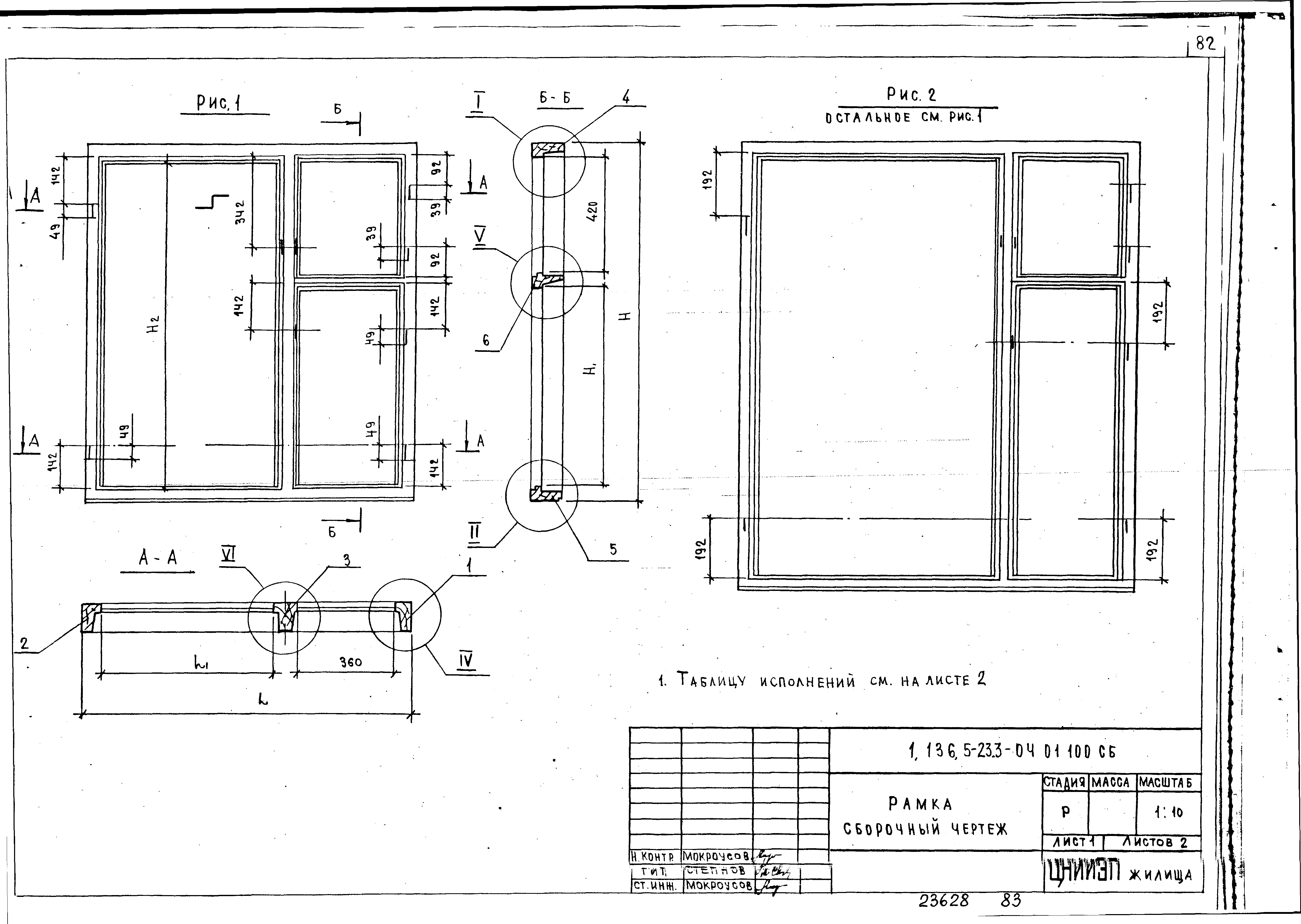
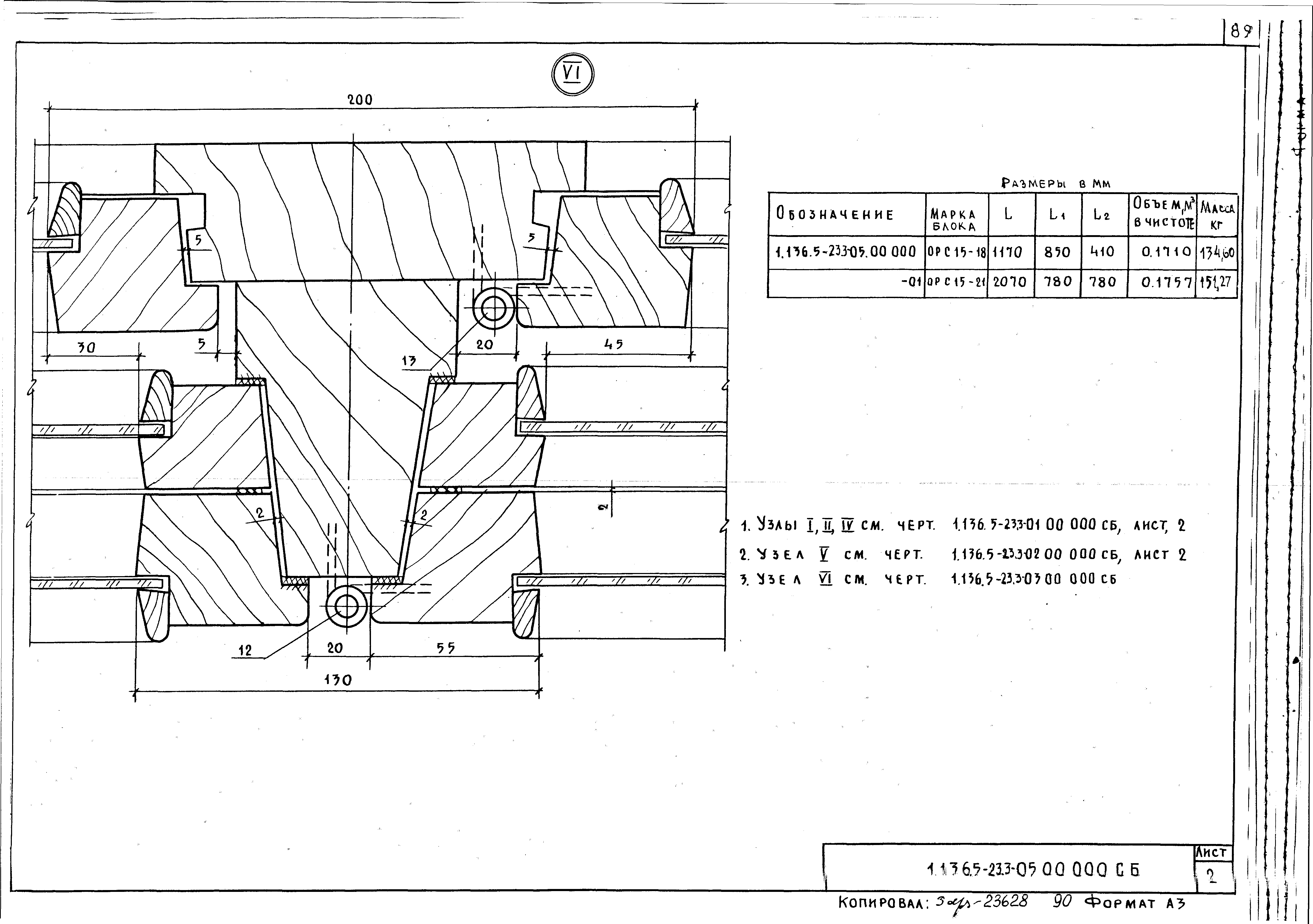
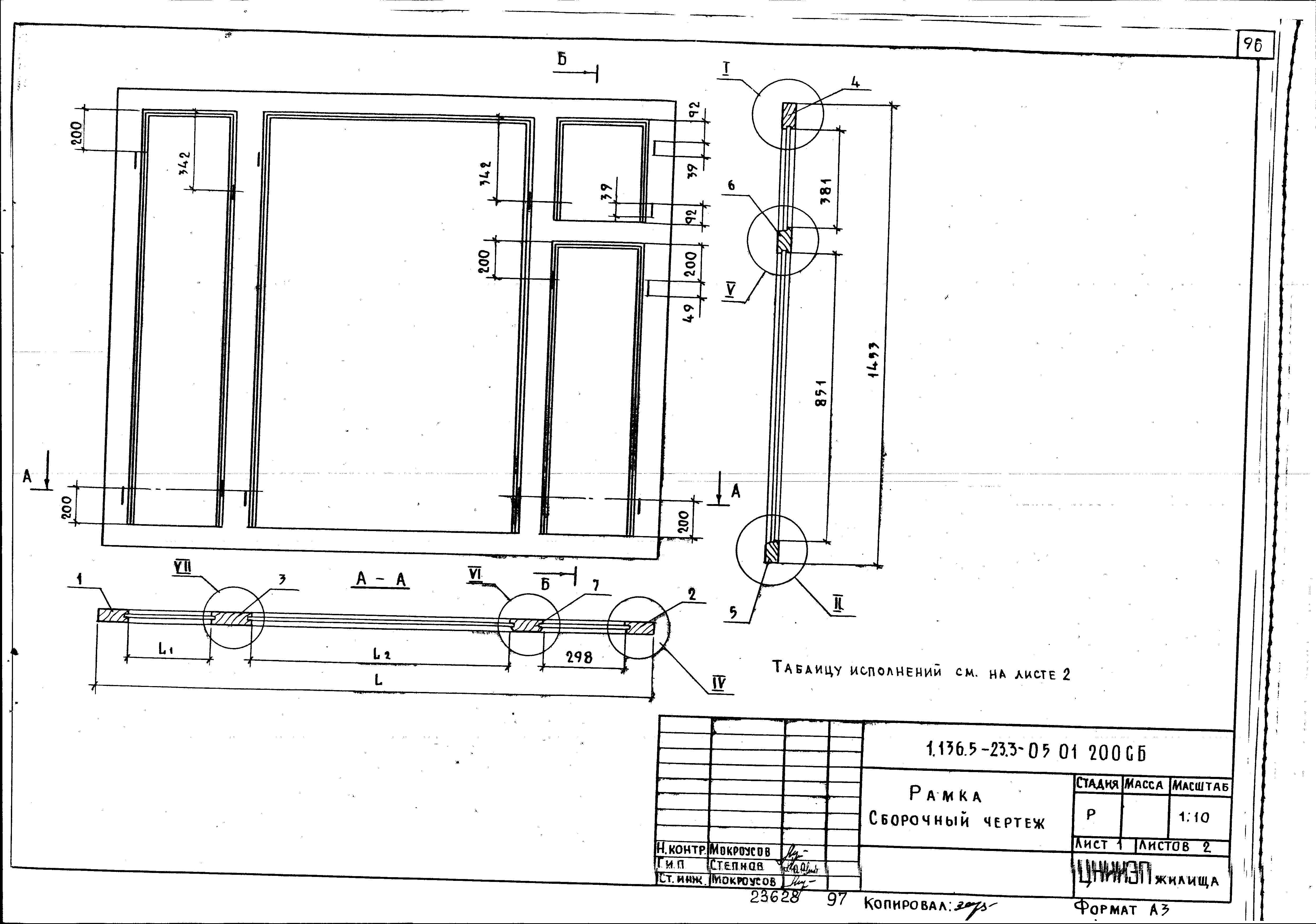
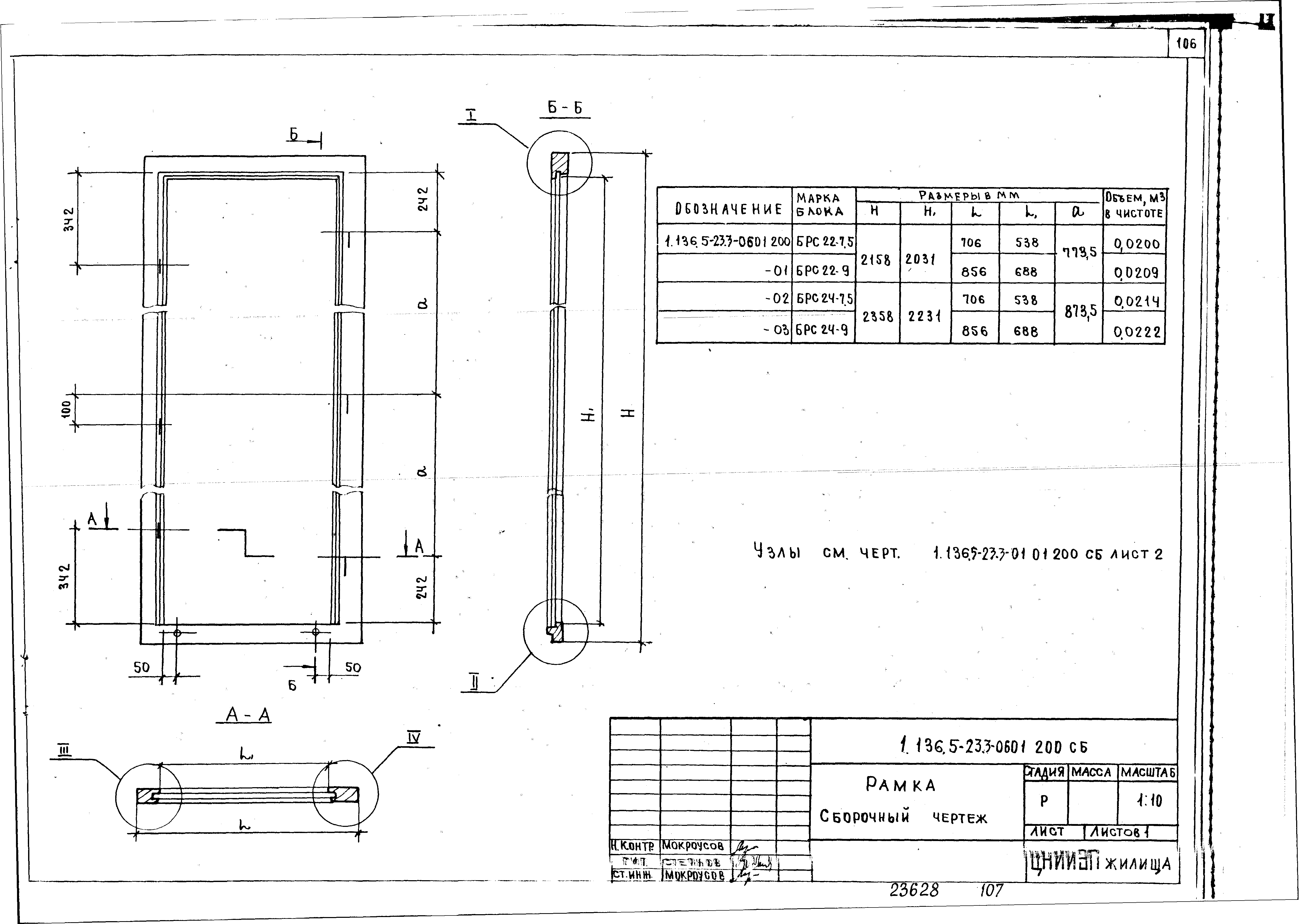
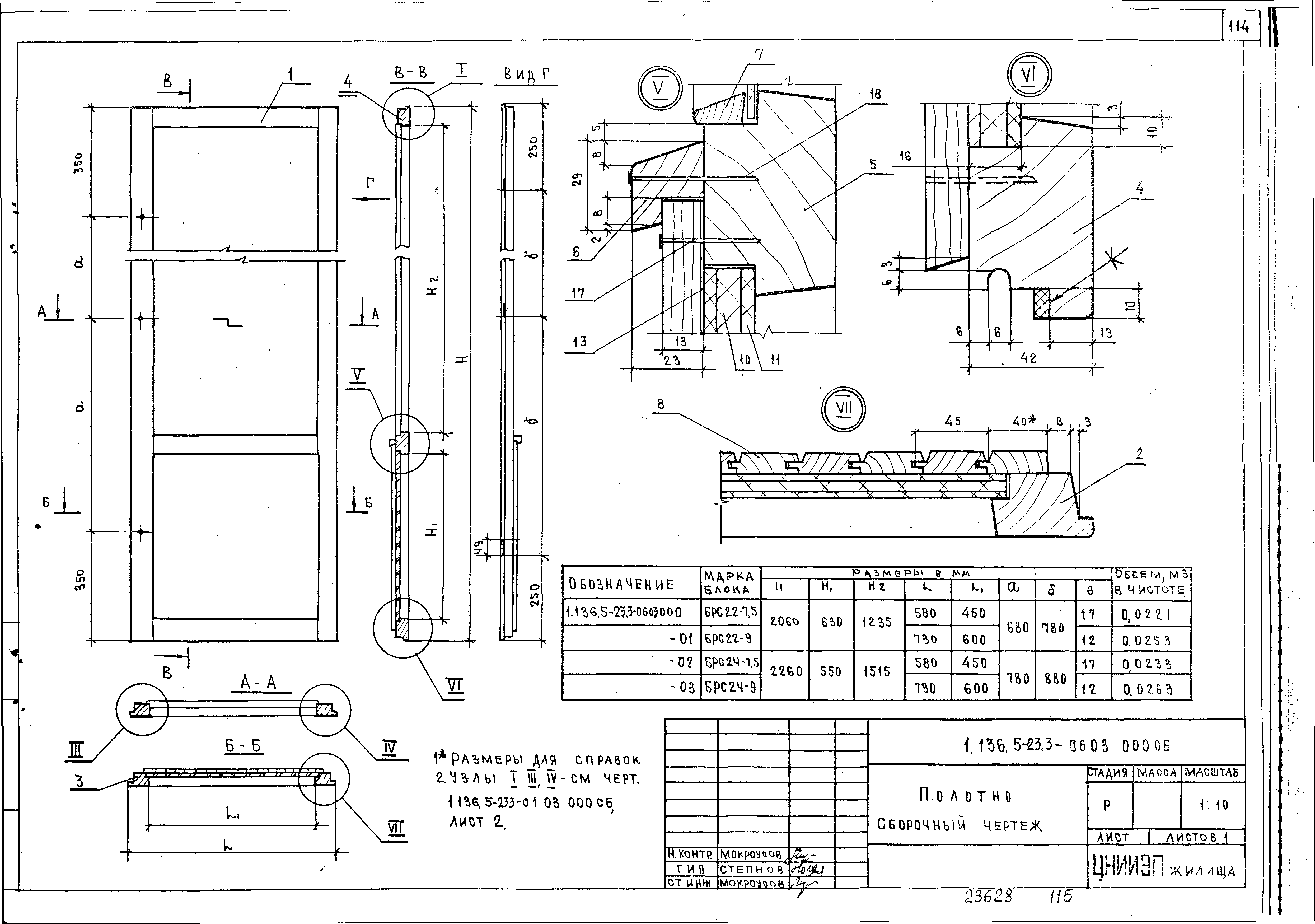
Скачать Серия 1.136.5-23 Выпуск 3. Окна и балконные двери с тройным остеклением по ГОСТ 16289-86. Рабочие чертежиДата актуализации: 01.01.2021
|
| Обозначение: | Серия 1.136.5-23 |
| Обозначение англ: | Series 1.136.5-23 |
| Статус: | не определен законодательством |
| Название рус.: | Выпуск 3. Окна и балконные двери с тройным остеклением по ГОСТ 16289-86. Рабочие чертежи |
| Дата добавления в базу: | 01.09.2013 |
| Дата актуализации: | 01.01.2021 |
| Дата введения: | 25.02.1989 |
| Дата окончания срока действия: | 30.06.2003 |
| Разработан: | ЦНИИЭП жилища |
| Утверждён: | 01.02.1989 Госкомархитектура (21) |
| Заменяет собой: | |
| Нормативные ссылки: |





















































































































