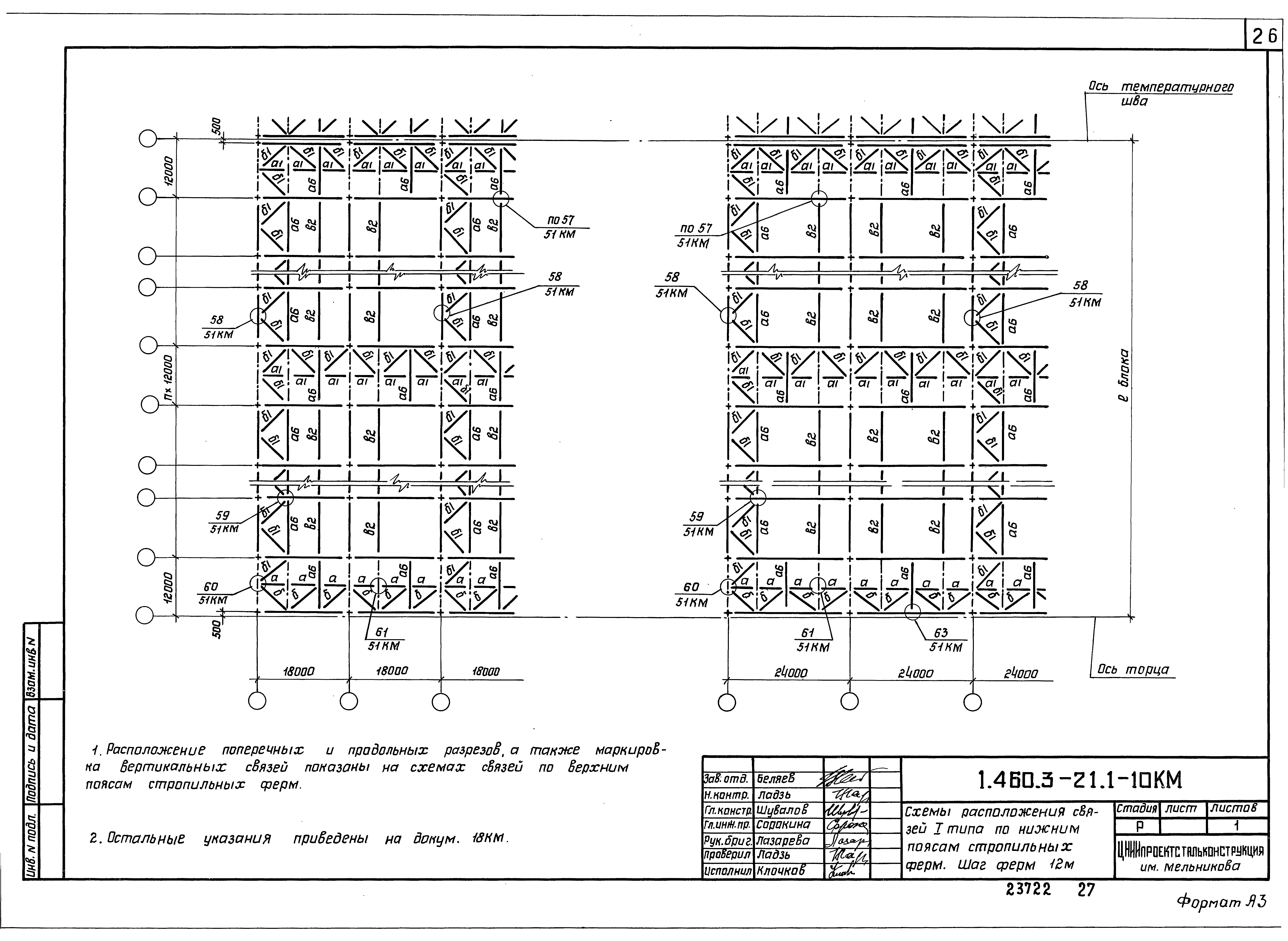
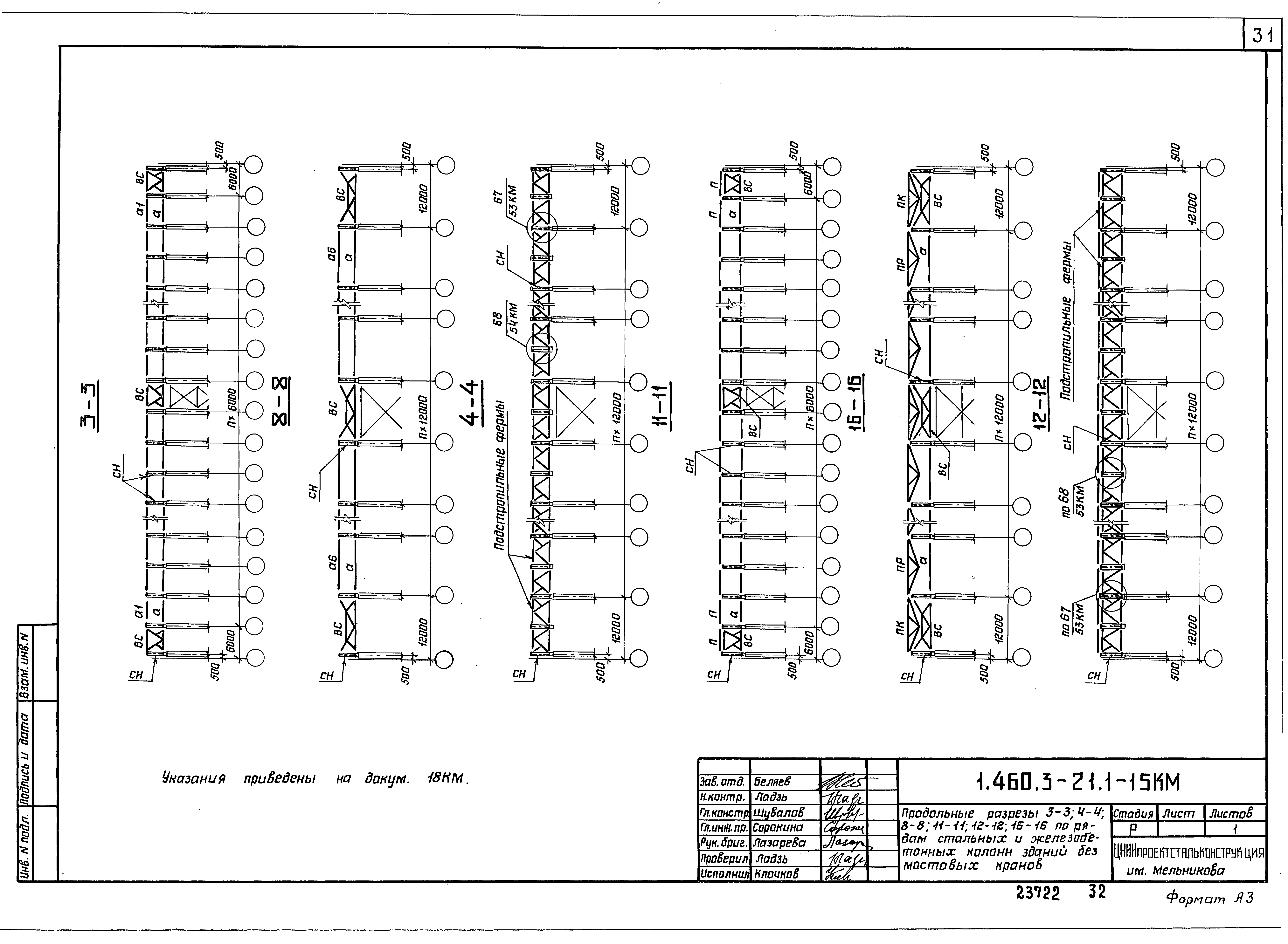
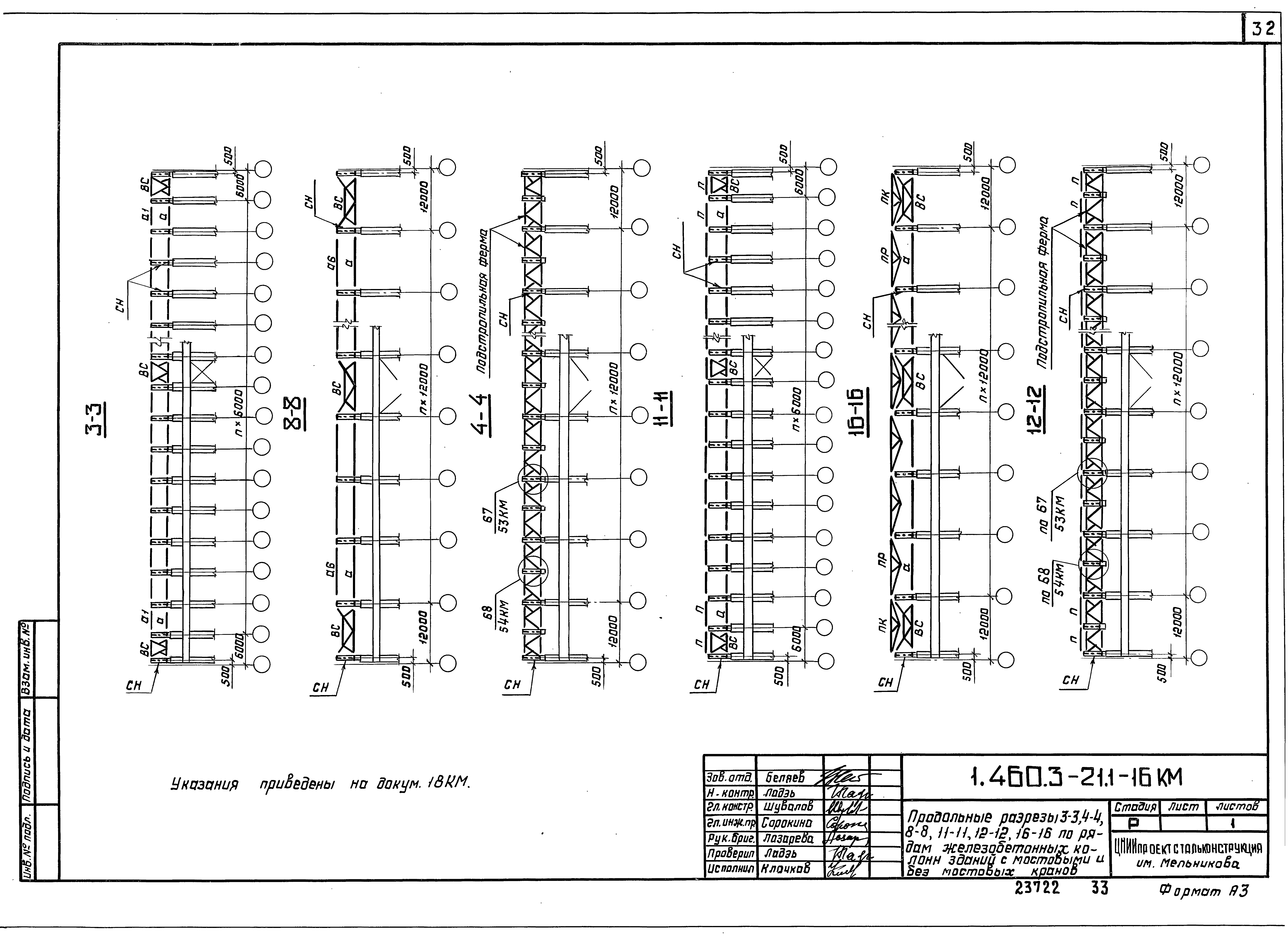
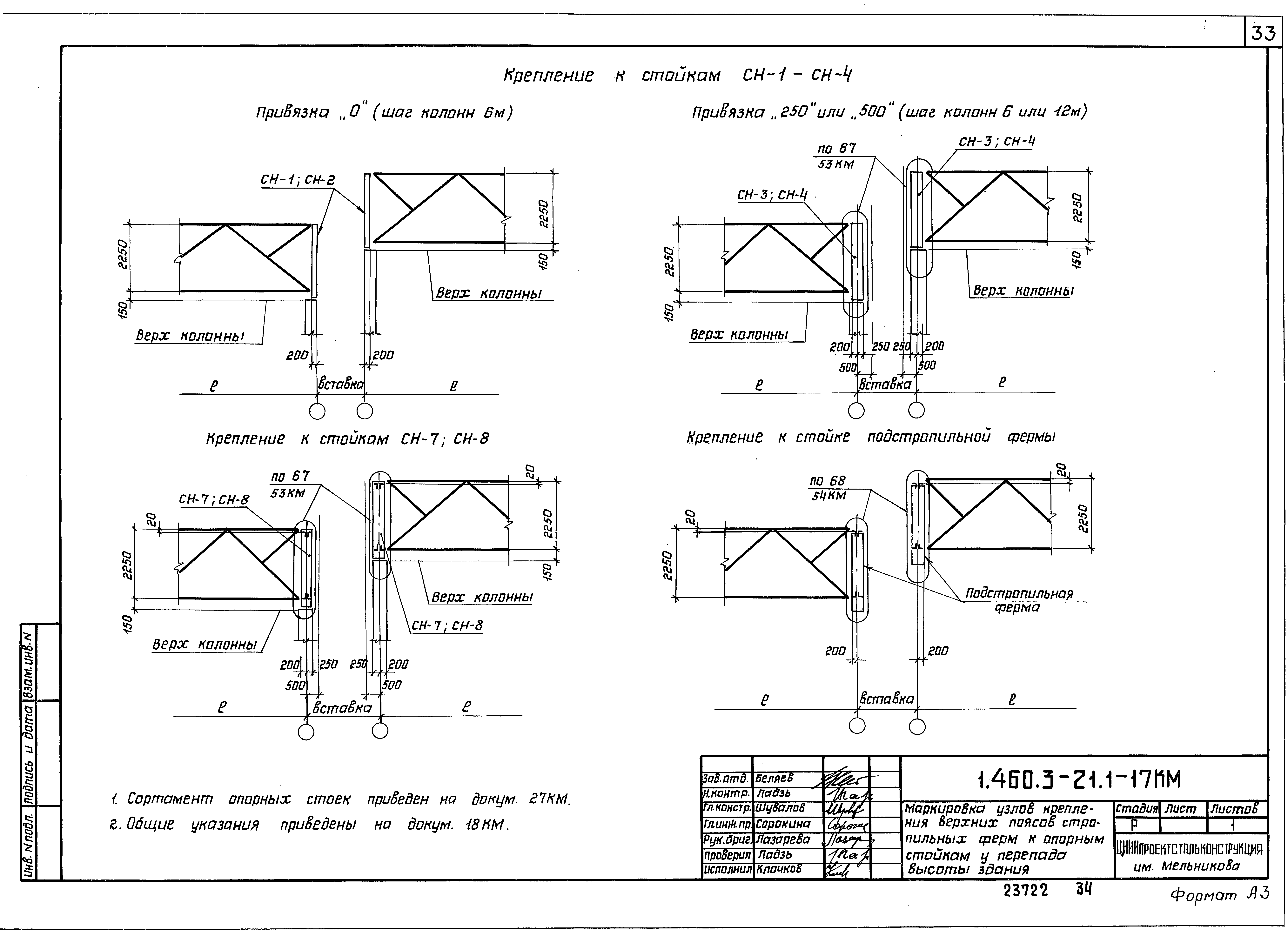
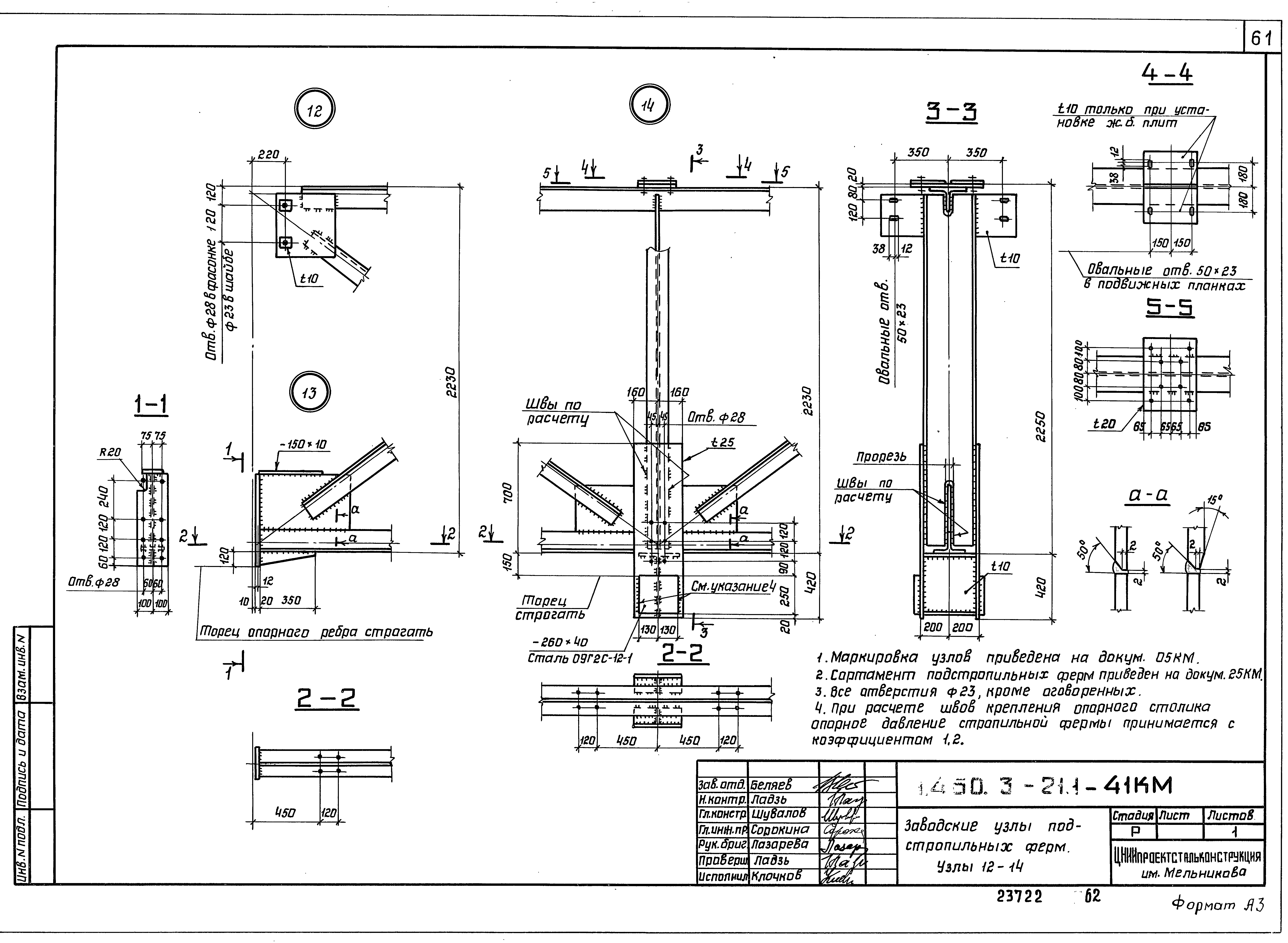
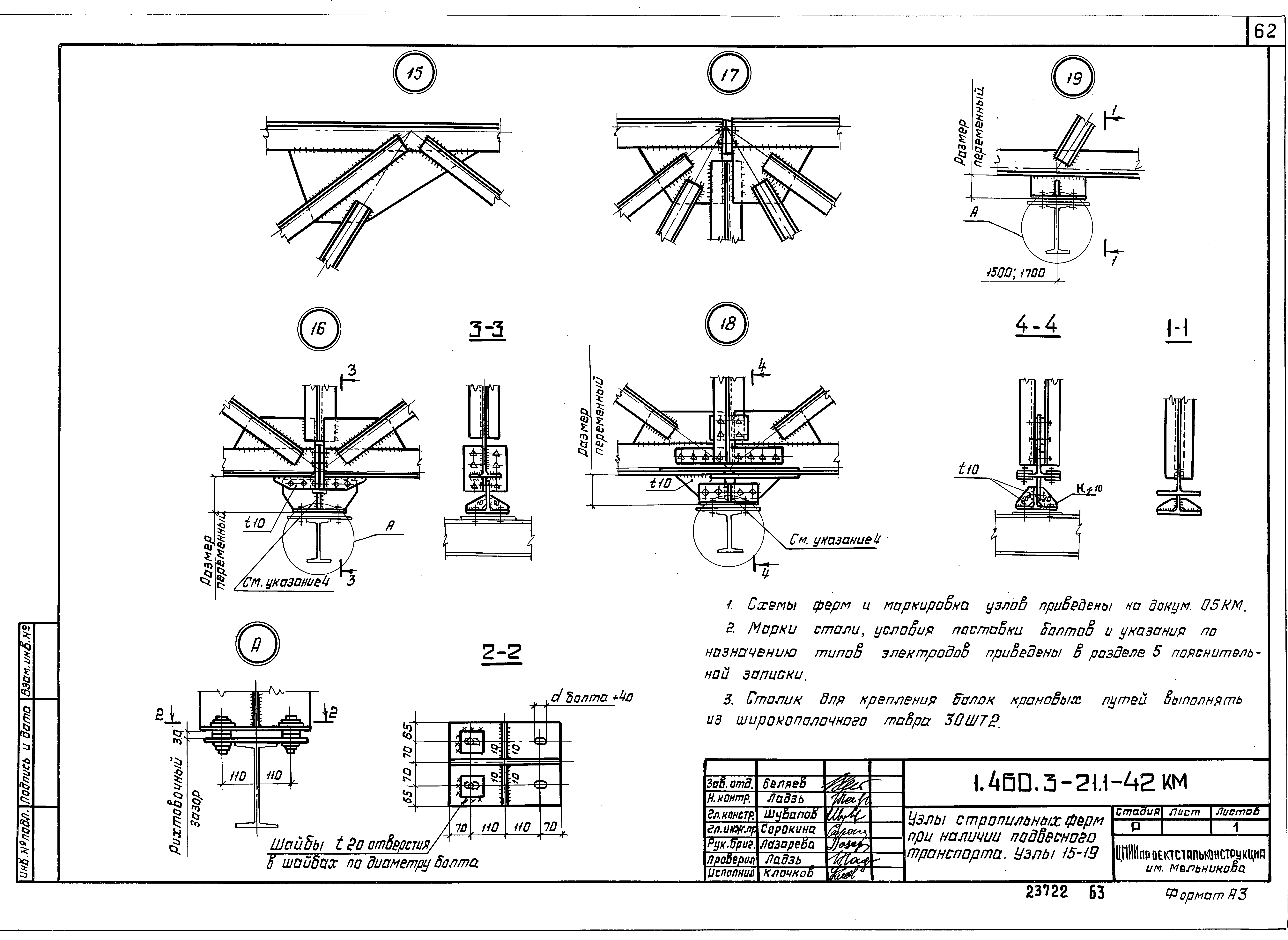
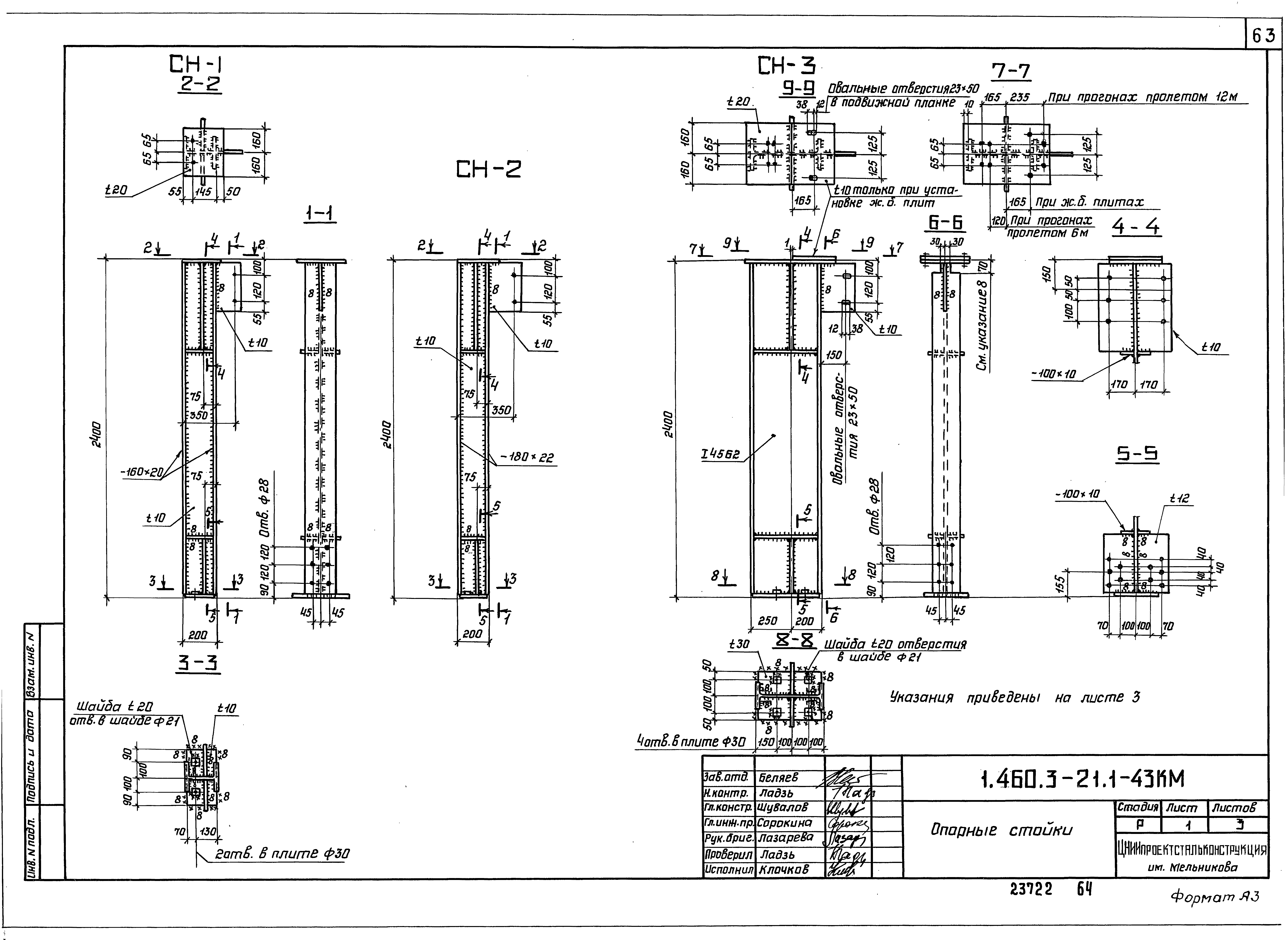
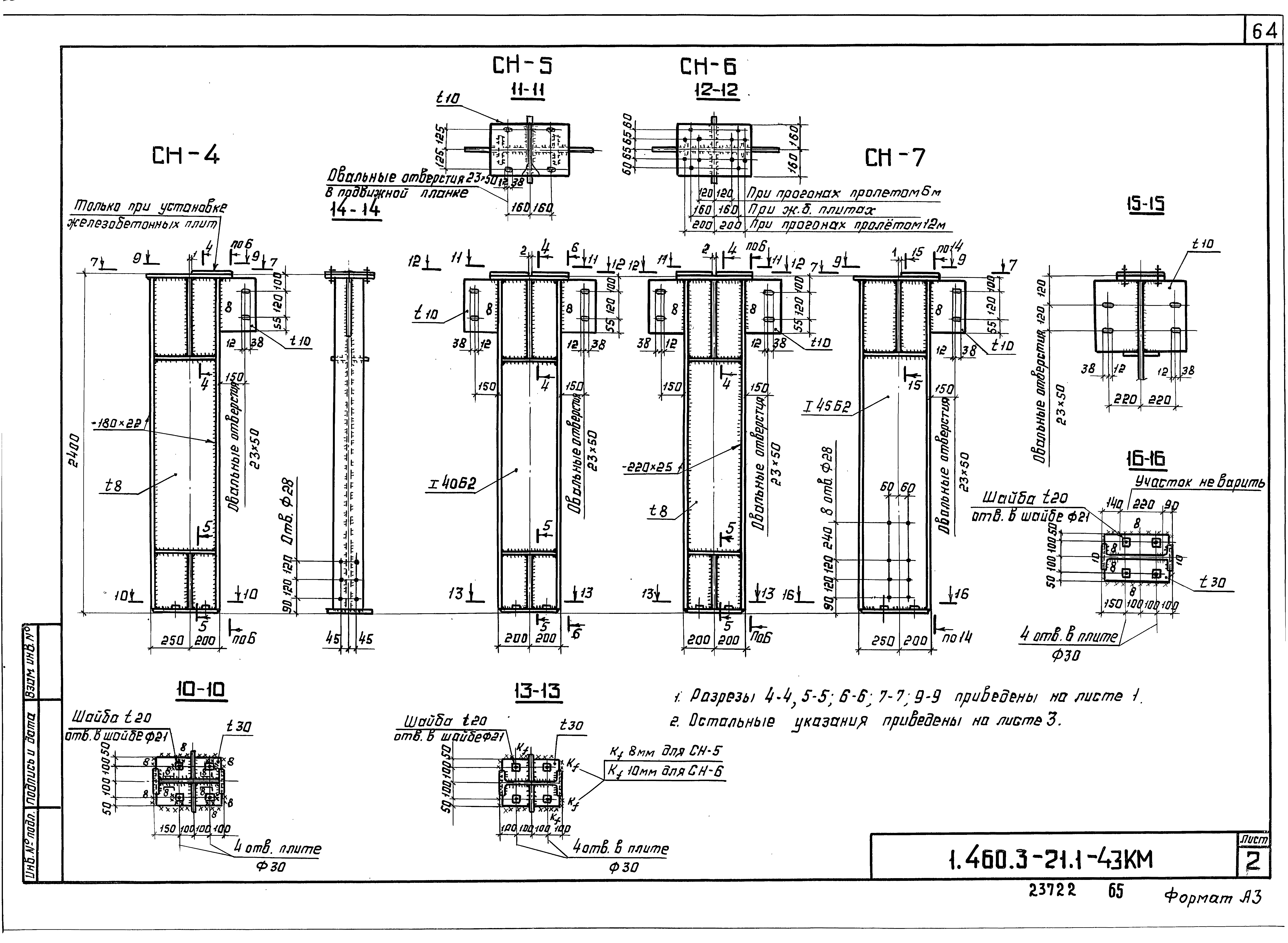
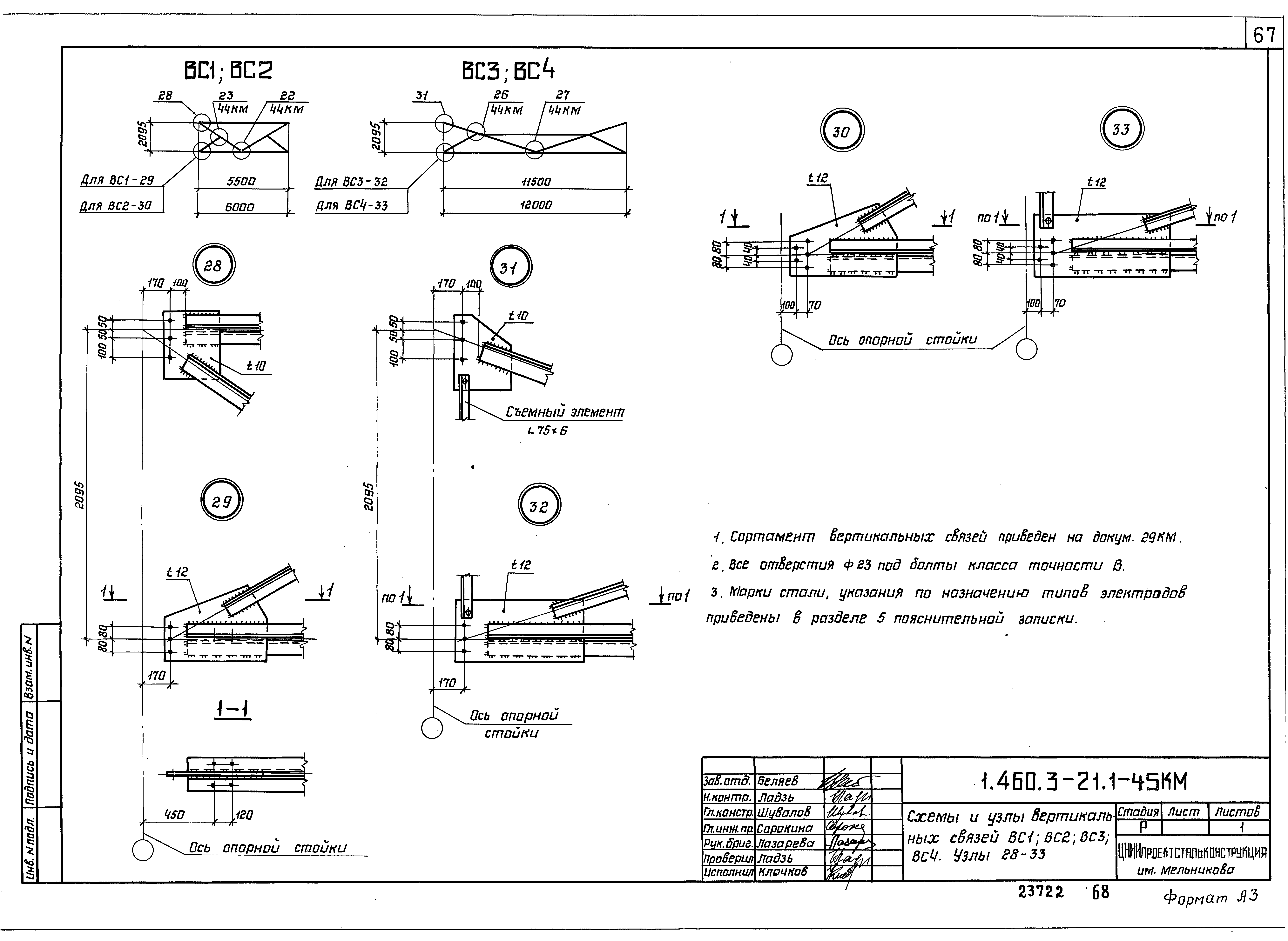
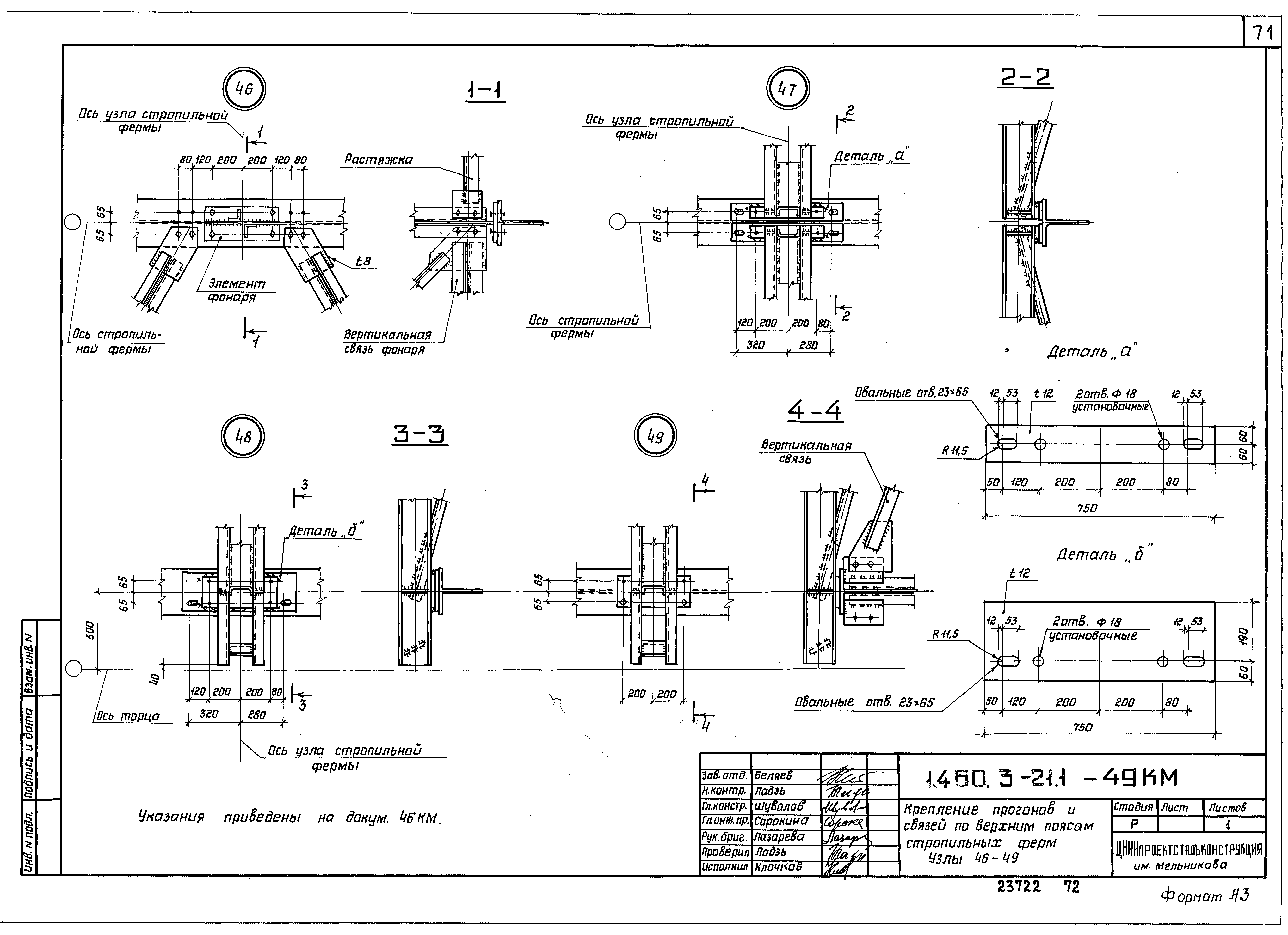
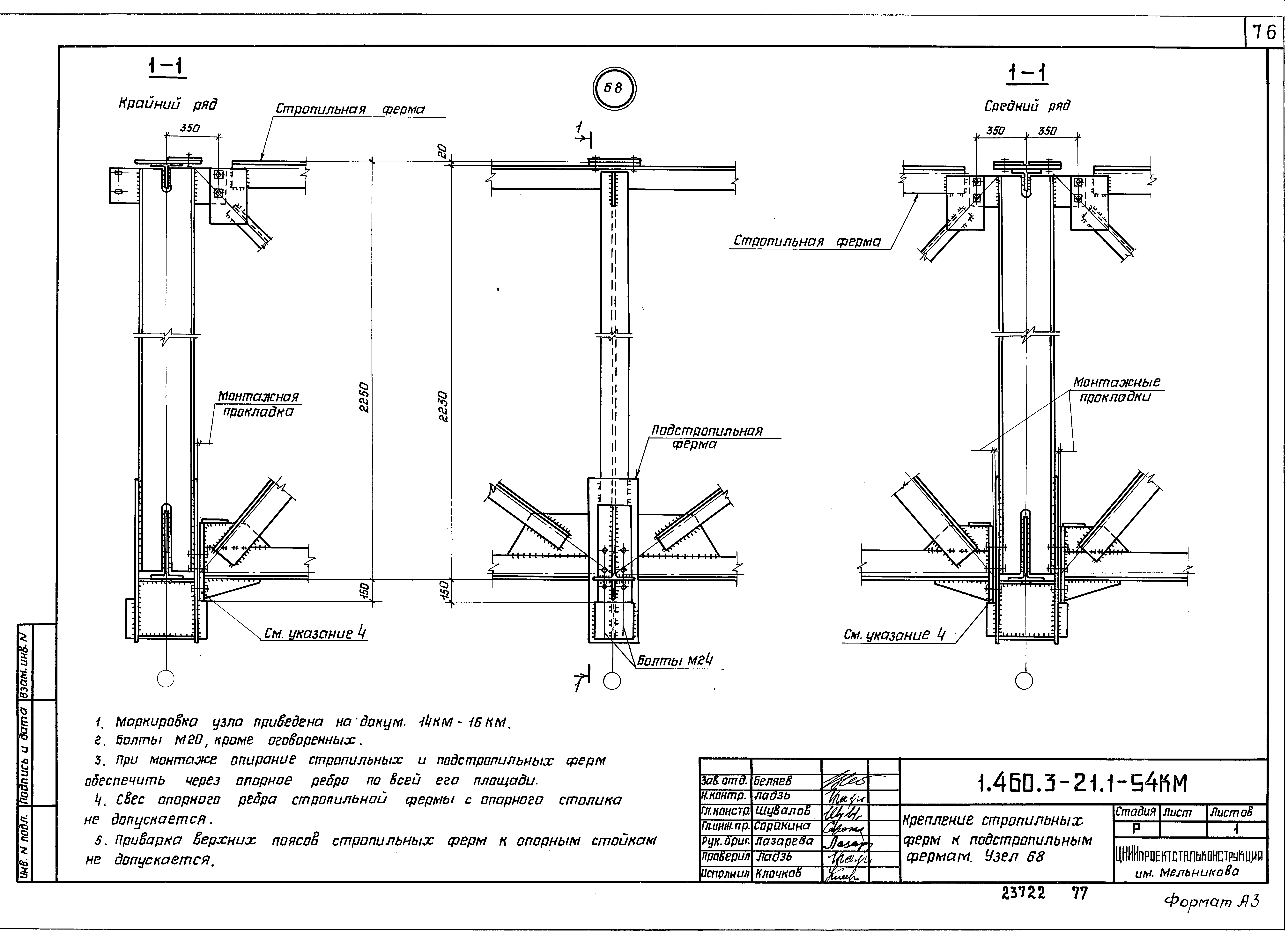
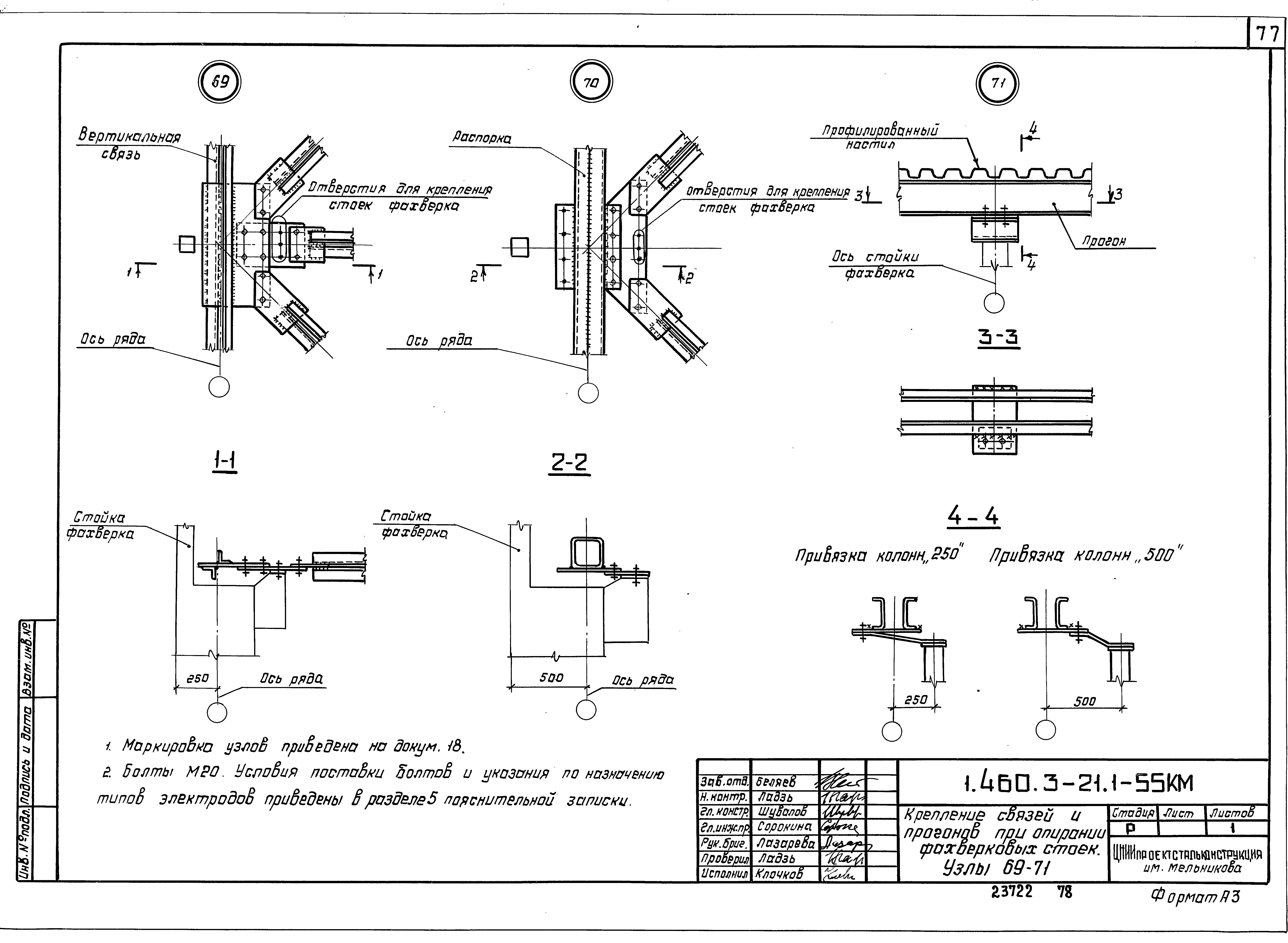
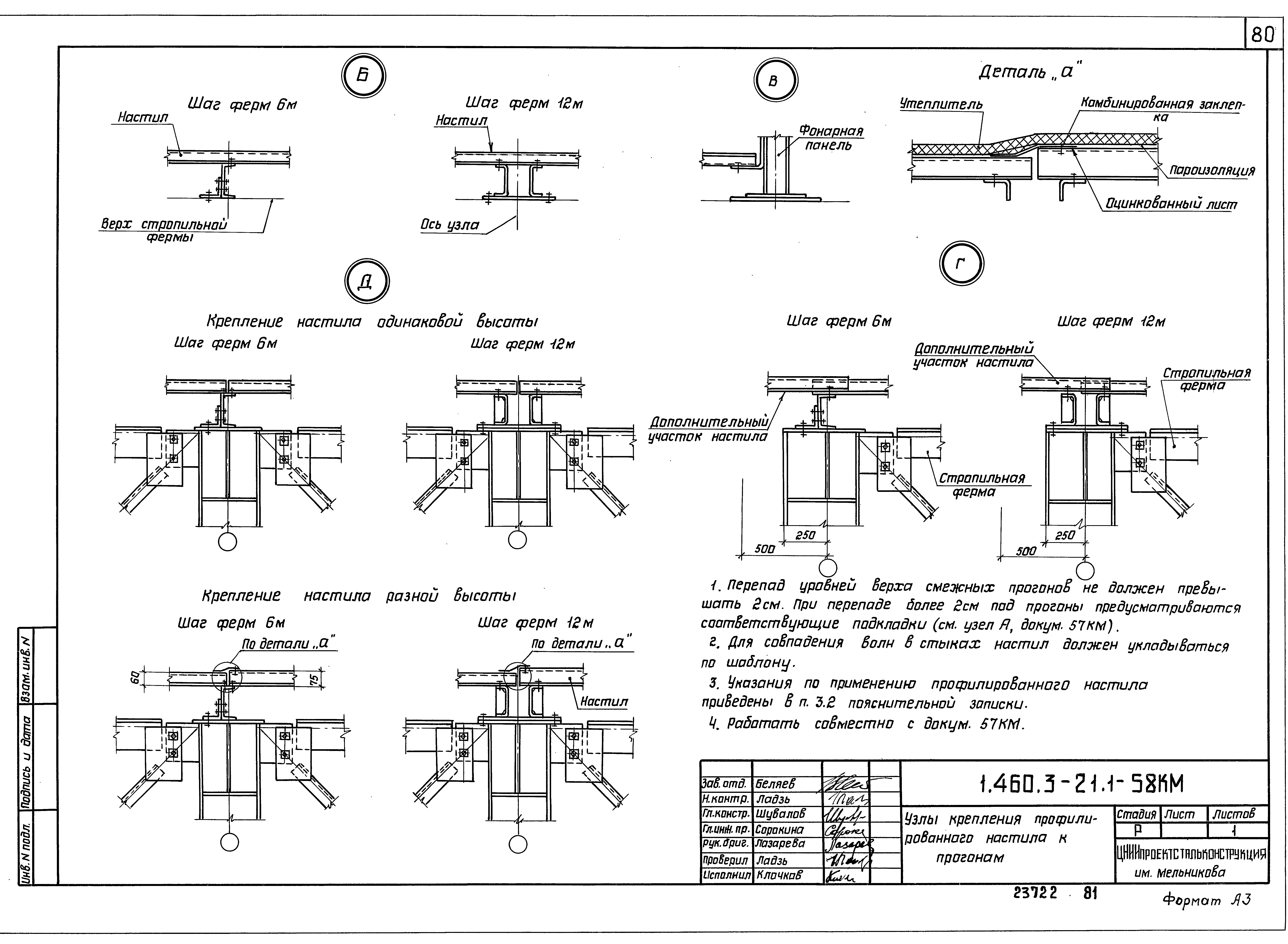
Скачать Серия 1.460.3-21 Выпуск 1. Покрытия пролетами 18 и 24 м с фермами высотой 2,25 м для зданий с расчетной температурой минус 40 градусов Цельсия и выше. Чертежи КМДата актуализации: 01.01.2021 Серия 1.460.3-21
Выпуск 1. Покрытия пролетами 18 и 24 м с фермами высотой 2,25 м для зданий с расчетной температурой минус 40 градусов Цельсия и выше. Чертежи КМ| Обозначение: | Серия 1.460.3-21 | | Обозначение англ: | Series 1.460.3-21 | | Статус: | действует | | Название рус.: | Выпуск 1. Покрытия пролетами 18 и 24 м с фермами высотой 2,25 м для зданий с расчетной температурой минус 40 градусов Цельсия и выше. Чертежи КМ | | Дата добавления в базу: | 01.09.2013 | | Дата актуализации: | 01.01.2021 | | Дата введения: | 01.07.1989 | | Разработан: | ЦНИИпроектстальконструкция Госстроя
| | Утверждён: | 12.10.1988 Госстрой СССР (Государственный комитет Совета Министров СССР по делам строительства) (USSR Gosstroy 6/6-2127)
|
                                                                                               
|