Скачать 7НДС-103-88 Надземная часть здания. Детали узловДата актуализации: 01.01.2021
|
| Обозначение: | 7НДС-103-88 |
| Обозначение англ: | 7НДС-103-88 |
| Статус: | не определен законодательством |
| Название рус.: | Надземная часть здания. Детали узлов |
| Дата добавления в базу: | 01.09.2013 |
| Дата актуализации: | 01.01.2021 |
| Дата введения: | 13.05.1988 |
| Дата окончания срока действия: | 30.06.2003 |
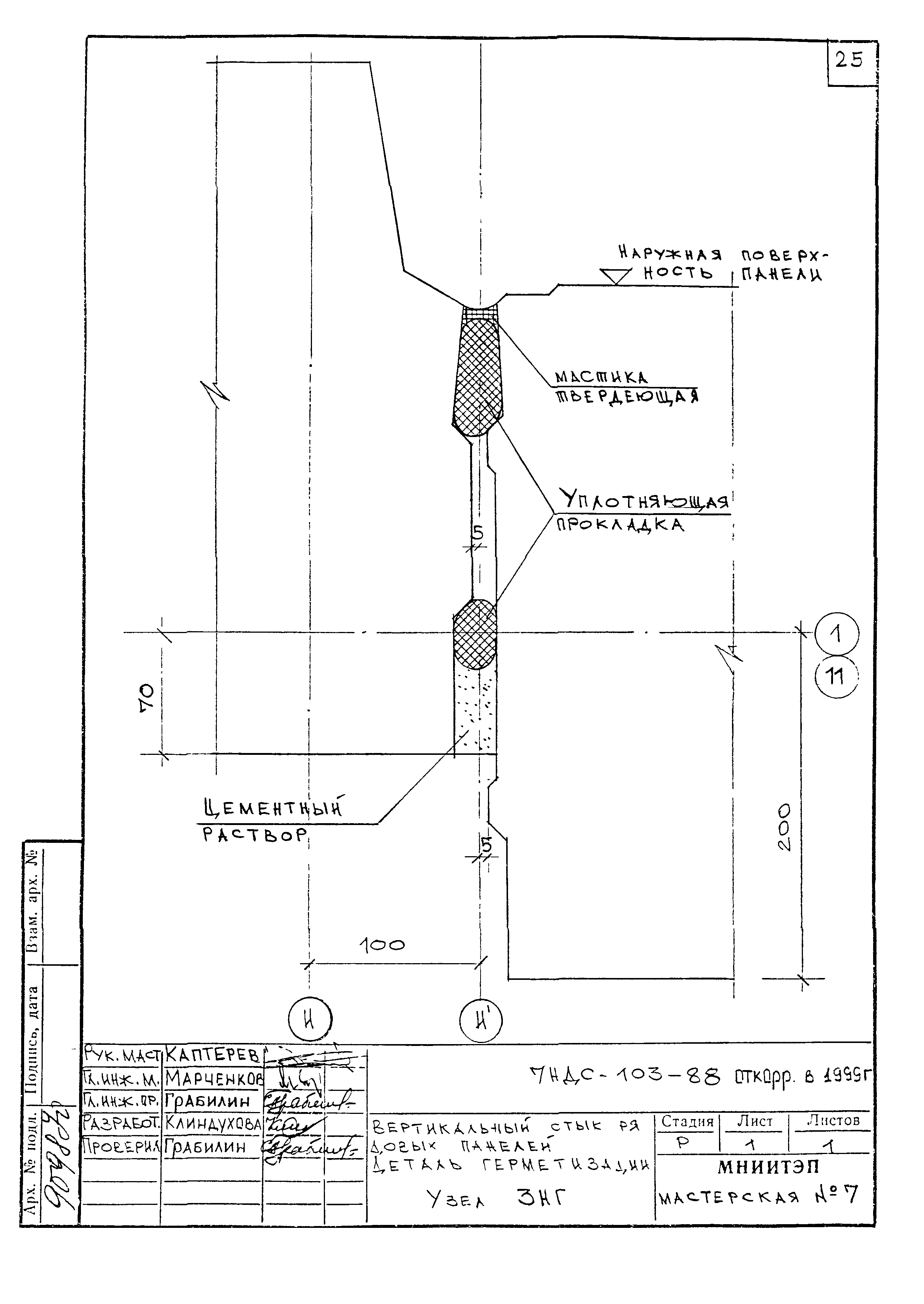
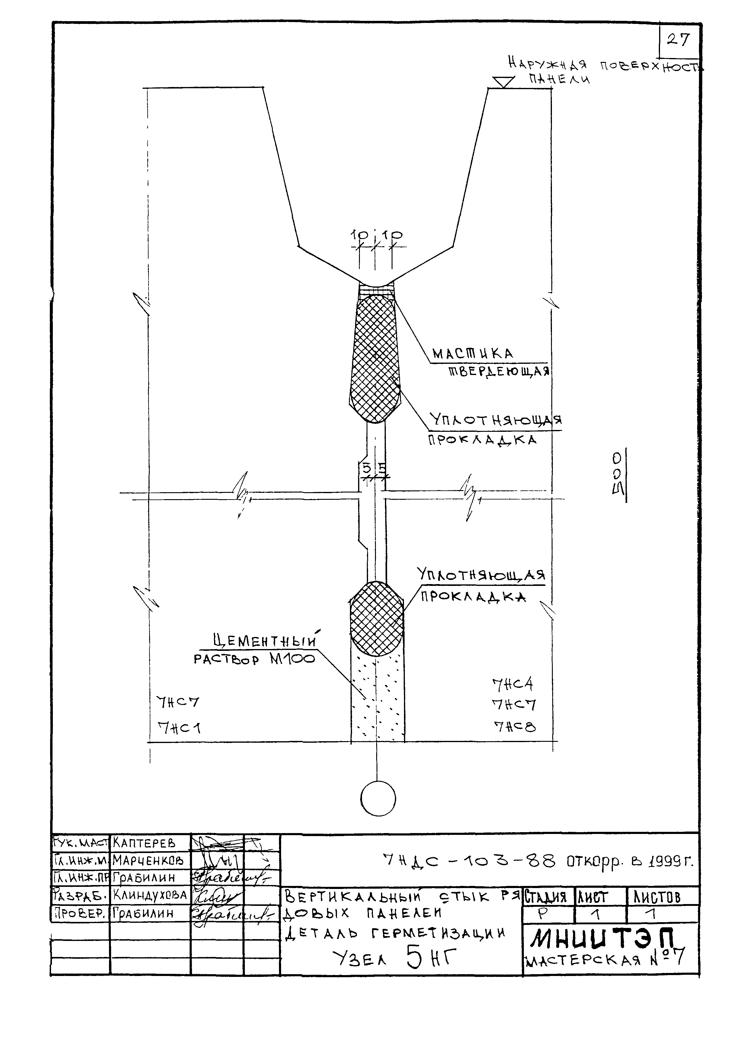
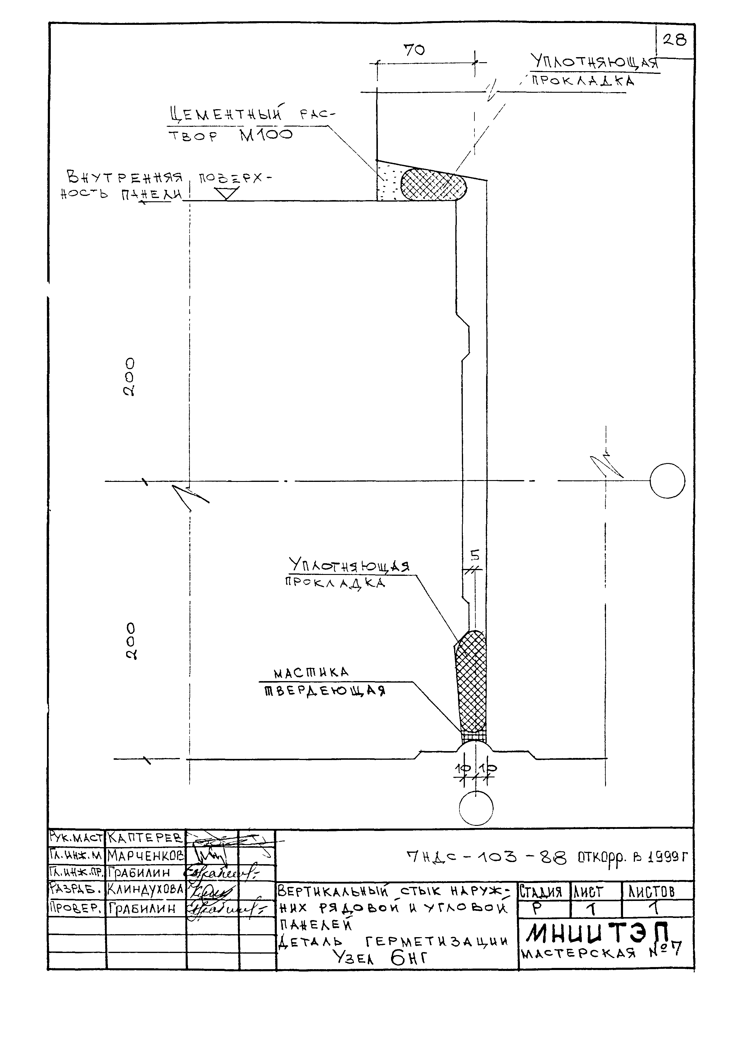
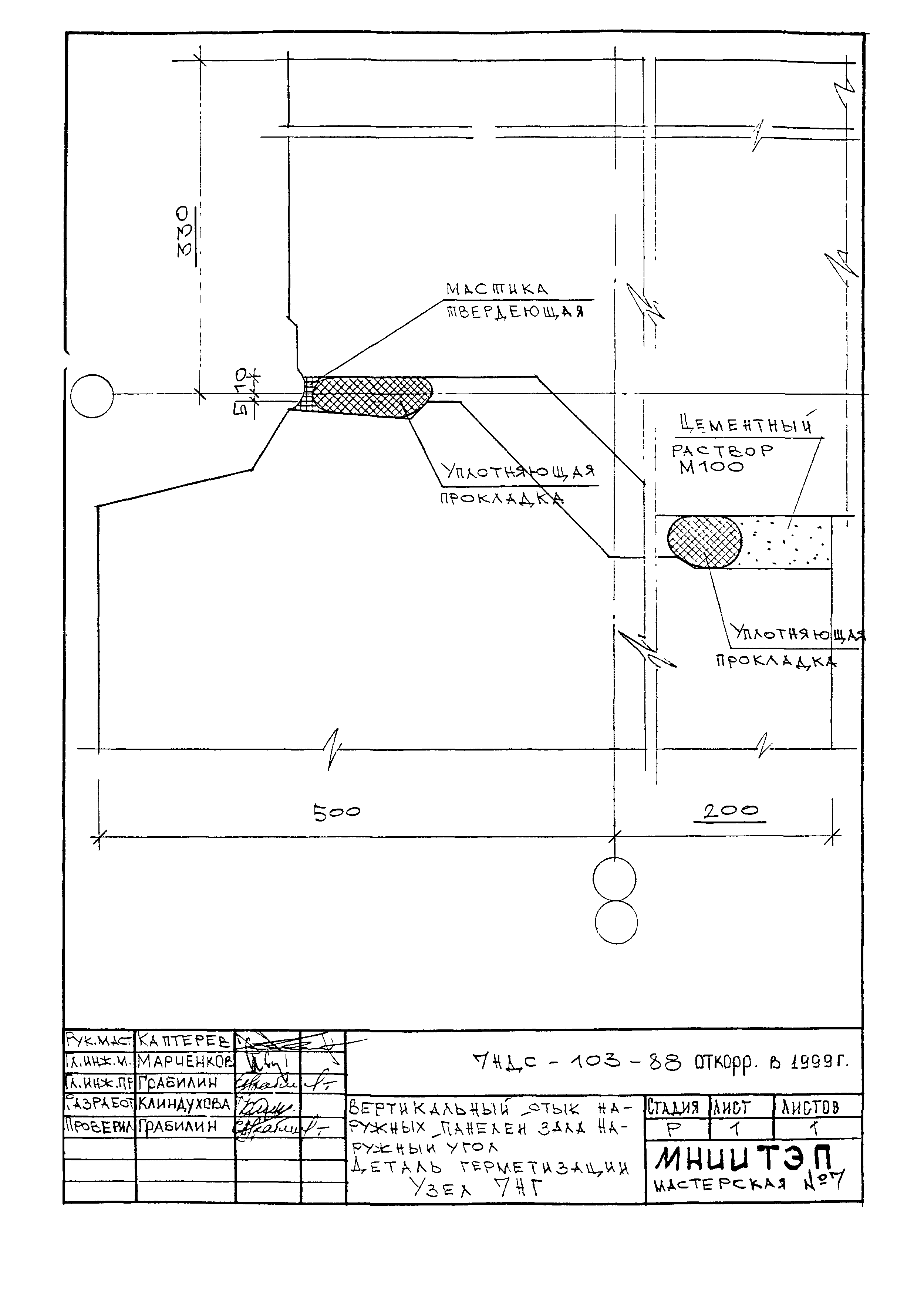
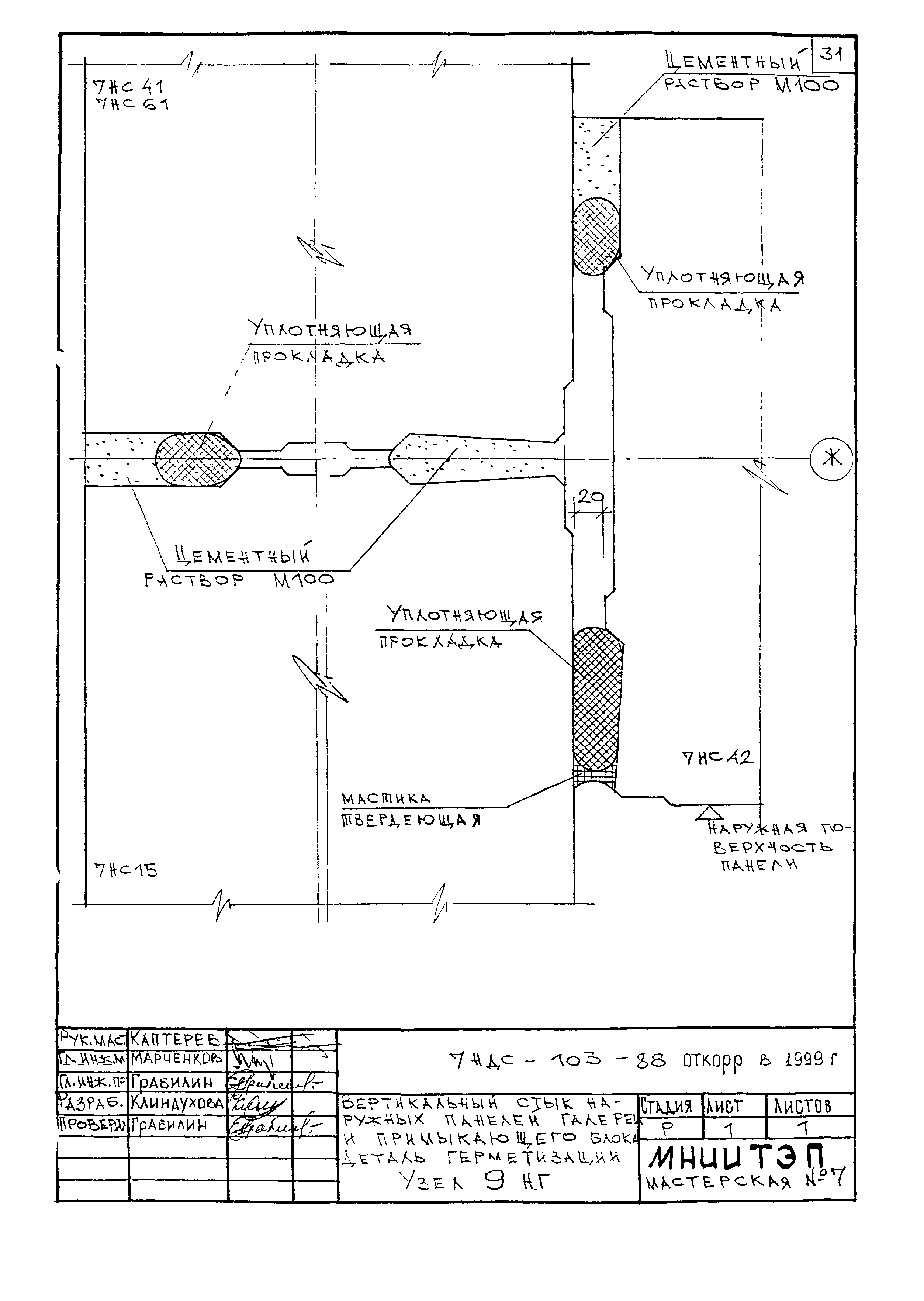
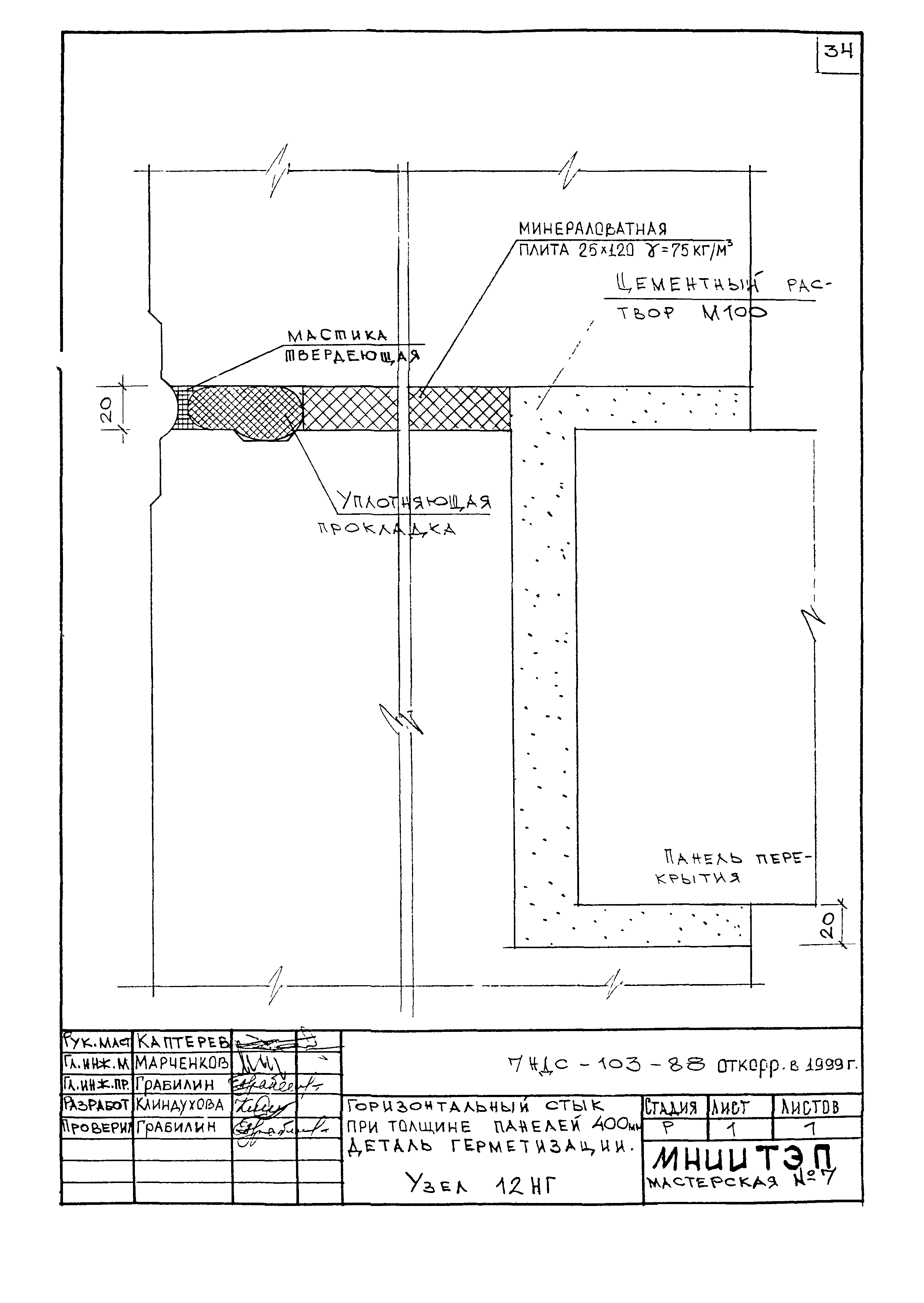
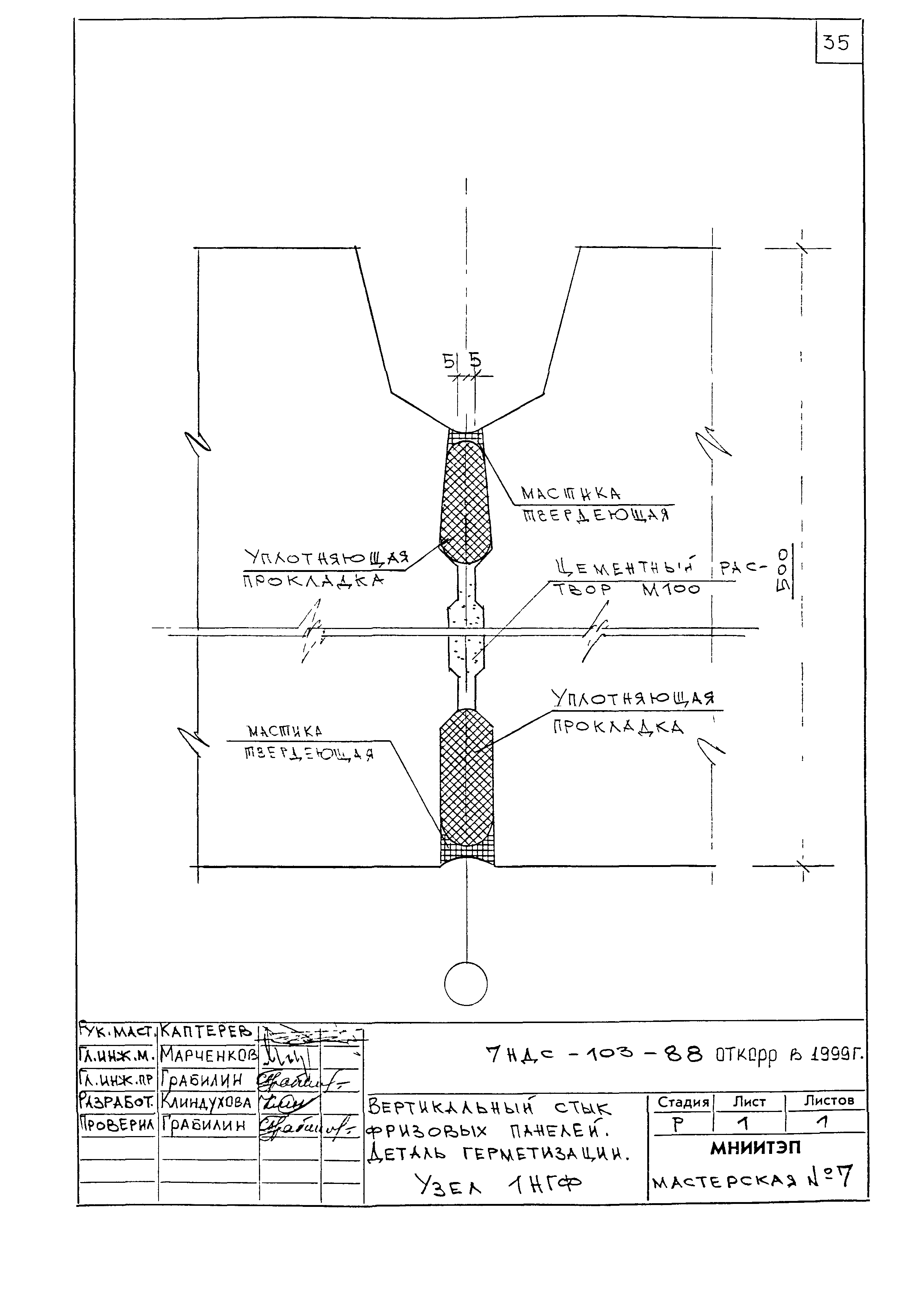
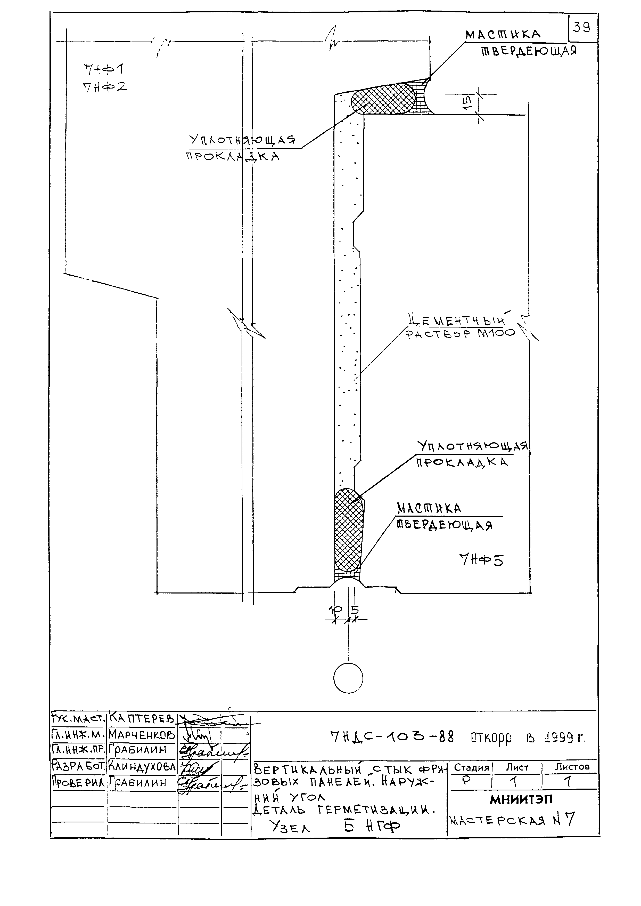
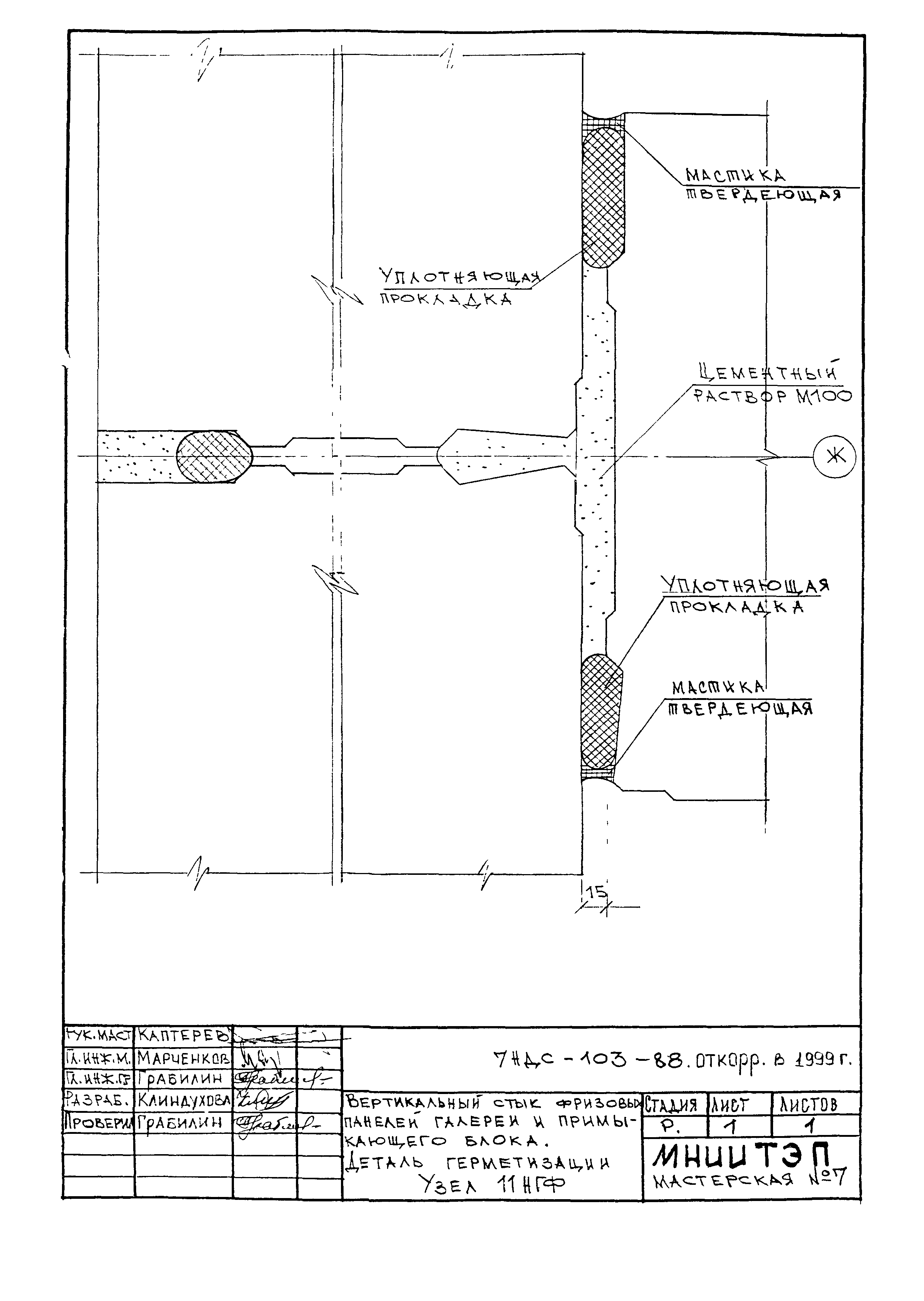
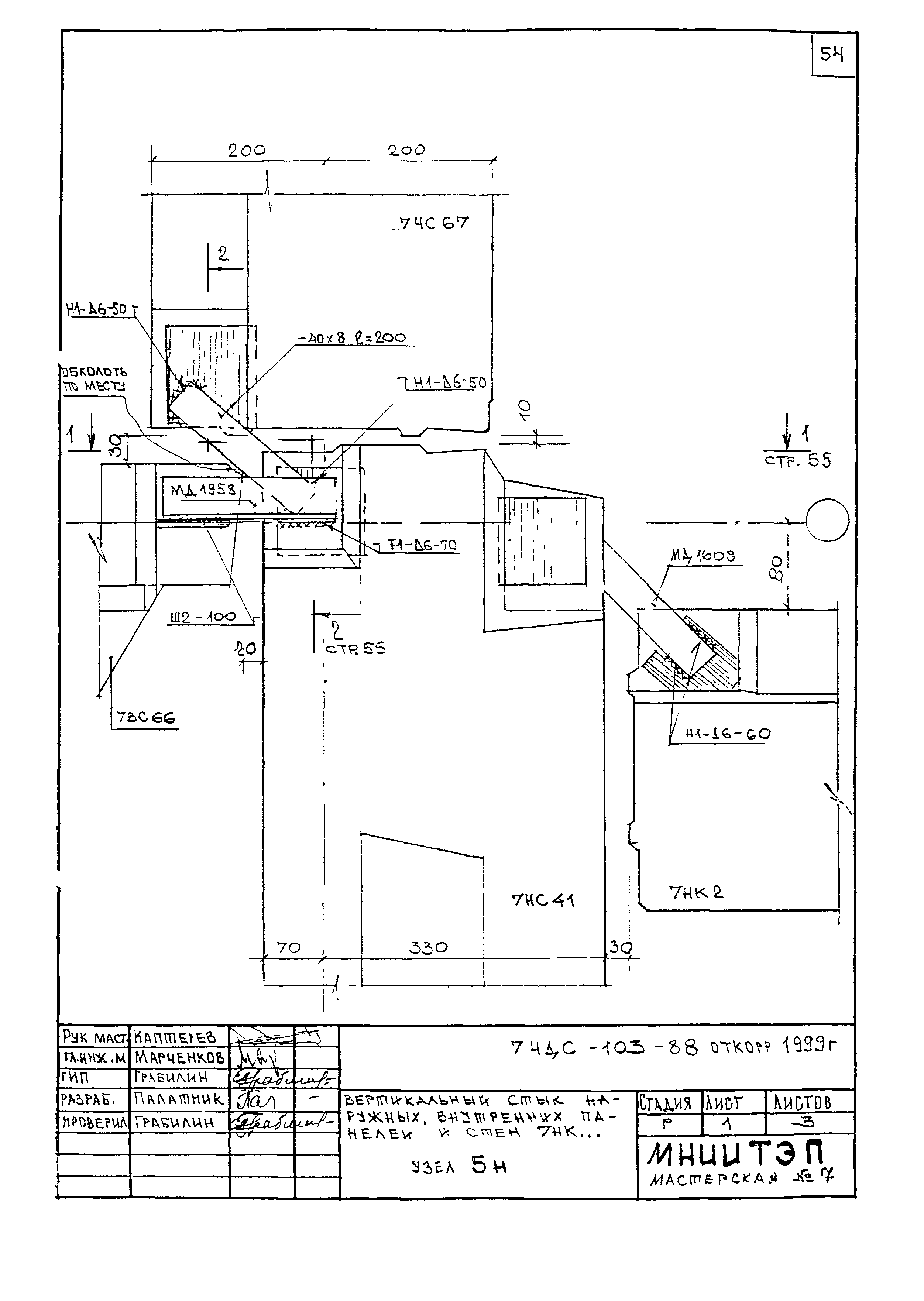
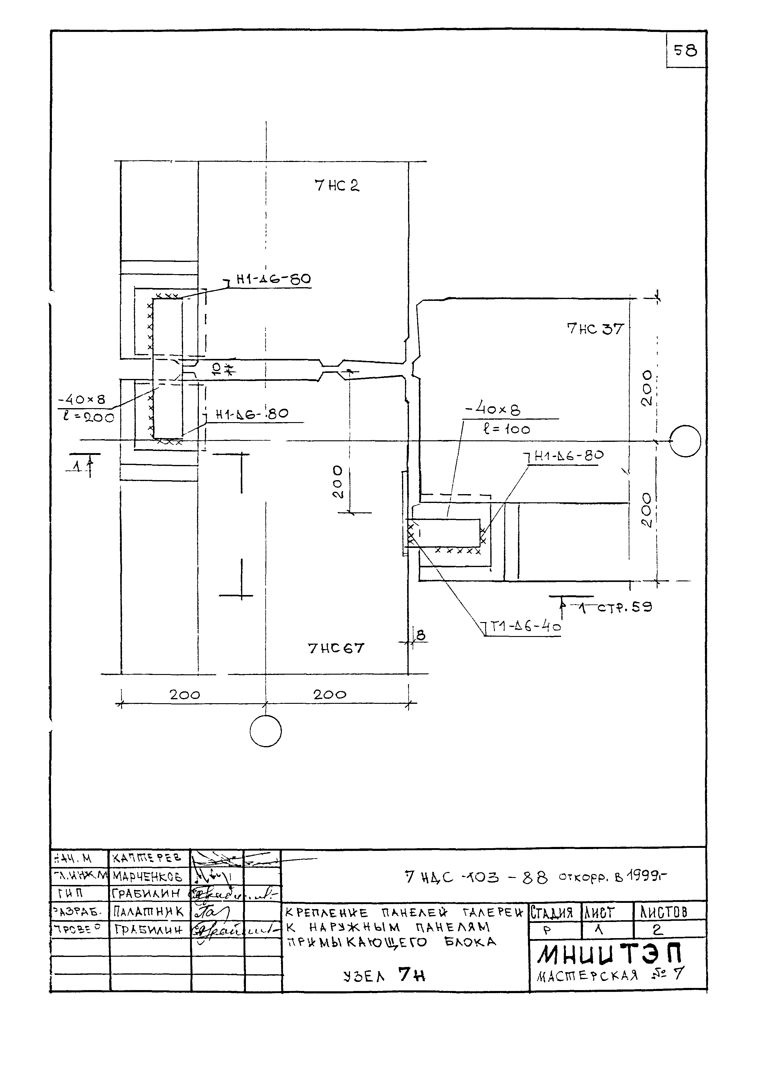
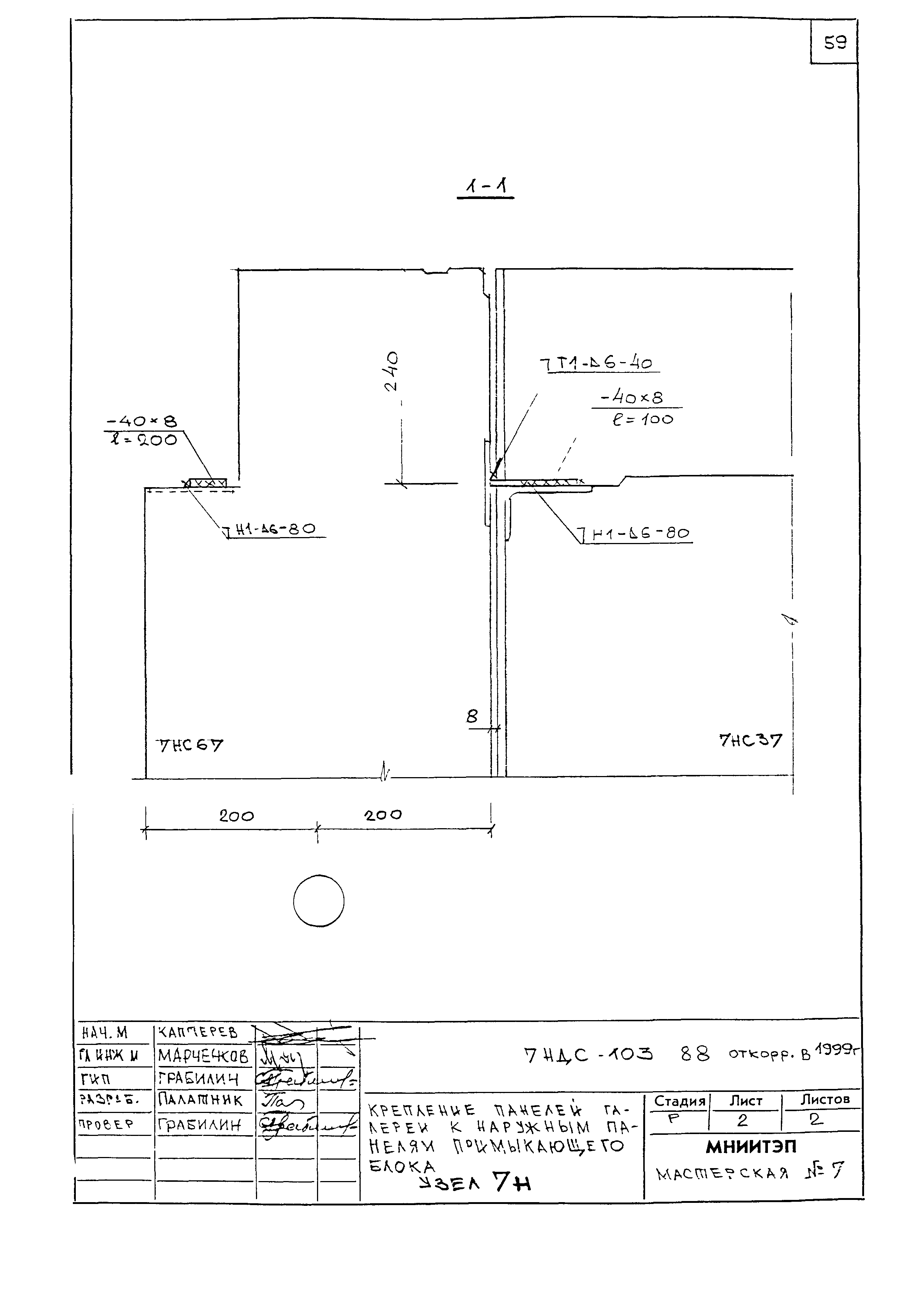
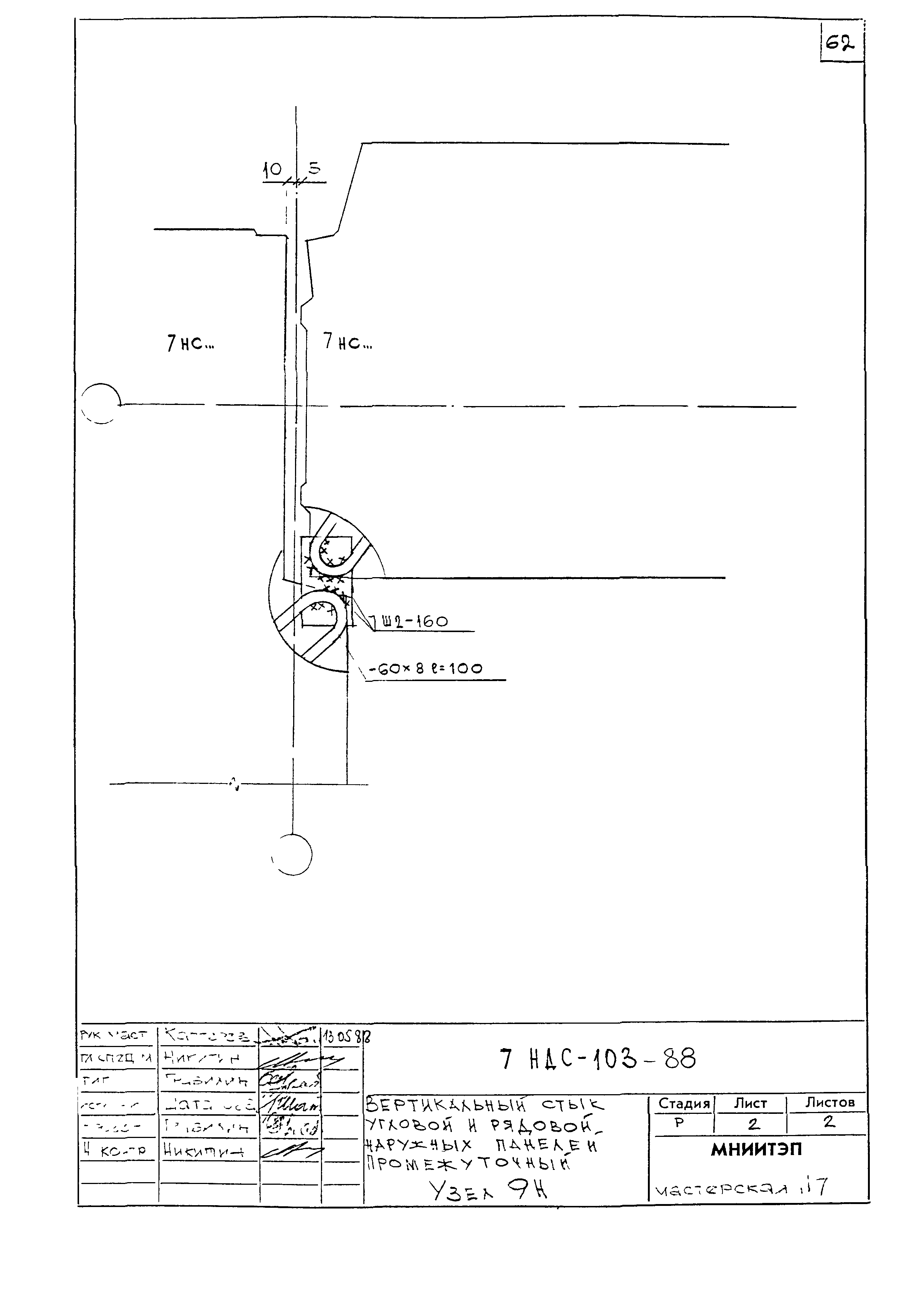
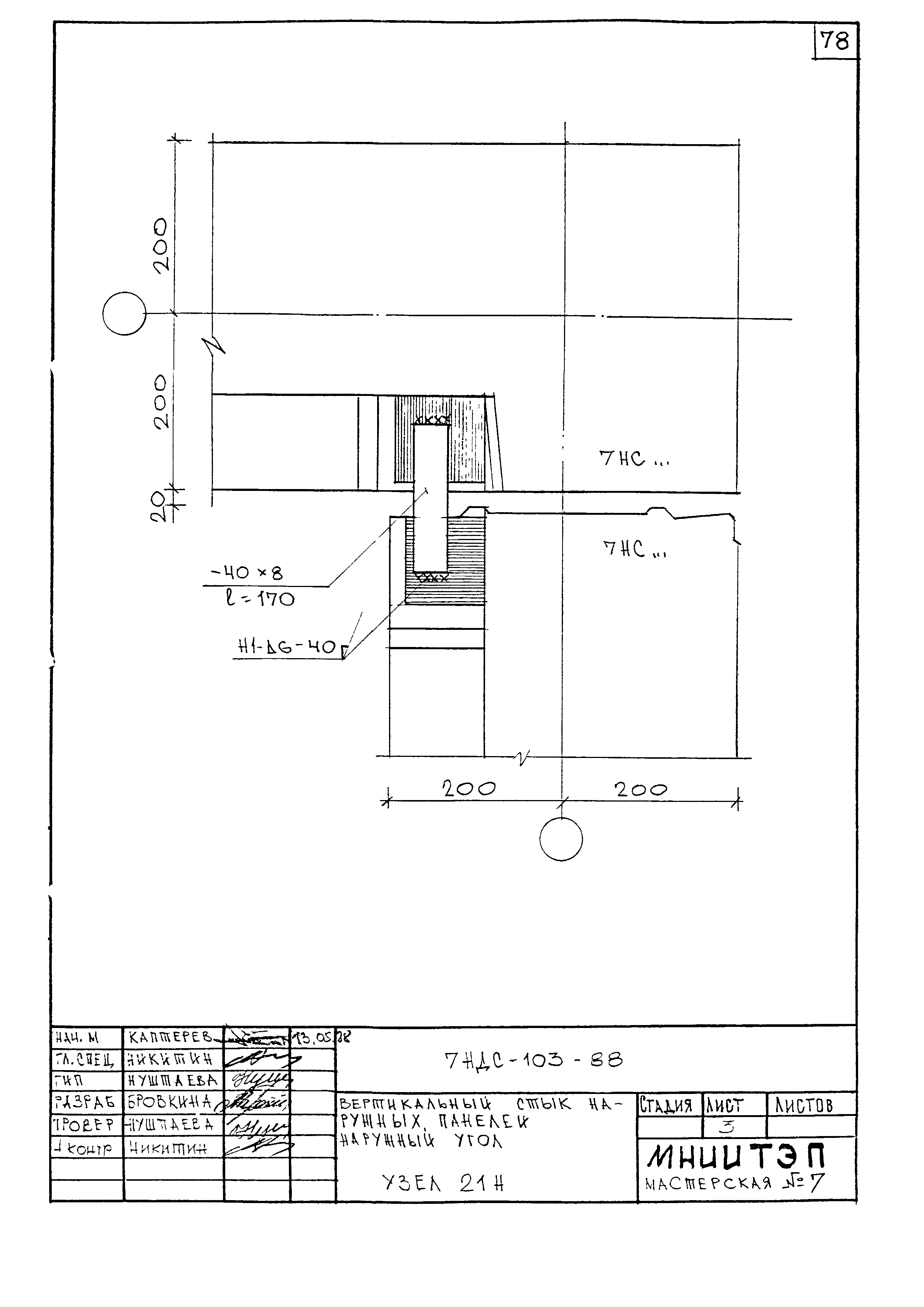
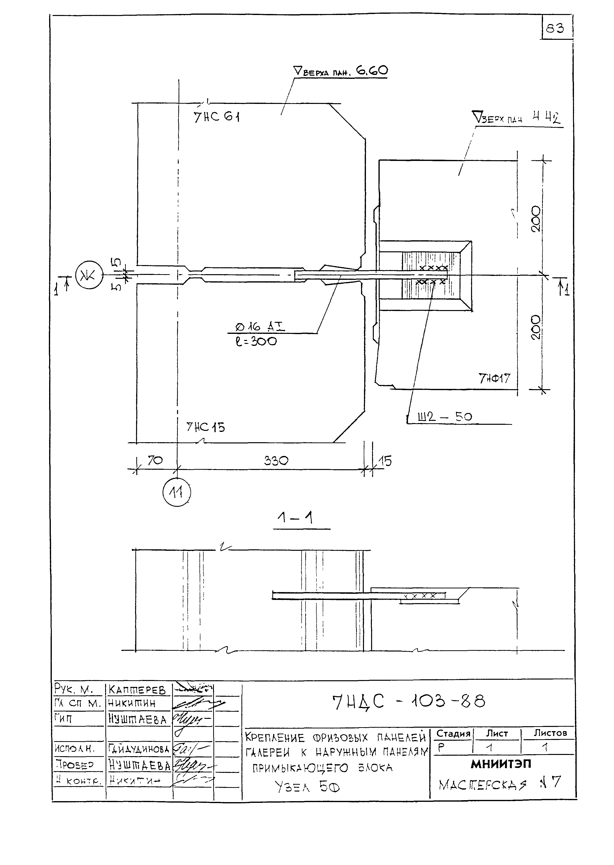
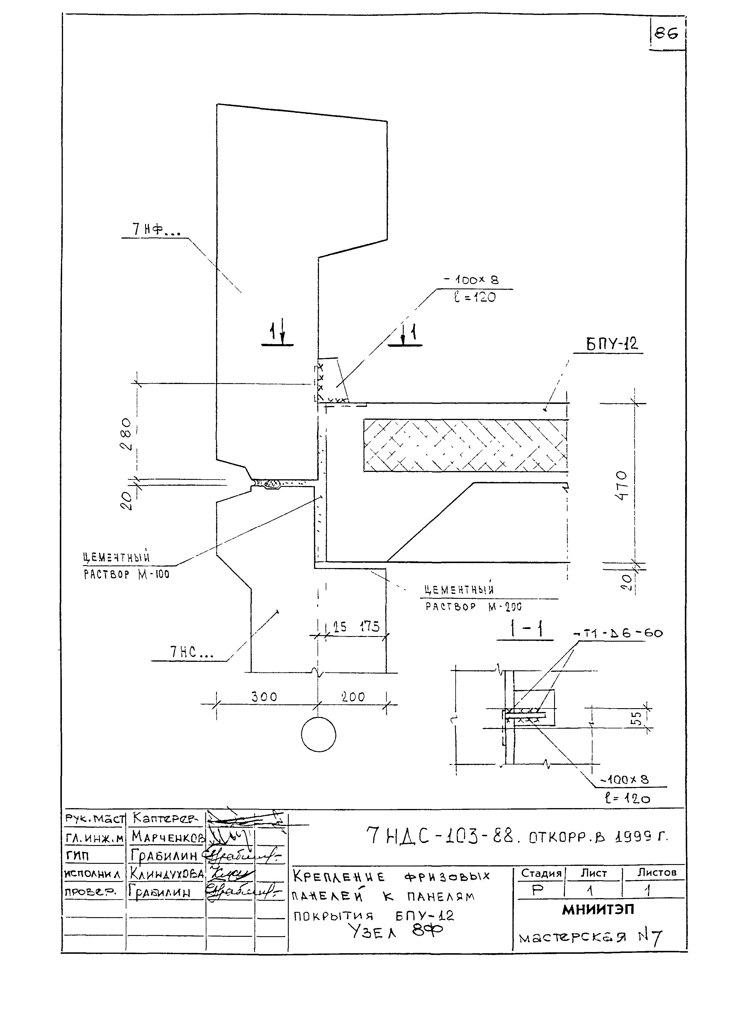
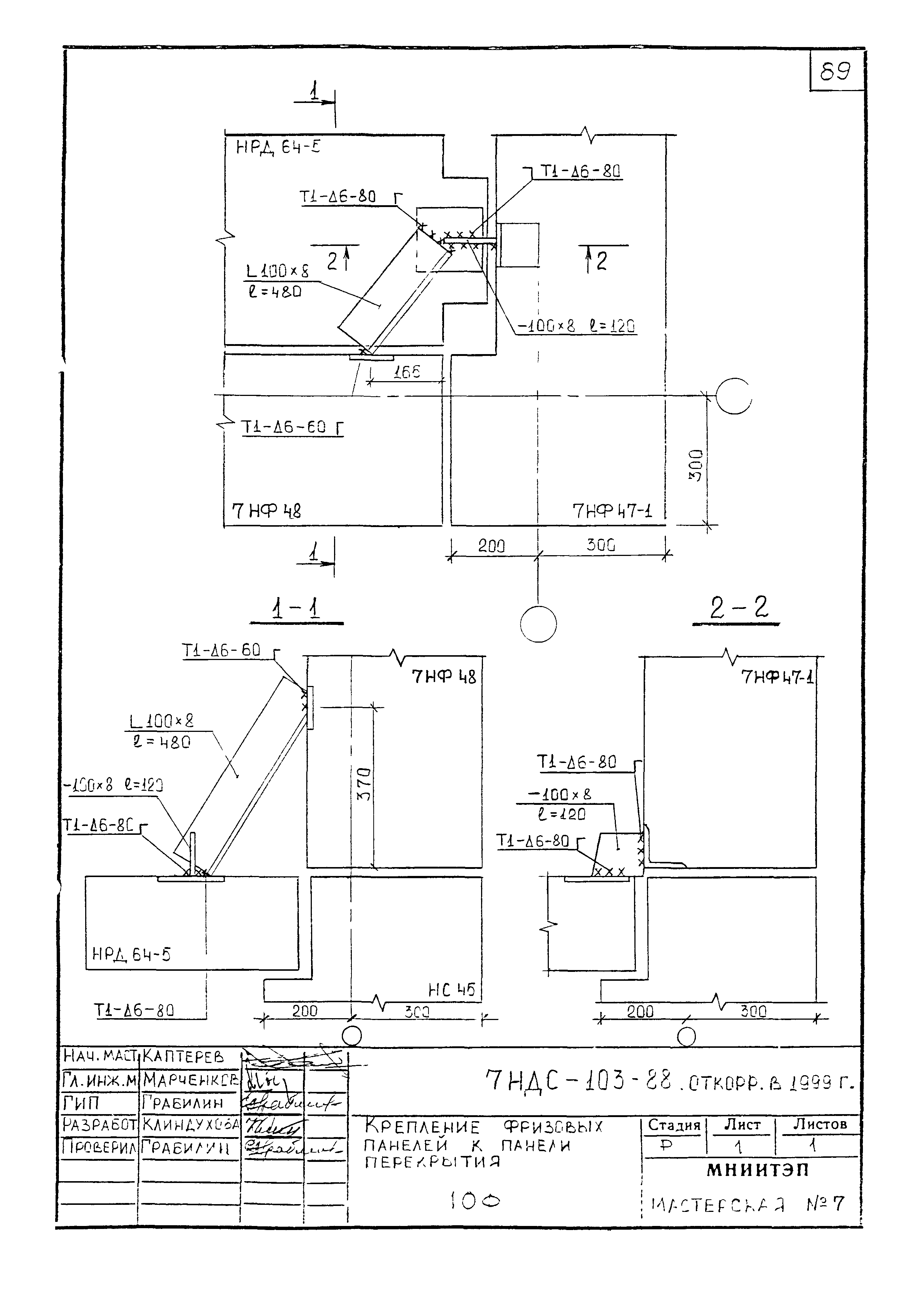
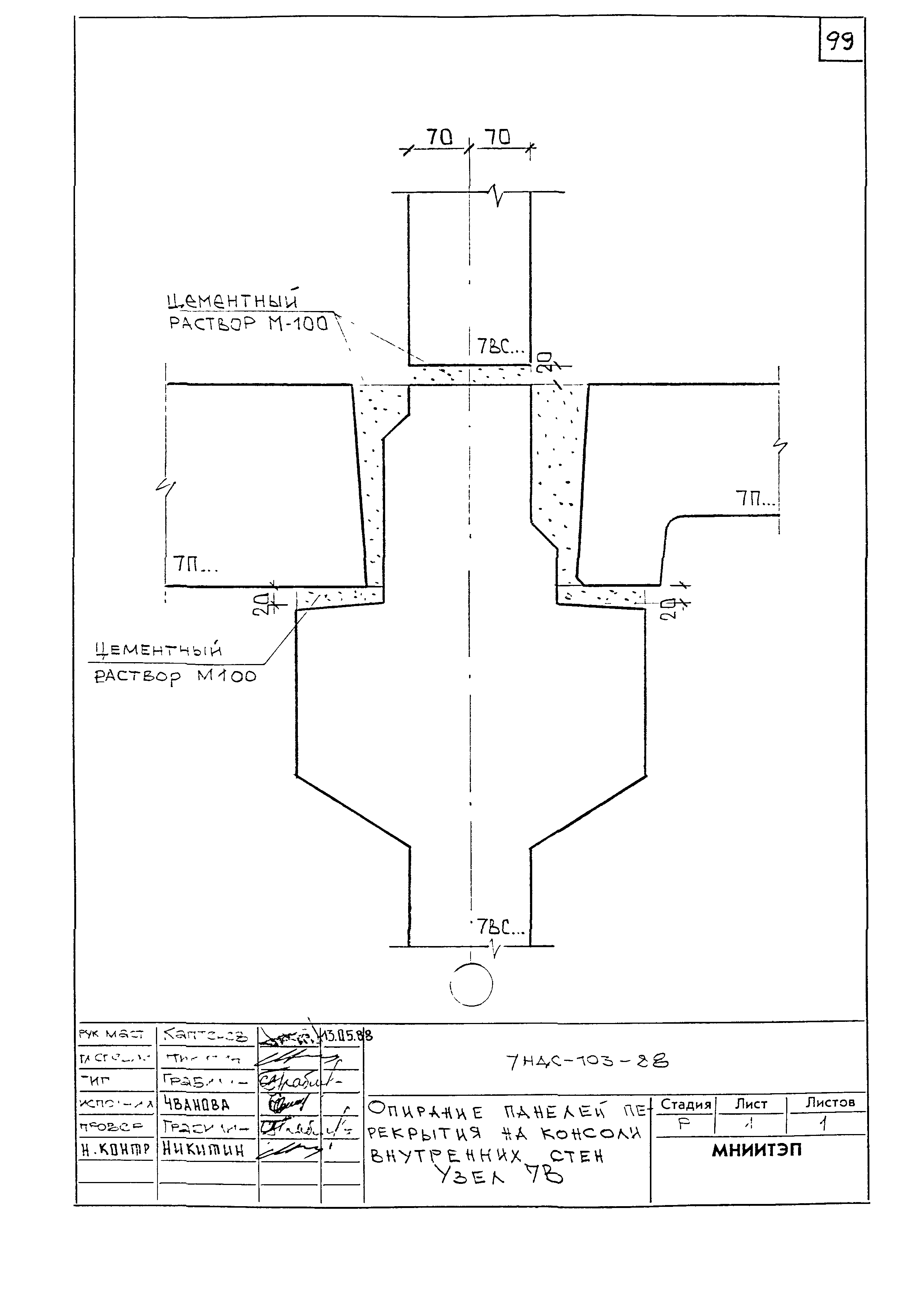
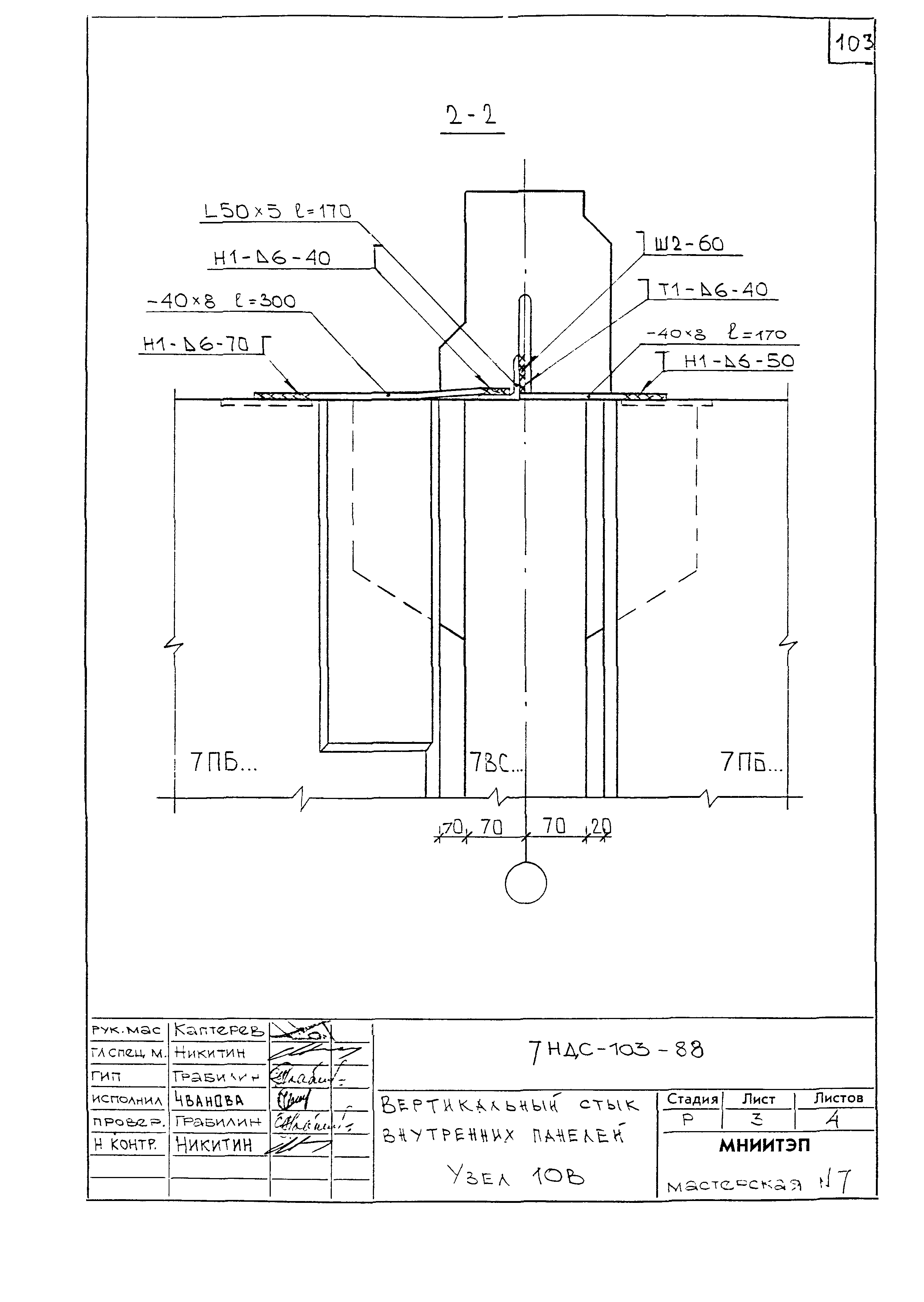
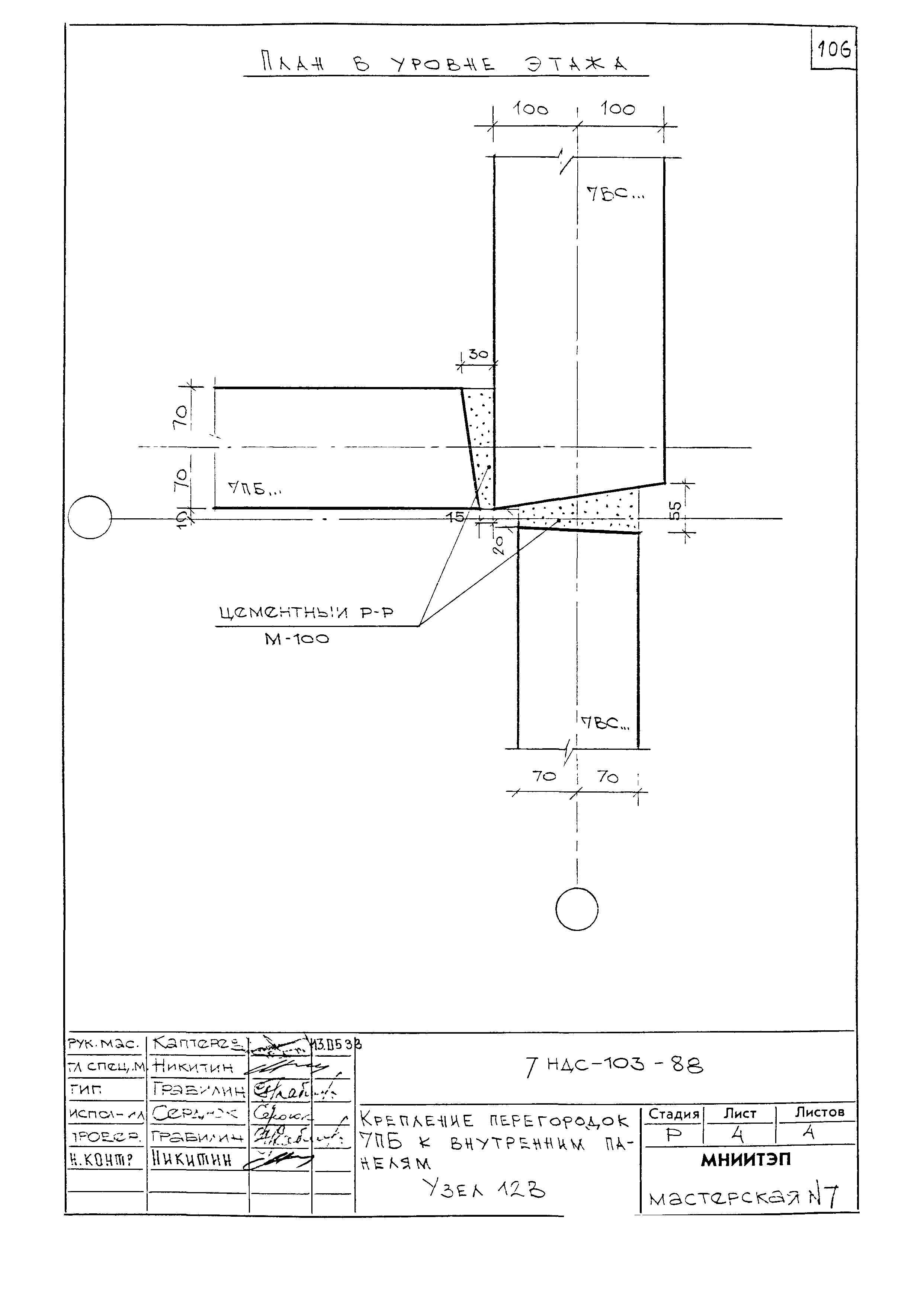
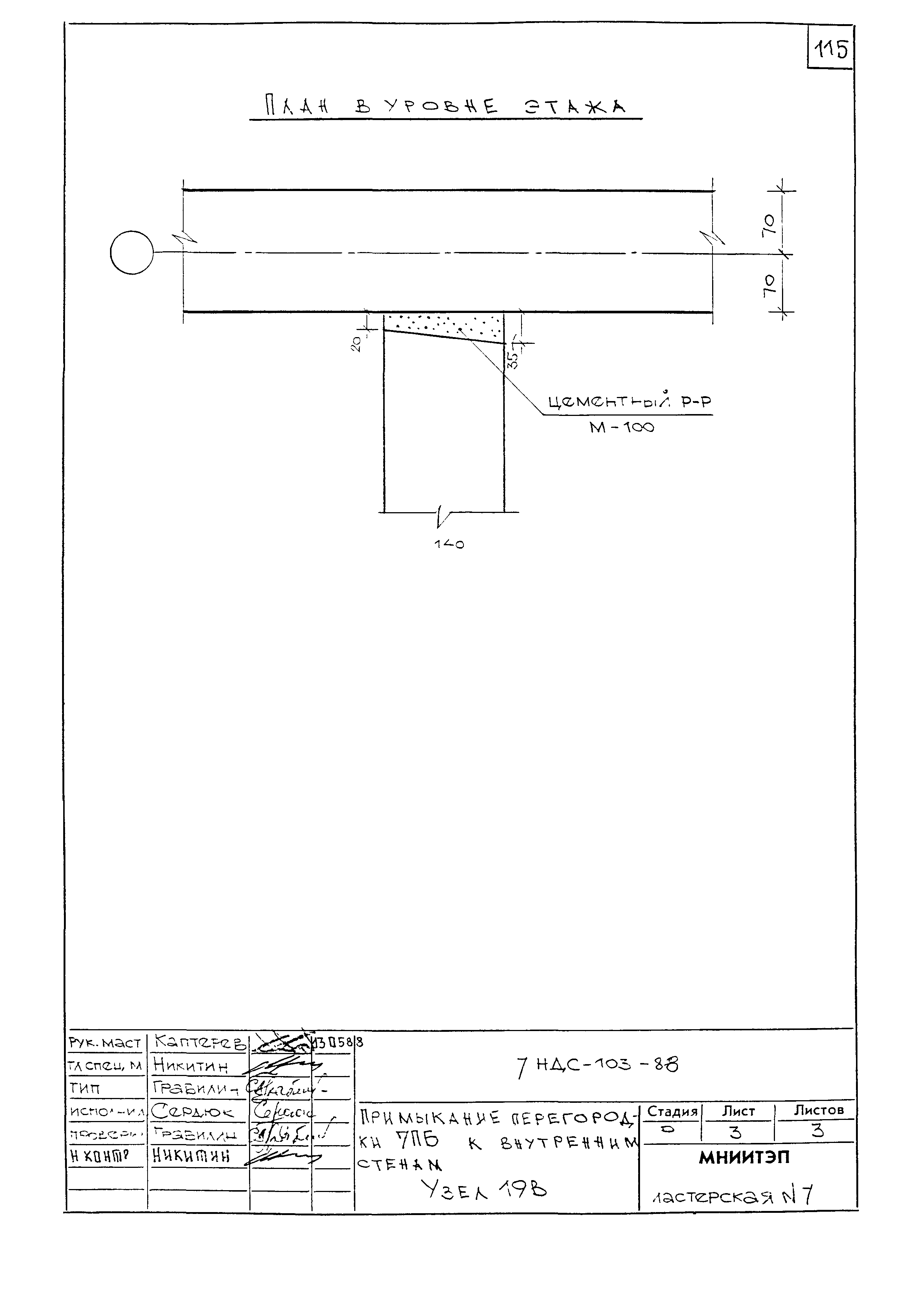
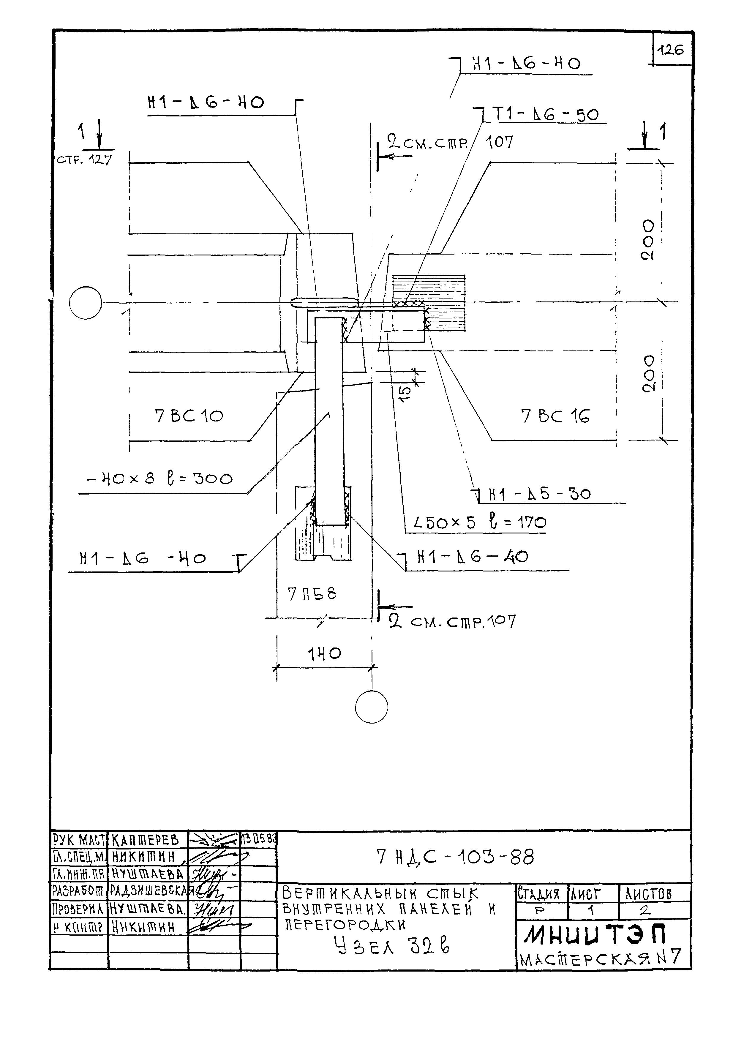
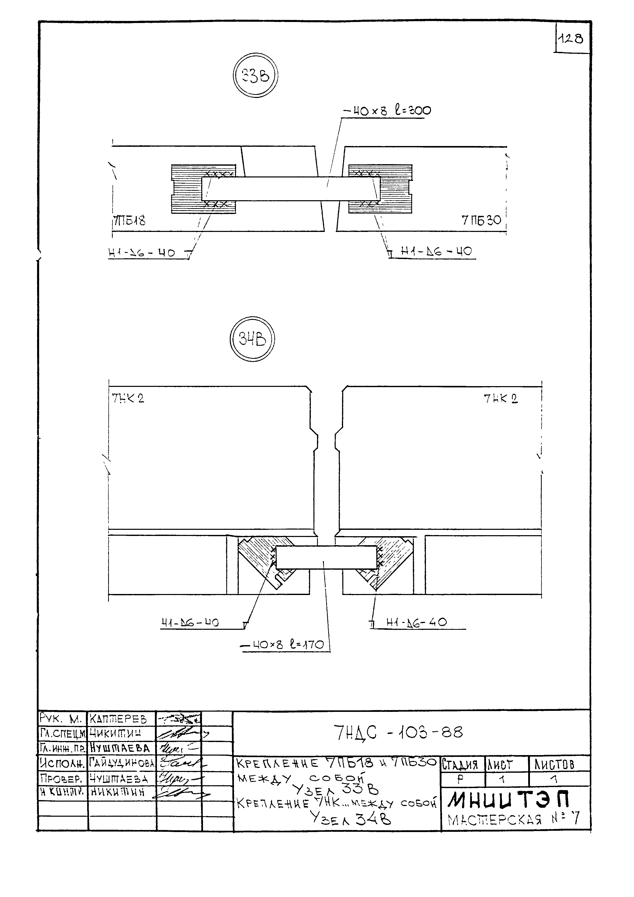
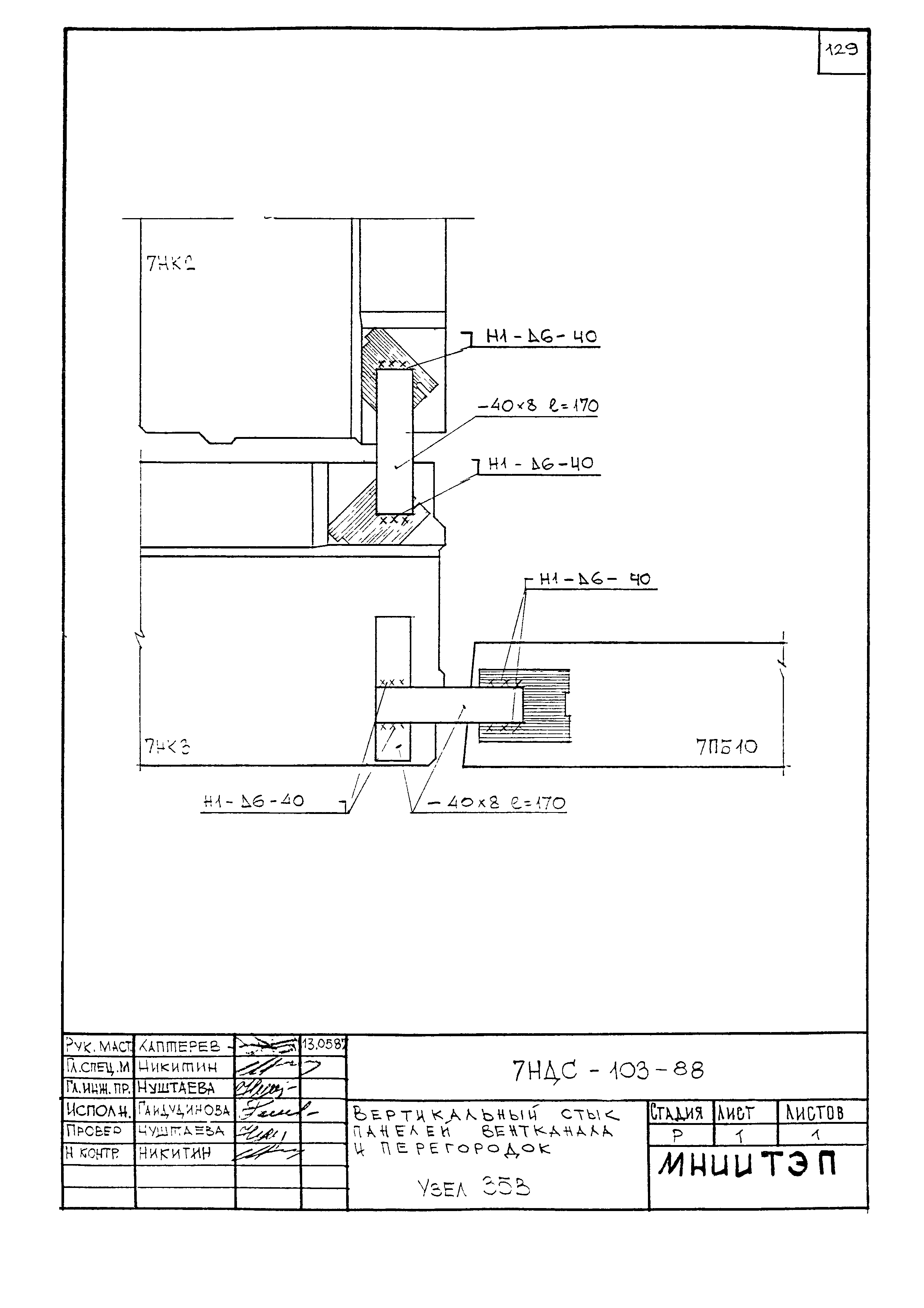
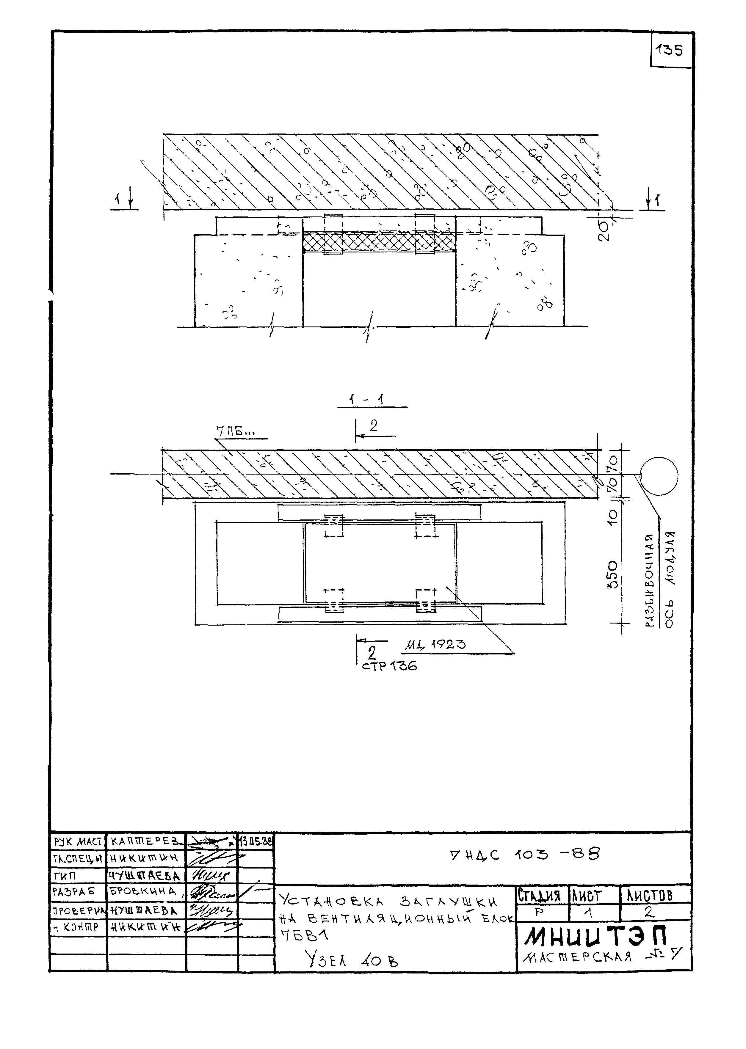
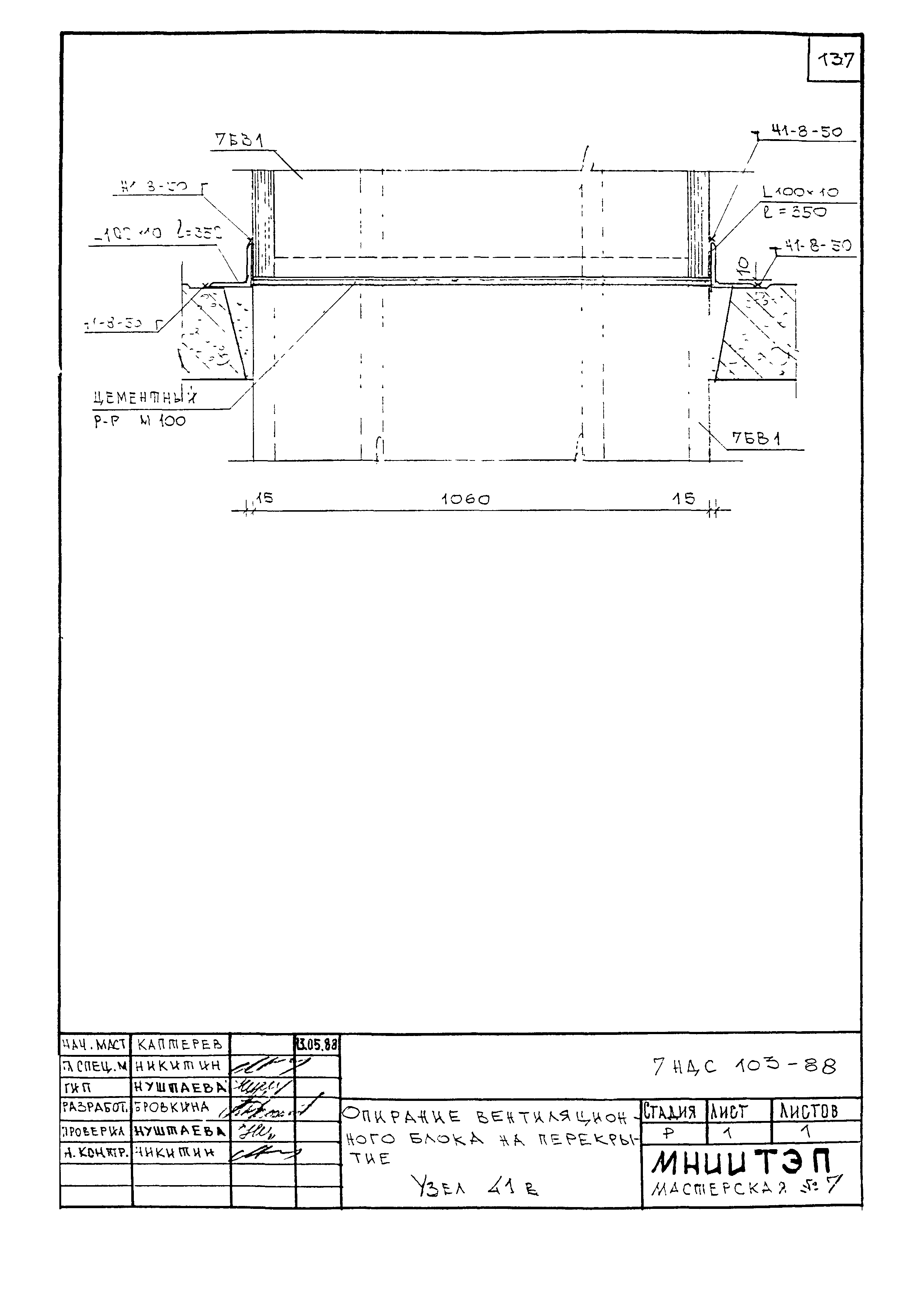
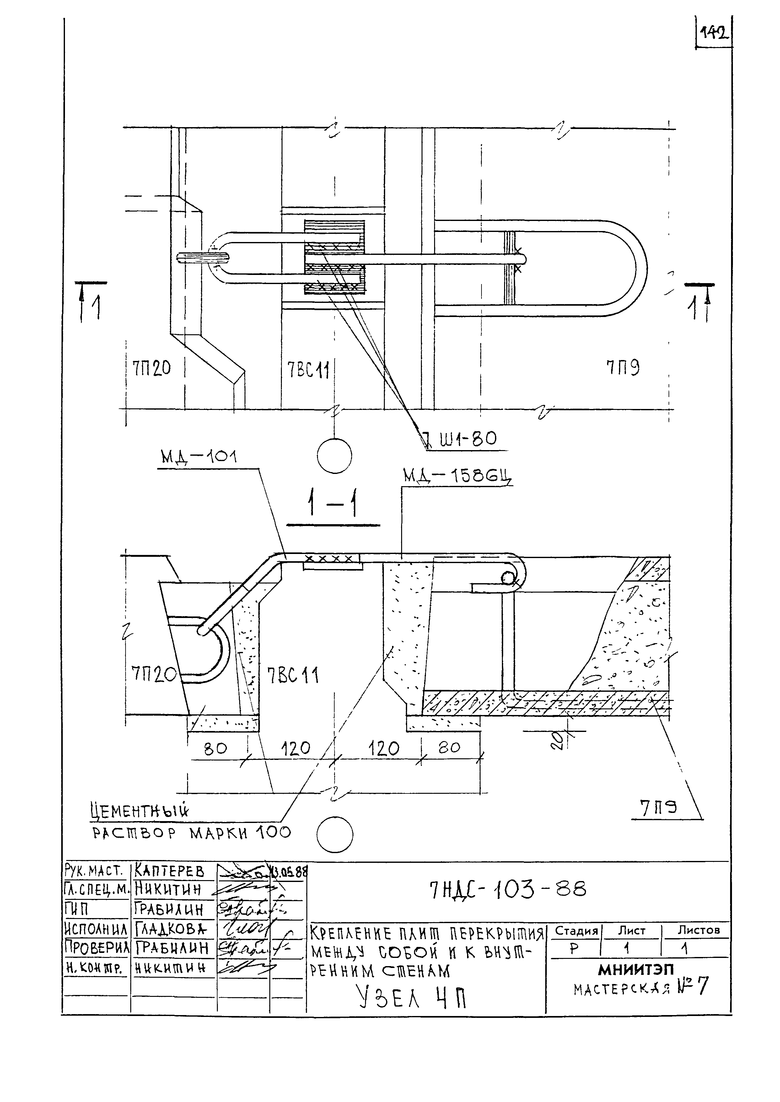
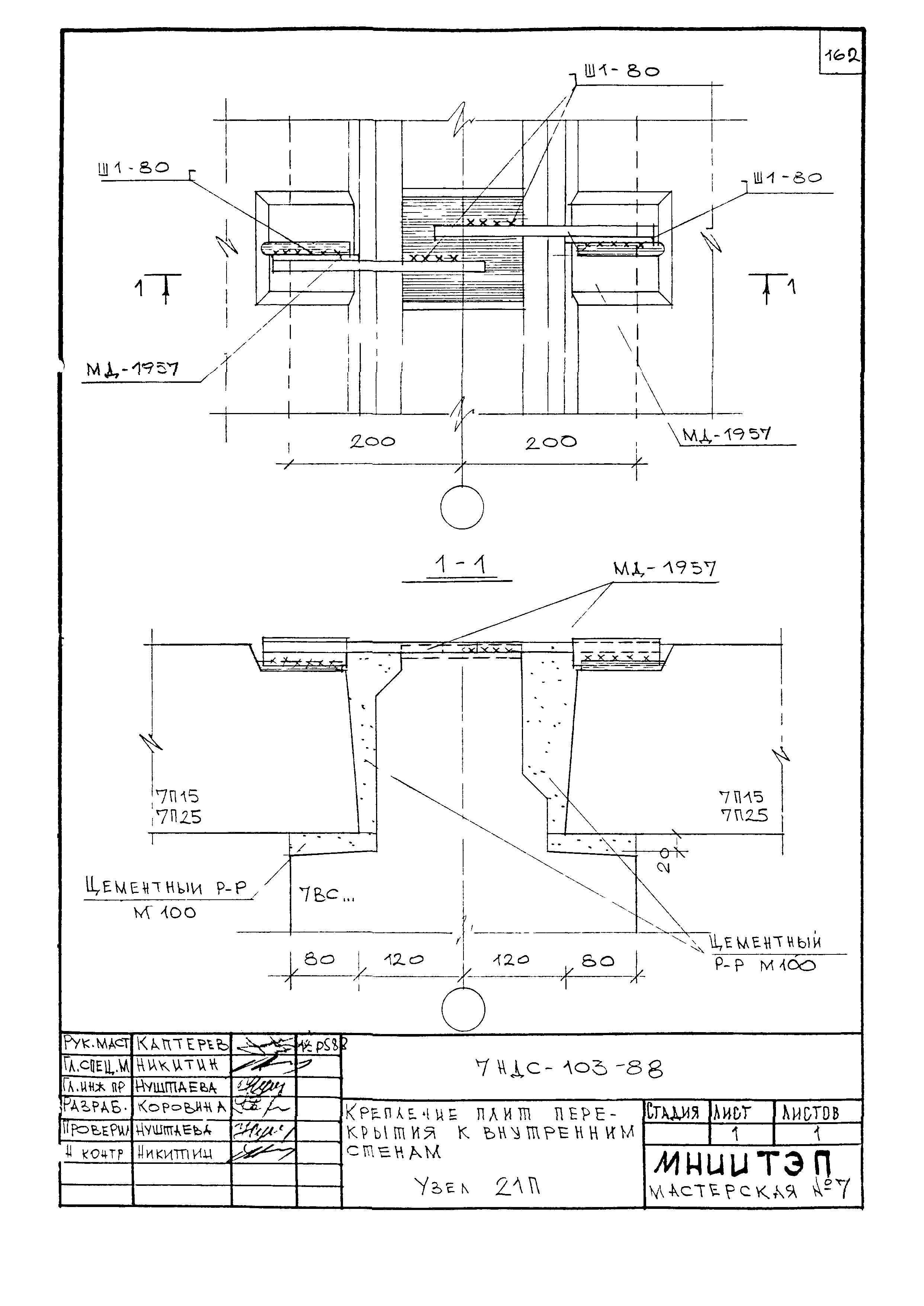
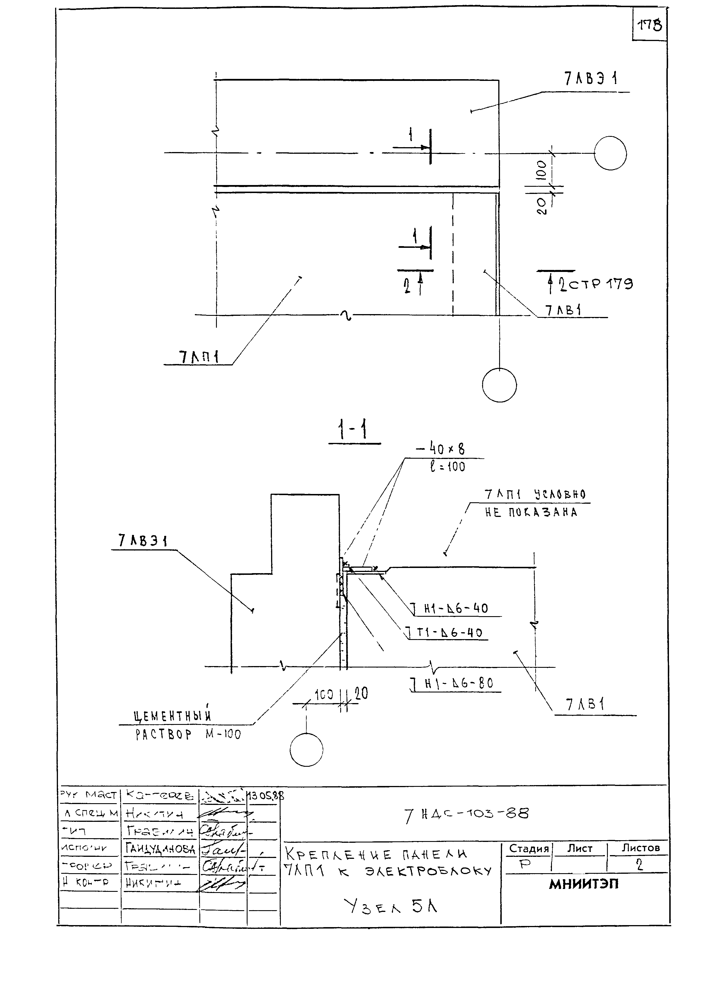
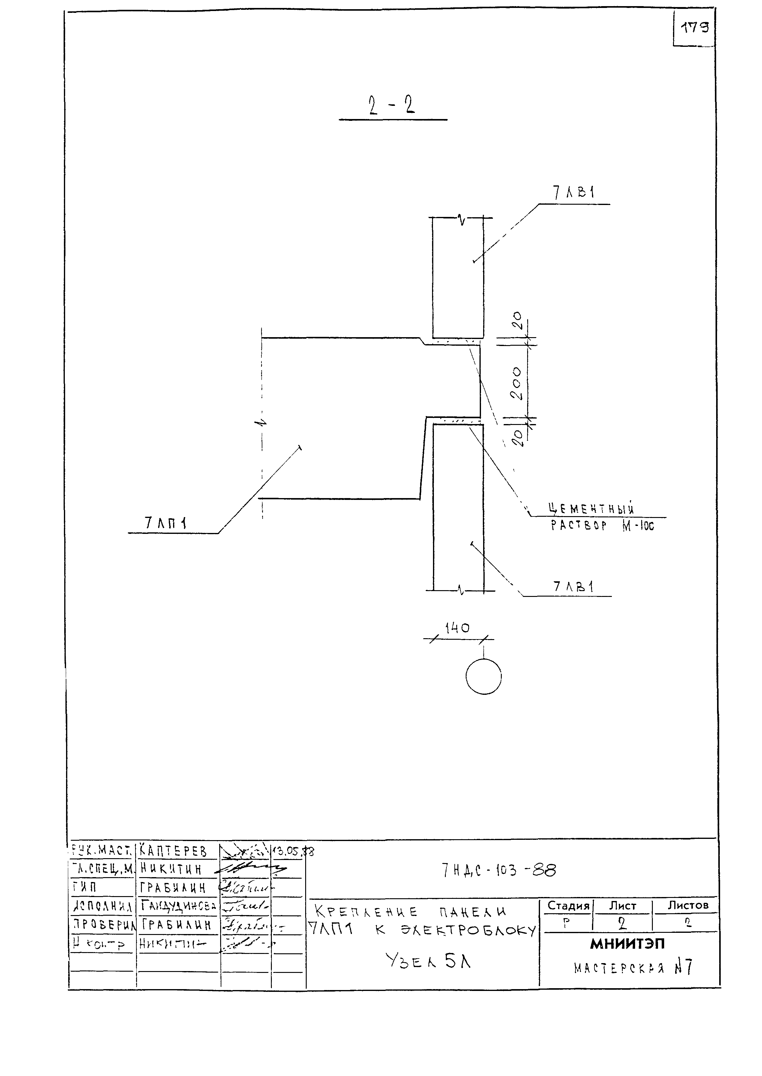
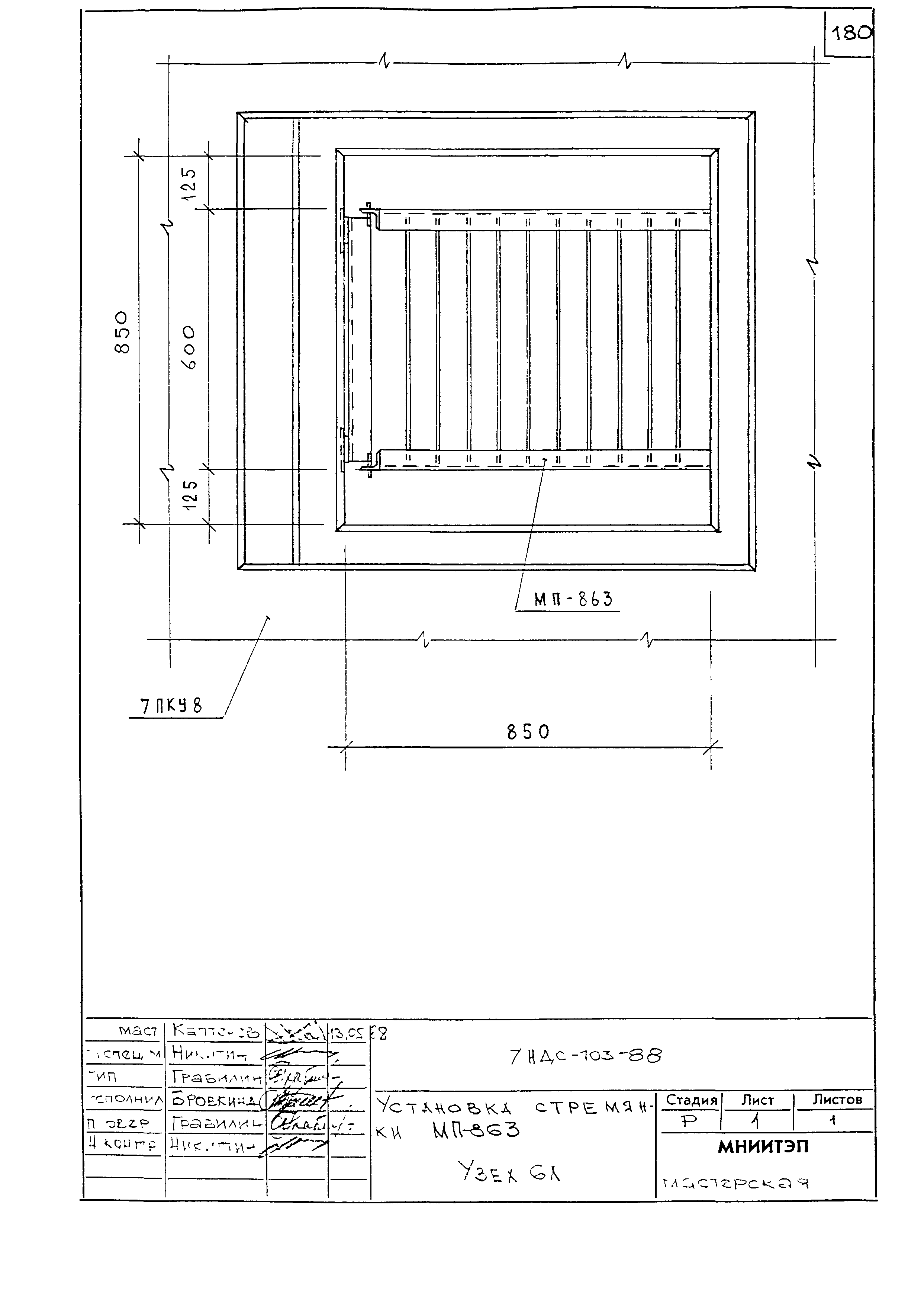
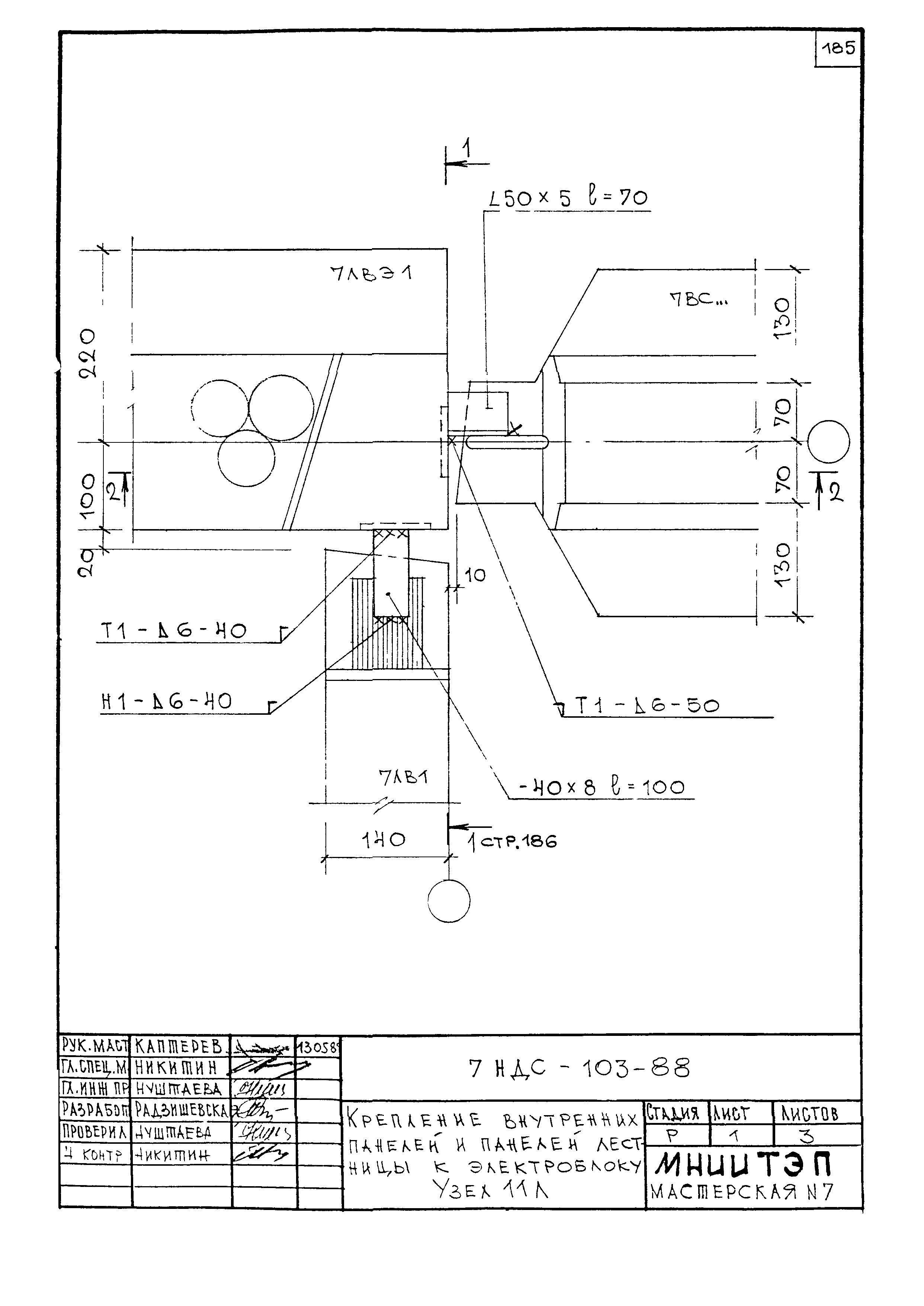
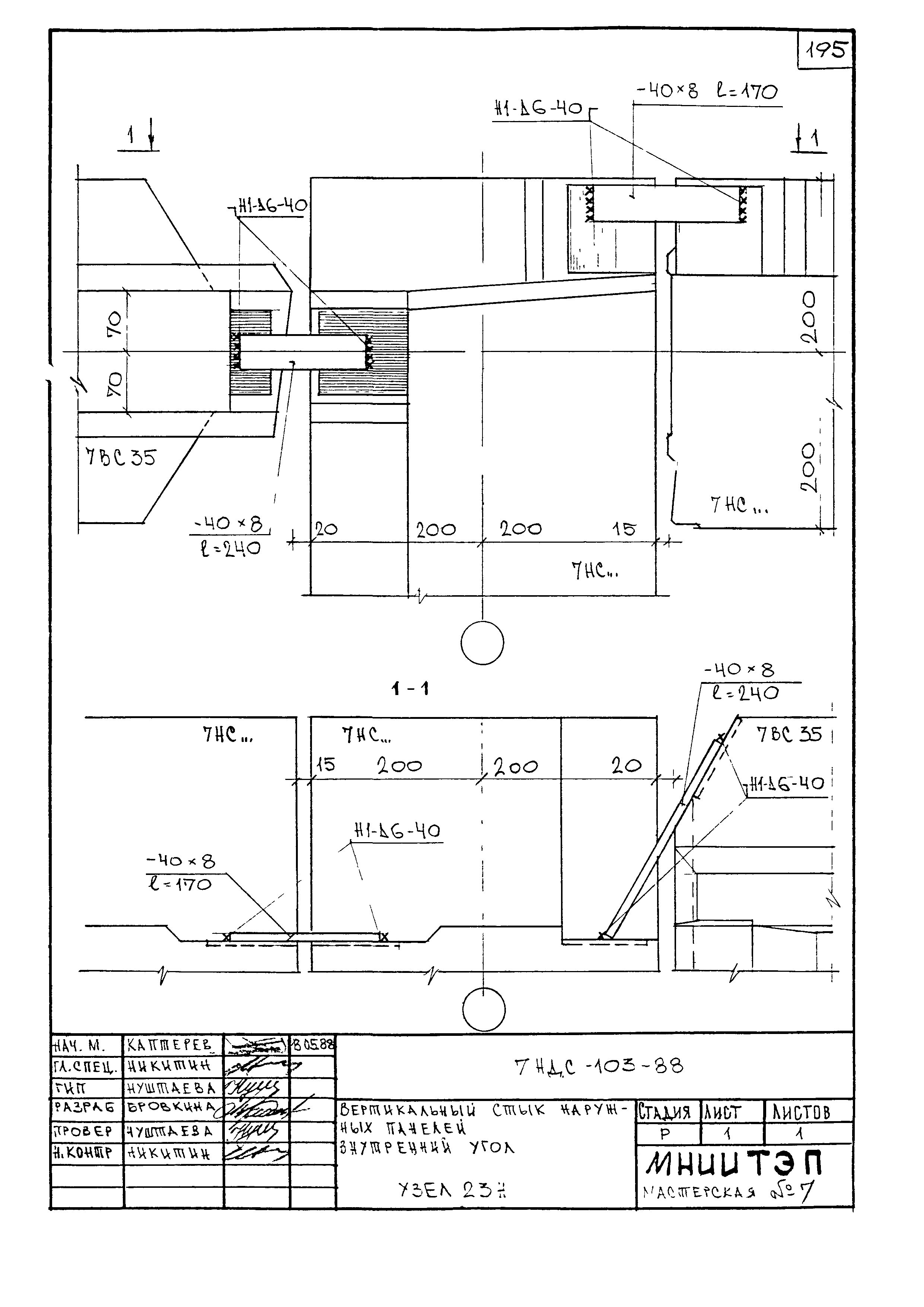
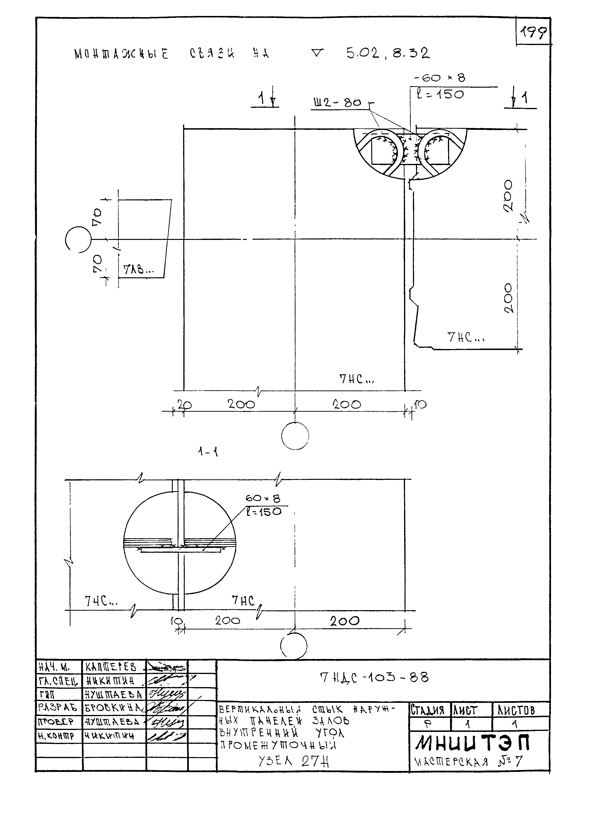
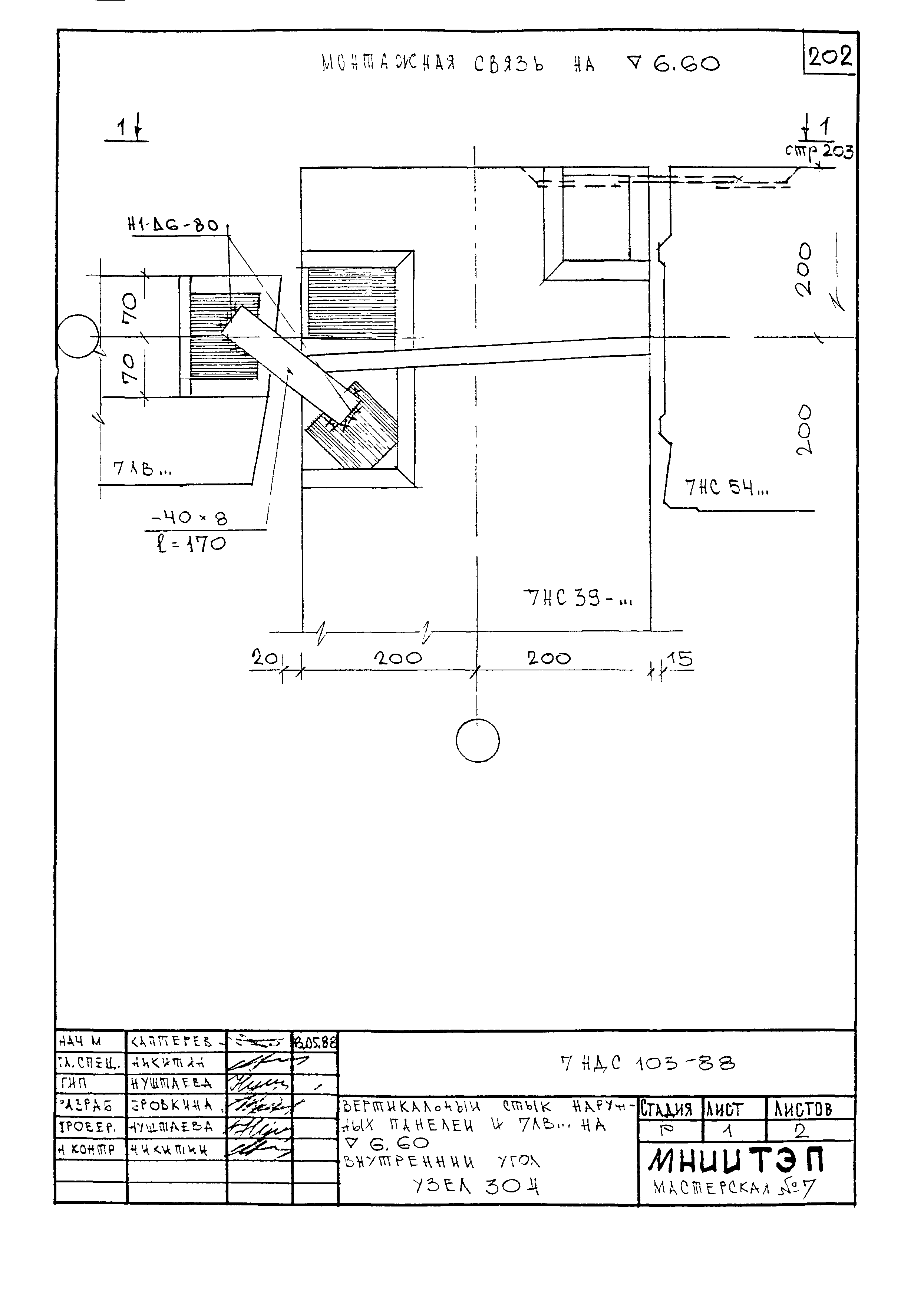
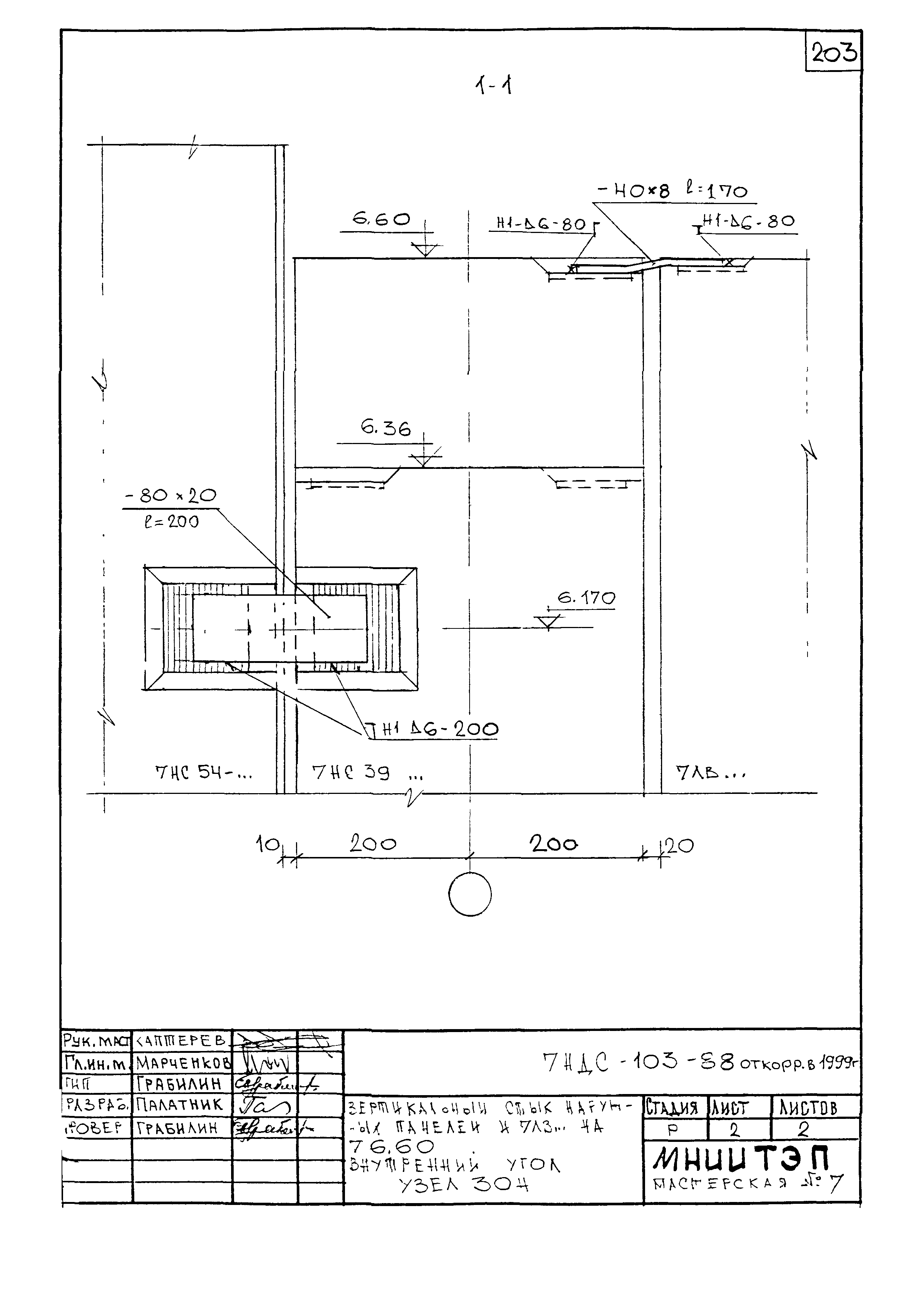
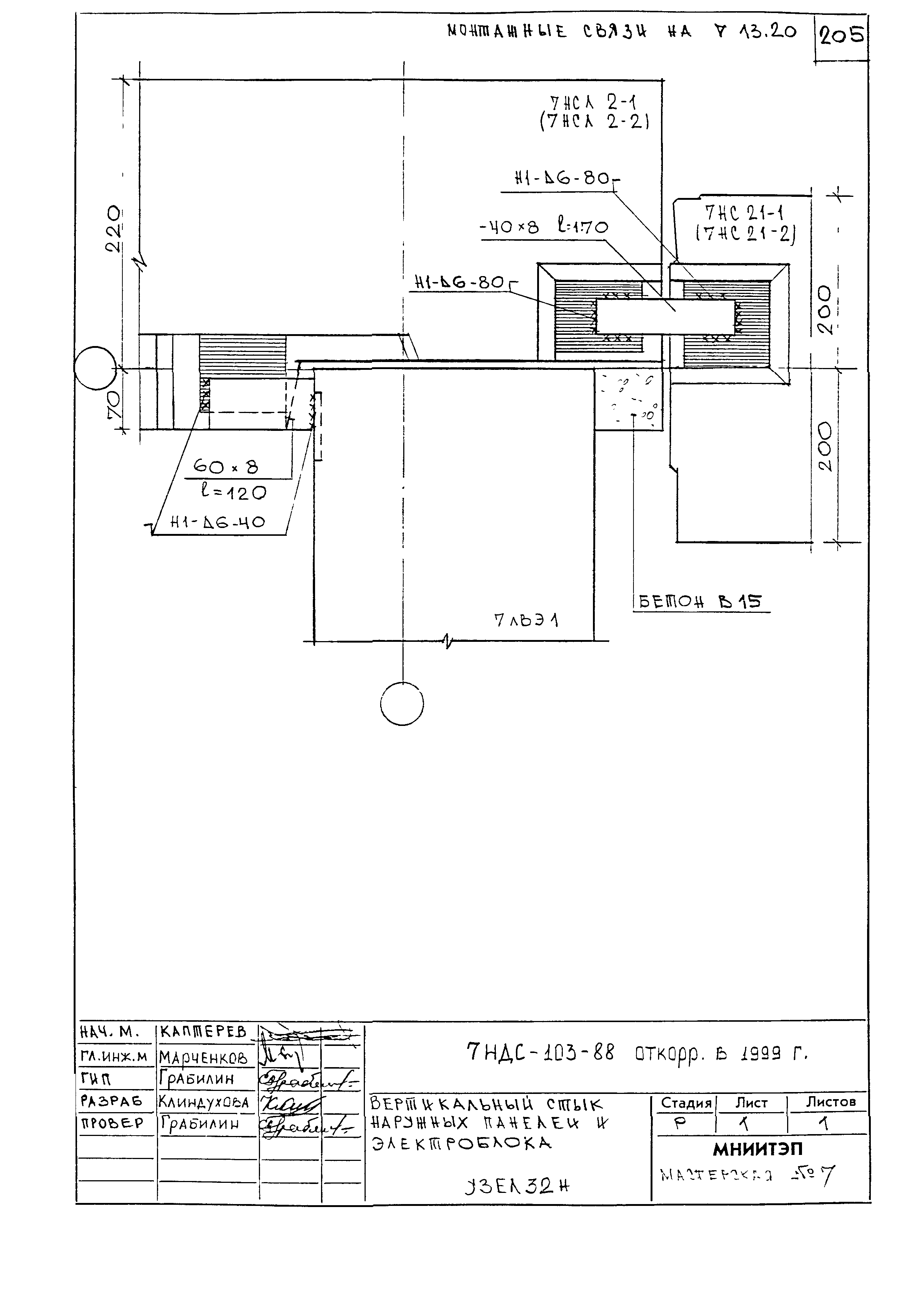
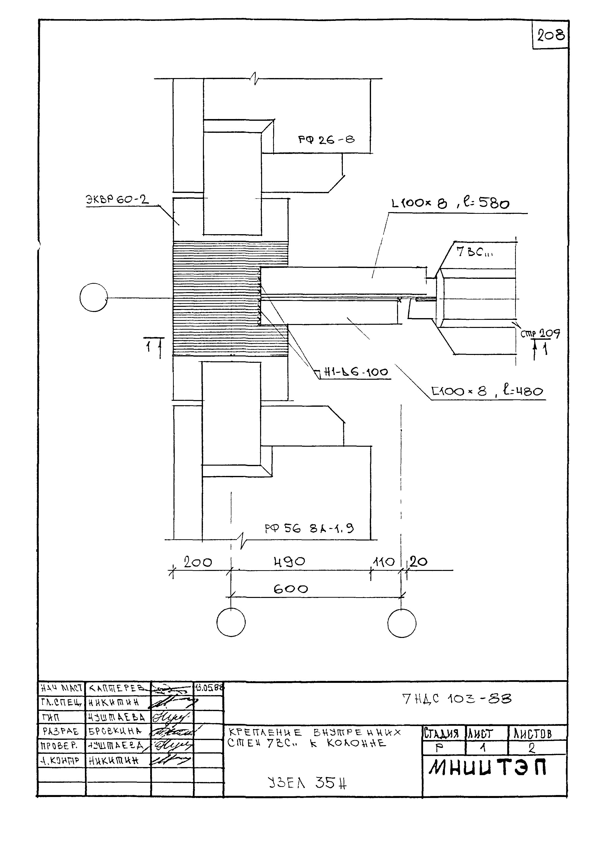
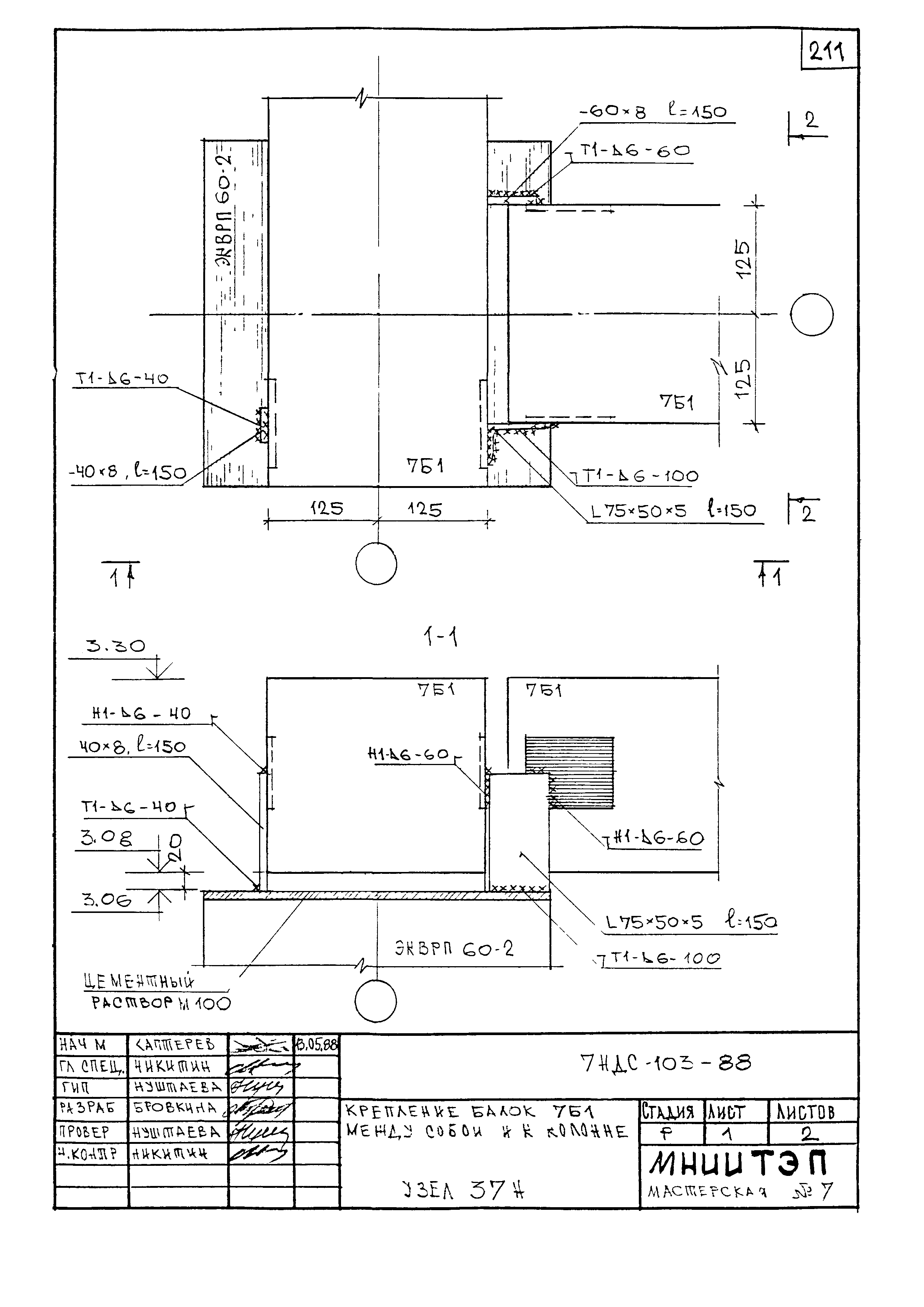
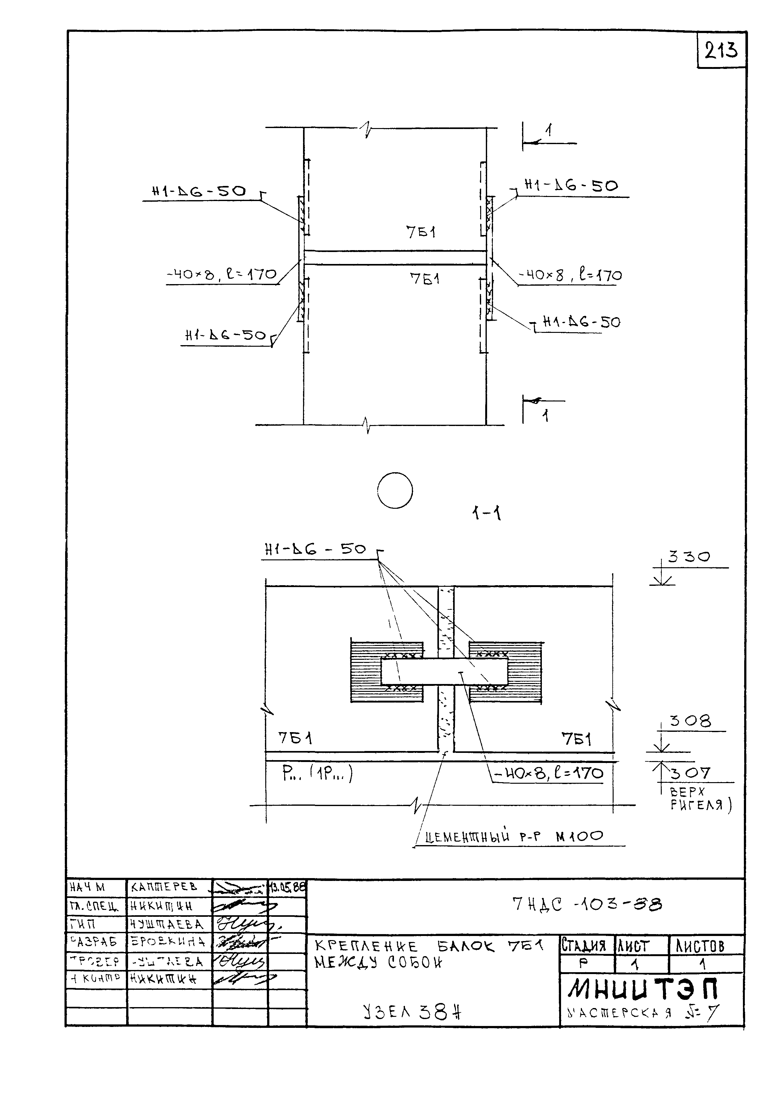
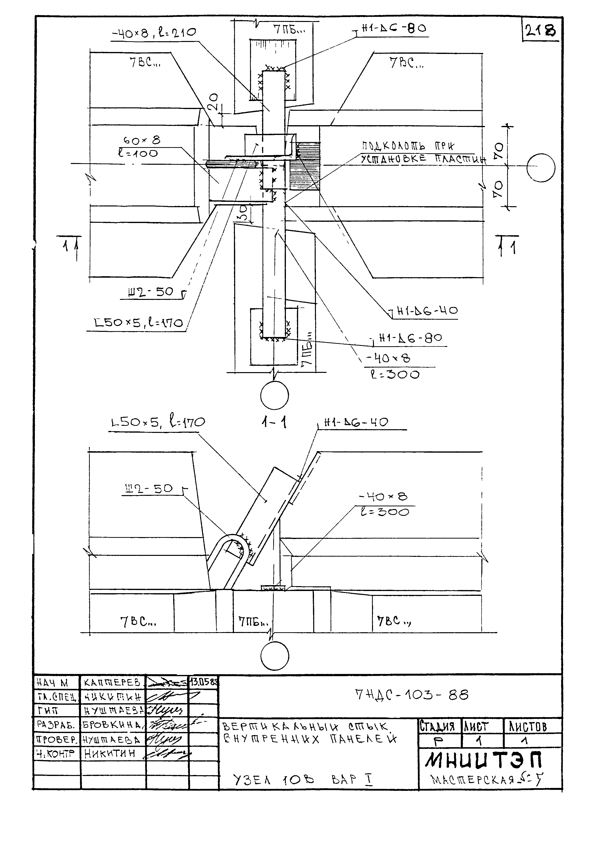
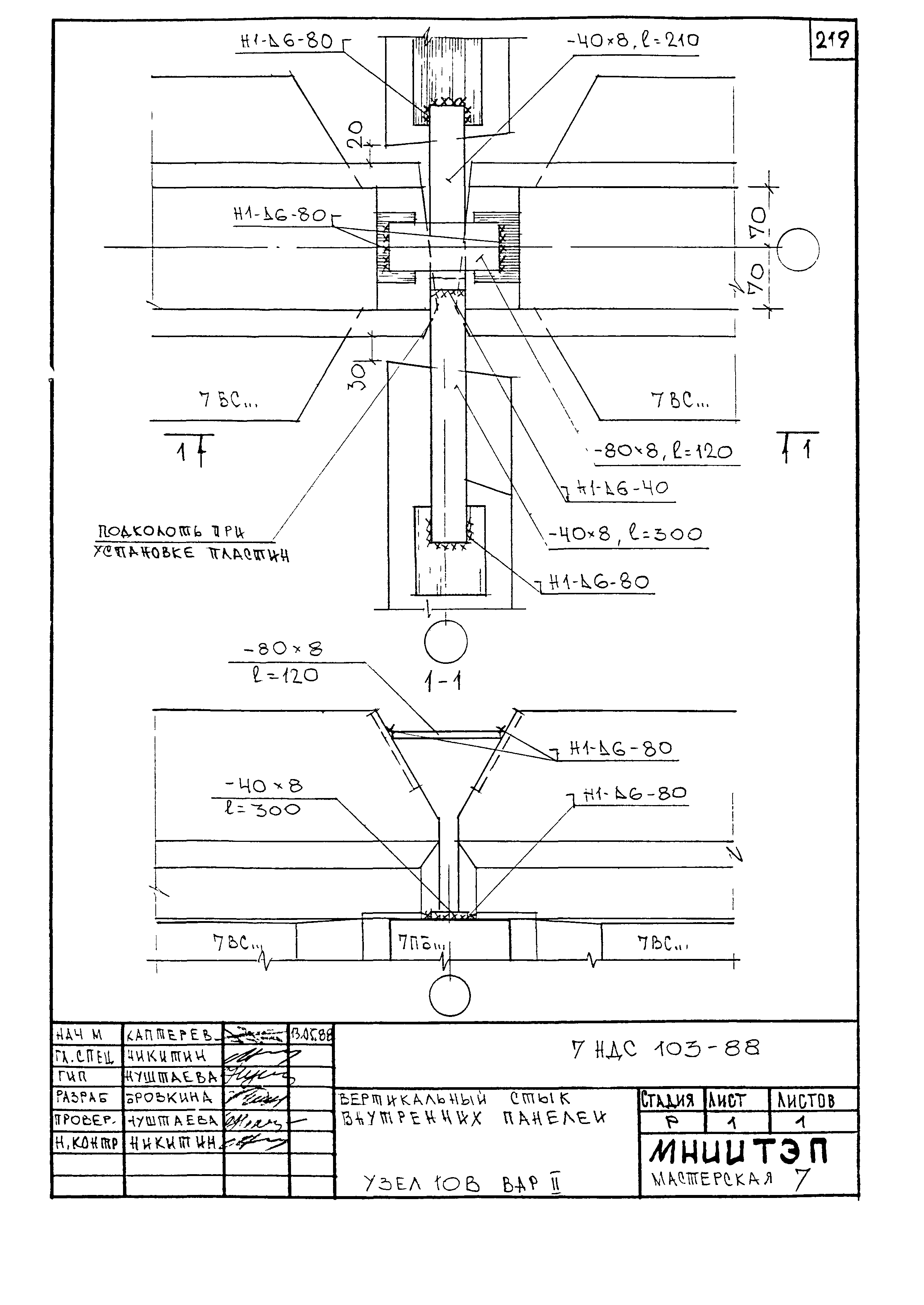
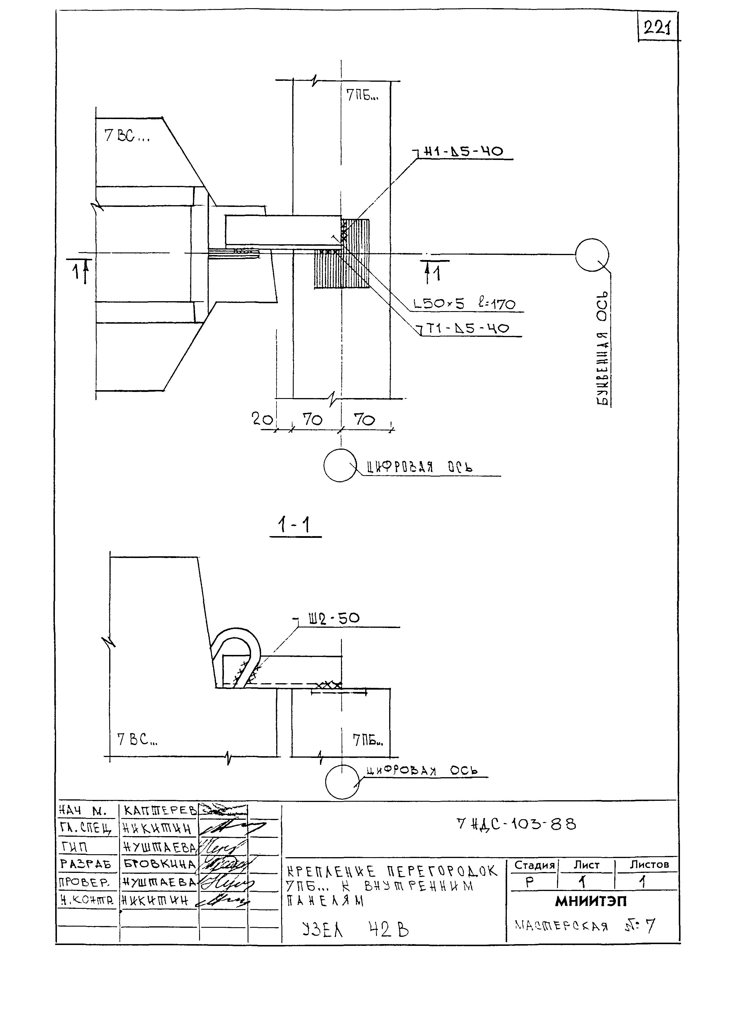
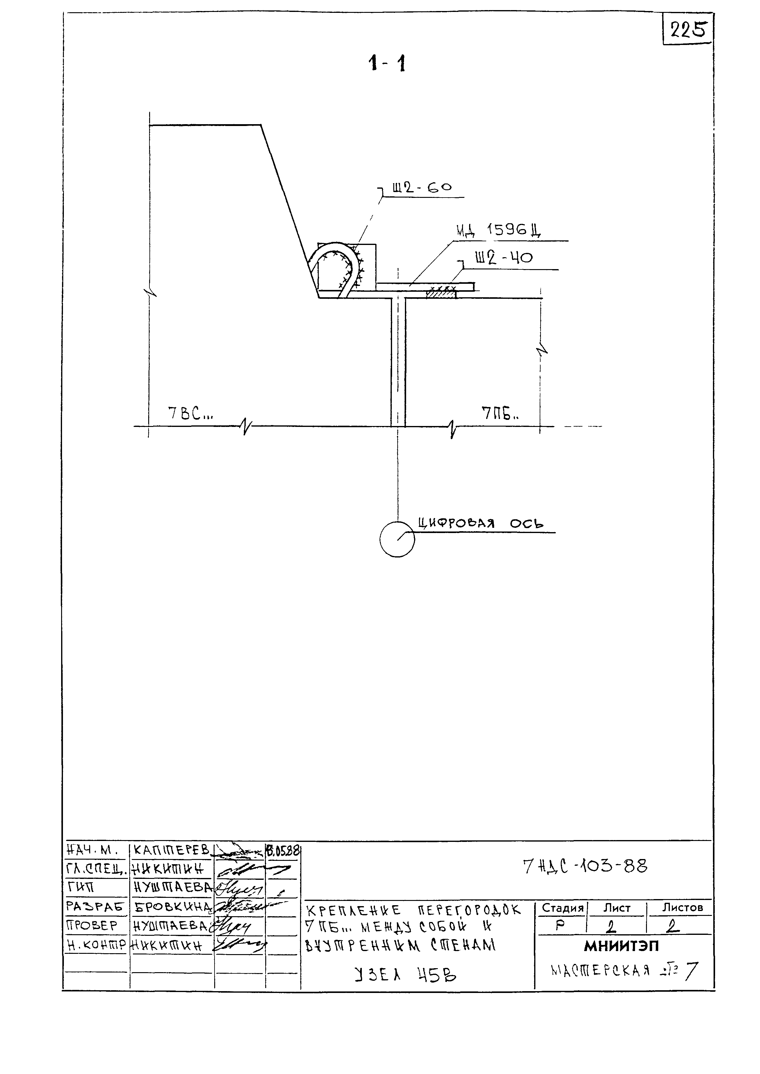
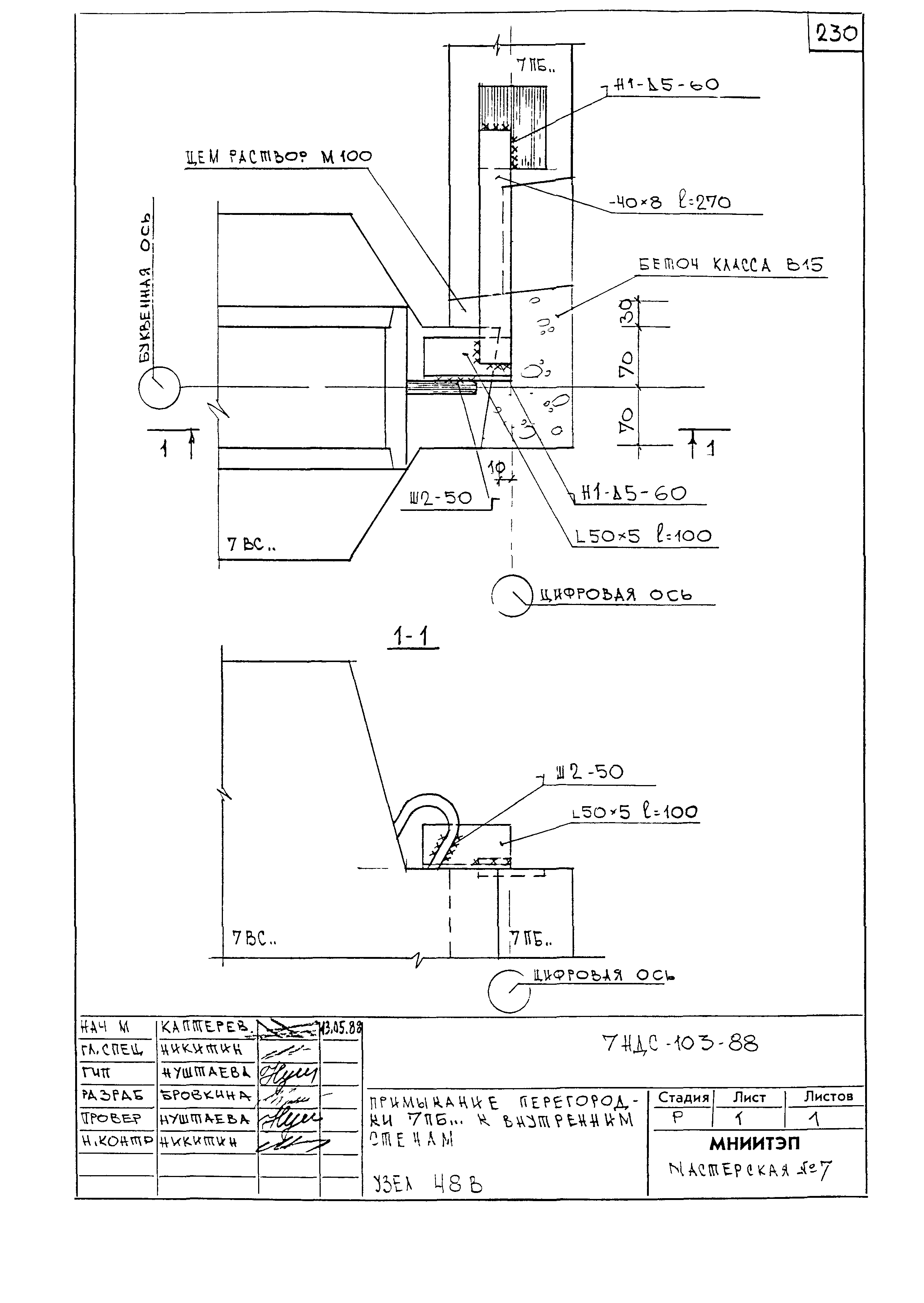
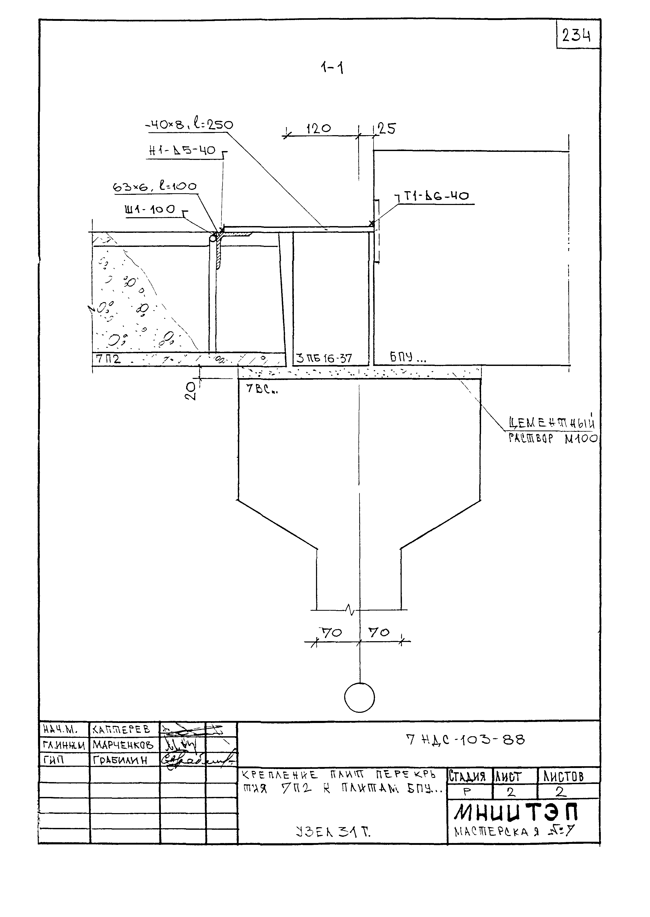
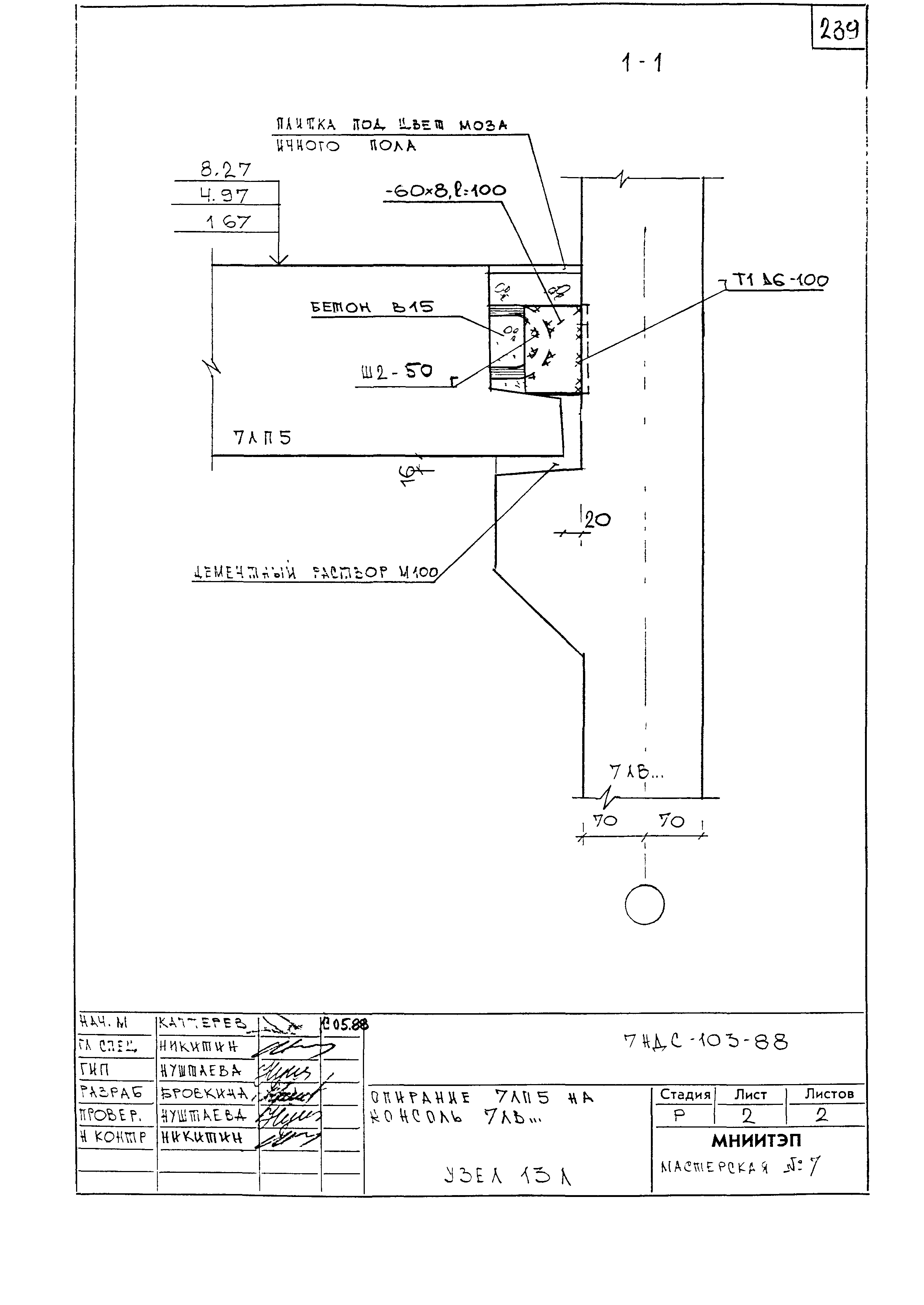
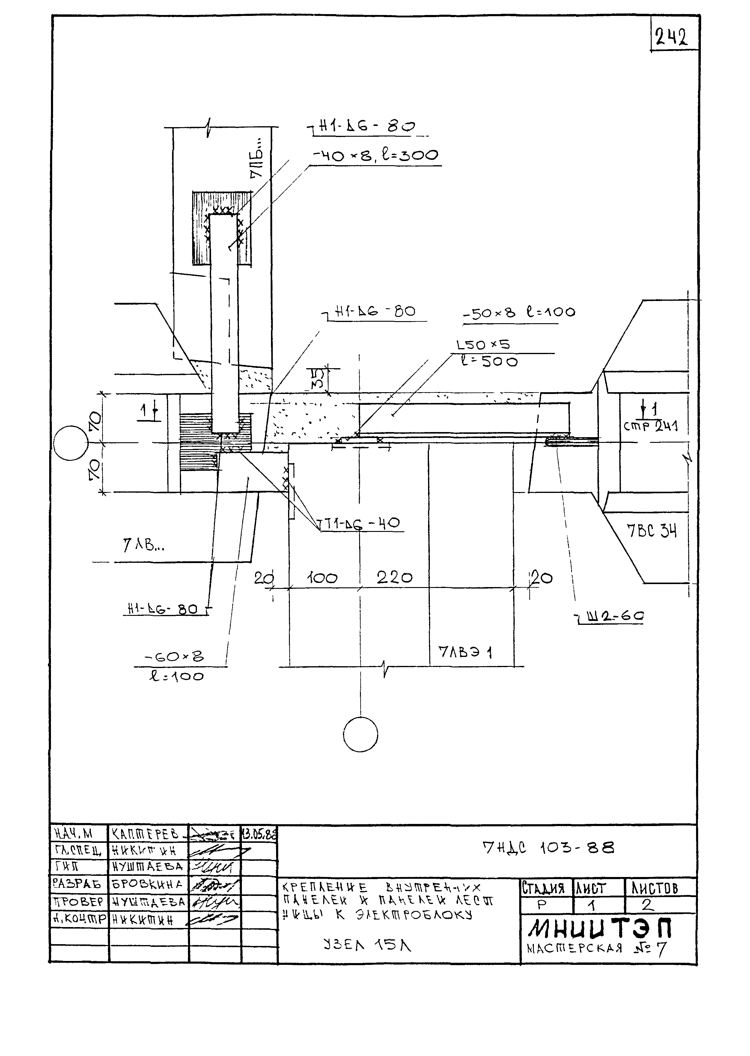
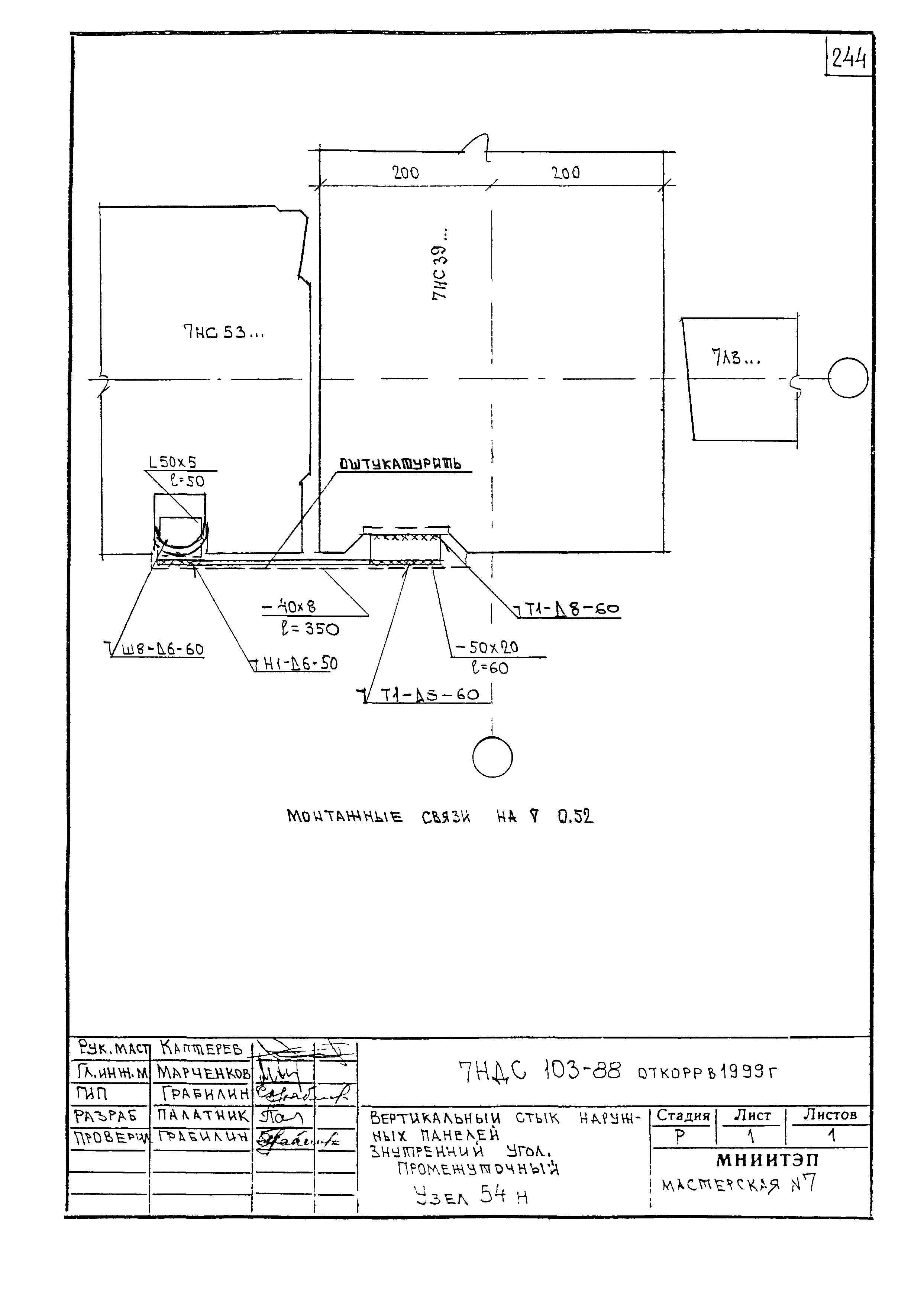
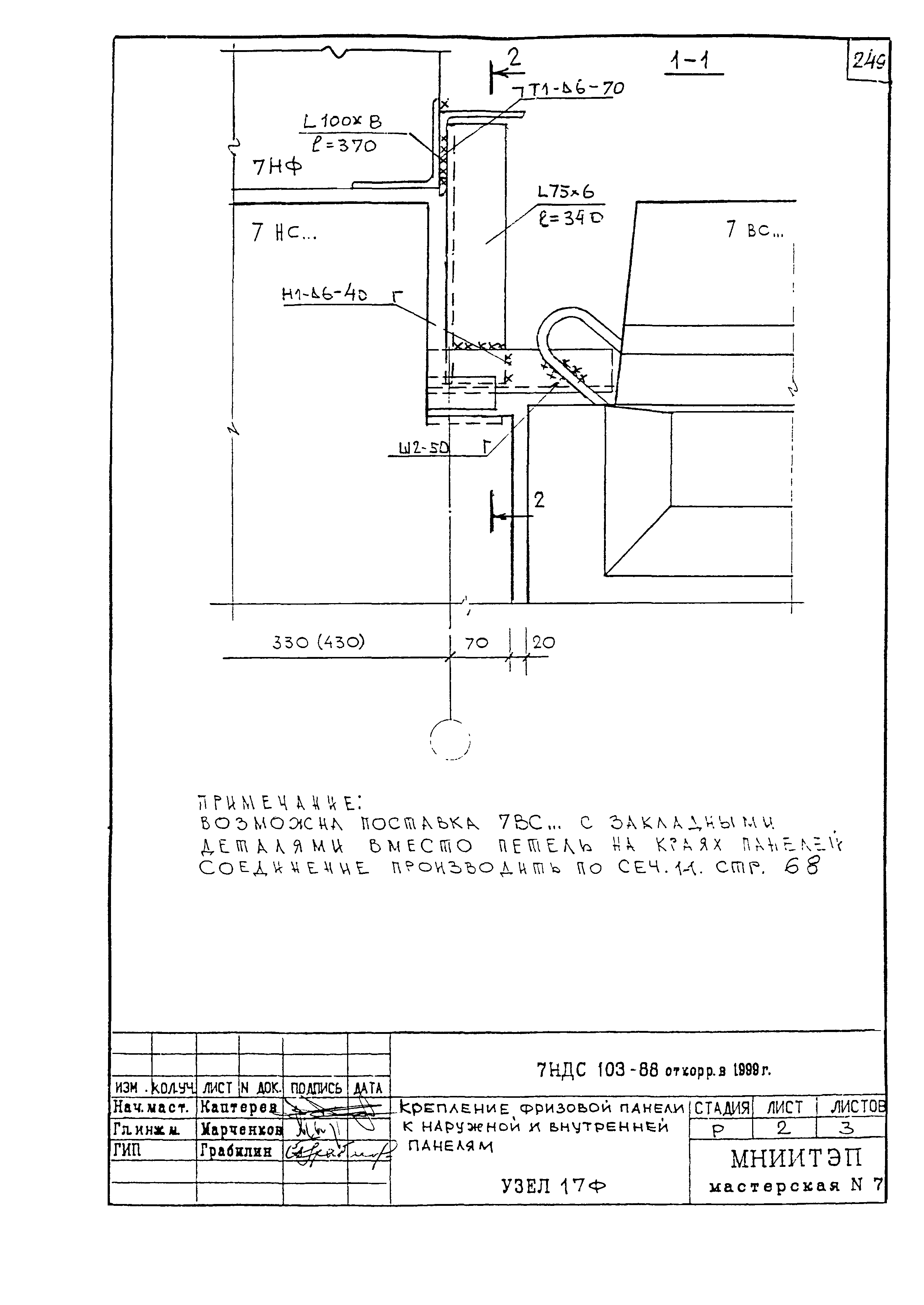
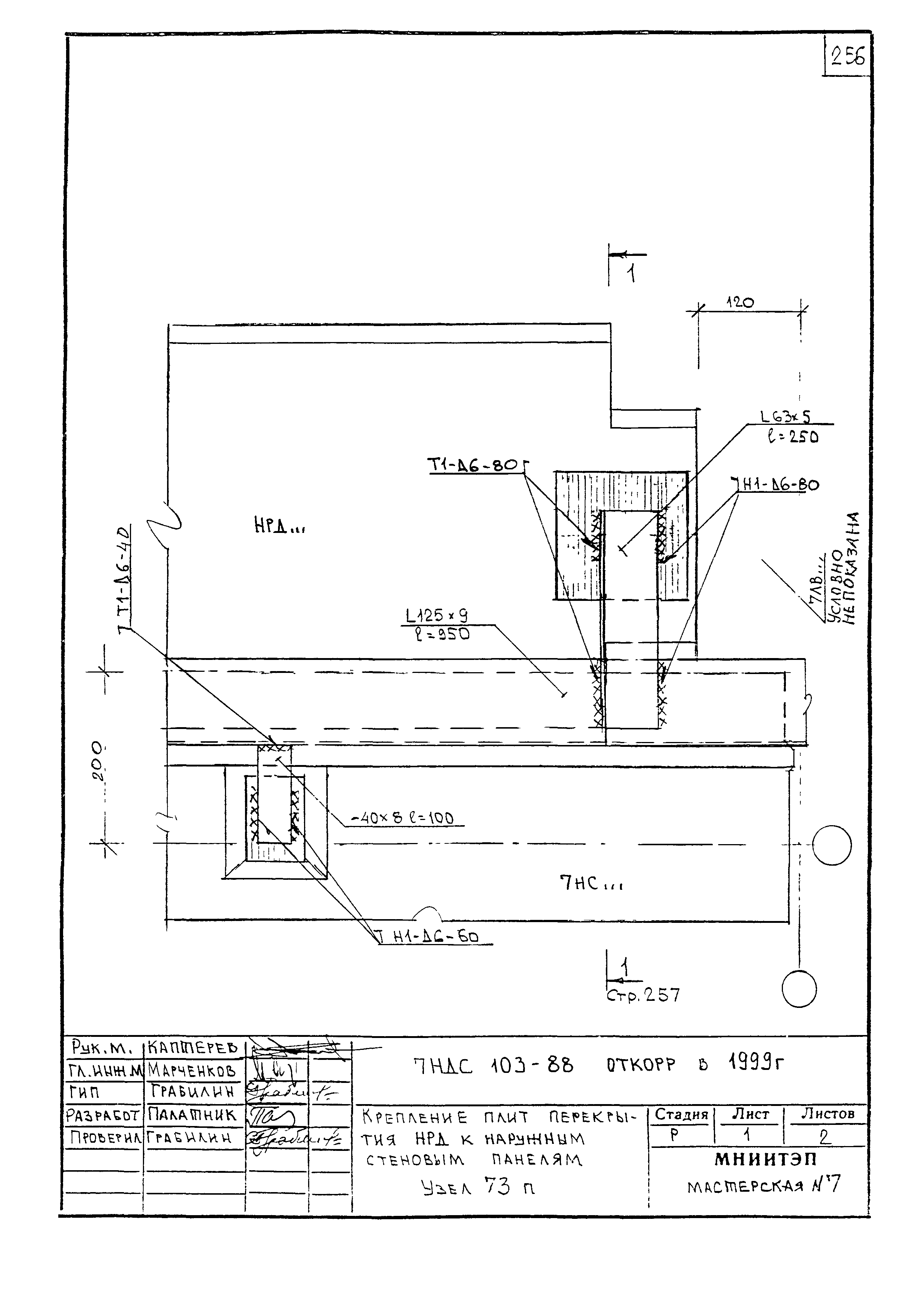
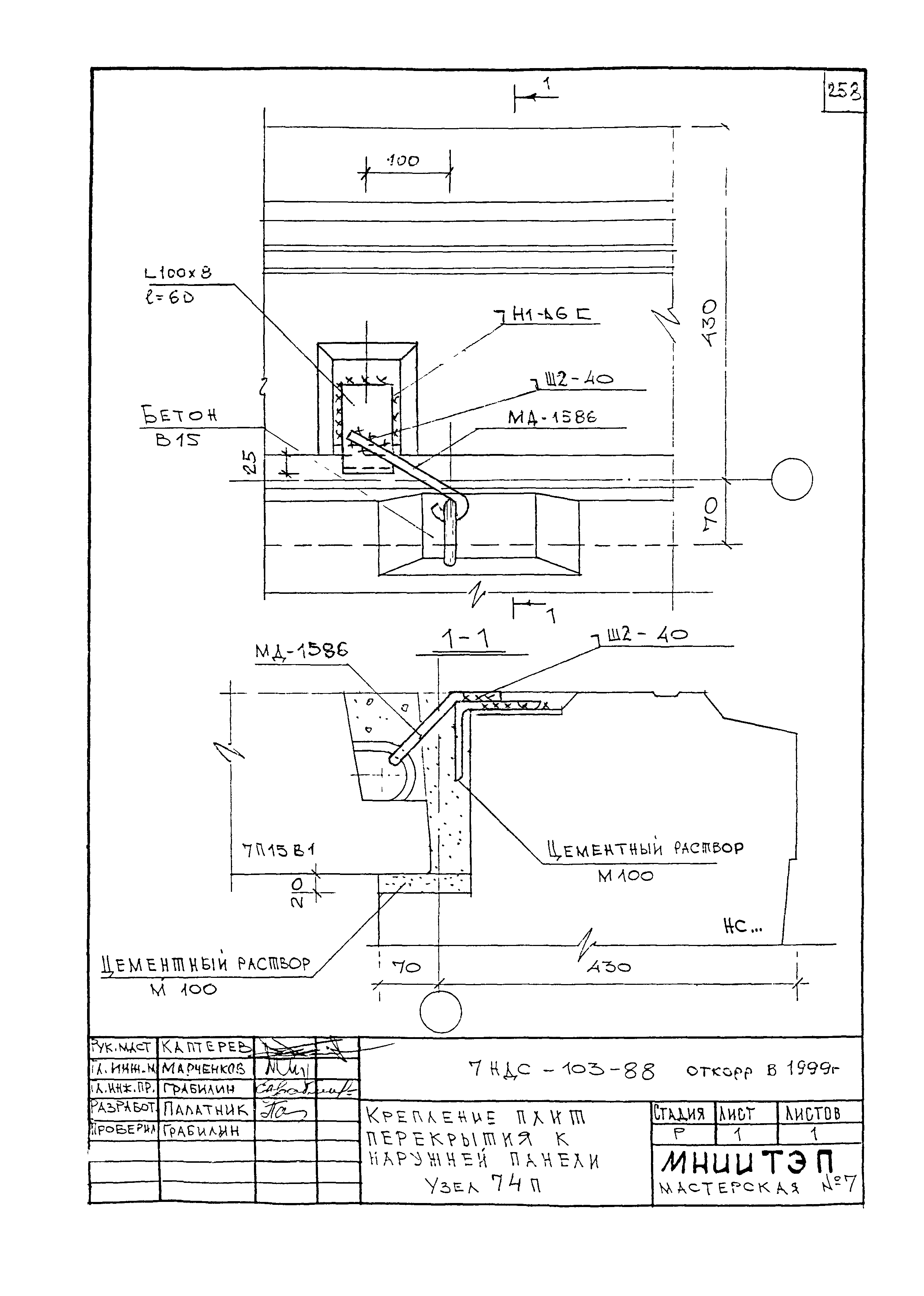
| Оглавление: | 7НДС-103-88 Обложка 7НДС-103-88 Титульный лист 7НДС-103-88 Содержание 7НДС-103-88 Пояснительная записка 7НДС-103-88 Вариантная замена герметизирующих материалов 7НДС-103-88 Спецификация монтажных связей. 7НДС-103-88 Перечень примененных и ссылочных документов 7НДС-103-88 Вертикальный стык рядовых панелей. Деталь герметизации. Узел 1НГ 7НДС-103-88 Вертикальный стык рядовых панелей. Деталь герметизации. Узел 2НГ 7НДС-103-88 Вертикальный стык рядовых панелей. Деталь герметизации. Узел 3НГ 7НДС-103-88 Вертикальный стык рядовых панелей. Деталь герметизации. Узел 4НГ 7НДС-103-88 Вертикальный стык рядовых панелей. Деталь герметизации. Узел 5НГ 7НДС-103-88 Вертикальный стык наружных рядовой и угловой панелей. Деталь герметизации. Узел 6НГ 7НДС-103-88 Вертикальный стык наружных панелей зала. Наружный угол. Деталь герметизации. Узел 7НГ 7НДС-103-88 Вертикальный стык наружных панелей галереи и примыкающего блока. Деталь герметизации. Узел 8НГ 7НДС-103-88 Вертикальный стык наружных панелей галереи и примыкающего блока. Деталь герметизации. Узел 9НГ 7НДС-103-88 Горизонтальный стык панелей 7НС... и 7НЦ... Деталь герметизации. Узел 10НГ 7НДС-103-88 Горизонтальный стык при ширине панелей 500 мм. Деталь герметизации. Узел 11НГ 7НДС-103-88 Горизонтальный стык при толщине панелей 400 мм. Деталь герметизации. Узел 12НГ 7НДС-103-88 Вертикальный стык наружных панелей. Наружный угол. Деталь герметизации. Узел 13НГ 7НДС-103-88 Вертикальный стык наружных панелей. Внутренний угол. Деталь герметизации. Узел 14НГ 7НДС-103-88 Вертикальный стык фризовых панелей. Деталь герметизации. Узел 1НГФ 7НДС-103-88 Вертикальный стык фризовых панелей. Деталь герметизации. Узел 2НГФ 7НДС-103-88 Вертикальный стык фризовых панелей. Деталь герметизаций. Узел 3НГФ 7НДС-103-88 Вертикальный стык фризовых панелей. Наружный угол. Деталь герметизации. Узел 4НГФ 7НДС-103-88 Вертикальный стык фризовых панелей. Наружный угол, деталь герметизации. Узел 5НГФ 7НДС-103-88 Горизонтальный стык наружных и фризовых панелей. Деталь герметизации. Узел 6НГФ 7НДС-103-88 Вертикальный стык фризовых панелей. Деталь герметизации. Узел 7НГФ 7НДС-103-88 Горизонтальный стык наружных и фризовых панелей. Деталь герметизации. Узел 8НГФ 7НДС-103-88 Вертикальный стык фризовых панелей галереи и примыкающего блока, деталь герметизации. Узел 9НГФ 7НДС-103-88 Вертикальный стык фризовых панелей. Наружный угол, деталь герметизации. Узел 10НГФ 7НДС-103-88 Вертикальный стык фризовых панелей галереи и примыкающего блока. Деталь герметизации. Узел 11НГФ 7НДС-103-88 Вертикальный стык наружных панелей. Узел 1Н 7НДС-103-88 Вертикальный стык наружных панелей. Промежуточный. Узел 2Н 7НДС-103-88 Вертикальный стык наружных и внутренних панелей. Узел 3Н 7НДС-103-88 Вертикальный стык наружных панелей и перегородки. Узел 4Н 7НДС-103-88 Вертикальный стык наружных, внутренних панелей и стен 7НК. Узел 5Н 7НДС-103-88 Крепление внутренних панелей 7ВС... и панелей галереи к наружным стенам. Узел 6Н 7НДС-103-88 Крепление панелей галереи к наружным панелям примыкающего блока. Узел 7Н 7НДС-103-88 Вертикальный стык угловой и рядовой наружных панелей. Узел 8Н 7НДС-103-88 Вертикальный стык угловой и рядовой наружных панелей. Промежуточный. Узел 9Н 7НДС-103-88 Вертикальный стык панелей галереи и наружных панелей примыкающего блока. Узел 10Н 7НДС-103-88 Крепление перегородок к наружным стенам. Узел 11Н 7НДС-103-88 Вертикальный стык наружных и внутренних панелей. Узел 12Н 7НДС-103-88 Вертикальный стык наружных и внутренних панелей. Узел 13Н 7НДС-103-88 Вертикальный стык наружных панелей зала. Наружный угол. Узел 14Н 7НДС-103-88 Вертикальный стык наружных панелей. Наружный угол. Промежуточный. Узел 15Н 7НДС-103-88 Вертикальный стык наружных панелей зала с внутренними на отм. 9.90. Узел 16Н 7НДС-103-88 Вертикальный стык наружных панелей зала с внутренними на отм. 6.60. Узел 17Н 7НДС-103-88 Крепление 7ВС31 к 7НС53 и 7НC1. Узел 18Н 7НДС-103-88 Крепление 7ПБ4 к 7HС56. Узел 19Н 7НДС-103-88 Крепление панелей 7НК... к наружным панелям. Узел 20Н 7НДС-103-88 Вертикальный стык наружных панелей. Наружный угол. Узел 21Н 7НДС-103-88 Вертикальный стык наружных панелей. Наружный угол. Промежуточный. Узел 22Н 7НДС-103-88 Вертикальный стык наружных панелей. Внутренний угол. Узел 23Н 7НДС-103-88 Вертикальный стык наружных панелей. Внутренний угол. Промежуточный. Узел 24Н 7НДС-103-88 Вертикальный стык наружных панелей. Наружный угол. Узел 25Н 7НДС-103-88 Вертикальный стык наружных панелей. Наружный угол. Промежуточный. Узел 26Н 7НДС-103-88 Вертикальный стык наружных панелей. Внутренний угол. Промежуточный. Узел 27Н 7НДС-103-88 Вертикальный стык наружных панелей. Внутренние угол. Узел 28Н 7НДС-103-88 Вертикальный стык наружных панелей на отм. 3.30. Внутренний угол. Узел 29Н 7НДС-103-88 Вертикальный стык наружных панелей на отм. 6.60. Внутренний угол. Узел 30Н 7НДС-103-88 Вертикальный стык наружных панелей на отм. 9.90. Внутренний угол. Узел 31Н 7НДС-103-88 Вертикальный стык наружных панелей электроблока. Узел 32Н 7НДС-103-88 Вертикальный стык наружных и внутренних панелей лестницы с осевой привязкой. Узел 33Н 7НДС-103-88 Крепление наружных стен 7HС... к колонне. Узел 34Н 7НДС-103-88 Крепление внутренних стен 7ВС... к колонне. Узел 35Н 7НДС-103-88 Крепление балки 7Б1 к колонне. Узел 36Н 7НДС-103-88 Крепление балок 7Б2 между собой и к колонне. Узел 37Н 7НДС-103-88 Крепление балок 7Б1 между собой. Узел 38Н 7НДС-103-88 Вертикальный стык рядовых фризовых панелей. Узел 1Ф 7НДС-103-88 Вертикальный стык рядовой и угловой фризовых панелей. Узел 2Ф 7НДС-103-88 Вертикальный стык рядовых фризовых панелей. Узел 3Ф 7НДС-103-88 Вертикальный стык рядовой и угловой фризовых панелей зала. Узел 4Ф 7НДС-103-88 Крепление фризовых панелей галереи к наружным панелям примыкающего блока. Узел 5Ф 7НДС-103-88 Крепление фризовых панелей к панели перекрытия. Узел 6Ф 7НДС-103-88 Крепление фризовых панелей к панели перекрытия. Узел 7Ф 7НДС-103-88 Крепление фризовых панелей к БПУ12. Узел 8Ф 7НДС-103-88 Крепление фризовых панелей к БПУ12. Узел 9Ф 7НДС-103-88 Крепление фризовых панелей к панели перекрытия. Узел 10Ф 7НДС-103-88 Крепление фризовых панелей к панели перекрытия НРФ.... Узел 11Ф 7НДС-103-88 Крепление фризовых панелей галереи к наружным панелям примыкающего блока. Узел 12Ф 7НДС-103-88 Крепление фризовой панелей к панели перекрытия. Узел 13Ф 7НДС-103-88 Вертикальный стык внутренних панелей. Узел 1В 7НДС-103-88 Вертикальный стык внутренних панелей. Узел 4В 7НДС-103-88 Опирание перегородок 7ПБ... на плиты перекрытия. Узел 5В 7НДС-103-88 Вертикальный стык внутренних панелей и перегородок 7ПБ.... Узел 6В 7НДС-103-88 Вертикальный стык внутренних панелей и перегородок 7ПБ.... Узел 6В Вариант 1 7НДС-103-88 Вертикальный стык внутренних панелей и перегородок 7ПБ.... Узел 6В Вариант 2 7НДС-103-88 Опирание панелей перекрытия на консоли внутренних стен. Узел 7В 7НДС-103-88 Опирание 7П19, 7П20 на панель 7ВС9. Узел 8В 7НДС-103-88 Вертикальный стык внутренних панелей. Узел 10В 7НДС-103-88 Вертикальный стык внутренних панелей. Узел 10В Вариант 1 7НДС-103-88 Вертикальный стык внутренних панелей. Узел 10В Вариант 2 7НДС-103-88 Крепление перегородок 7ПБ... к внутренним панелям. Узел 12В 7НДС-103-88 Крепление перегородок 7ПБ... к внутренним панелям. Узел 12В Вариант 1 7НДС-103-88 Крепление перегородок 7ПБ... к внутренним панелям. Узел 12В Вариант 2 7НДС-103-88 Вертикальный стык внутренних панелей. Узел 15В 7НДС-103-88 Вертикальный стык внутренних панелей. Узел 15В Вариант 1 7НДС-103-88 Крепление 7ВС9 к лестничной панели. Узел 16В 7НДС-103-88 Крепление перегородок 7ПБ... между собой. Узел 18В 7НДС-103-88 Примыкание перегородки 7ПБ... к внутренним стенам. Узел 19В 7НДС-103-88 Крепление перегородок между собой. Узел 22В 7НДС-103-88 Вертикальный стык внутренних панелей. Узел 23В, 23В Вариант 1, 23В Вариант 2 7НДС-103-88 Вертикальный стык внутренних панелей. Узел 24В, 24В Вариант 1, 24В Вариант 2 7НДС-103-88 Вертикальный стык внутренних панелей. Узел 25В, 25В Вариант 1, 25В Вариант 2 7НДС-103-88 Вертикальный стык внутренних панелей. Узел 27В, 27В Вариант 1, 27В Вариант 2 7НДС-103-88 Крепление перегородок к внутренним панелям. Узел 28В 7НДС-103-88 Крепление панелей 7ВC31, 7ВС16 между собой. Узел 29В 7НДС-103-88 Вертикальный стык внутренних панелей и перегородки. Узел 32В 7НДС-103-88 Крепление 7ПБ18 и 7ПБ30 между собой. Узел 33В 7НДС-103-88 Крепление 7НК... между собой. Узел 34В 7НДС-103-88 Вертикальную стык панелей вентканала и перегородок. Узел 35В 7НДС-103-88 Крепление перегородок к 7ЛВ.... Узел 36В 7НДС-103-88 Крепление перегородок между собой. Узел 37В 7НДС-103-88 Опирание приточного блока 7БП1 на перекрытие над подвалом. Узел 38В 7НДС-103-88 Опирание приточного блока 7БП1 на междуэтажное перекрытие. Узел 39В 7НДС-103-88 Установка заглушки на вентиляционный блок 7БВ1. Узел 40В 7НДС-103-88 Опирание вентиляционного с блока на перекрытие. Узел 41В 7НДС-103-88 Крепление перегородок 7ПБ... к внутренним панелям. Узел 42В 7НДС-103-88 Крепление перегородок 7ПБ... между собой. Узел 43В 7НДС-103-88 Крепление перегородок 7ПБ... к внутренним стенам. Узел 44В 7НДС-103-88 Крепление перегородок 7ПБ... между собой и внутренним стенам. Узел 45В 7НДС-103-88 Опирание перегородок 7ПБ17-1 на плиты перекрытия 7П4(7П32). Узел 46В 7НДС-103-88 Опирание перегородок 7ПБ5-1 на плиты перекрытия 7П2. Узел 47В 7НДС-103-88 Примыкание перегородки 7ПБ... к внутренним стенам. Узел 48В 7НДС-103-88 Вертикальный стык внутренних панелей. Узел 49В 7НДС-103-88 Крепление плит перекрытия 7П2, 7П1 к несущим наружным панелям. Узел 1П 7НДС-103-88 Крепление плит перекрытия 7П1 к торцевым наружным панелям. Узел 2П 7НДС-103-88 Крепление плит перекрытия 7П7, 7П12 к наружным торцевым стенал. Узел 3П 7НДС-103-88 Крепление плит перекрытия между собой и к внутренним стенам. Узел 4П 7НДС-103-88 Крепление плит перекрытия к наружным стенам. Узел 5П 7НДС-103-88 Крепление плит перекрытия 7П1, 7П11 к 7НС67. Узел 6П 7НДС-103-88 Крепление плит перекрытия 7П19, 7П20 между собой. Узел 7П 7НДС-103-88 Крепление плит перекрытия 7П6 к наружным панелям. Узел 8П 7НДС-103-88 Крепление плит покрытия БПУ-12... к наружным панелям зала. Узел 9П 7НДС-103-88 Крепление плит покрытия БПУ-12 ... к наружным панелям зала. Узел 10П 7НДС-103-88 Крепление плит покрытия БПУ-12... к наружным панелям зала. Узел 11П 7НДС-103-88 Крепление плит покрытия БПУ-12... между собой. Узел 12П 7НДС-103-88 Крепление плит перекрытия 7П1 к электроблоку. Узел 13П 7НДС-103-88 Крепление плит перекрытия к наружной несущей панели. Узел 14П 7НДС-103-88 Крепление плит перекрытия к наружной несущей панели. Узел 15П 7НДС-103-88 Крепление плит перекрытия к внутренним стенам. Узел 16П 7НДС-103-88 Крепление плит перекрытия к внутренним стенам. Узел 17П 7НДС-103-88 Крепление плит перекрытия к внутренним стенам. Узел 18П 7НДС-103-88 Крепление плит перекрытия между собой. Узел 19П 7НДС-103-88 Крепление плит перекрытия к внутренним стенам. Узел 20П 7НДС-103-88 Крепление плит перекрытия к внутренним стенам. Узел 21П 7НДС-103-88 Крепление плит перекрытия между собой. Узел 22П 7НДС-103-88 Крепление плит перекрытия к наружной панели. Узел 23П 7НДС-103-88 Крепление плит БПУ-12... к внутренним панелям. Узел 24П 7НДС-103-88 Крепление плит БПУ-12 к внутренним панелям. Узел 25П 7НДС-103-88 Крепление плит БПУ12... и 7П6 между собой. Узел 26П 7НДС-103-88 Узел установки опорных уголков на консоль 7BC10. Узел 27П 7НДС-103-88 Узел установки опорных уголков на консоль 7ВС10. Узел 28П 7НДС-103-88 Узел установки опорных уголков на консоль 7ВС53. Узел 29П 7НДС-103-88 Узел установки опорных уголков на консоль 7ВС53. Узел 30П 7НДС-103-88 Крепление плиты перекрытия 7П2 к плитам. Узел 31П 7НДС-103-88 Опирание лестничного марша 7ЛM... на лестничные площадки. Узел 1Л 7НДС-103-88 Опирание лестничного марша 7ЛM... на лестничные площадки. Узел 2Л 7НДС-103-88 Крепление стопки ограждения к лестничным маршам. Узел 3Л 7НДС-103-88 Опирание 7ЛП2 на консоль 7ЛВ.... Узел 4Л 7НДС-103-88 Крепление панели 7ЛП1 к электроблоку. Узел 5Л 7НДС-103-88 Установка стремянки МП863. Узел 6Л 7НДС-103-88 Крепление МП-863 и МП-853 к 7ПКУ8. Узел 7Л 7НДС-103-88 Крепление МП-863 и МП-853 к лестничной площадки. Узел 8Л 7НДС-103-88 Крепление МП-853 к панели 7ЛВ.... Узел 9Л 7НДС-103-88 Крепление ПМ-33п к МП-853. Узел 10Л 7НДС-103-88 Крепление внутренних панелей и панелей лестницы к электроблоку. Узел 11Л 7НДС-103-88 Крепление внутренних панелей, панелей лестницы к электроблоку и опирание 7ЛП4 на консоль 7ЛВ.... Узел 12Л 7НДС-103-88 Опирание 7ЛП5 на консоль 7ЛВ.... Узел 13Л 7НДС-103-88 Крепление внутренних панелей и панелей лестницы к электроблоку. Узел 14Л 7НДС-103-88 Крепление внутренних панелей и панелей лестницы к электроблоку. Узел 15Л 7НДС-103-88 Условные графические обозначения сварных швов по ГОСТ 2.312-72 7НДС-103-88 Информационная карта 7НДС-103-88 Вертикальный стык наружных панелей. Узел 53Н 7НДС-103-88 Вертикальный стык наружных панелей. Внутренний угол. Промежуточный. Узел 54Н 7НДС-103-88 Вертикальный стык наружных панелей. Промежуточный. Узел 55Н 7НДС-103-88 Стык фризовых панелей между собой. Узел 14Ф,15Ф 7НДС-103-88 Крепление фризовой панели к наружной панели. Узел 16Ф 7НДС-103-88 Крепление фризовой панели к наружной и внутренней панели. Узел 17Ф 7НДС-103-88 Крепление плит перекрытия 7П2, 7П1 к несущим наружным панелям. Узел 70П 7НДС-103-88 Крепление плит покрытия БПУ-12 к наружным панелям зала. Узел 71П 7НДС-103-88 Крепление плит перекрытия к наружным стенам. Узел 72П 7НДС-103-88 Крепление плит перекрытия НРД к наружным стеновым панелям. Узел 73П 7НДС-103-88 Крепление плит перекрытия НРД к наружной стеновой панели. Узел 74П |
| Разработан: | МНИИТЭП |
| Утверждён: | 13.05.1988 МНИИТЭП (MNIITEP 163) |








































































































































































































































































