Скачать Серия 1.426.2-7 Выпуск 2. Балки пролетом 6 м разрезные под ручные краны. Чертежи КМДата актуализации: 01.01.2021
|
| Обозначение: | Серия 1.426.2-7 |
| Обозначение англ: | Series 1.426.2-7 |
| Статус: | действует |
| Название рус.: | Выпуск 2. Балки пролетом 6 м разрезные под ручные краны. Чертежи КМ |
| Дата добавления в базу: | 01.09.2013 |
| Дата актуализации: | 01.01.2021 |
| Дата введения: | 01.04.1989 |
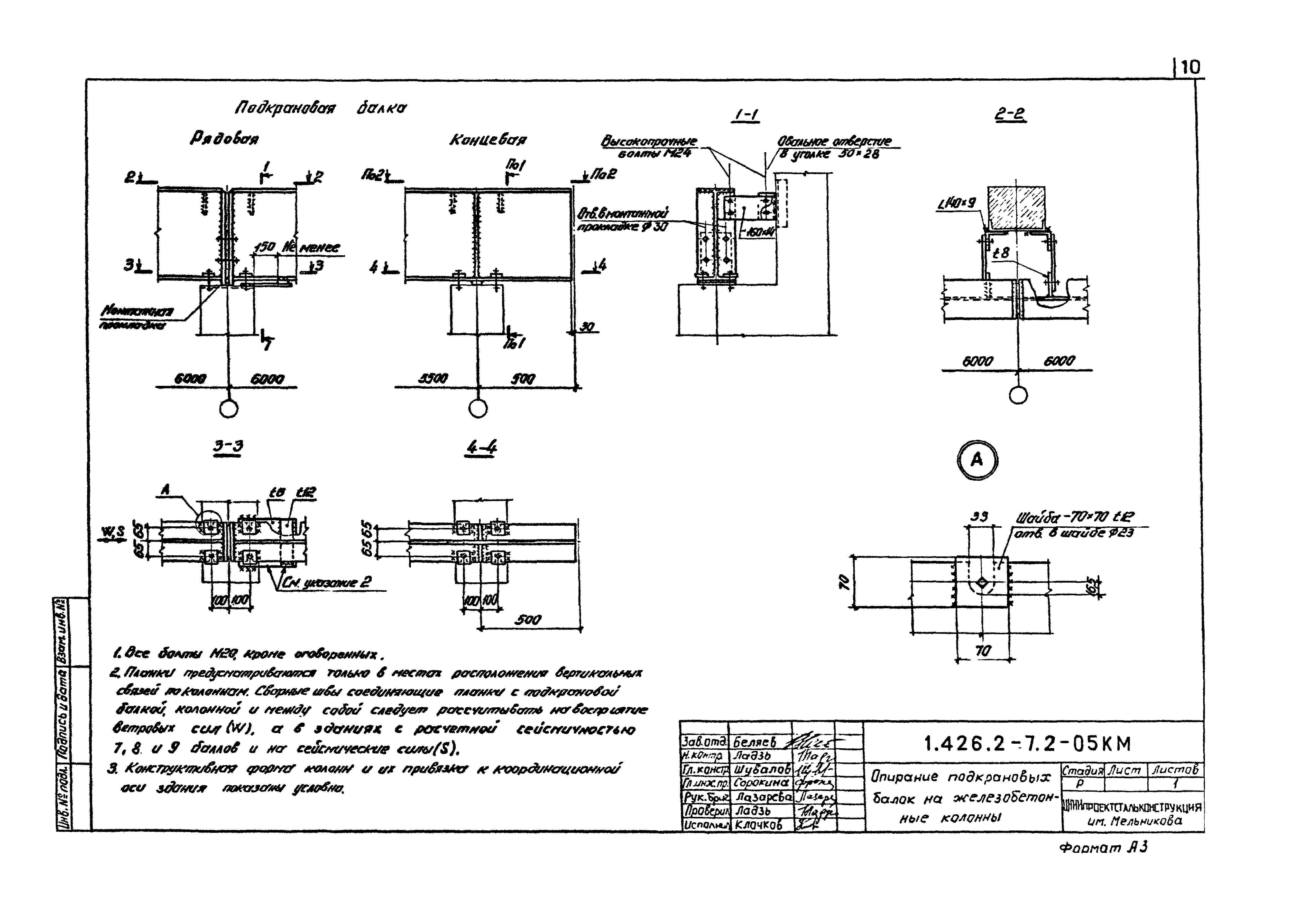
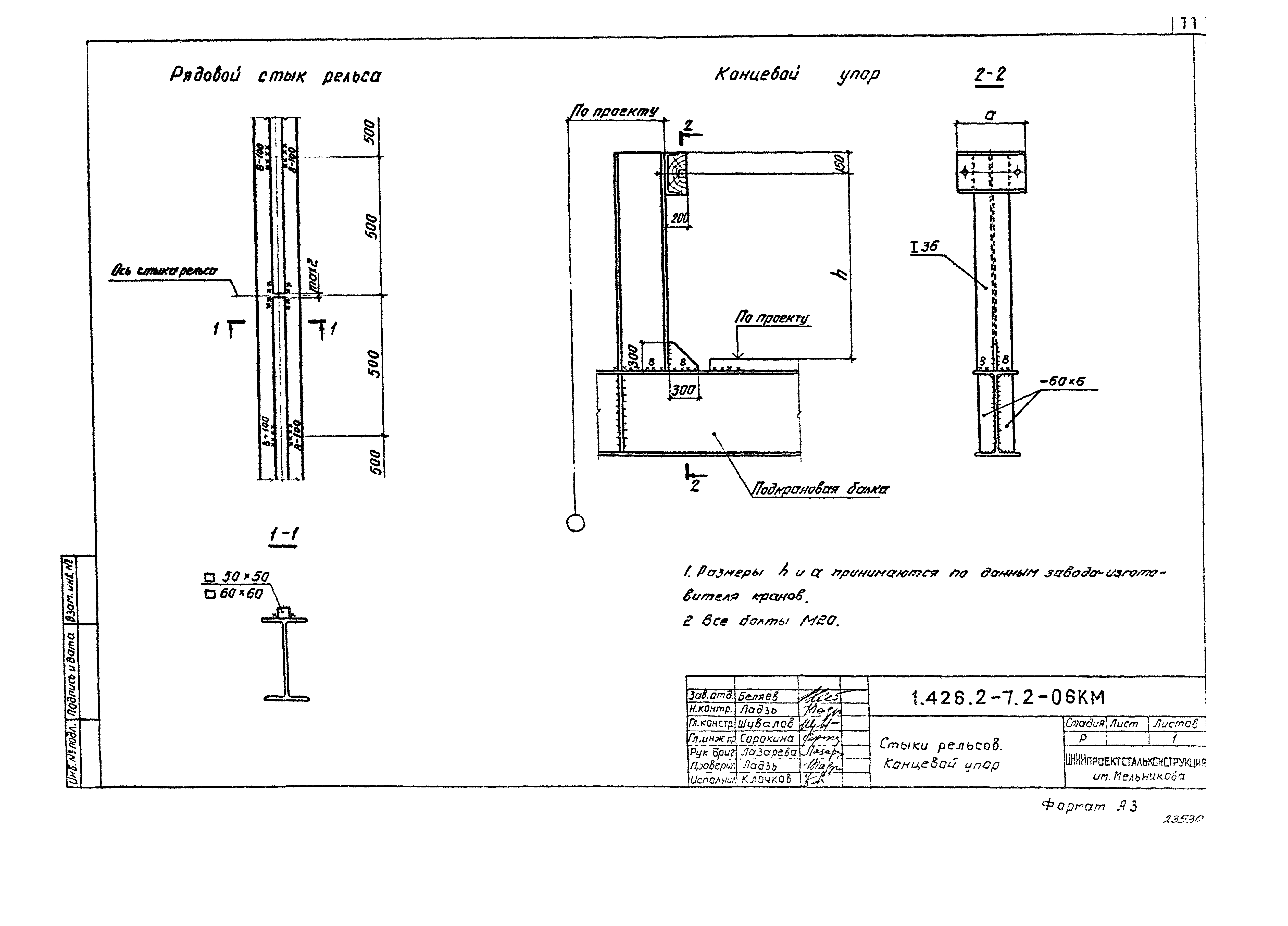
| Оглавление: | 1.426.2-7.2-00ПЗКМ Пояснительная записка 1.426.2-7.2-01КМ Таблица дня выбора марок подкрановых балок. Крановые нагрузки 1.426.2-7.2-02КМ Общий вид подкрановой балки 1.426.2-7.2-03КМ Детали подкрановых балок. Узлы 1,2 1.426.2-7.2-04КМ Опирание подкрановых балок на стальные колонны 1.426.2-7.2-05КМ Опирание подкрановых балок на железобетонные колонны 1.426.2-7.2-06КМ Стыки рельсов. Концевой упор 1.426.2-7.2-07КМ Спецификация стали |
| Разработан: | ЦНИИПСК им. Мельникова ФГУП Уралтиппроект |
| Утверждён: | 11.07.1988 Госстрой СССР (Государственный комитет Совета Министров СССР по делам строительства) (USSR Gosstroy 6/6-1380) |
| Издан: | ЦИТП Госстроя СССР (CITP, Gosstroy (USSR) 1988 г. ) |
| Заменяет собой: |













