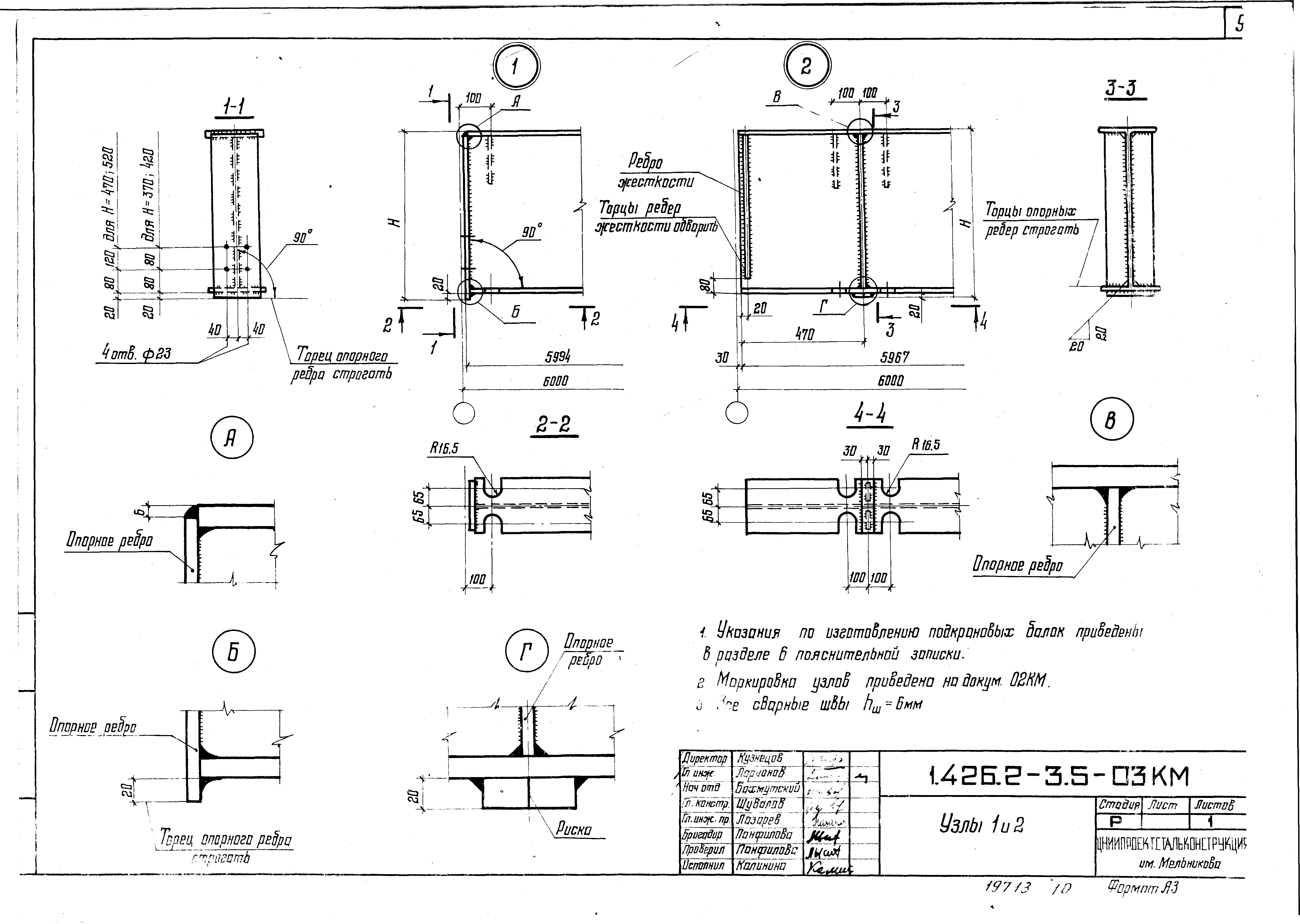
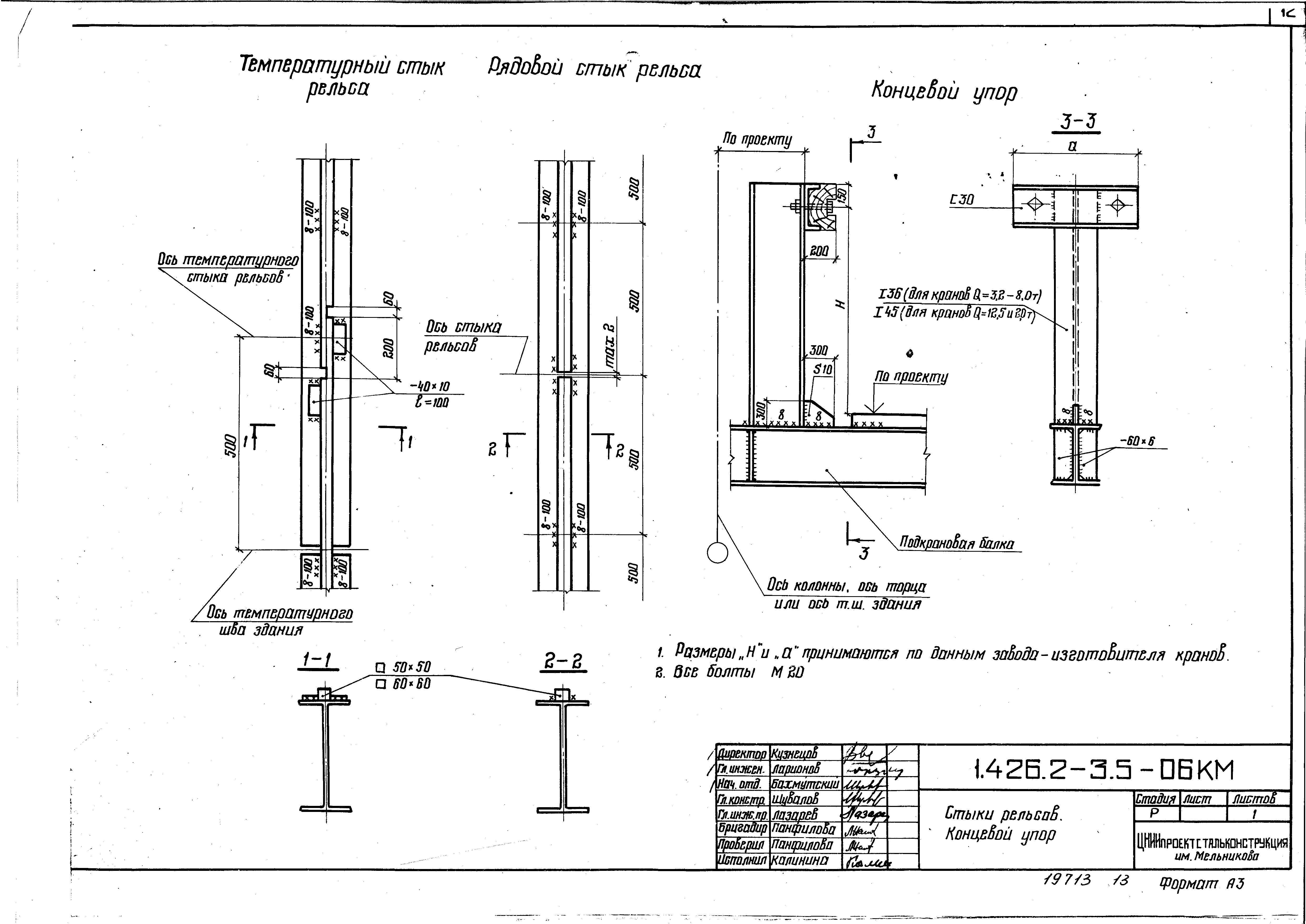
Скачать Серия 1.426.2-3 Выпуск 5. Разрезные подкрановые балки пролетом 6 м под ручные мостовые краны. Чертежи КМДата актуализации: 01.01.2021
|
| Обозначение: | Серия 1.426.2-3 |
| Обозначение англ: | Series 1.426.2-3 |
| Статус: | не действует |
| Название рус.: | Выпуск 5. Разрезные подкрановые балки пролетом 6 м под ручные мостовые краны. Чертежи КМ |
| Дата добавления в базу: | 01.09.2013 |
| Дата актуализации: | 01.01.2021 |
| Дата введения: | 01.11.1984 |
| Дата окончания срока действия: | 01.03.1989 |
| Разработан: | ЦНИИпроектстальконструкция Госстроя |
| Утверждён: | 09.08.1984 Госстрой СССР (Государственный комитет Совета Министров СССР по делам строительства) (USSR Gosstroy 131) |













