Скачать Серия 1.090.1-7с Выпуск 0-1. Указания по применению изделийДата актуализации: 01.01.2021
|
| Обозначение: | Серия 1.090.1-7с |
| Обозначение англ: | Series 1.090.1-7с |
| Статус: | не определен законодательством |
| Название рус.: | Выпуск 0-1. Указания по применению изделий |
| Дата добавления в базу: | 01.09.2013 |
| Дата актуализации: | 01.01.2021 |
| Дата введения: | 01.03.1991 |
| Дата окончания срока действия: | 30.06.2003 |
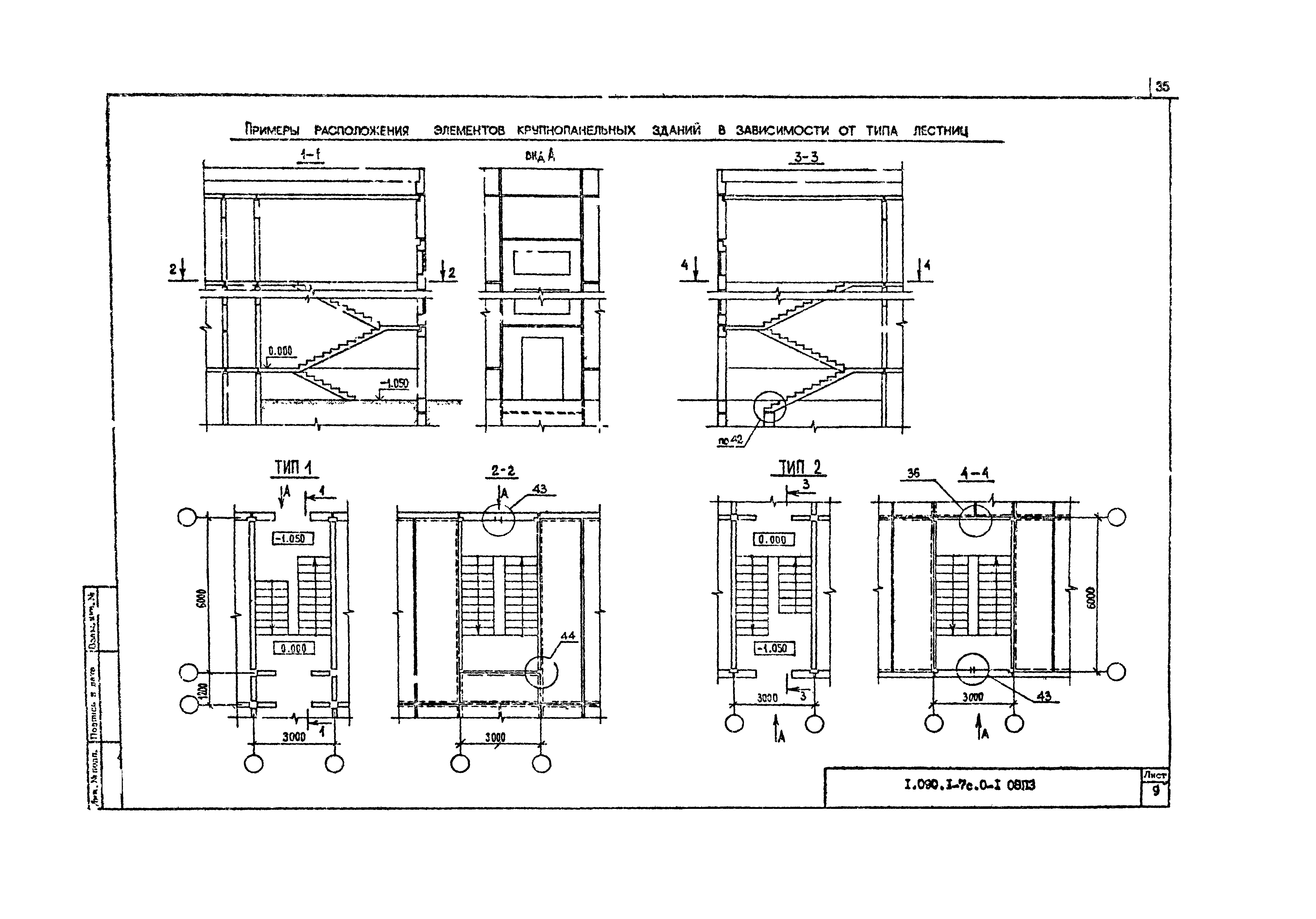
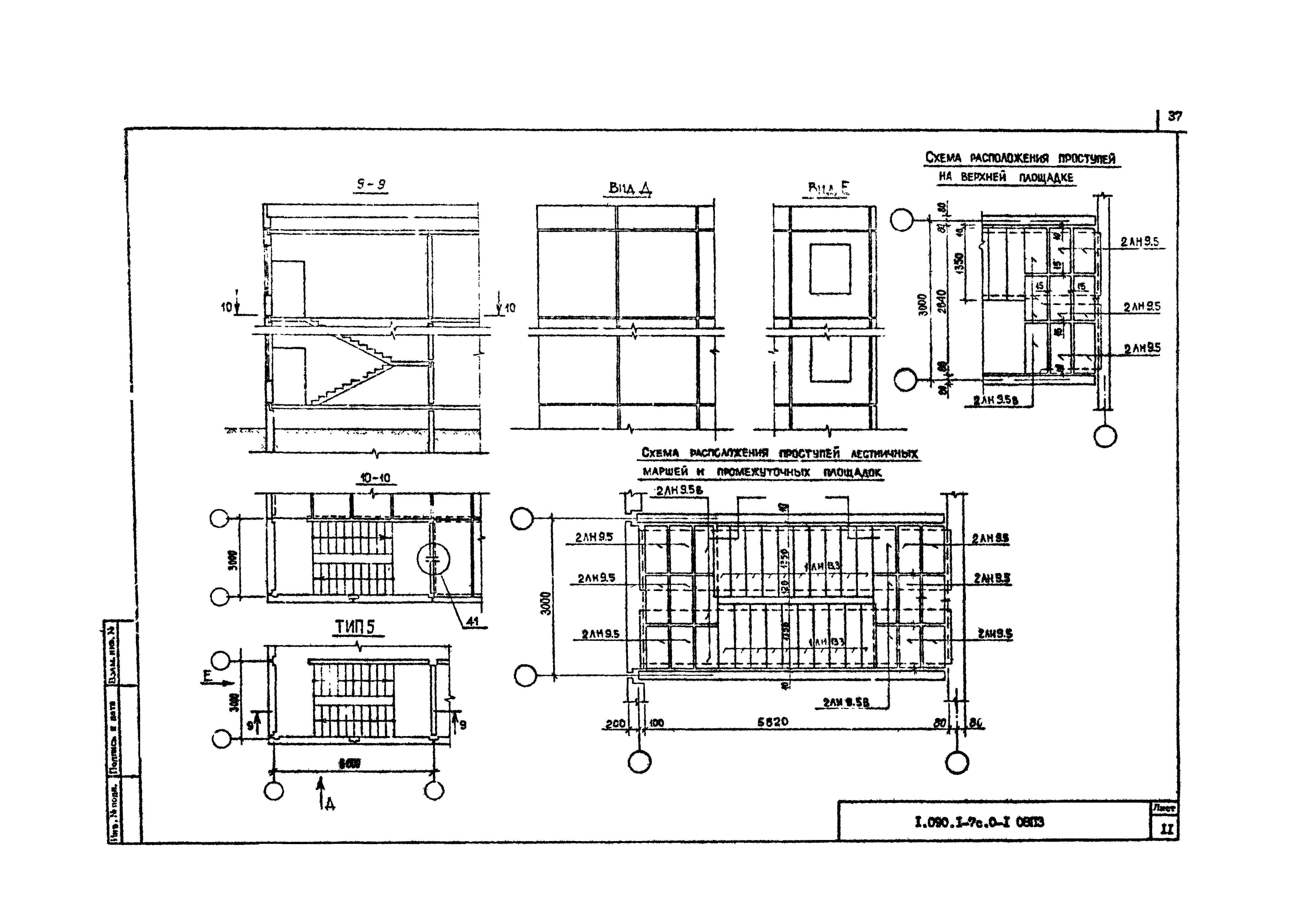
| Оглавление: | 1.090.1-7С.0-1-01ПЗ Общая часть 1.090.1-7С.0-1-02ПЗ Конструктивные решения 1.090.1-7С.0-1-03ПЗ Номенклатура изделий серий 1.090.1-7С.0-1-04ПЗ Расчет элементов зданий на вертикальную и сейсмическую нагрузки 1.090.1-7С.0-1-05ПЗ Графики несущей способности наружных и внутренних стен при расчете на вертикальные нагрузки 1.090.1-7С.0-1-06ПЗ Расчет несущих систем крупнопанельных зданий на совместное действие горизонтальных и вертикальных нагрузок 1.090.1-7С.0-1-07ПЗ Компоновка крупнопанельных общественных зданий 1.090.1-7С.0-1-08ПЗ Примеры схема расположения панелей наружных и внутренних стен перекрытий и лестничных клеток 1.090.1-7С.0-1-09ПЗ Схемы расположения элементов лестничной клетки со схемой установки ограждения 1.090.1-7С.0-1-10ПЗ Схемы расположения лестничных маршей и верхней лестничной площадки при ширине проступи 1350 мм 1.090.1-7С.0-1-11ПЗ Указания по способу выполнения электрических проводок 1.090.1-7С.0-1-12ПЗ Принципы архитектурных разработки вариантов фасадов крупнопанельных общественных зданий |
| Разработан: | ТбилЗНИИЭП |
| Утверждён: | 20.11.1990 Госкомархитектура (209) |
| Заменяет собой: |
|











































