Скачать Серия 1.090.1-2с Выпуск 0-3. Указания по применению изделий с наружными стенами однослойными толщиной 400 мм. Ведомость расхода материалов. Рабочие чертежиДата актуализации: 01.01.2021
|
| Обозначение: | Серия 1.090.1-2с |
| Обозначение англ: | Series 1.090.1-2с |
| Статус: | не действует |
| Название рус.: | Выпуск 0-3. Указания по применению изделий с наружными стенами однослойными толщиной 400 мм. Ведомость расхода материалов. Рабочие чертежи |
| Дата добавления в базу: | 01.09.2013 |
| Дата актуализации: | 01.01.2021 |
| Дата введения: | 01.03.1986 |
| Дата окончания срока действия: | 01.08.1991 |
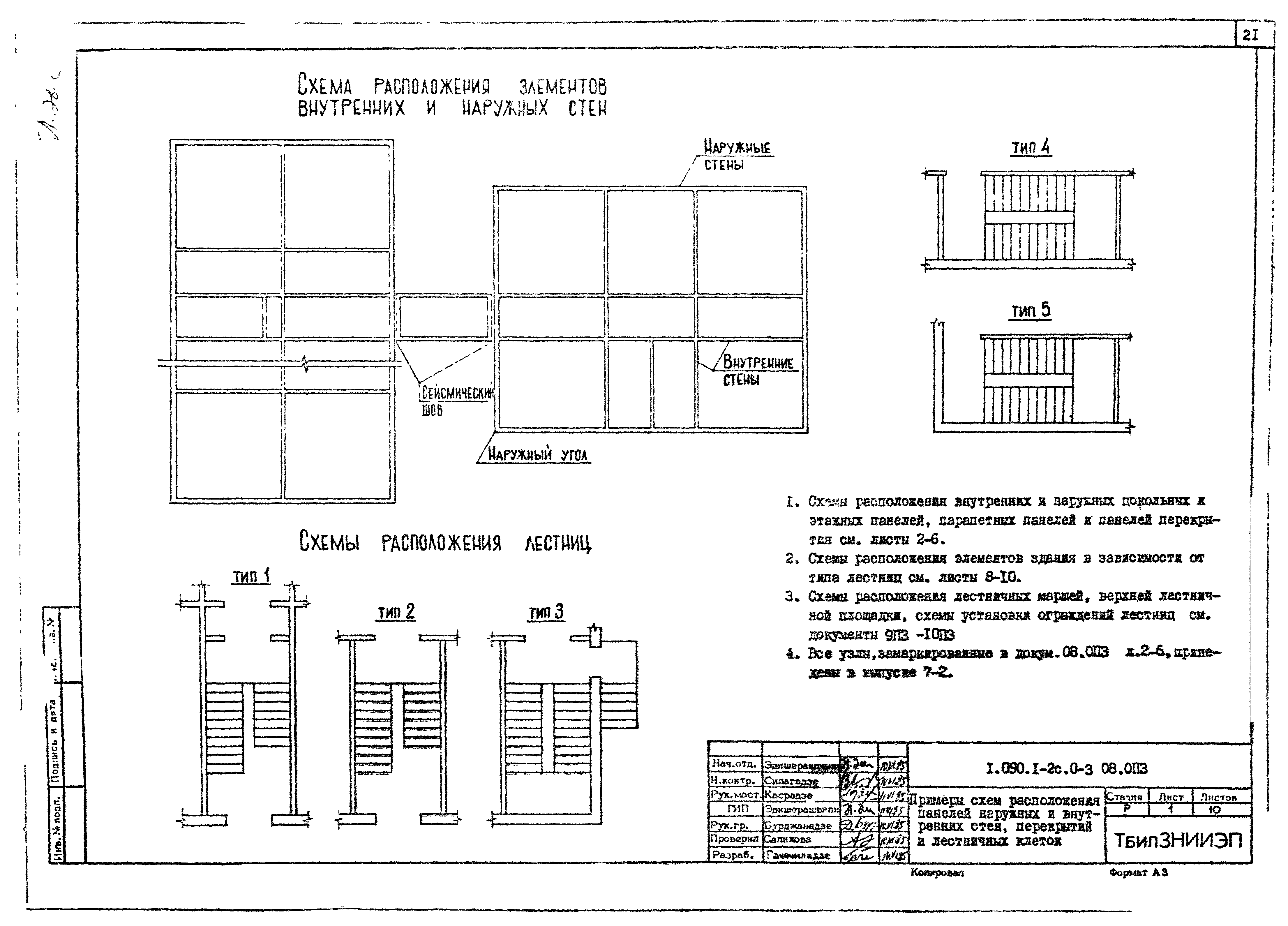
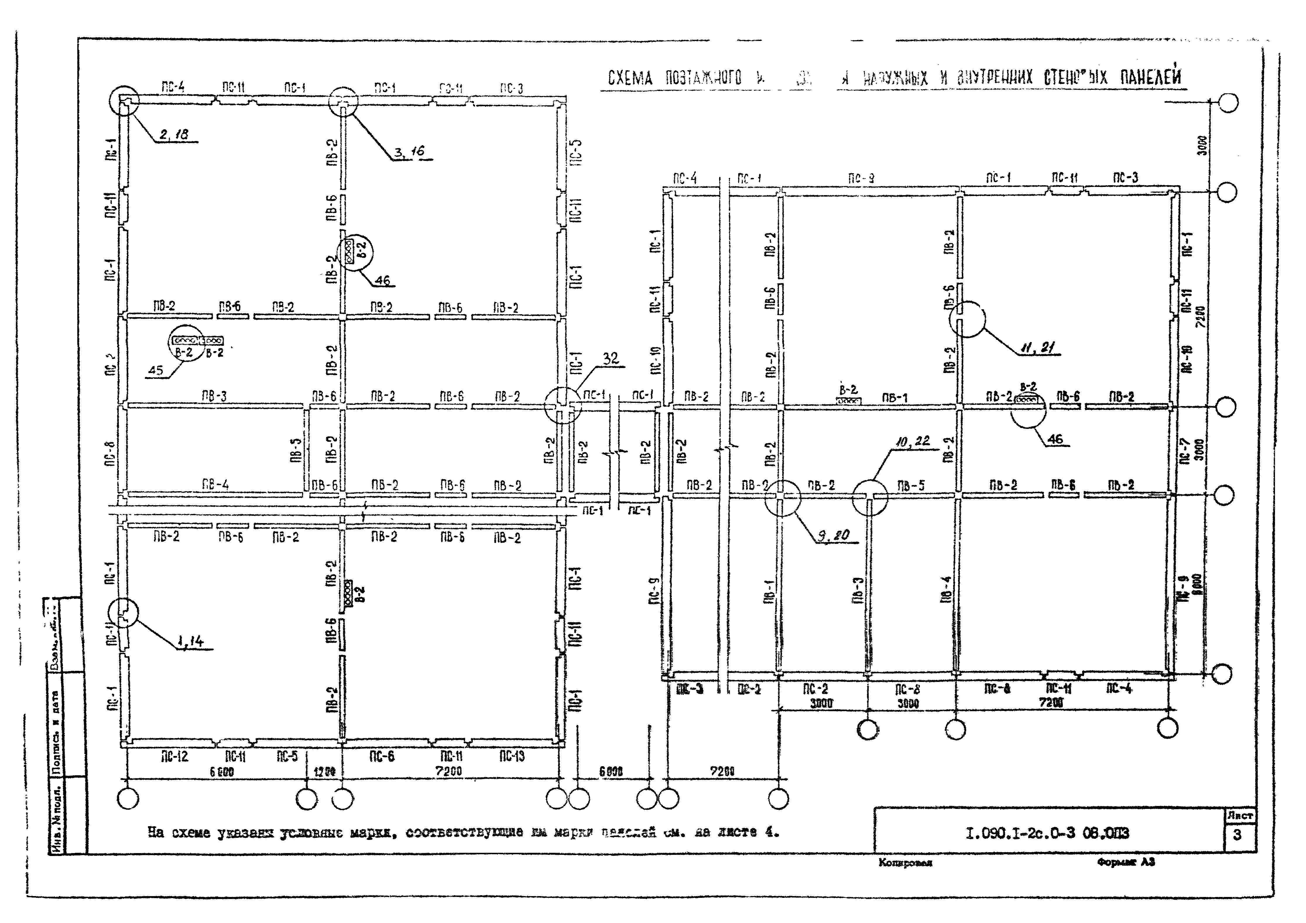
| Оглавление: | 1.090.1-2с.0-3 01.0ПЗ Общая часть 1.090.1-2с.0-3 02.0ПЗ Конструктивные решения 1.090.1-2с.0-3 03.0ПЗ Номенклатура изделий серии 1.090.1-2с.0-3 04.0ПЗ Расчет элементов зданий на вертикальную и сейсмическую нагрузки 1.090.1-2с.0-3 05.0ПЗ Графики несущей способности наружных и внутренних стен при расчете на вертикальные нагрузки 1.090.1-2с.0-3 06.0ПЗ Расчет несущих систем крупнопанельных зданий на совместное действие горизонтальных и вертикальных нагрузок 1.090.1-2с.0-3 07.0ПЗ Компоновка крупнопанельных общественных зданий 1.090.1-2с.0-3 08.0ПЗ Примеры схем расположения панелей наружных и внутренних стен, перекрытий и лестничных клеток 1.090.1-2с.0-3 09.0ПЗ Схемы расположения элементов лестничной клетки со схемой установки ограничений 1.090.1-2с.0-3 10.0ПЗ Схемы расположения лестничных маршей и верхней лестничной площадке при ширине проступи 1210 мм 1.090.1-2с.0-3 11.0ПЗ Указания по способу выполнений электрических проводок 1.090.1-2с.0-3 12.0ПЗ Принципы архитектурной разработки вариантов фасадов крупнопанельных общественных зданий 1.090.1-2с.0-3 13.0ПЗ Пример доработки документации для выполнения изделий полной заводской готовности 1.090.1-2с.0-3 14.0ПЗ Пояснительная записка к ведомостям расхода материалов 1.090.1-2с.0-3 00.1РМ Ведомость расхода стали, цемента и инертных материалов на изделия выпуска 1-2 1.090.1-2с.0-3 002РМ Ведомость расхода стали, цемента и инертных материалов на изделия выпуска 2-6 |
| Разработан: | ТбилЗНИИЭП |

















































