Скачать Серия ИИ-04-4 Выпуск 31. Панели многопустотные и ребристые под расчетную нагрузку 1600 кгс/м2 длиной 276 см, армированные сварными сетками и каркасами из стали класса А- III. Рабочие чертежиДата актуализации: 01.01.2021
|
| Обозначение: | Серия ИИ-04-4 |
| Обозначение англ: | Series ИИ-04-4 |
| Статус: | не действует |
| Название рус.: | Выпуск 31. Панели многопустотные и ребристые под расчетную нагрузку 1600 кгс/м2 длиной 276 см, армированные сварными сетками и каркасами из стали класса А- III. Рабочие чертежи |
| Дата добавления в базу: | 01.09.2013 |
| Дата актуализации: | 01.01.2021 |
| Дата введения: | 31.01.1977 |
| Дата окончания срока действия: | 01.04.1982 |
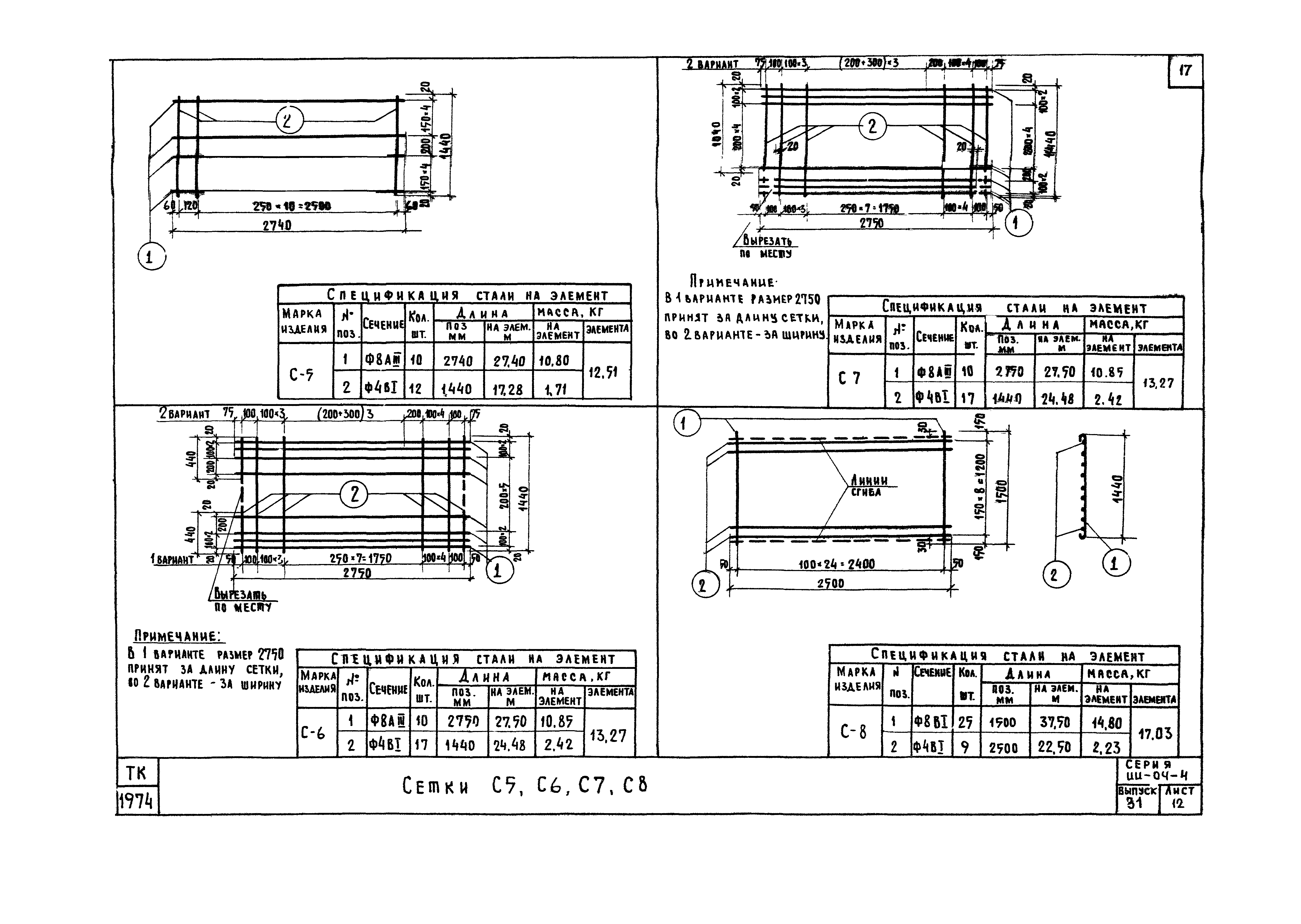
| Оглавление: | ИИ-04-4 Содержание ИИ-04-4 Пояснительная записка ИИ-04-4 Номенклатура ИИ-04-4 Панель ПК16-28.15. Опалубочный чертеж. Армирование ИИ-04-4 Панель ПК16-28.12. Опалубочный чертеж. Армирование ИИ-04-4 Панель ПК16-28.15с. Опалубочный чертеж. Армирование ИИ-04-4 Панель ПР16-28.15с. Опалубочный чертеж. Армирование ИИ-04-4 Панель ПК16-28.15п. Опалубочный чертеж. Армирование ИИ-04-4 Опалубочные сечения панелей ИИ-04-4 Деталь. Сечение 1-1 ИИ-04-4 Узлы 1,2,4,5. Деталь установки петли П1 в многопустотной панели. Деталь расположения арматуры в среднем ребре многопустотной панели ИИ-04-4 Узел 3 ИИ-04-4 Сетки С-1,С-2,С-3 и С-4 ИИ-04-4 Сетки С-5,С-6,С-7 и С-8 ИИ-04-4 Каркасы К-1÷К-4 ИИ-04-4 Каркасы К-5;К-6 ИИ-04-4 Петли П-1 и П-2. Отдельный стержень ОС-2 ИИ-04-4 Данные для испытаний панелей по прочности |
| Разработан: | НИИЖБ Госстроя СССР ЦНИИЭП торгово-бытовых зданий и туристских комплексов |
| Утверждён: | 31.01.1977 Государственный комитет по гражданскому строительству и архитектуре при Госстрое СССР (19) |
| Чем заменён: |
|




















