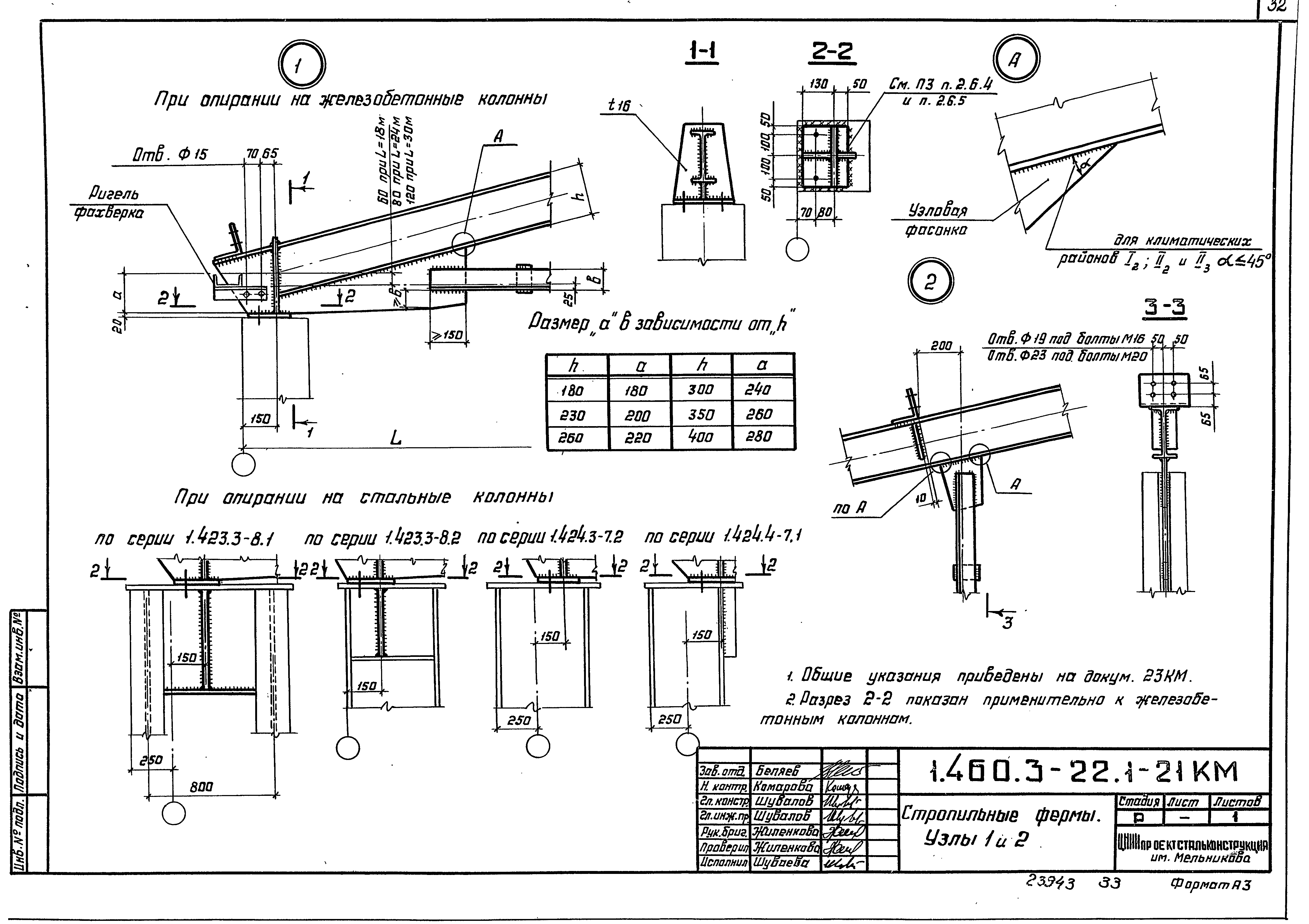
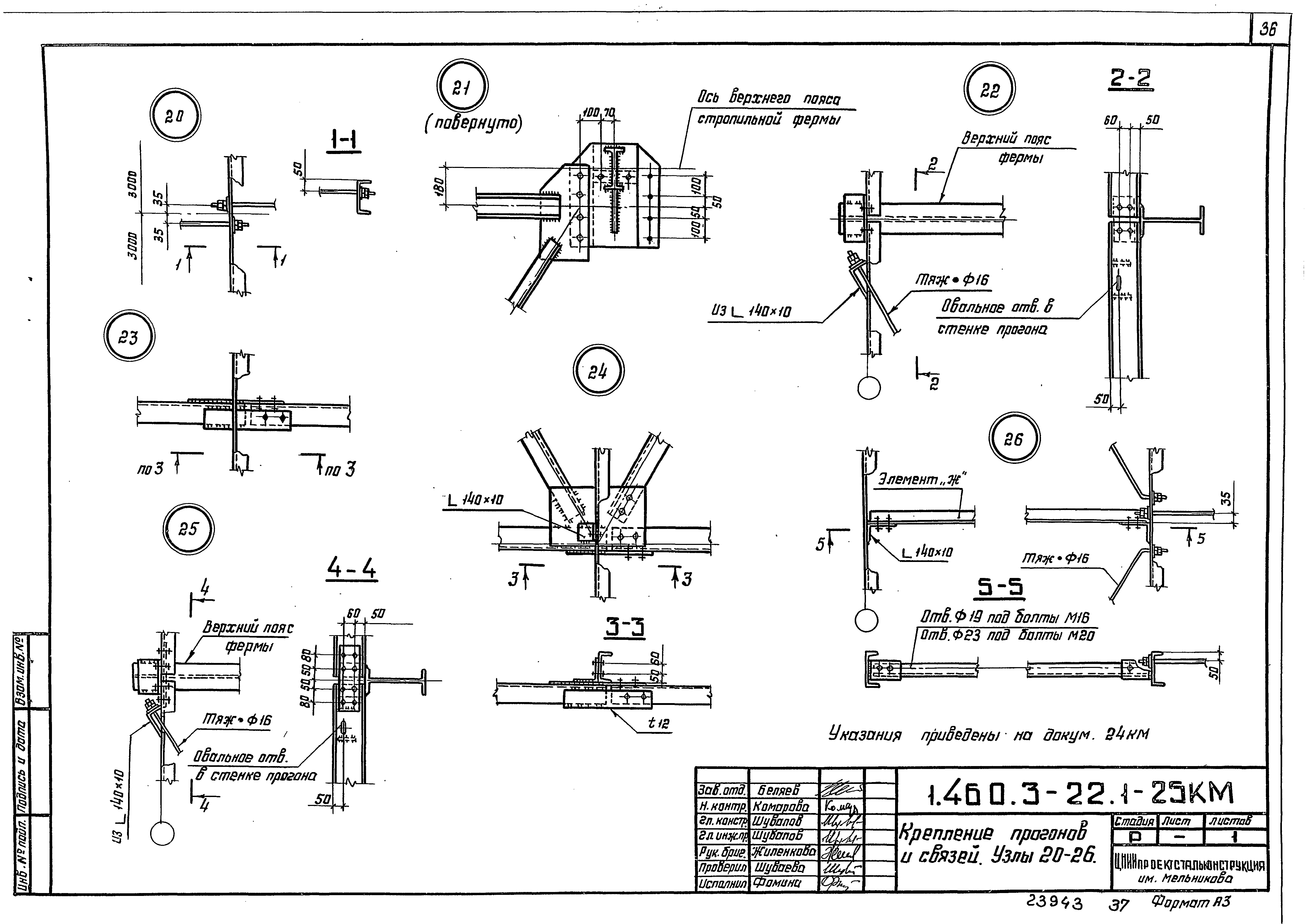
Скачать Серия 1.460.3-22 Выпуск 1. Конструкции покрытий зданий пролетами 18, 24 и 30 м с кровлей из асбестоцементных волнистых листов по прогонам с шагом 1,5 м. Чертежи кмДата актуализации: 01.01.2021 Серия 1.460.3-22
Выпуск 1. Конструкции покрытий зданий пролетами 18, 24 и 30 м с кровлей из асбестоцементных волнистых листов по прогонам с шагом 1,5 м. Чертежи км| Обозначение: | Серия 1.460.3-22 | | Обозначение англ: | Series 1.460.3-22 | | Статус: | действует | | Название рус.: | Выпуск 1. Конструкции покрытий зданий пролетами 18, 24 и 30 м с кровлей из асбестоцементных волнистых листов по прогонам с шагом 1,5 м. Чертежи км | | Дата добавления в базу: | 01.09.2013 | | Дата актуализации: | 01.01.2021 | | Дата введения: | 01.01.1990 | | Разработан: | ЦНИИпроектстальконструкция Госстроя
| | Утверждён: | 09.03.1989 Госстрой СССР (Государственный комитет Совета Министров СССР по делам строительства) (USSR Gosstroy 4/5-457)
| | Издан: | ЦИТП Госстроя СССР (CITP, Gosstroy (USSR) 1989 г. )
| | Заменяет собой: | |
                                          
|