Скачать 5РС 41-59 Проекты на основе конструкций и изделий территориального каталога. Железобетонные конструкции панельных жилых домов с узким шагом несущих стен для жилых блок-секций П46М производства АООТ АРКАДО ДСК-4. Панели входов бетонные трехслойные с высокими теплотехническими характеристиками. Опалубочный чертежДата актуализации: 01.01.2021
|
| Обозначение: | 5РС 41-59 |
| Обозначение англ: | 5РС 41-59 |
| Статус: | не определен законодательством |
| Название рус.: | Проекты на основе конструкций и изделий территориального каталога. Железобетонные конструкции панельных жилых домов с узким шагом несущих стен для жилых блок-секций П46М производства АООТ " АРКАДО" ДСК-4. Панели входов бетонные трехслойные с высокими теплотехническими характеристиками. Опалубочный чертеж |
| Дата добавления в базу: | 01.09.2013 |
| Дата актуализации: | 01.01.2021 |
| Дата введения: | 01.01.1996 |
| Дата окончания срока действия: | 30.06.2003 |
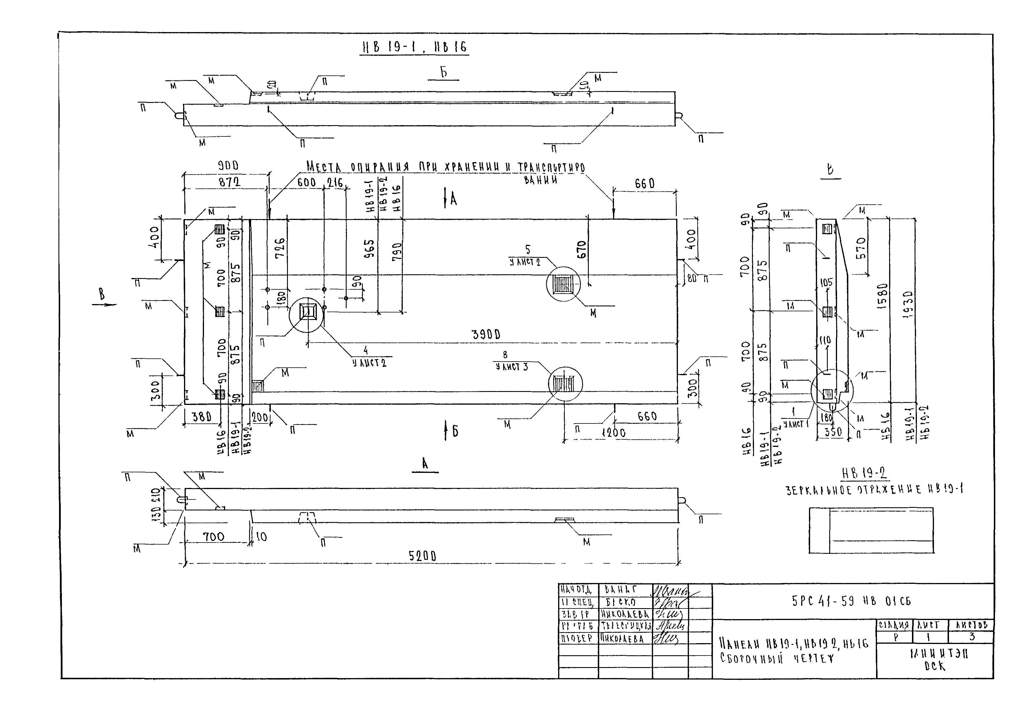
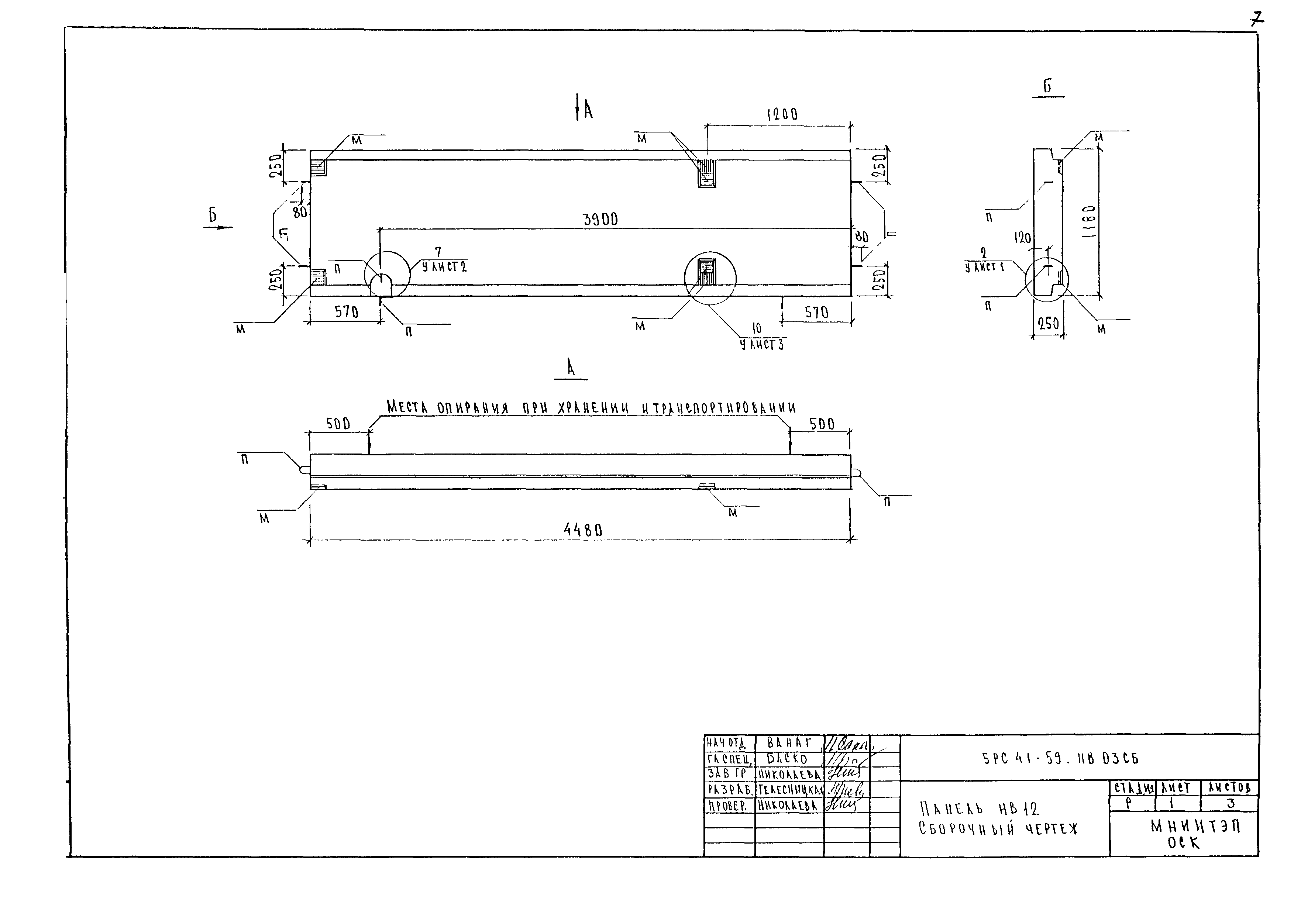
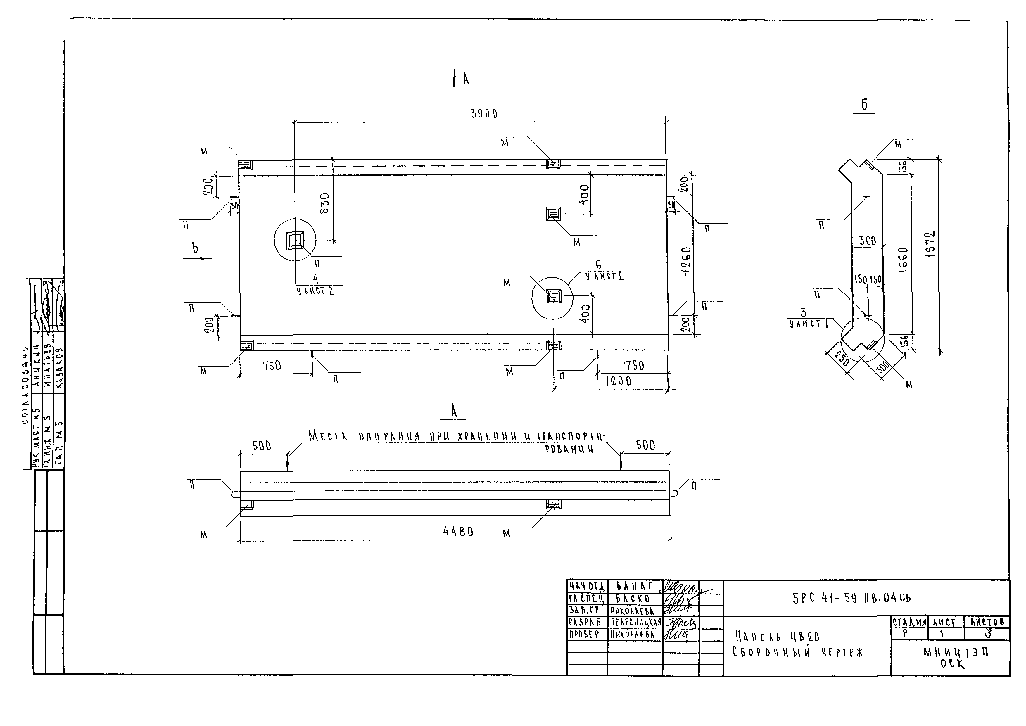
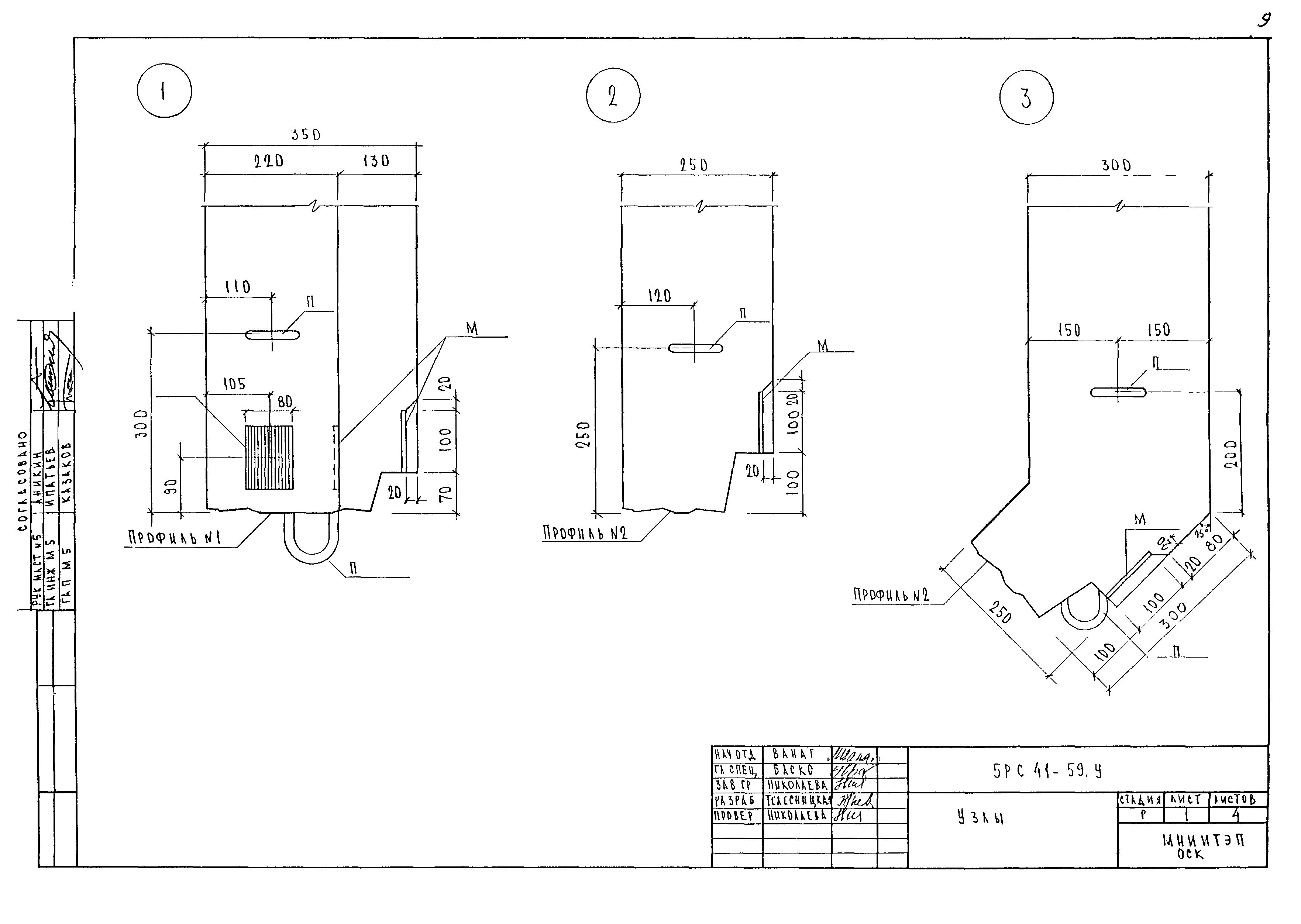
| Оглавление: | 5РС41-59.НИ Номенклатура 5РС41-59.НВ-01СБ Панели НВ19-1,НВ19-2,НВ16. Сборочный чертеж 5РС41-59.НВ-02СБ Панели НВ19-1,НВ19-4. Сборочный чертеж 5РС41-59.НВ-03СБ Панели НВ12. Сборочный чертеж 5РС41-59.НВ-04СБ Панели НВ20. Сборочный чертеж 5РС41-59.У Узлы |
| Разработан: | МНИИТЭП |
| Утверждён: | 01.01.1996 МНИИТЭП (MNIITEP ) |











