Скачать Серия 5.904-49 Выпуск 1. Рабочие чертежиДата актуализации: 01.01.2021
|
| Обозначение: | Серия 5.904-49 |
| Обозначение англ: | Series 5.904-49 |
| Статус: | не определен законодательством |
| Название рус.: | Выпуск 1. Рабочие чертежи |
| Дата добавления в базу: | 01.09.2013 |
| Дата актуализации: | 01.01.2021 |
| Дата введения: | 20.10.1988 |
| Дата окончания срока действия: | 30.06.2003 |
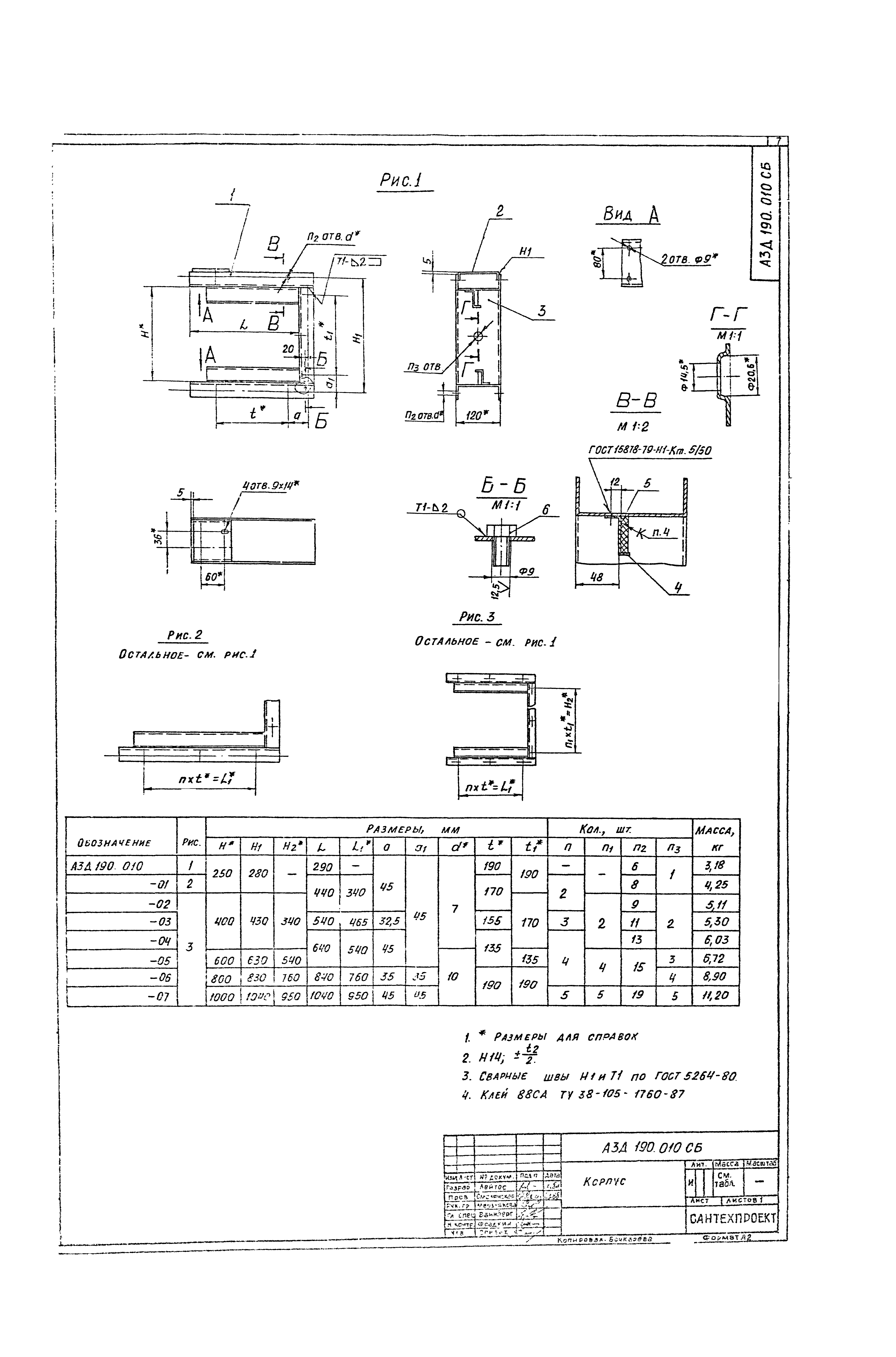
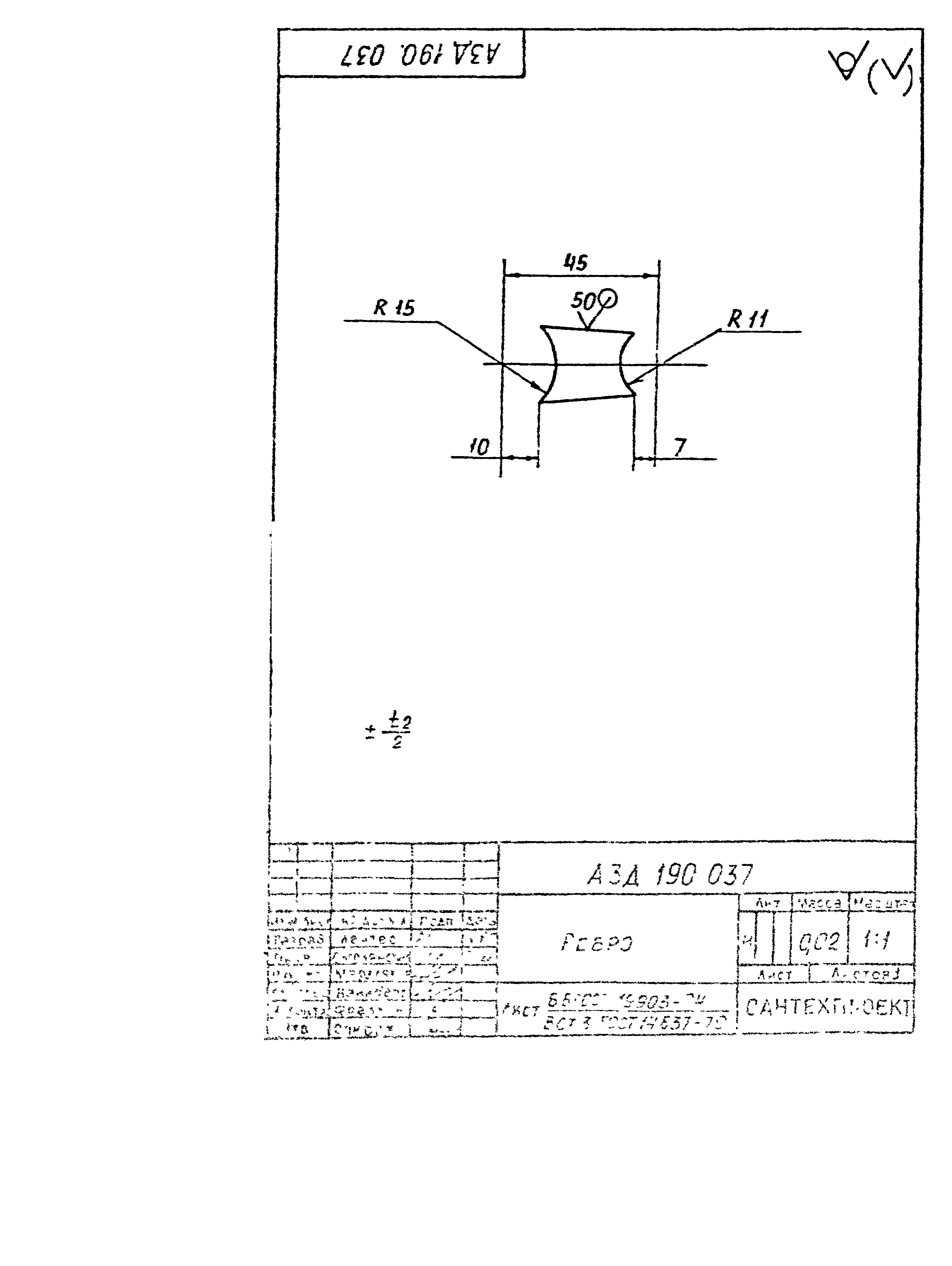
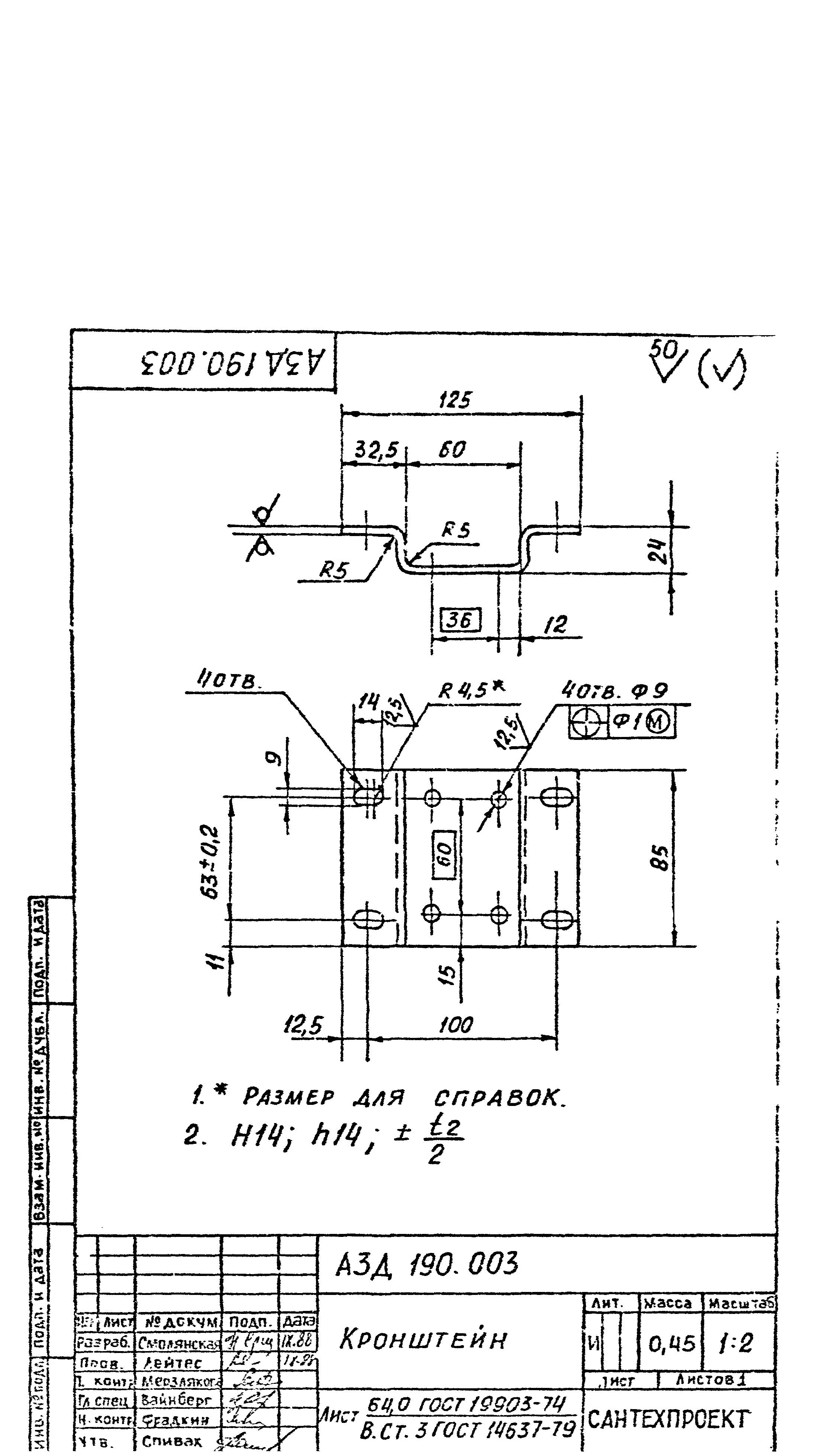
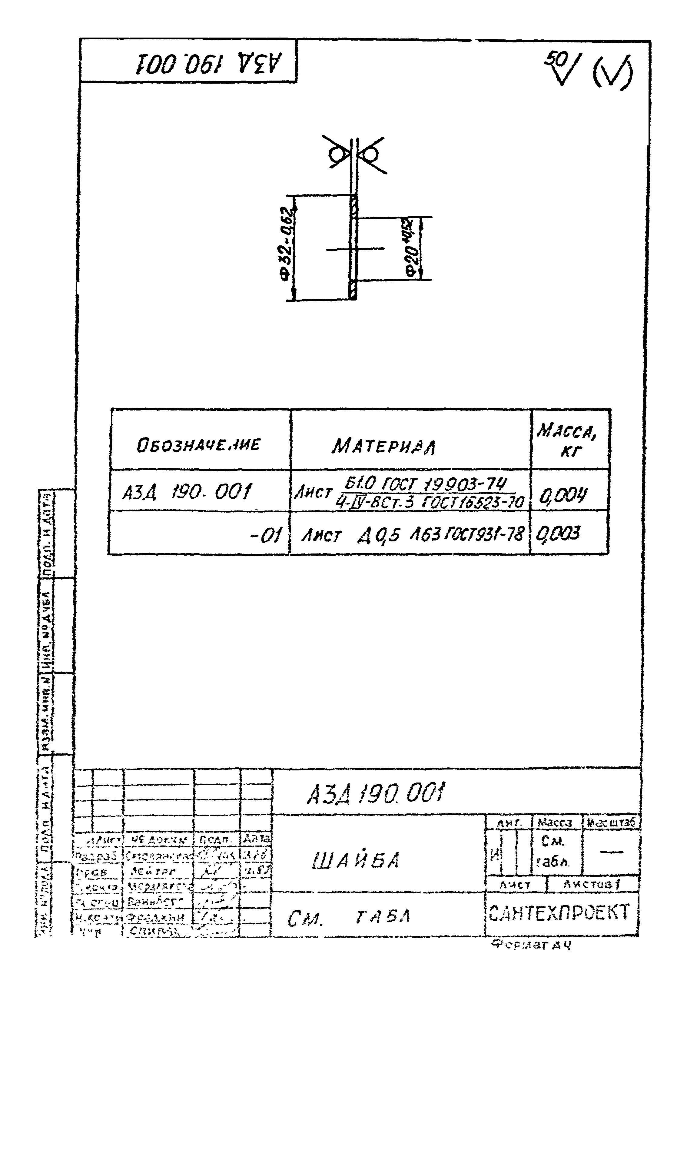
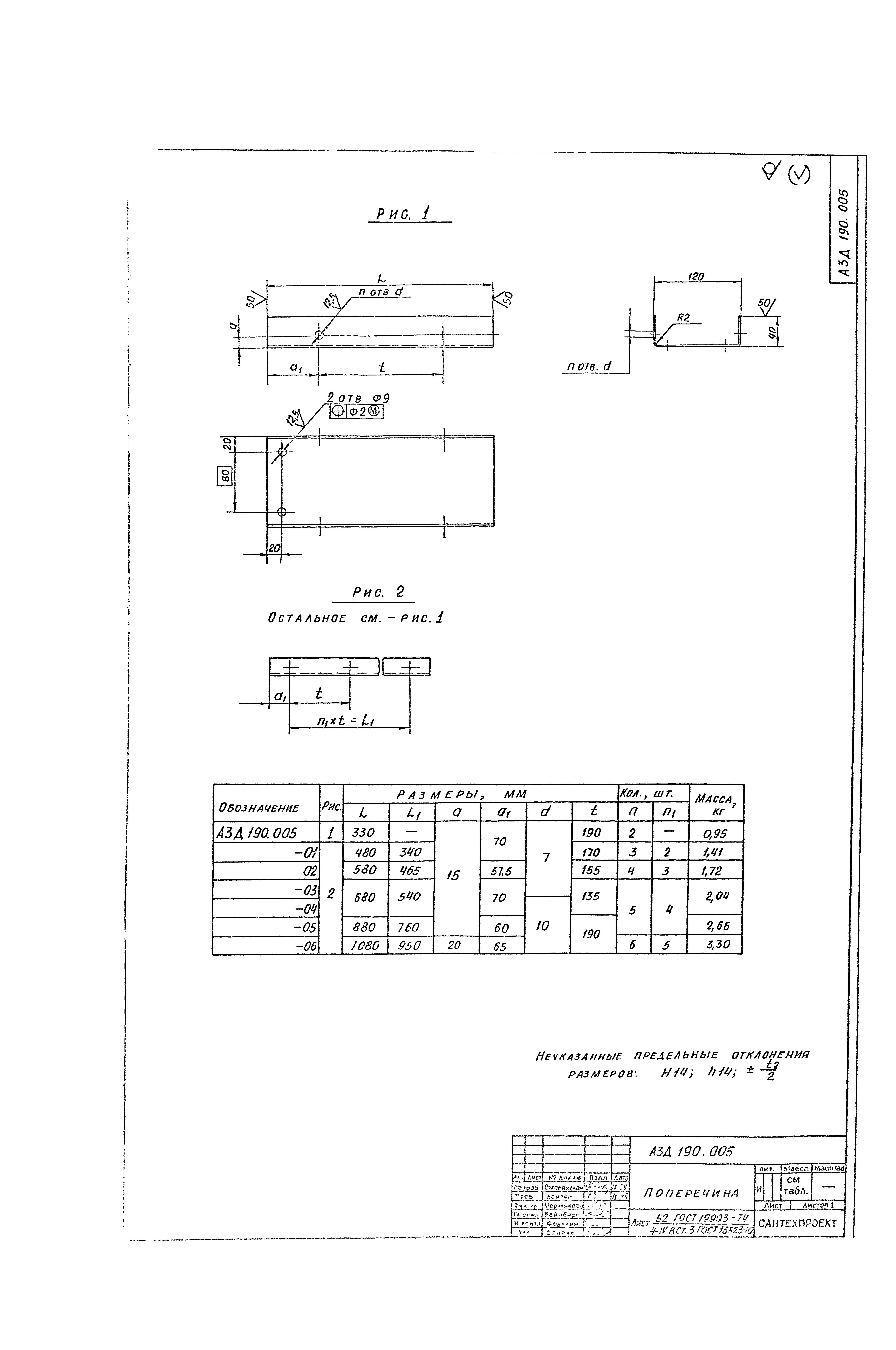
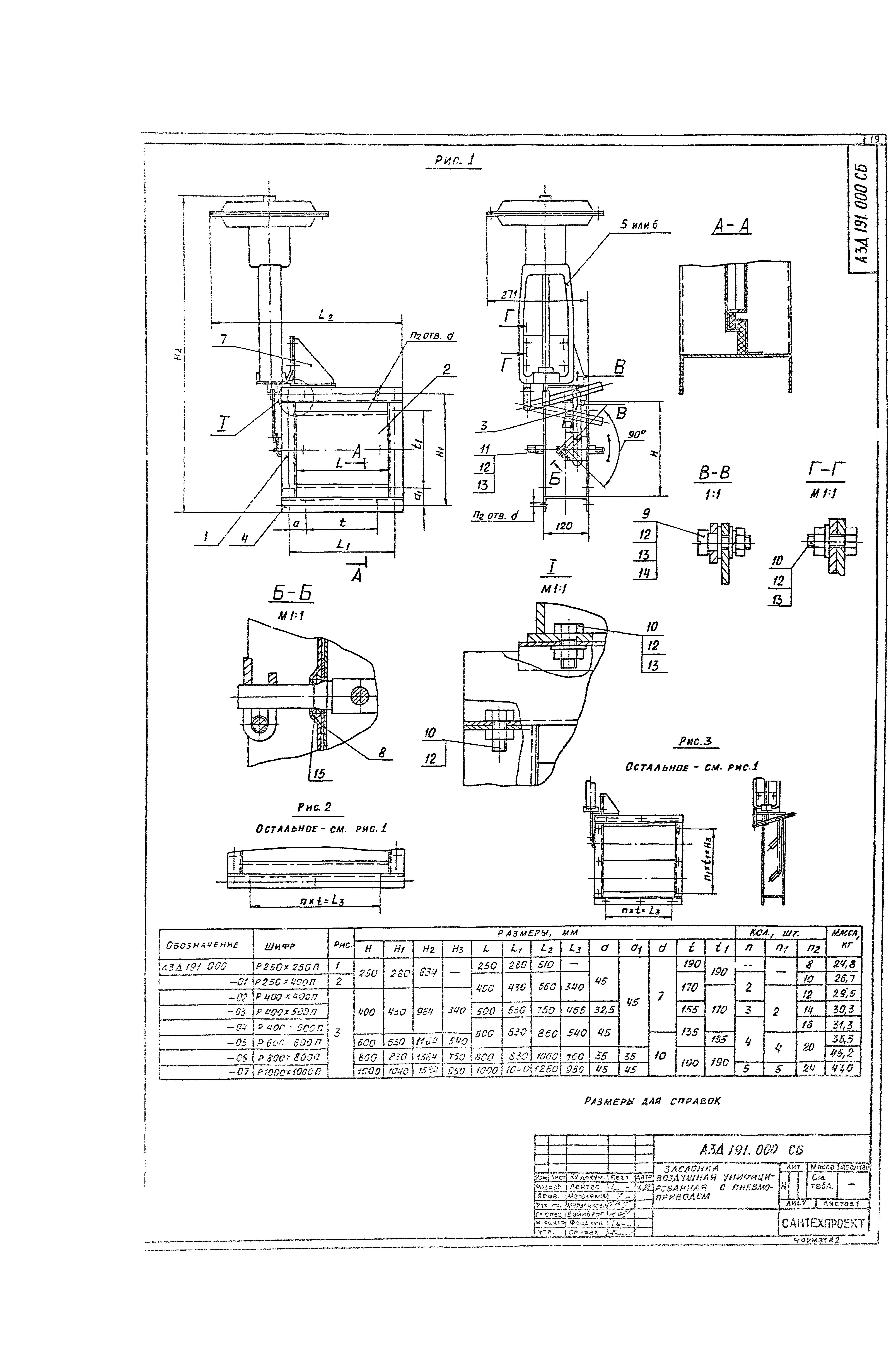
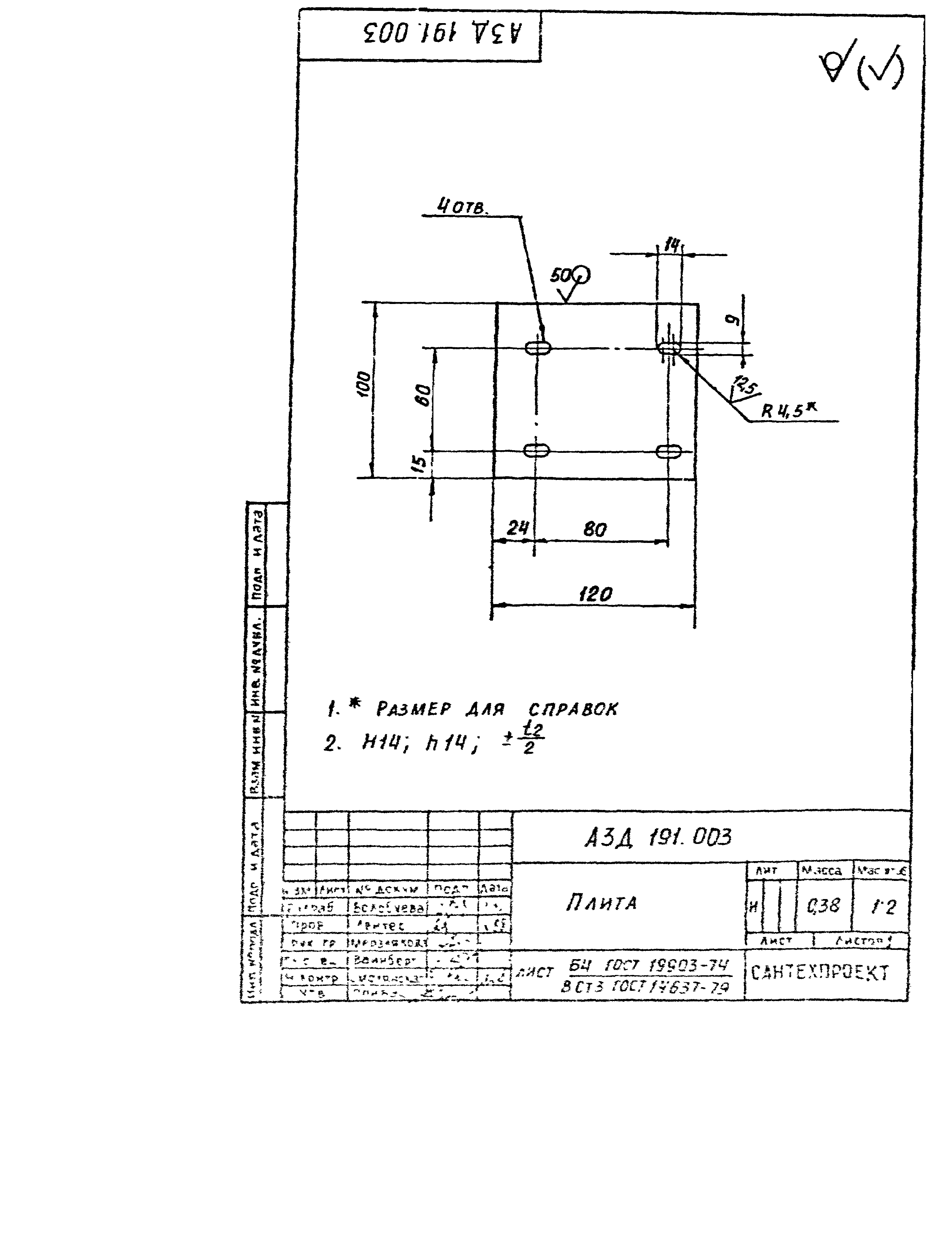
| Оглавление: | Содержание А3Д190.000Д Заслонка воздушная унифицированная. Технические требования А3Д190.000 Заслонка воздушная унифицированная с электроприводом А3Д190.000СБ Заслонка воздушная унифицированная с электроприводом А3Д190.010 Корпус А3Д190.010СБ Корпус А3Д190.019 Планка А3Д190.020 Стойка в сборе А3Д190.020СБ Стойка в сборе А3Д190.030 Лопатка А3Д190.030СБ Лопатка А3Д190.040 Система тяг и рычагов А3Д190.040СБ Система тяг и рычагов А3Д190.050 Электропривод А3Д190.050СБ Электропривод А3Д190.037 Ребро А3Д190.060 Рычаг А3Д190.006 Скоба А3Д190.003 Кронштейн А3Д190.002 Палец А3Д190.001 Шайба А3Д190.005 Поперечина А3Д190.007 Стойка А3Д190.022 Перо А3Д190.008 Упор А3Д190.023 Ось А3Д190.031 Тяга А3Д190.032 Рычаг А3Д190.033 Тяга А3Д190.038 Бобышка А3Д192.005 Рукоятка А3Д191.036 Бобышка А3Д191.000 Заслонка воздушная унифицированная с пневмоприводом А3Д191.000СБ Заслонка воздушная унифицированная с пневмоприводом А3Д191.010 Корпус А3Д191.010СБ Корпус А3Д191.020 Пневмопривод А3Д191.020СБ Пневмопривод А3Д191.003 Плита А3Д191.004 Стенка А3Д191.005 Ребро А3Д191.030 Кронштейн А3Д191.030СБ Кронштейн А3Д192.000 Заслонка воздушная унифицированная с ручным управлением А3Д192.000СБ Заслонка воздушная унифицированная с ручным управлением А3Д192.010 Система тяг и рычагов А3Д192.010СБ Система тяг и рычагов А3Д192.020 Корпус А3Д192.020СБ Корпус А3Д192.001 Скоба А3Д192.030 Стойка в сборе А3Д192.030СБ Стойка в сборе А3Д192.004 Рукоятка А3Д192.040 Ручка управления А3Д192.003 Рычаг А3Д192.050 Ручка управления А3Д193.000 Заслонка воздушная унифицированная во взрывоопасном исполнении А3Д193.000СБ Заслонка воздушная унифицированная во взрывоопасном исполнении А3Д193.001 Лист А3Д193.010 Корпус А3Д193.010СБ Корпус А3Д193.020 Поперечина в сборе А3Д193.003 Поперечина А3Д193.020СБ Поперечина в сборе А3Д193.001 Скоба А3Д193.030 Стойка в сборе А3Д193.030СБ Стойка в сборе А3Д193.040 Система тяг и рычагов А3Д193.040СБ Система тяг и рычагов А3Д193.002 Стойка |
| Разработан: | ГПИ Сантехпроект Госстроя СССР |
| Утверждён: | 05.10.1988 Госстрой СССР (Государственный комитет Совета Министров СССР по делам строительства) (USSR Gosstroy 69) |
| Заменяет собой: |







































































































