Скачать Серия КЭ-01-57 Выпуск XII. Стальные разрезные и неразрезные балки путей подвального транспорта пролетом 6 м. Чертежи КМДата актуализации: 01.01.2021
|
| Обозначение: | Серия КЭ-01-57 |
| Обозначение англ: | Series КЭ-01-57 |
| Статус: | заменен |
| Название рус.: | Выпуск XII. Стальные разрезные и неразрезные балки путей подвального транспорта пролетом 6 м. Чертежи КМ |
| Дата добавления в базу: | 01.09.2013 |
| Дата актуализации: | 01.01.2021 |
| Дата введения: | 26.01.1971 |
| Дата окончания срока действия: | 01.02.1976 |
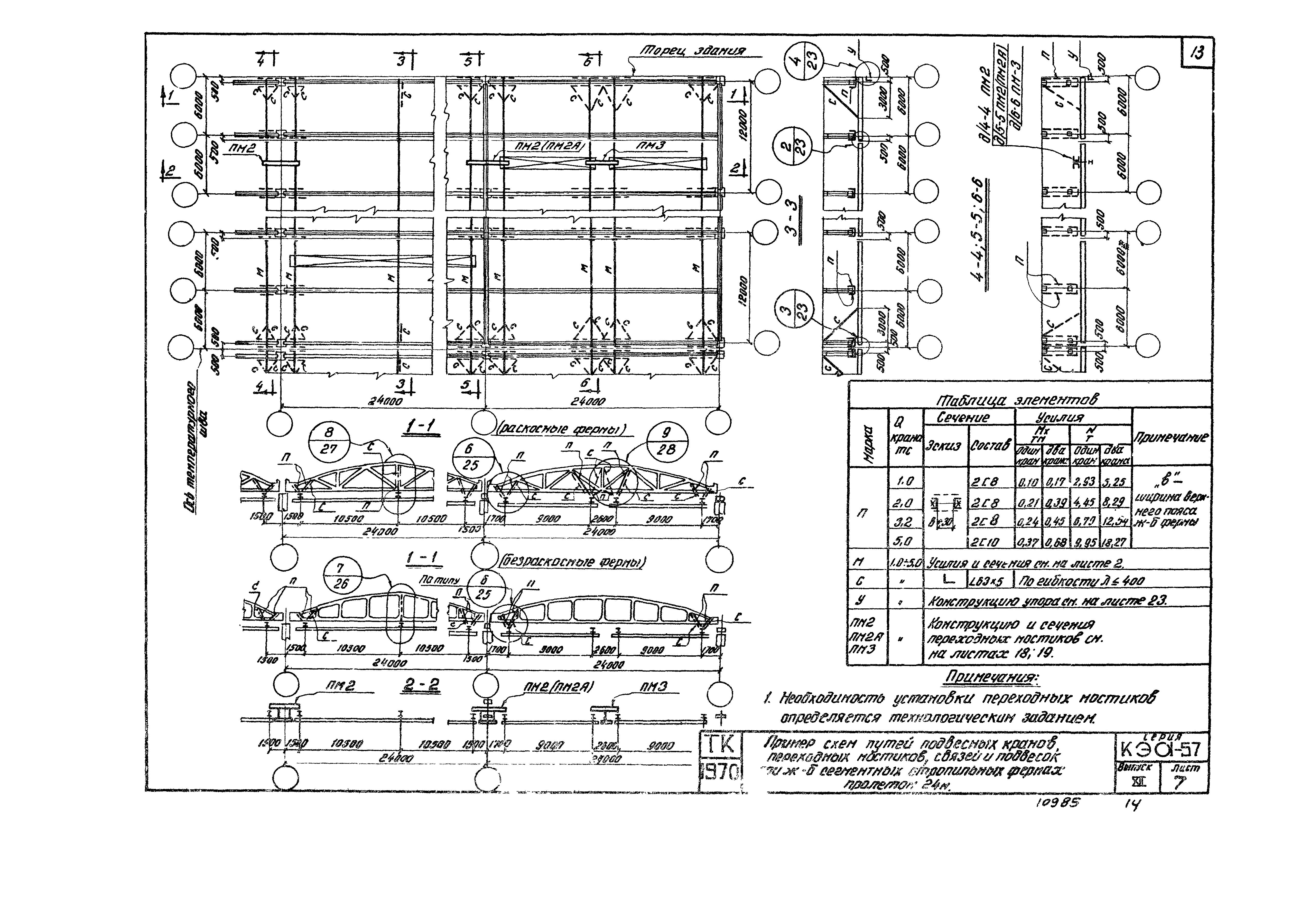
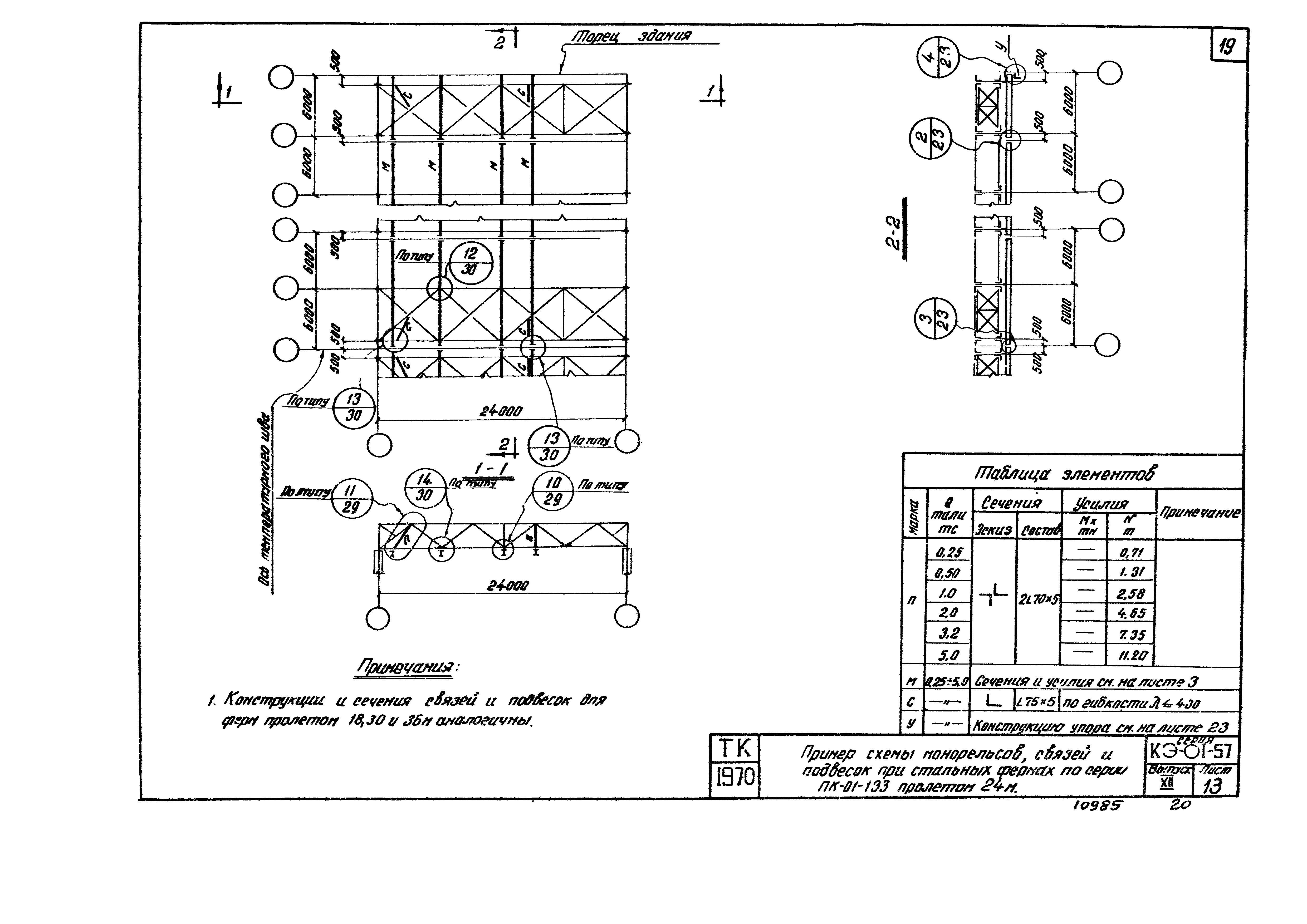
| Оглавление: | Титульный лист Содержание Пояснительная записка Схемы нагрузок от кранов по ГОСТ 7890-67 Данные для выбора сечений путей подвесных кранов Данные для выбора сечений монорельсов Схемы компоновки прямых участков подвесного пути Пример схем путей подвесных кранов, переходных мостиков, связей и подвесок при ж-б строительных балках Пример схем путей подвесных кранов, переходных мостиков, связей и подвесок при ж-б сегментных стропильных фермах пролетом 18м Пример схем путей подвесных кранов, переходных мостиков, связей и подвесок при ж-б сегментных стропильных фермах пролетом 24м Пример схем путей подвесных кранов, переходных мостиков, связей и подвесок при стальных фермах по серии ПК-01-125 пролетом 24м Пример схем путей подвесных кранов, переходных мостиков, связей и подвесок при стальных фермах по серии ПК-01-133 пролетом 24м Пример схем монорельсов, связей и подвесок при ж-б стропильных балках Пример схем монорельсов, связей и подвесок при ж-б сегментных стропильных фермах пролетом 18 и 24м Пример схемы монорельсов, связей и подвесок при стальных фермах по серии ПК-01-125 пролетом 24м Пример схемы монорельсов, связей и подвесок при стальных фермах по серии ПК-01-133 пролетом 24м Примеры схем кривых участков подвесного пути при ж-б стропильных сегментных фермах Примеры схем кривых участков подвесного пути при стальных фермах по сериям ПК-01-125 и ПК-01-133 Определение чиста промежуточных опор на кривых участках монорельсового пути Переходные мостики ПМ1;ПМ1А Переходные мостики ПМ2;ПМ2А Переходный мостик ПМ3 Данные для подбора переходных мостиков. Таблицы №1 и №2 Данные для подбора переходных мостиков. Таблицы №3 и №4 Узел 1 Узлы 2;3;4 Узел 5 Узел 6 Узел 7 Узел 8 Узел 9 Узел 10;11 Узел 12;13;14 Узел 15 Узлы 16;17;17а Узлы 18;19 |
| Разработан: | ЦНИИпромзданий Институт Укрпроектстальконструкция |
| Утверждён: | 26.01.1971 Госстрой СССР (Государственный комитет Совета Министров СССР по делам строительства) (USSR Gosstroy 2/3-37) |
| Издан: | ЦИТП Госстроя СССР (CITP, Gosstroy (USSR) ) |
| Чем заменён: |






































