Скачать Серия 1.236.4-7/84 Выпуск 3. Тамбуры. Чертежи КМ

Дата актуализации: 01.01.2021

Серия 1.236.4-7/84

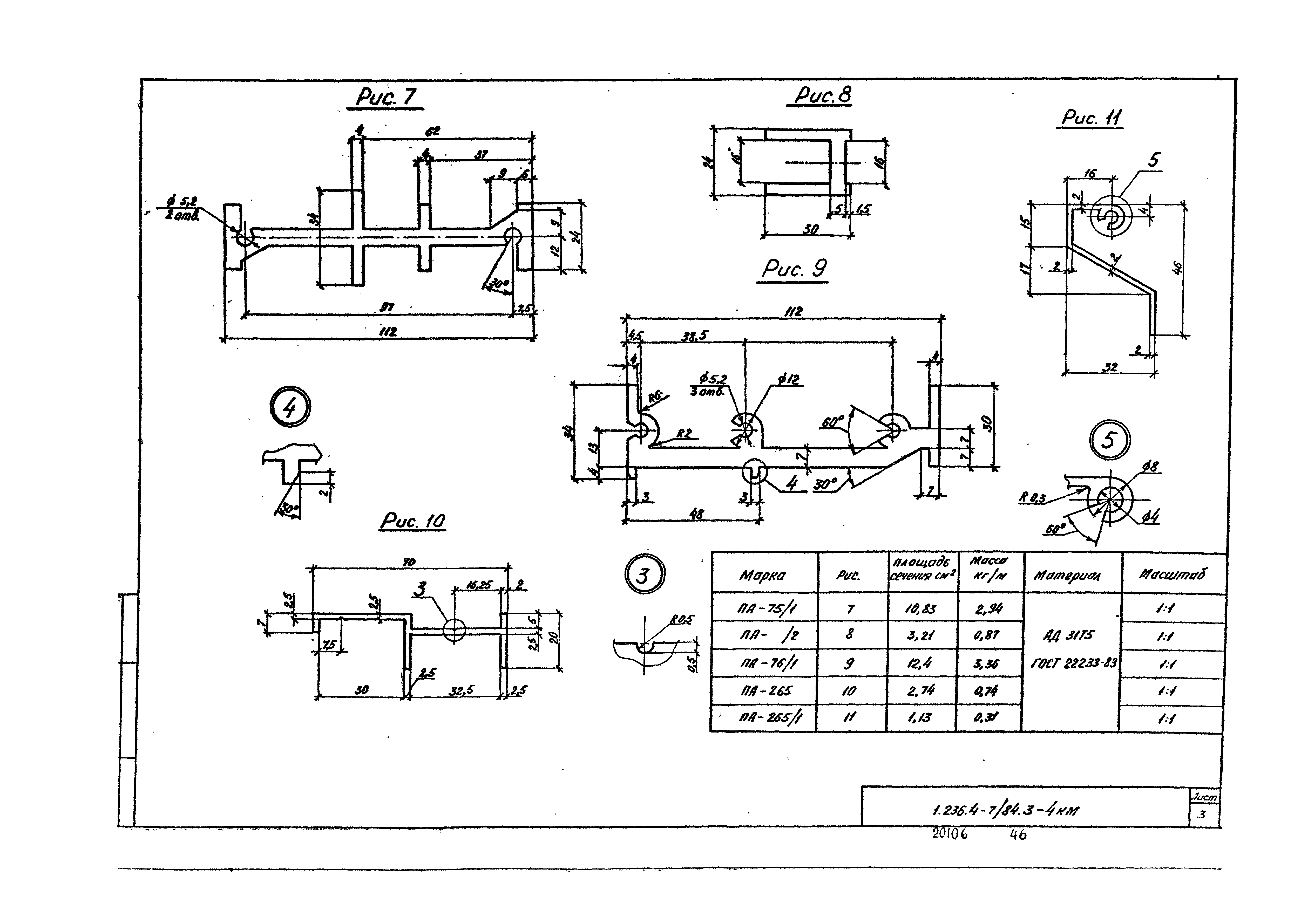
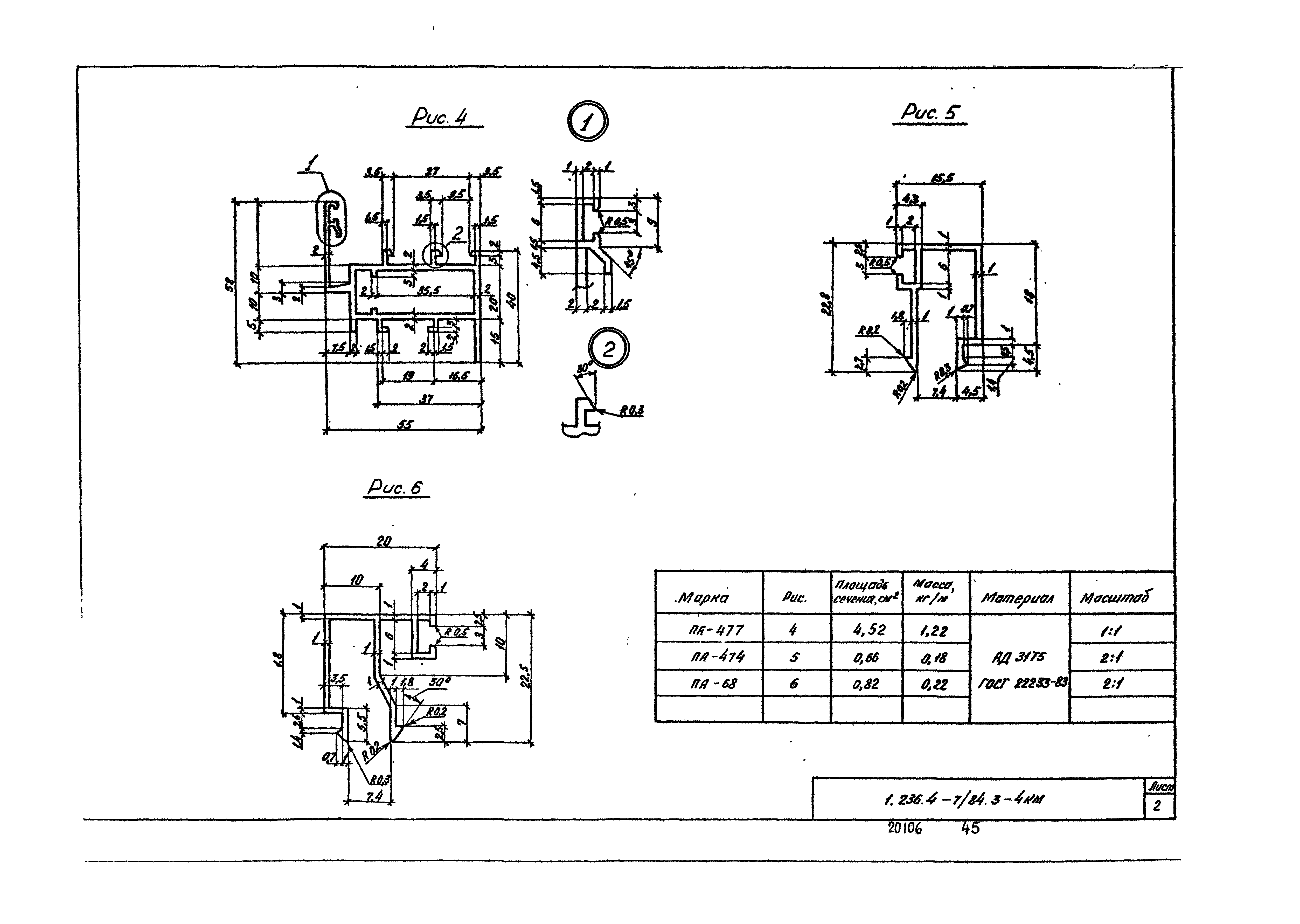
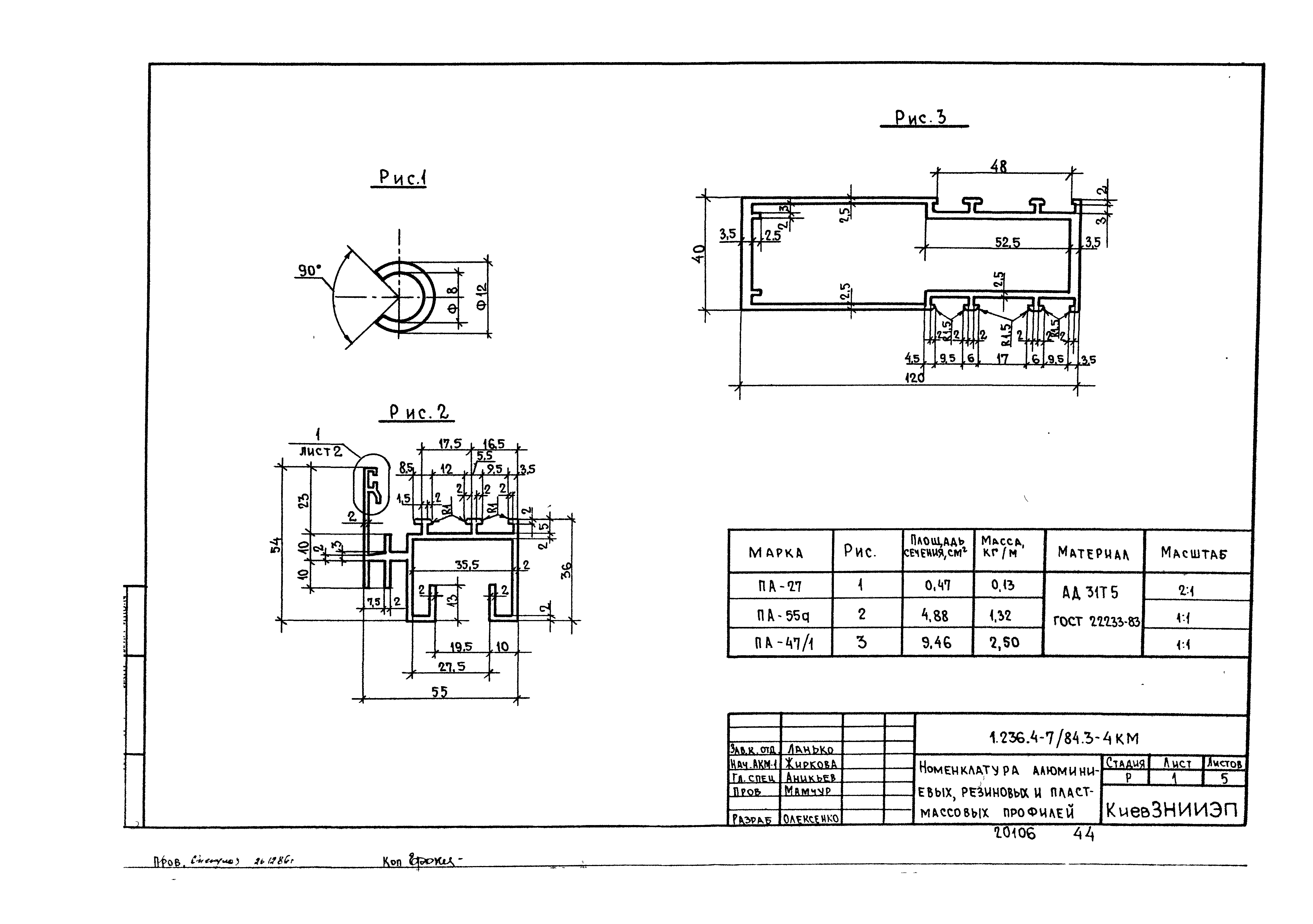
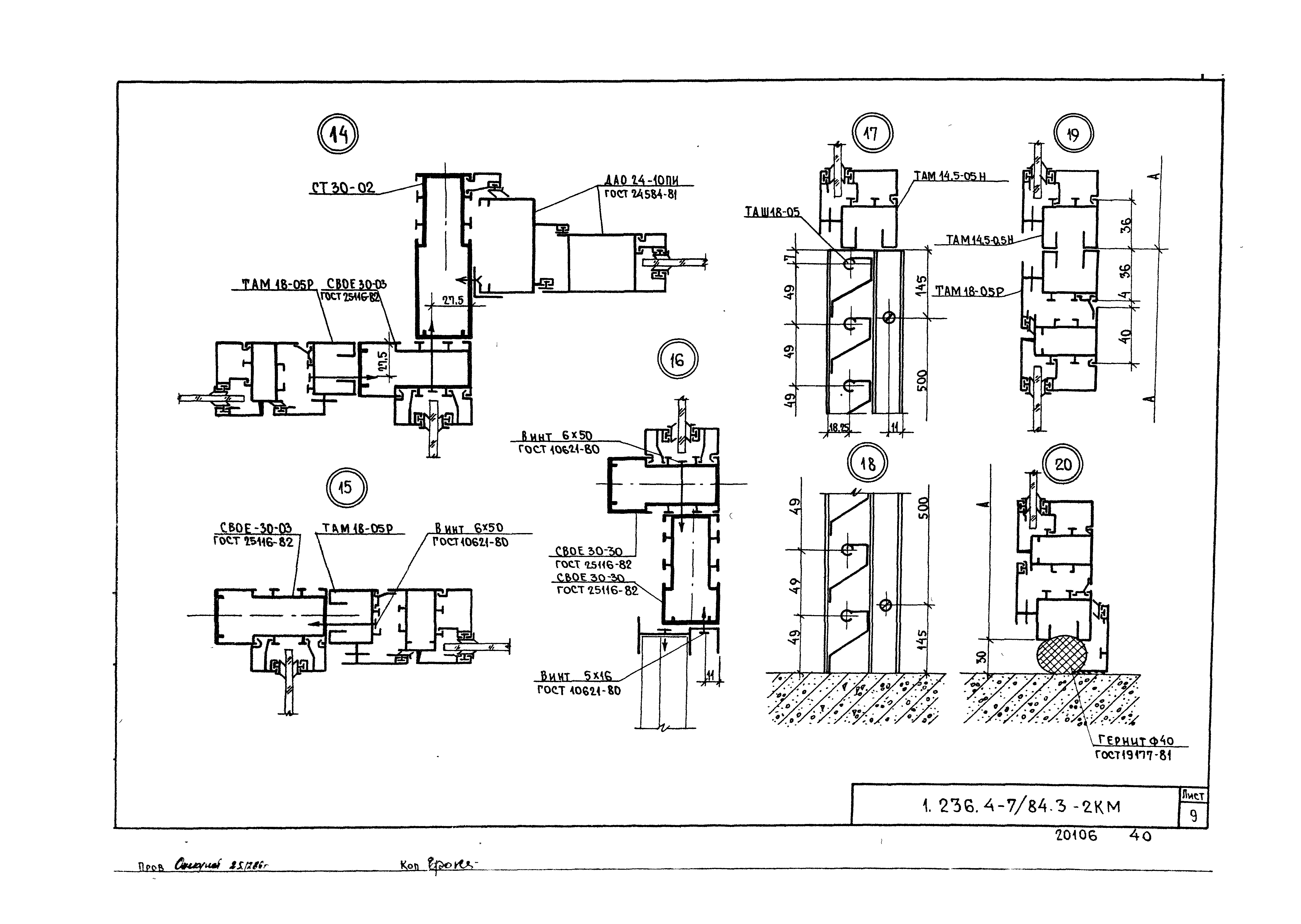
Выпуск 3. Тамбуры. Чертежи КМ

Обозначение: Серия 1.236.4-7/84
Обозначение англ: Series 1.236.4-7/84
Статус:не определен законодательством
Название рус.:Выпуск 3. Тамбуры. Чертежи КМ
Дата добавления в базу:01.09.2013
Дата актуализации:01.01.2021
Дата введения:01.12.1984
Дата окончания срока действия:30.06.2003
Разработан: КиевЗНИИЭП
Гипроспецлегконструкция
Утверждён:23.10.1984 Государственный комитет по гражданскому строительству и архитектуре при Госстрое СССР (305)
Издан: ЦИТП Госстроя СССР (CITP, Gosstroy (USSR) 1988 г. )
Заменяет собой:
Серия 1.236.4-7/84Серия 1.236.4-7/84Серия 1.236.4-7/84Серия 1.236.4-7/84Серия 1.236.4-7/84Серия 1.236.4-7/84Серия 1.236.4-7/84Серия 1.236.4-7/84Серия 1.236.4-7/84Серия 1.236.4-7/84Серия 1.236.4-7/84Серия 1.236.4-7/84Серия 1.236.4-7/84Серия 1.236.4-7/84Серия 1.236.4-7/84Серия 1.236.4-7/84Серия 1.236.4-7/84Серия 1.236.4-7/84Серия 1.236.4-7/84Серия 1.236.4-7/84Серия 1.236.4-7/84Серия 1.236.4-7/84Серия 1.236.4-7/84Серия 1.236.4-7/84Серия 1.236.4-7/84Серия 1.236.4-7/84Серия 1.236.4-7/84Серия 1.236.4-7/84Серия 1.236.4-7/84Серия 1.236.4-7/84Серия 1.236.4-7/84Серия 1.236.4-7/84Серия 1.236.4-7/84Серия 1.236.4-7/84Серия 1.236.4-7/84Серия 1.236.4-7/84Серия 1.236.4-7/84Серия 1.236.4-7/84Серия 1.236.4-7/84Серия 1.236.4-7/84Серия 1.236.4-7/84Серия 1.236.4-7/84Серия 1.236.4-7/84Серия 1.236.4-7/84Серия 1.236.4-7/84Серия 1.236.4-7/84Серия 1.236.4-7/84Серия 1.236.4-7/84Серия 1.236.4-7/84Серия 1.236.4-7/84Серия 1.236.4-7/84Серия 1.236.4-7/84Серия 1.236.4-7/84Серия 1.236.4-7/84Серия 1.236.4-7/84Серия 1.236.4-7/84Серия 1.236.4-7/84