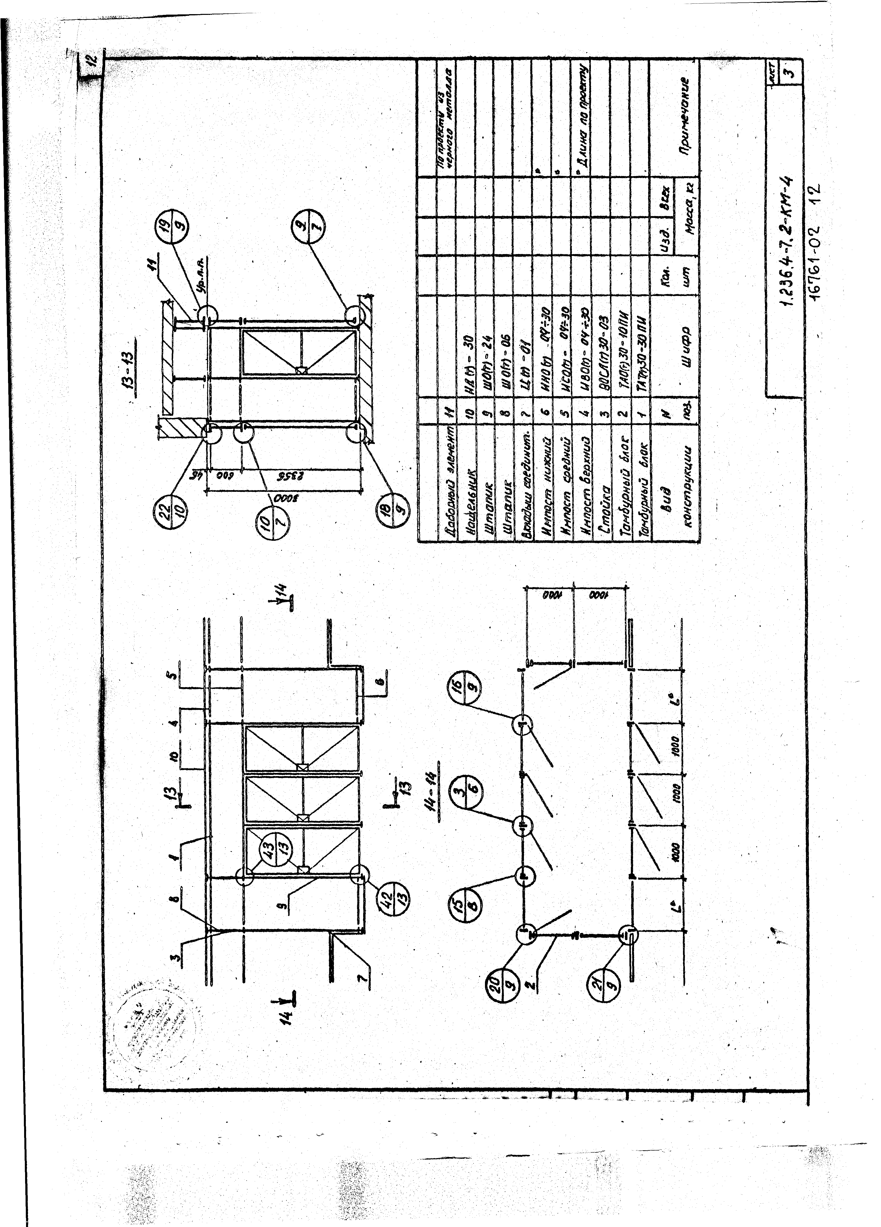
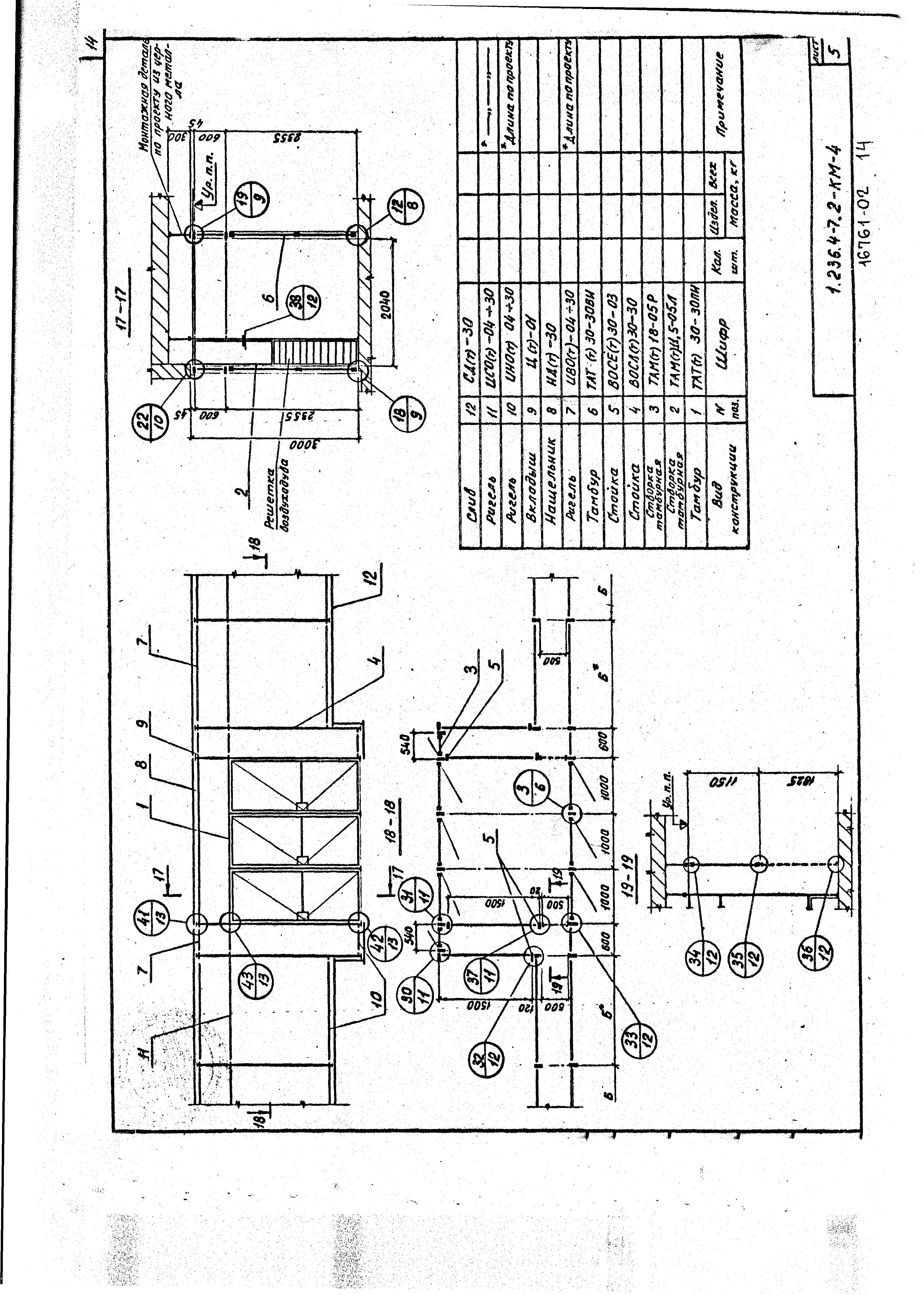
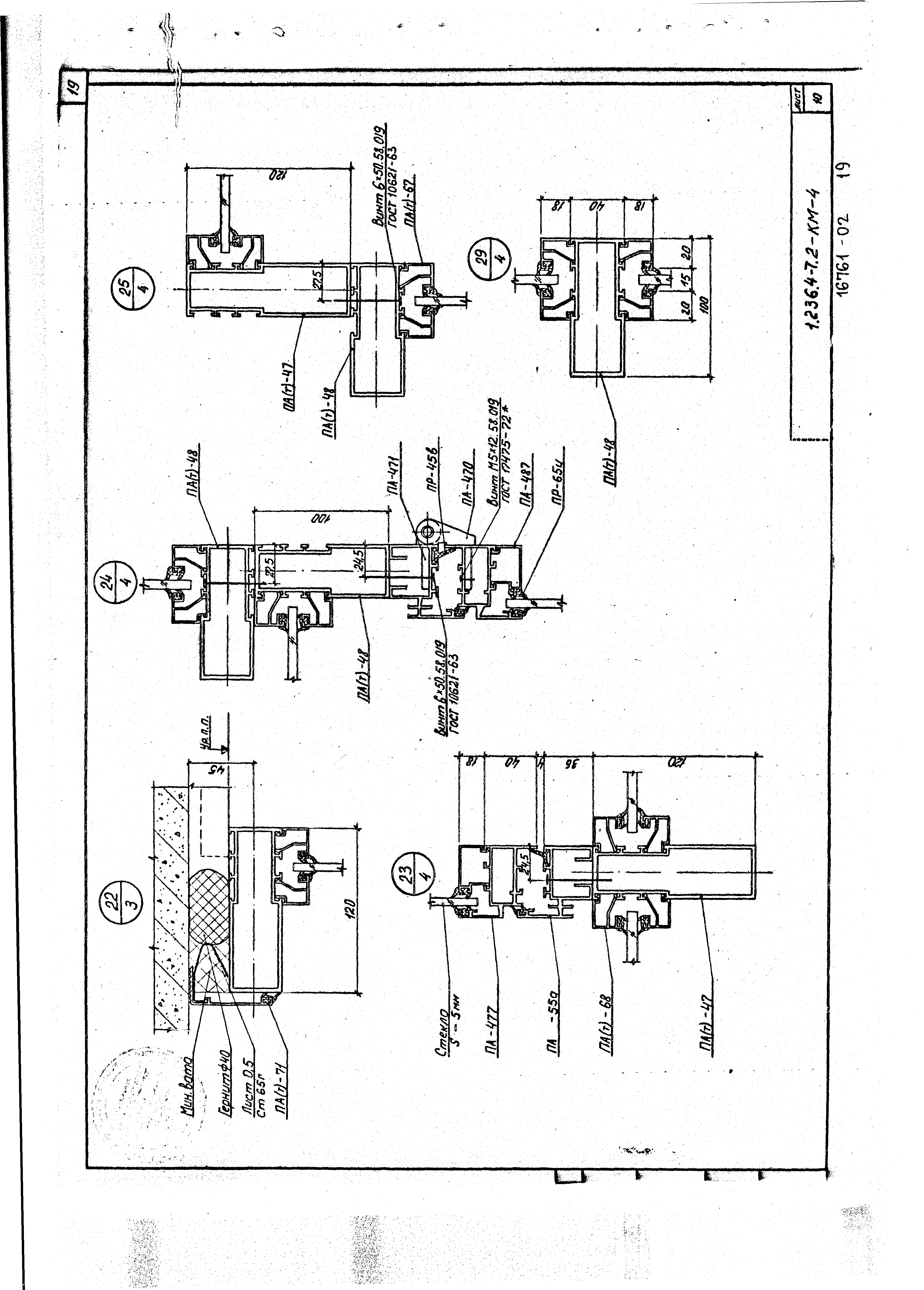
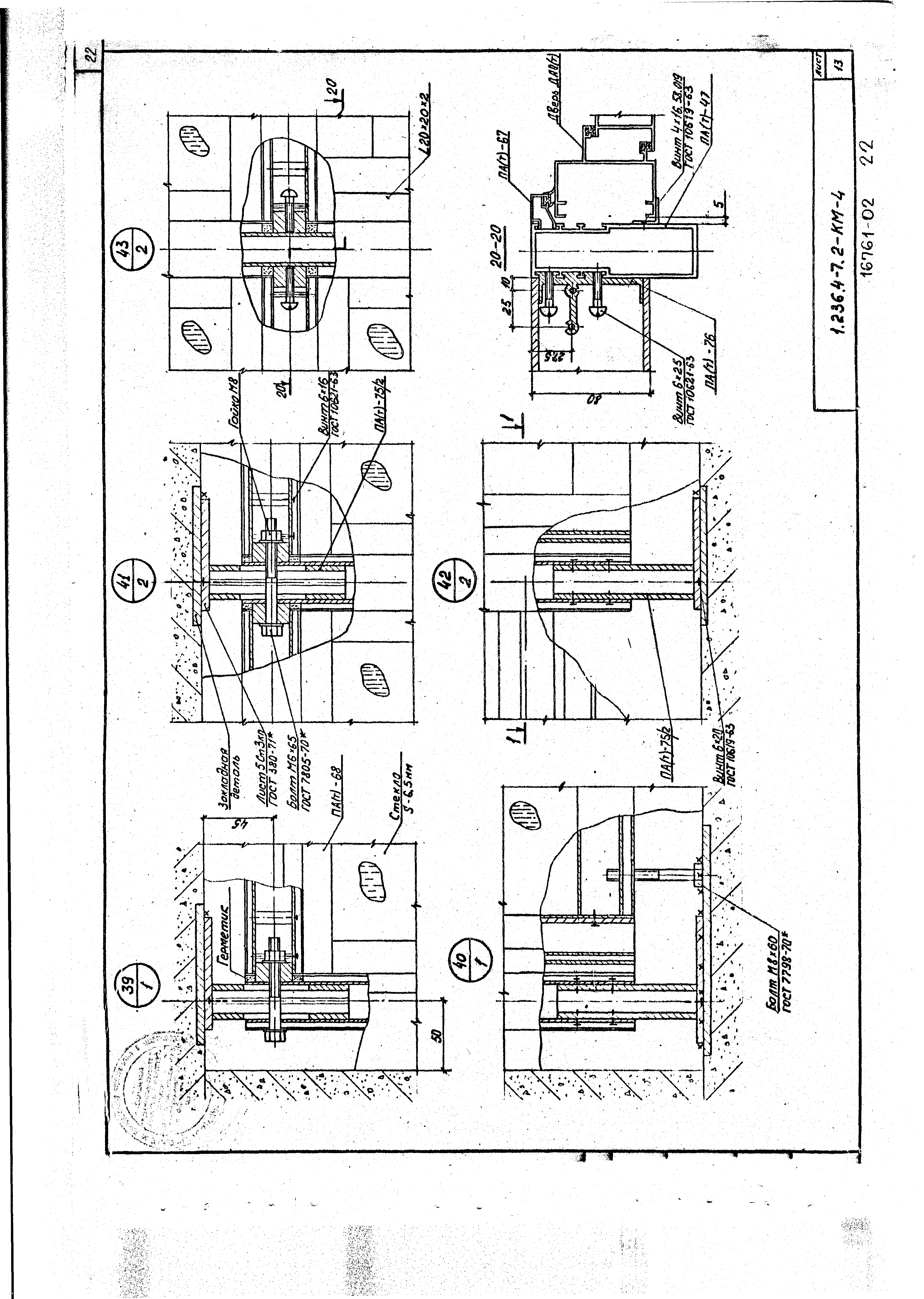
Скачать Серия 1.236.4-7 Выпуск 2. Тамбуры. Чертежи КМДата актуализации: 01.01.2021 Серия 1.236.4-7
Выпуск 2. Тамбуры. Чертежи КМ| Обозначение: | Серия 1.236.4-7 | | Обозначение англ: | Series 1.236.4-7 | | Статус: | не действует | | Название рус.: | Выпуск 2. Тамбуры. Чертежи КМ | | Дата добавления в базу: | 01.09.2013 | | Дата актуализации: | 01.01.2021 | | Дата введения: | 01.07.1980 | | Дата окончания срока действия: | 01.12.1984 | | Разработан: | КиевЗНИИЭП
| | Утверждён: | 02.06.1980 Государственный комитет по гражданскому строительству и архитектуре при Госстрое СССР (139)
|
                                                 
|