Скачать Серия 1.490.1-1 Выпуск 1. Панели стен и плиты покрытий. Рабочие чертежиДата актуализации: 01.01.2021
|
| Обозначение: | Серия 1.490.1-1 |
| Обозначение англ: | Series 1.490.1-1 |
| Статус: | действует |
| Название рус.: | Выпуск 1. Панели стен и плиты покрытий. Рабочие чертежи |
| Дата добавления в базу: | 01.09.2013 |
| Дата актуализации: | 01.01.2021 |
| Дата введения: | 01.10.1984 |
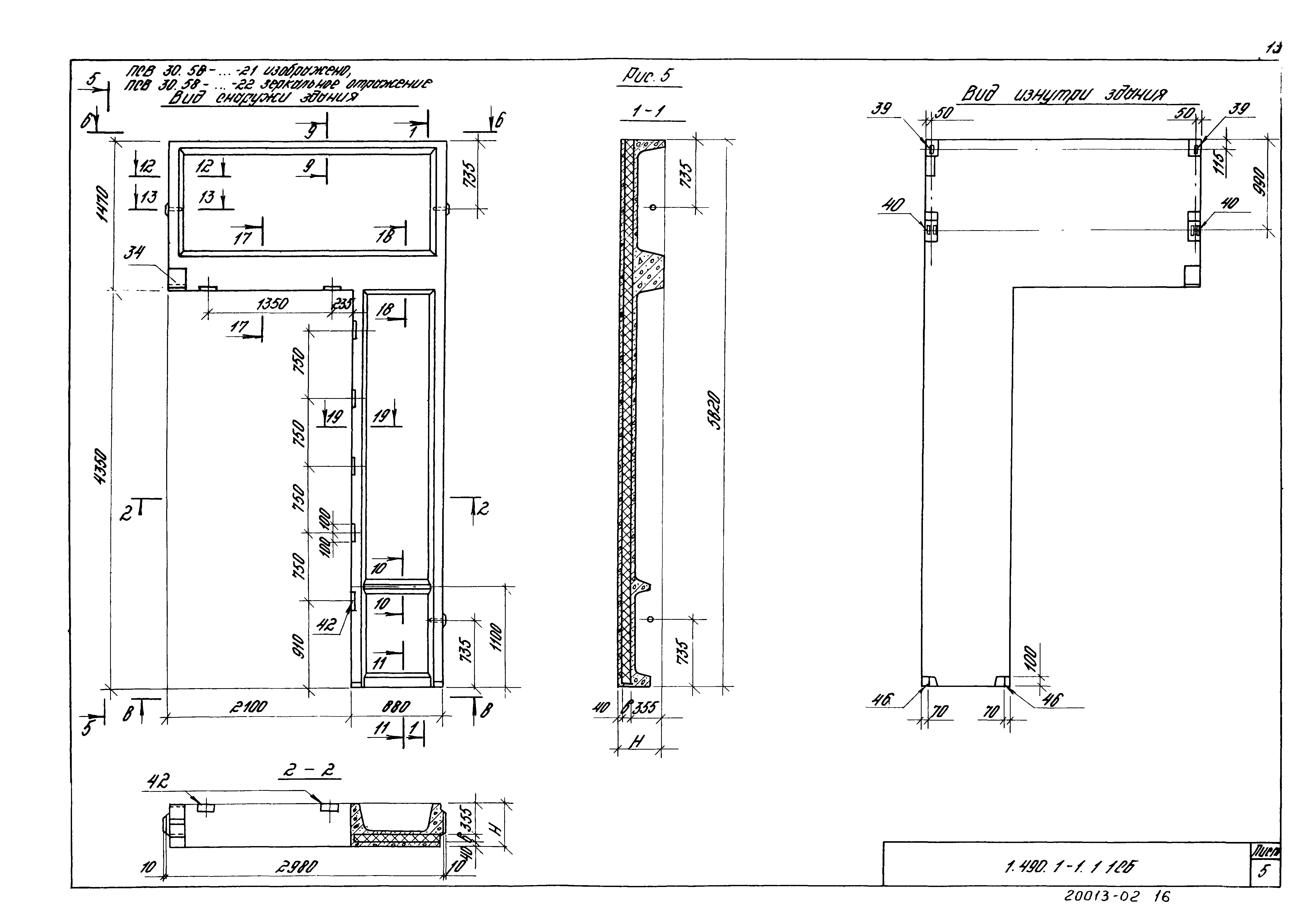
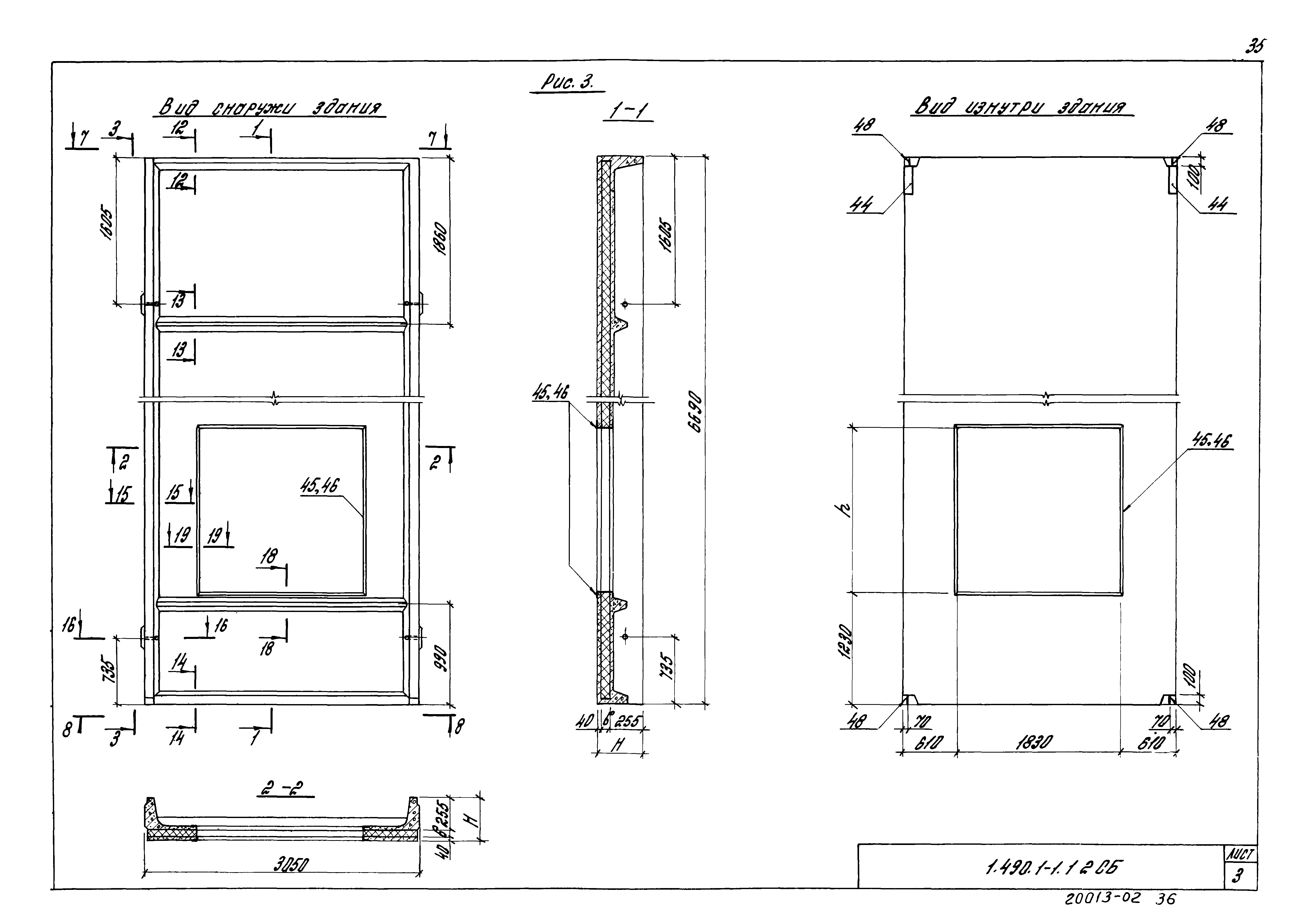
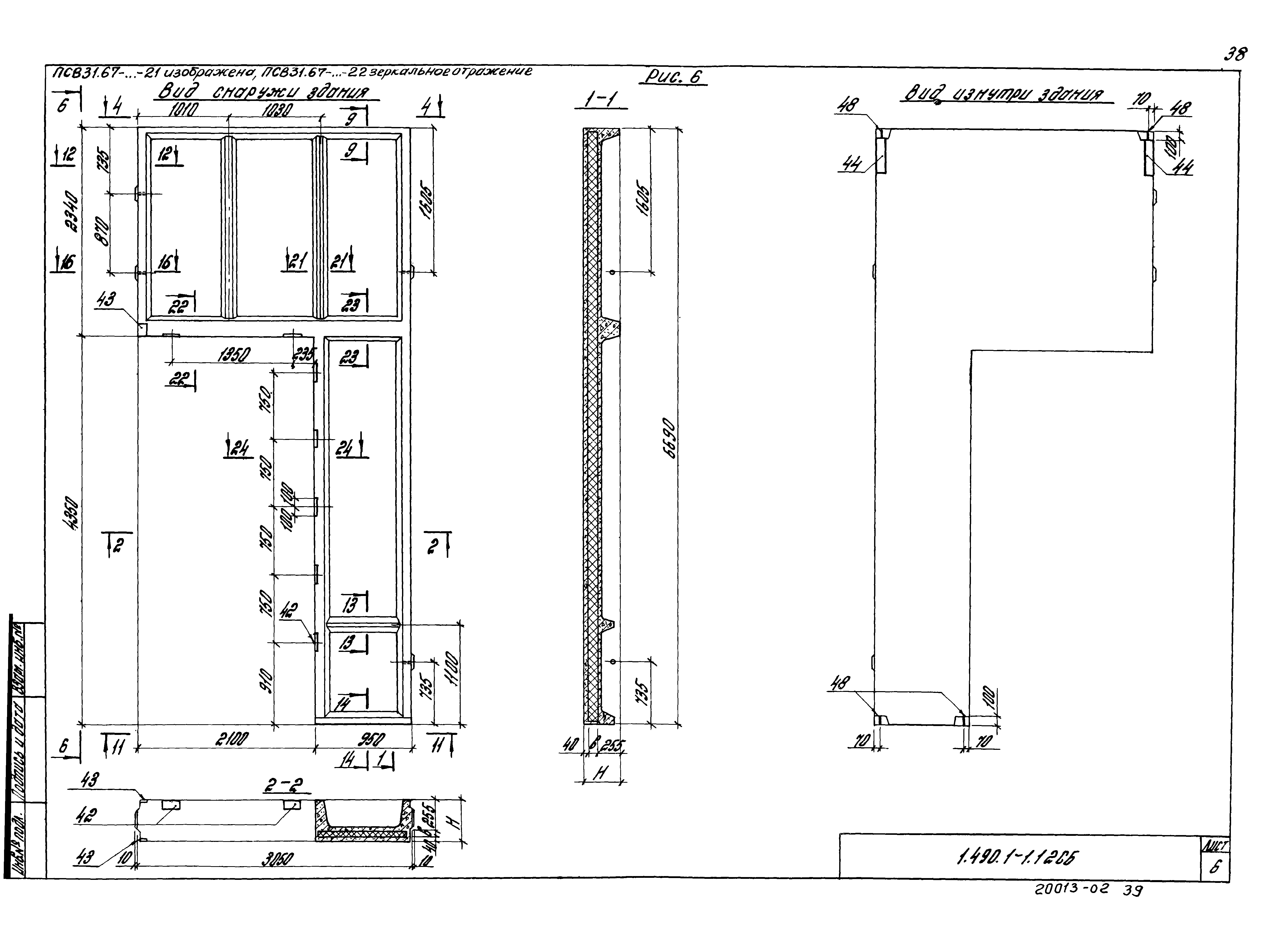
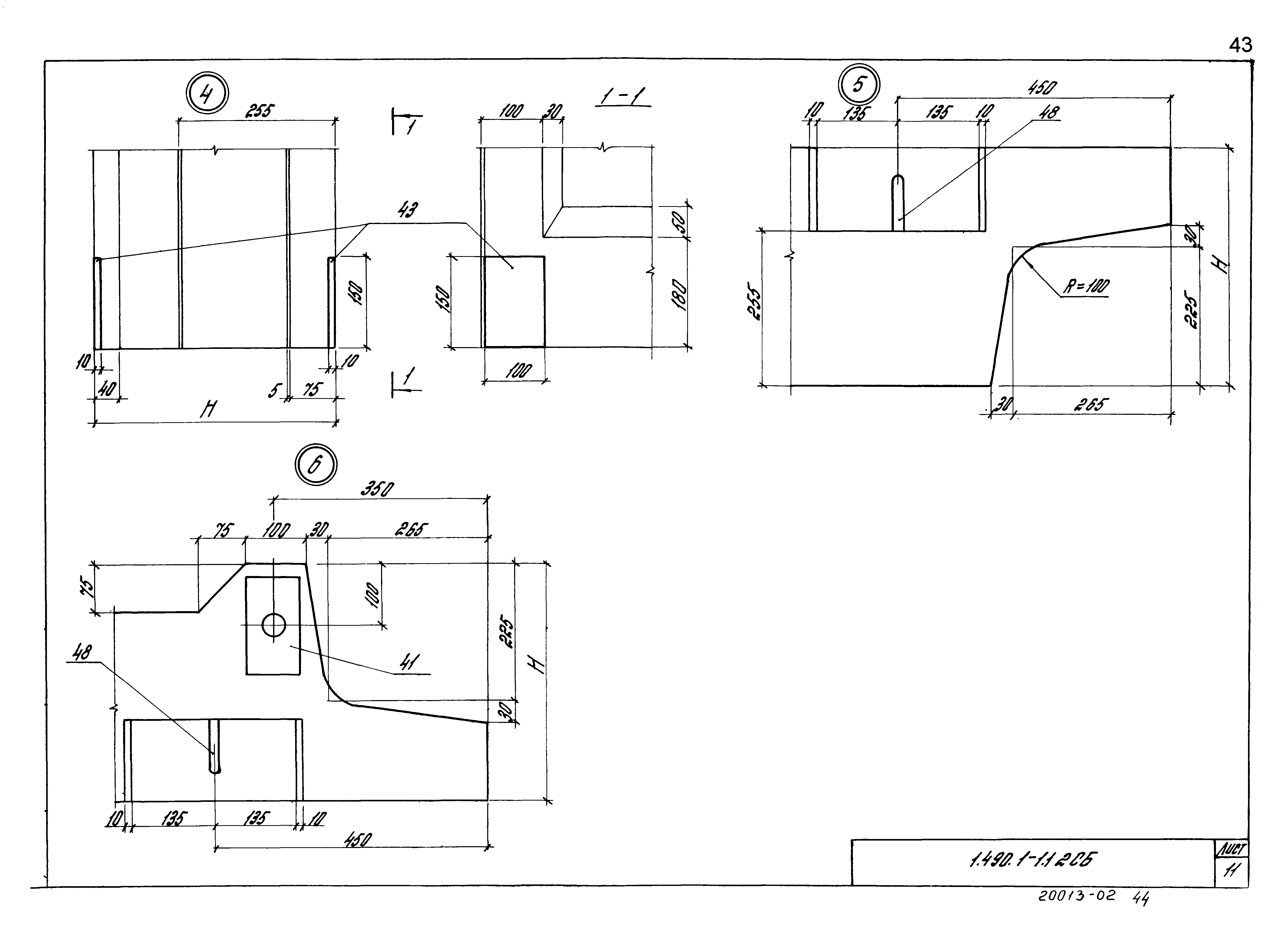
| Оглавление: | 1.490.1-1.1 0ТО Техническое описание 1.490.1-1.1 1 Панель стеновая рядовая 1.490.1-1.1 1СБ Панель стеновая рядовая. Сборочный чертеж 1.490.1-1.1 2 Панель стеновая торцевая 1.490.1-1.1 2СБ Панель стеновая торцевая. Сборочный чертеж 1.490.1-1.1 3 Плита покрытия 1.490.1-1.1 3СБ Плита покрытия. Сборочный чертеж 1.490.1-1.1 4 Панель карнизная ПК30.6 1.490.1-1.1 0ВС Выборка стали 1.490.1-1.1 5 Пример изделий полной заводской готовности |
| Разработан: | АО ЦНИИпромзданий Энерготехпром |
| Утверждён: | 15.08.1984 Госстрой СССР (Государственный комитет Совета Министров СССР по делам строительства) (USSR Gosstroy ) |






































































