Скачать Серия 1.473.9-1 Выпуск 2. Щиты экранов с применением стального профиля. Рабочие чертежиДата актуализации: 01.01.2021
|
| Обозначение: | Серия 1.473.9-1 |
| Обозначение англ: | Series 1.473.9-1 |
| Статус: | не определен законодательством |
| Название рус.: | Выпуск 2. Щиты экранов с применением стального профиля. Рабочие чертежи |
| Дата добавления в базу: | 01.09.2013 |
| Дата актуализации: | 01.01.2021 |
| Дата введения: | 05.05.1990 |
| Дата окончания срока действия: | 30.06.2003 |
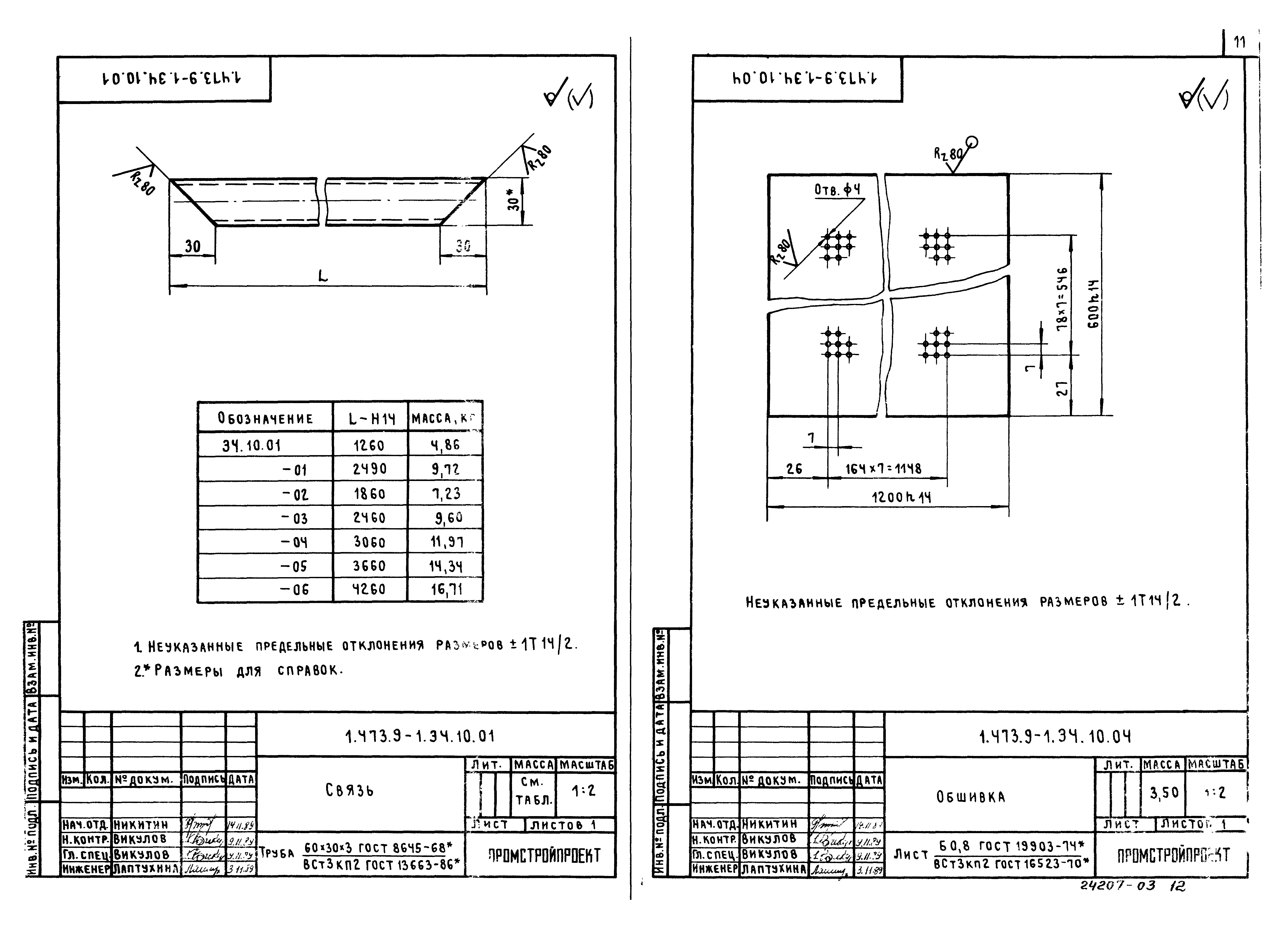
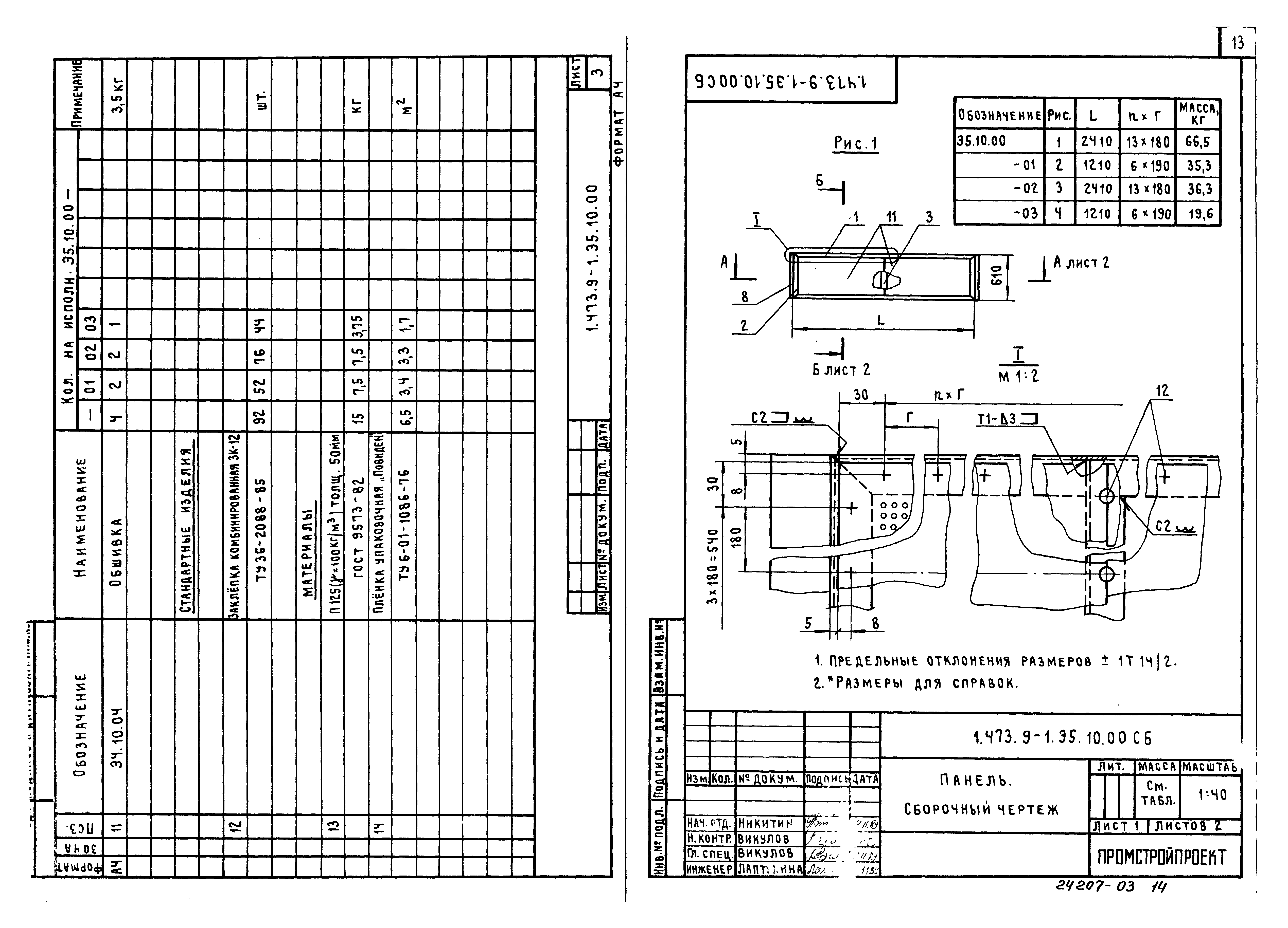
| Оглавление: | 1.473.9-1.30.00.00С Содержание 1.473.9-1.30.00.00ТУ Технические условия 1.473.9-1.34.10.00 Щит 1.473.9-1.34.10.00СБ Щит. Сборочный чертеж 1.473.9-1.34.10.01 Связь 1.473.9-1.34.10.04 Обшивка 1.473.9-1.35.10.00 Панель 1.473.9-1.35.10.00СБ Панель. Сборочный чертеж 1.473.9-1.35.10.01 Связь 1.473.9-1.35.10.02 Стойка |
| Разработан: | Промстройпроект Госстроя СССР |
| Утверждён: | 03.11.1988 Госстрой СССР (Государственный комитет Совета Министров СССР по делам строительства) (USSR Gosstroy 5-476) |
| Издан: | ЦИТП Госстроя СССР (CITP, Gosstroy (USSR) 1990 г. ) |
















