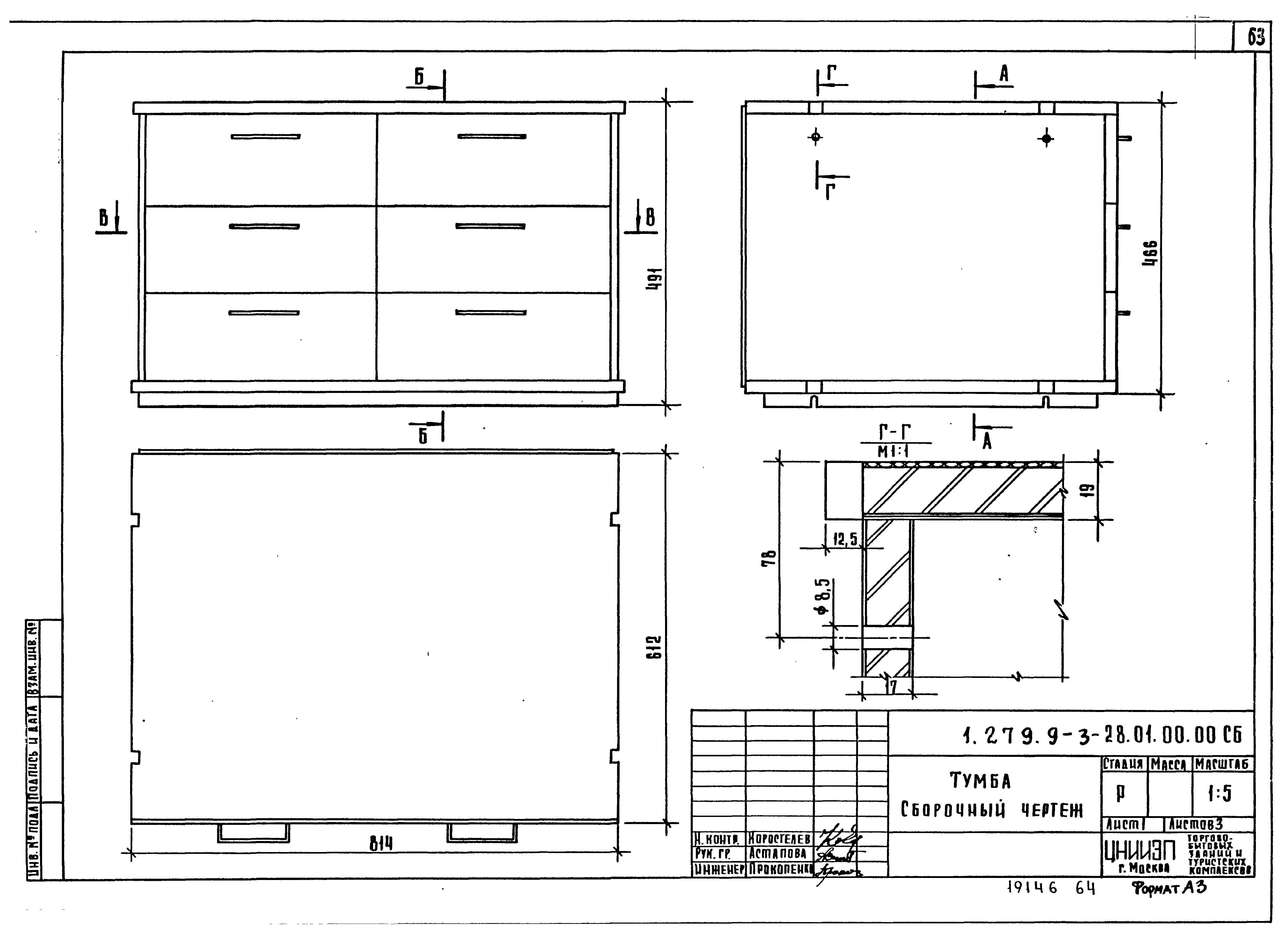
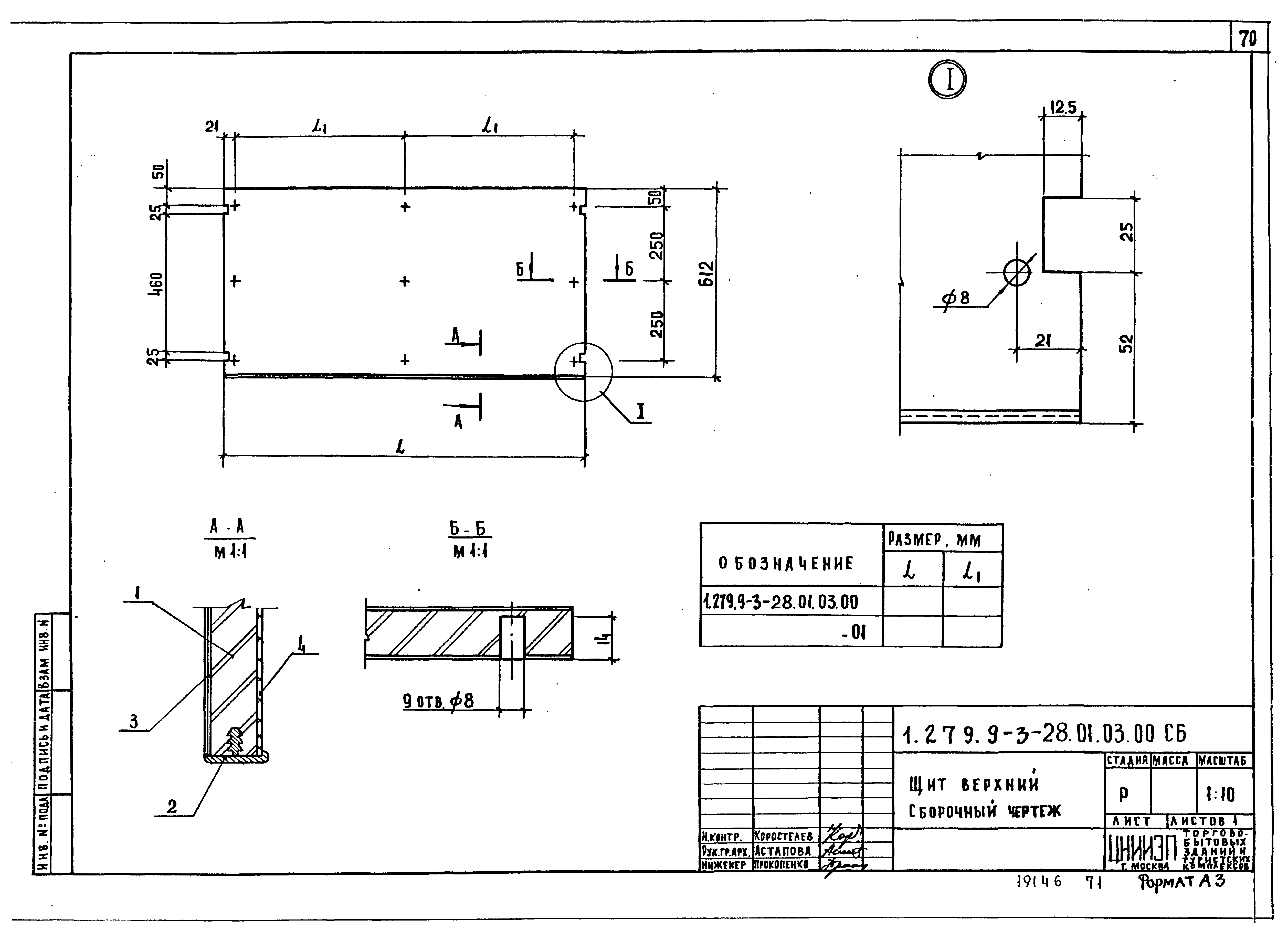
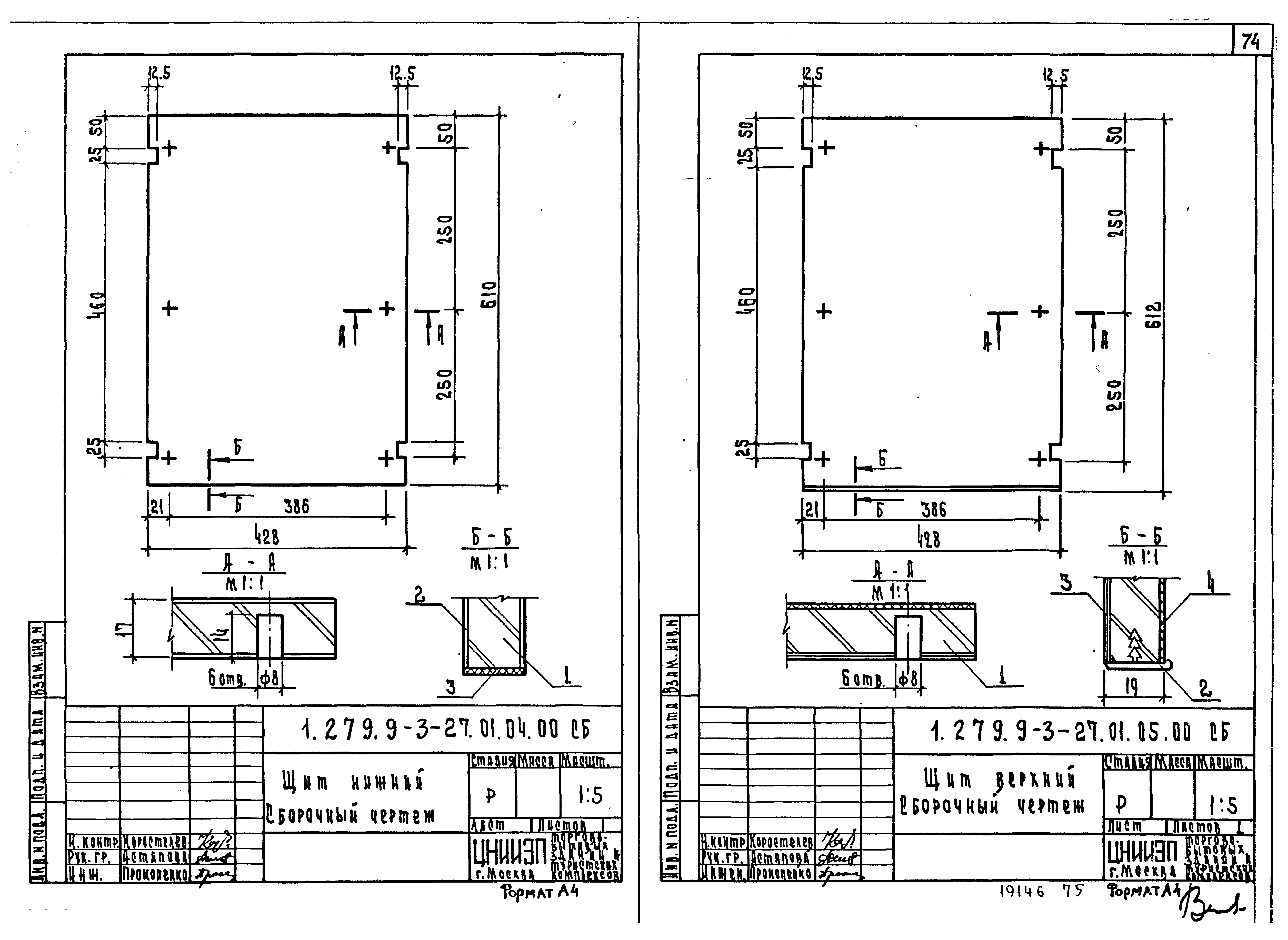
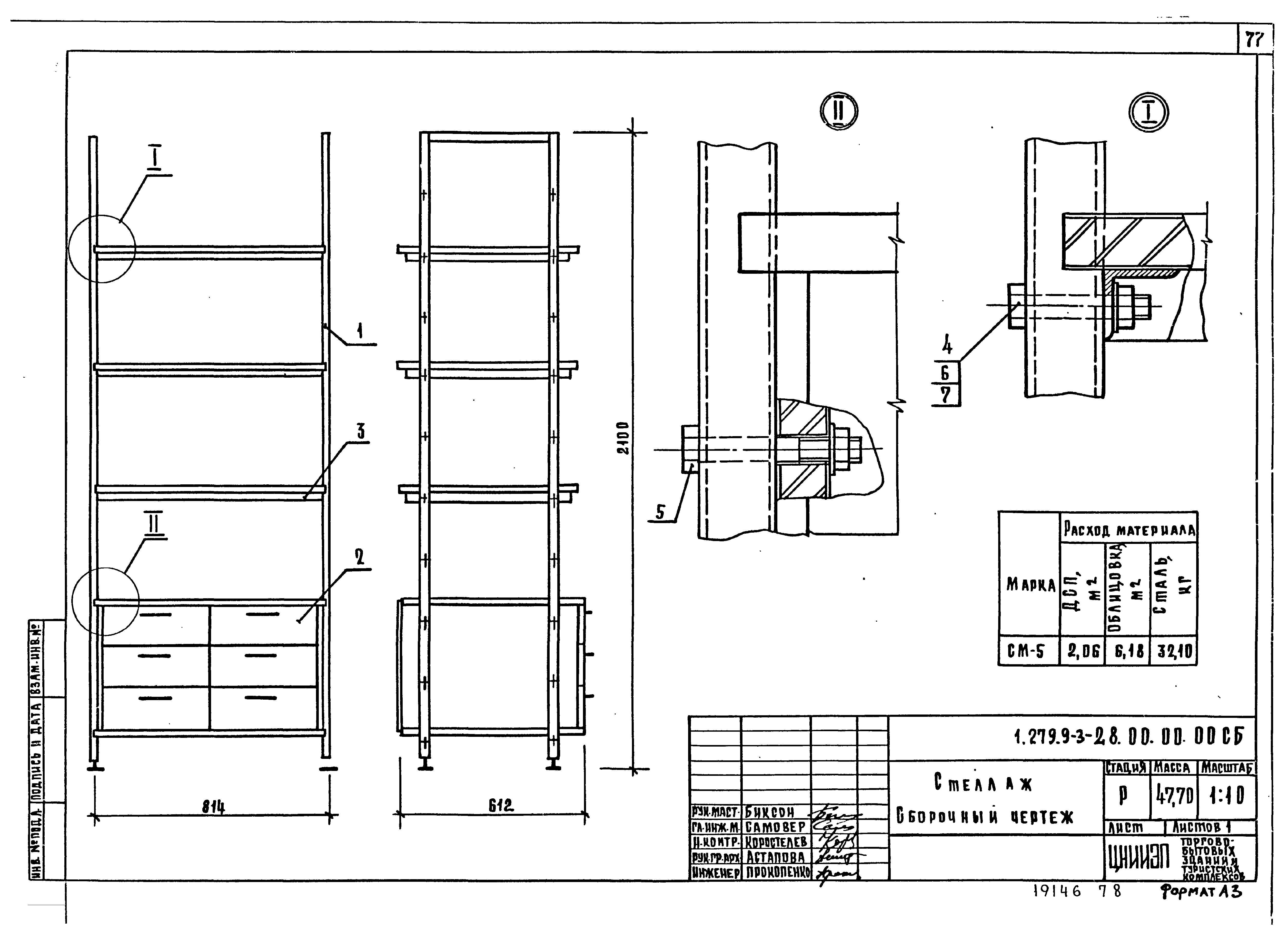
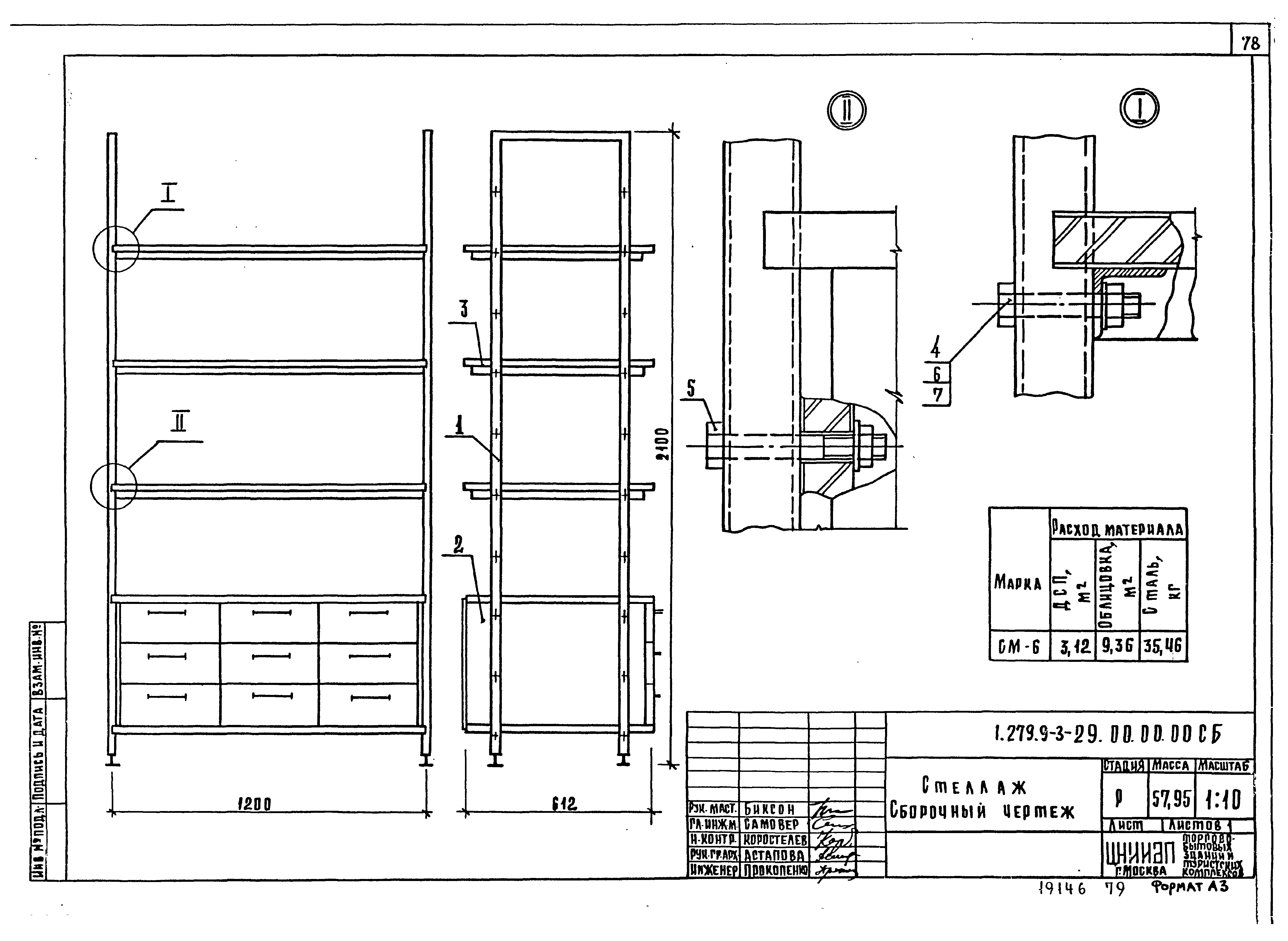
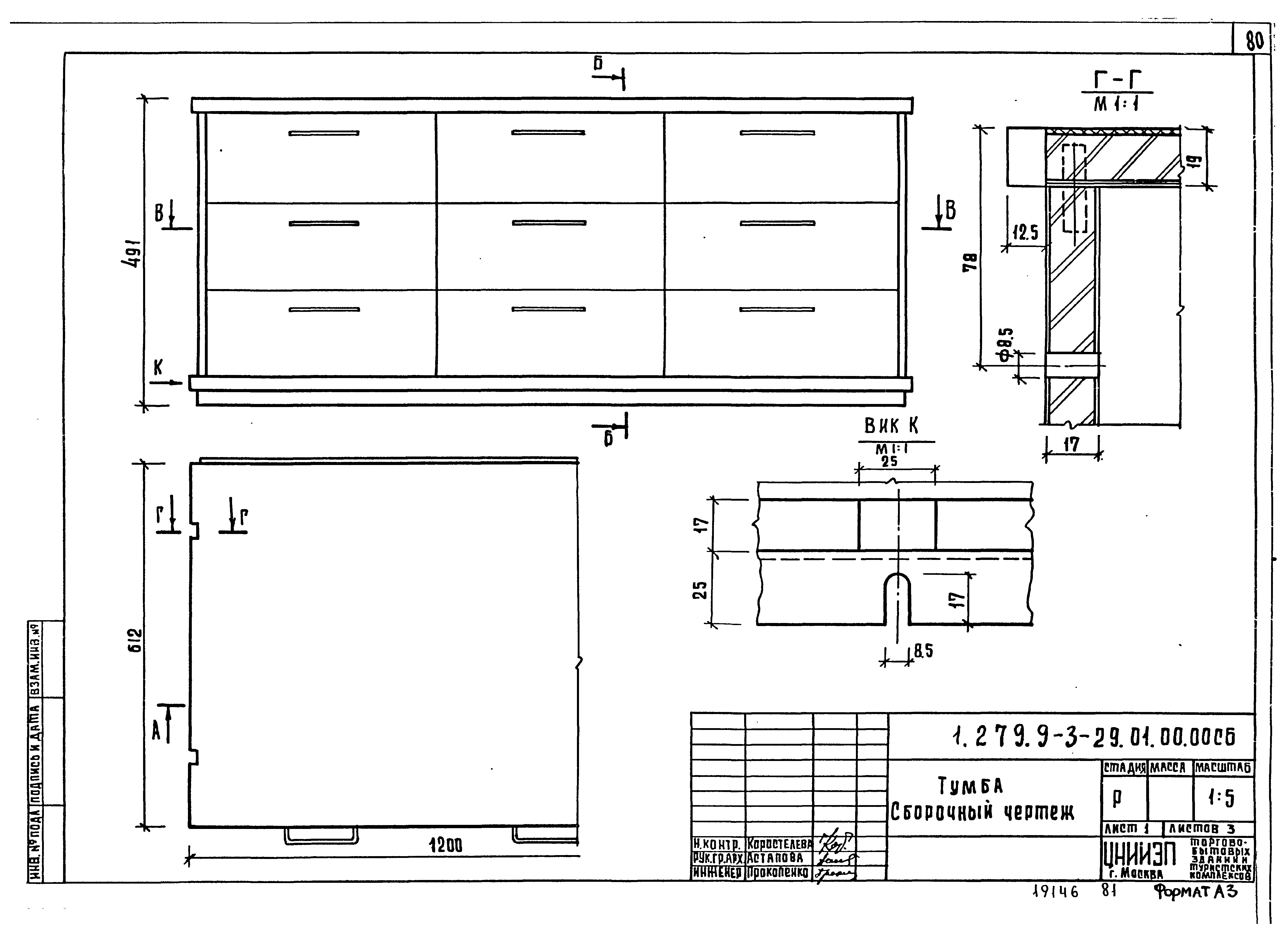
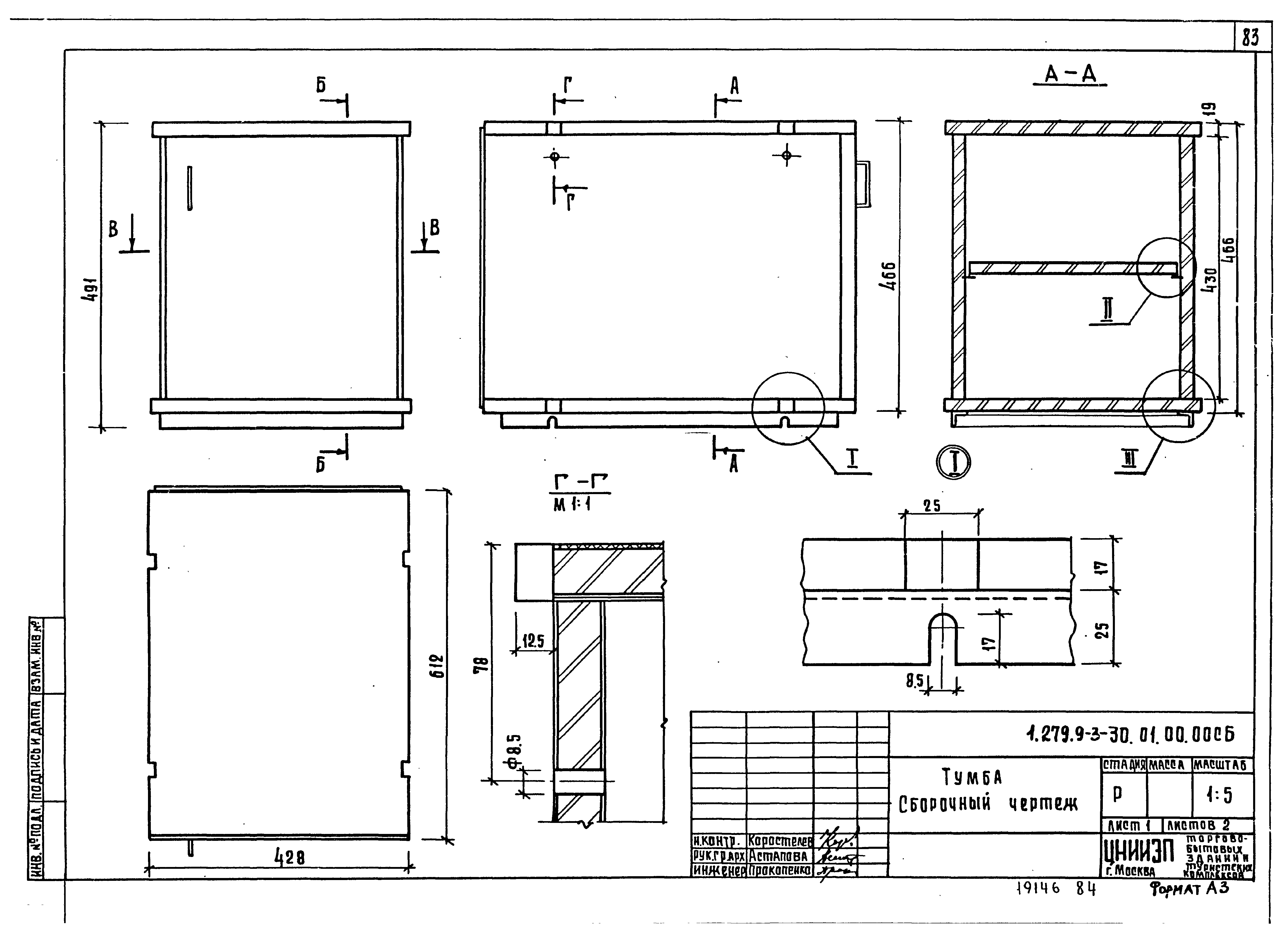
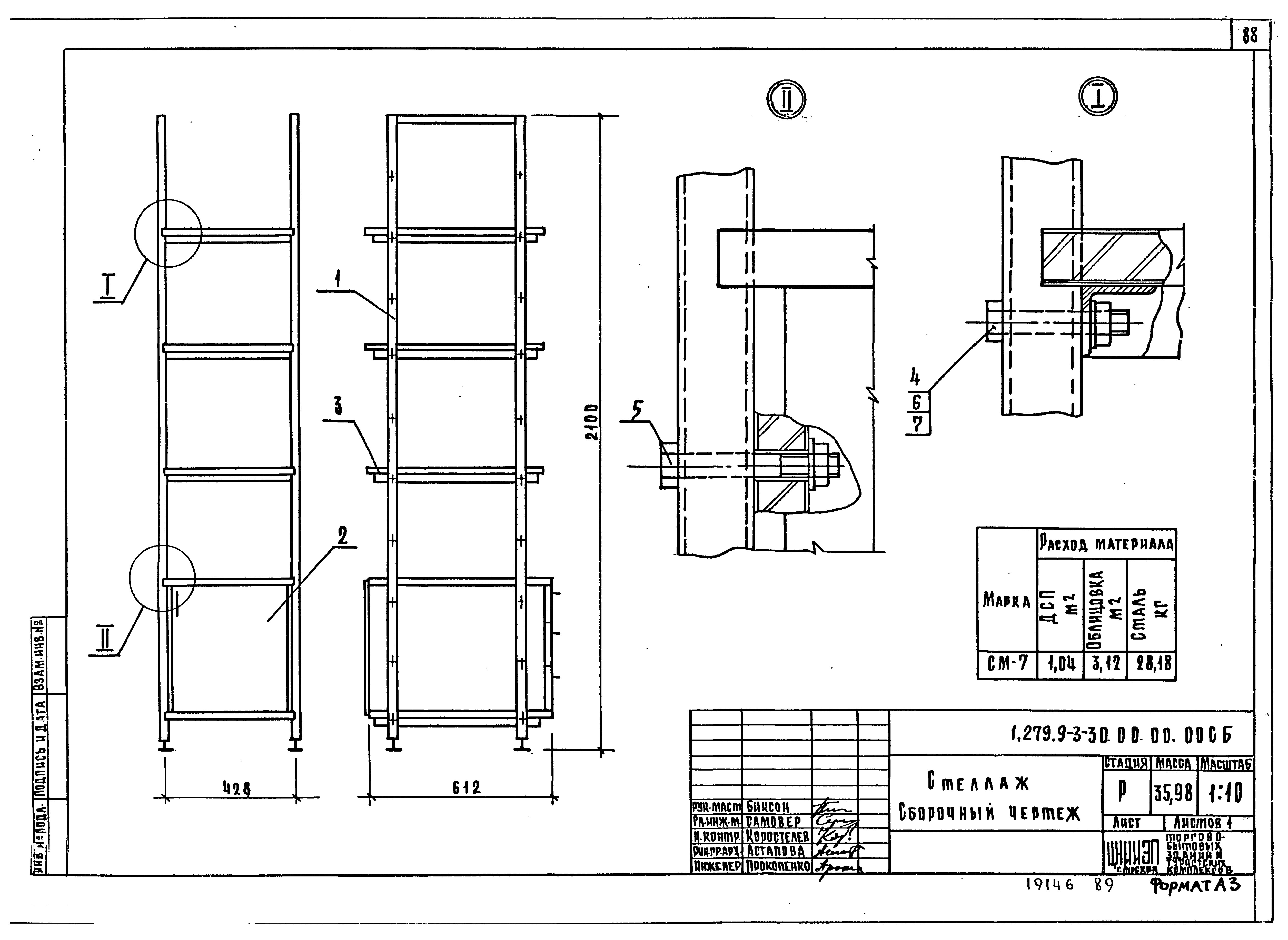
Скачать Серия 1.279.9-3 Оборудование для зданий торговли, общественного питания и бытового обслуживания (секция с мойкой, секции навесные, стол рабочий, стол раздаточный, стеллажи)Дата актуализации: 01.01.2021 Серия 1.279.9-3
Оборудование для зданий торговли, общественного питания и бытового обслуживания (секция с мойкой, секции навесные, стол рабочий, стол раздаточный, стеллажи)| Обозначение: | Серия 1.279.9-3 | | Обозначение англ: | Series 1.279.9-3 | | Статус: | не определен законодательством | | Название рус.: | Оборудование для зданий торговли, общественного питания и бытового обслуживания (секция с мойкой, секции навесные, стол рабочий, стол раздаточный, стеллажи) | | Дата добавления в базу: | 01.09.2013 | | Дата актуализации: | 01.01.2021 | | Дата введения: | 01.11.1983 | | Дата окончания срока действия: | 30.06.2003 | | Разработан: | ЦНИИЭП торгово-бытовых зданий и туристских комплексов
| | Утверждён: | 19.09.1983 Госгражданстрой (Gosgrazhdanstroy 270)
|
                                                                                              
|