Скачать Серия 3.006.1-7 Выпуск 0. Материалы для проектированияДата актуализации: 01.01.2021
|
| Обозначение: | Серия 3.006.1-7 |
| Обозначение англ: | Series 3.006.1-7 |
| Статус: | не определен законодательством |
| Название рус.: | Выпуск 0. Материалы для проектирования |
| Дата добавления в базу: | 01.09.2013 |
| Дата актуализации: | 01.01.2021 |
| Дата введения: | 01.07.1991 |
| Дата окончания срока действия: | 30.06.2003 |
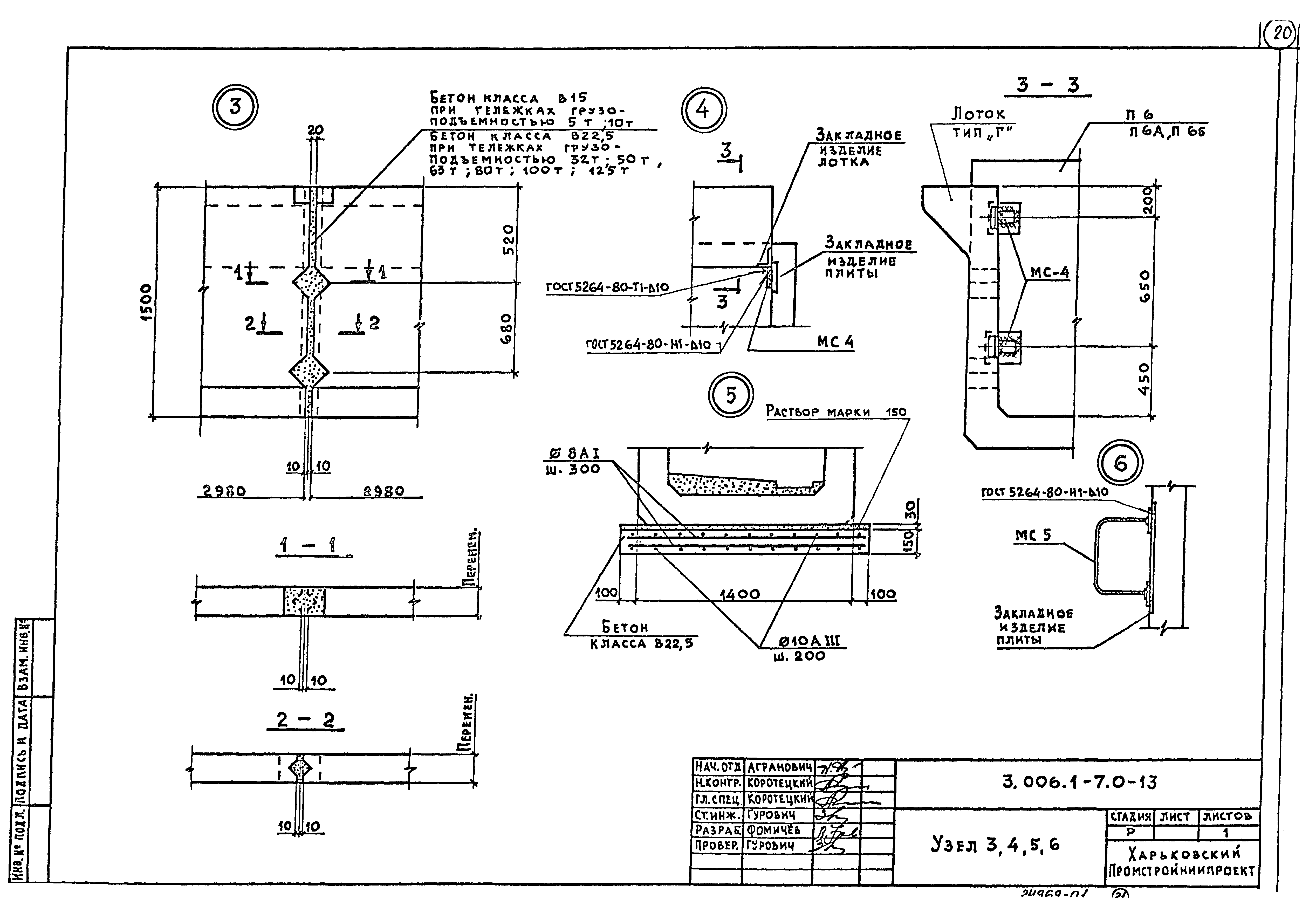
| Оглавление: | 3.006.1-7.0-ПЗ Пояснительная записка 3.006.1-7.0-1 НИ Номенклатура сборных железобетонных лотков 3.006.1-7.0-2 НИ Номенклатура сборных железобетонных плит 3.006.1-7.0-3 Монтажные схемы каналов для троллейного токопровода к электрическим передаточным тележкам грузоподъемностью 5 т 3.006.1-7.0-4 Монтажные схемы каналов для троллейного токопровода к электрическим передаточным тележкам грузоподъемностью 10 т, 20 т, 32 т 3.006.1-7.0-5 Монтажные схемы каналов для троллейного токопровода к электрическим передаточным тележкам грузоподъемностью 50 т, 63 т 3.006.1-7.0-6 Монтажные схемы каналов для троллейного токопровода к электрическим передаточным тележкам грузоподъемностью 80 т, 100 т, 125 т 3.006.1-7.0-7 Монтажные схемы каналов для гибкого токопровода к электрическим передаточным тележкам грузоподъемностью 5 т 3.006.1-7.0-8 Монтажные схемы каналов для гибкого токопровода к электрическим передаточным тележкам грузоподъемностью 10 т, 20 т, 32 т 3.006.1-7.0-9 Монтажные схемы каналов для гибкого токопровода к электрическим передаточным тележкам грузоподъемностью 50 т, 63 т 3.006.1-7.0-10 Монтажные схемы каналов для гибкого токопровода к электрическим передаточным тележкам грузоподъемностью 80 т, 100 т, 125 т 3.006.1-7.0-11 Разрез 2-2, 3-3 3.006.1-7.0-12 Узел 1, 2 3.006.1-7.0-13 Узел 3, 4, 5, 6 |
| Разработан: | Харьковский Промстройниипроект |
| Утверждён: | 13.12.1990 Госстрой СССР (Государственный комитет Совета Министров СССР по делам строительства) (USSR Gosstroy 5/65-954) |





















