Скачать Серия 3.016.1-13 Выпуск 0-2. Узлы совмещения кабельных эстакад с электропомещениями. Примеры решений. Материалы для проектированияДата актуализации: 01.01.2021
|
| Обозначение: | Серия 3.016.1-13 |
| Обозначение англ: | Series 3.016.1-13 |
| Статус: | не определен законодательством |
| Название рус.: | Выпуск 0-2. Узлы совмещения кабельных эстакад с электропомещениями. Примеры решений. Материалы для проектирования |
| Дата добавления в базу: | 01.09.2013 |
| Дата актуализации: | 01.01.2021 |
| Дата введения: | 01.04.1992 |
| Дата окончания срока действия: | 30.06.2003 |
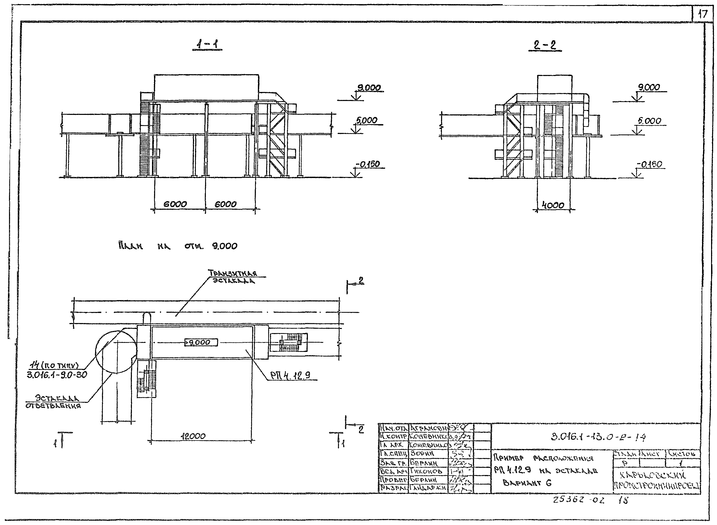
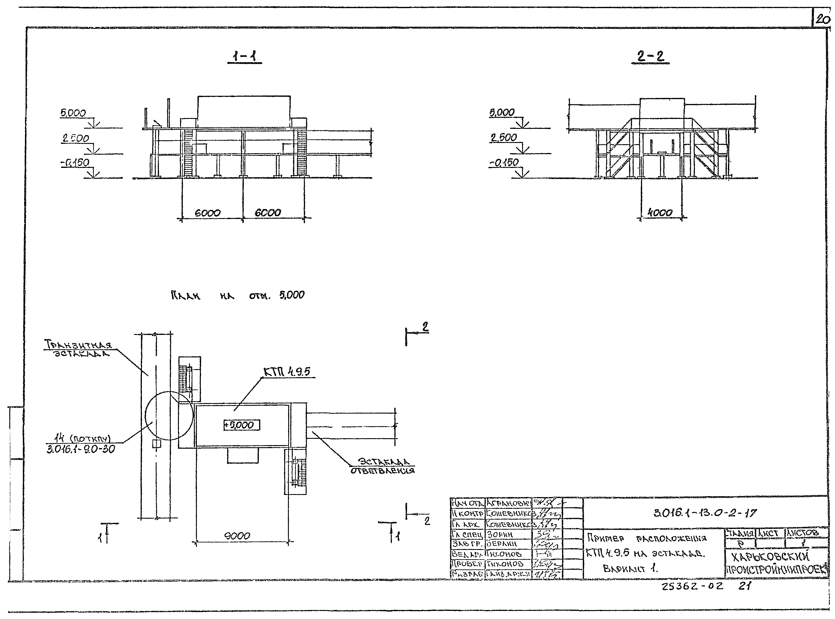
| Оглавление: | 3.016.1-13.0-2-ПЗ Пояснительная записка 3.016.1-13.0-2-1 Пример расположения НКУ 3.12.5 на эстакаде. Вариант 1 3.016.1-13.0-2-2 Пример расположения НКУ 3.6.5-п на эстакаде. Вариант 2 3.016.1-13.0-2-3 Пример расположения НКУ 3.6.9 на эстакаде. Вариант 3 3.016.1-13.0-2-4 Пример расположения НКУ 3.6.5 на эстакаде. Вариант 4 3.016.1-13.0-2-5 Пример расположения НКУ 3.6.9 на эстакаде. Вариант 5 3.016.1-13.0-2-6 Пример расположения НКУ 3.6.9 на эстакаде. Вариант 6 3.016.1-13.0-2-7 Пример расположения НКУ 3.6.9 на эстакаде. Вариант 7 3.016.1-13.0-2-8 Пример расположения НКУ 3.6.9 на эстакаде. Вариант 8 3.016.1-13.0-2-9 Пример расположения РП 4.12.5 на эстакаде. Вариант 1 3.016.1-13.0-2-10 Пример расположения РП 4.12.9 на эстакаде. Вариант 2 3.016.1-13.0-2-11 Пример расположения РП 4.12.9 на эстакаде. Вариант 3 3.016.1-13.0-2-12 Пример расположения РП 4.12.5 на эстакаде. Вариант 4 3.016.1-13.0-2-13 Пример расположения РП 4.12.9 на эстакаде. Вариант 5 3.016.1-13.0-2-14 Пример расположения РП 4.12.9 на эстакаде. Вариант 6 3.016.1-13.0-2-15 Пример расположения РП 4.12.9 на эстакаде. Вариант 7 3.016.1-13.0-2-16 Пример расположения РП 4.12.9 на эстакаде. Вариант 8 3.016.1-13.0-2-17 Пример расположения КТП 4.9.5 на эстакаде. Вариант 1 3.016.1-13.0-2-18 Пример расположения КТП 4.9.9 на эстакаде. Вариант 2 3.016.1-13.0-2-19 Пример расположения КТП 4.9.9 на эстакаде. Вариант 3 3.016.1-13.0-2-20 Пример расположения КТП 4.9.9 на эстакаде. Вариант 4 3.016.1-13.0-2-21 Пример расположения КТП 4.9.9 на эстакаде. Вариант 5 3.016.1-13.0-2-22 Пример расположения КТП 4.15.9 на эстакаде. Вариант 6 3.016.1-13.0-2-23 Пример расположения КТП 4.15.9 на эстакаде. Вариант 7 3.016.1-13.0-2-24 Пример расположения КТП 4.9.9 на эстакаде. Вариант 8 3.016.1-13.0-2-25 Пример расположения НКУ 3.6.9, РП4.12.9 и КТП4.9.9 на эстакадах. Комплекс 1 3.016.1-13.0-2-26 Пример расположения НКУ 3.6.9, РП4.12.9 и КТП4.9.9 на эстакадах. Комплекс 2 3.016.1-13.0-2-27 Пример расположения КТП4.15.9, РП4.12.99 и НКУ3.6.9 на эстакадах. Комплекс 3 |
| Разработан: | Харьковский Промстройниипроект |
| Утверждён: | 23.12.1991 Концерн Электромонтаж (06-3-10) |
| Издан: | АПП ЦИТП (1992 г. ) |































