Скачать Серия 3.402-19 Переходы (надземные, балочные) магистральных нефтепроводов диаметром 530-1420 мм через искусственные и естественные преградыДата актуализации: 01.01.2021 Серия 3.402-19
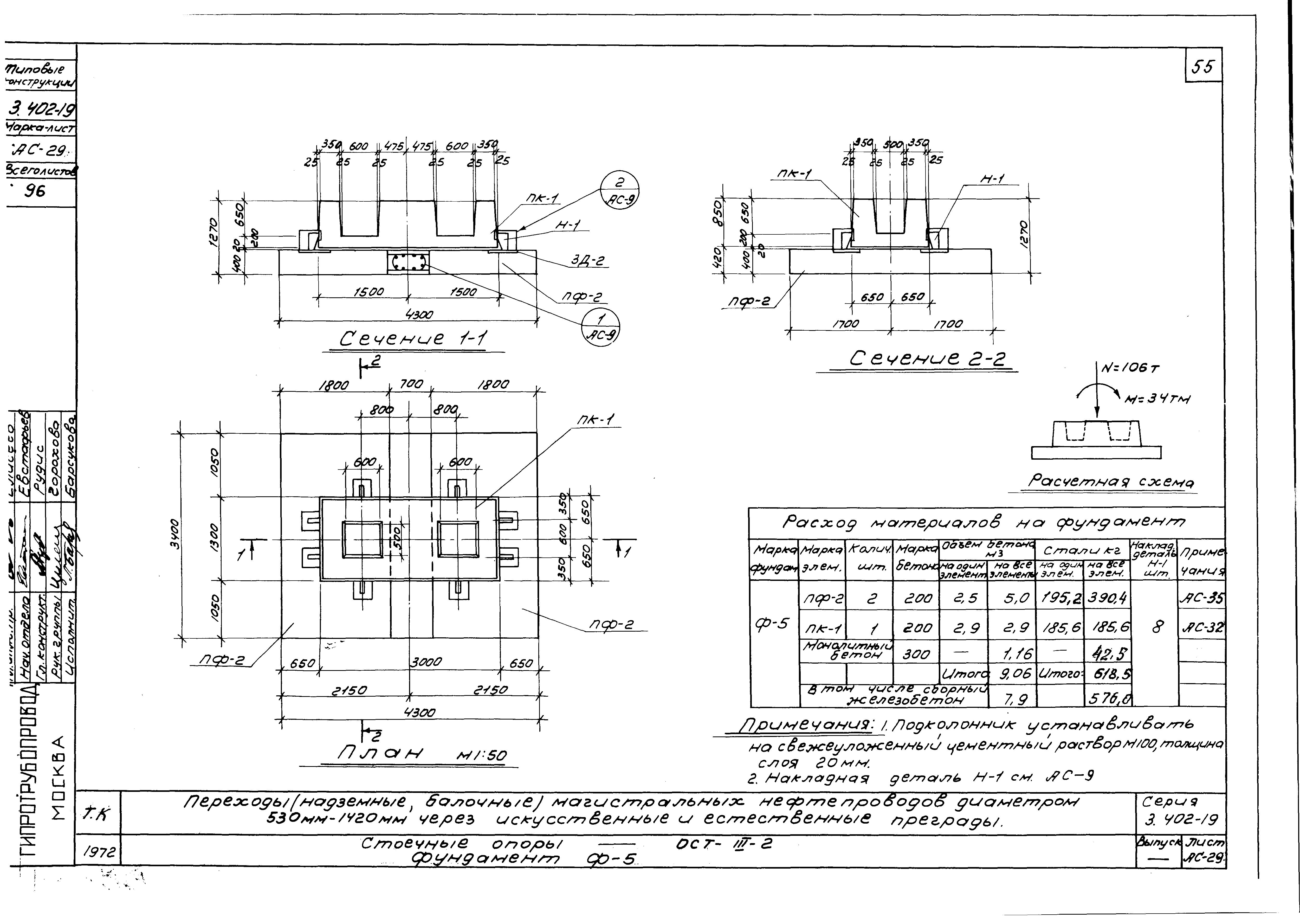
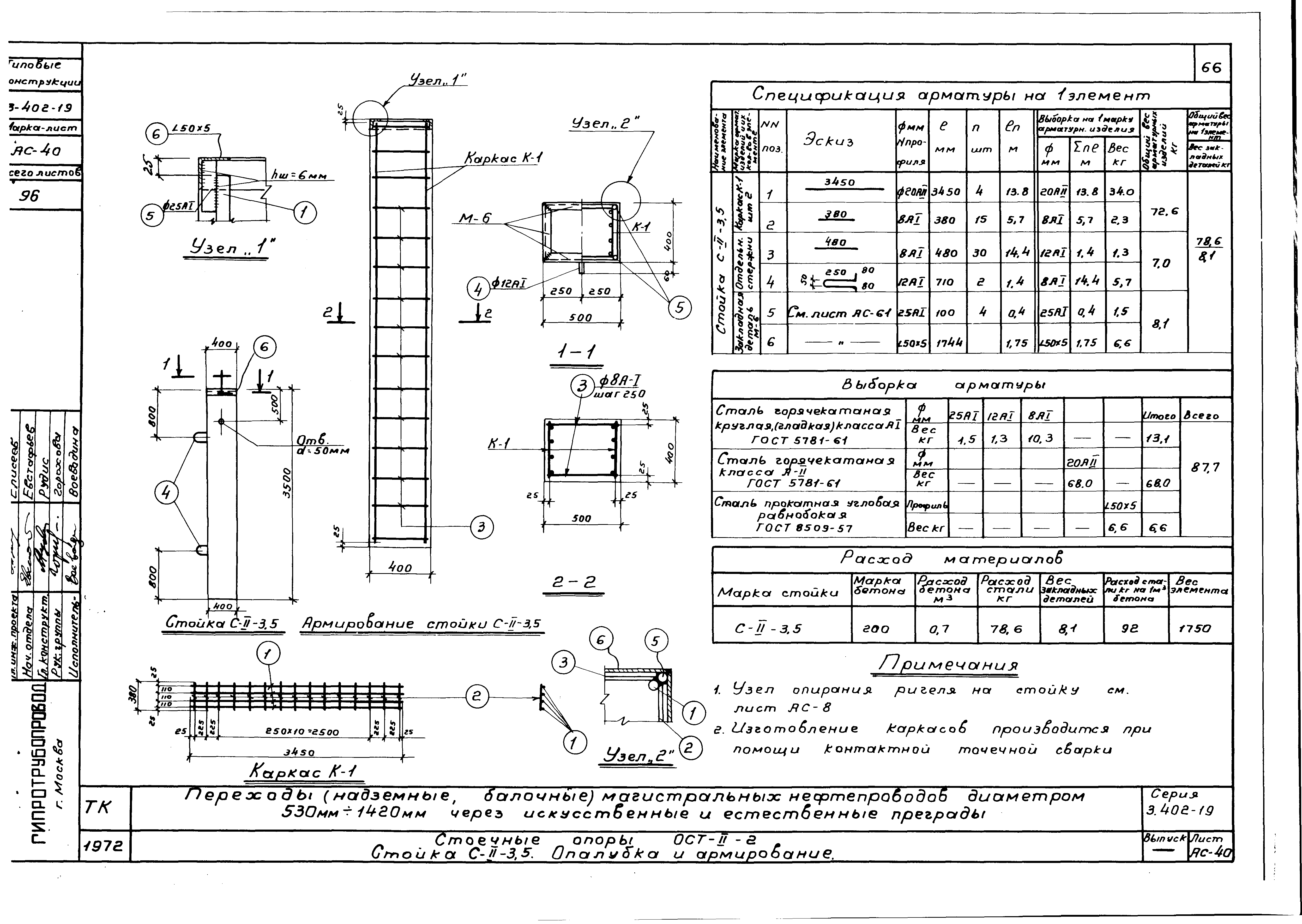
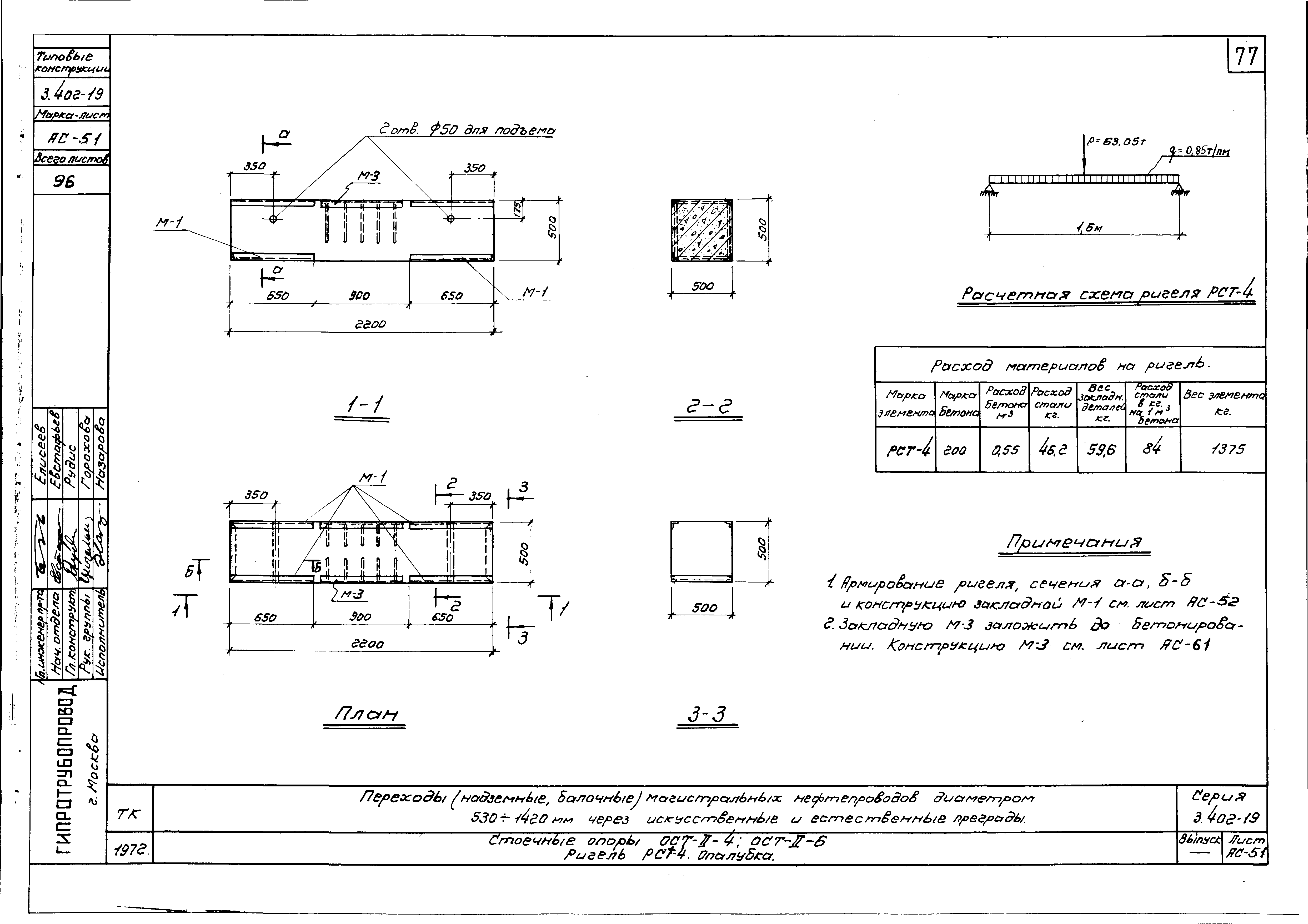
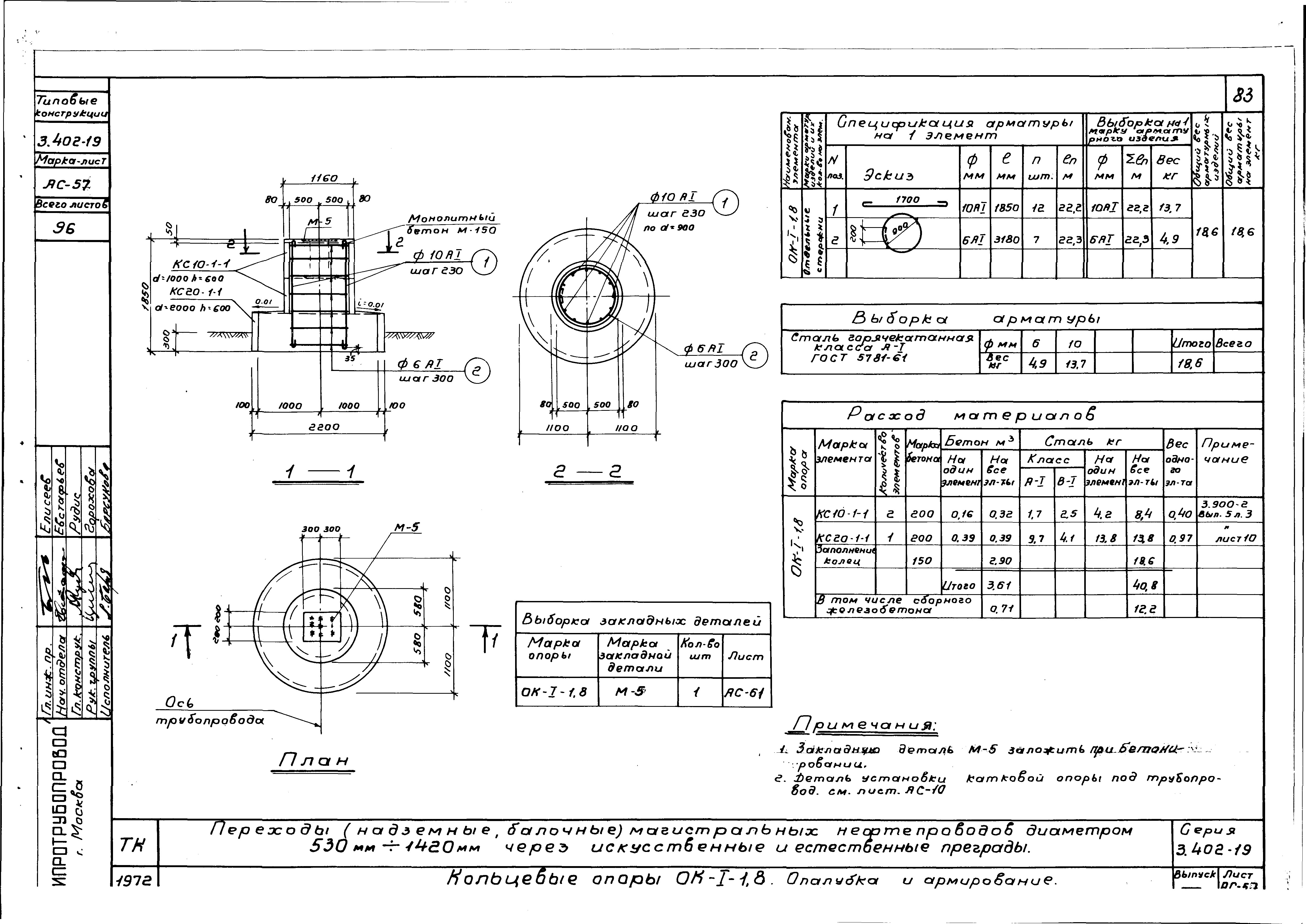
Переходы (надземные, балочные) магистральных нефтепроводов диаметром 530-1420 мм через искусственные и естественные преграды| Обозначение: | Серия 3.402-19 | | Обозначение англ: | Series 3.402-19 | | Статус: | не определен законодательством | | Название рус.: | Переходы (надземные, балочные) магистральных нефтепроводов диаметром 530-1420 мм через искусственные и естественные преграды | | Дата добавления в базу: | 01.09.2013 | | Дата актуализации: | 01.01.2021 | | Дата введения: | 01.11.1972 | | Дата окончания срока действия: | 30.06.2003 | | Область применения: | В альбоме разработаны типовые конструкции прямолинейных надземных балочных переходов магистральных нефтепроводов через искусственные и естественные преграды общей длиной до 150 м (с числом пролетов не более четырех), без устройства специальных компенсирующих устройств, использующих самонесущую способность трубопроводов | | Разработан: | Гипротрубопровод Миннефтепрома (Giprotruboprovod, Minnefteprom )
| | Утверждён: | 20.10.1972 Миннефтепром (Minnefteprom )
|
                                                                                               
|