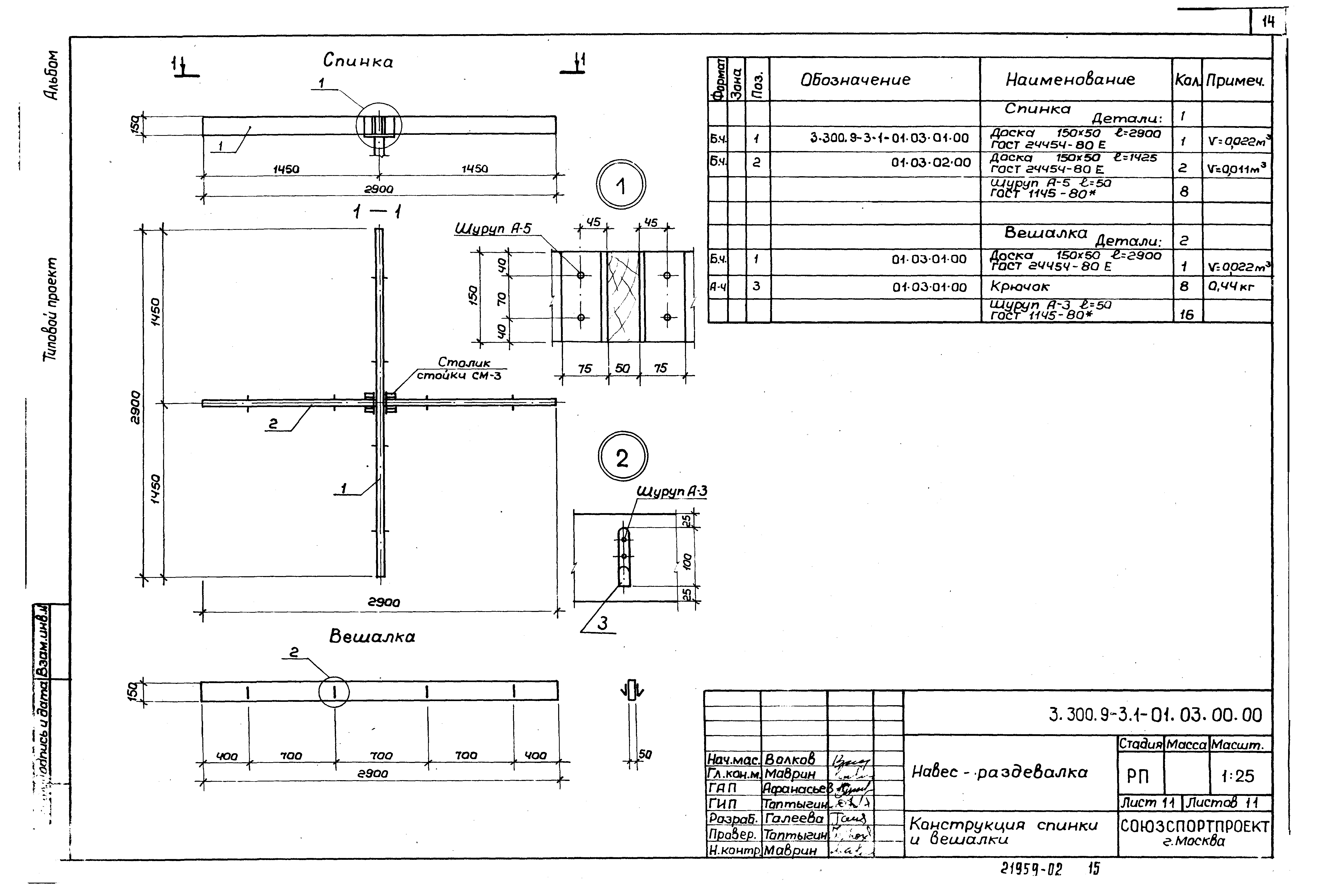
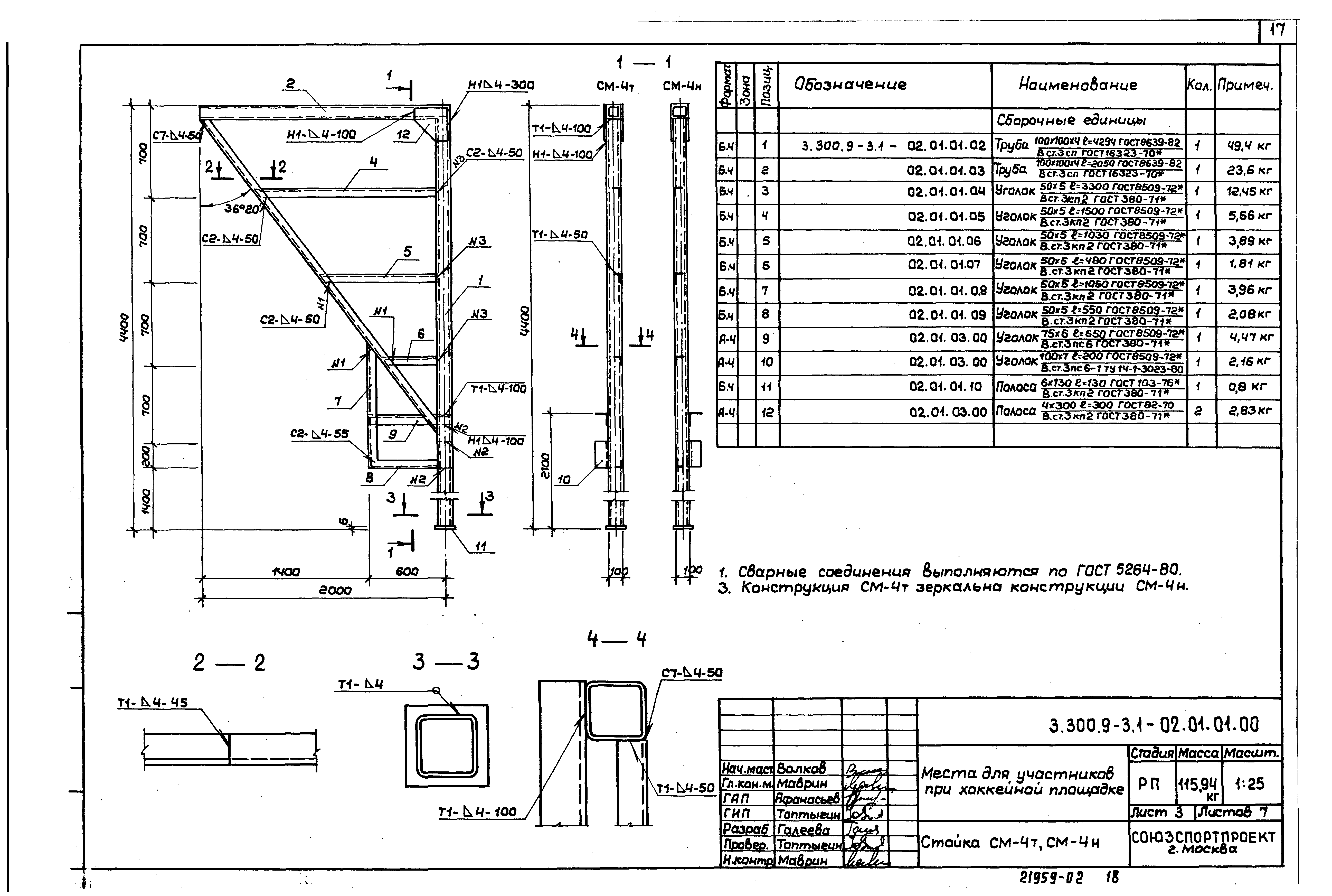
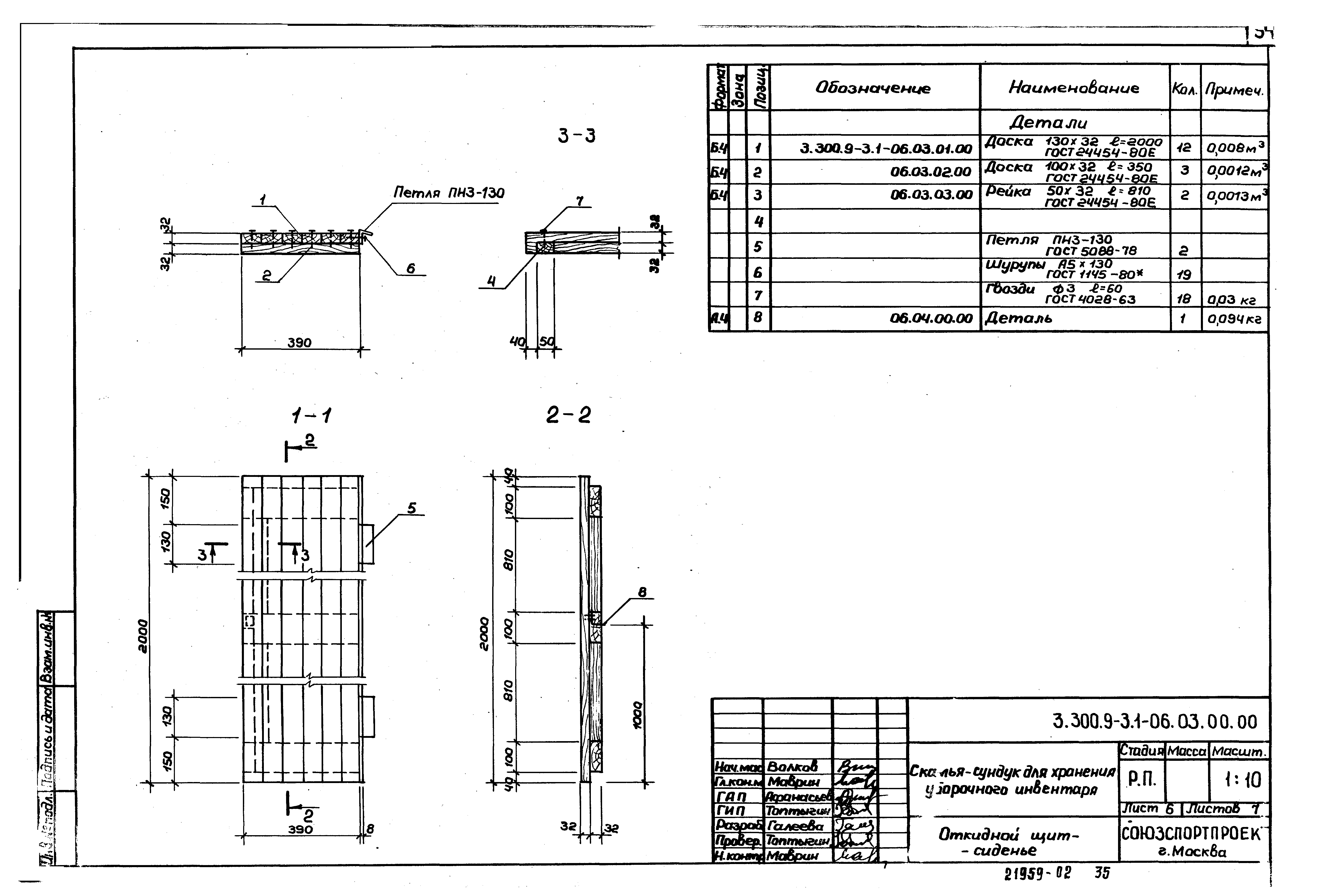
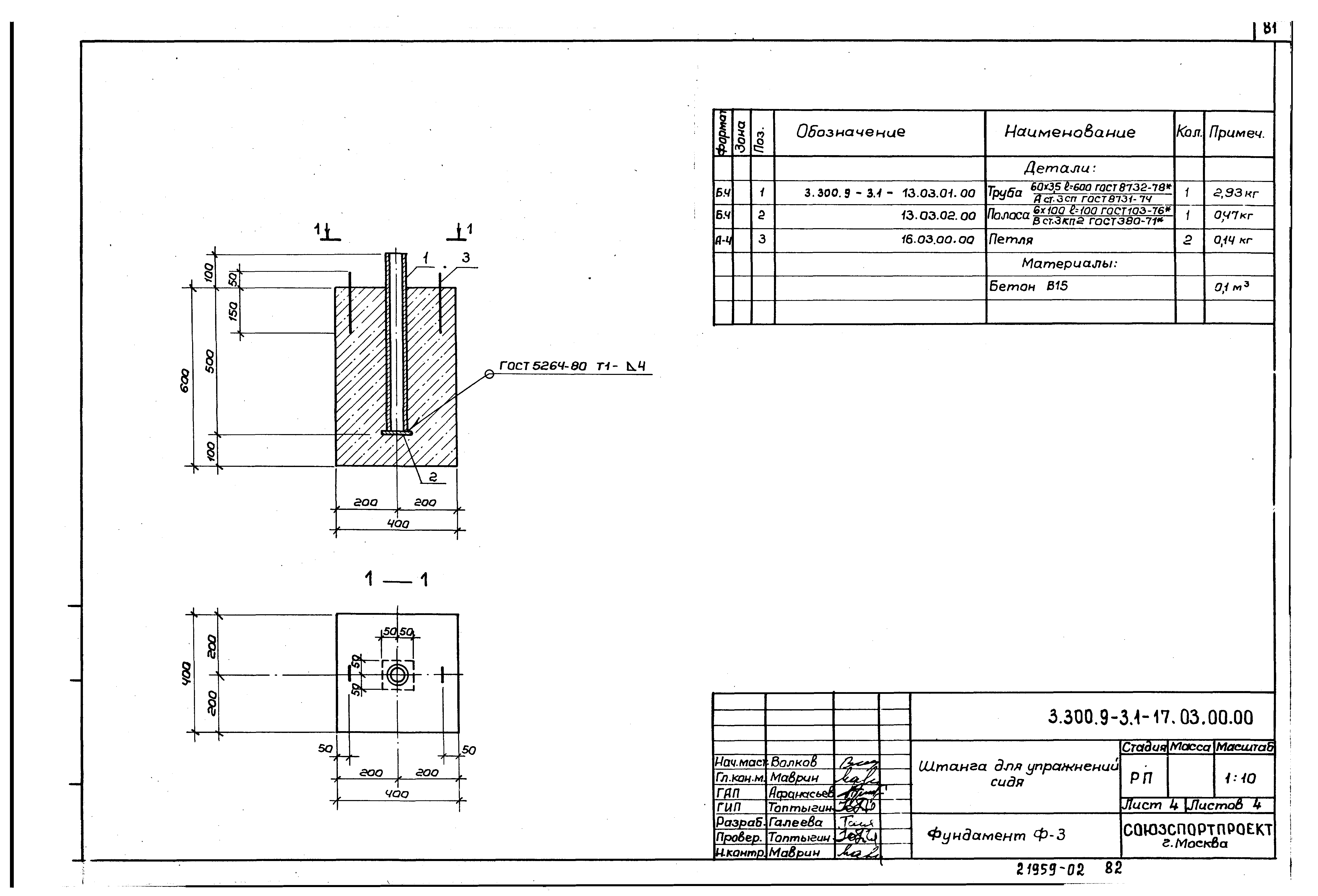
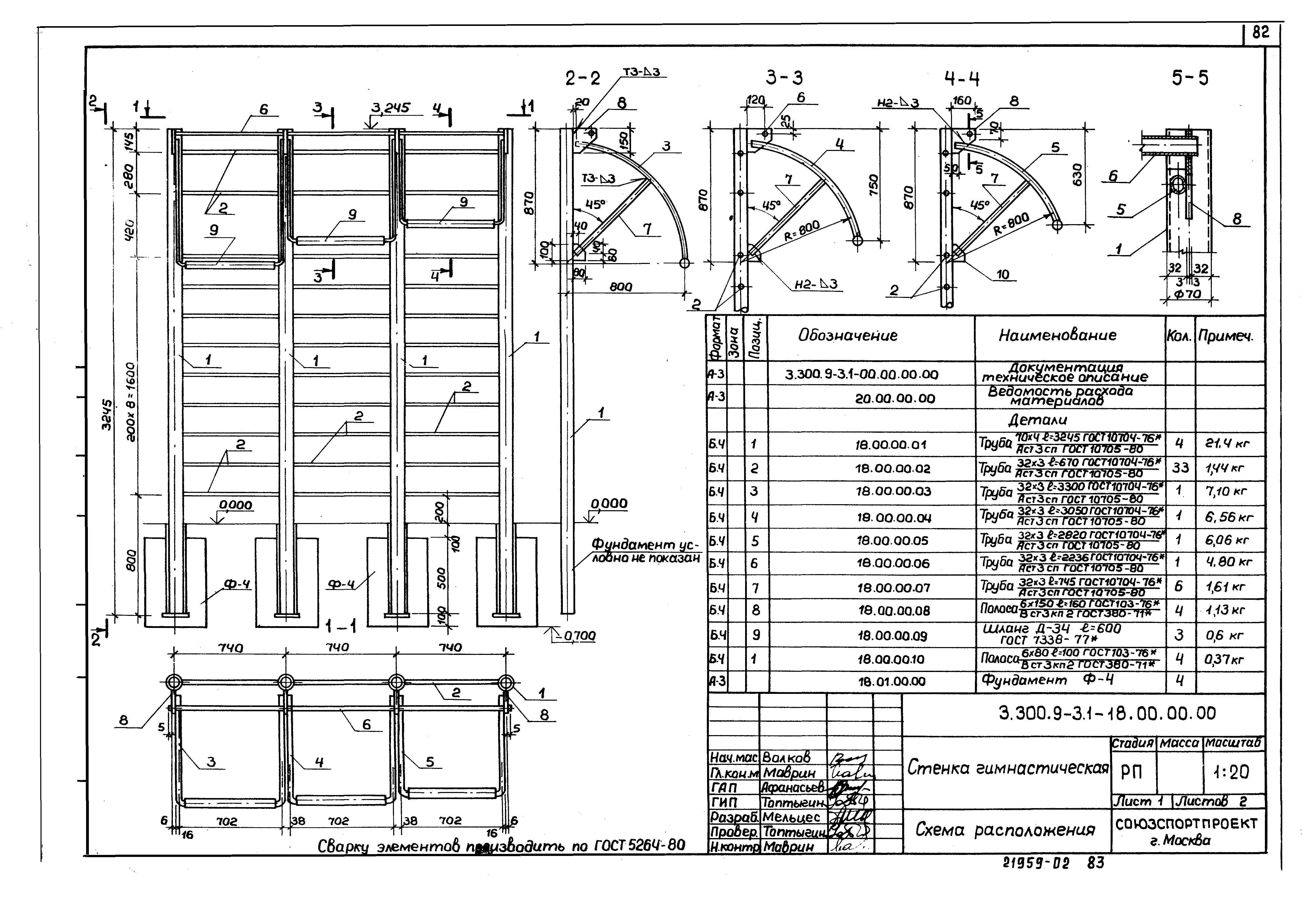
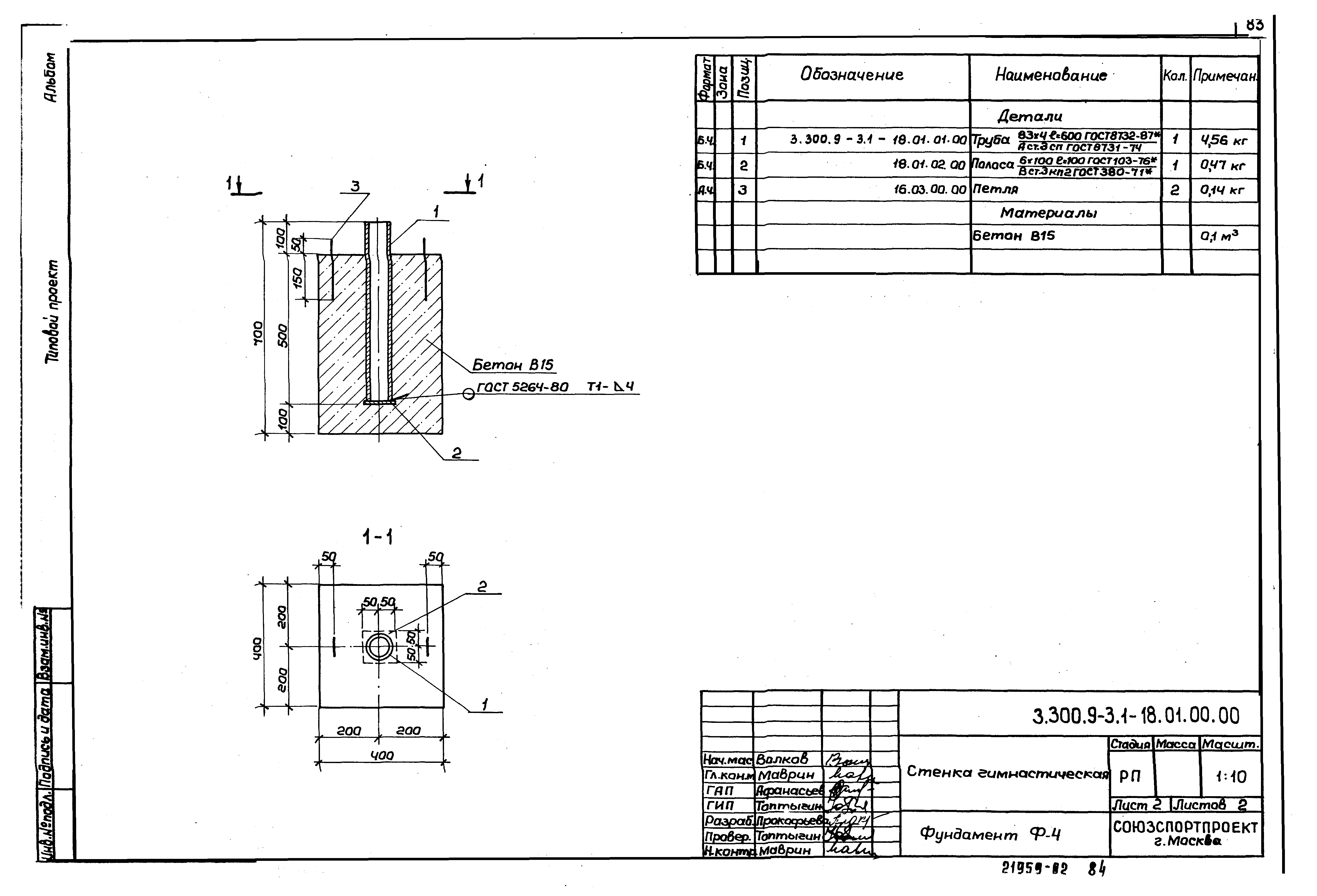
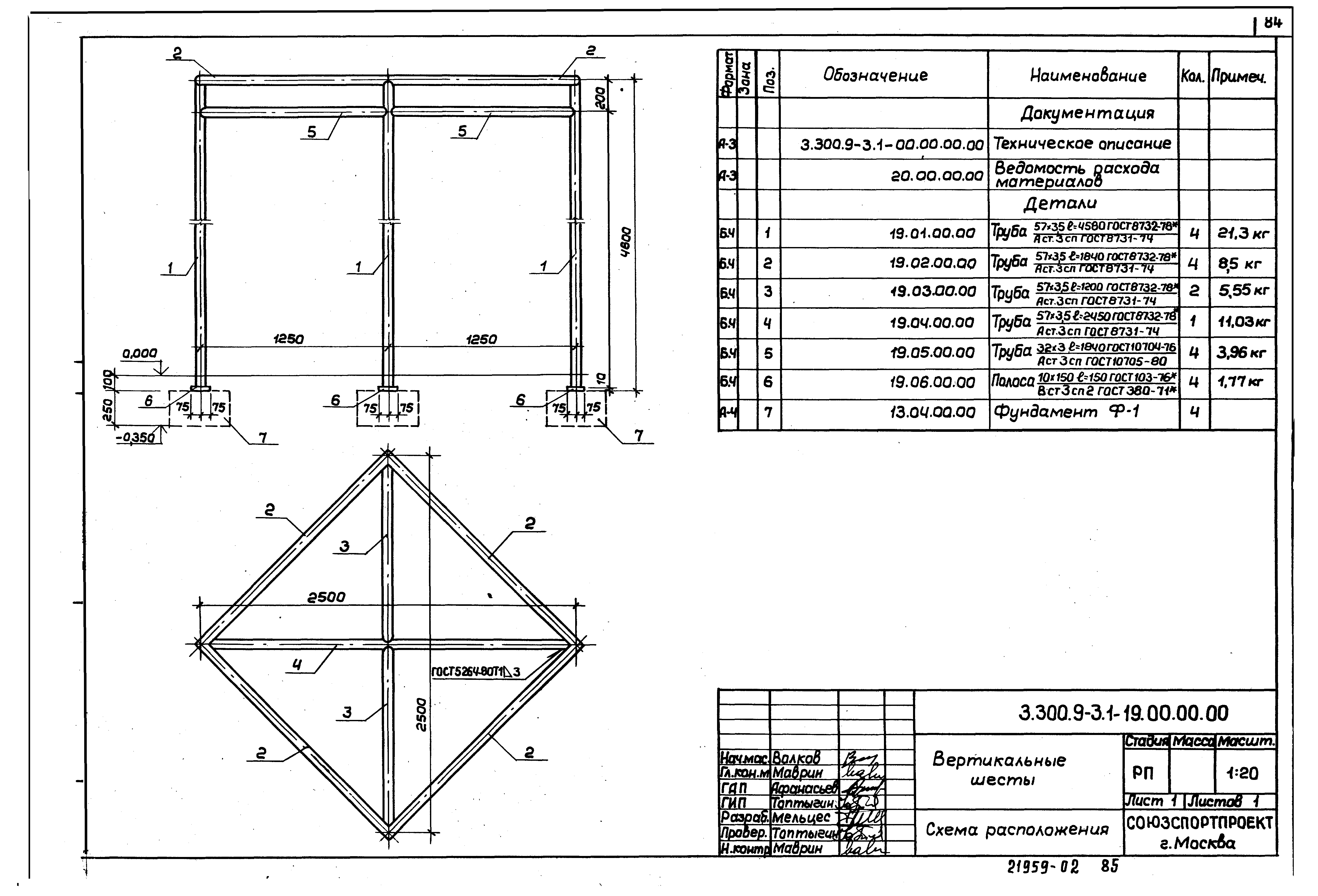
Скачать Серия 3.300.9-3 Выпуск 1. Рабочие чертежи изделий элементов малых формДата актуализации: 01.01.2021
|
| Обозначение: | Серия 3.300.9-3 |
| Обозначение англ: | Series 3.300.9-3 |
| Статус: | не определен законодательством |
| Название рус.: | Выпуск 1. Рабочие чертежи изделий элементов малых форм |
| Дата добавления в базу: | 01.09.2013 |
| Дата актуализации: | 01.01.2021 |
| Дата введения: | 29.12.1986 |
| Дата окончания срока действия: | 30.06.2003 |
| Разработан: | Союзспортпроект Спорткомитета СССР |
| Утверждён: | 29.12.1986 Госгражданстрой (Gosgrazhdanstroy 461) |
| Издан: | ЦИТП Госстроя СССР (CITP, Gosstroy (USSR) 1988 г. ) |

























































































