Скачать Серия 3.300.9-4 Выпуск 0-1. Элементы благоустройства площадок и теневые навесы. Указания по применениюДата актуализации: 01.01.2021
|
| Обозначение: | Серия 3.300.9-4 |
| Обозначение англ: | Series 3.300.9-4 |
| Статус: | не определен законодательством |
| Название рус.: | Выпуск 0-1. Элементы благоустройства площадок и теневые навесы. Указания по применению |
| Дата добавления в базу: | 01.09.2013 |
| Дата актуализации: | 01.01.2021 |
| Дата введения: | 01.12.1990 |
| Дата окончания срока действия: | 30.06.2003 |
| Область применения: | В настоящем выпуске даны объемно-планировочные расстановки изделий, компановки и оснащения ими выносных модулей. Уровень отметок земли уточняется в конкретном случае при привязке |
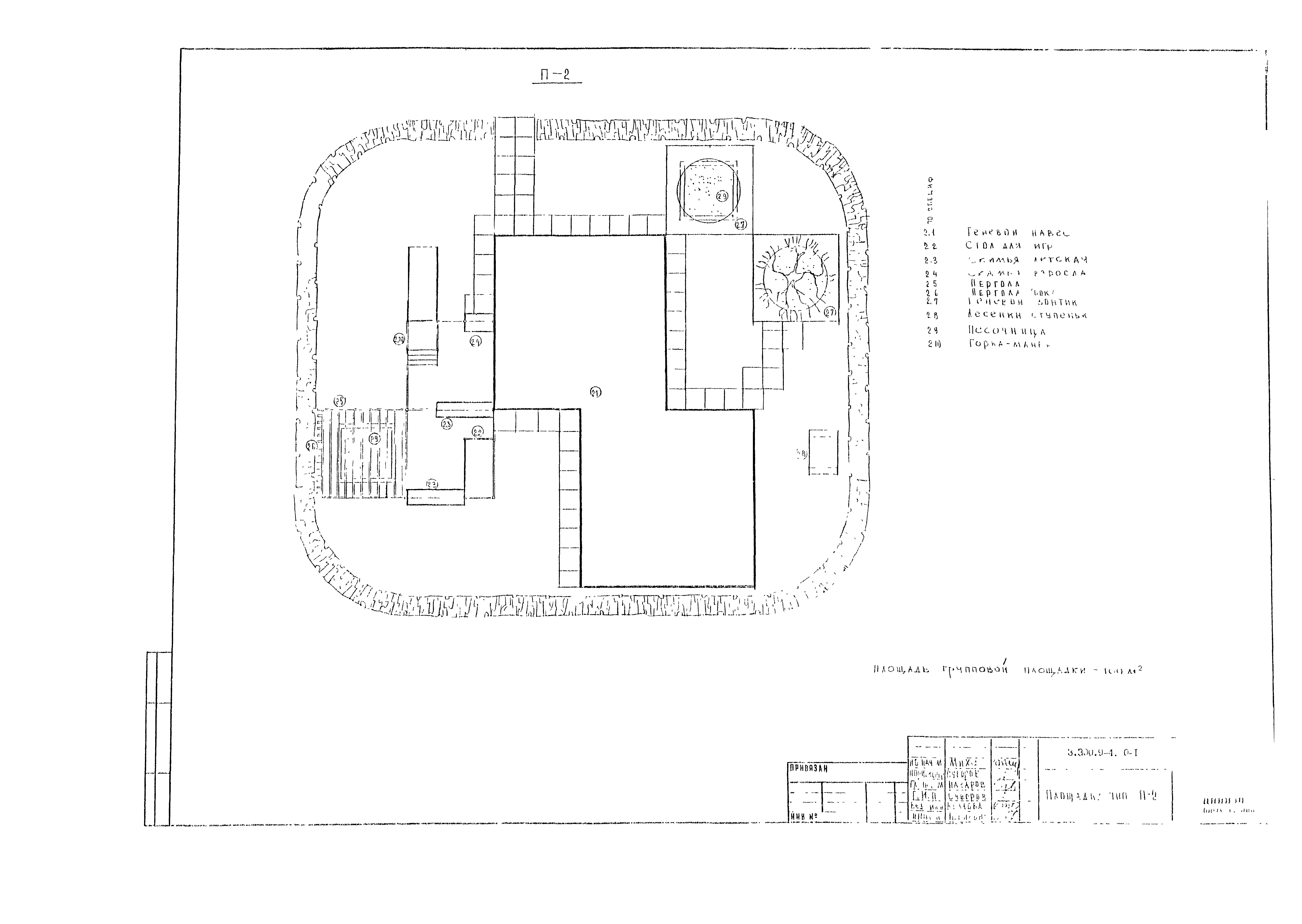
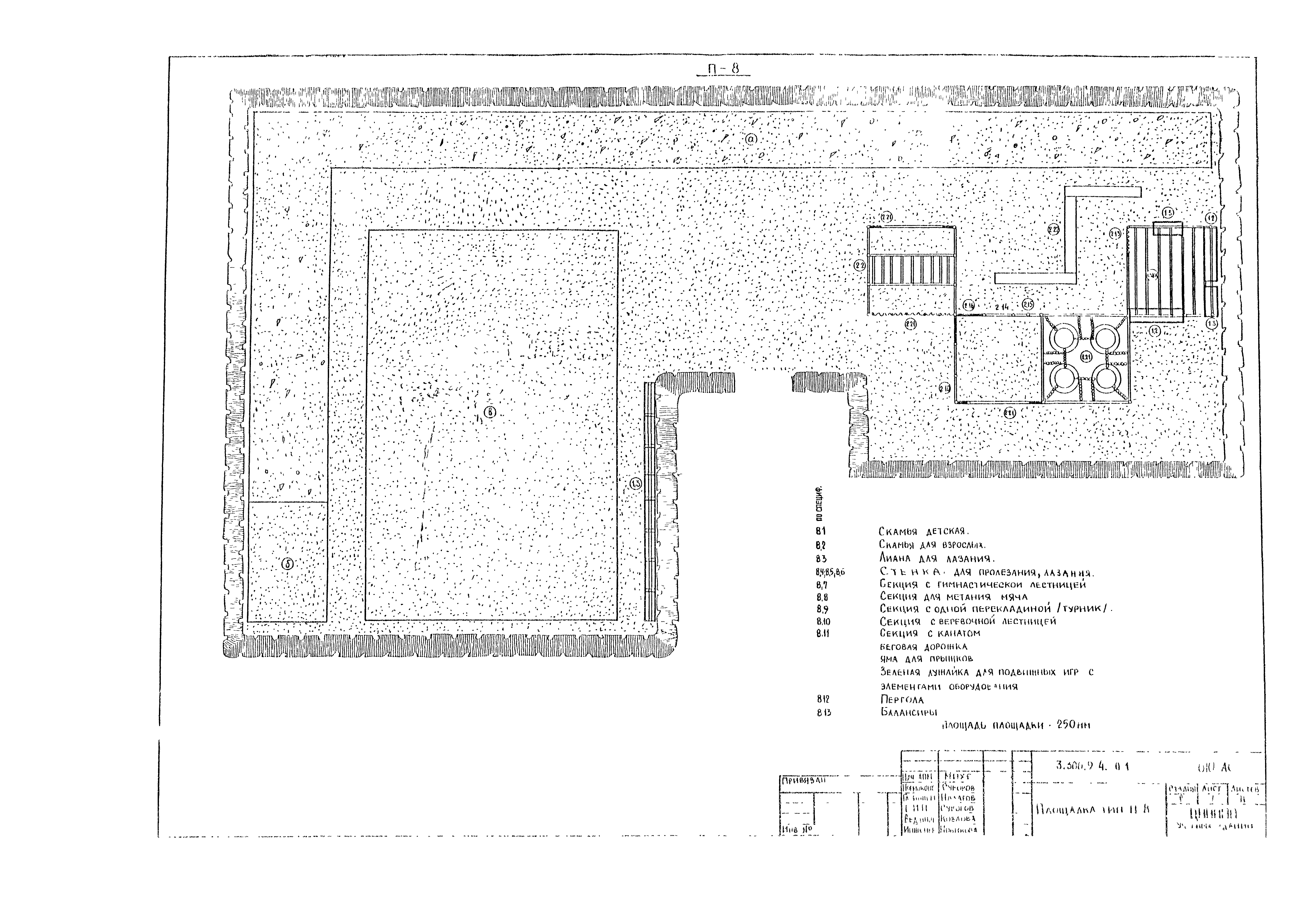
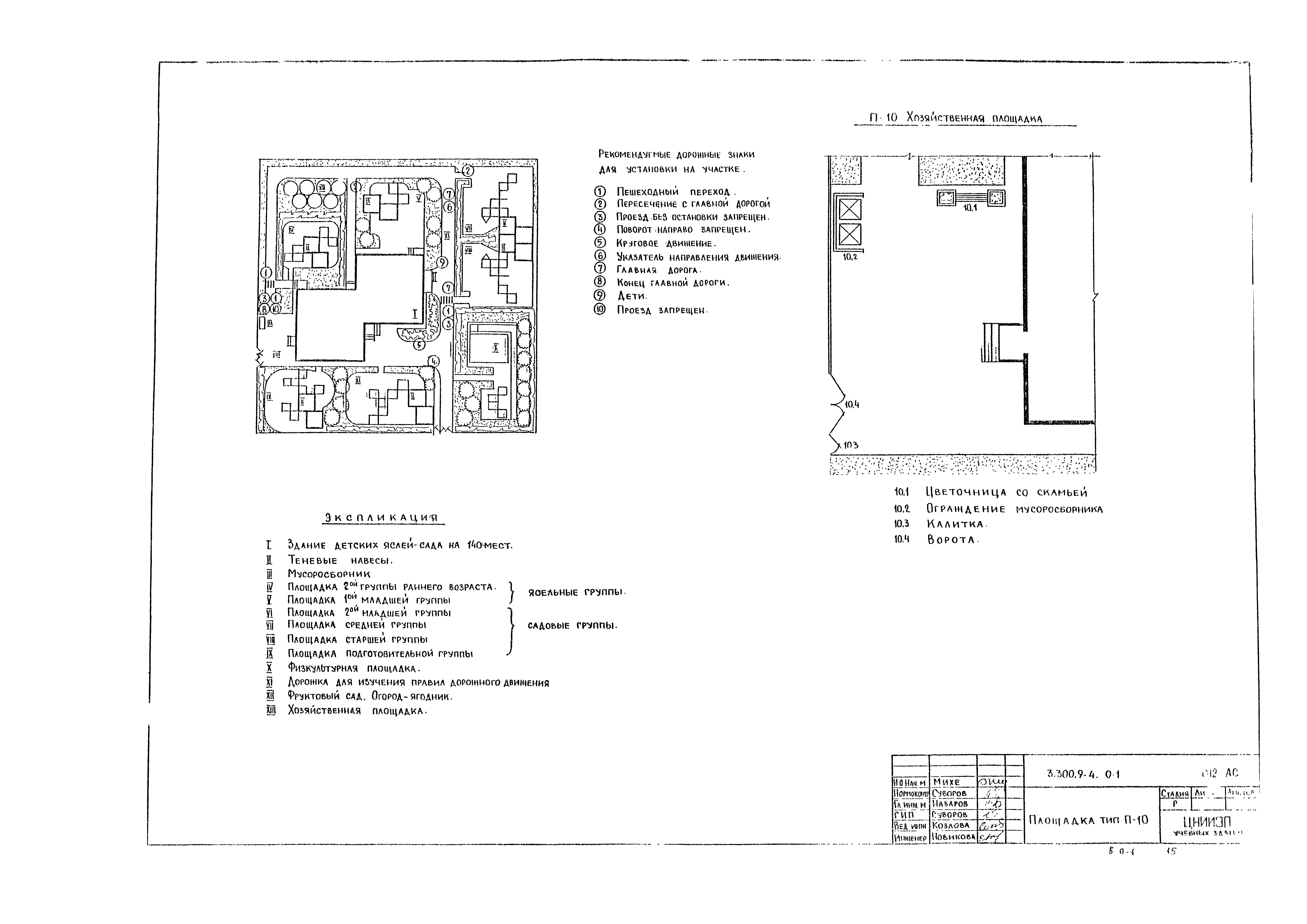
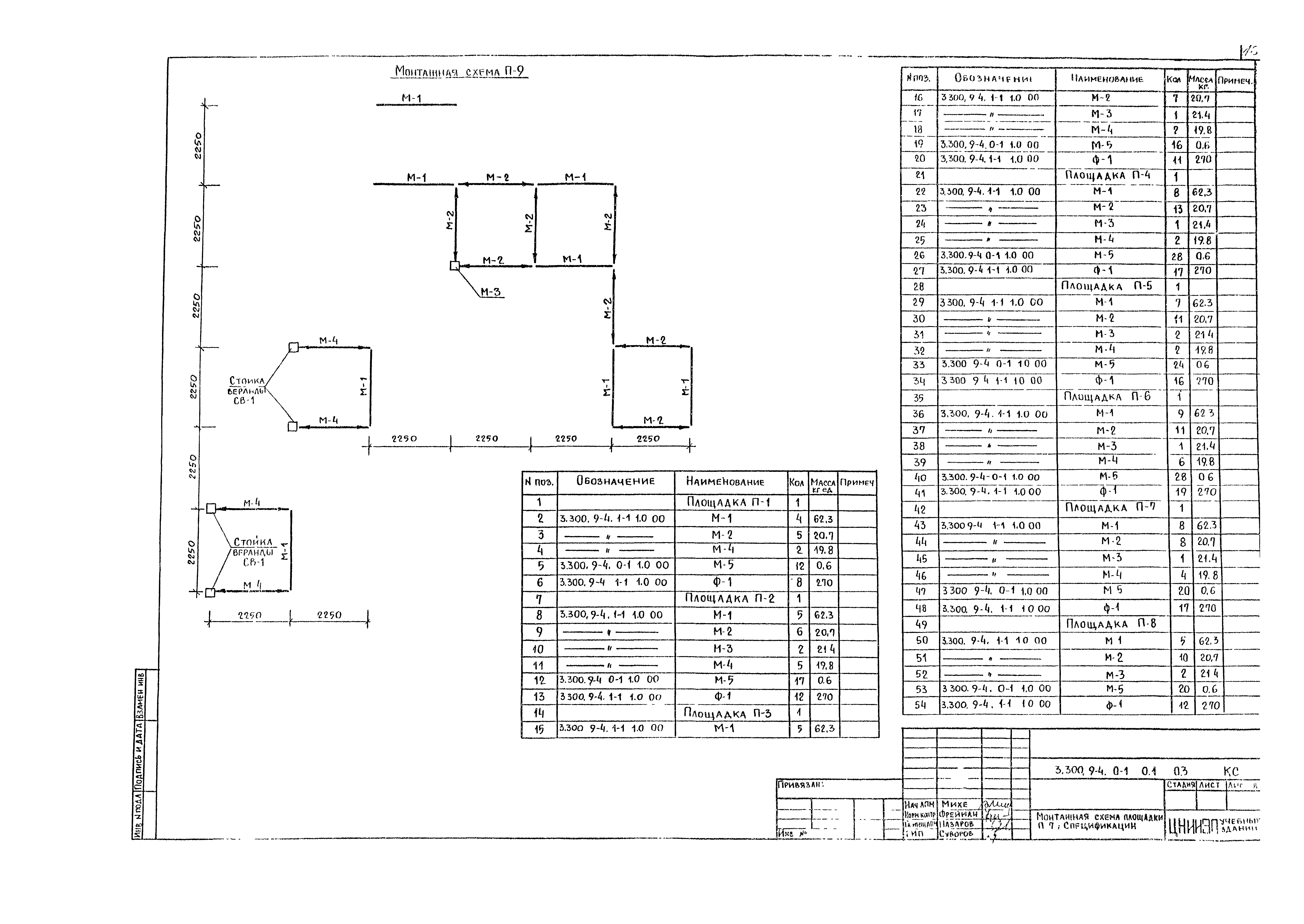
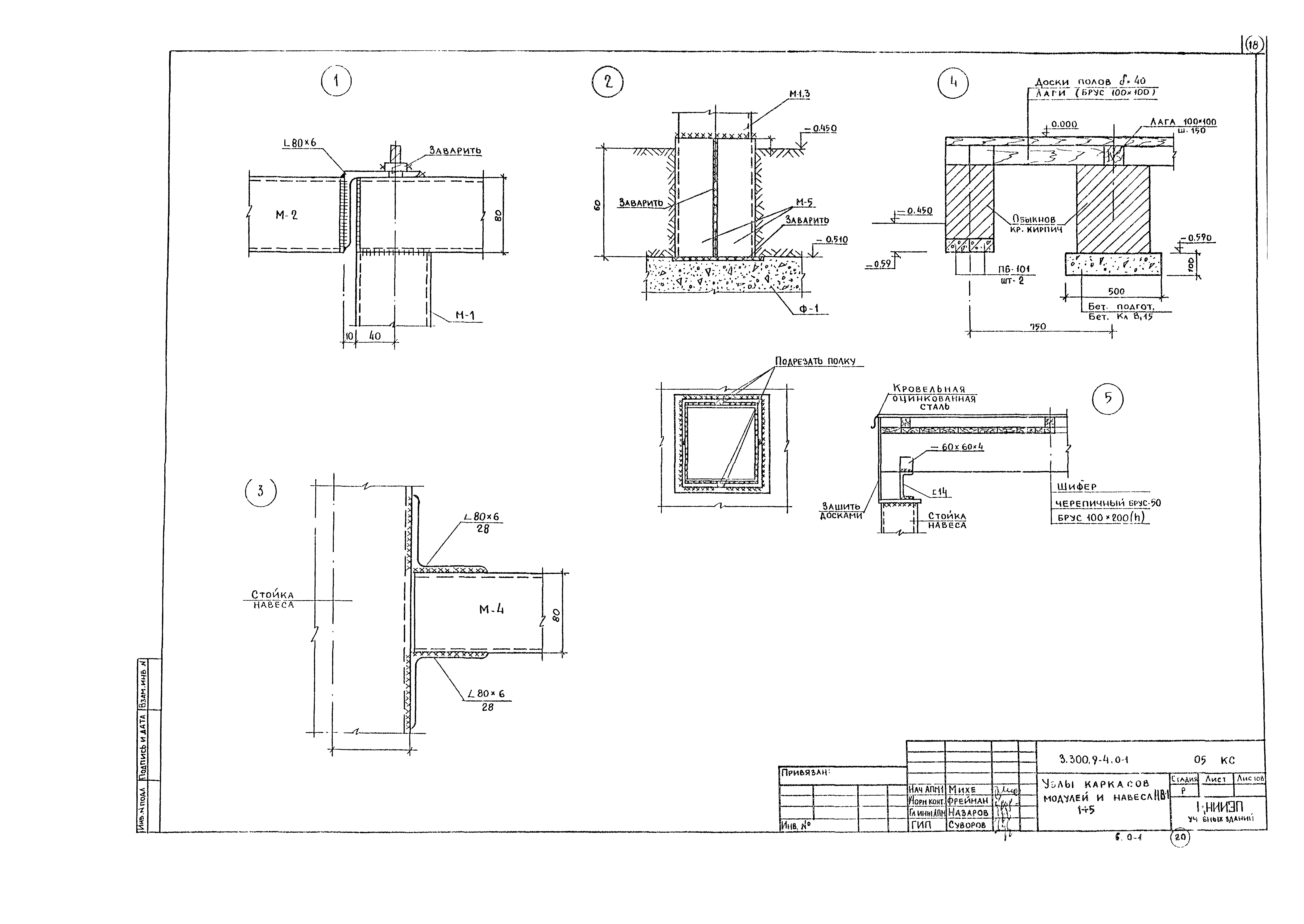
| Оглавление: | 3.300.9-4.0-1 01 ОД Общие данные 3.300.9-4.0-1 01 АС Спецификация (начало) 3.300.9-4.0-1 02 АС Спецификация (окончание) 3.300.9-4.0-1 03 АС Площадка тип П-1 3.300.9-4.0-1 04 АС Площадка тип П-2 3.300.9-4.0-1 05 АС Площадка тип П-3 3.300.9-4.0-1 06 АС Площадка тип П-4 3.300.9-4.0-1 07 АС Площадка тип П-5 3.300.9-4.0-1 08 АС Площадка тип П-6 3.300.9-4.0-1 09 АС Площадка тип П-7 3.300.9-4.0-1 10 АС Площадка тип П-8 3.300.9-4.0-1 11 АС Площадка тип П-9 3.300.9-4.0-1 12 АС Площадка тип П-10 3.300.9-4.0-1 01 КС Монтажная схема площадок П-1,П-2,П-3,П-4 3.300.9-4.0-1 02 КС Монтажная схема площадок П-5,П-6,П-7,П-8. Расположение узлов. Разрез 1-1 3.300.9-4.0-1 03 КС Монтажная схема площадки П-7. Спецификация 3.300.9-4.0-1 04 КС Навес-веранда НВ-1. План фундамента. Монтажный план каркаса. Узлы 3.300.9-4.0-1 05 КС Узлы каркаса модулей и навеса НВ-1 1-5 |
| Разработан: | ЦНИИЭП учебных зданий Госкомархитектуры |
| Утверждён: | 27.02.1990 Госкомархитектура (36) |


















