Скачать Серия 3.407.1-173 Выпуск 1. Указания по применению и рабочие чертежиДата актуализации: 01.01.2021
|
| Обозначение: | Серия 3.407.1-173 |
| Обозначение англ: | Series 3.407.1-173 |
| Статус: | не определен законодательством |
| Название рус.: | Выпуск 1. Указания по применению и рабочие чертежи |
| Дата добавления в базу: | 01.09.2013 |
| Дата актуализации: | 01.01.2021 |
| Дата введения: | 01.07.1992 |
| Дата окончания срока действия: | 30.06.2003 |
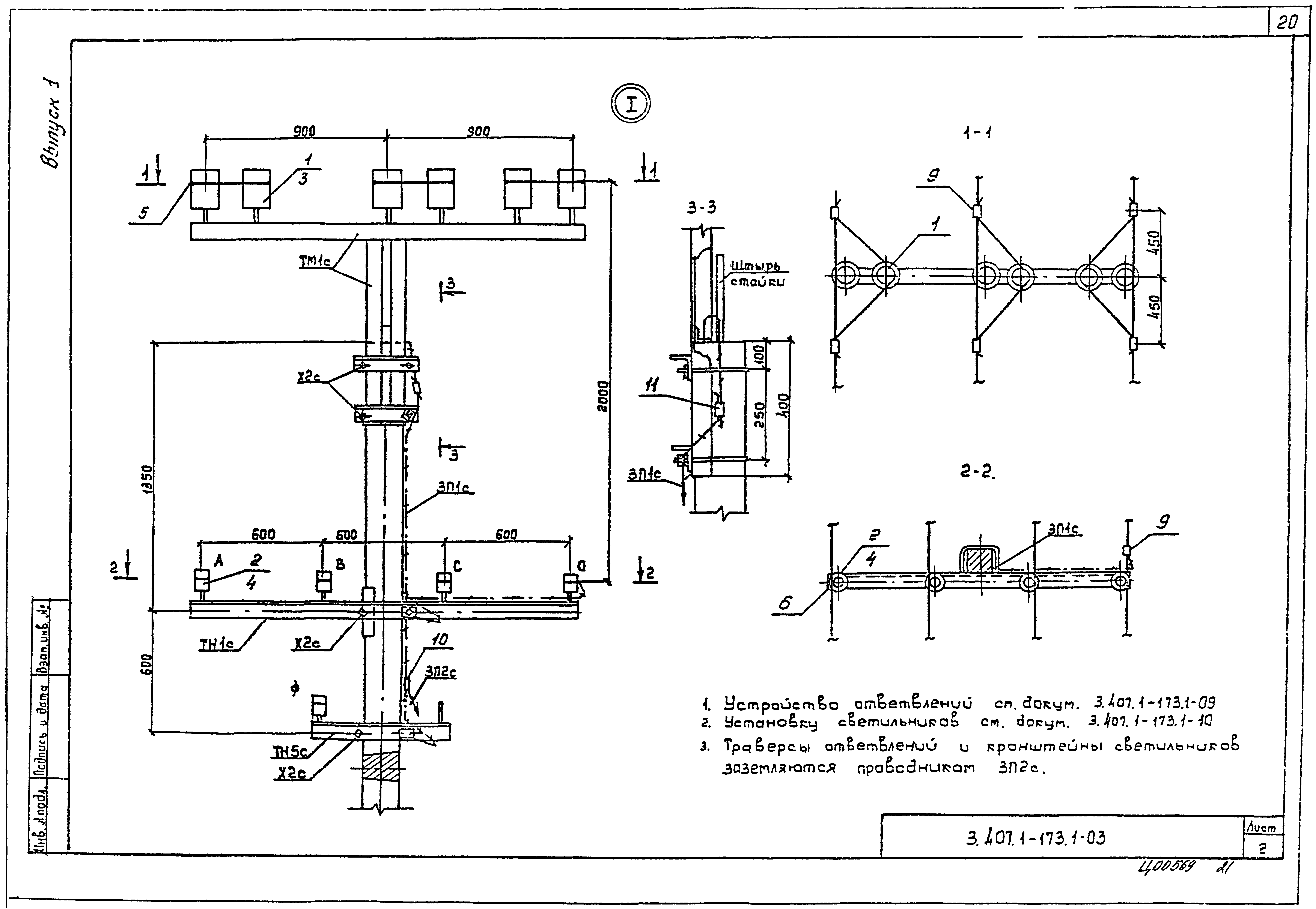
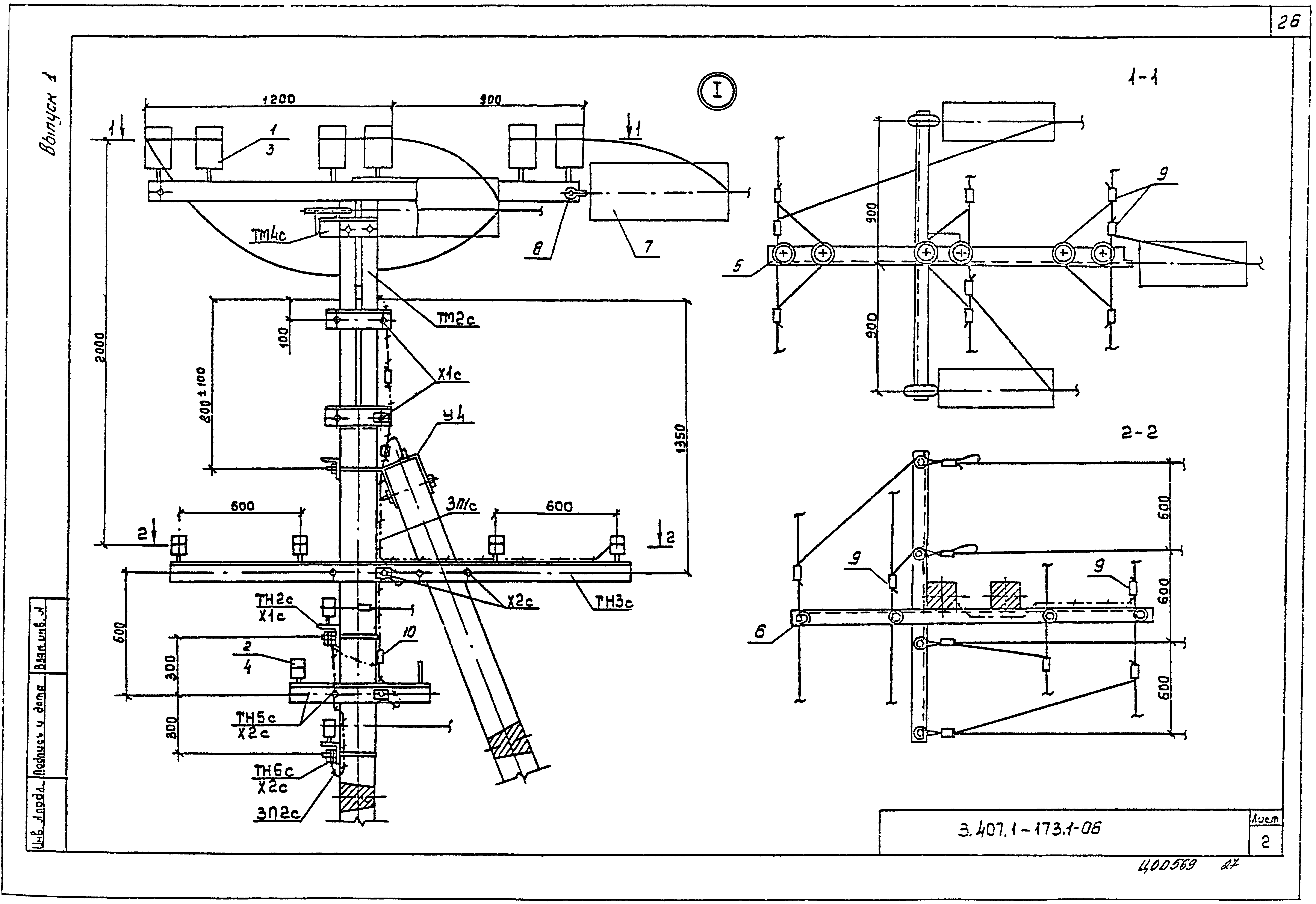
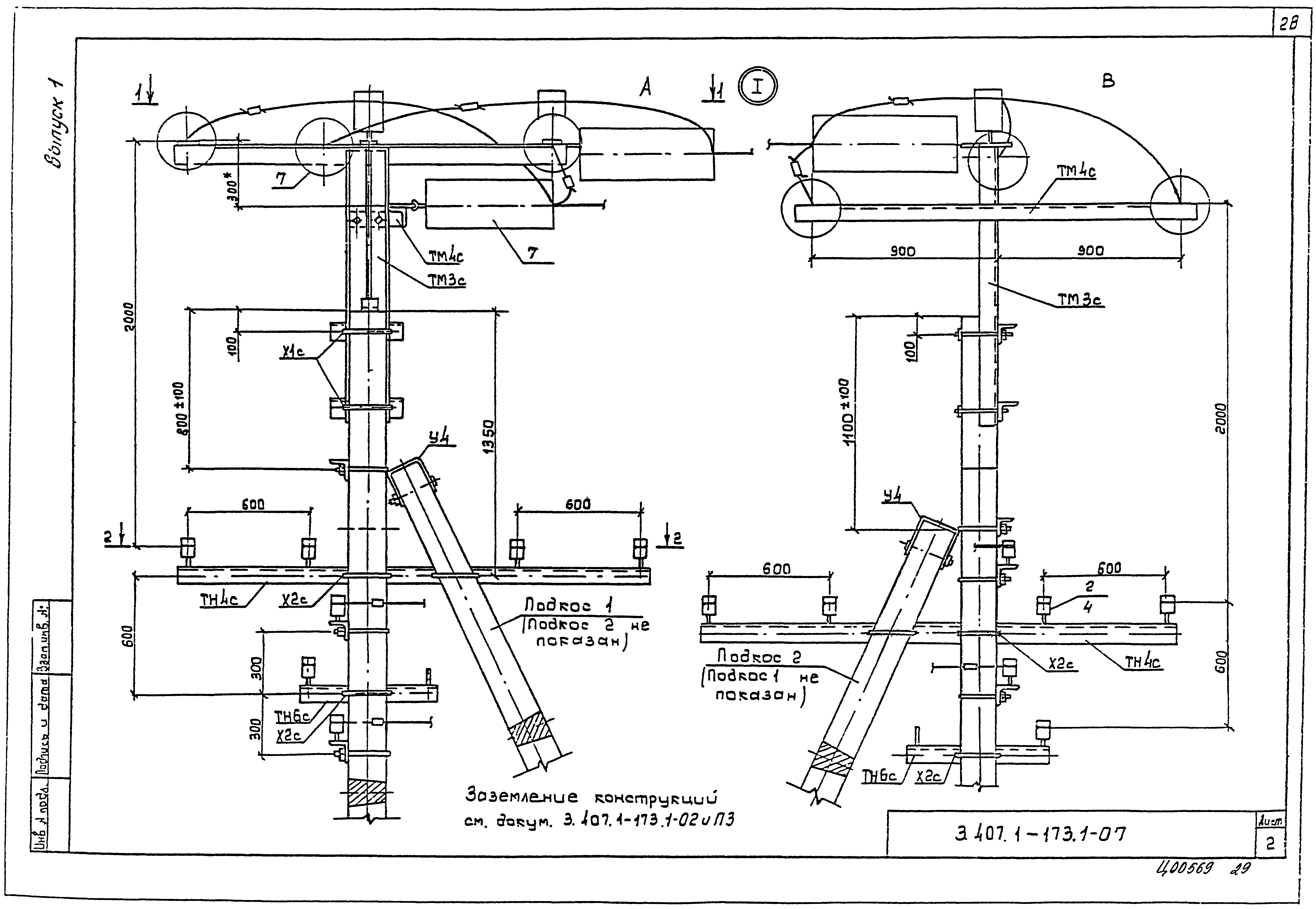
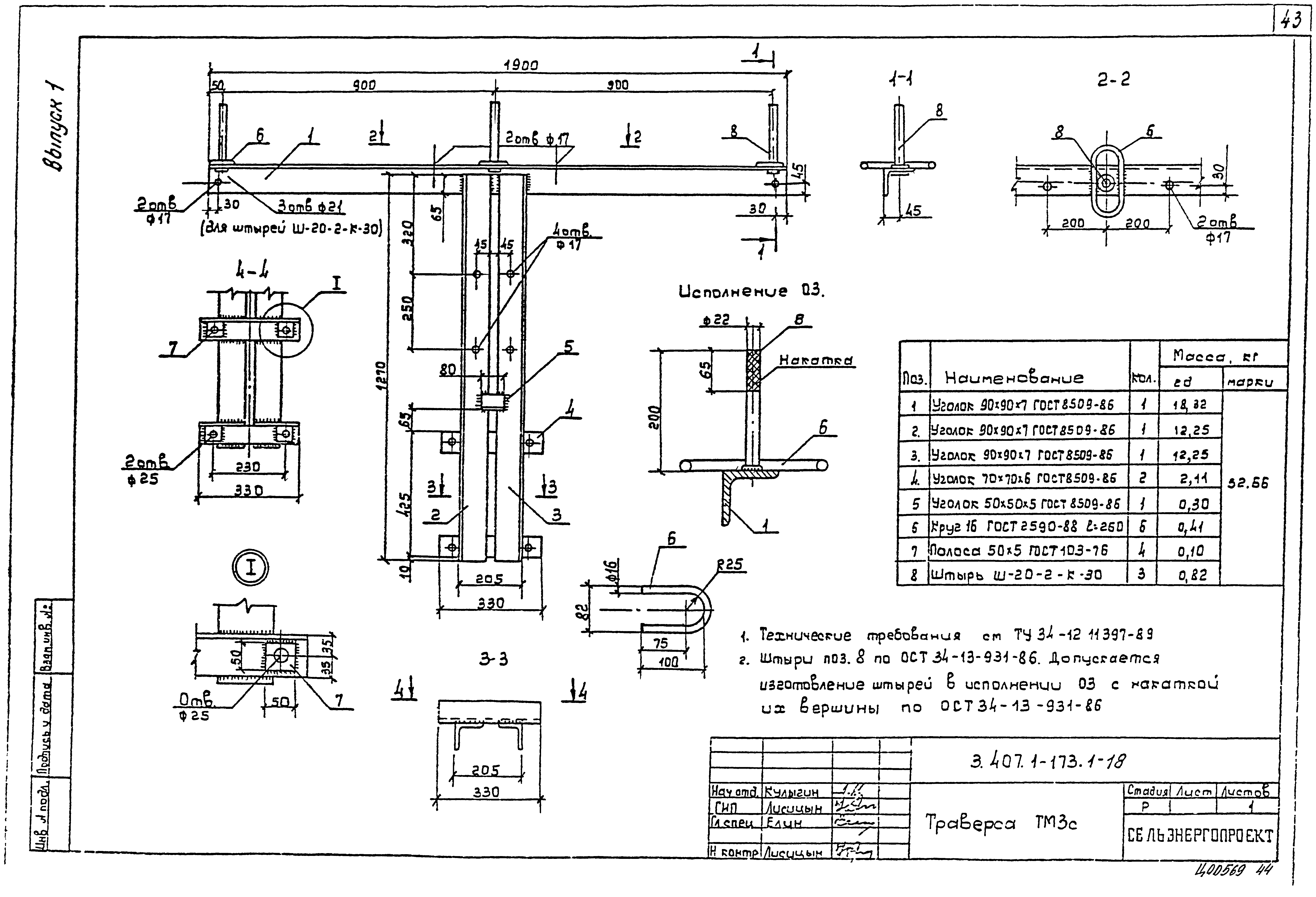
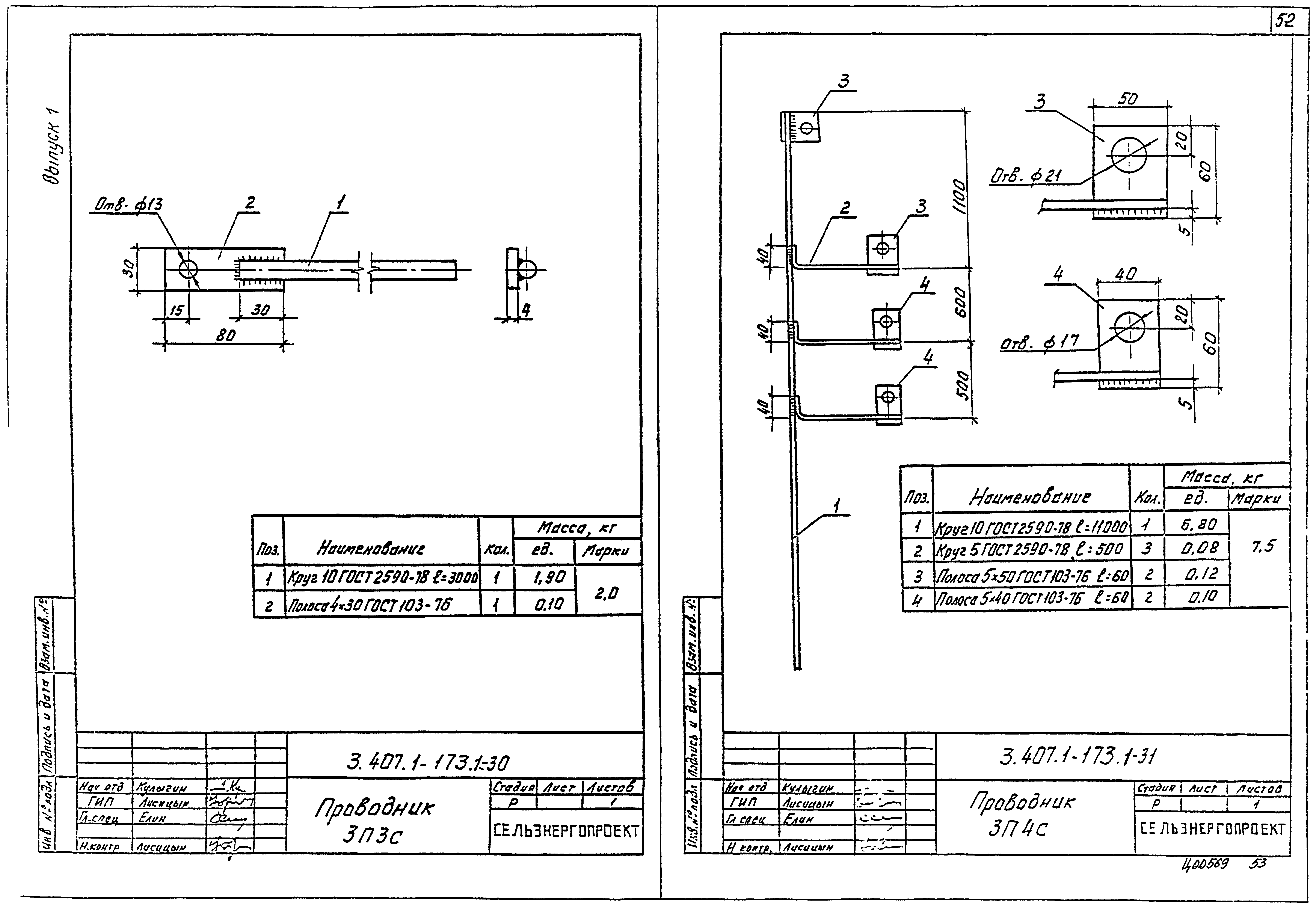
| Оглавление: | 3.407.1-173.1-ПЗ Пояснительная записка 1. Общая часть 2. Типы опор и указания по применению 3. Провода, изоляторы, линейная арматура 4. Основные положения по расчету опор 5. Заземление опор в грунте 6. Заземление опор 7. Железобетонные и стальные конструкции 8. Требования к монтажу и установке опор 9. Техника безопасности 3.407.1-173.1-01 Номенклатура опор ВЛ 0,38 и 10 кВ 3.407.1-173.1-02 Спецификация элементов опор 3.407.1-173.1-03 Промежуточная опора ПС 10/0,38. Схема расположения 3.407.1-173.1-04 Угловая промежуточная опора УПС 10/0,38. Схема расположения 3.407.1-173.1-05 Концевая (анкерная) опора КС 10/0,38. Схема расположения 3.407.1-173.1-06 Ответвительная опора ОС 10/0,38. Схема расположения 3.407.1-173.1-07 Угловая анкерная опора УАС 10/0,38. Схема расположения 3.407.1-173.1-08 Угловая анкерная опора УАС 10/0,38-1. Схема расположения 3.407.1-173.1-09 Устройство ответвлений от ВЛ к вводам в здания 3.407.1-173.1-10 Установка светильников на опорах ВЛ 0,38 и 10 кВ 3.407.1-173.1-11 Установка разъединителя КР 10 на концевой опоре КС 10/0,38. Схема расположения 3.407.1-173.1-12 Установка кабельных муфт КМ10 и КМ 0,38 на концевой опоре КС 10/0,38. Схема расположения 3.407.1-173.1-13 Закрепление в грунте анкерно-угловых опор 3.407.1-173.1-14 Узлы соединений элементов опор 3.407.1-173.1-15 Подвеска натяжная изолирующая 3.407.1-173.1-16 Траверса ТМ1с. 3.407.1-173.1-17 Траверса ТМ2с. 3.407.1-173.1-18 Траверса ТМ3с. 3.407.1-173.1-19 Траверса ТМ4с. 3.407.1-173.1-20 Траверсы ТН1с, ТН2с. 3.407.1-173.1-21 Траверсы ТН3с, ТН4с. 3.407.1-173.1-22 Траверсы ТН5с, ТН6с. 3.407.1-173.1-23 Хомуты Х1с, Х2с. 3.407.1-173.1-24 Кронштейн У4 3.407.1-173.1-25 Стяжка Г1 3.407.1-173.1-26 Кронштейн КМ2с 3.407.1-173.1-27 Оттяжка ОТ1с 3.407.1-173.1-28 Проводник ЗП1с 3.407.1-173.1-29 Проводник ЗП2с 3.407.1-173.1-30 Проводник ЗП3с 3.407.1-173.1-31 Проводник ЗП4с 3.407.1-173.1-32 Кронштейны Р1с, Р2с 3.407.1-173.1-33 Кронштейн РА2с 3.407.1-173.1-34 Скоба КМ3с 3.407.1-173.1-35 Шпилька Ш1с |
| Разработан: | Сельэнергопроект Минэнерго СССР |
| Утверждён: | 21.01.1992 Сельэнергопроект (3-П) |
| Заменяет собой: |
|






















































