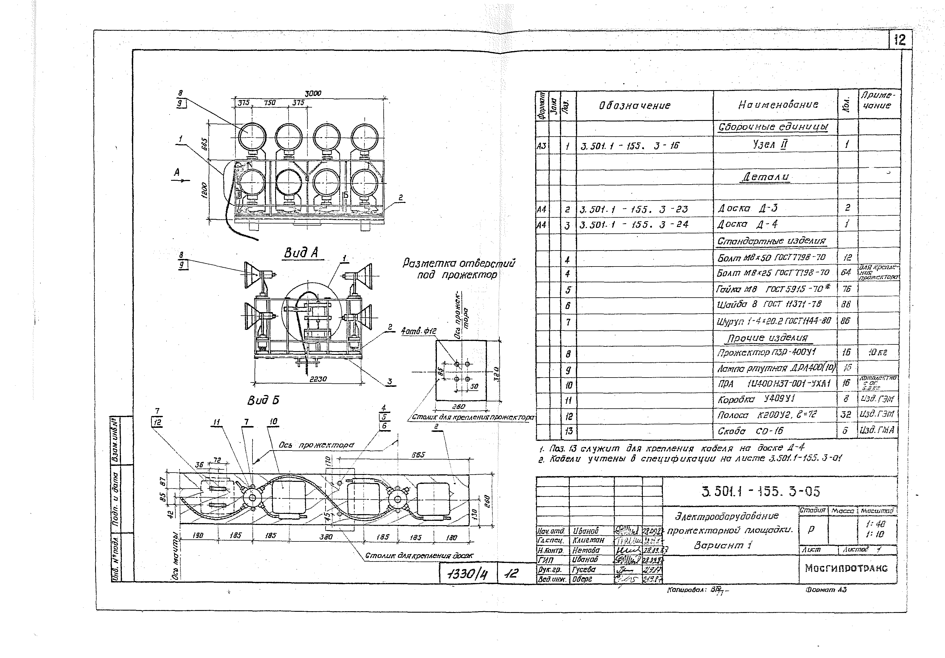
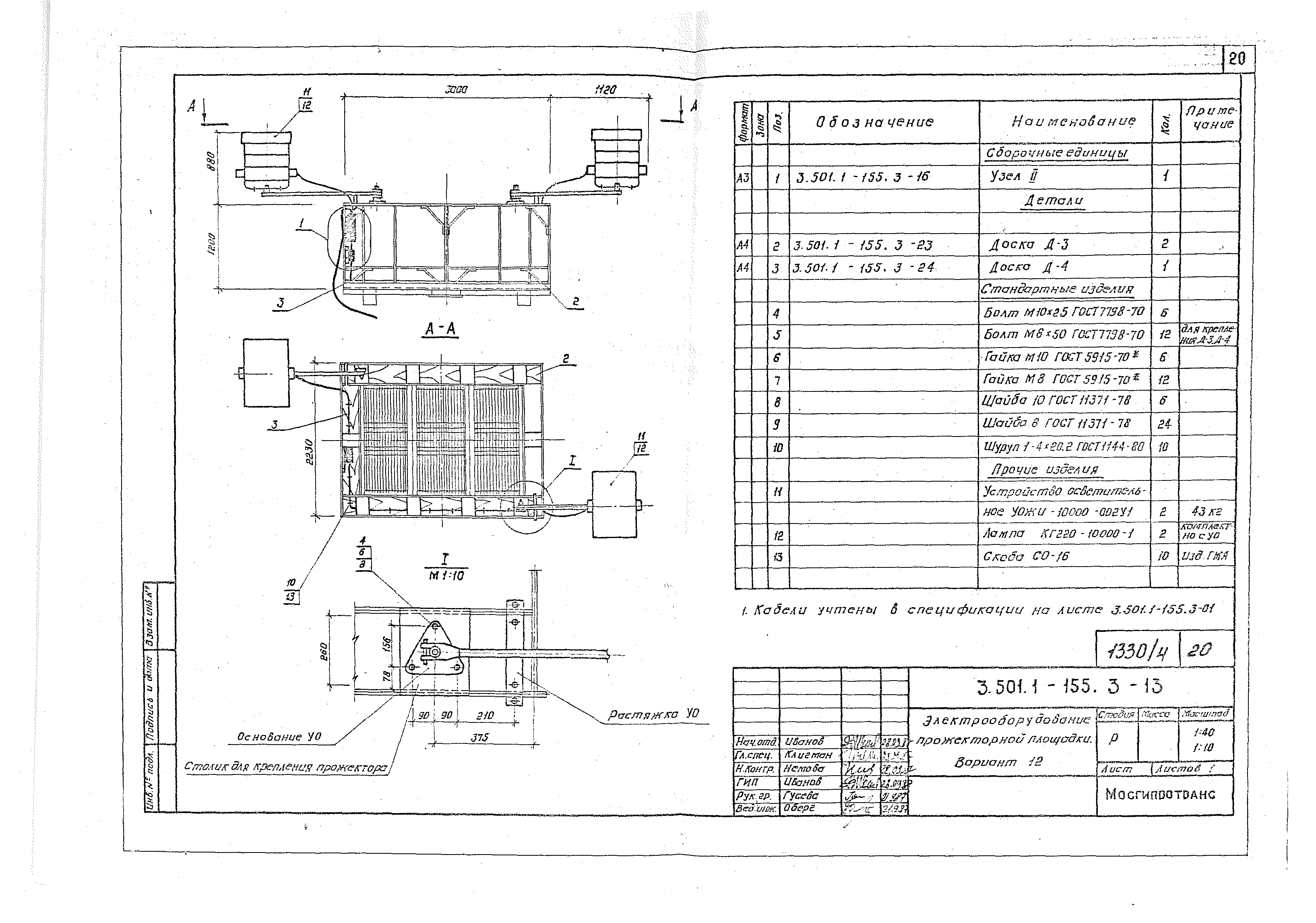
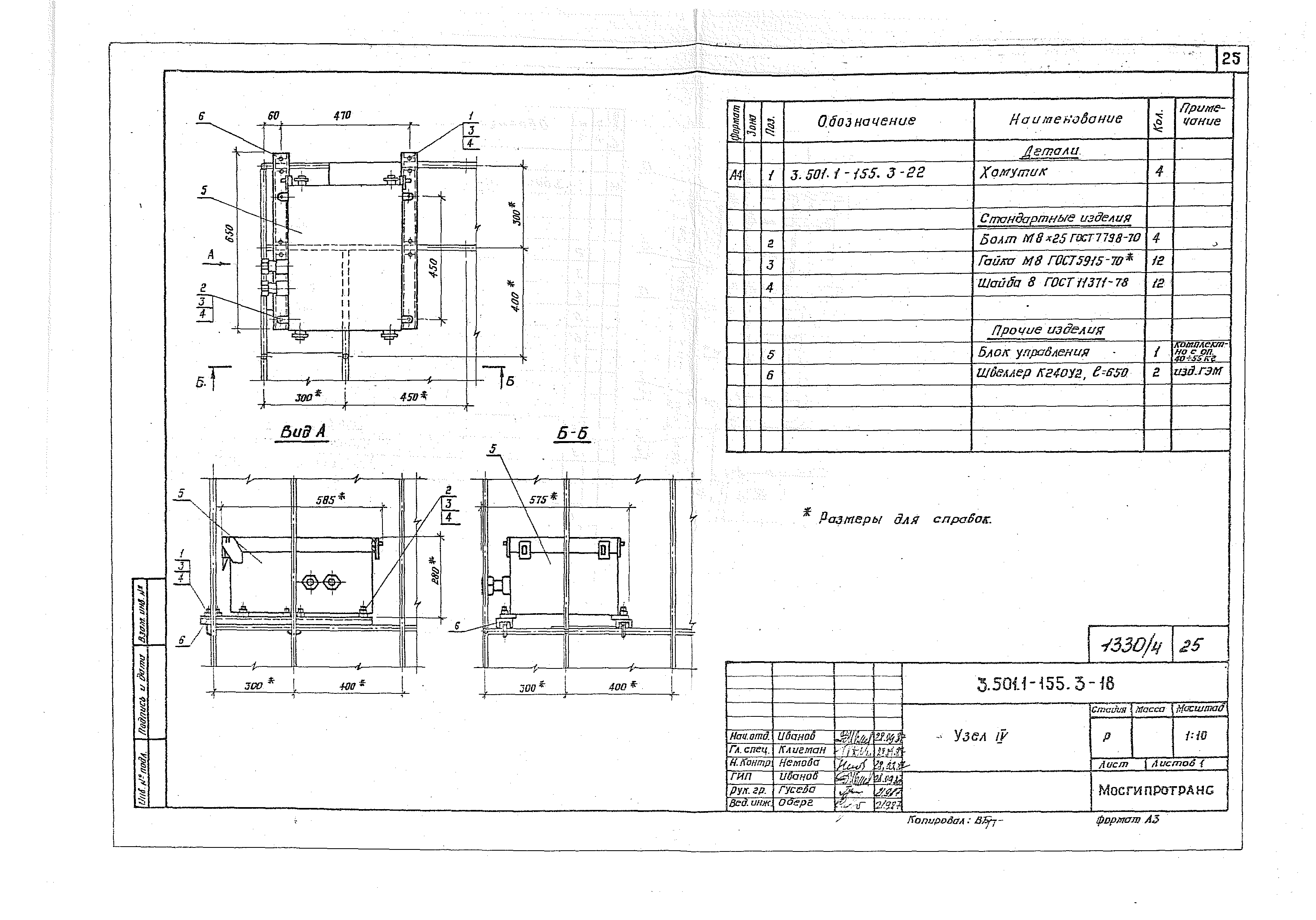
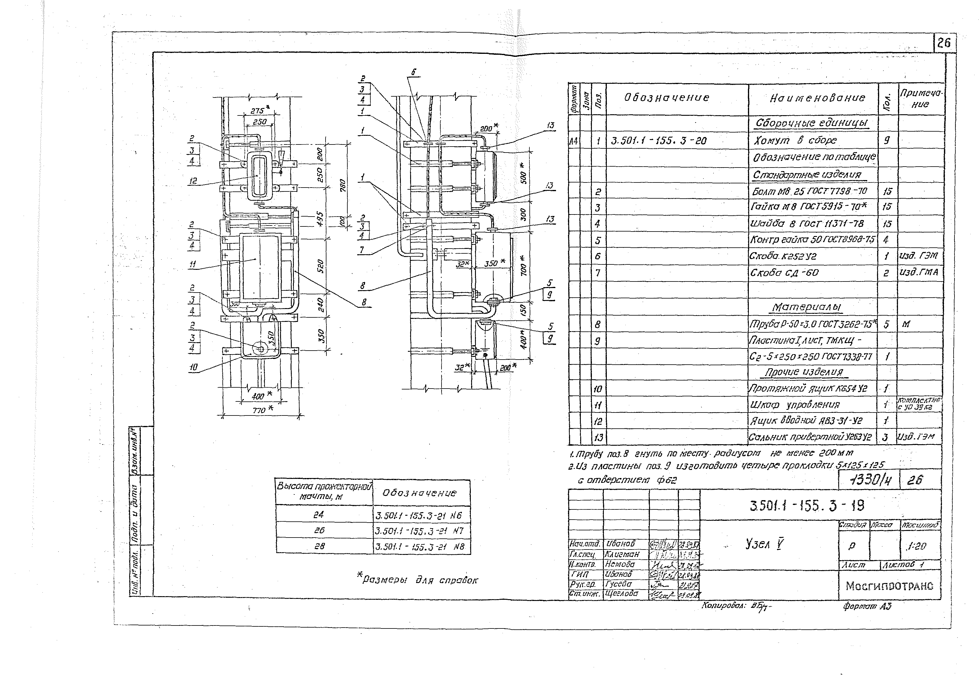
Скачать Серия 3.501.1-155 Выпуск 3. Электротехническая часть мачт, расположенных на расстоянии более 5 м от частей контактной сети. Рабочие чертежиДата актуализации: 01.01.2021 Серия 3.501.1-155
Выпуск 3. Электротехническая часть мачт, расположенных на расстоянии более 5 м от частей контактной сети. Рабочие чертежи| Обозначение: | Серия 3.501.1-155 | | Обозначение англ: | Series 3.501.1-155 | | Статус: | не определен законодательством | | Название рус.: | Выпуск 3. Электротехническая часть мачт, расположенных на расстоянии более 5 м от частей контактной сети. Рабочие чертежи | | Дата добавления в базу: | 01.09.2013 | | Дата актуализации: | 01.01.2021 | | Дата введения: | 01.12.1988 | | Дата окончания срока действия: | 30.06.2003 | | Разработан: | Мосгипротранс
| | Утверждён: | 27.11.1988 Министерство путей сообщения СССР (USSR Ministry of Railroads А-3827У)
|
                             
|