Скачать Серия 3.501.1-155 Выпуск 4. Электротехническая часть мачт, расположенных на расстоянии менее 5 м от частей контактной сети. Рабочие чертежиДата актуализации: 01.01.2021
|
| Обозначение: | Серия 3.501.1-155 |
| Обозначение англ: | Series 3.501.1-155 |
| Статус: | не определен законодательством |
| Название рус.: | Выпуск 4. Электротехническая часть мачт, расположенных на расстоянии менее 5 м от частей контактной сети. Рабочие чертежи |
| Дата добавления в базу: | 01.09.2013 |
| Дата актуализации: | 01.01.2021 |
| Дата введения: | 01.12.1988 |
| Дата окончания срока действия: | 30.06.2003 |
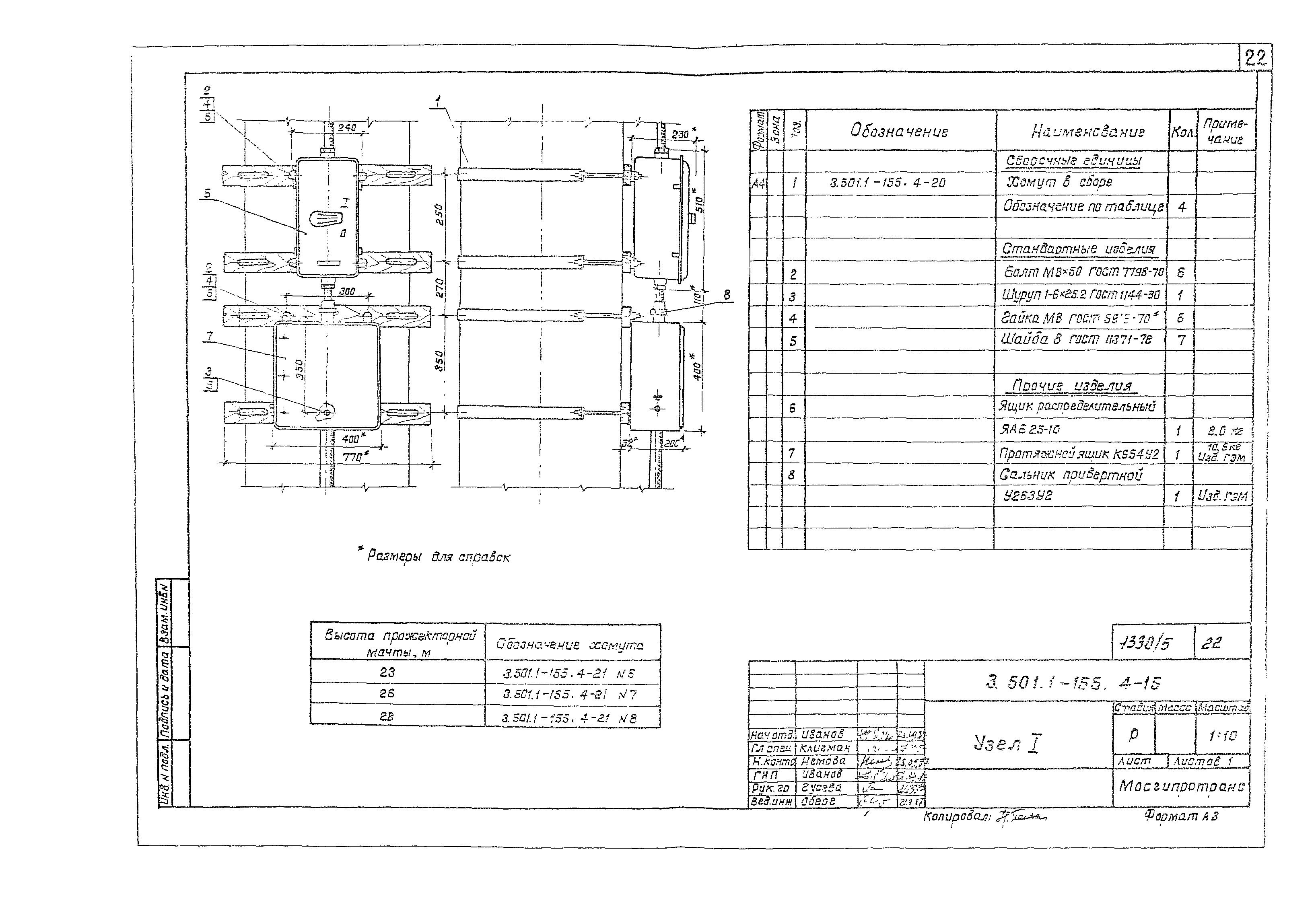
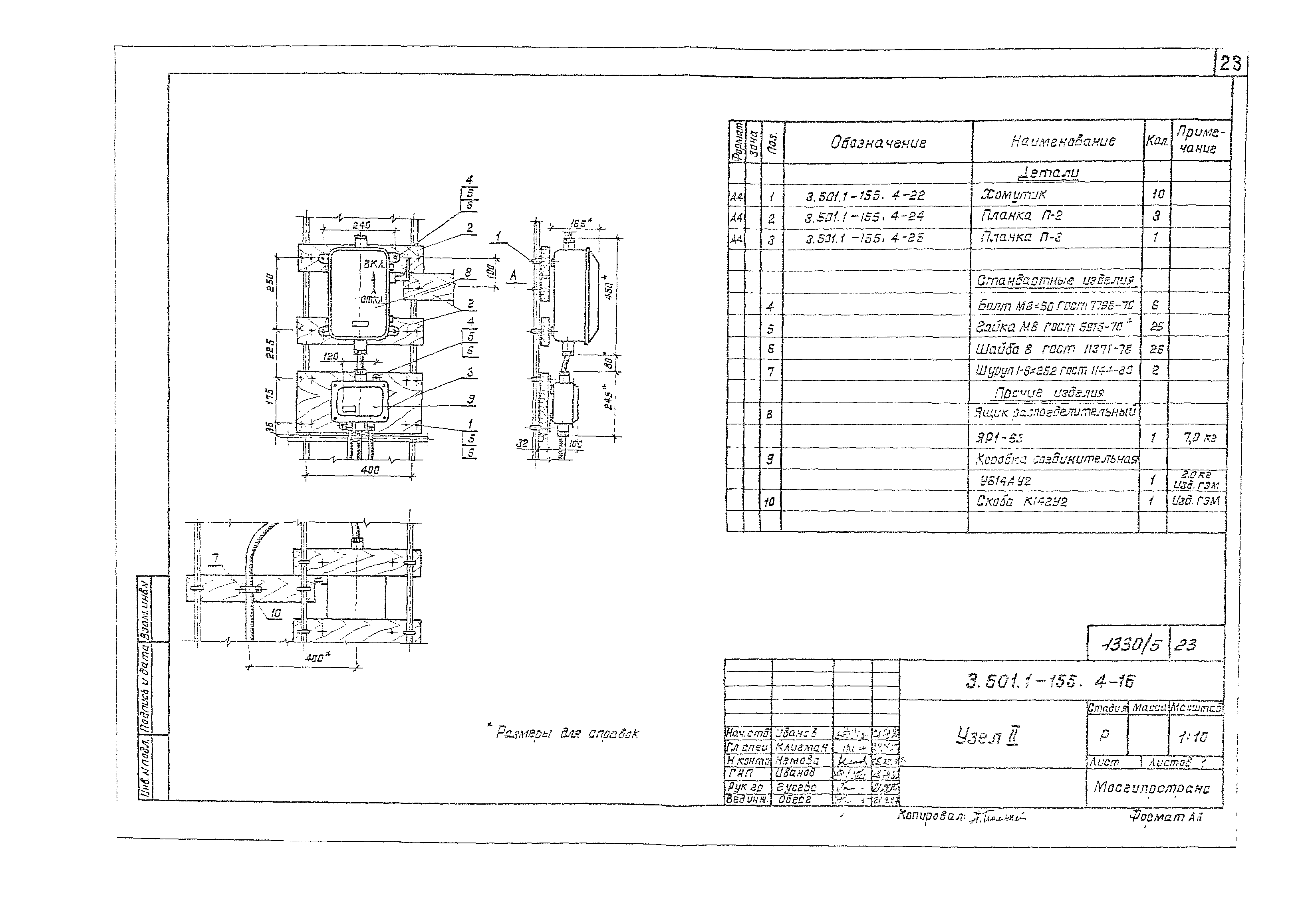
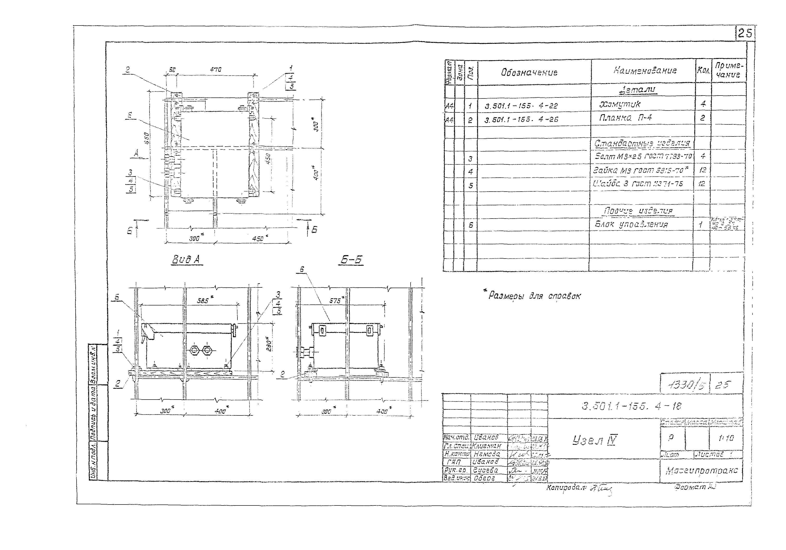
| Оглавление: | 3.501.1-155.4-ПЗ Пояснительная записка 3.501.1-155.4-01 Спецификация 3.501.1-155.4-02 Общий вид 3.501.1-155.4-03 Расчетная таблица 3.501.1-155.4-04 Схемы электрические принципиальные 3.501.1-155.4-05 Электрооборудование прожекторной площадки. Вариант 1 3.501.1-155.4-06 Электрооборудование прожекторной площадки. Вариант 2 3.501.1-155.4-07 Электрооборудование прожекторной площадки. Вариант 3 3.501.1-155.4-08 Электрооборудование прожекторной площадки. Вариант 4 3.501.1-155.4-09 Электрооборудование прожекторной площадки. Вариант 5, 6 3.501.1-155.4-10 Электрооборудование прожекторной площадки. Вариант 7 3.501.1-155.4-11 Электрооборудование прожекторной площадки. Вариант 8, 9 3.501.1-155.4-12 Электрооборудование прожекторной площадки. Вариант 10, 11 3.501.1-155.4-13 Электрооборудование прожекторной площадки. Вариант 12 3.501.1-155.4-14 Электрооборудование прожекторной площадки. Вариант 13 3.501.1-155.4-15 Узел I 3.501.1-155.4-16 Узел II 3.501.1-155.4-17 Узел III 3.501.1-155.4-18 Узел IV 3.501.1-155.4-19 Узел V 3.501.1-155.4-20 Хомут в сборе 3.501.1-155.4-21 Хомут 3.501.1-155.4-22 Хомутик 3.501.1-155.4-23 Планка П-1 3.501.1-155.4-24 Планка П-2 3.501.1-155.4-25 Планка П-3 3.501.1-155.4-26 Планка П-4 3.501.1-155.4-27 Доска Д-1 3.501.1-155.4-28 Доска Д-2 3.501.1-155.4-29 Доска Д-3 3.501.1-155.4-30 Доска Д-4 3.501.1-155.4-31 Молниезащита 3.501.1-155.4-32 Полухомут 3.501.1-155.4-33 Кронштейн |
| Разработан: | Мосгипротранс |
| Утверждён: | 27.11.1988 Министерство путей сообщения СССР (USSR Ministry of Railroads А-3627У) |

































