Скачать Серия 3.501.2-123 Выпуск 1. Альбом 2. Монтажные чертежи и указания по их применению. Электротехническая часть осветительных мачтДата актуализации: 01.01.2021
|
| Обозначение: | Серия 3.501.2-123 |
| Обозначение англ: | Series 3.501.2-123 |
| Статус: | не определен законодательством |
| Название рус.: | Выпуск 1. Альбом 2. Монтажные чертежи и указания по их применению. Электротехническая часть осветительных мачт |
| Дата добавления в базу: | 01.09.2013 |
| Дата актуализации: | 01.01.2021 |
| Дата введения: | 01.01.1981 |
| Дата окончания срока действия: | 30.06.2003 |
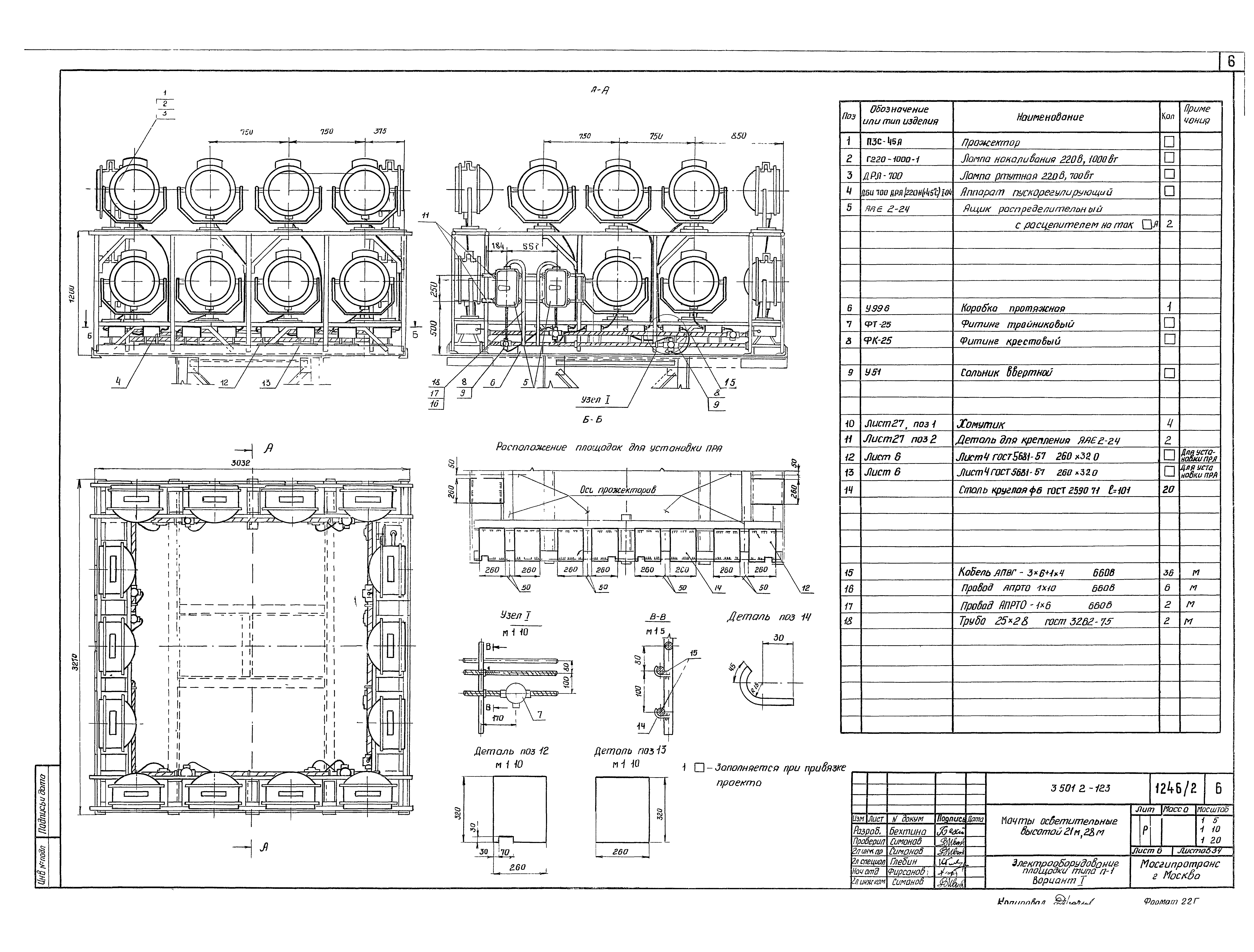
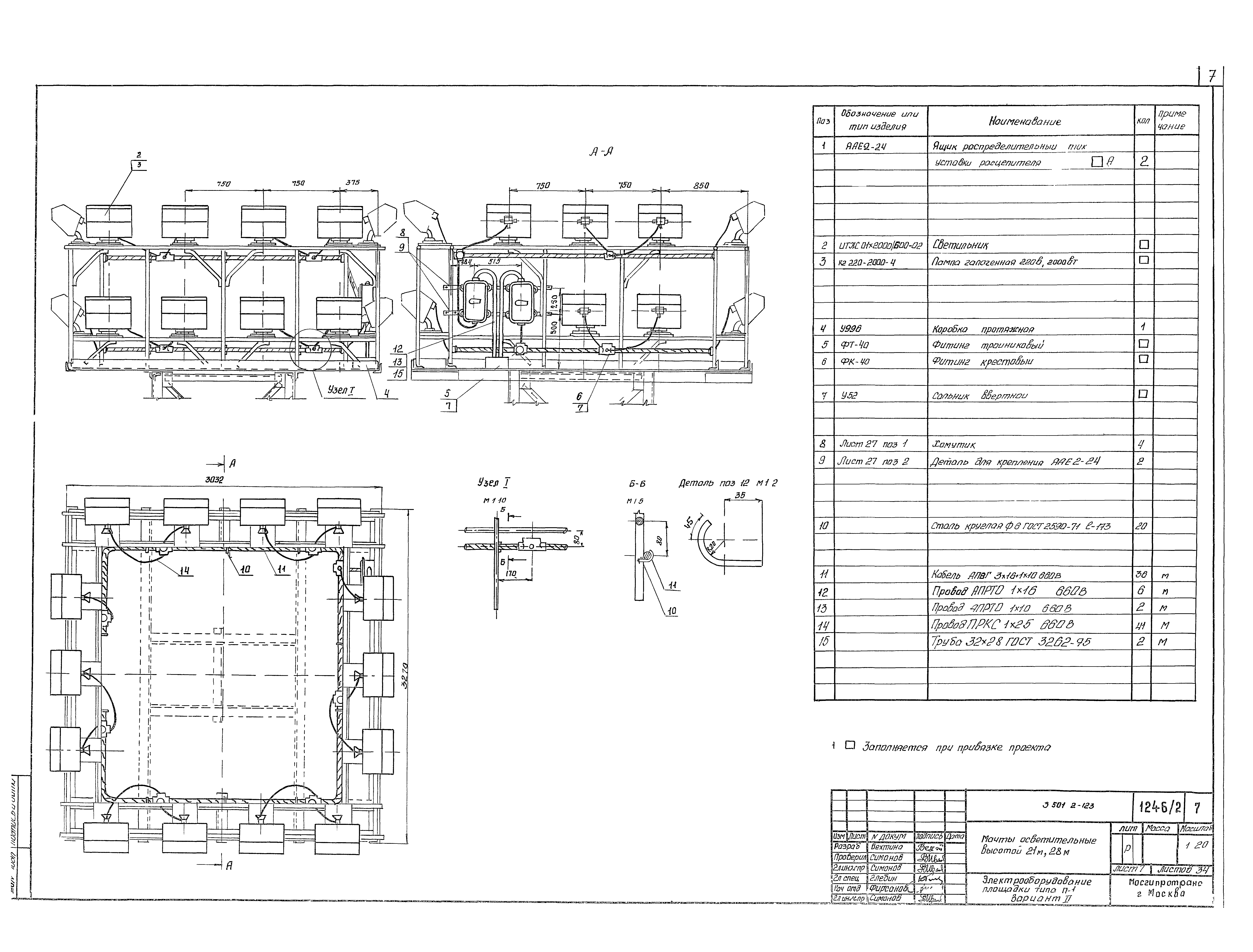
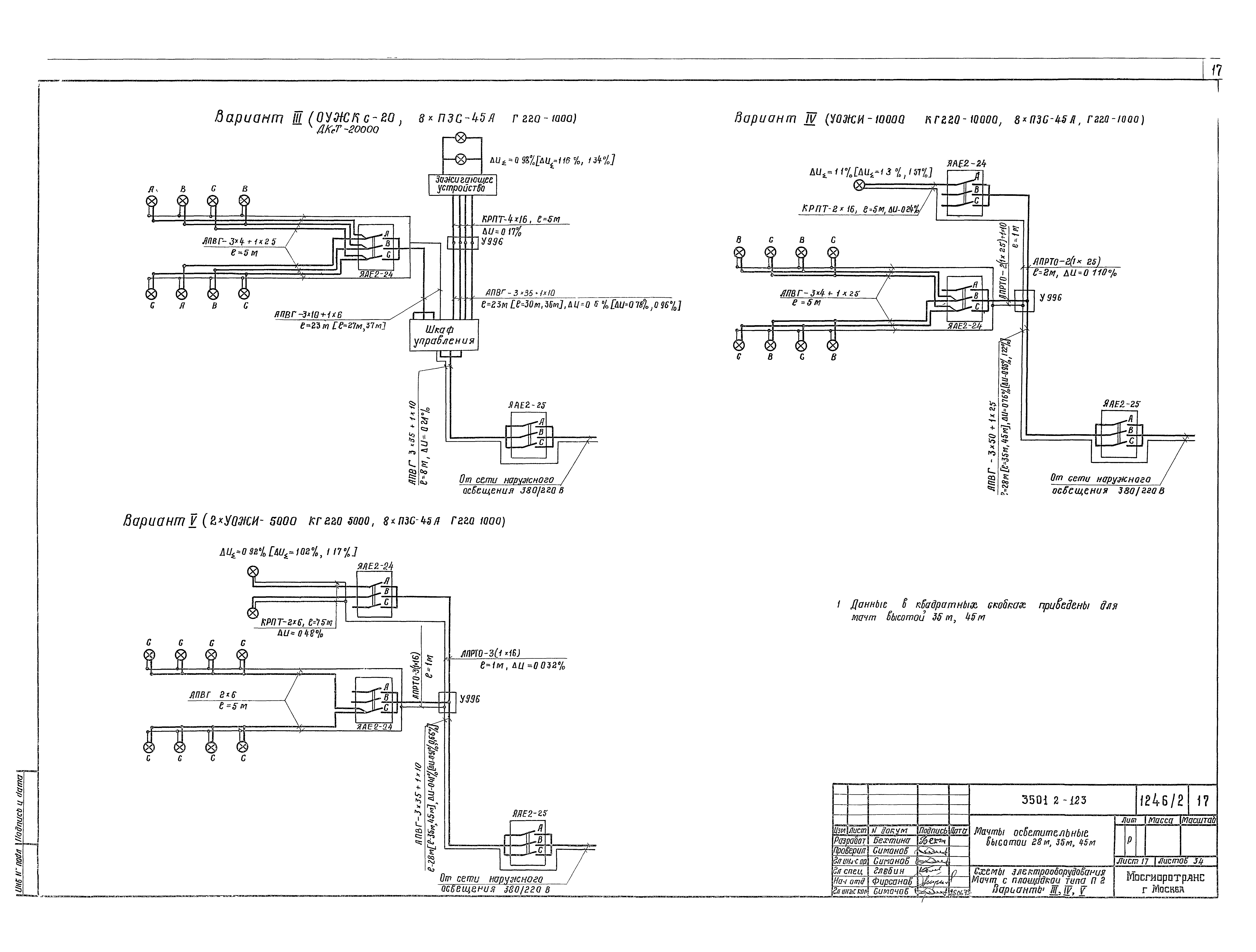
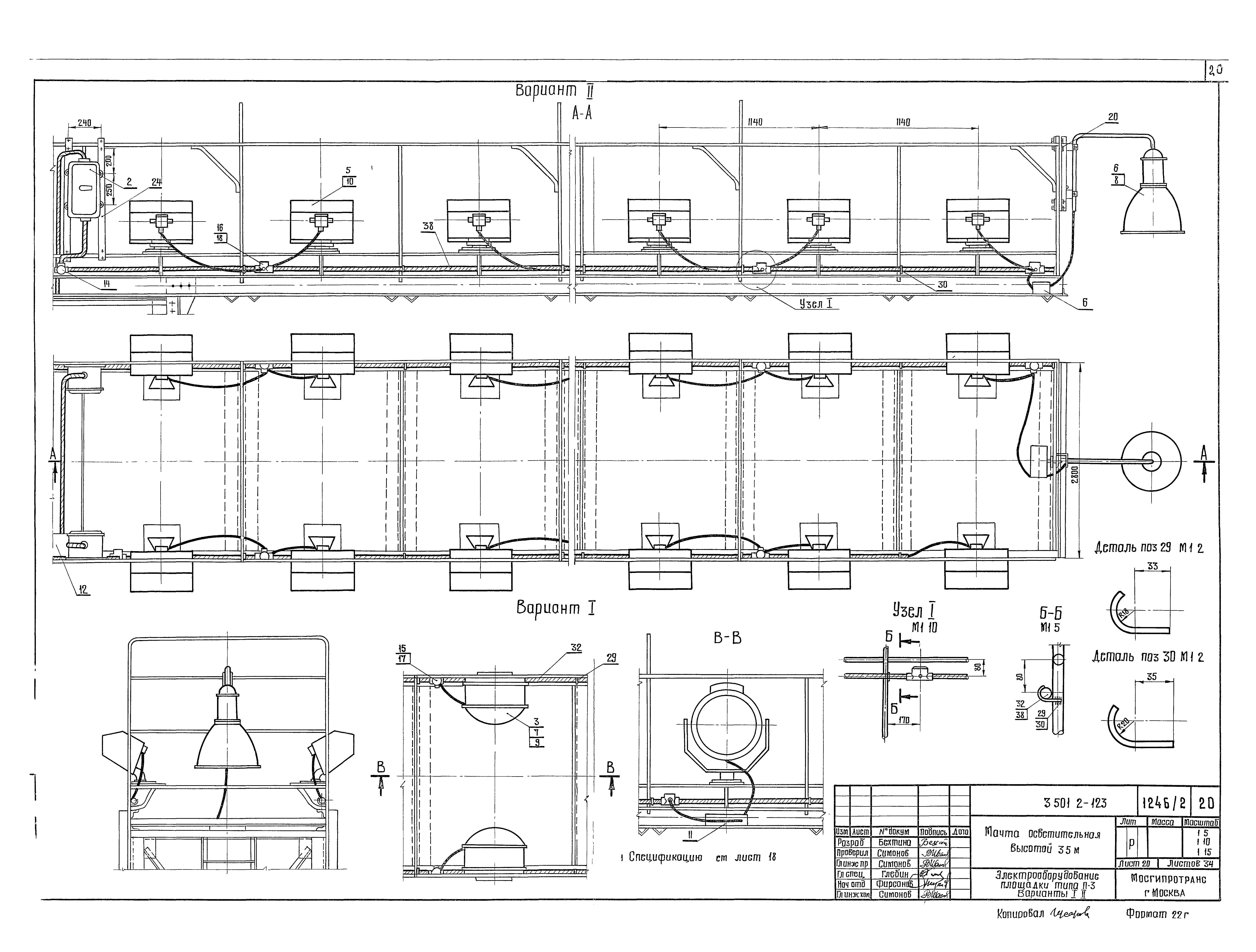
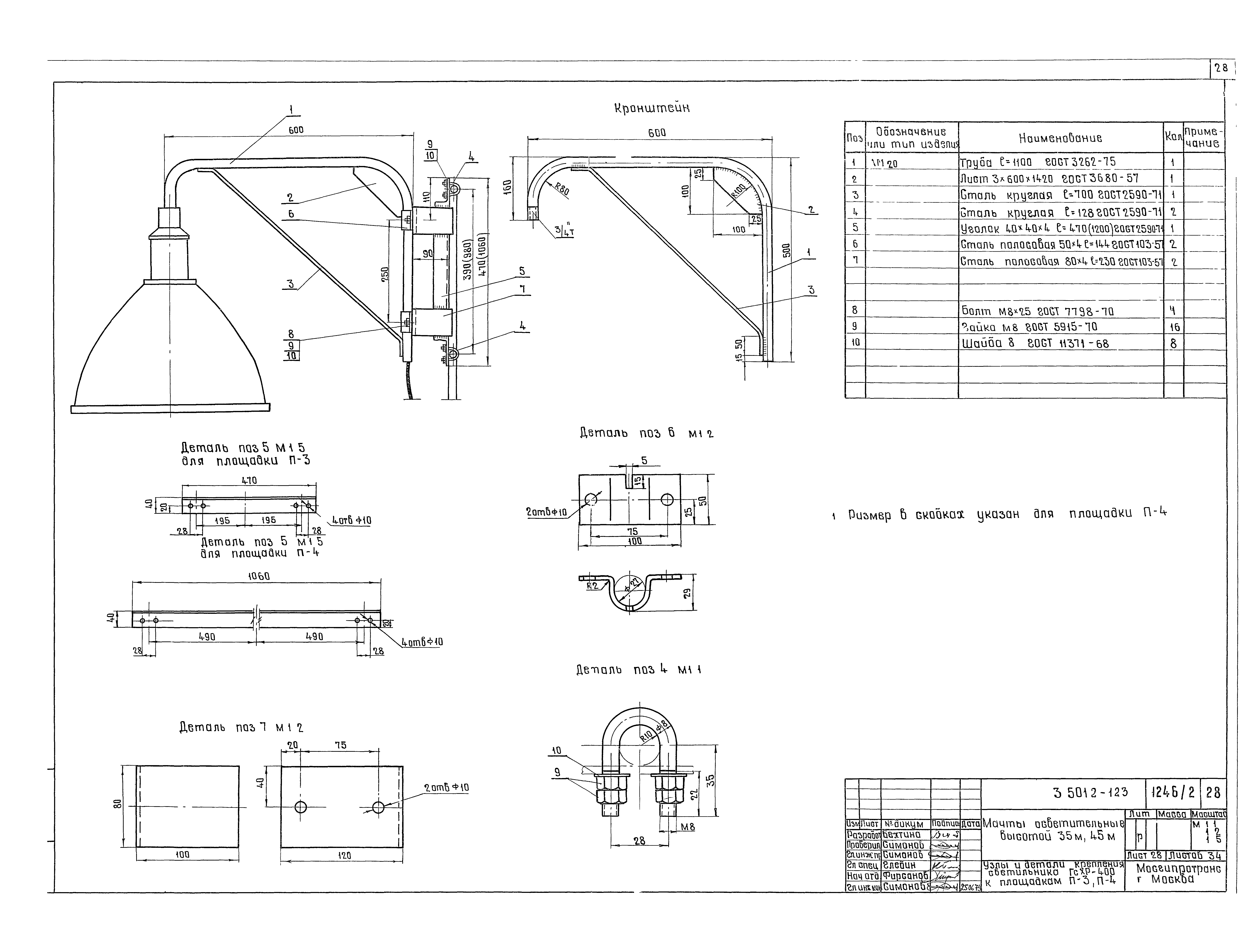
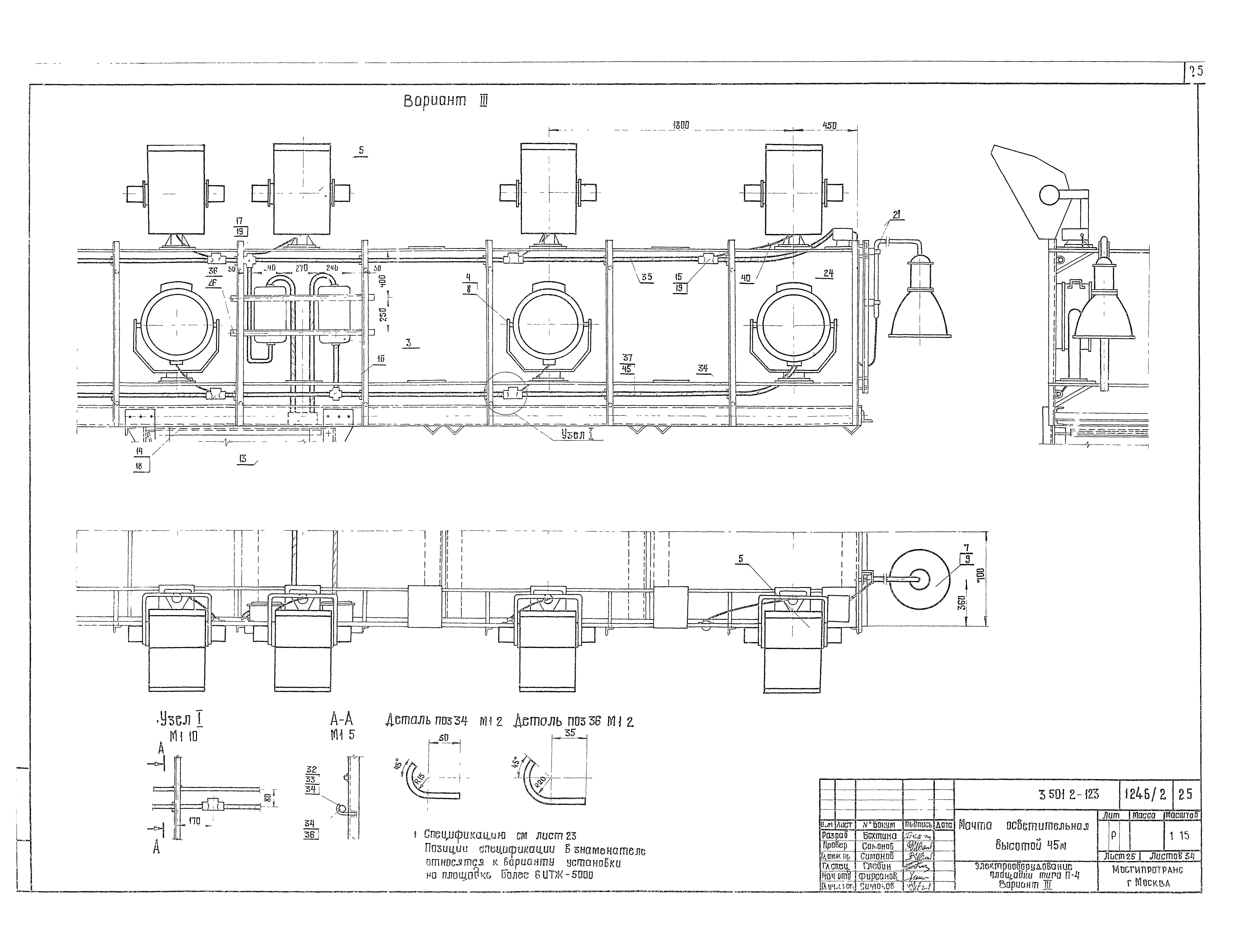
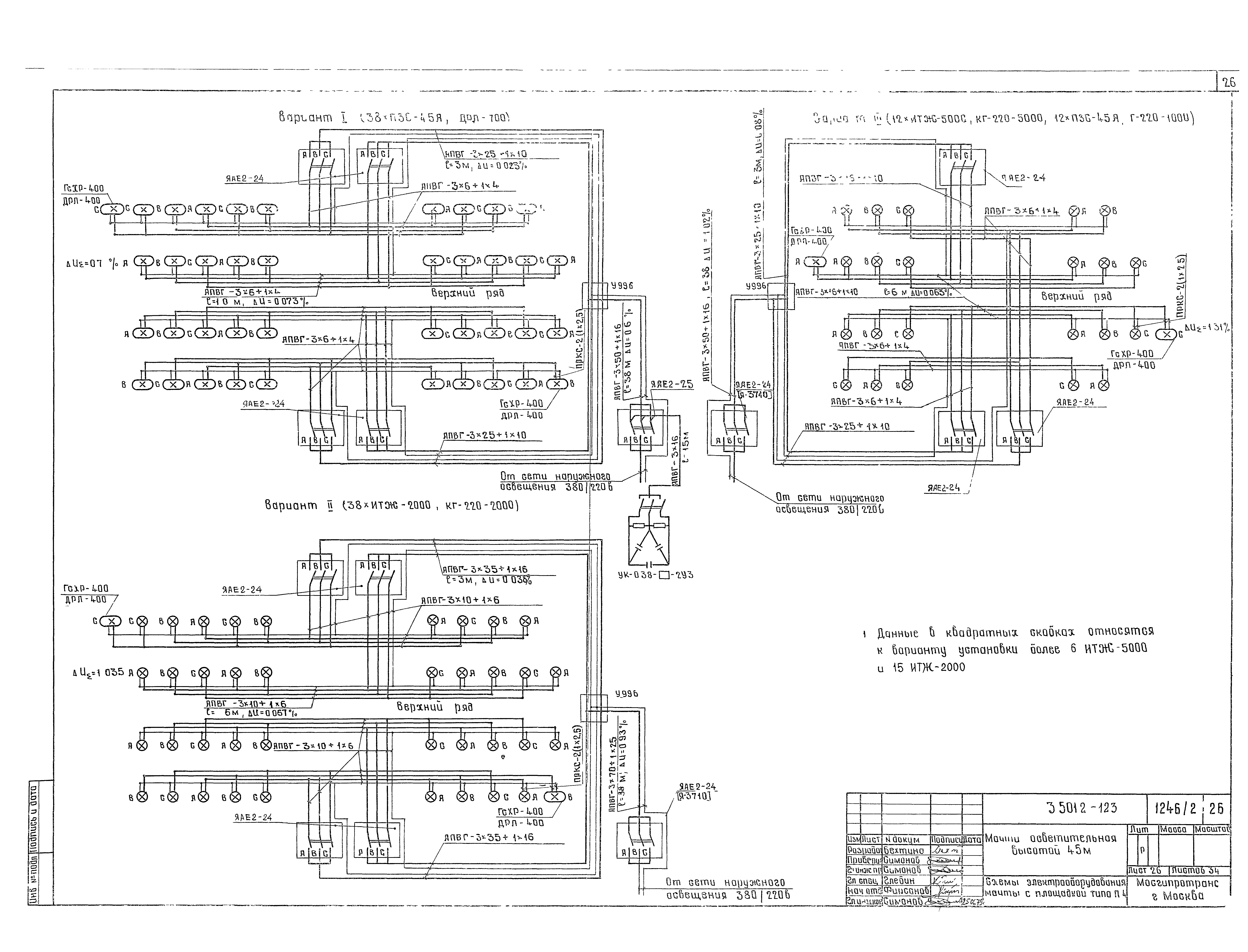
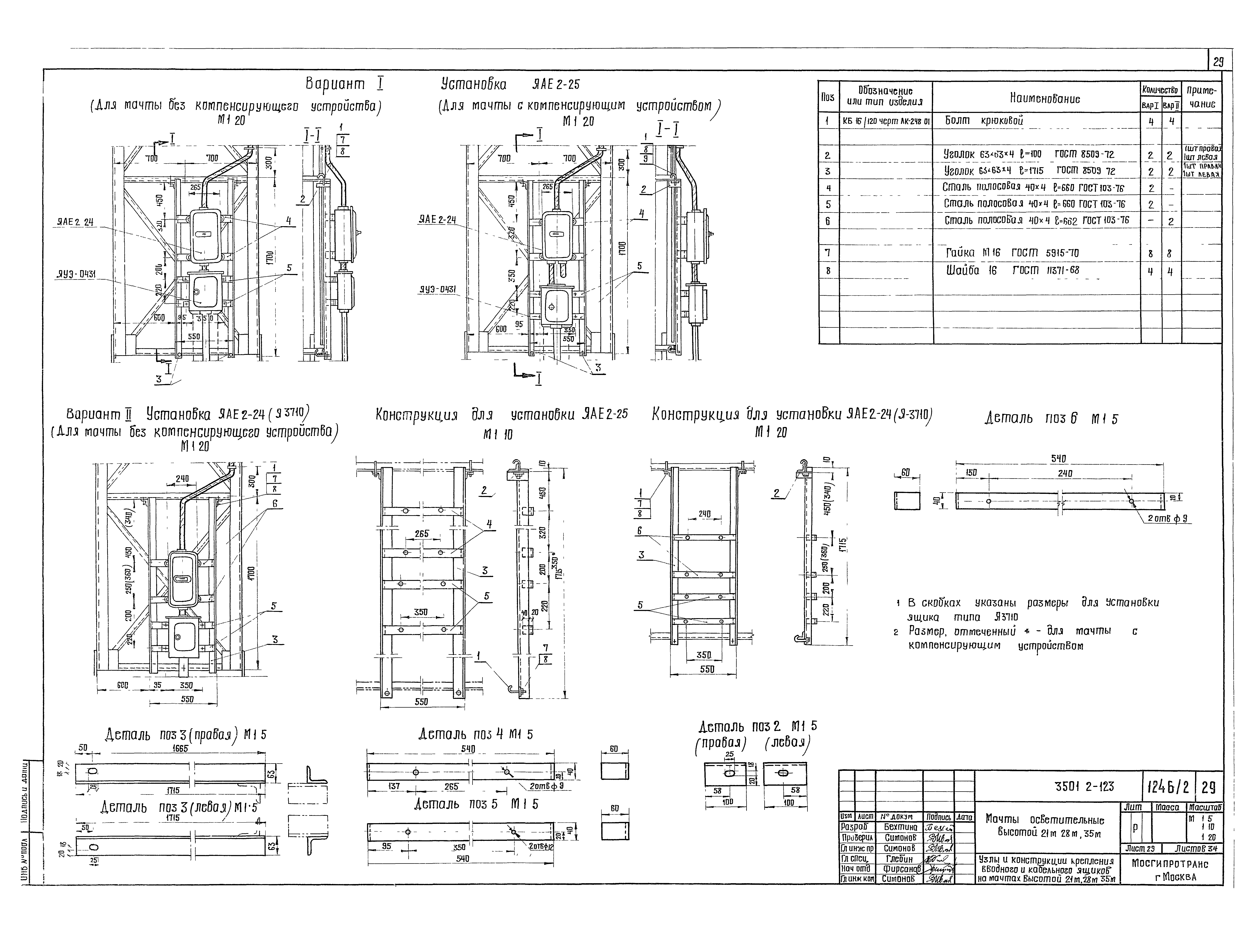
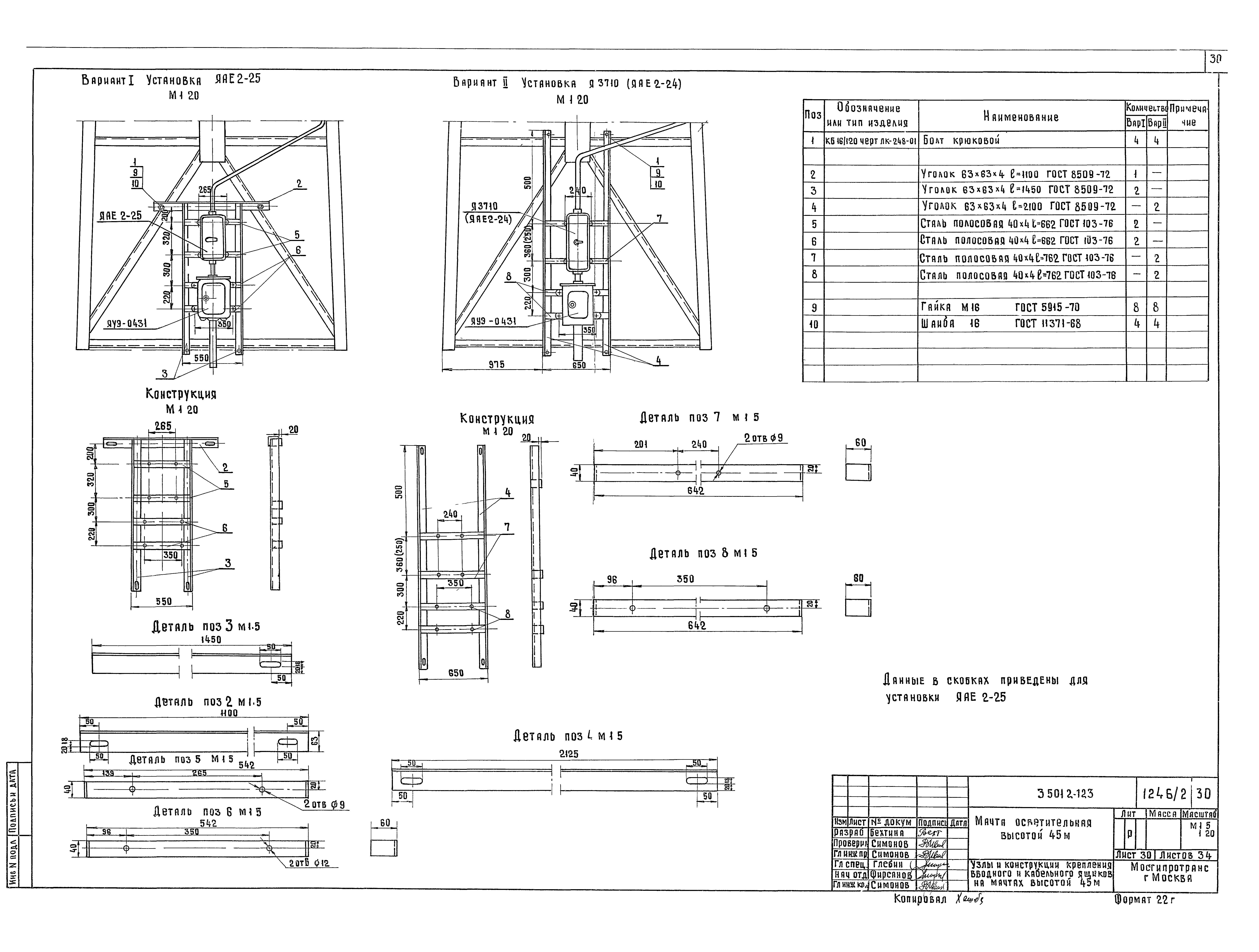
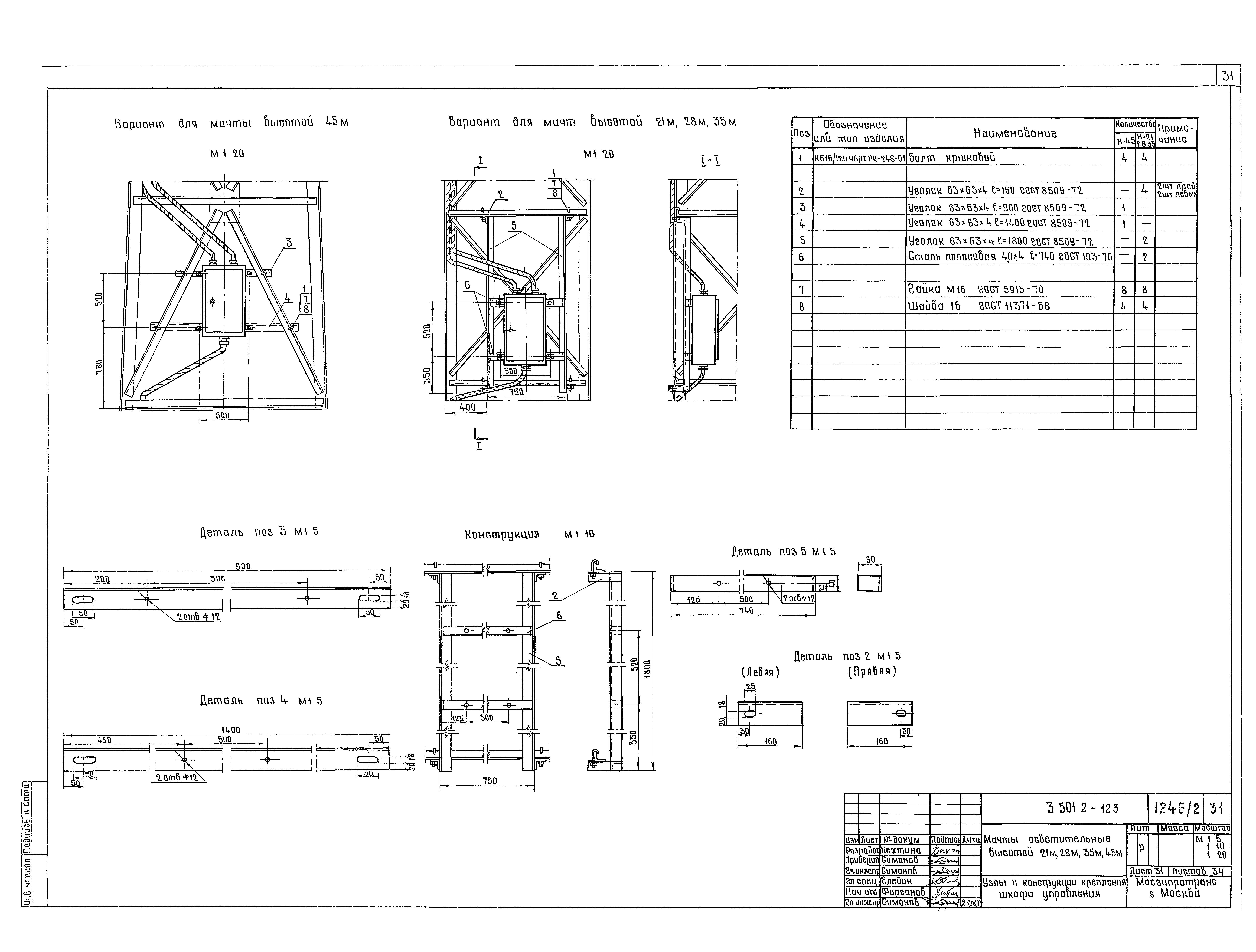
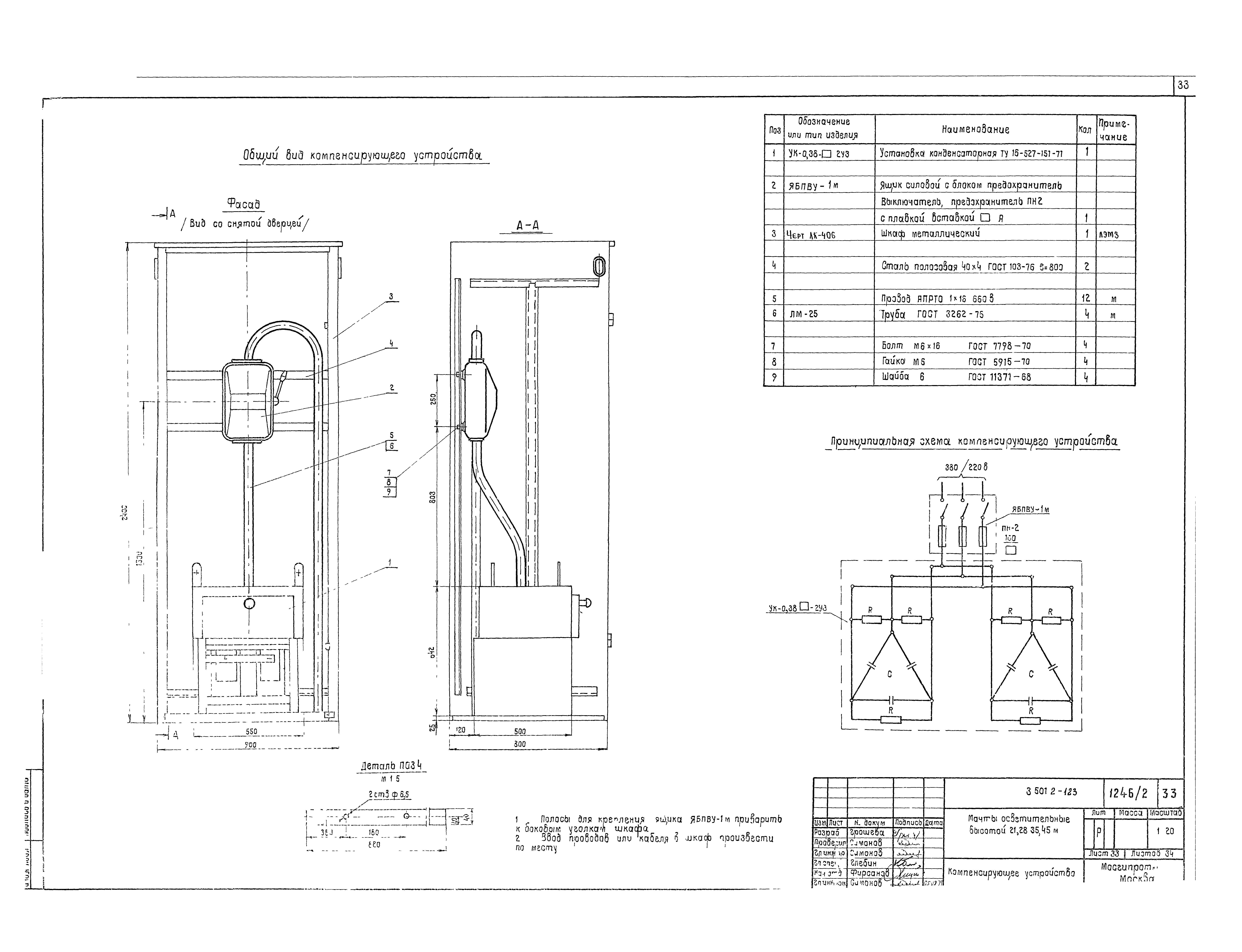
| Оглавление: | Пояснительная записка Таблица выбора вариантов Мачты осветительные высотой 21 м, 28 м Электрооборудование мачт с площадкой типа П-1 Электрооборудование площадки типа П-1. Вариант I Электрооборудование площадки типа П-1. Вариант II Электрооборудование мачт с площадкой типа П-2. Варианты I, II Электрооборудование площадки типа П-2. Вариант I Электрооборудование площадки типа П-2. Вариант II Схемы электрооборудования мачт с площадками типов П-1 и П-2. Варианты I, II Мачты осветительные высотой 28 м, 35 м, 45 м Электрооборудование мачты высотой 28 м с площадкой типа П-2. Варианты III, IV, V Электрооборудование мачт высотой 35 м, 45 м с площадкой типа П-2. Варианты III, IV, V Электрооборудование площадки типа П-2. Вариант III Электрооборудование площадки типа П-2. Вариант IV Электрооборудование площадки типа П-2. Вариант V Схемы электрооборудования мачт с площадкой типа П-2. Варианты III, IV, V Мачта осветительная высотой 35 м Спецификация Электрооборудование мачты с площадкой типа П-3 Электрооборудование площадки типа П-3. Варианты I, II Электрооборудование площадки типа П-3. Вариант III Схемы электрооборудования мачты с площадкой типа П-3 Мачта осветительная высотой 45 м Электрооборудование мачты с площадкой типа П-4 Электрооборудование площадки типа П-4. Варианты I, II Электрооборудование площадки типа П-4. Вариант III Схемы электрооборудования мачты с площадкой типа П-4 Мачты осветительные высотой 21 м, 28 м, 35 м, 45 м Детали для крепления ЯАЕ2-24 к площадкам Узлы и детали крепления светильника ГсХР-400 к площадкам П-3, П-4 Узлы и конструкции крепления вводного и кабельного ящиков на мачтах высотой 21 м, 28 м, 35 м Узлы и конструкции крепления вводного и кабельного ящиков на мачтах высотой 45 м Узлы и конструкции крепления шкафа управления Узлы и детали крепления кабелей к стволу мачты Компенсирующее устройство Заземление мачт |
| Разработан: | Мосгипротранс |
| Утверждён: | 18.09.1979 МПС (Ministry of Railroads П-30817) |

































