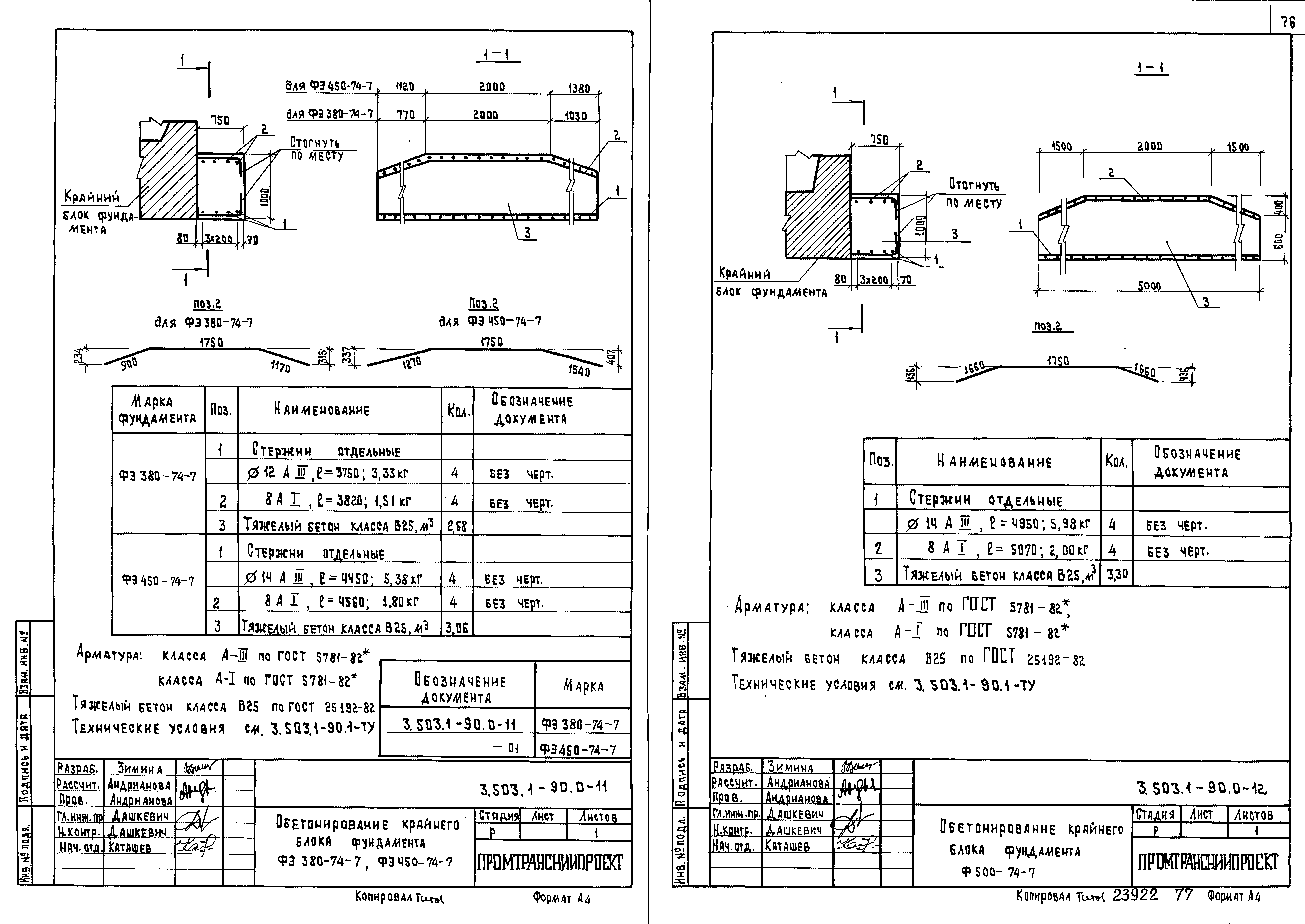
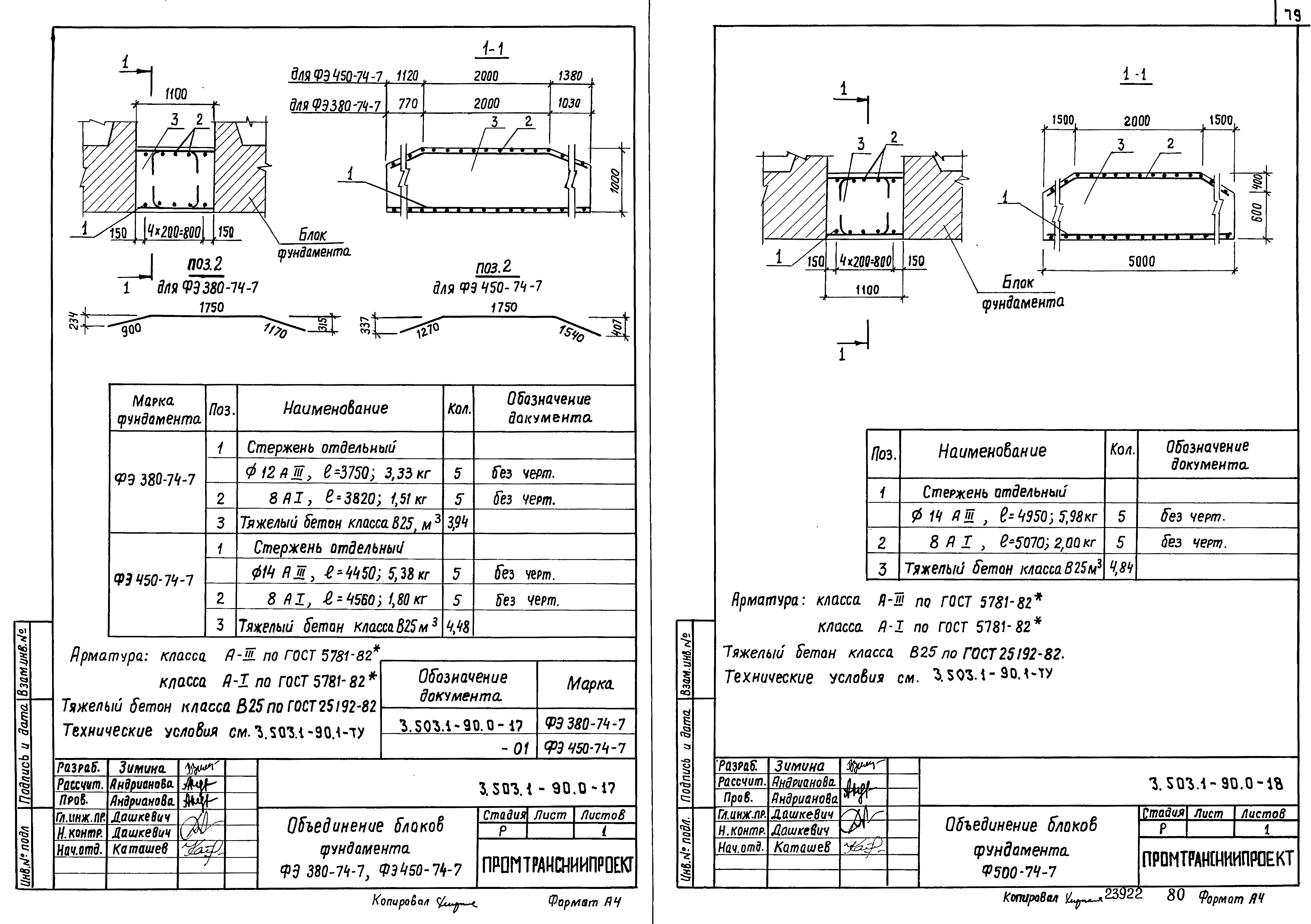
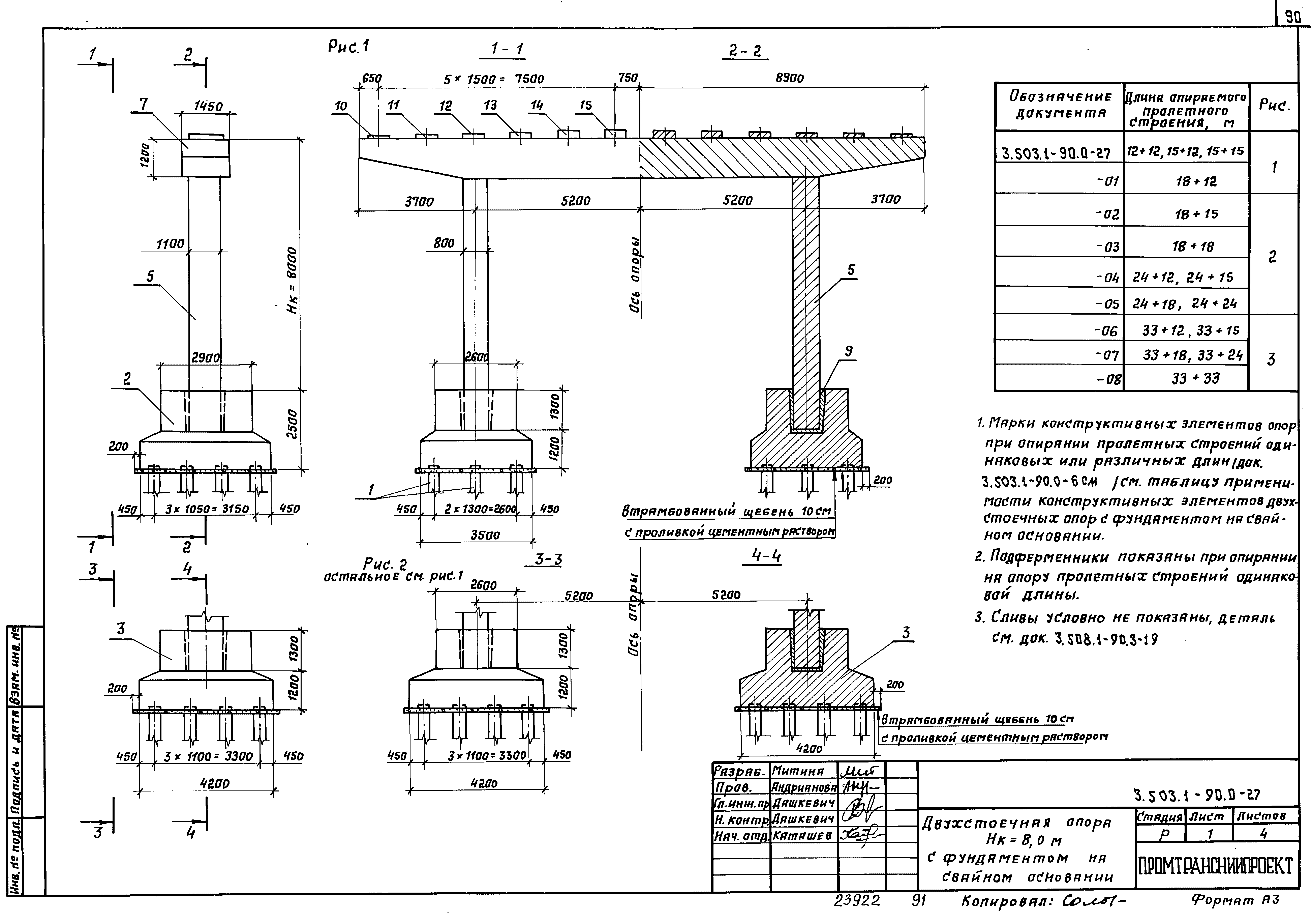
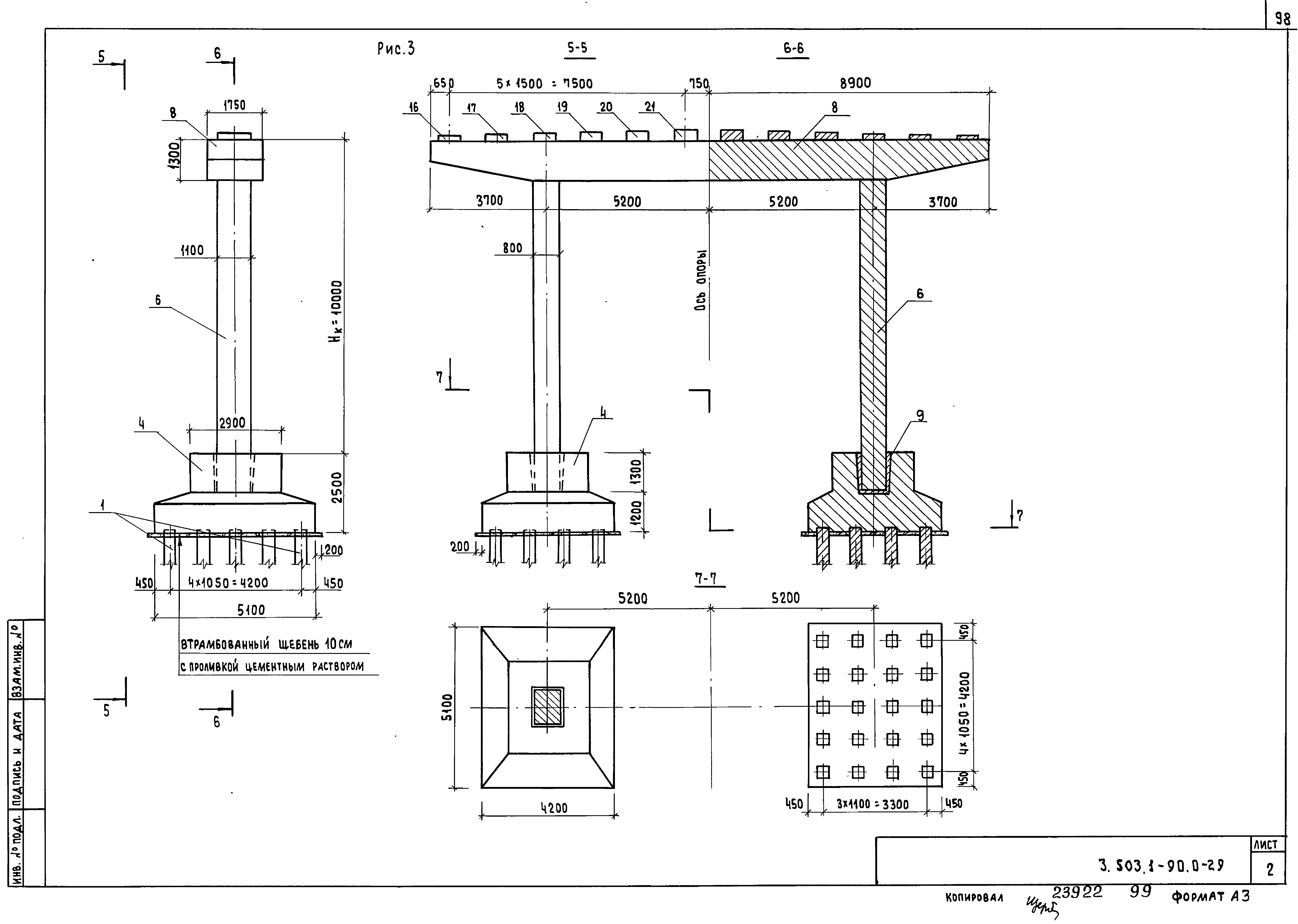
Скачать Серия 3.503.1-90 Выпуск 0. Материалы для проектирования. Узлы. Рабочие чертежиДата актуализации: 01.01.2021
|
| Обозначение: | Серия 3.503.1-90 |
| Обозначение англ: | Series 3.503.1-90 |
| Статус: | не определен законодательством |
| Название рус.: | Выпуск 0. Материалы для проектирования. Узлы. Рабочие чертежи |
| Дата добавления в базу: | 01.09.2013 |
| Дата актуализации: | 01.01.2021 |
| Дата введения: | 25.11.1989 |
| Дата окончания срока действия: | 30.06.2003 |
| Разработан: | Промтрансниипроект |
| Утверждён: | 20.04.1983 Госстрой СССР (Государственный комитет Совета Министров СССР по делам строительства) (USSR Gosstroy ВА-16) |





































































































