Скачать Серия 3.503.9-62 Выпуск 7. Пролетное строение Lp=3х63 м. Рабочие чертежиДата актуализации: 01.01.2021
|
| Обозначение: | Серия 3.503.9-62 |
| Обозначение англ: | Series 3.503.9-62 |
| Статус: | действует |
| Название рус.: | Выпуск 7. Пролетное строение Lp=3х63 м. Рабочие чертежи |
| Дата добавления в базу: | 01.09.2013 |
| Дата актуализации: | 01.01.2021 |
| Дата введения: | 01.01.1985 |
| Область применения: | Пролетное строение Lp=3х63 м предназначено для установки на автомобильных мостах, расположенных в плане на прямых участках дорог IV и V технических категорий и может устанавливаться в профиле на площадках, уклонах и выпуклых кривых радиусом 5000 и 10000 м при расчетной сейсмичности не выше 6 баллов, во всех климатических районах СССР |
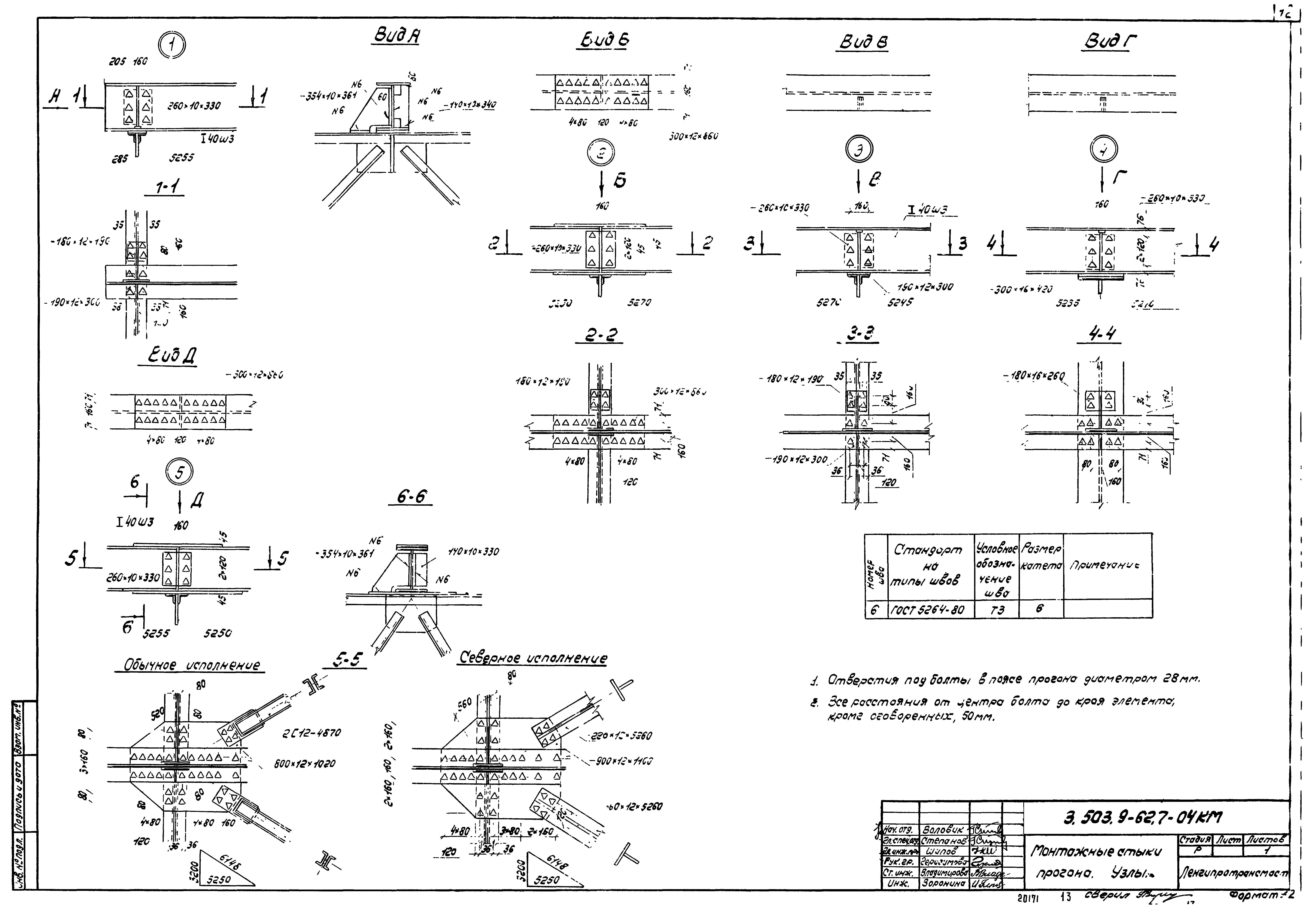
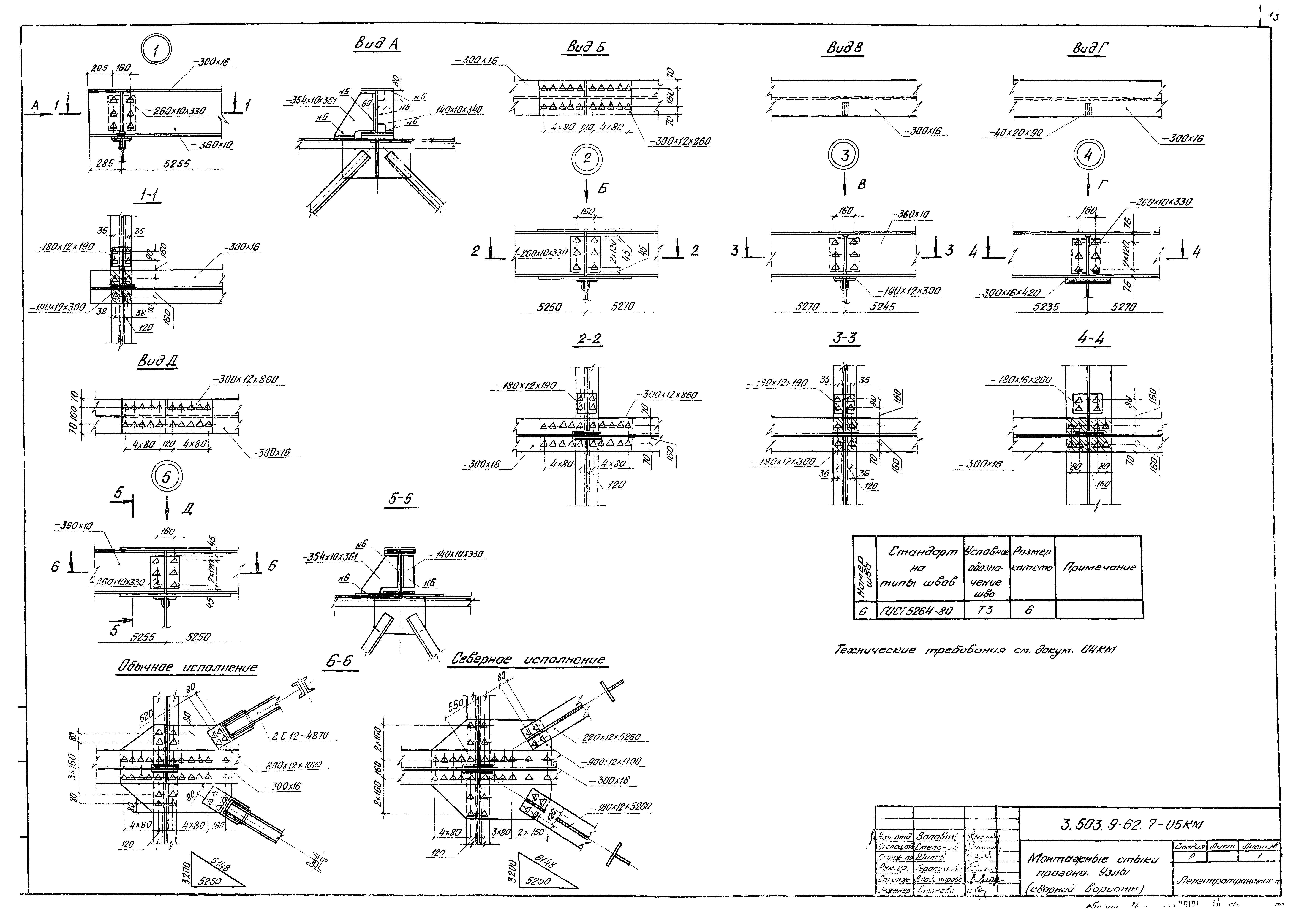
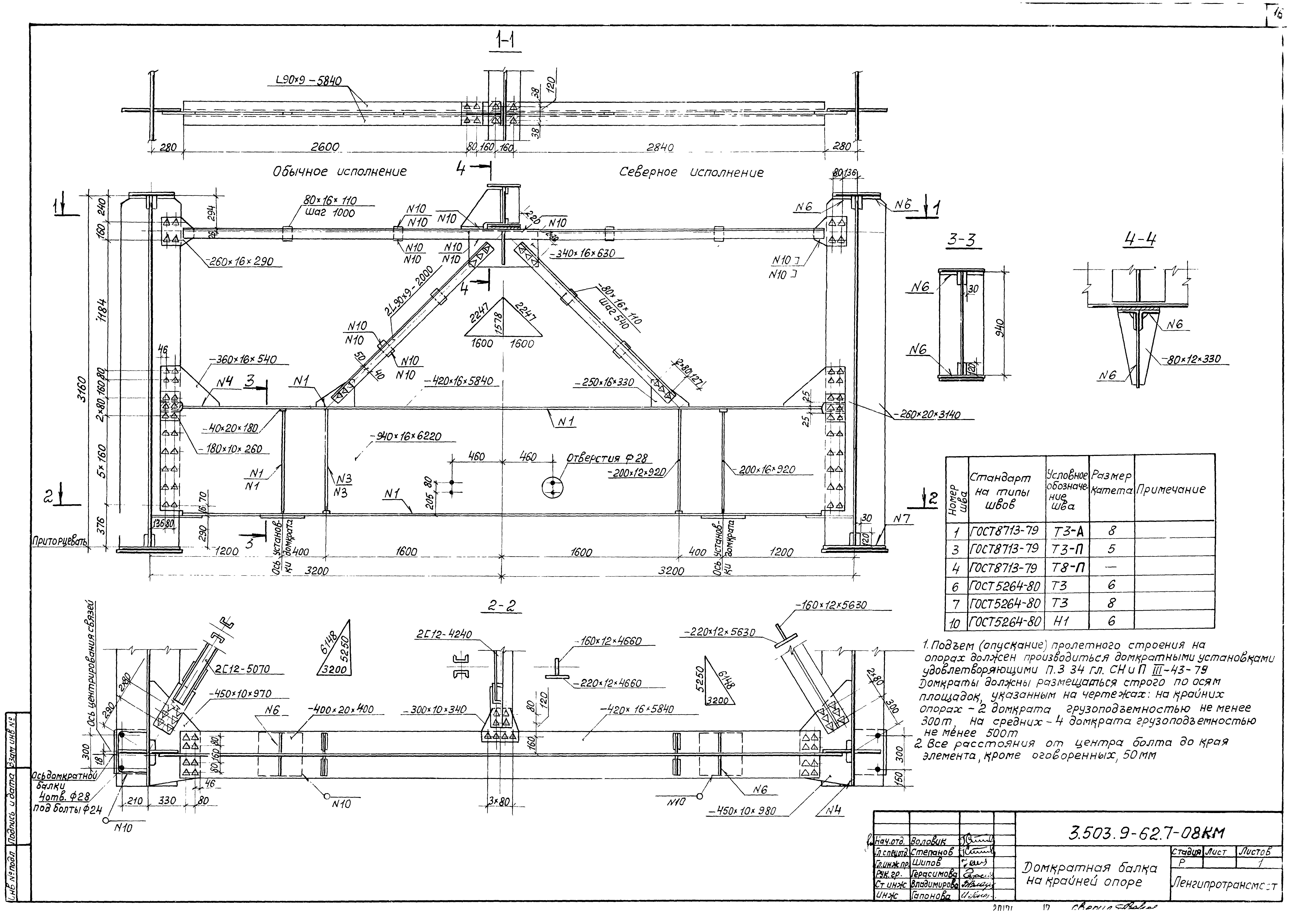
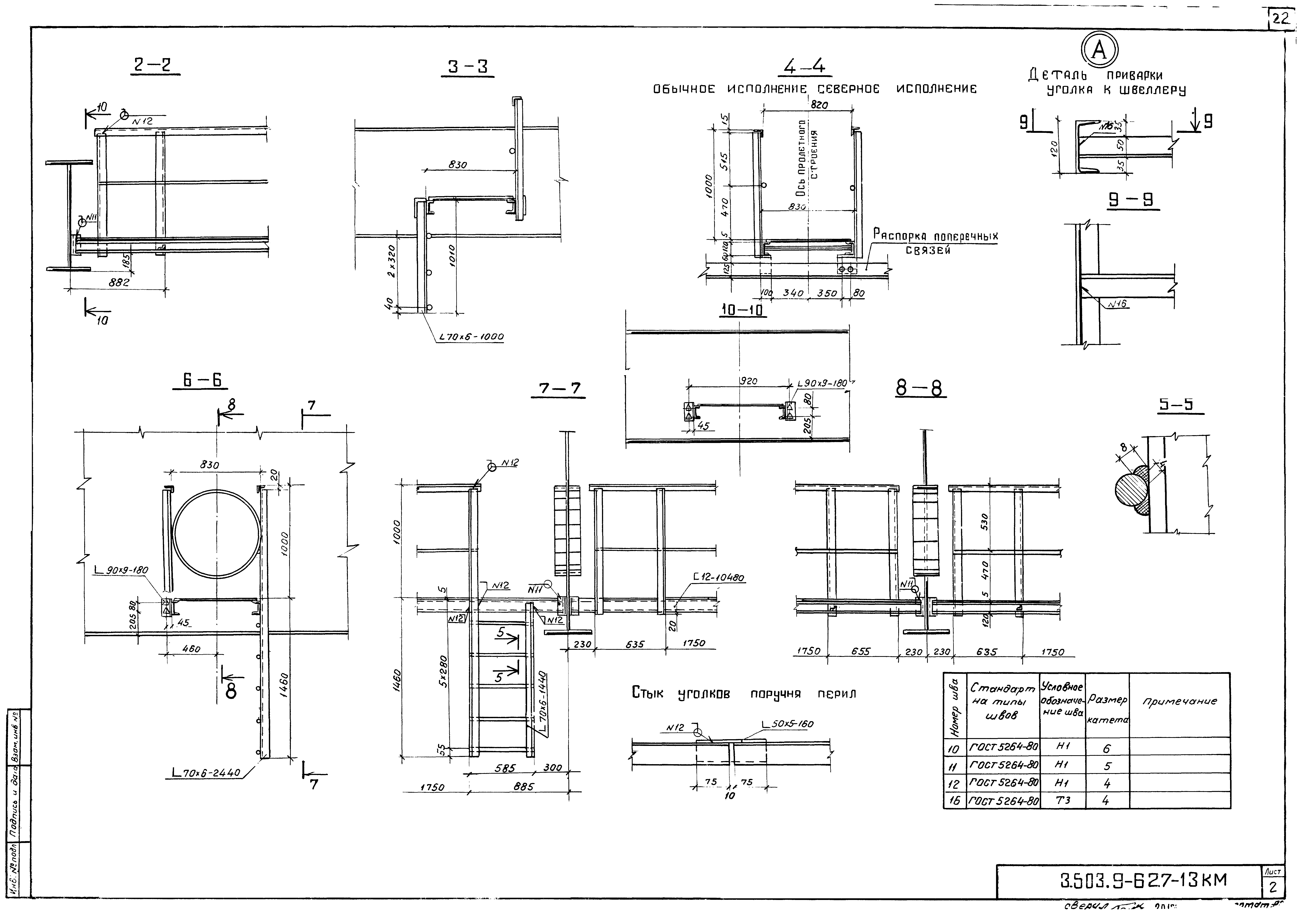
| Оглавление: | 3.503.9-62.7-00 Условные обозначения 3.503.9-62.7-00ПЗ Пояснительная записка 3.503.9-62.7-01 Общий вид пролетного строения. Основные данные 3.503.9-62.7-02КМ Общий вид металлоконструкций 3.503.9-62.7-03КМ Монтажные стыки главных балок 3.503.9-62.7-04КМ Монтажные стыки прогона. Узлы 3.503.9-62.7-05КМ Монтажные стыки прогона. Узлы (сварной вариант) 3.503.9-62.7-06КМ Упоры главных балок и прогона (обычное исполнение) 3.503.9-62.7-07КМ Упоры главных балок и прогона (северное исполнение) 3.503.9-62.7-08КМ Домкратная балка на крайней опоре 3.503.9-62.7-09КМ Домкратная балка на средней опоре 3.503.9-62.7-10КМ Поперечные связи (обычное исполнение) 3.503.9-62.7-11КМ Поперечные связи (северное исполнение) 3.503.9-62.7-12КМ Узлы и элементы продольных связей 3.503.9-62.7-13КМ Смотровой ход 3.503.9-62.7-14 Перила 3.503.9-62.7-15КМ Ограждение ездового полотна 3.503.9-62.7-16 Строительный подъем 3.503.9-62.7-17КМ Техническая спецификация металла (обычное исполнение) 3.503.9-62.7-18КМ Техническая спецификация металла (северное исполнение) 3.503.9-62.7-19 Схема продольной надвижки 3.503.9-62.7-20 Монтаж плит проезжей части 3.503.9-62.7-21 Последовательность загружения пролетного строения и регулирование усилий 3.503.9-62.7-22 Расчет продольного строения 3.503.9-62.7-23 Монтажная схема блоков плиты проезжей части и тротуаров 3.503.9-62.7-24 Поперечный разрез плиты проезжей части и прикрепление тротуарных блоков 3.503.9-62.7-25 Мостовое полотно 3.503.9-62.7-26 Монолитный участок железобетонной плиты проезжей части 3.503.9-62.7-27 Водоотводное устройство 3.503.9-62.7-28КМ Деформационный шов перекрываемого типа ПС-80 3.503.9-62.7-29КМ Деформационный шов перекрываемого типа ПС-210 3.503.9-62.7-30ВМ Ведомость потребности в материалах на пролетное строение |
| Разработан: | Ленгипротрансмост |
| Утверждён: | 26.11.1984 Минтрансстрой (Mintransstroy ВС-1196) |
| Заменяет собой: |





















































