Скачать Серия 3.503-15 Раздел I. Выпуск IV. Пролетное строение Lр = 63 м. Пояснительная записка и чертежиДата актуализации: 01.01.2021
|
| Обозначение: | Серия 3.503-15 |
| Обозначение англ: | Series 3.503-15 |
| Статус: | заменен |
| Название рус.: | Раздел I. Выпуск IV. Пролетное строение Lр = 63 м. Пояснительная записка и чертежи |
| Дата добавления в базу: | 01.10.2014 |
| Дата актуализации: | 01.01.2021 |
| Дата введения: | 25.11.1968 |
| Дата окончания срока действия: | 01.03.1985 |
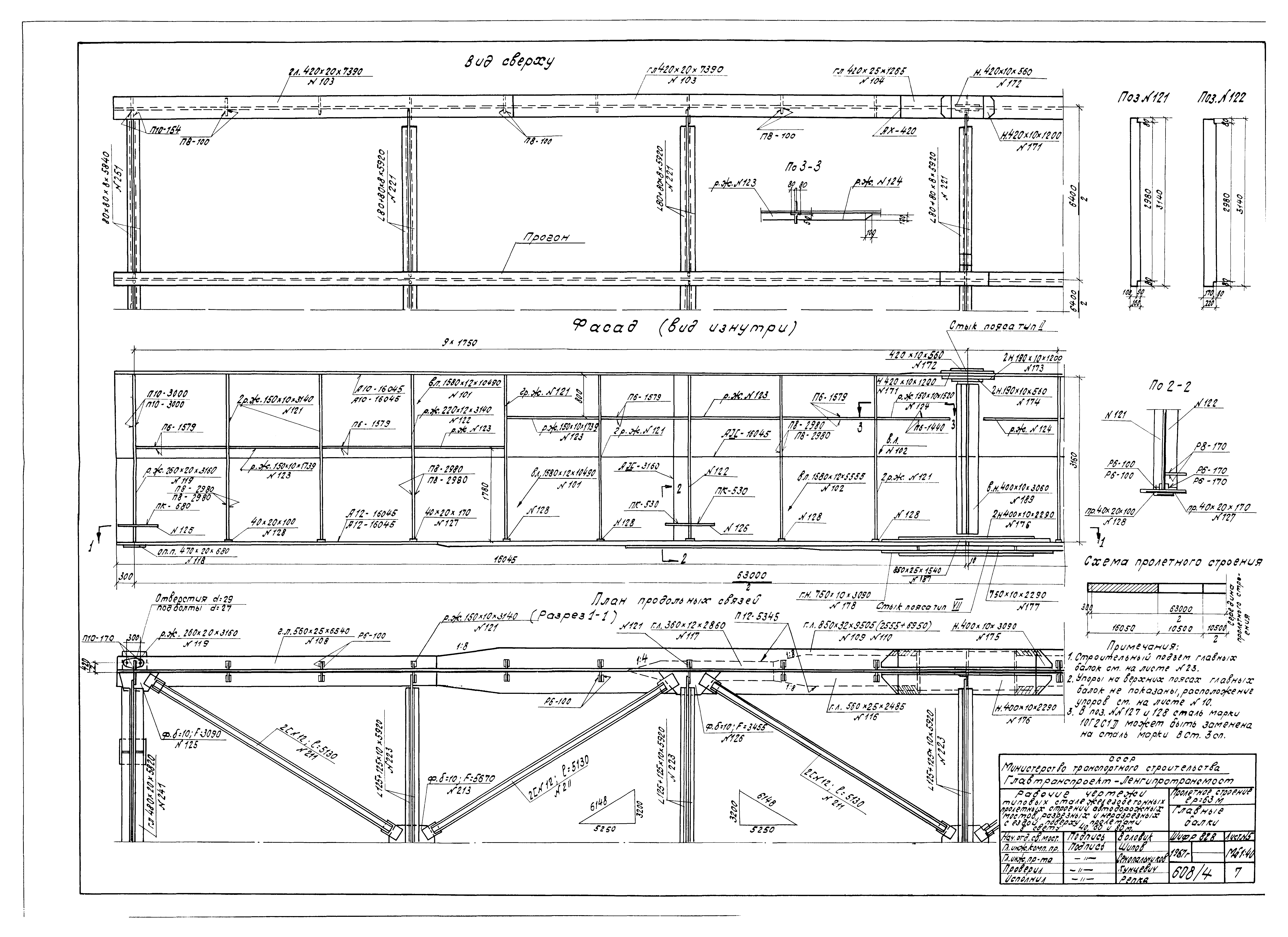
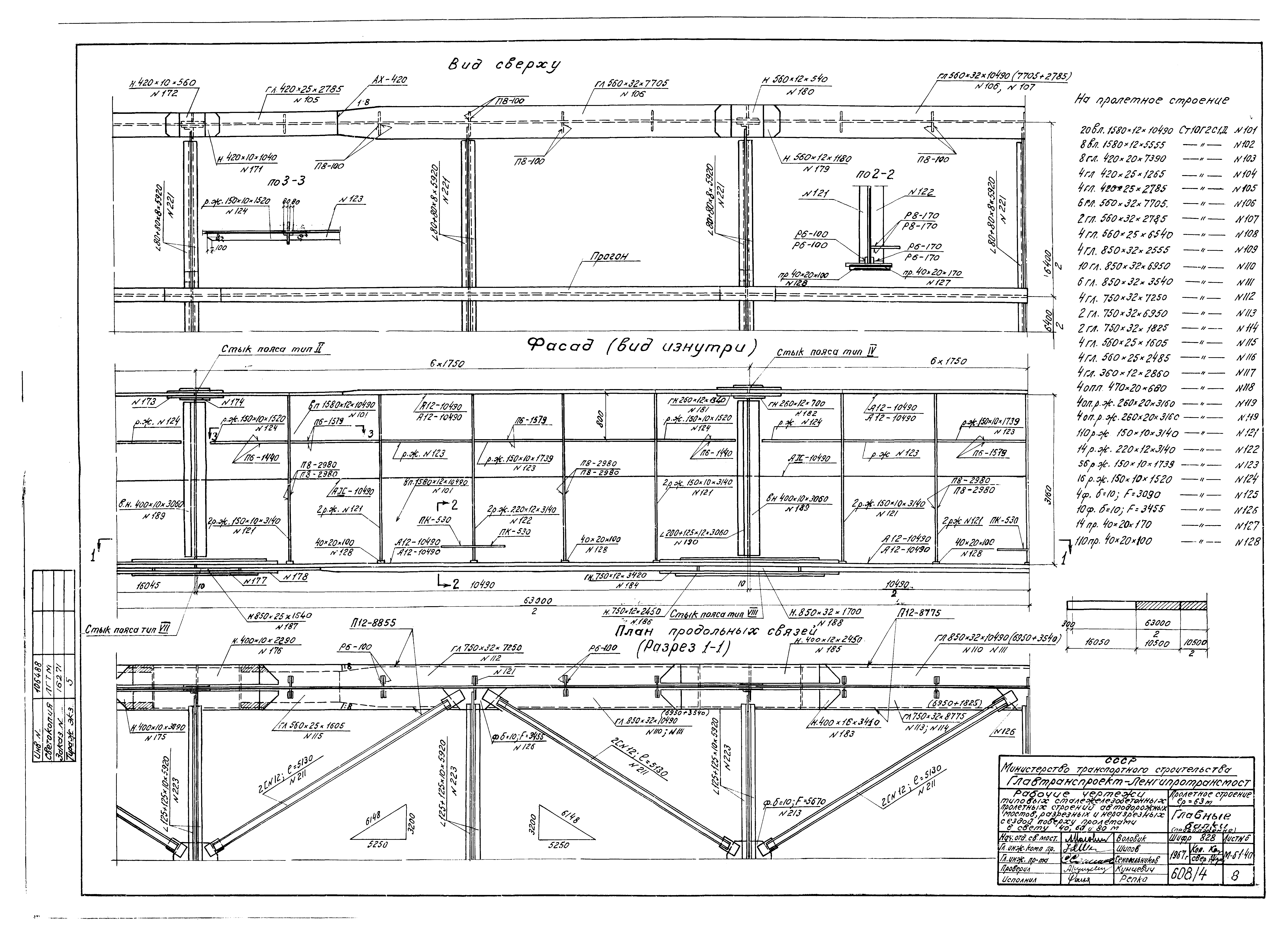
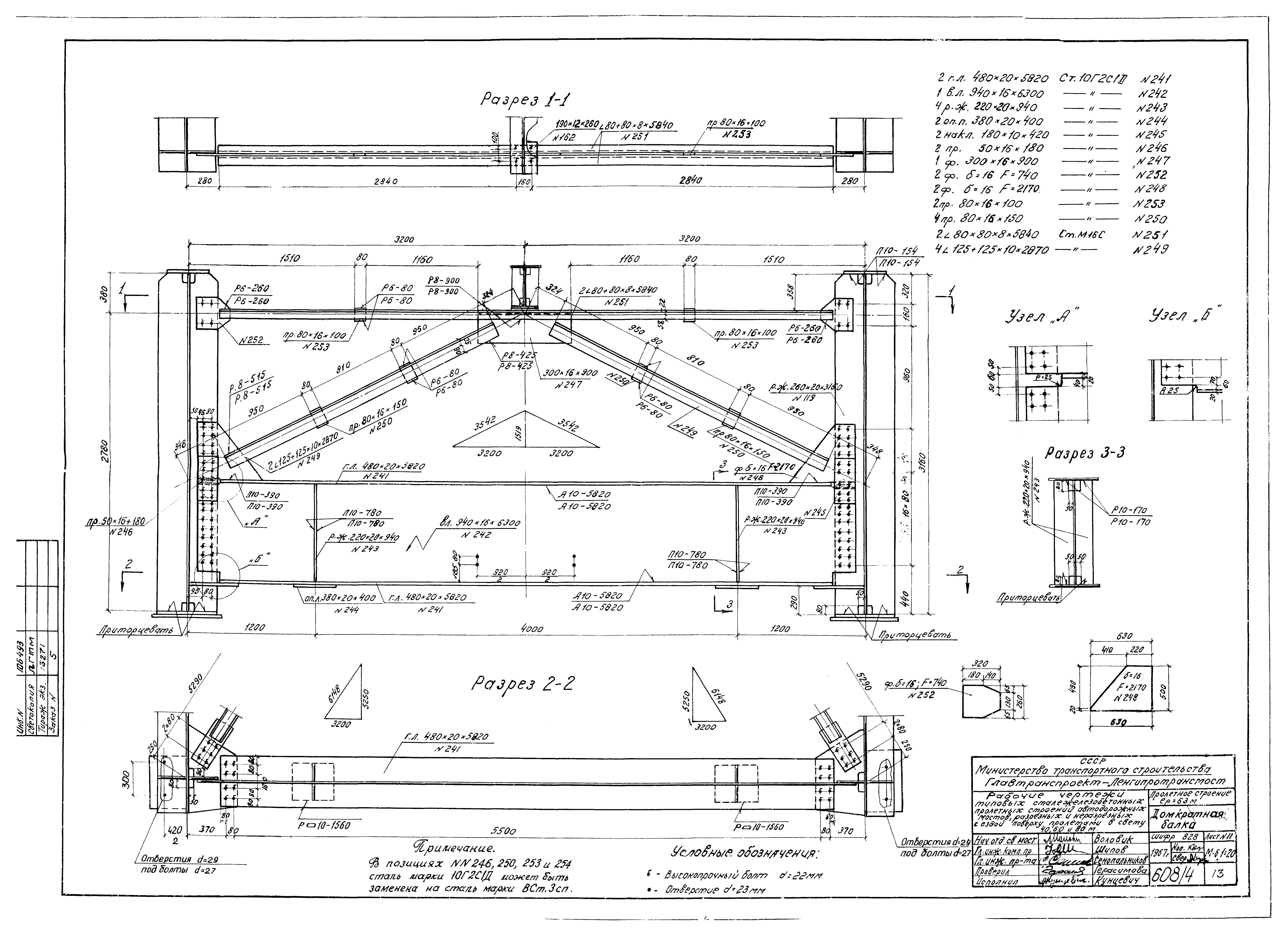
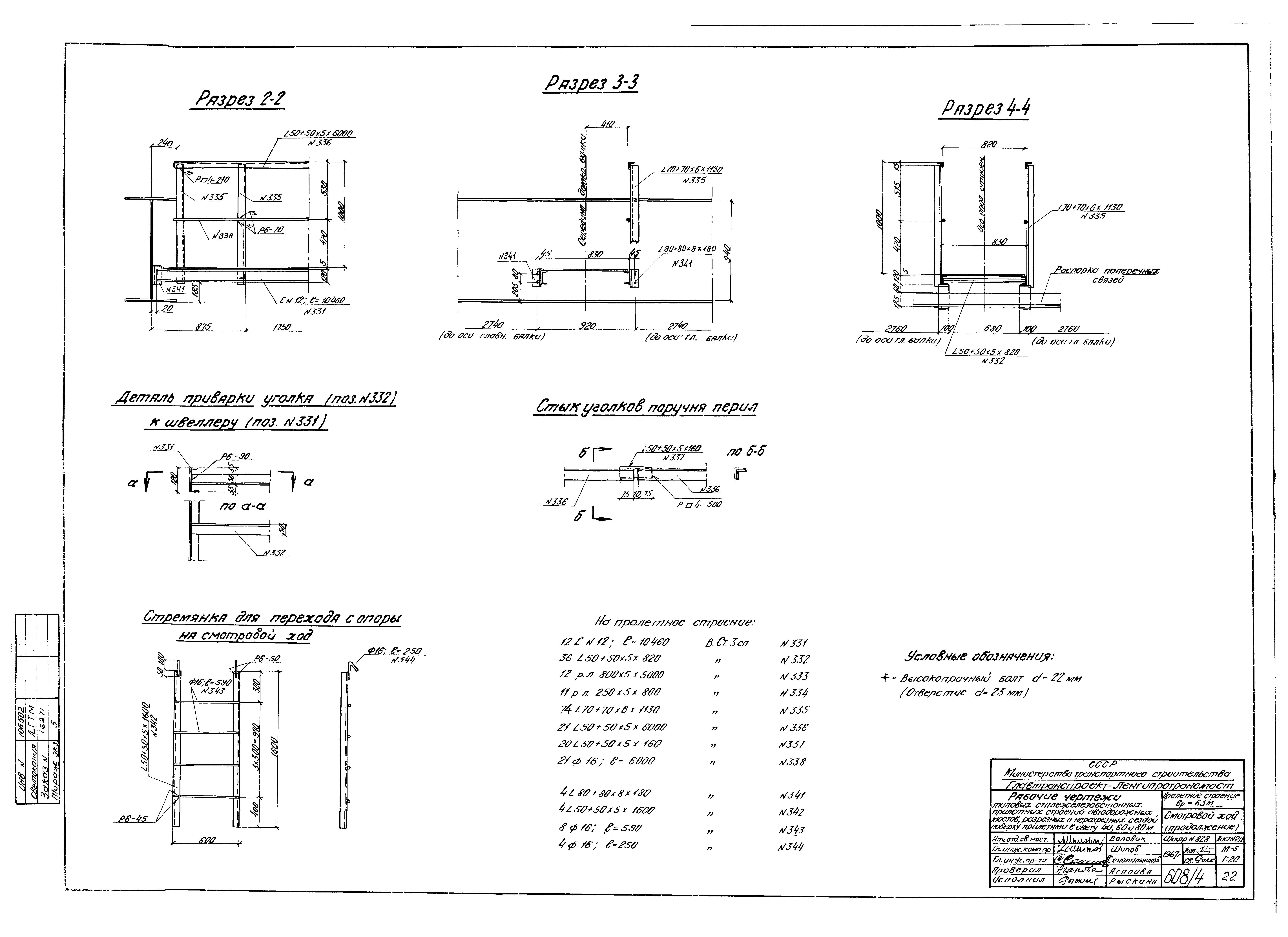
| Оглавление: | Пояснительная записка Паспорт пролетного строения Главные балки Стыки главных балок Прогон Упоры главных балок и прогона Домкратная балка Продольные связи Поперечные связи Указания по изготовлению конструкции и обработке сварных швов Деформационный шов Перила Смотровой ход Подвижная опорная часть Неподвижная опорная часть Строительный подъем Исчисление веса металла Монтажная схема блоков плиты проезда и тротуаров Поперечный разрез плиты проезда и прикрепление тротуарных блоков Мостовое полотно Основные положения расчета. Расчетные усилия Геометрические характеристики сечений и напряжения Расчет стыков главных балок Местная устойчивость вертикальной стенки. Расчет упоров Расчет связей и домкратной балки Расчет железобетонной плиты проезда на местную нагрузку Схемы монтажа пролетного строения Временный стык пролетных строений для продольной надвижки Монтаж плит проезжей части Конструкция аванбека Узлы и детали конструкции аванбека Связи и домкратная балка аванбека Исчисление веса металла аванбека Конструкция короткого аванбека |
| Разработан: | Ленгипротрансмост Главтранспроект |
| Утверждён: | 25.11.1968 Министерство транспортного строительства СССР (USSR Ministry of Transport Construction Л-1943) |
| Чем заменён: |












































