Скачать Серия 3.501.1-165 Выпуск 1-4. Пролетные строения длиной 18, 21, 24 и 27 м сборные железобетонные предварительно напряженные, армированные пучками. Железобетонные изделия. Рабочие чертежиДата актуализации: 01.01.2021
|
| Обозначение: | Серия 3.501.1-165 |
| Обозначение англ: | Series 3.501.1-165 |
| Статус: | не определен законодательством |
| Название рус.: | Выпуск 1-4. Пролетные строения длиной 18, 21, 24 и 27 м сборные железобетонные предварительно напряженные, армированные пучками. Железобетонные изделия. Рабочие чертежи |
| Дата добавления в базу: | 01.09.2013 |
| Дата актуализации: | 01.01.2021 |
| Дата введения: | 01.05.1993 |
| Дата окончания срока действия: | 30.06.2003 |
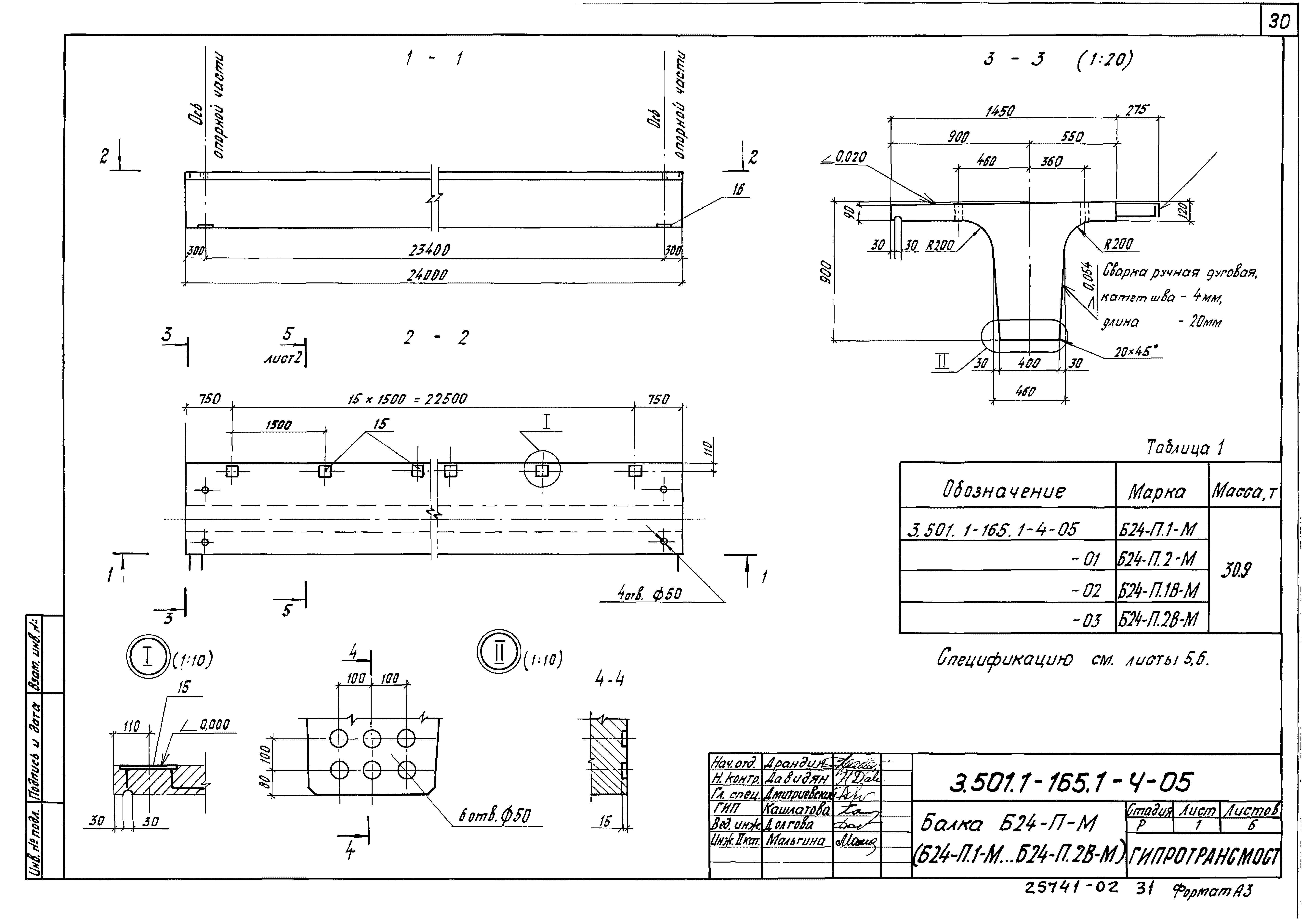
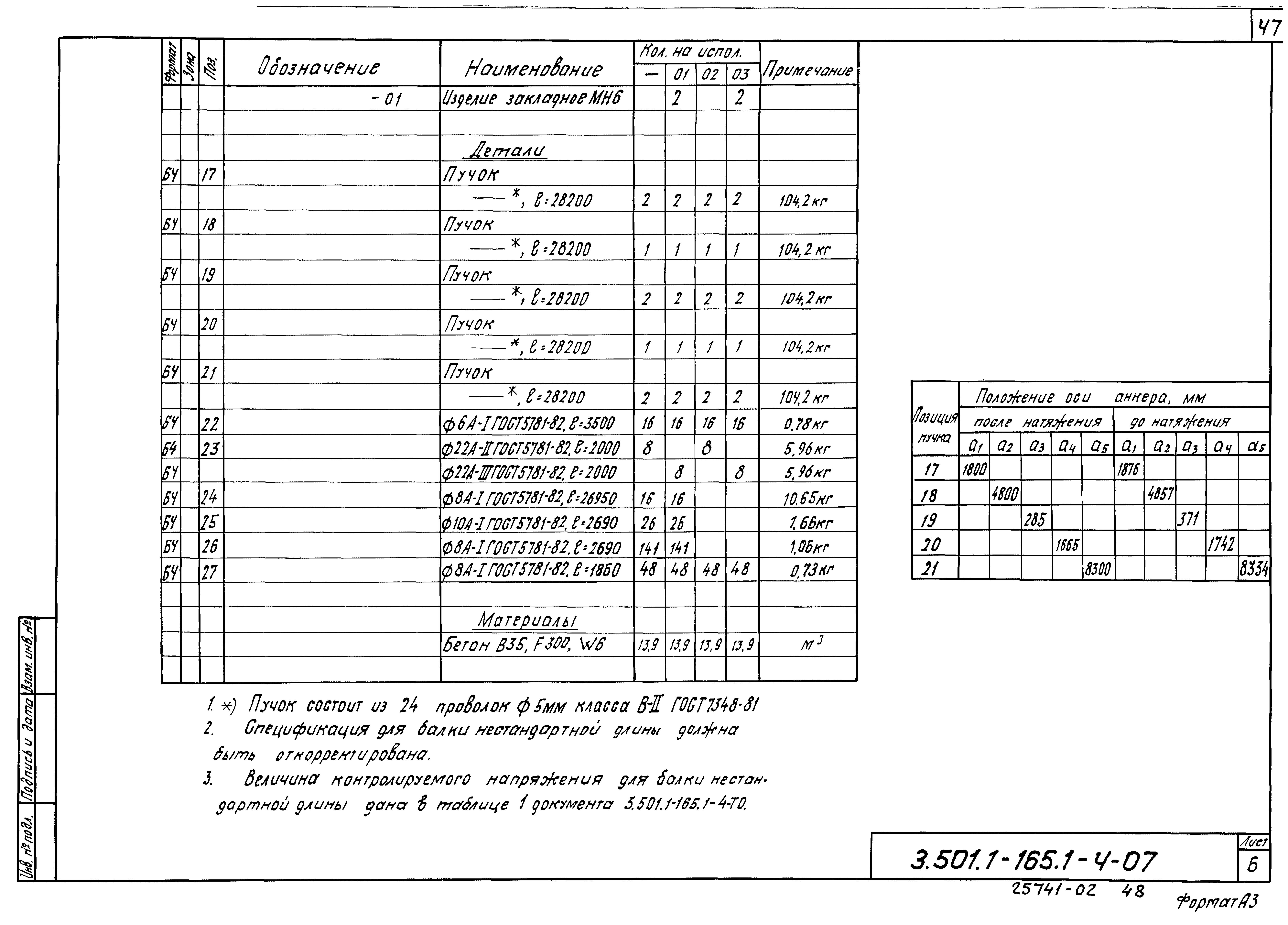
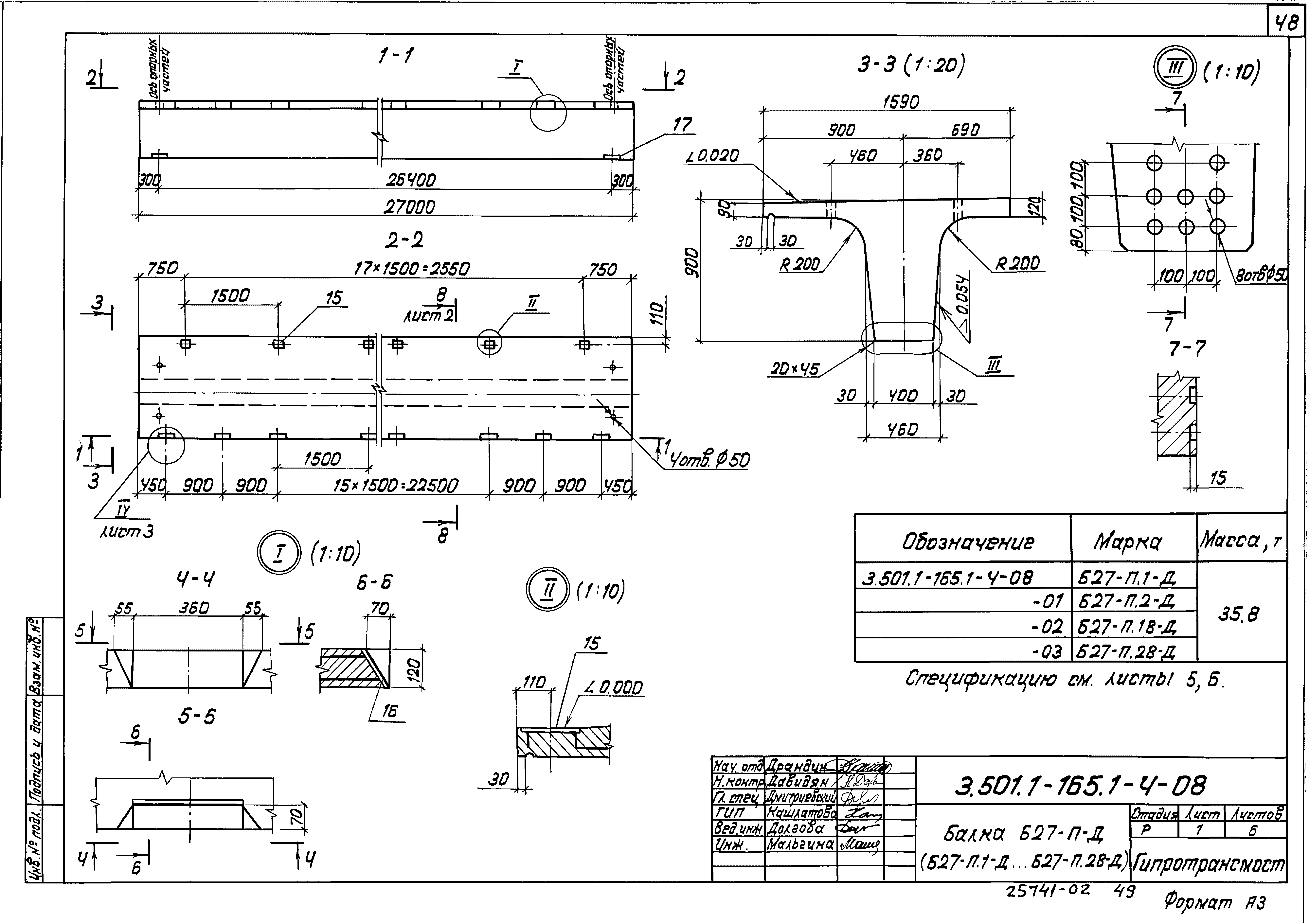
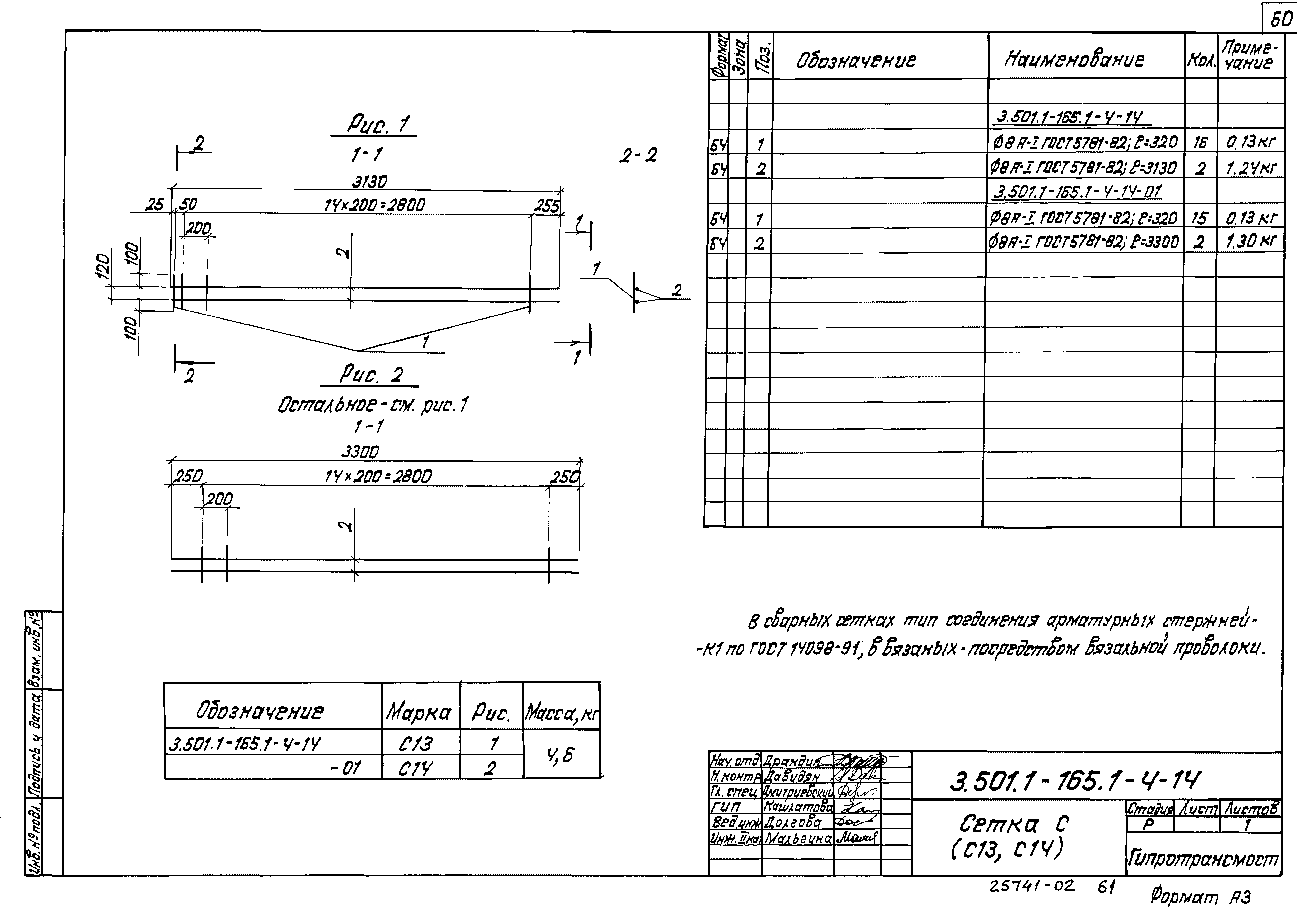
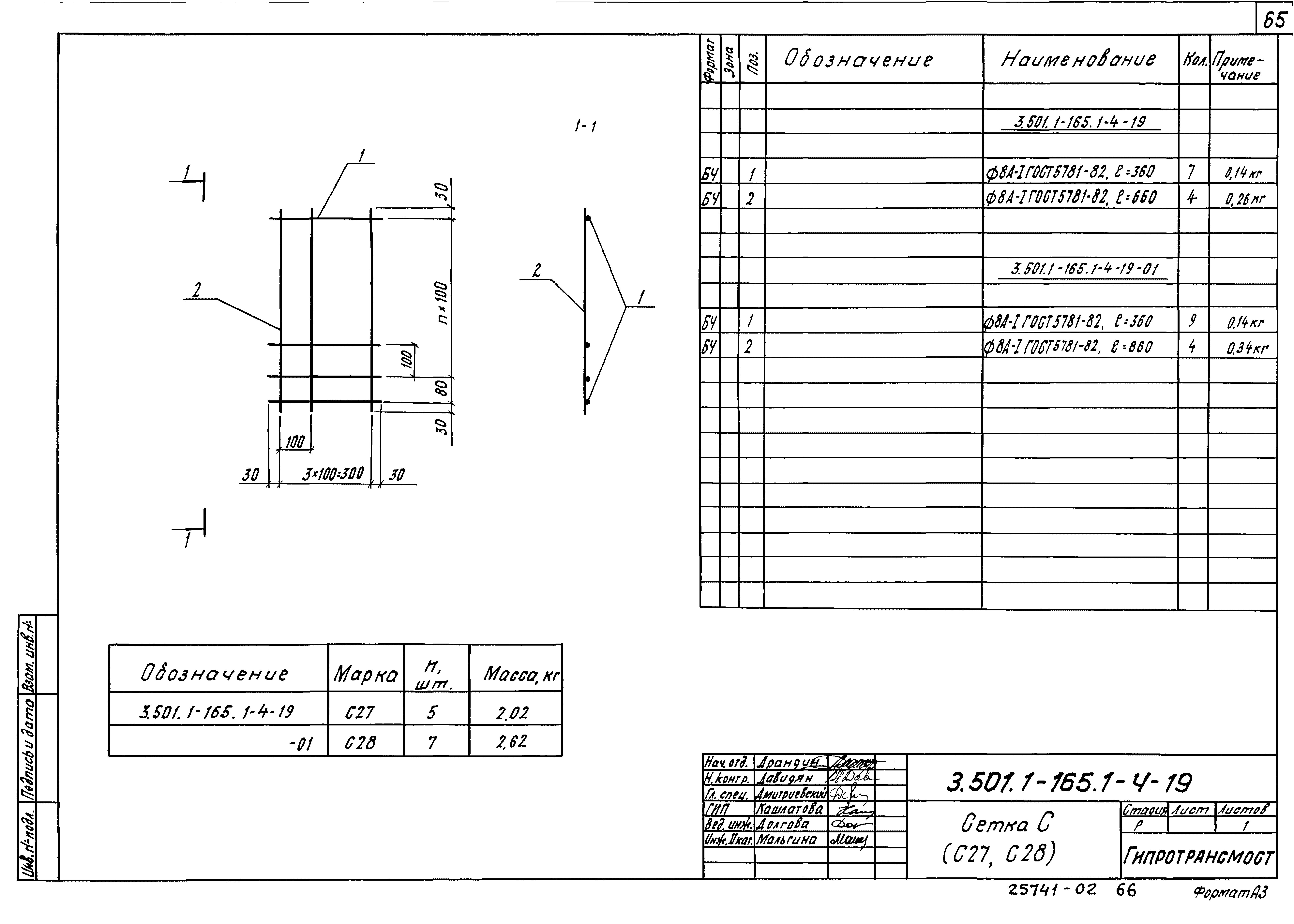
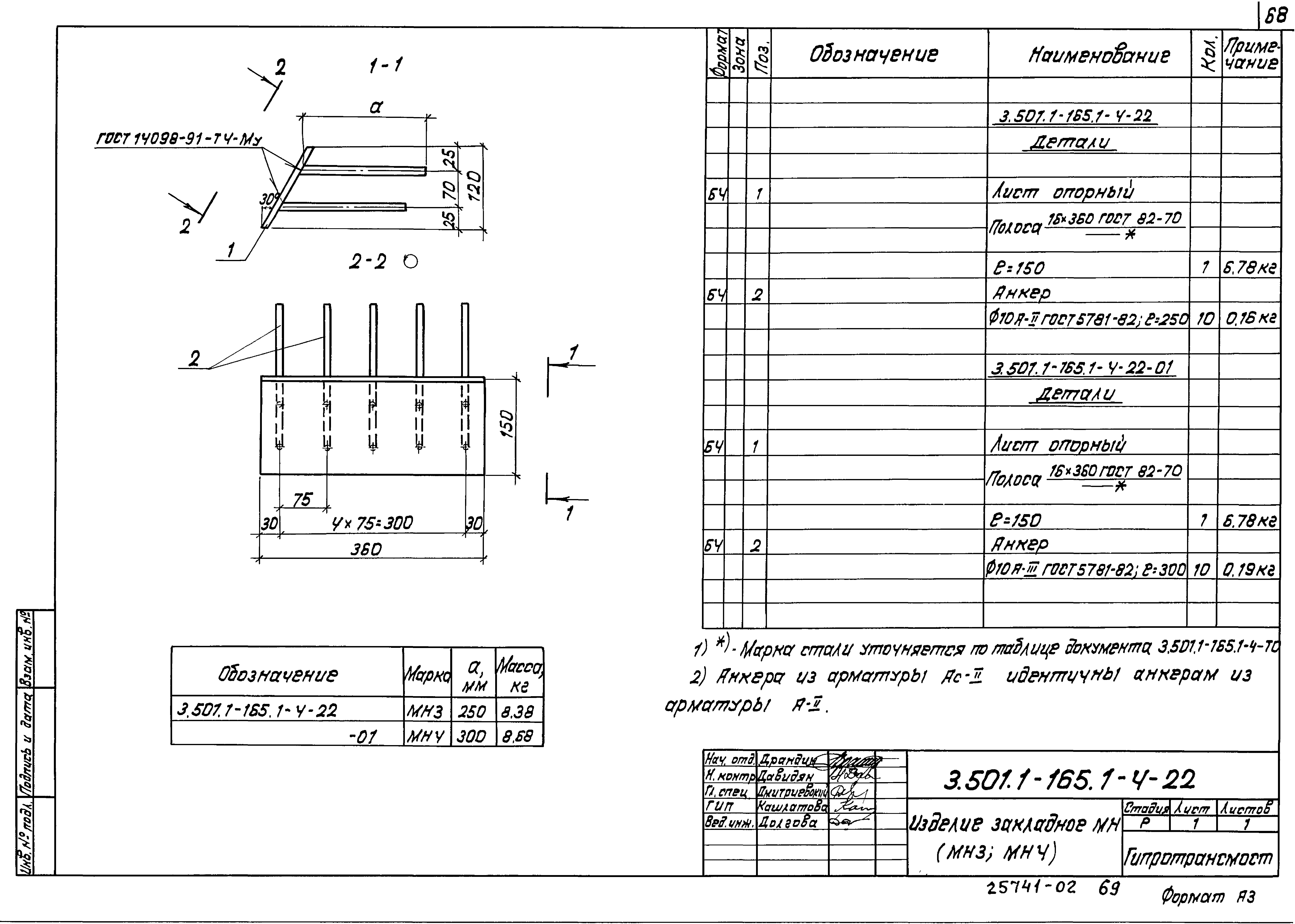
| Оглавление: | 3.501.1-165.1-4-ТО Техническое описание 3.501.1-165.1-4-01 Балка Б18-П-М (Б18-П.1-М … Б18-П.28-М) 3.501.1-165.1-4-02 Балка Б18-П-Д (Б18-П.1-Д … Б18-П.28-Д) 3.501.1-165.1-4-03 Балка Б21-П-М (Б21-П.1-М … Б21-П.28-М) 3.501.1-165.1-4-04 Балка Б21-П-Д (Б21-П.1-Д … Б21-П.28-Д) 3.501.1-165.1-4-05 Балка Б24-П-М (Б24-П.1-М … Б24-П.28-М) 3.501.1-165.1-4-06 Балка Б24-П-Д (Б24-П.1-Д … Б24-П.28-Д) 3.501.1-165.1-4-07 Балка Б27-П-М (Б27-П.1-М … Б27-П.28-М) 3.501.1-165.1-4-08 Балка Б27-П-Д (Б27-П.1-Д … Б27-П.28-Д) 3.501.1-165.1-4-09 Каркас пространственный КП (КП1 … КП4) 3.501.1-165.1-4-10 Сетка С (С1 … С2н) 3.501.1-165.1-4-11 Сетка С (С3, С4) 3.501.1-165.1-4-12 Сетка С (С5 … С8) 3.501.1-165.1-4-13 Сетка С (С9 … С12) 3.501.1-165.1-4-14 Сетка С (С13, С14) 3.501.1-165.1-4-15 Сетка С (С15 … С16н) 3.501.1-165.1-4-16 Сетка С (С17, С18) 3.501.1-165.1-4-17 Сетка С (С19 … С22) 3.501.1-165.1-4-18 Сетка С (С23 … С26) 3.501.1-165.1-4-19 Сетка С (С27, С28) 3.501.1-165.1-4-20 Анкер 3.501.1-165.1-4-21 Изделие закладное МН (МН1, МН2) 3.501.1-165.1-4-22 Изделие закладное МН (МН3, МН4) 3.501.1-165.1-4-23 Изделие закладное МН (МН5, МН6) 3.501.1-165.1-4-РС Ведомость расхода стали на элемент |
| Разработан: | Гипротрансмост |
| Утверждён: | 16.05.1988 Министерство путей сообщения СССР (USSR Ministry of Railroads ЦУЭП-15/44/132) |
| Заменяет собой: |









































































