Скачать Серия 1.232-3 Выпуск 13. Изделия соединительные стальные. Рабочие чертежиДата актуализации: 01.01.2021
|
| Обозначение: | Серия 1.232-3 |
| Обозначение англ: | Series 1.232-3 |
| Статус: | не действует |
| Название рус.: | Выпуск 13. Изделия соединительные стальные. Рабочие чертежи |
| Дата добавления в базу: | 01.09.2013 |
| Дата актуализации: | 01.01.2021 |
| Дата введения: | 01.06.1985 |
| Дата окончания срока действия: | 01.05.1999 |
| Область применения: | Настоящий выпуск содержит рабочие чертежи стальных соединительных элементов, предназначенных для выполнения сопряжений стеновых панелей с элементами несущего каркаса |
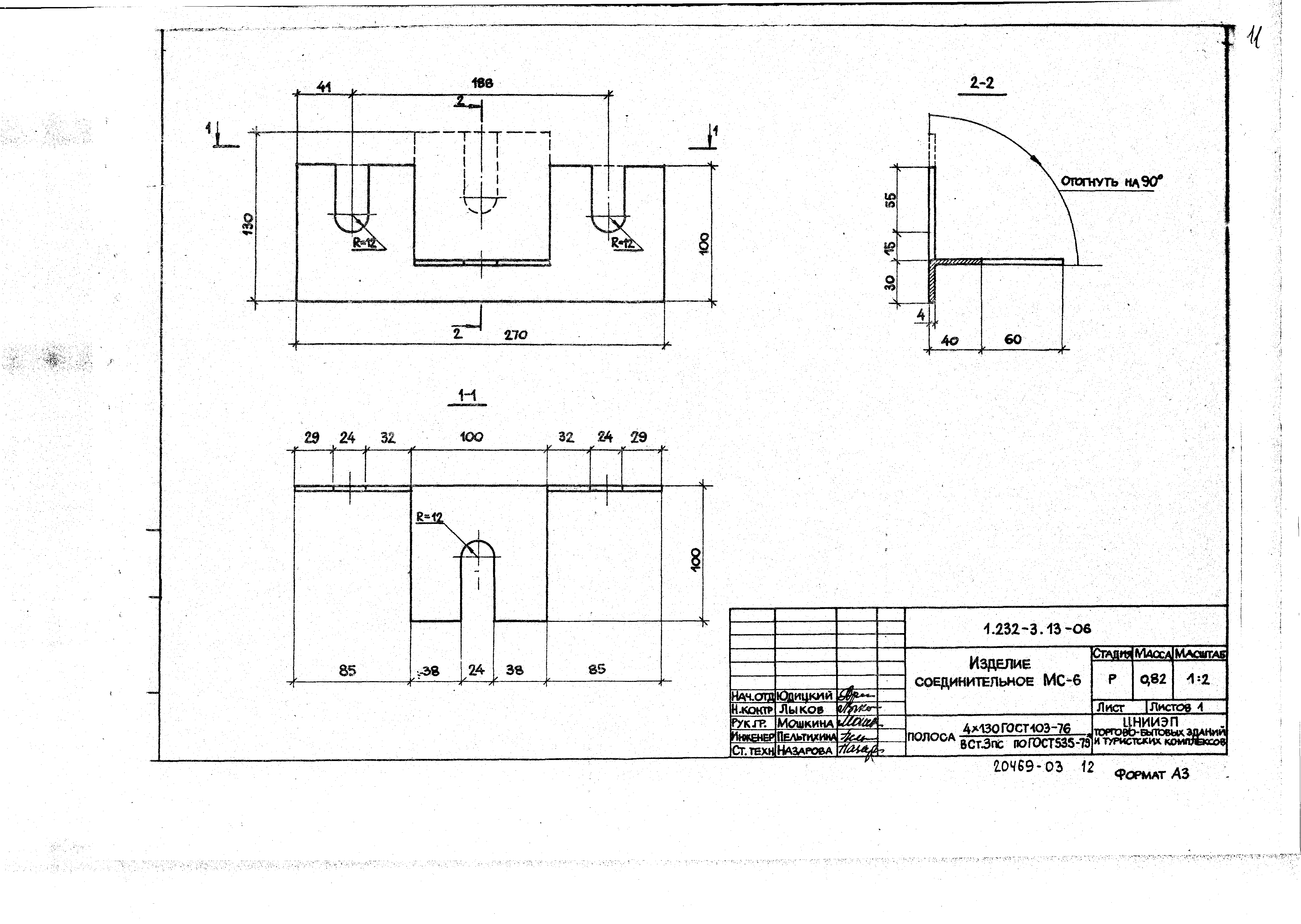
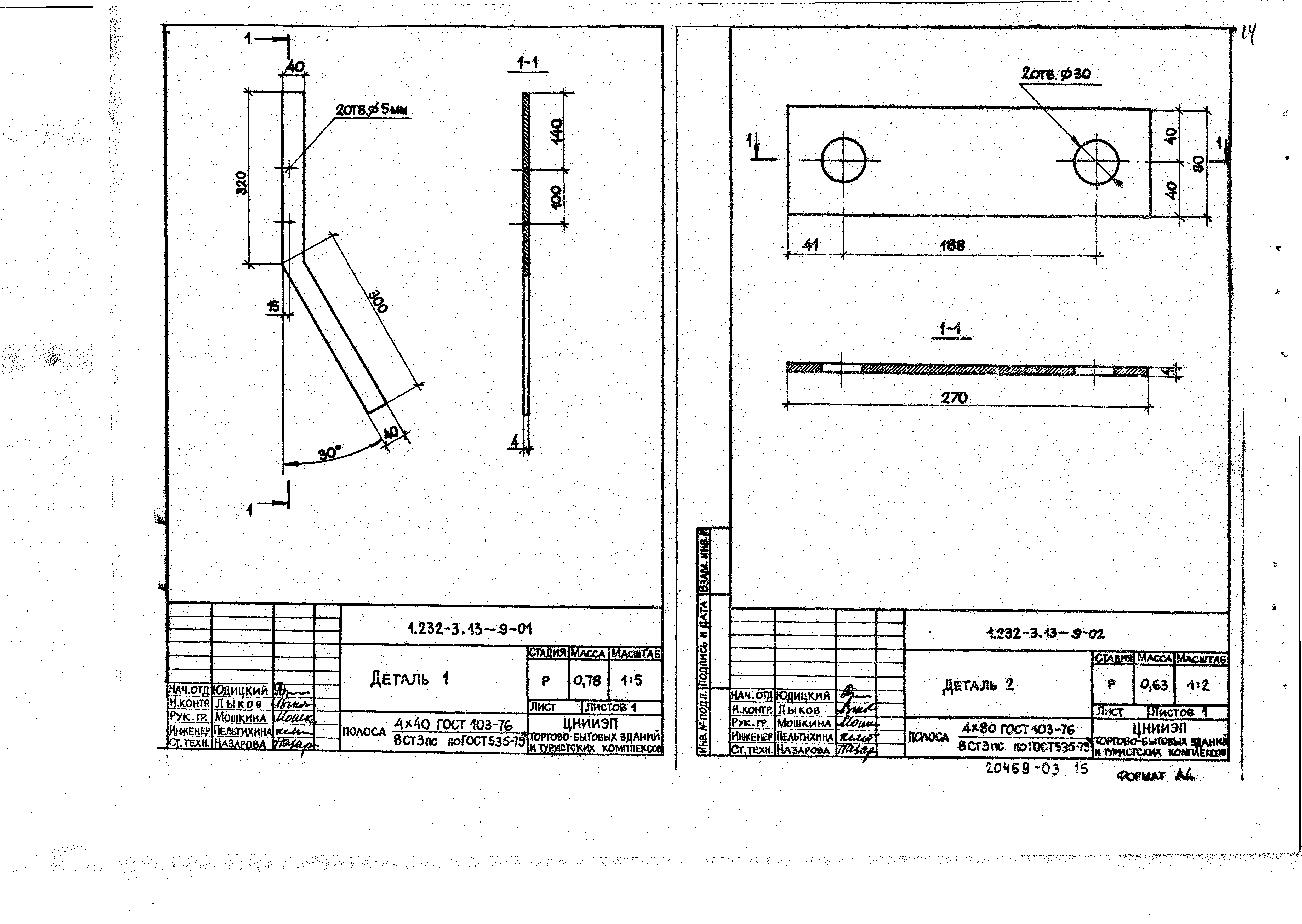
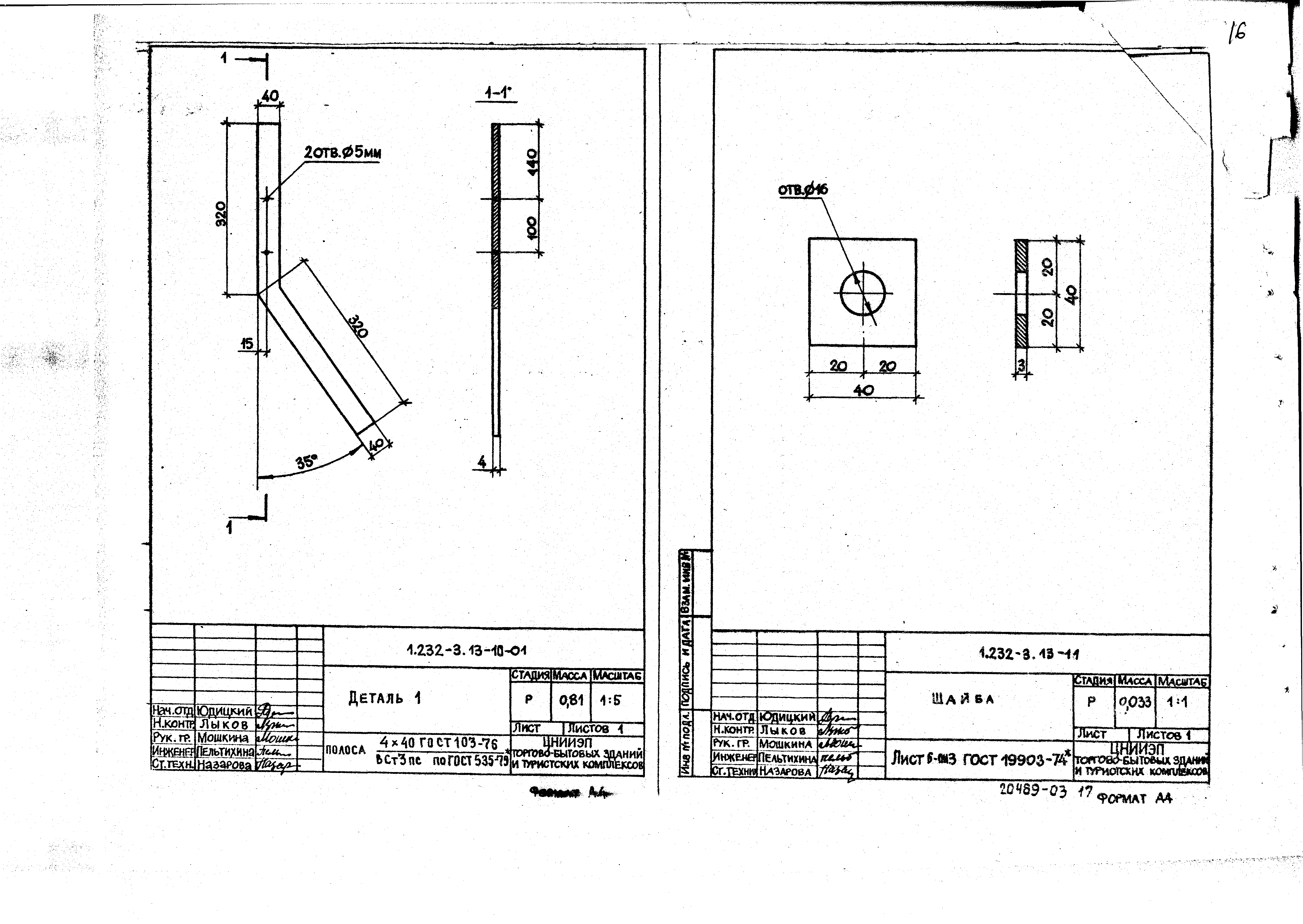
| Оглавление: | 1.232-3.13-00 ПЗ Пояснительная записка 1.232-3.13-01 Изделие соединительное МС-1 1.232-3.13-01 СБ Изделие соединительное МС-1. Сборочный чертеж 1.232-3.13-02 Изделие соединительное МС-2 1.232-3.13-02 СБ Изделие соединительное МС-2. Сборочный чертеж 1.232-3.13-03 Изделие соединительное МС-3 1.232-3.13-03 СБ Изделие соединительное МС-3. Сборочный чертеж 1.232-3.13-04 Изделие соединительное МС-4 1.232-3.13-04 СБ Изделие соединительное МС-4. Сборочный чертеж 1.232-3.13-05 Изделие соединительное МС-5 1.232-3.13-05 СБ Изделие соединительное МС-5. Сборочный чертеж 1.232-3.13-06 Изделие соединительное МС-6 1.232-3.13-07 Изделие соединительное МС-7 1.232-3.13-08 Изделие соединительное МС-8 1.232-3.13-09 Изделие соединительное МС-9 1.232-3.13-09 СБ Изделие соединительное МС-9. Сборочный чертеж 1.232-3.13-10 Изделие соединительное МС-10 1.232-3.13-10 СБ Изделие соединительное МС-10. Сборочный чертеж 1.232-3.13-11 Шайба 1.232-3.13-12 Нащельник 1.232-3.13-13 СБ Нащельник. Сборочный чертеж |
| Разработан: | ЦНИИЭП торгово-бытовых зданий и туристских комплексов |
| Утверждён: | 09.04.1985 Государственный комитет по гражданскому строительству и архитектуре при Госстрое СССР (100) |
| Нормативные ссылки: |
|
















