Скачать Серия 3.501.1-179.94 Выпуск 0-2. Трубы для особо суровых климатических условий. Материалы для проектированияДата актуализации: 01.01.2021
|
| Обозначение: | Серия 3.501.1-179.94 |
| Обозначение англ: | Series 3.501.1-179.94 |
| Статус: | не определен законодательством |
| Название рус.: | Выпуск 0-2. Трубы для особо суровых климатических условий. Материалы для проектирования |
| Дата добавления в базу: | 01.09.2013 |
| Дата актуализации: | 01.01.2021 |
| Дата введения: | 01.07.1995 |
| Дата окончания срока действия: | 30.06.2003 |
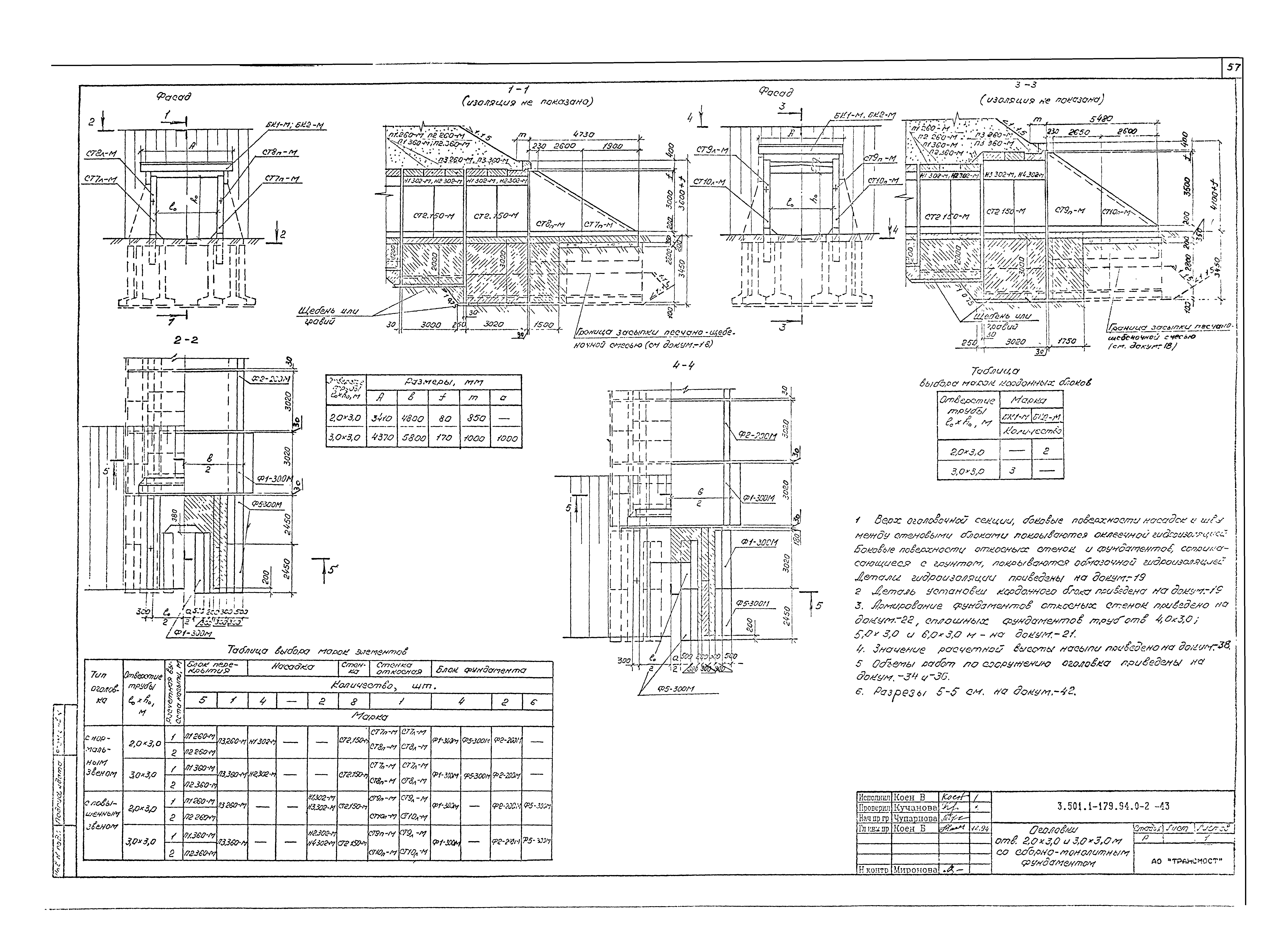
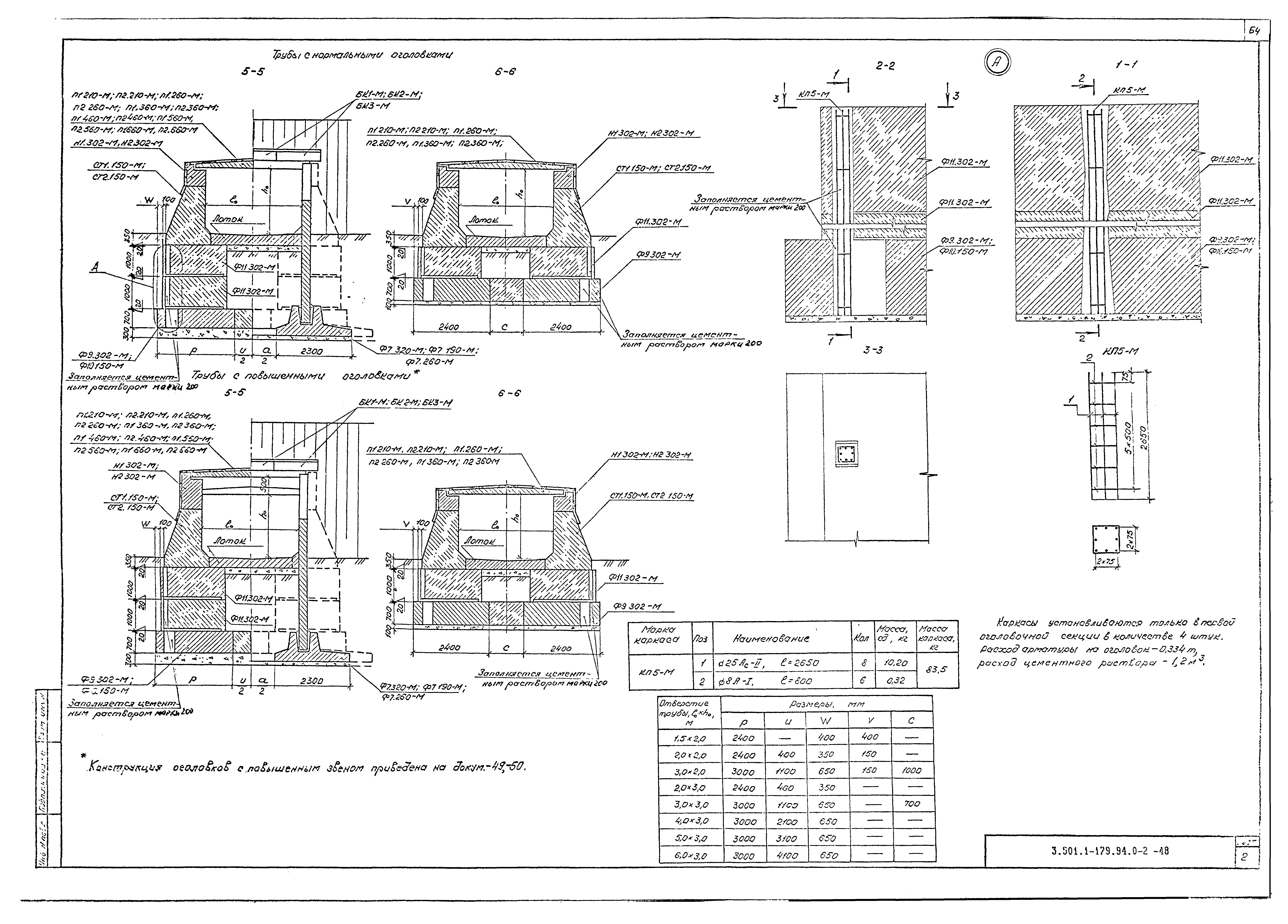
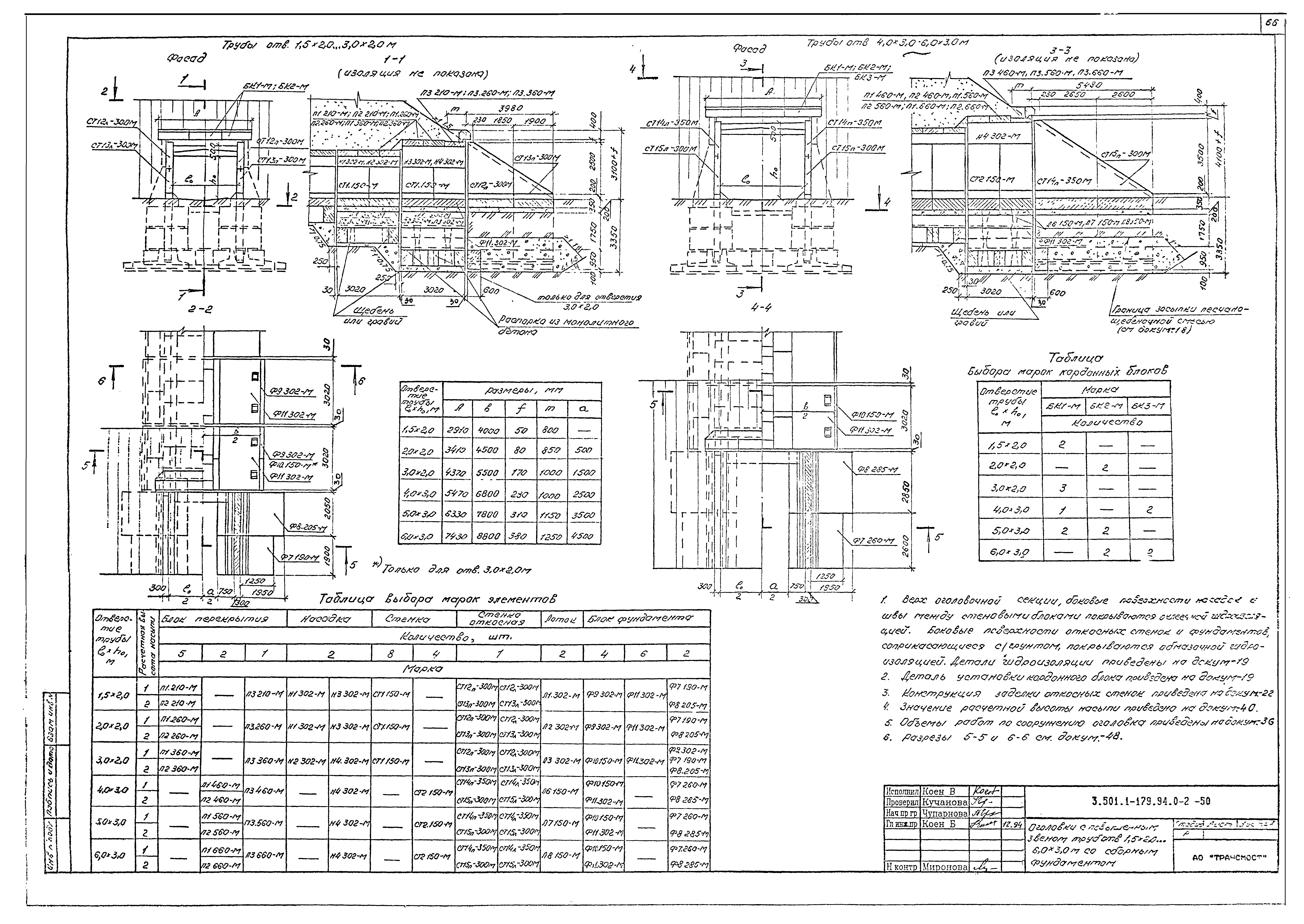
| Оглавление: | 3.501.1-179.94.0-2-ПЗ Пояснительная записка 3.501.1-179.94.0-2-01 Блоки перекрытий труб под железную дорогу. Нагрузки и усилия 3.501.1-179.94.0-2-02 Блоки перекрытий труб под железную дорогу на свайном фундаменте или скальном основании. Нагрузки и усилия 3.501.1-179.94.0-2-03 Блоки перекрытий труб под железную дорогу. Подбор сечений 3.501.1-179.94.0-2-04 Блоки перекрытий труб под автомобильную дорогу. Нагрузки и усилия 3.501.1-179.94.0-2-05 Блоки перекрытий труб под автомобильную дорогу на свайном фундаменте или скальном основании. Нагрузки и усилия 3.501.1-179.94.0-2-06 Блоки перекрытий труб под автомобильную дорогу. Подбор сечений 3.501.1-179.94.0-2-07 Стенки труб высотой отверстия 2,0 и 3,0 м. Нагрузки и усилия 3.501.1-179.94.0-2-08 Стенки труб высотой отверстия 3,0 м. Нагрузки и усилия 3.501.1-179.94.0-2-09 Фундаменты сборные труб отв. 1,5х2,0 … 3,0х2,0 м и 2,0х3,0 м. Нагрузки и усилия 3.501.1-179.94.0-2-10 Фундаменты сборные труб отв. 3,0х3,0 …6,0х3,0 м. Нагрузки и усилия 3.501.1-179.94.0-2-11 Фундаменты сборно-монолитные труб отв. 4,0х3,0 …6,0х3,0 м. Нагрузки и усилия 3.501.1-179.94.0-2-12 Расчетное давление на грунт под подошвой фундамента труб под железную дорогу 3.501.1-179.94.0-2-13 Расчетное давление на грунт под подошвой фундамента труб под автомобильную дорогу 3.501.1-179.94.0-2-14 Расчет оголовков со сборными фундаментами на выпучивание 3.501.1-179.94.0-2-15 Расчет оголовков со сборно-монолитными фундаментами на выпучивание 3.501.1-179.94.0-2-16 Рекомендации по расчету устойчивости откосов земляного полотна 3.501.1-179.94.0-2-17 Гидравлические расчеты 3.501.1-179.94.0-2-18 Схемы засыпки трубы 3.501.1-179.94.0-2-19 Конструкция гидроизоляции 3.501.1-179.94.0-2-20НИ Номенклатура изделий 3.501.1-179.94.0-2-21 Армирование фундаментов средней части труб 3.501.1-179.94.0-2-22 Армирование фундаментов оголовков 3.501.1-179.94.0-2-23 Укрепление монолитным бетоном. Конструкция укреплений 3.501.1-179.94.0-2-24 Укрепление монолитным бетоном. Ведомость объемов работ 3.501.1-179.94.0-2-25 Укрепление сборными блоками П-1. Конструкция укреплений 3.501.1-179.94.0-2-26 Укрепление сборными блоками П-1. Ведомость объемов работ 3.501.1-179.94.0-2-27 Укрепление сборными блоками ГП. Конструкция укреплений 3.501.1-179.94.0-2-28 Укрепление сборными блоками ГП . Ведомость объемов работ 3.501.1-179.94.0-2-29Конструкция конца укрепления русла 3.501.1-179.94.0-2-30 Укрепление камнем. Конструкция укреплений и ведомость объемов работ 3.501.1-179.94.0-2-31 Укрепление у труб с повышенным входным звеном. Конструкция укреплений 3.501.1-179.94.0-2-32 Укрепление у труб с повышенным входным звеном. Ведомость объемов работ 3.501.1-179.94.0-2-33 Ведомость объемов работ на 1 п. м средней части труб 3.501.1-179.94.0-2-34 Ведомость объемов работ на оголовок с нормальным звеном одноочковых труб 3.501.1-179.94.0-2-35 Ведомость объемов работ на оголовок с нормальным звеном двухочковых труб 3.501.1-179.94.0-2-36 Ведомость объемов работ на оголовок с повышенным звеном одноочковых труб 3.501.1-179.94.0-2-37 Ведомость объемов работ на оголовок с повышенным звеном двухочковых труб 3.501.1-179.94.0-2-38 Трубы со сборно-монолитным фундаментом. Средняя часть одноочковых труб 3.501.1-179.94.0-2-39 Трубы со сборно-монолитным фундаментом. Средняя часть двухочковых труб 3.501.1-179.94.0-2-40 Трубы со сборным фундаментом. Средняя часть одноочковых труб 3.501.1-179.94.0-2-41 Трубы со сборным фундаментом. Средняя часть двухочковых труб 3.501.1-179.94.0-2-42 Оголовки с нормальным звеном труб отв. 1,5х2,0 … 6,0х3,0 м со сборно-монолитным фундаментом 3.501.1-179.94.0-2-43 Оголовки труб отв. 2,0х3,0 и 3,0х3,0 м со сборно-монолитным фундаментом 3.501.1-179.94.0-2-44 Оголовки с повышенным звеном труб отв. 1,5х2,0 … 6,0х3,0 м со сборно-монолитным фундаментом 3.501.1-179.94.0-2-45 Оголовки с нормальным звеном труб отв. 2х1,5х2,0 … 2х6,0х3,0 м со сборно-монолитным фундаментом 3.501.1-179.94.0-2-46 Оголовки труб отв. 2х2,0х3,0 и 2х3,0х3,0 м со сборно-монолитным фундаментом 3.501.1-179.94.0-2-47 Оголовки с повышенным звеном труб отв. 2х1,5х2,0 … 2х6,0х3,0 м со сборно-монолитным фундаментом 3.501.1-179.94.0-2-48 Оголовки с нормальным звеном труб отв. 1,5х2,0 … 6,0х3,0 со сборным фундаментом 3.501.1-179.94.0-2-49 Оголовки труб отв. 2,0х3,0 и 3,0х3,0 м со сборным фундаментом 3.501.1-179.94.0-2-50 Оголовки с повышенным звеном труб отв. 1,5х2,0 … 6,0х3,0 м со сборным фундаментом 3.501.1-179.94.0-2-51 Пример конструкции оголовка трубы отв. 2,0х2,0 м со сборно-монолитным фундаментом при глубине промерзания 2,5 м 3.501.1-179.94.0-2-52 Пример конструкции оголовка трубы отв. 3,0х3,0 м со сборным фундаментом при глубине промерзания 4 м 3.501.1-179.94.0-2-53 Примеры конструкции труб. Труба отв. 2,0х2,0 м со сборно-монолитным фундаментом 3.501.1-179.94.0-2-54 Примеры конструкции труб. Труба отв. 2,0х2,0 м со сборным фундаментом |
| Разработан: | ОАО Трансмост |
| Утверждён: | 01.09.1988 Минтрансстрой (Mintransstroy АБ-559) |
| Заменяет собой: |
|







































































