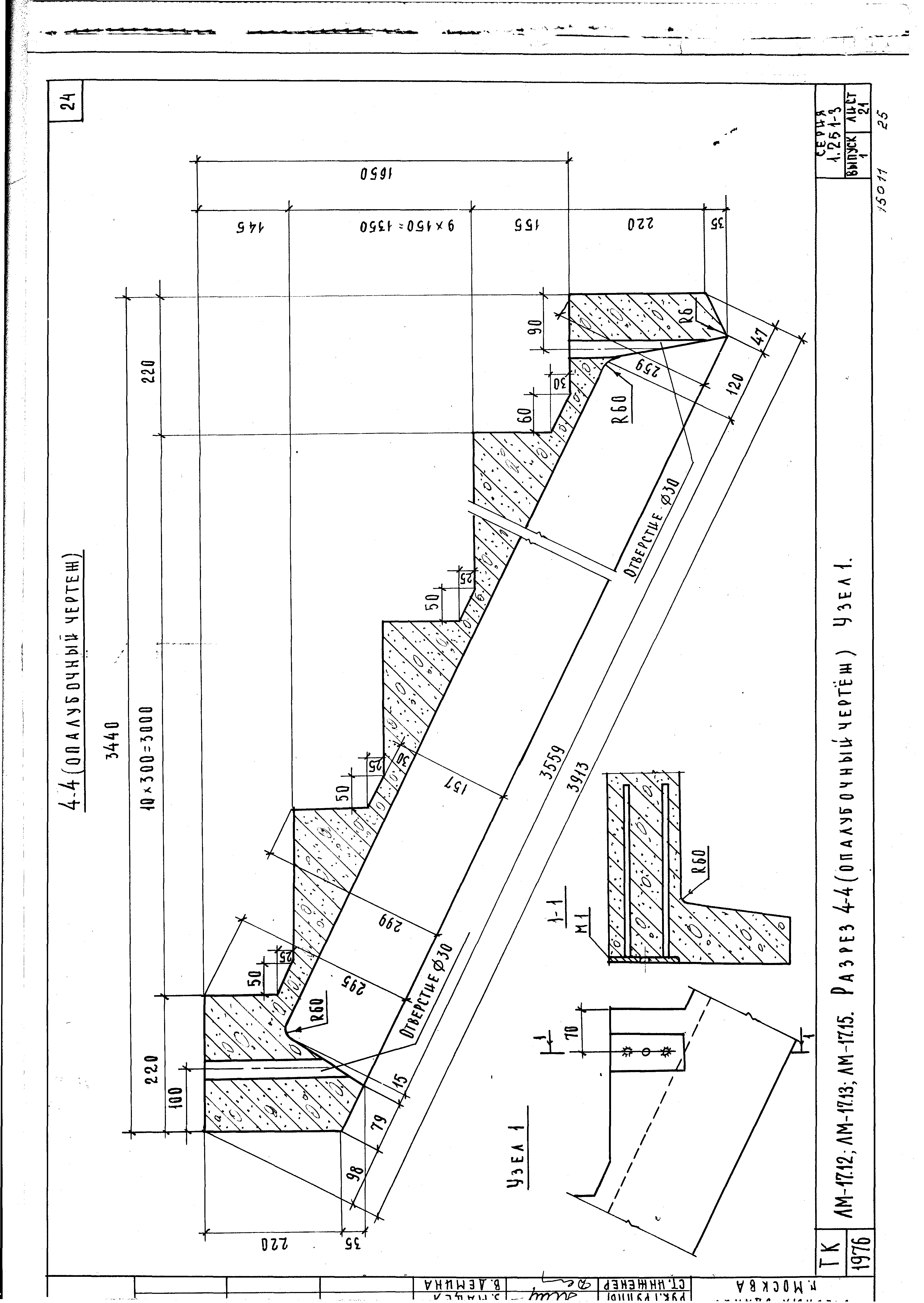
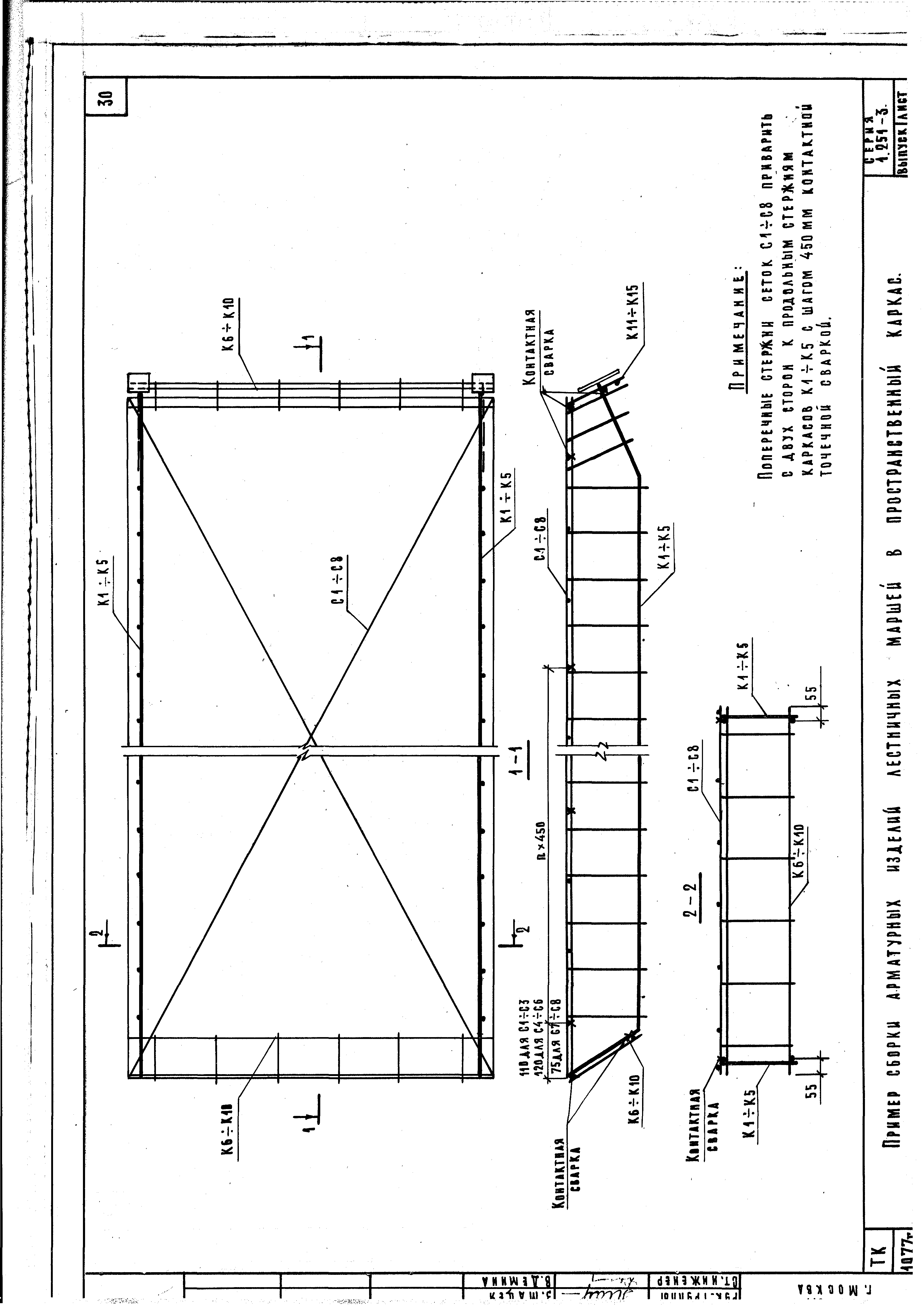
Скачать Серия 1.251-3 Выпуск 1. Лестничные марши для высот этажей 3,3; 3,6 и 4,2 м шириной 120,135 и 150 см ребристой конструкции с фризовыми ступенями. Накладные проступи. Опалубочные чертежиДата актуализации: 01.01.2021 Серия 1.251-3
Выпуск 1. Лестничные марши для высот этажей 3,3; 3,6 и 4,2 м шириной 120,135 и 150 см ребристой конструкции с фризовыми ступенями. Накладные проступи. Опалубочные чертежи| Обозначение: | Серия 1.251-3 | | Обозначение англ: | Series 1.251-3 | | Статус: | не действует | | Название рус.: | Выпуск 1. Лестничные марши для высот этажей 3,3; 3,6 и 4,2 м шириной 120,135 и 150 см ребристой конструкции с фризовыми ступенями. Накладные проступи. Опалубочные чертежи | | Дата добавления в базу: | 01.09.2013 | | Дата актуализации: | 01.01.2021 | | Дата введения: | 30.12.1977 | | Дата окончания срока действия: | 01.07.1984 | | Разработан: | ЦНИИЭП учебных зданий Госгражданстроя
| | Утверждён: | 05.12.1977 Госгражданстрой (Gosgrazhdanstroy 235)
| | Заменяет собой: | | | Чем заменён: | |
                              
|