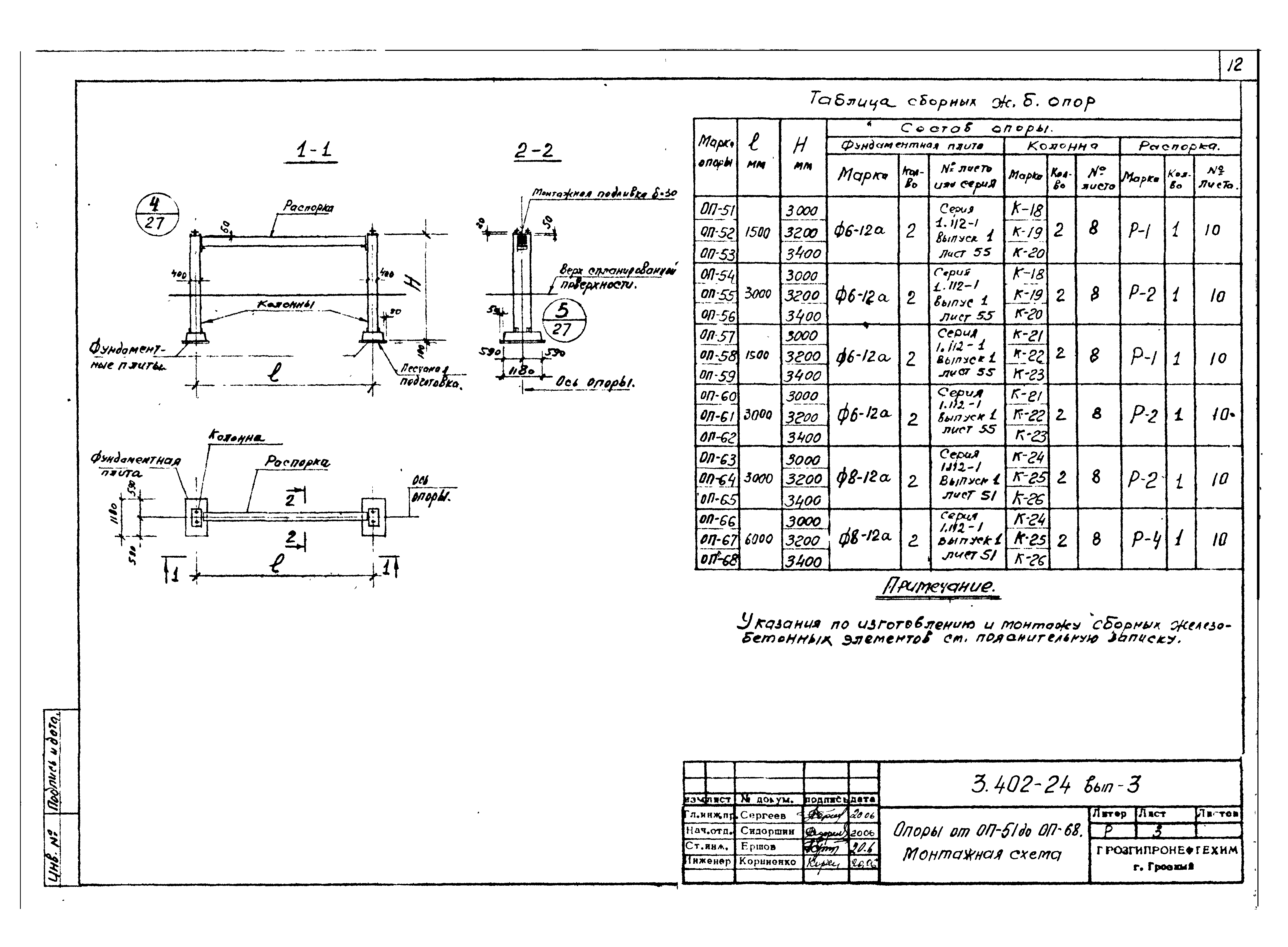
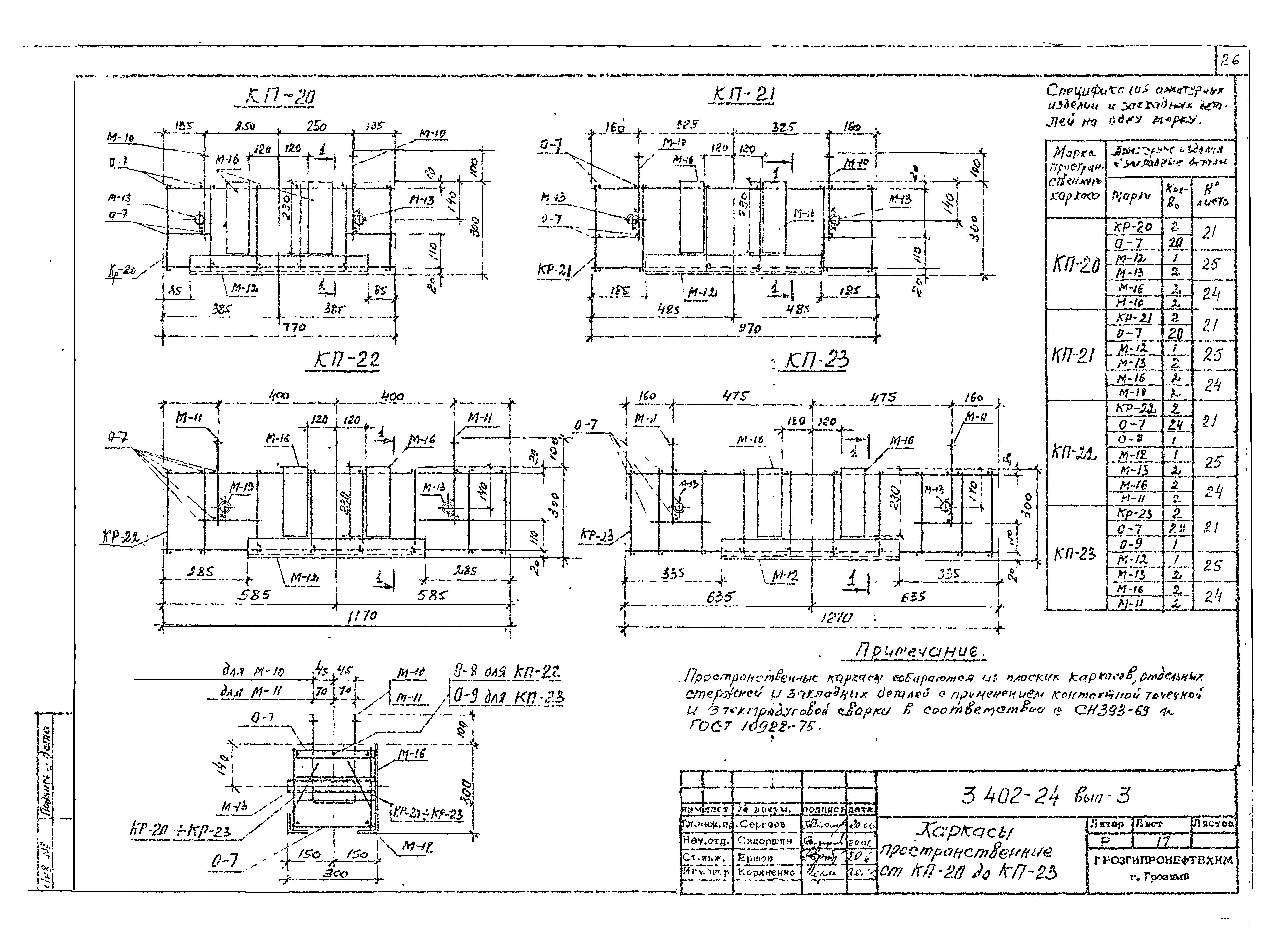
Скачать Серия 3.402-24 Выпуск 3. Опоры из сборных железобетонных элементов под горизонтальные теплообменники и холодильники кожухотрубчатые, устанавливаемые на земле. Рабочие чертежиДата актуализации: 01.01.2021 Серия 3.402-24
Выпуск 3. Опоры из сборных железобетонных элементов под горизонтальные теплообменники и холодильники кожухотрубчатые, устанавливаемые на земле. Рабочие чертежи| Обозначение: | Серия 3.402-24 | | Обозначение англ: | Series 3.402-24 | | Статус: | не определен законодательством | | Название рус.: | Выпуск 3. Опоры из сборных железобетонных элементов под горизонтальные теплообменники и холодильники кожухотрубчатые, устанавливаемые на земле. Рабочие чертежи | | Дата добавления в базу: | 01.09.2013 | | Дата актуализации: | 01.01.2021 | | Дата введения: | 01.05.1978 | | Дата окончания срока действия: | 30.06.2003 | | Разработан: | Грозгипронефтехим
| | Утверждён: | 22.02.1978 В/О Нефтехим (8)
|
                                   
|