Скачать Серия 3.018.2-1 Выпуск 2. Площадки лифта. Чертежи КМДата актуализации: 01.01.2021
|
| Обозначение: | Серия 3.018.2-1 |
| Обозначение англ: | Series 3.018.2-1 |
| Статус: | не определен законодательством |
| Название рус.: | Выпуск 2. Площадки лифта. Чертежи КМ |
| Дата добавления в базу: | 01.09.2013 |
| Дата актуализации: | 01.01.2021 |
| Дата введения: | 30.12.1985 |
| Дата окончания срока действия: | 30.06.2003 |
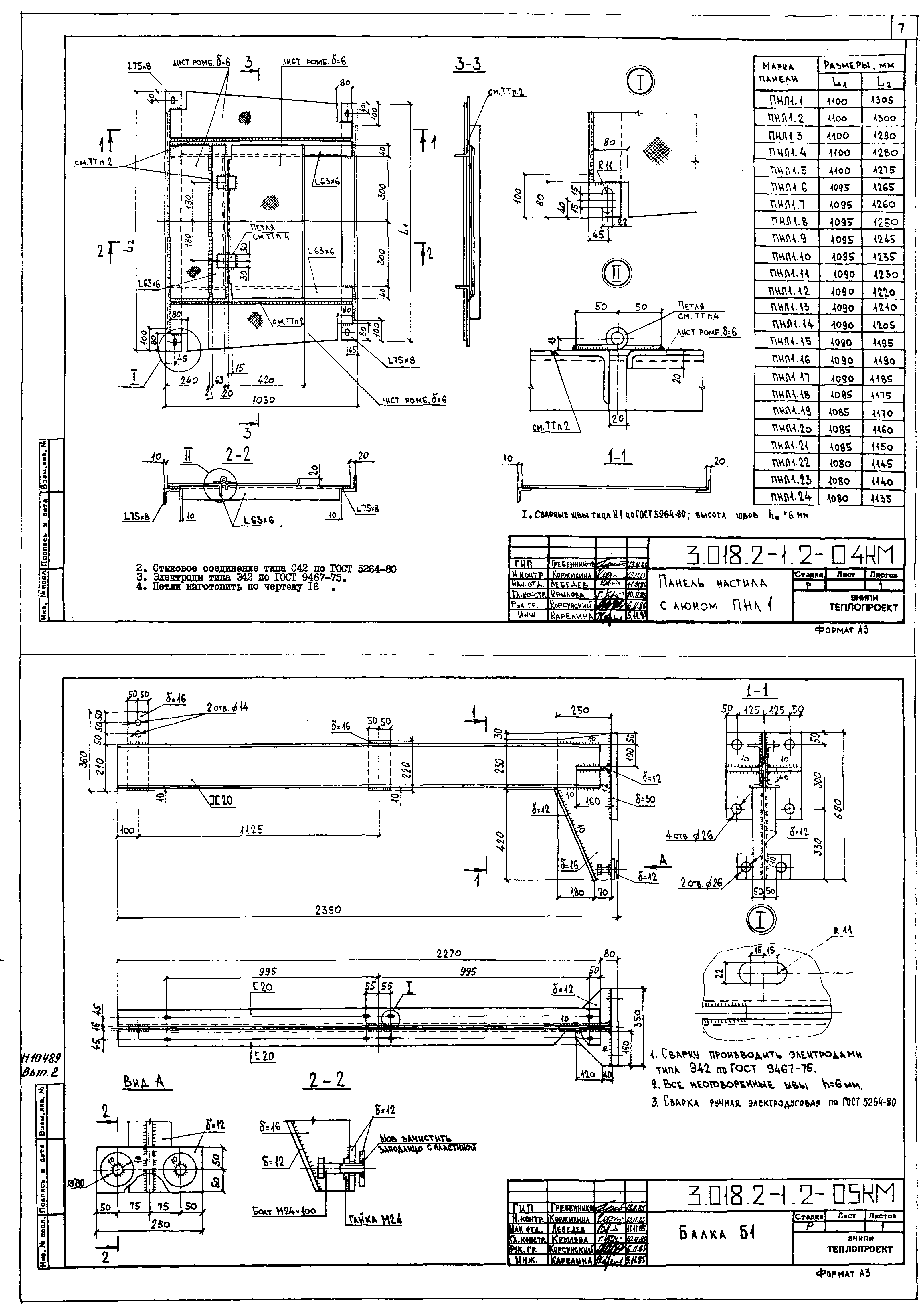
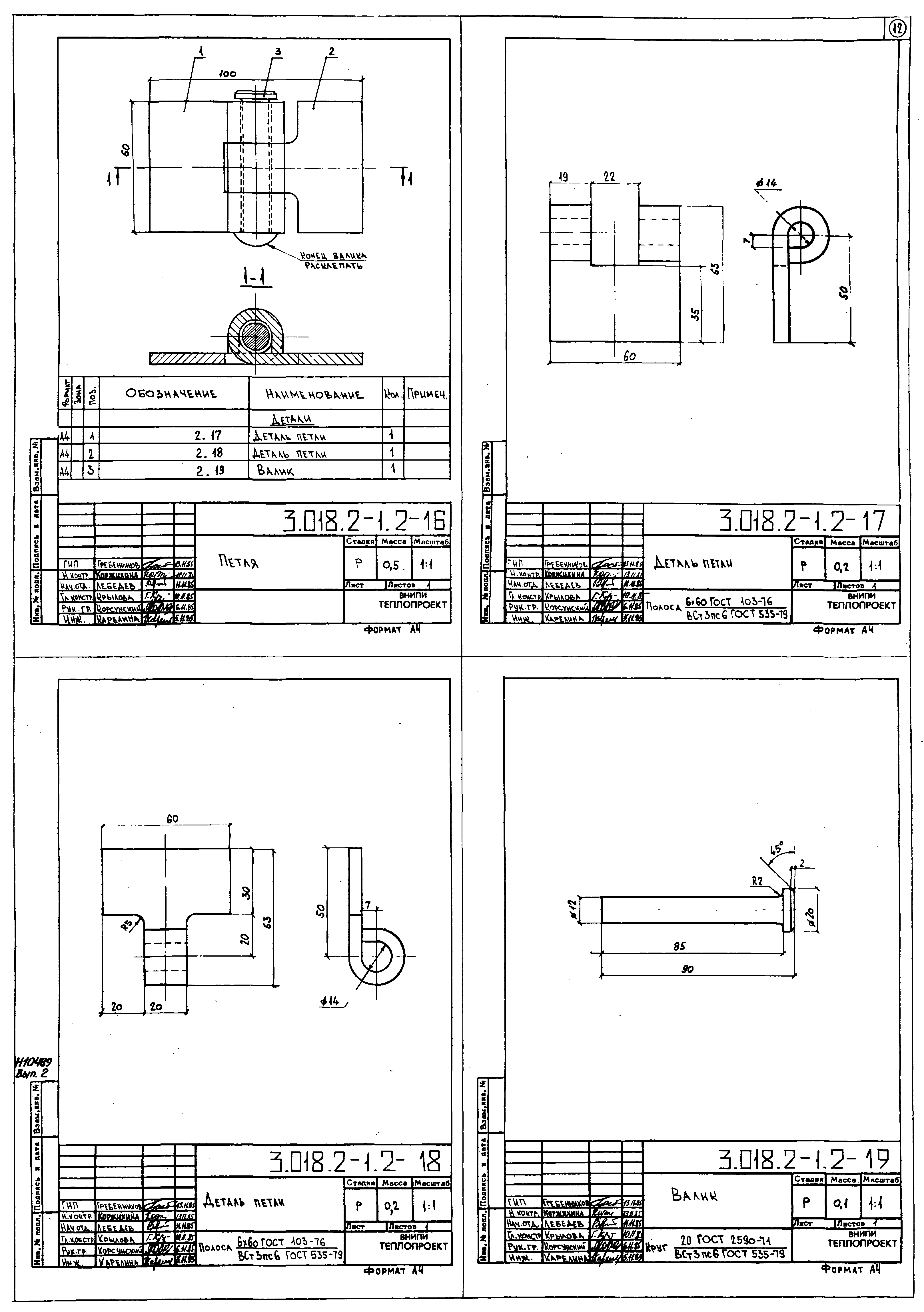
| Оглавление: | 3.018.2-1.2-00ПЗКМ Пояснительная записка 3.018.2-1.2-01КМ Схема расположения элементов площадки лифта 3.018.2-1.2-02КМ Панель настила ПН1 3.018.2-1.2-03КМ Панель настила ПН2 3.018.2-1.2-04КМ Панель настила с люком ПНЛ1 3.018.2-1.2-05КМ Балка Б1 3.018.2-1.2-06КМ Балка Б2 3.018.2-1.2-07КМ Балка Б3 3.018.2-1.2-08КМ Спецификация стали на площадку лифта 3.018.2-1.2-09 Стойка С1 3.018.2-1.2-10 Перила П1 3.018.2-1.2-11 Полоса ограждения ОГ1 3.018.2-1.2-12 Перила ПБ3 3.018.2-1.2-13 Перила ПБ4 3.018.2-1.2-14 Полоса ограждения ОБ1 3.018.2-1.2-15 Полоса ограждения ОБ2 3.018.2-1.2-16 Петля 3.018.2-1.2-17 Деталь петли 3.018.2-1.2-18 Деталь петли 3.018.2-1.2-19 Валик |
| Разработан: | ВНИПИтеплопроект Минмонтажспецстроя СССР |
| Утверждён: | 30.12.1985 Минмонтажспецстрой СССР (USSR Minmontazhspetsstroy ) |
| Издан: | ВНИПИТеплопроект (1986 г. ) |












