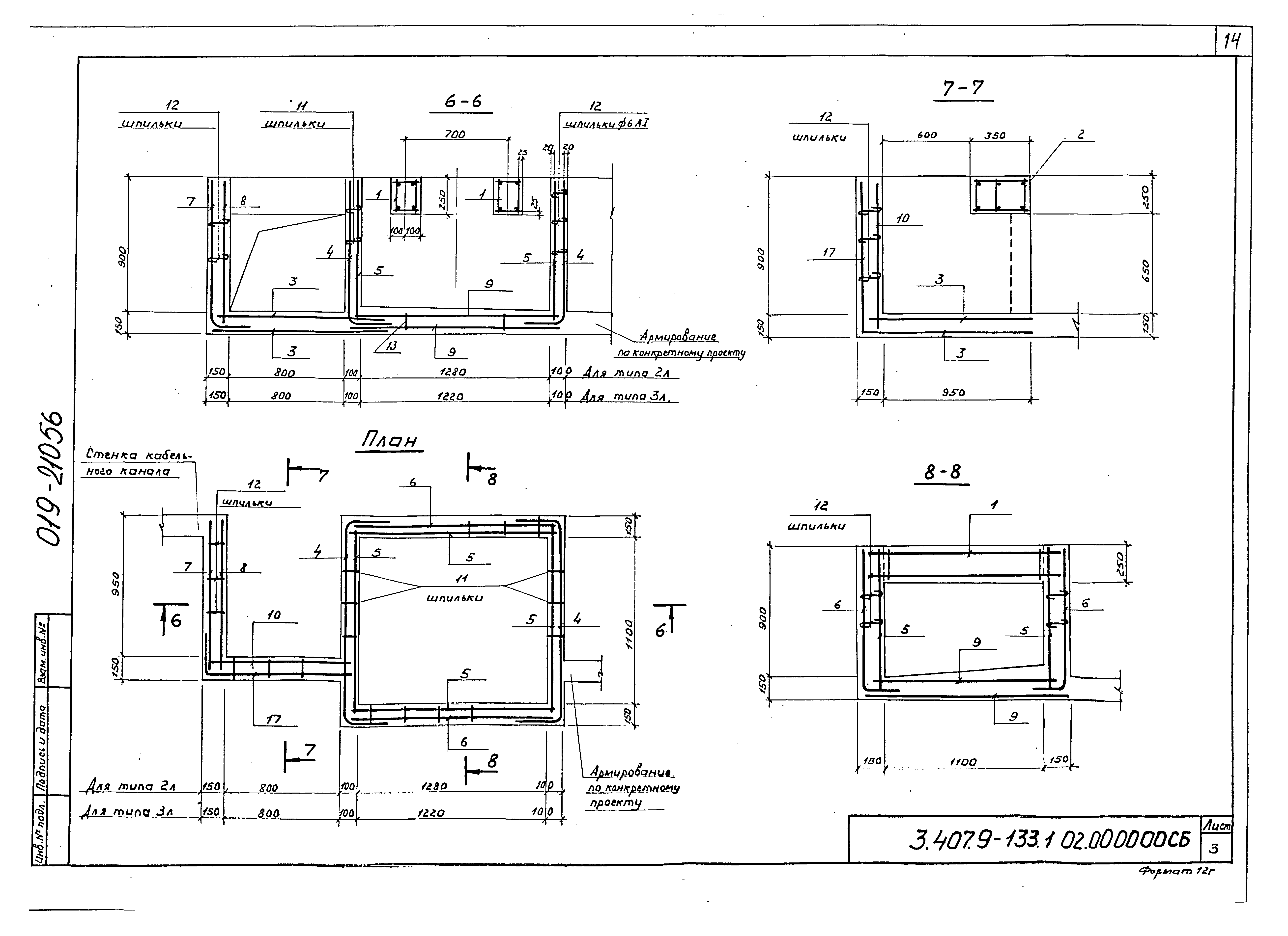
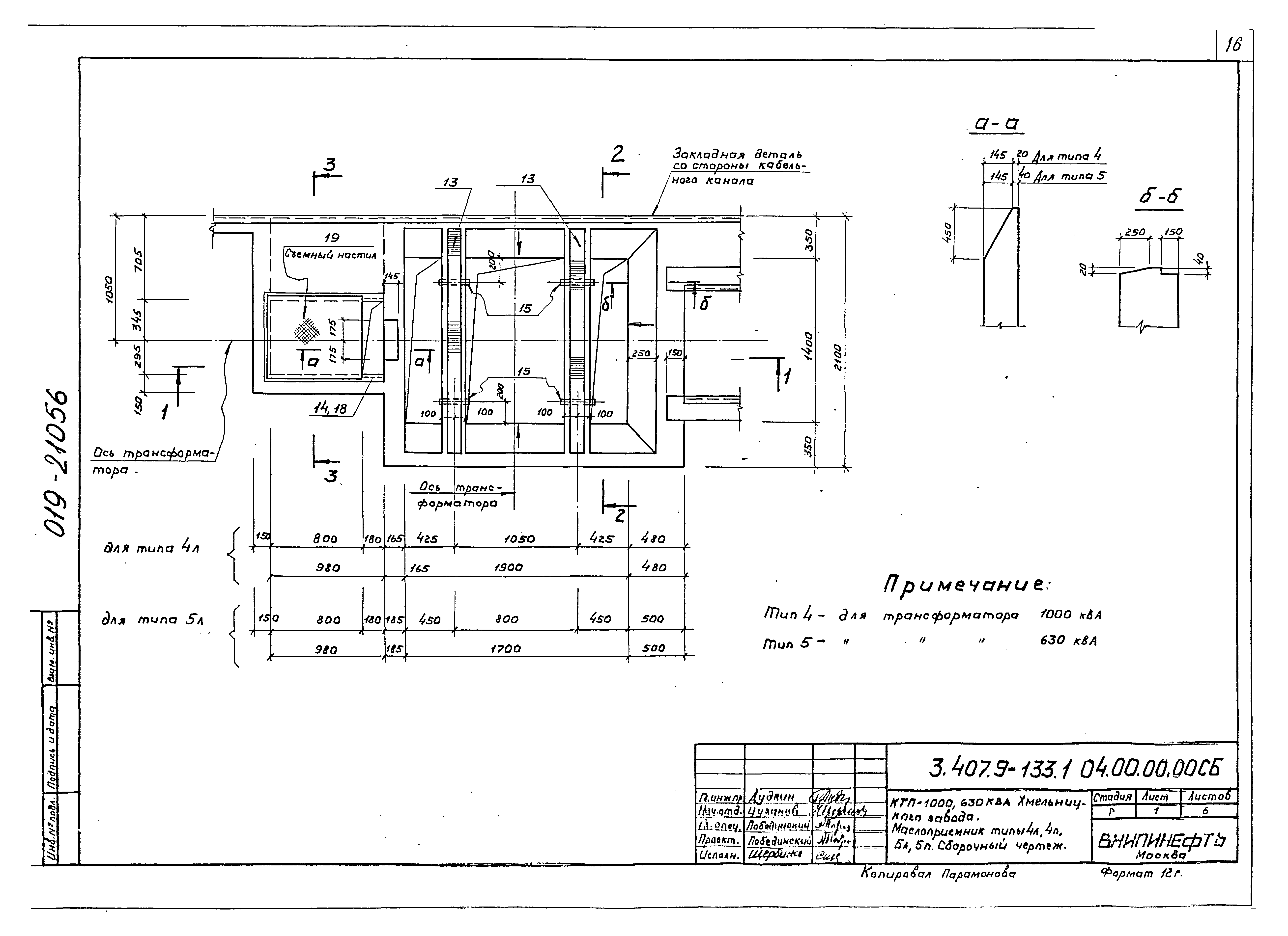
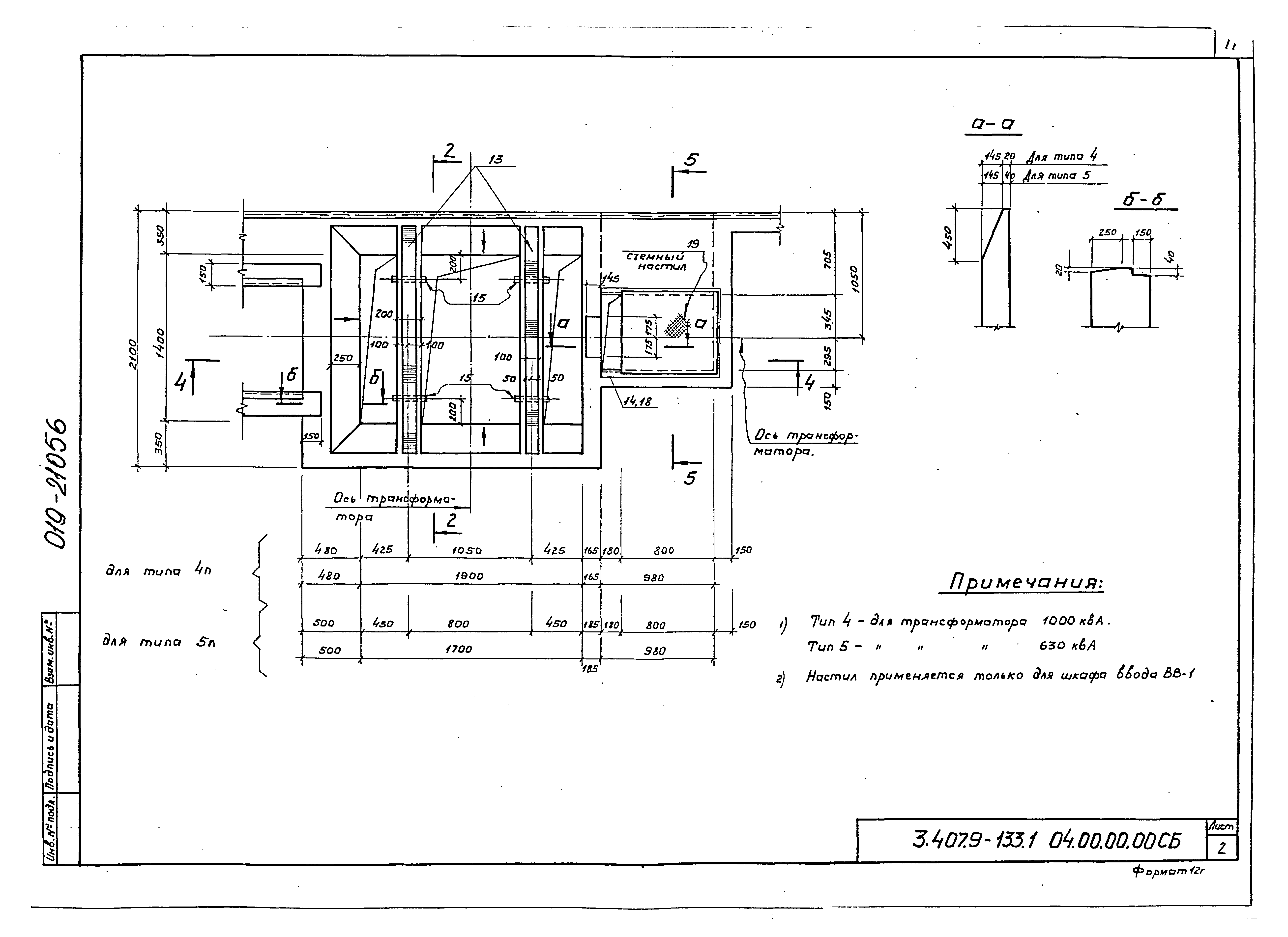
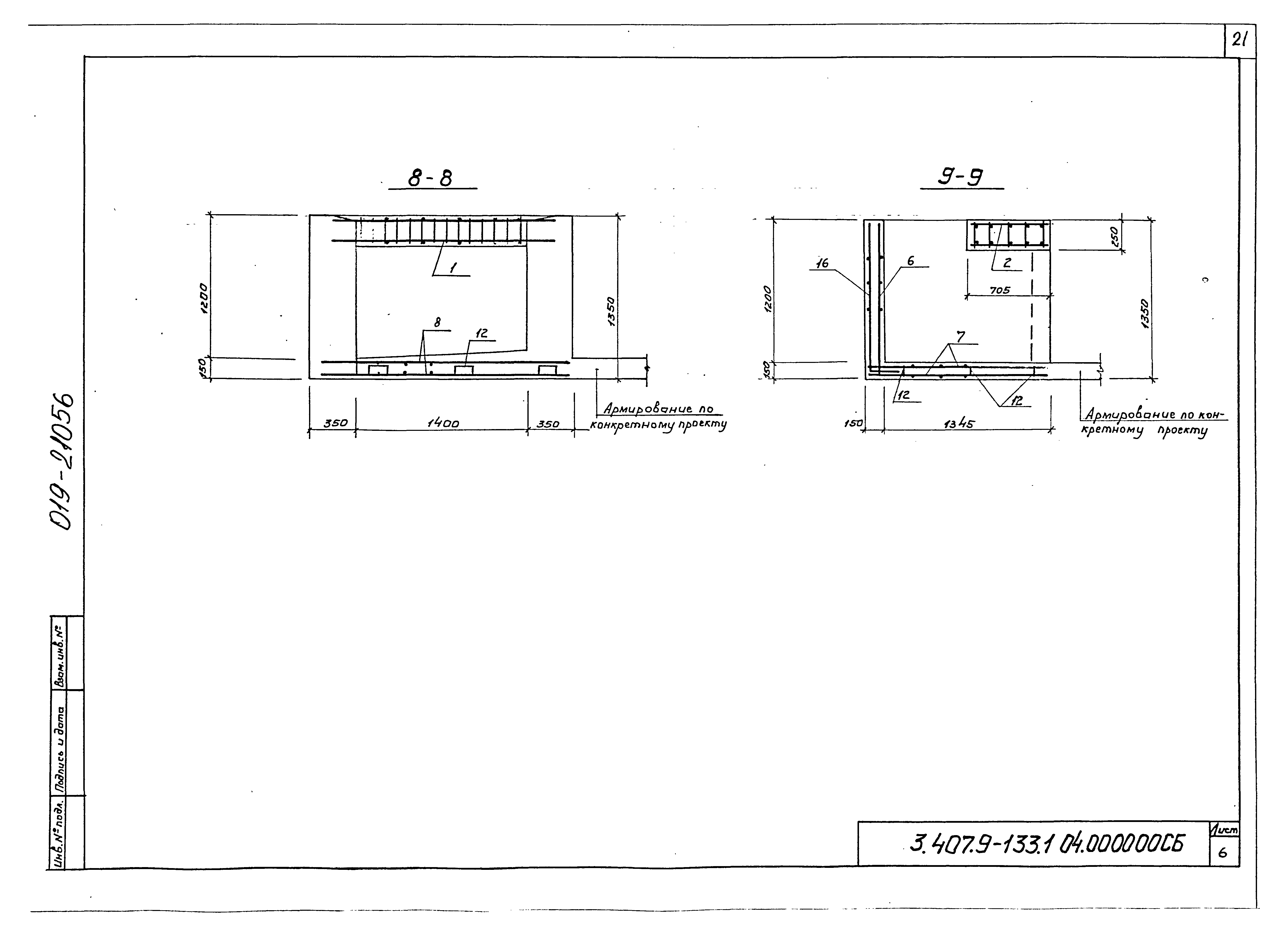
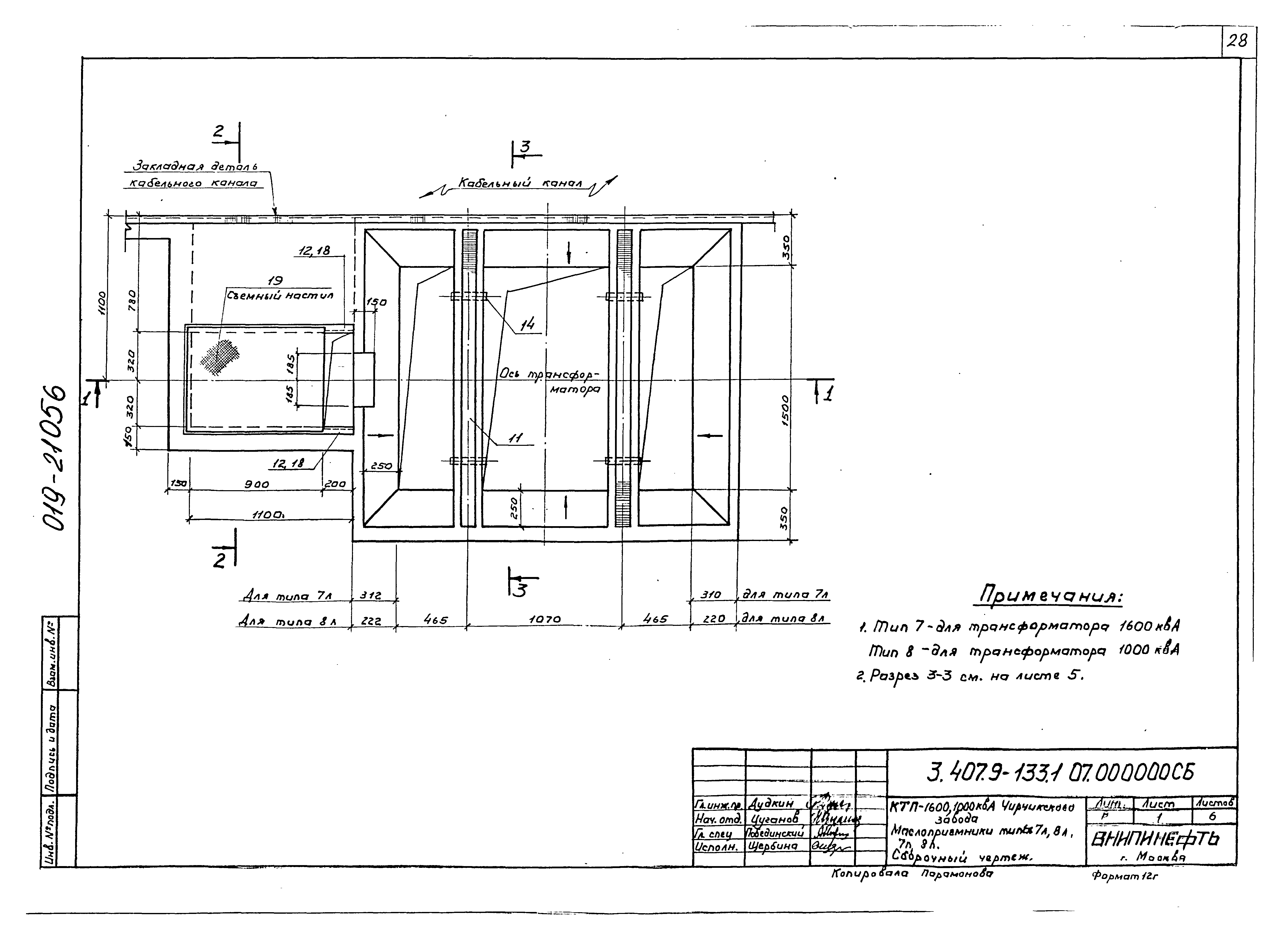
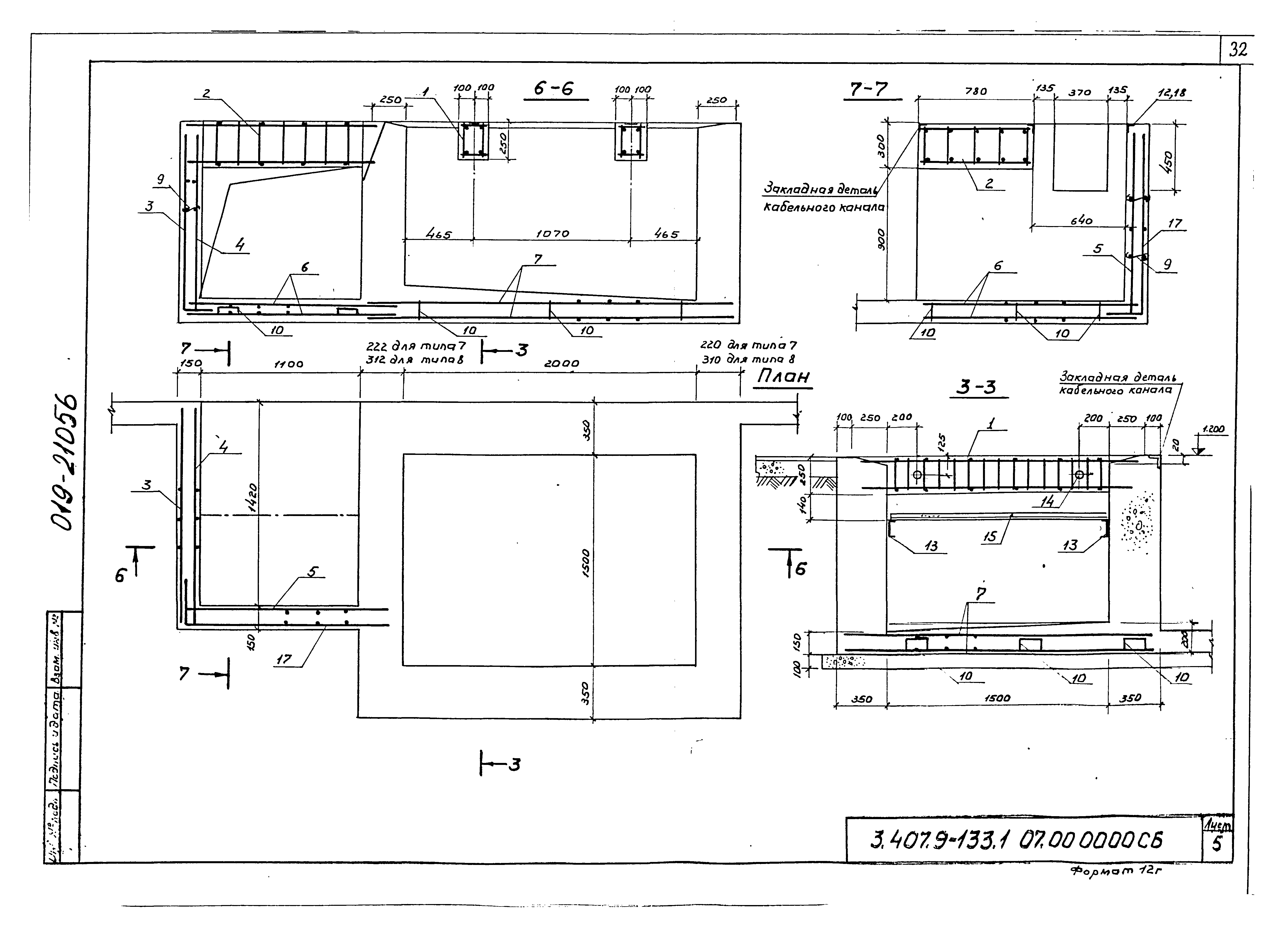
Скачать Серия 3.407.9-133 Выпуск 1. Маслоприемники для КПТ мощностью до 1600 кВАДата актуализации: 01.01.2021
|
| Обозначение: | Серия 3.407.9-133 |
| Обозначение англ: | Series 3.407.9-133 |
| Статус: | не определен законодательством |
| Название рус.: | Выпуск 1. Маслоприемники для КПТ мощностью до 1600 кВА |
| Дата добавления в базу: | 01.09.2013 |
| Дата актуализации: | 01.01.2021 |
| Дата введения: | 01.04.1982 |
| Дата окончания срока действия: | 30.06.2003 |
| Разработан: | ВНИПИнефти Миннефтехимпрома СССР |
| Утверждён: | 07.05.1981 В/О Нефтехим (28) |











































































