Скачать Серия 1.494-35 Выпуск 3. Эжекторы низкого давления производительностью 3000 куб. м/час. Рабочие чертежиДата актуализации: 01.01.2021
|
| Обозначение: | Серия 1.494-35 |
| Обозначение англ: | Series 1.494-35 |
| Статус: | не определен законодательством |
| Название рус.: | Выпуск 3. Эжекторы низкого давления производительностью 3000 куб. м/час. Рабочие чертежи |
| Дата добавления в базу: | 01.09.2013 |
| Дата актуализации: | 01.01.2021 |
| Дата введения: | 20.10.1978 |
| Дата окончания срока действия: | 30.06.2003 |
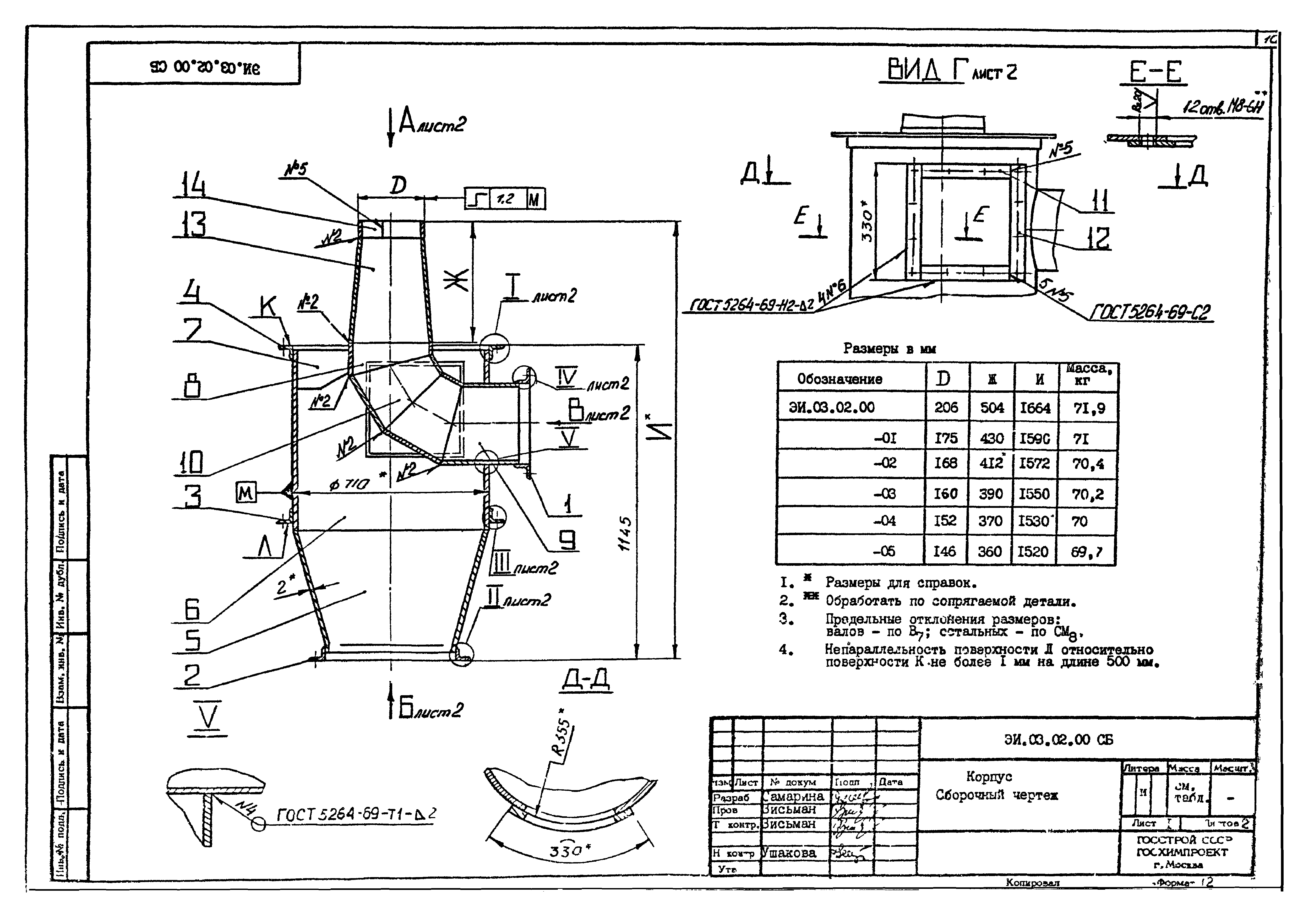
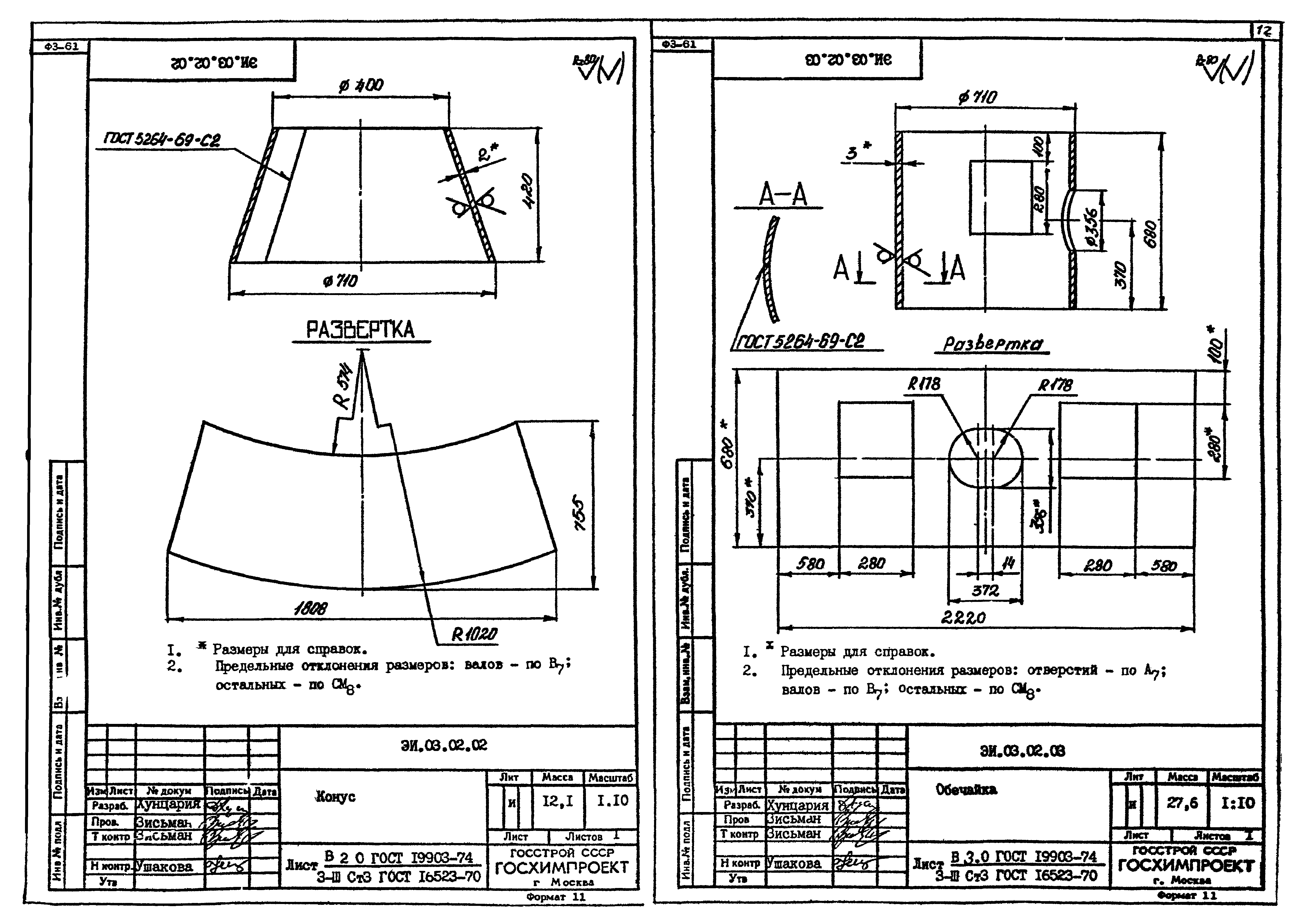
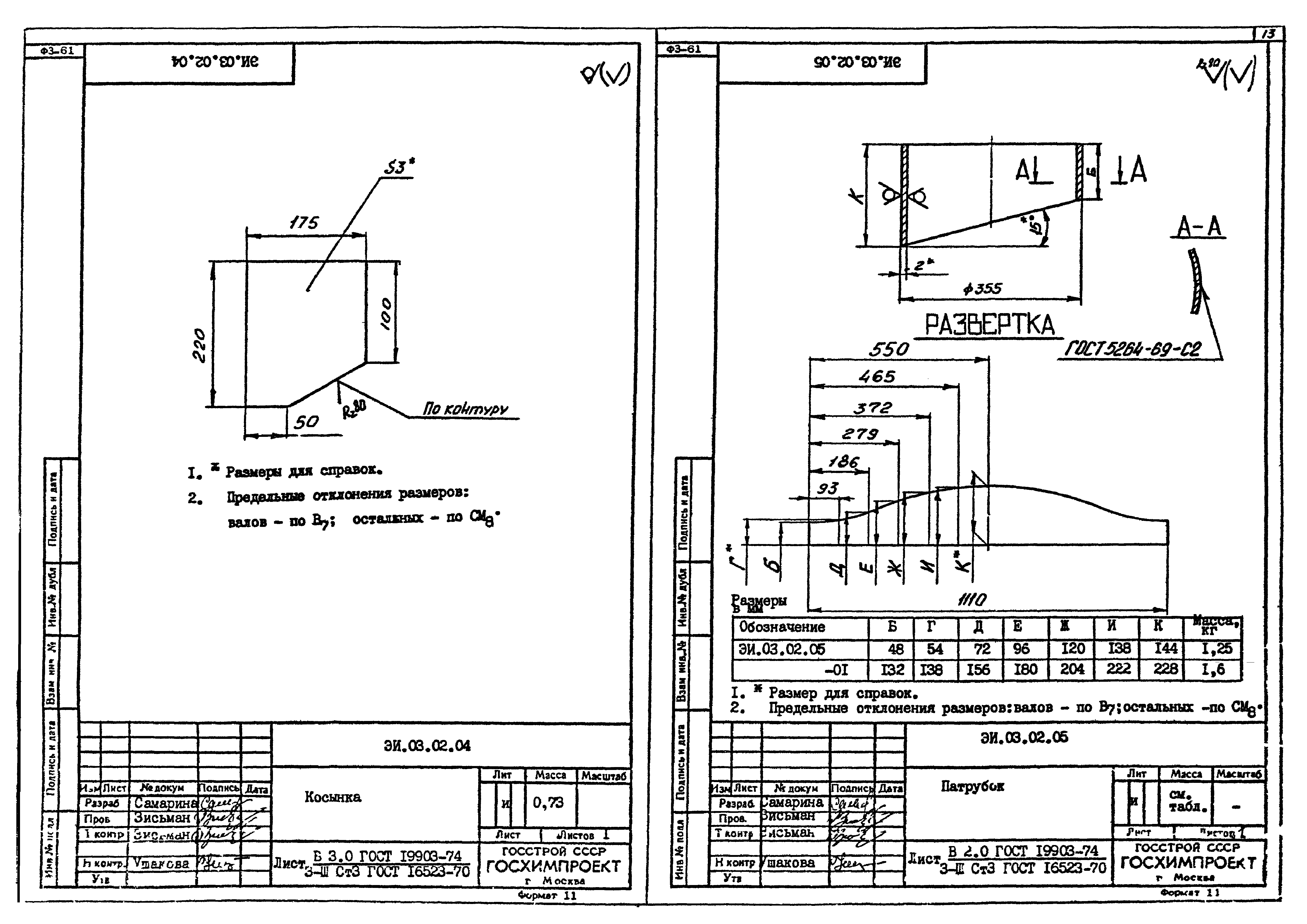
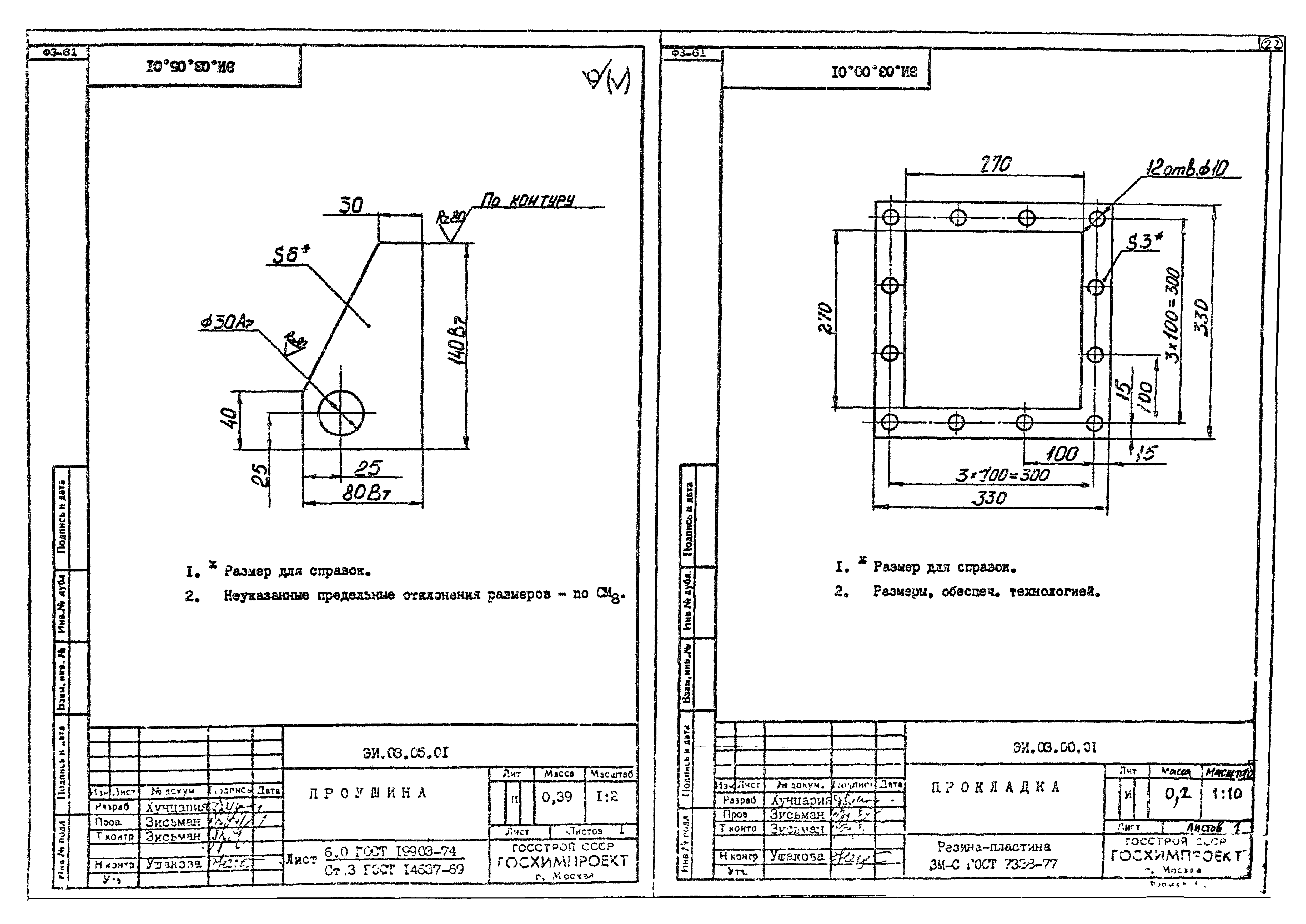
| Оглавление: | ЭИ.03.00.00 Эжектор 3000. Спецификация л.1 ЭИ.03.00.00 Эжектор 3000. Спецификация л.2 ЭИ.03.00.00 Эжектор 3000. Спецификация л.3 ЭИ.03.00.00 Эжектор 3000. Спецификация л.4 ЭИ.03.00.00 СБ Эжектор 3000. Сборочный чертеж л.1 ЭИ.03.00.00 СБ Эжектор 3000. Сборочный чертеж л.2 ЭИ.03.01.00 Крышка. Спецификация ЭИ.03.00.02 Прокладка ЭИ.03.01.00 СБ Крышка. Сборочный чертеж ЭИ.03.01.01 Лист ЭИ.03.02.00 Корпус. Спецификация л.1 ЭИ.03.02.00 Корпус. Спецификация л.2 ЭИ.03.02.00 Корпус. Спецификация л.3 ЭИ.03.02.01 Фланец ЭИ.03.02.00 СБ Корпус. Сборочный чертеж ЭИ.03.02.02 Конус ЭИ.03.02.03 Обечайка ЭИ.03.02.04 Косынка ЭИ.03.02.05 Патрубок ЭИ.03.02.06 Патрубок ЭИ.03.02.09 Конус ЭИ.03.03.00 Конфузор. Спецификация л.1 ЭИ.03.03.00 Конфузор. Спецификация л.2 ЭИ.03.03.00 СБ Конфузор. Сборочный чертеж ЭИ.03.03.01 Конус ЭИ.03.03.02 Фланец ЭИ.03.04.00 Камера. Спецификация л.1 ЭИ.03.04.00 Камера. Спецификация л.2 ЭИ.03.04.00 СБ Камера. Сборочный чертеж ЭИ.03.04.01 Конус ЭИ.03.04.02 Фланец ЭИ.03.05.00 Диффузор. Спецификация л.1 ЭИ.03.05.00 Диффузор. Спецификация л.2 ЭИ.03.05.00 СБ Диффузор. Сборочный чертеж ЭИ.03.05.02 Конус ЭИ.03.05.01 Проушина ЭИ.03.00.01 Прокладка |
| Разработан: | ГПИ Госхимпроект Госстроя СССР |
| Утверждён: | 13.10.1978 Главпромстройпроект Госстроя СССР (56) |























