Скачать Серия 1.400-10/76 Выпуск 6. Узлы креплений коммуникаций, располагаемых в межферменном пространстве. Чертежи КМДата актуализации: 01.01.2021
|
| Обозначение: | Серия 1.400-10/76 |
| Обозначение англ: | Series 1.400-10/76 |
| Статус: | не действует |
| Название рус.: | Выпуск 6. Узлы креплений коммуникаций, располагаемых в межферменном пространстве. Чертежи КМ |
| Дата добавления в базу: | 01.09.2013 |
| Дата актуализации: | 01.01.2021 |
| Дата введения: | 01.03.1977 |
| Дата окончания срока действия: | 01.07.1984 |
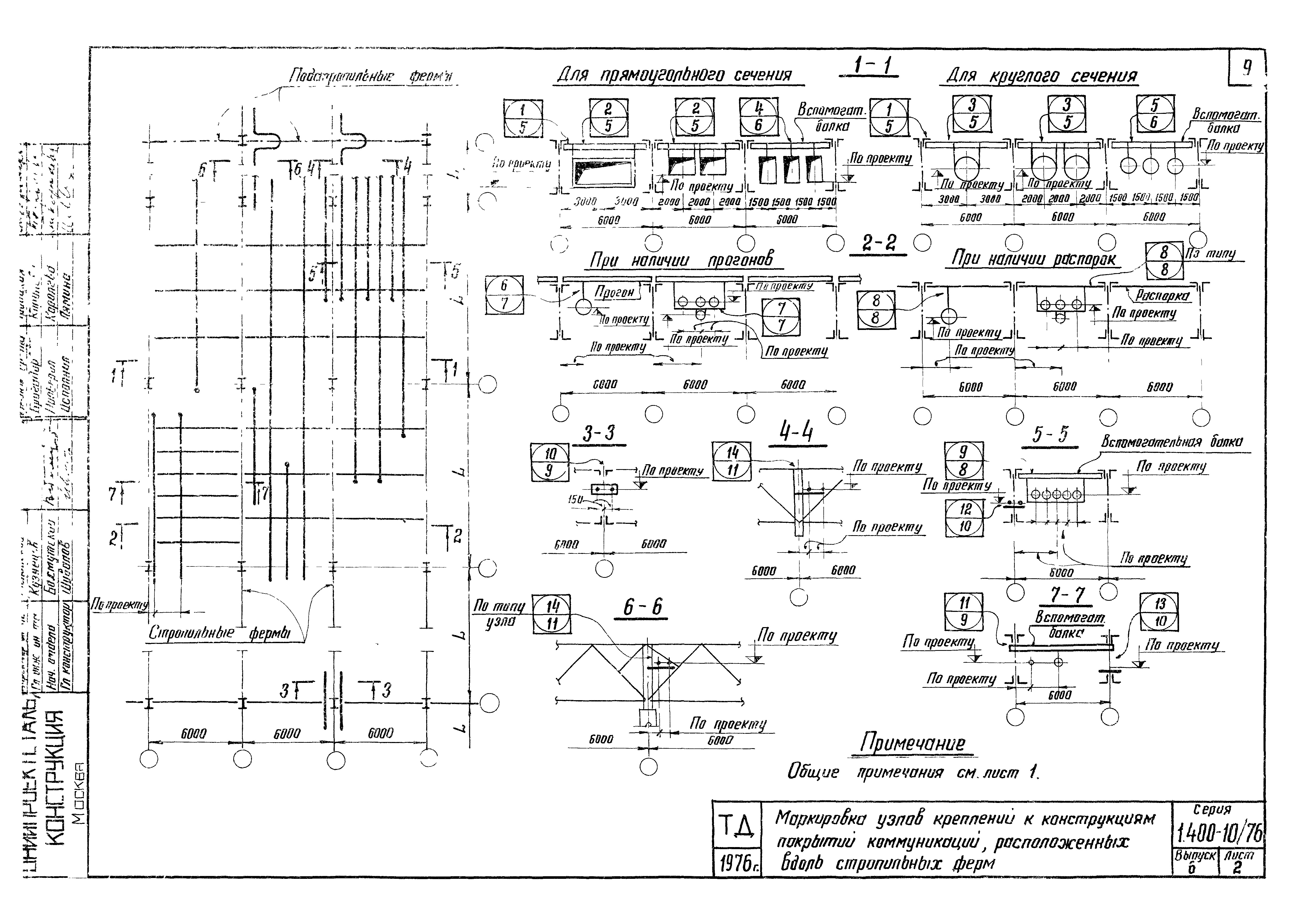
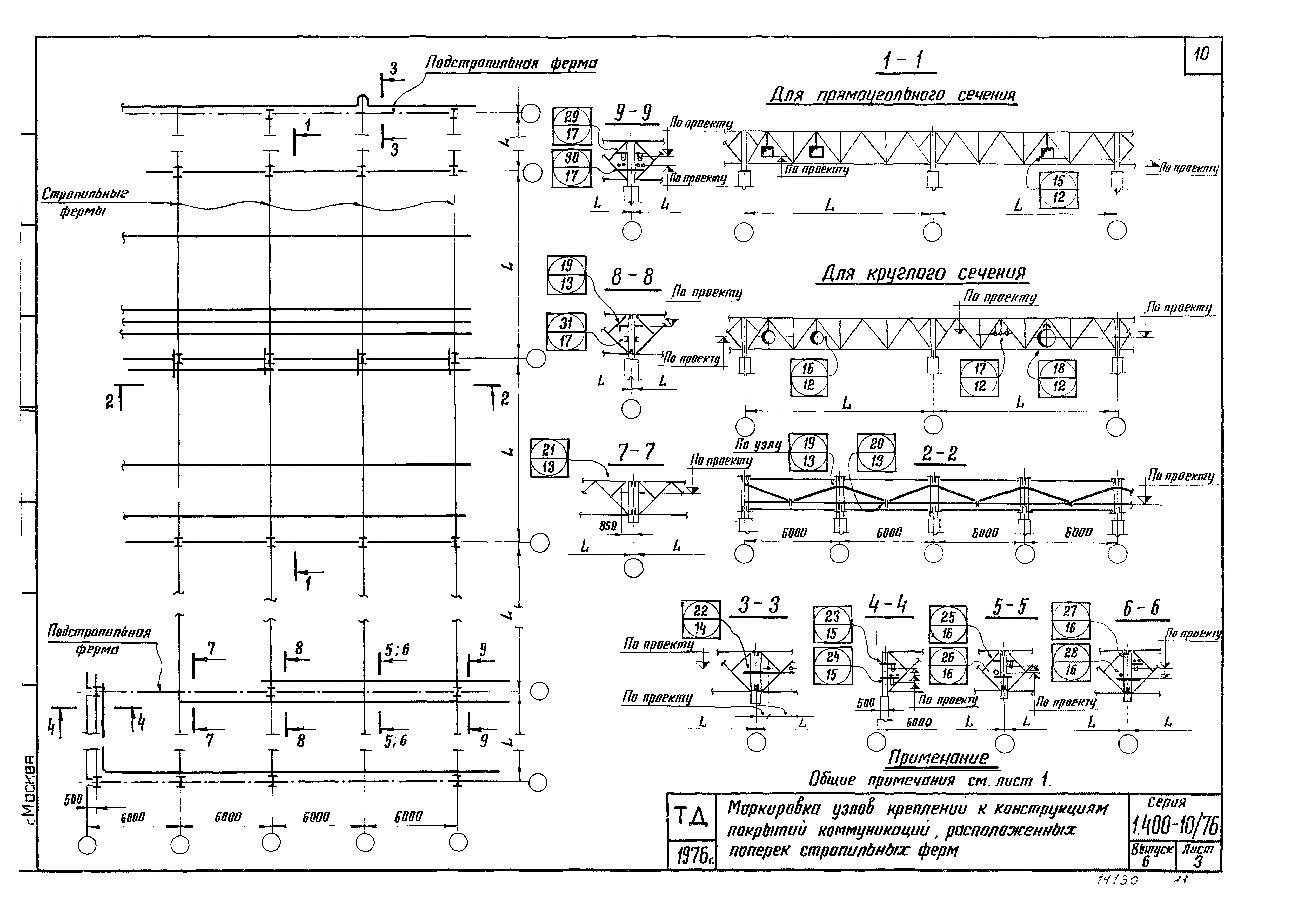
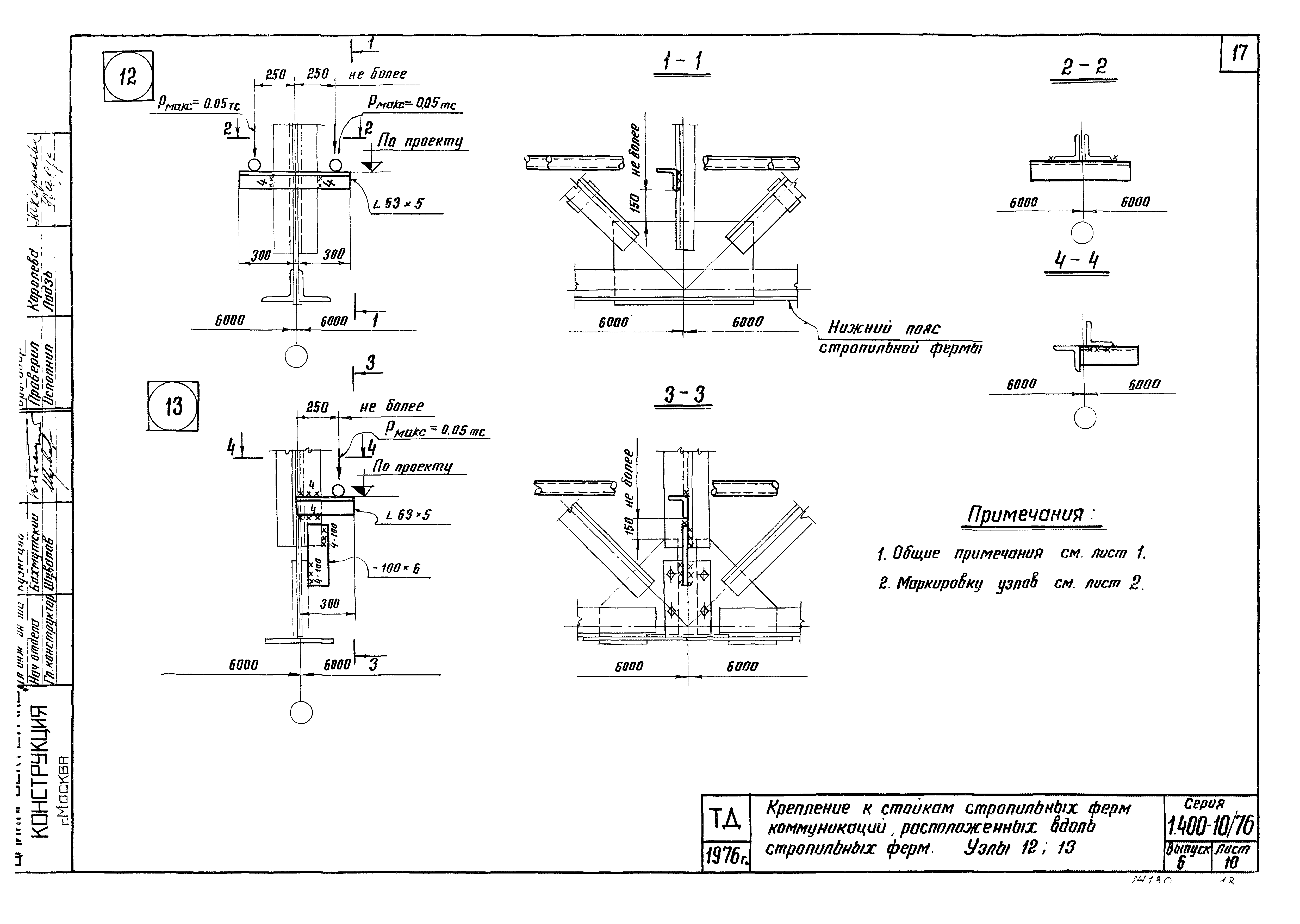
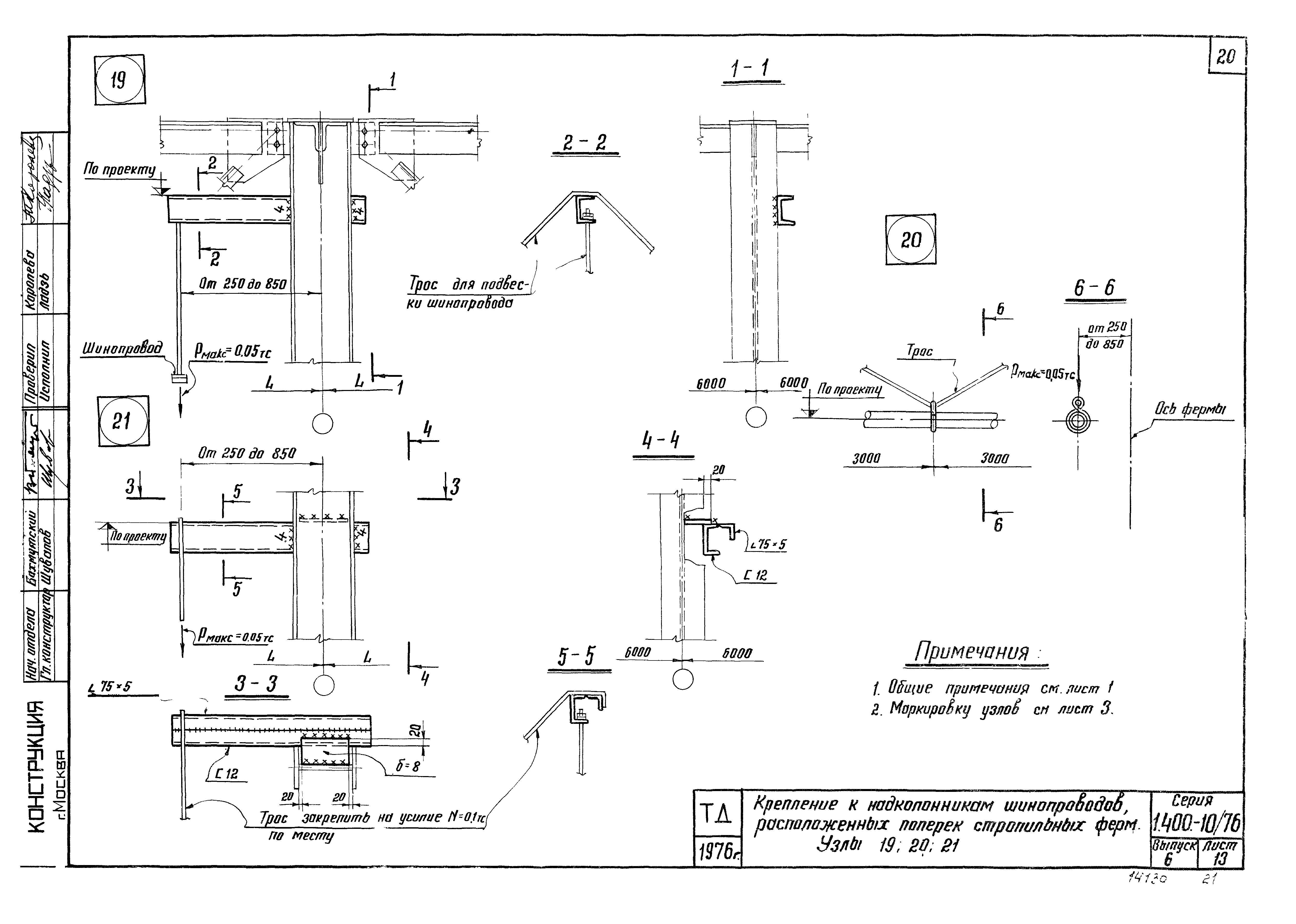
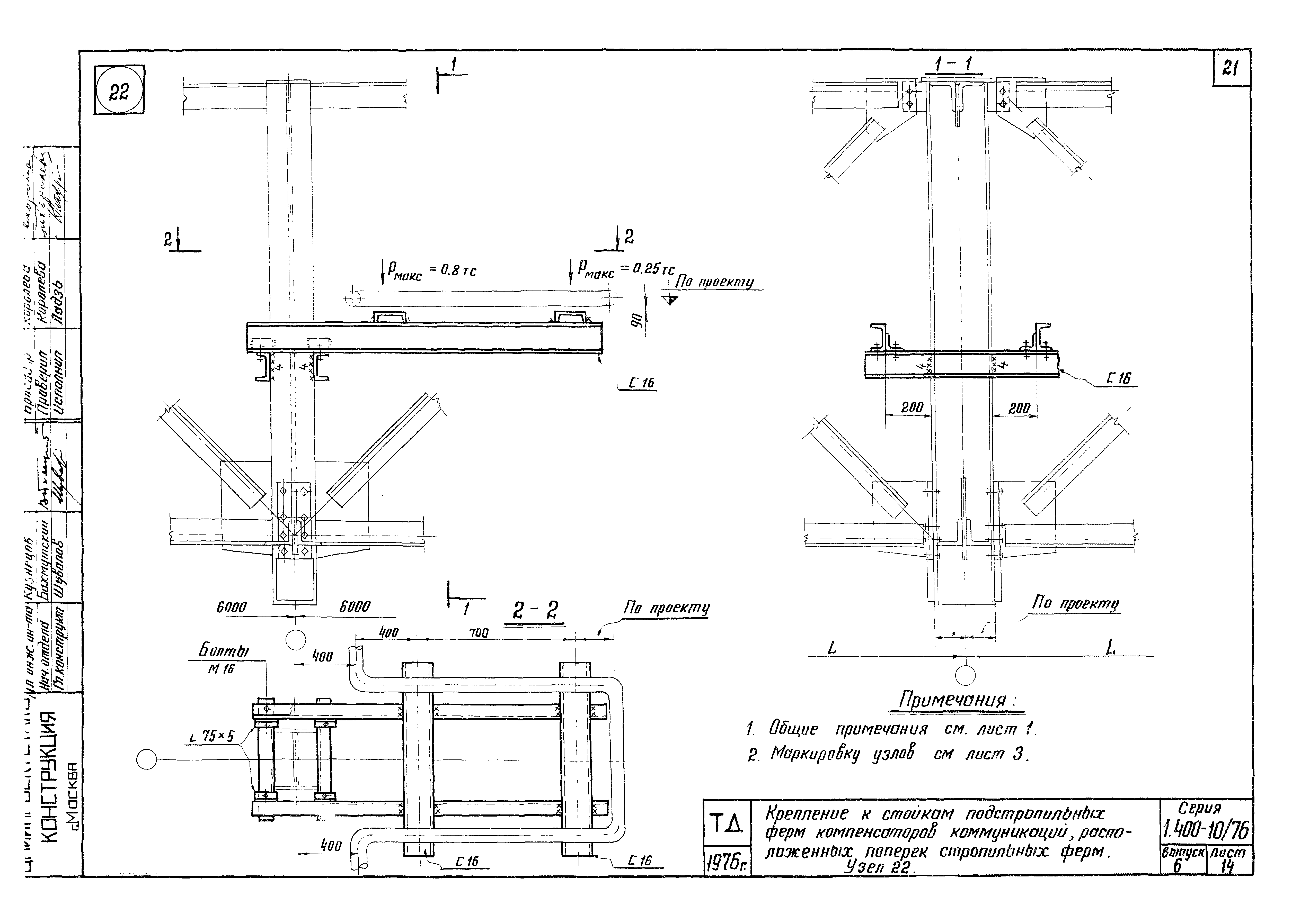
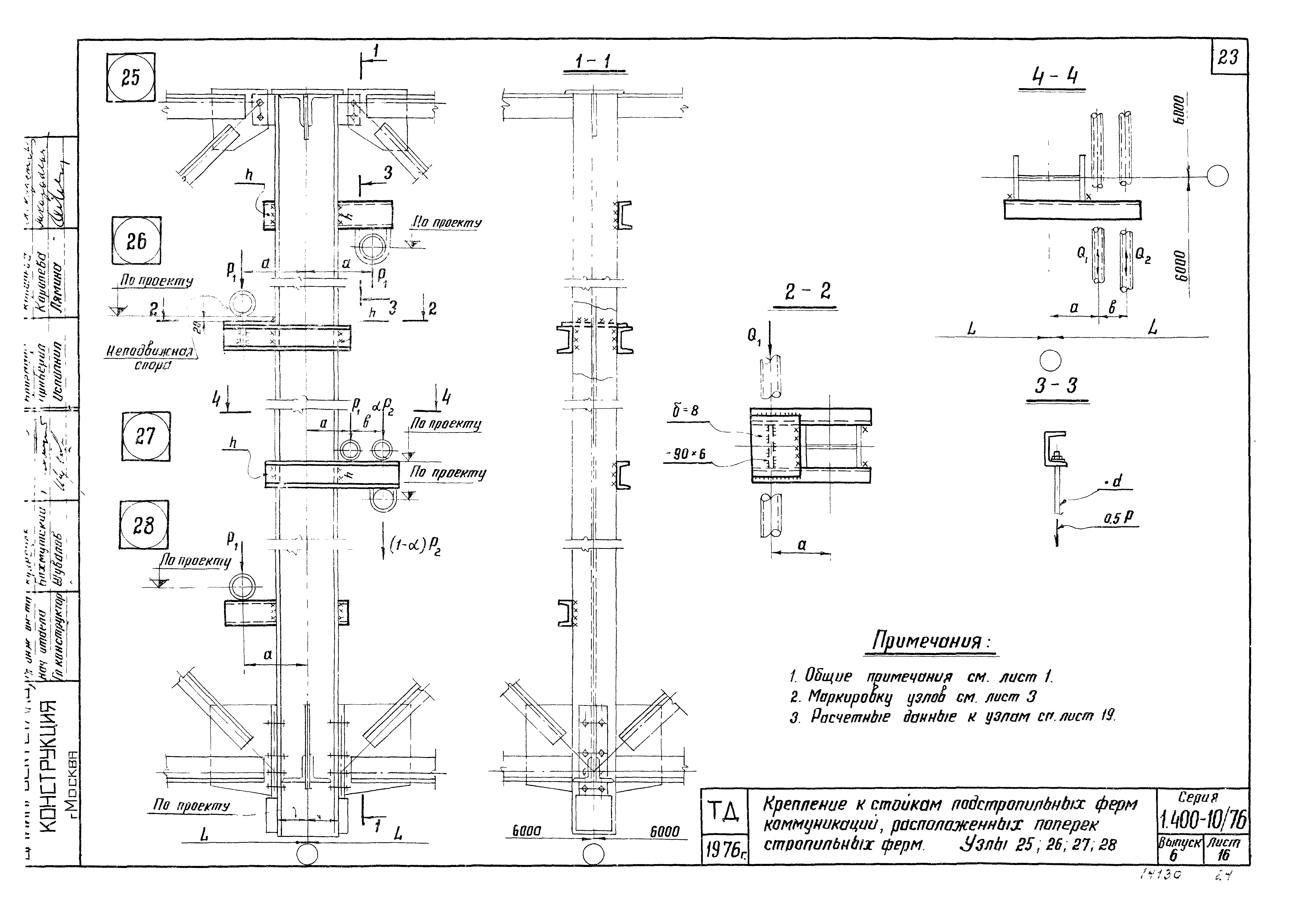
| Оглавление: | Пояснительная записка I. Пример оформления чертежей с применением типовых узлов Пример оформления чертежей с применением типовых узлов. План расположения межферменных коммуникаций Пример оформления чертежей с применением типовых узлов. Разрезы 1-1; 2-2; 3-3; 4-4; 5-5 Пример оформления чертежей с применением типовых узлов. Расположение ливнестоков вдоль стропильных и подстропильных ферм Общие примечания к чертежам II. Схемы с маркировкой узлов креплений коммуникаций к конструкциям покрытия Маркировка узлов креплений к конструкциям покрытий коммуникаций, расположенных вдоль стропильных ферм Маркировка узлов креплений к конструкциям покрытий коммуникаций, расположенных поперек стропильных ферм Маркировка узлов креплений к конструкциям покрытий коммуникаций, при выводе их на кровлю III. Узлы крепления коммуникаций к конструкциям покрытий Крепление к вспомогательным балкам коммуникаций, расположенных вдоль стропильных ферм. Узлы 1; 2; 3 Крепление к вспомогательным балкам коммуникаций, расположенных вдоль стропильных ферм. Узлы 4; 5 Крепление к прогонам коммуникаций, расположенных вдоль стропильных ферм. Узлы 6; 7 Крепление к распоркам и вспомогательным балкам коммуникаций, расположенных вдоль стропильных ферм. Узлы 8; 9 Крепление к верхним поясам ферм коммуникаций, расположенных вдоль стропильных ферм. Узлы 10; 11 Крепление к стойкам стропильных ферм коммуникаций, расположенных вдоль стропильных ферм. Узлы 12; 13 Крепление к стойкам подстропильных ферм компенсаторов коммуникаций, расположенных вдоль стропильных ферм. Узел 14 Крепление к узлам стропильных ферм компенсаторов коммуникаций, расположенных вдоль стропильных ферм. Узлы 15; 16; 17; 18 Крепление к узлам стропильных ферм коммуникаций, расположенных поперек стропильных ферм. Узлы 19; 20; 21 Крепление к стойкам подстропильных ферм компенсаторов коммуникаций, расположенных поперек стропильных ферм. Узел 22 Крепление к надколонникам коммуникаций, расположенных поперек стропильных ферм. Узлы 23; 24 Крепление к стойкам подстропильных ферм коммуникаций, расположенных поперек стропильных ферм. Узлы 25; 26; 27; 28 Крепление к надколонникам коммуникаций, расположенных поперек стропильных ферм. Узлы 29; 30; 31 Крепление коммуникаций к конструкциям покрытий при выводе их на кровлю. Узлы 32; 33; 34 Расчетные данные к узлам 23-31 Дополнительный расчет стропильной фермы на нагрузку от шинопровода |
| Разработан: | ЦНИИпроектстальконструкция |
| Утверждён: | 24.11.1976 Госстрой СССР (Государственный комитет Совета Министров СССР по делам строительства) (USSR Gosstroy 194) |
| Чем заменён: |


























