Скачать Серия 2.440-1 Выпуск 5. Узлы креплений коммуникацийДата актуализации: 01.01.2021
|
| Обозначение: | Серия 2.440-1 |
| Обозначение англ: | Series 2.440-1 |
| Статус: | действует |
| Название рус.: | Выпуск 5. Узлы креплений коммуникаций |
| Дата добавления в базу: | 01.09.2013 |
| Дата актуализации: | 01.01.2021 |
| Дата введения: | 01.07.1984 |
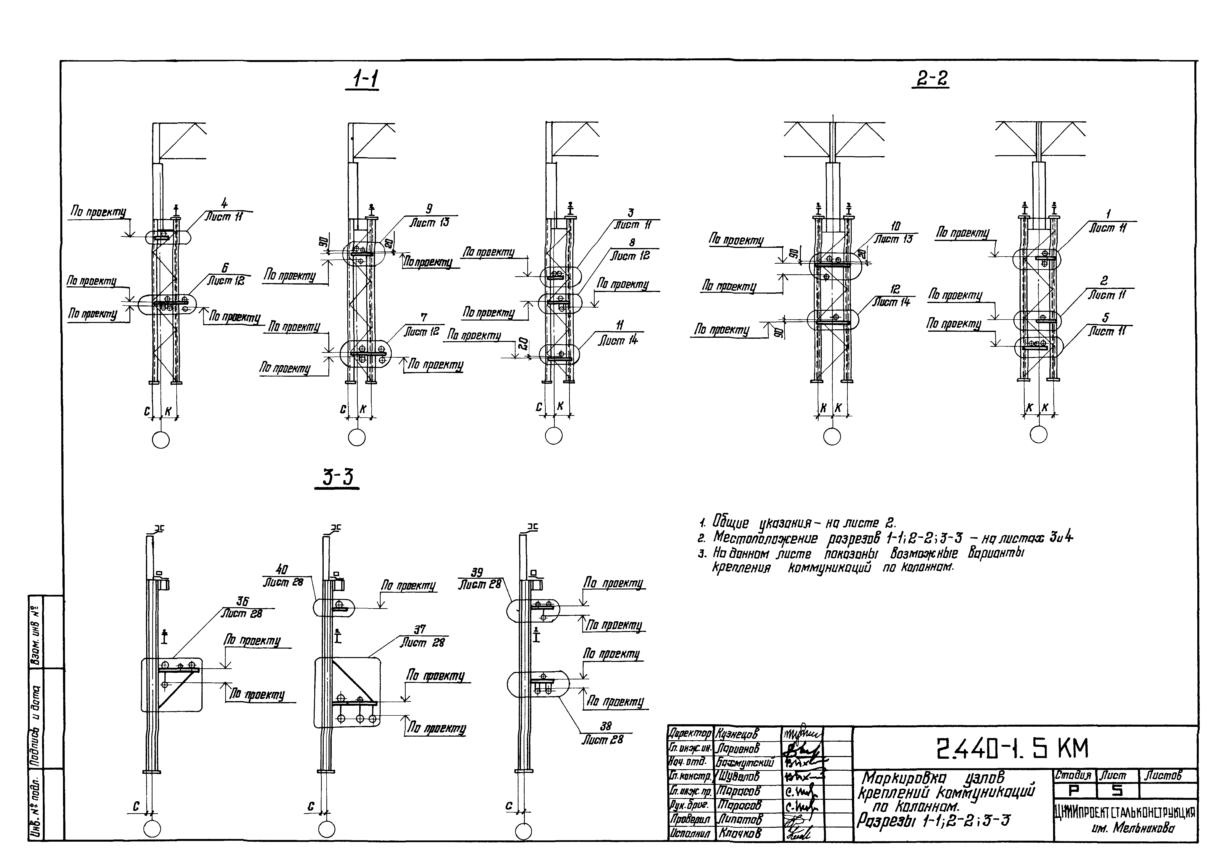
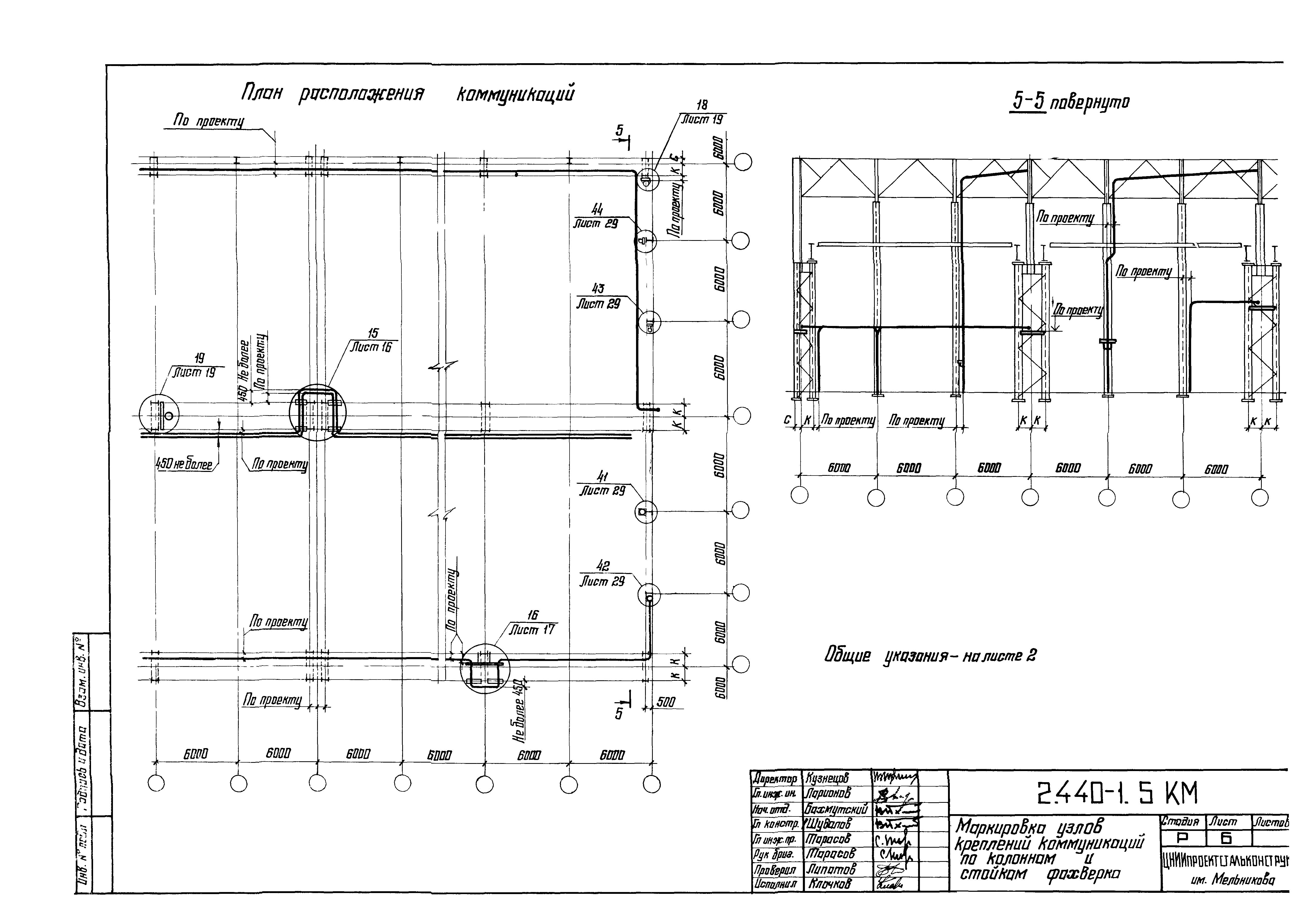
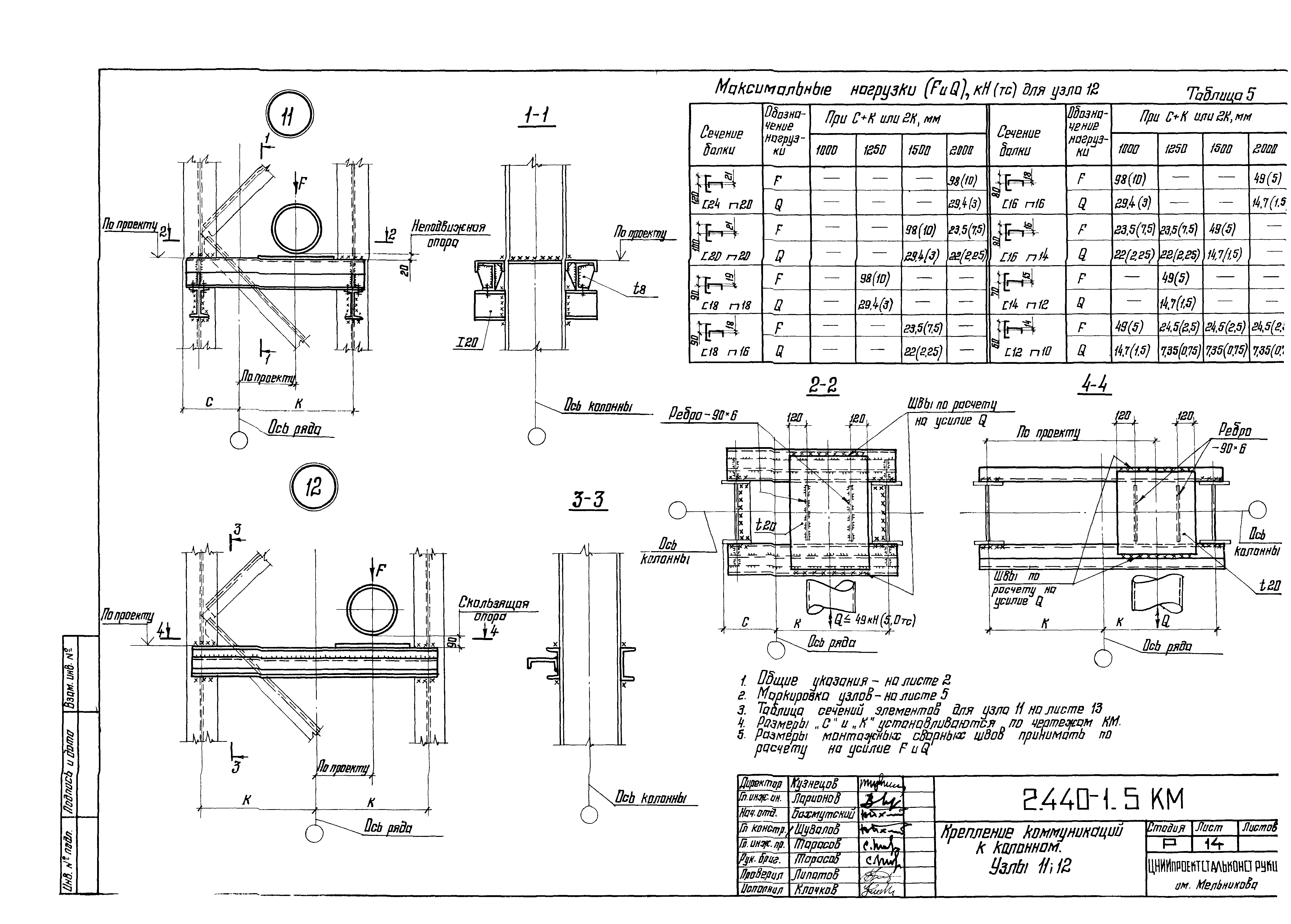
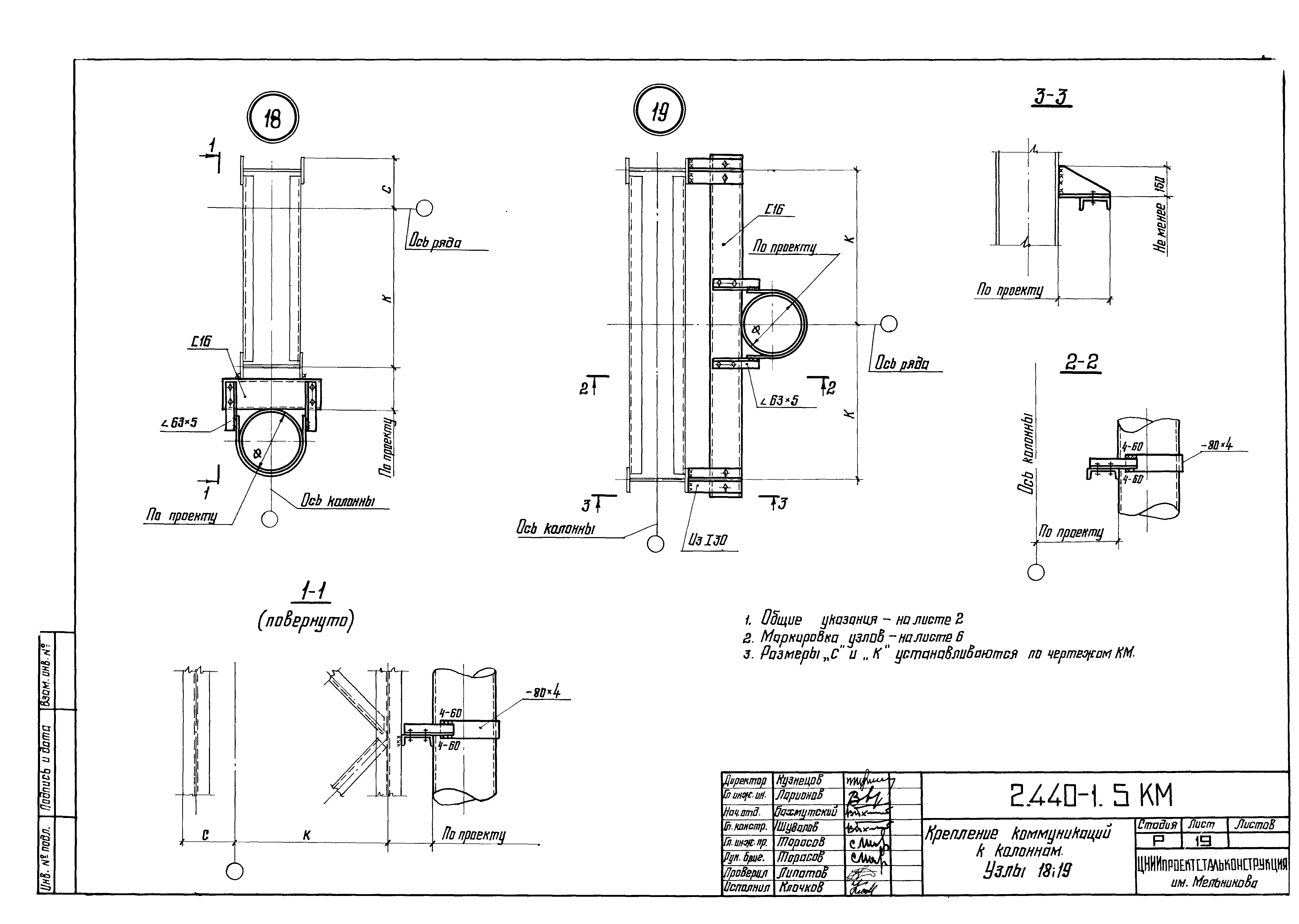
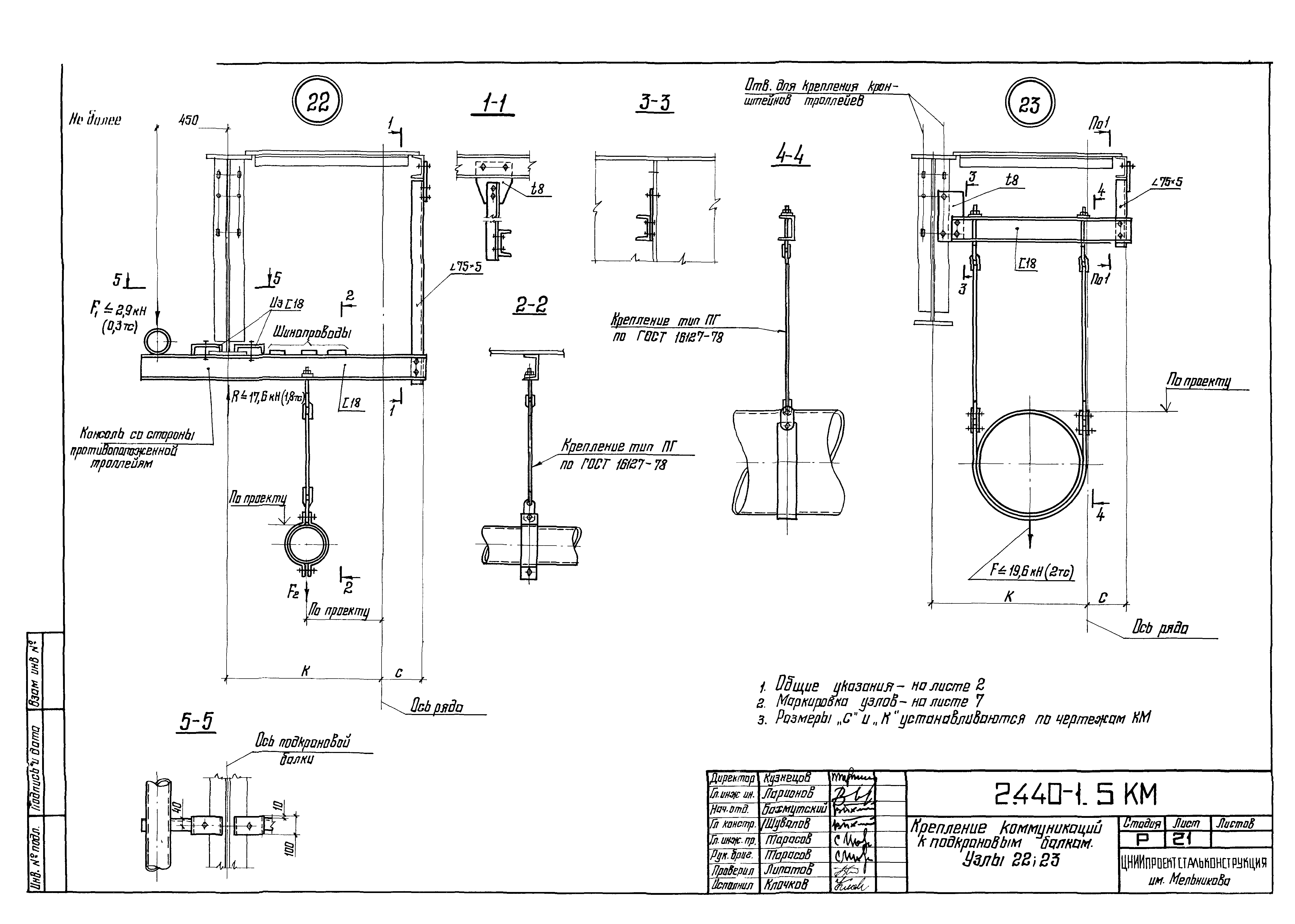
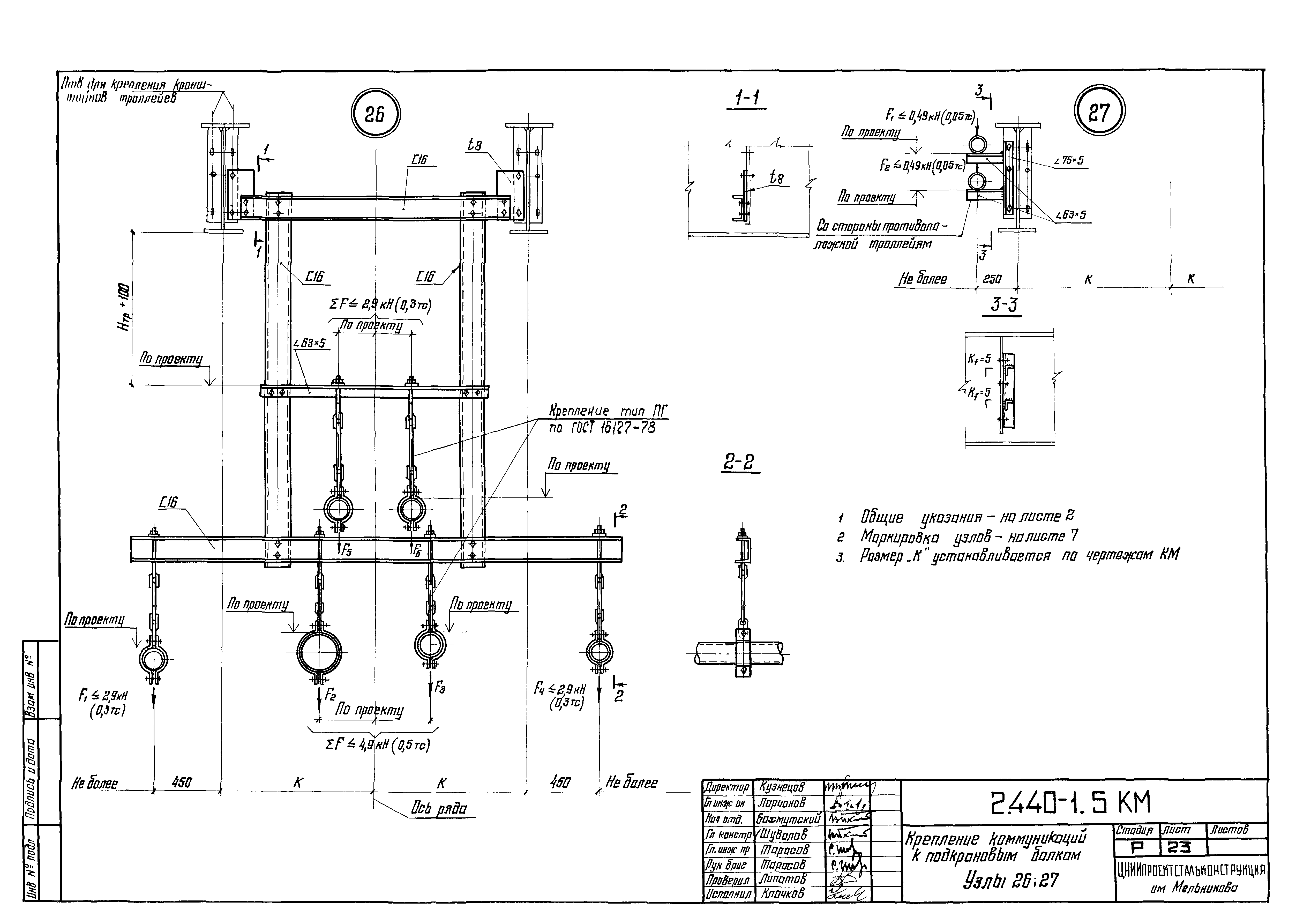
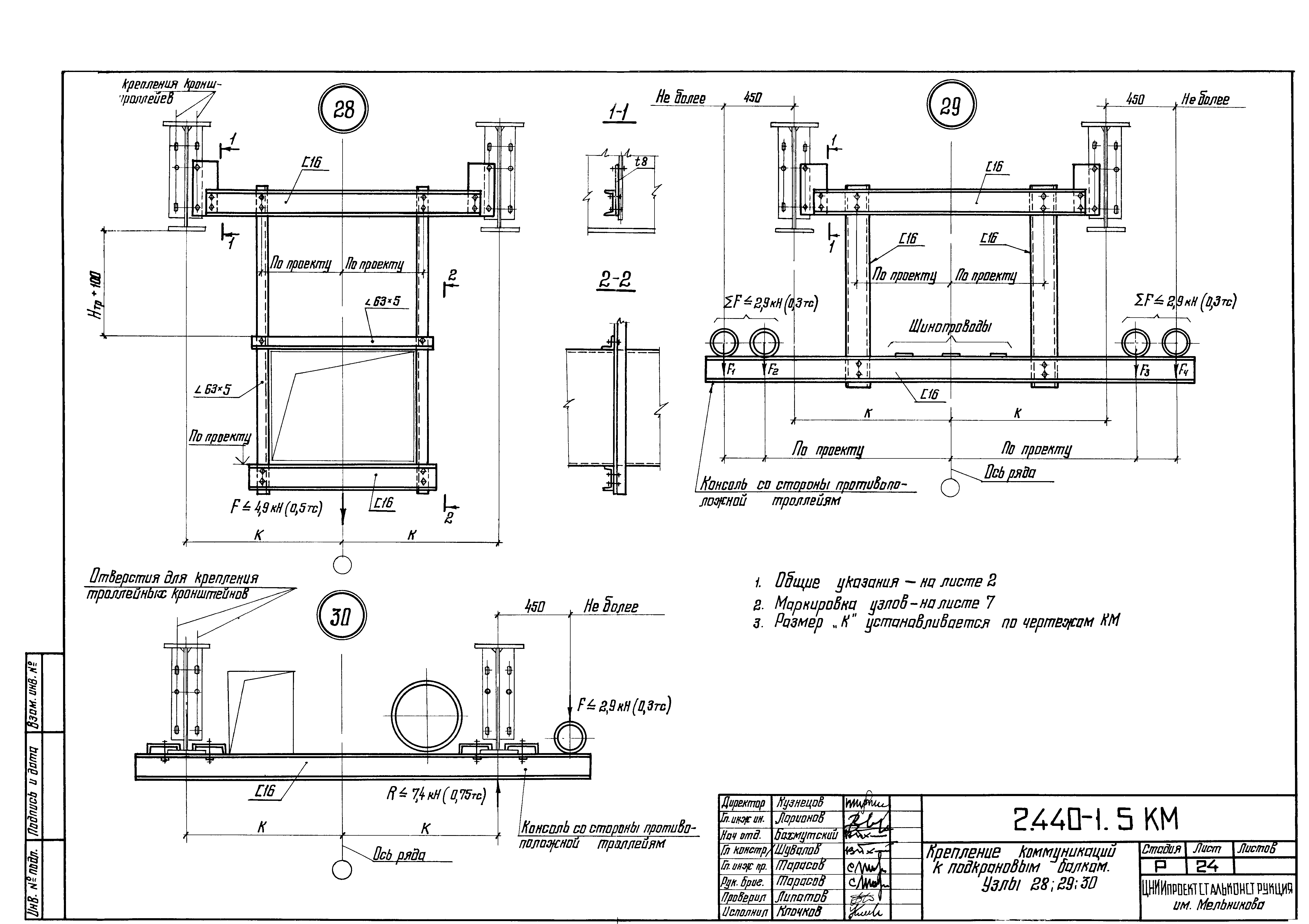
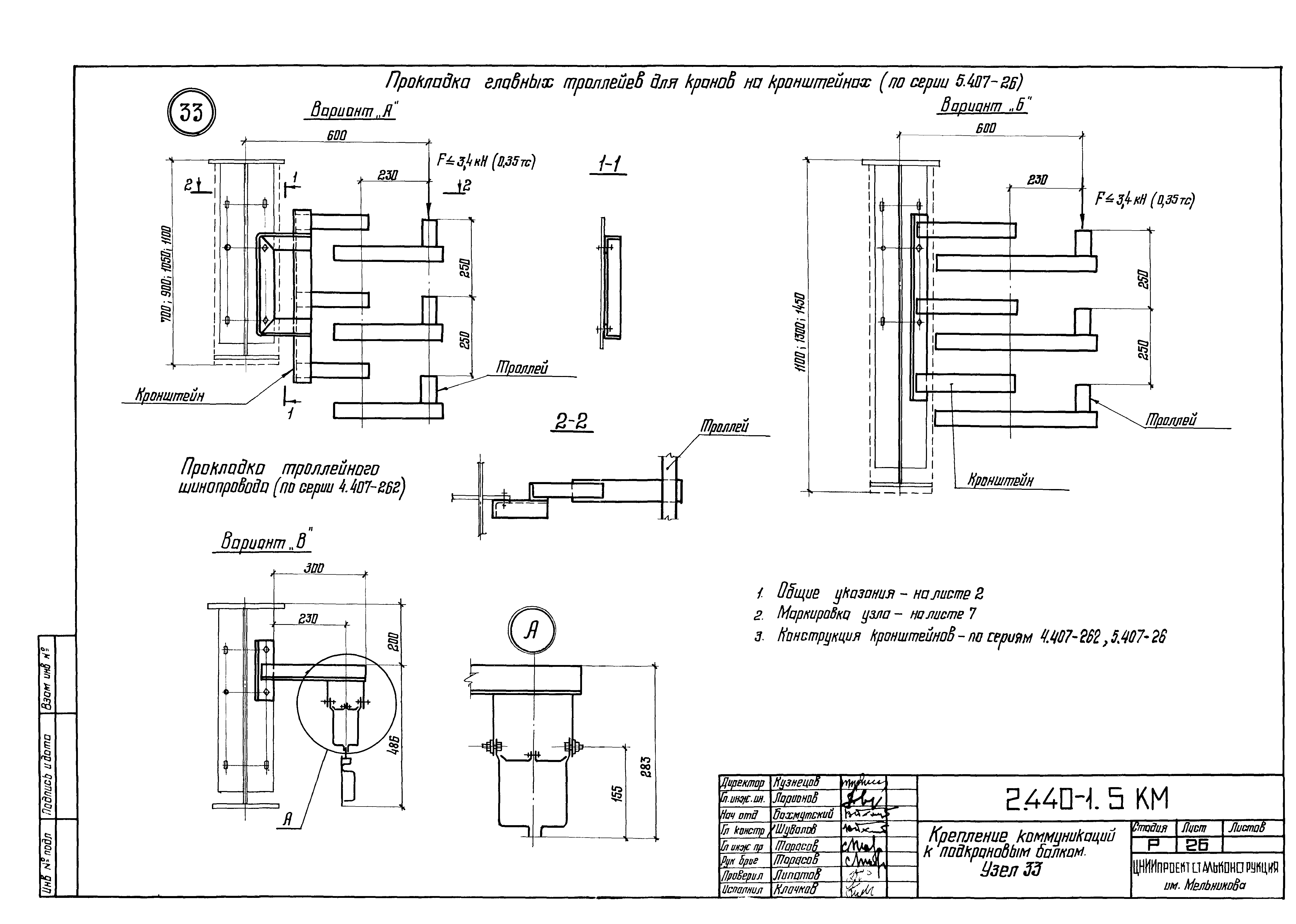
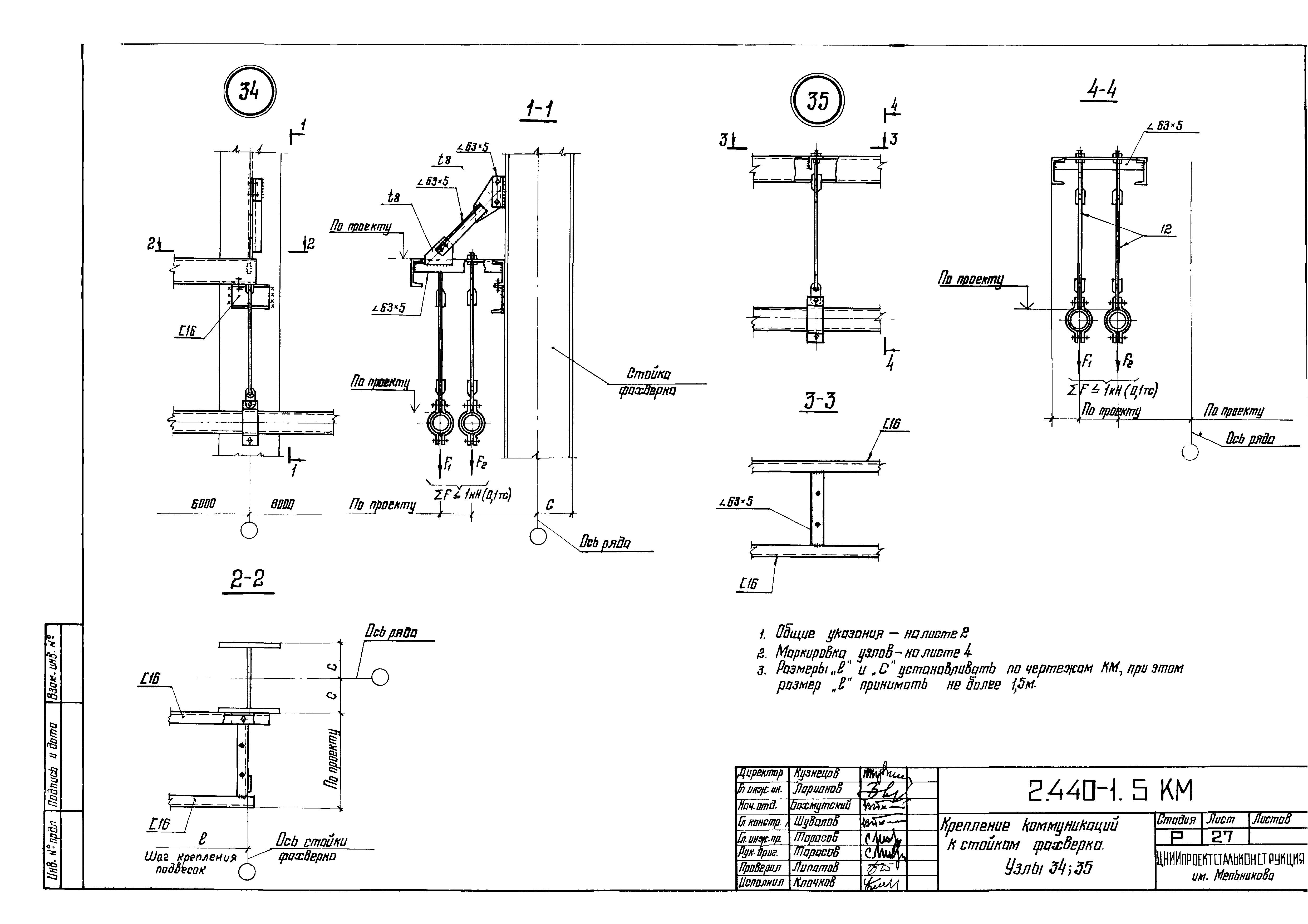
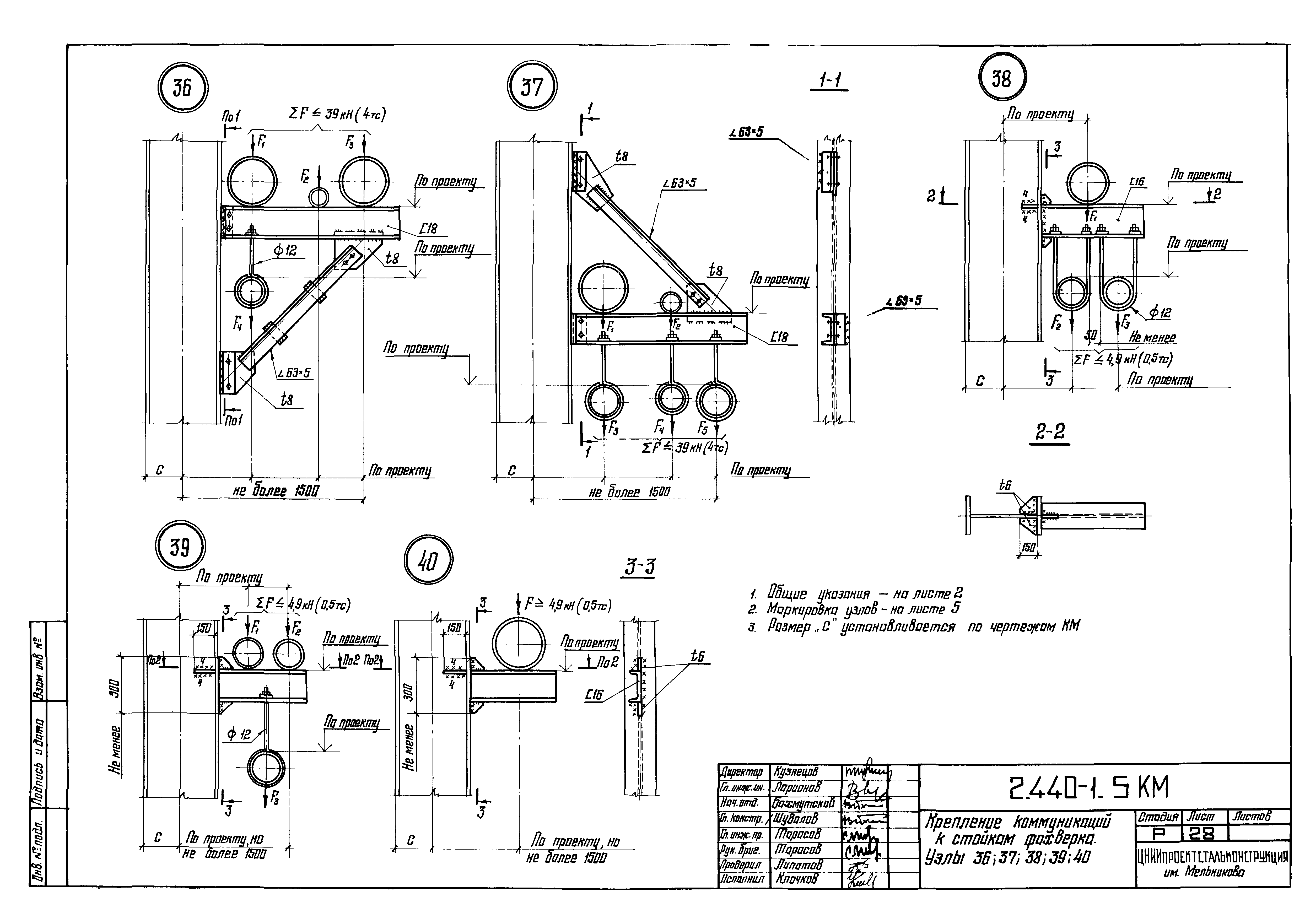
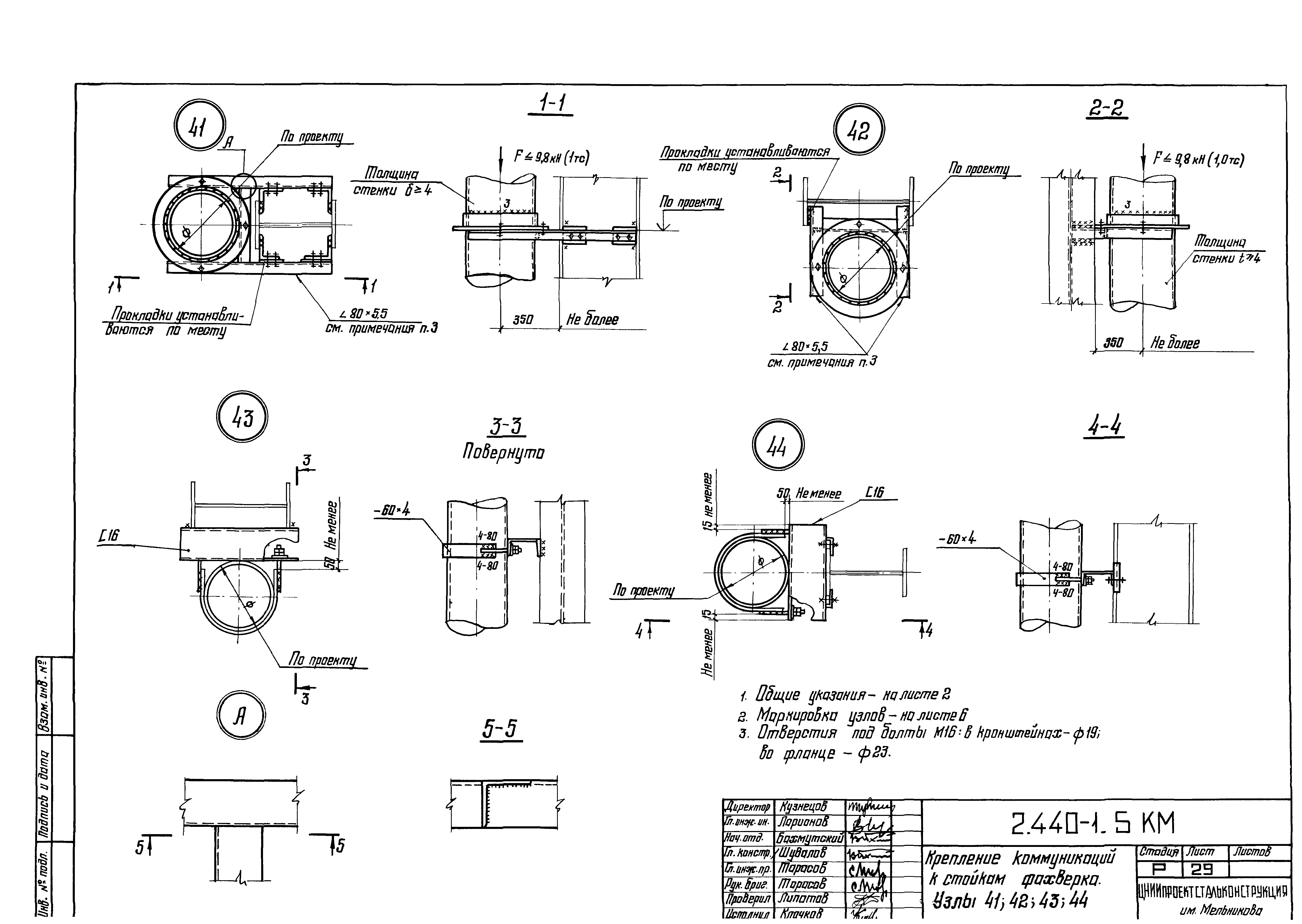
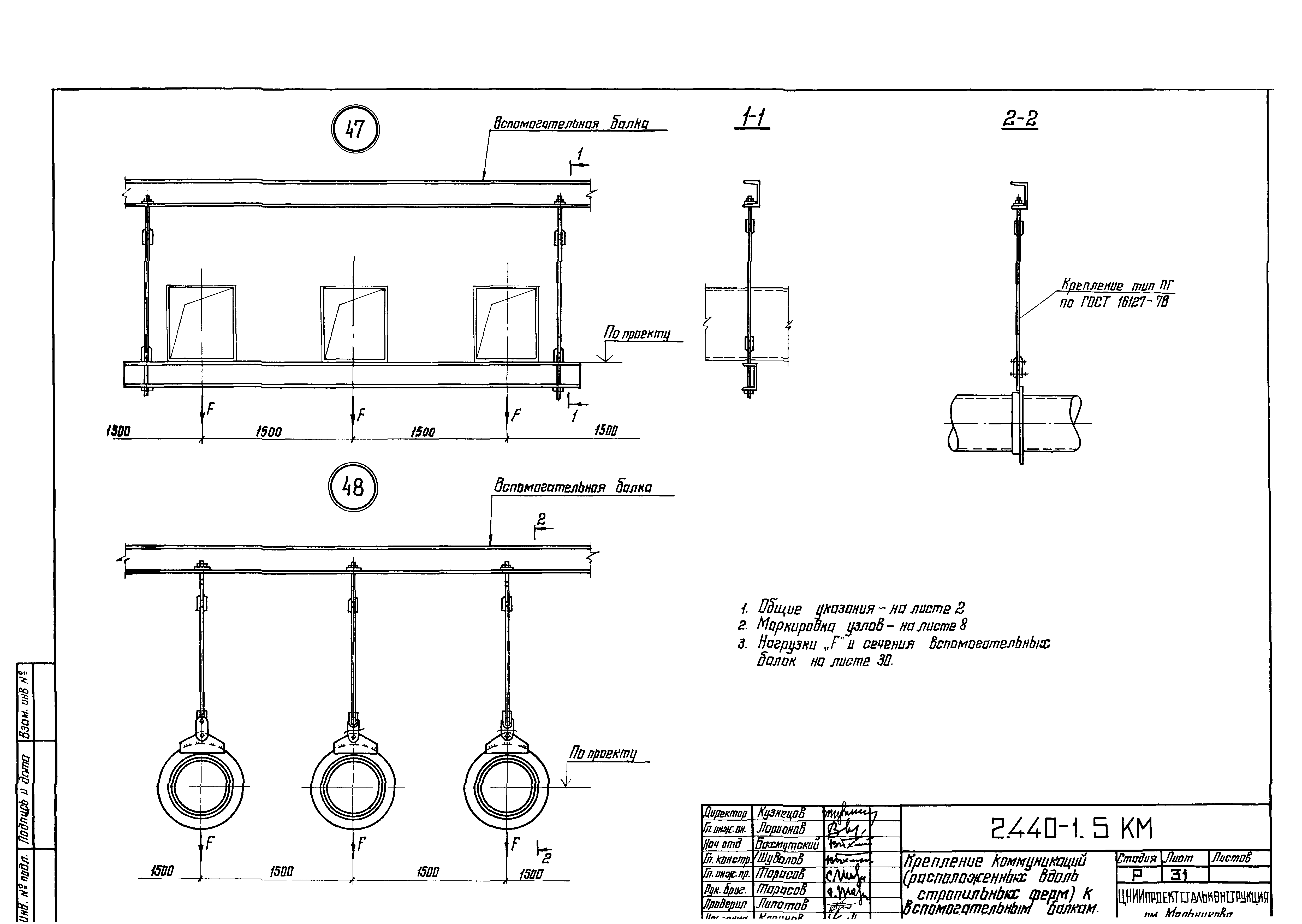
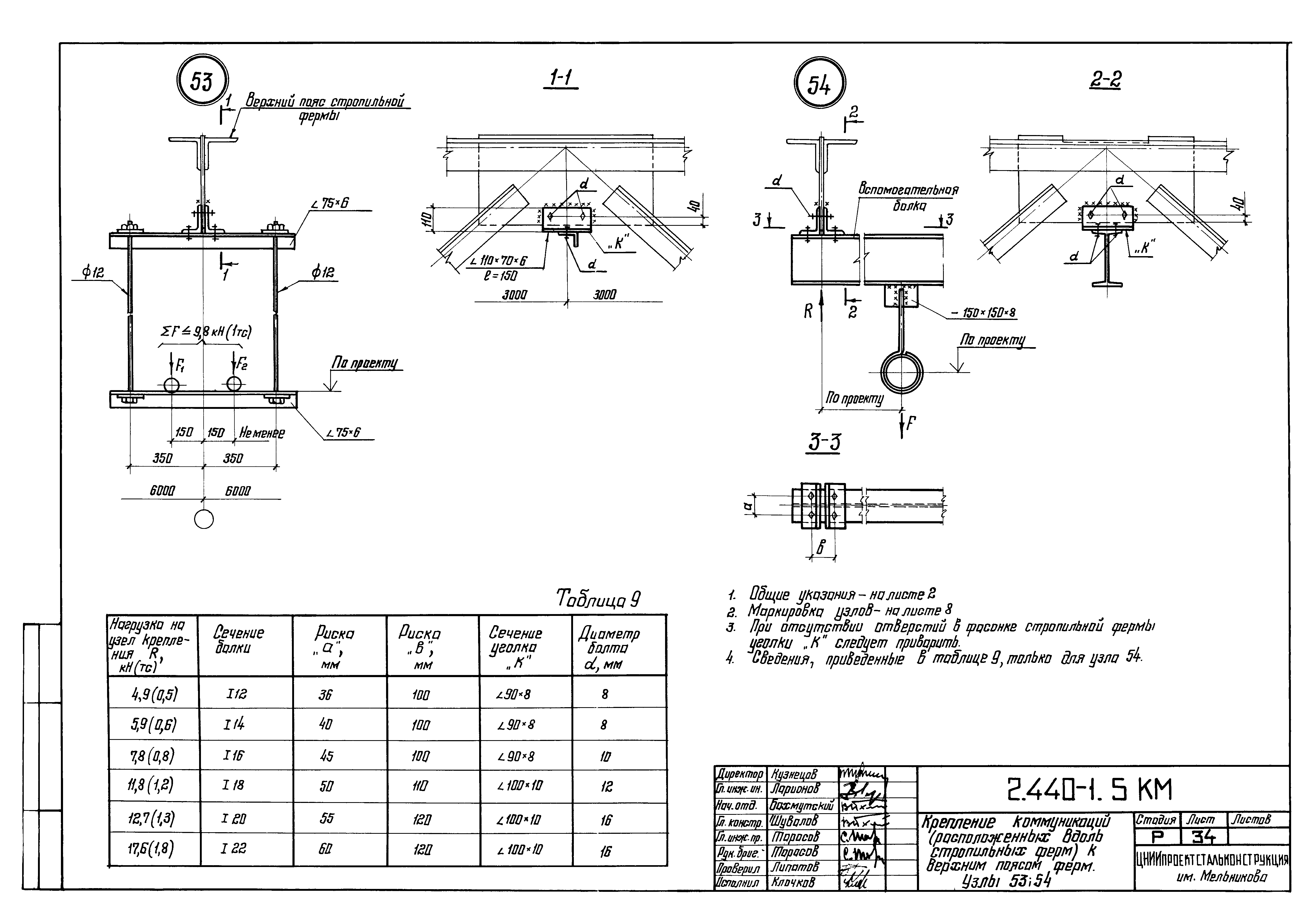
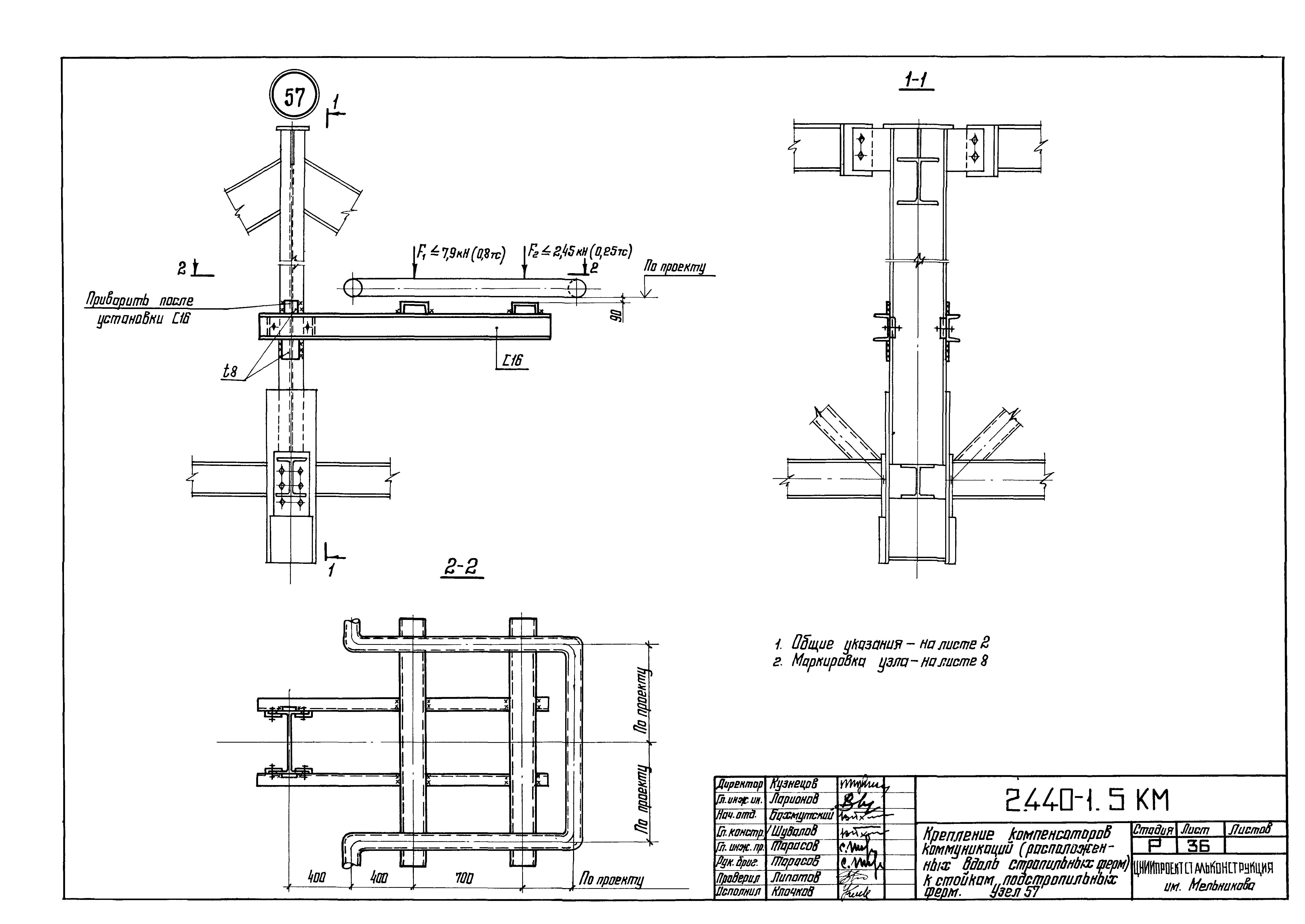
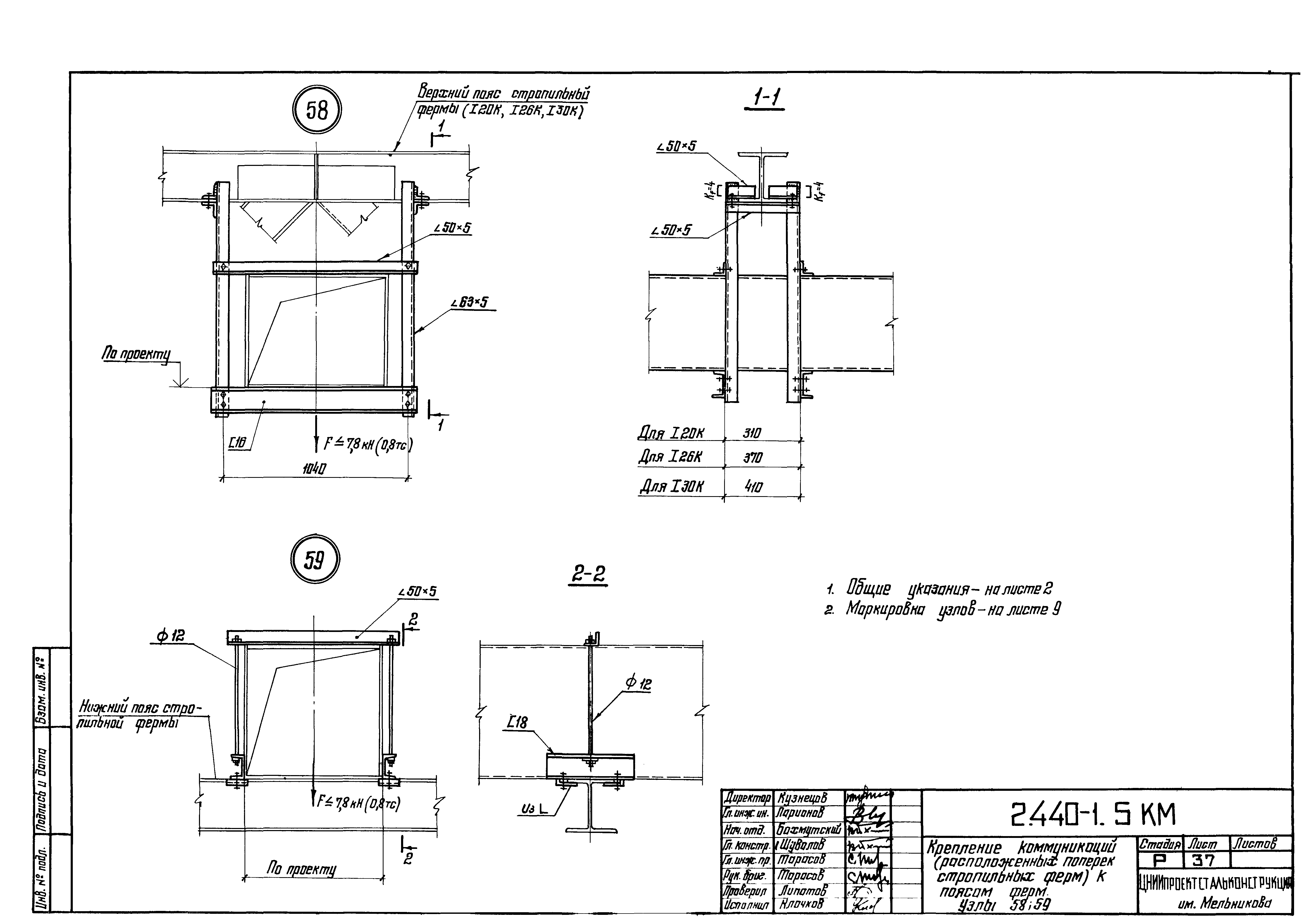
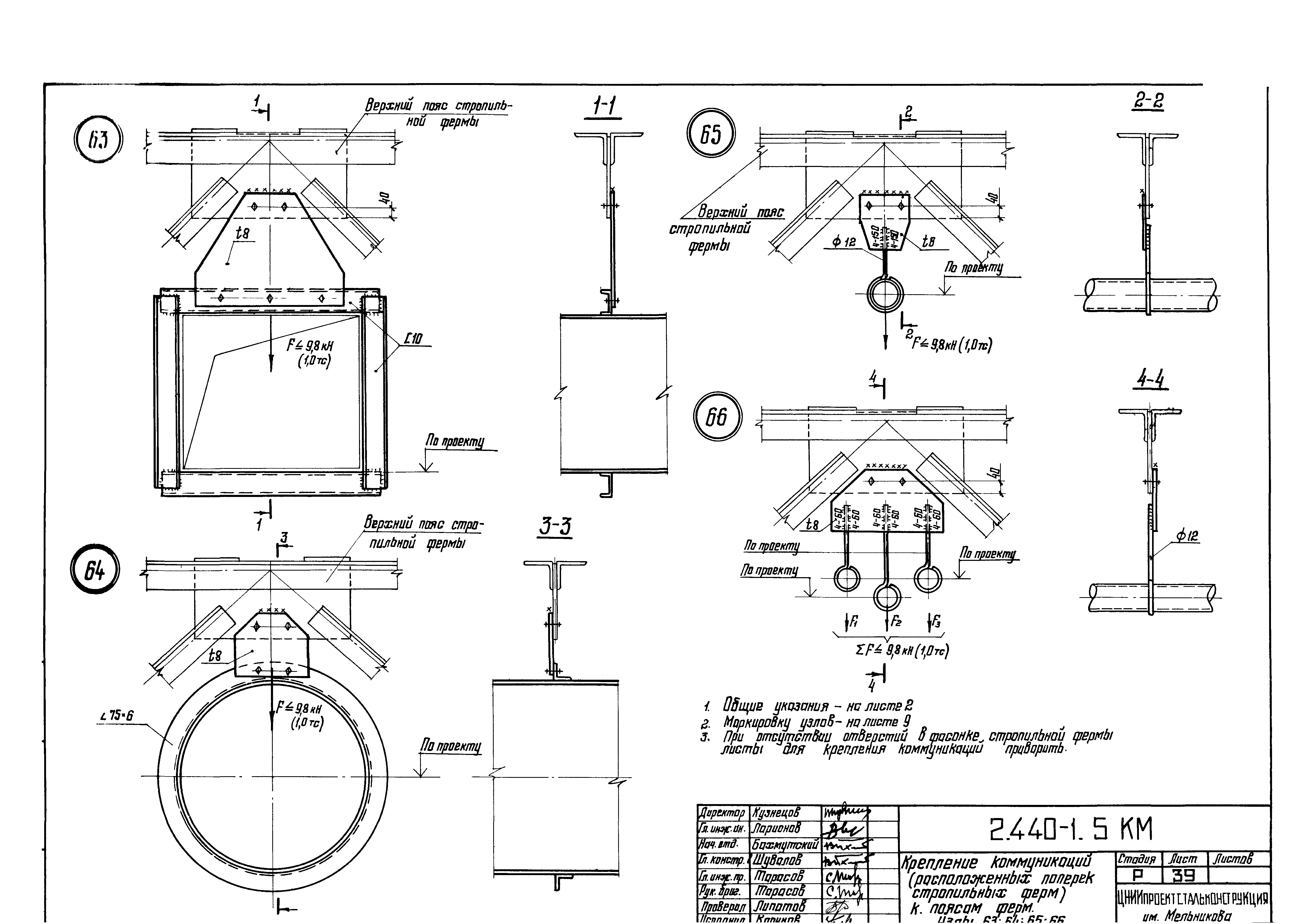
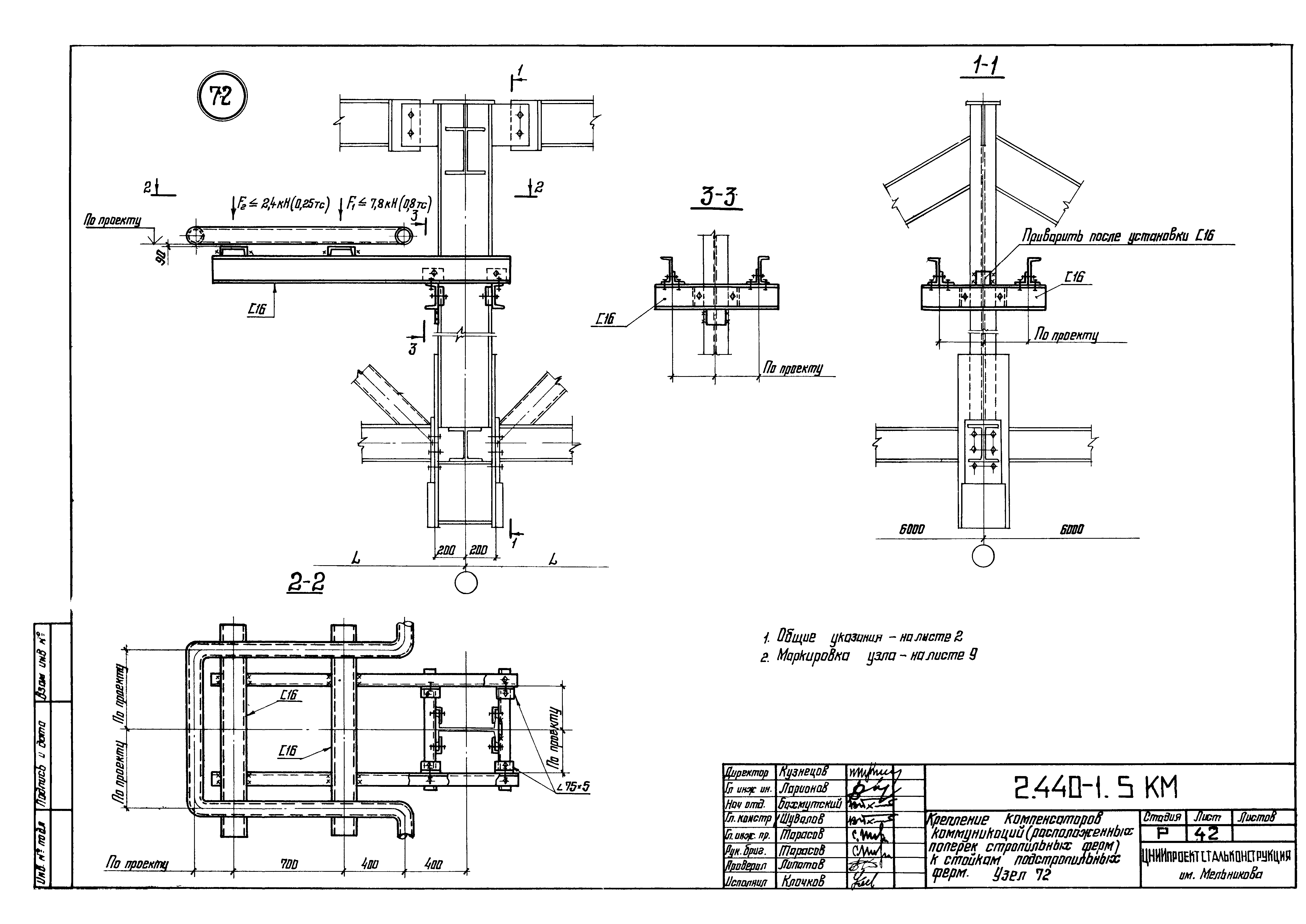
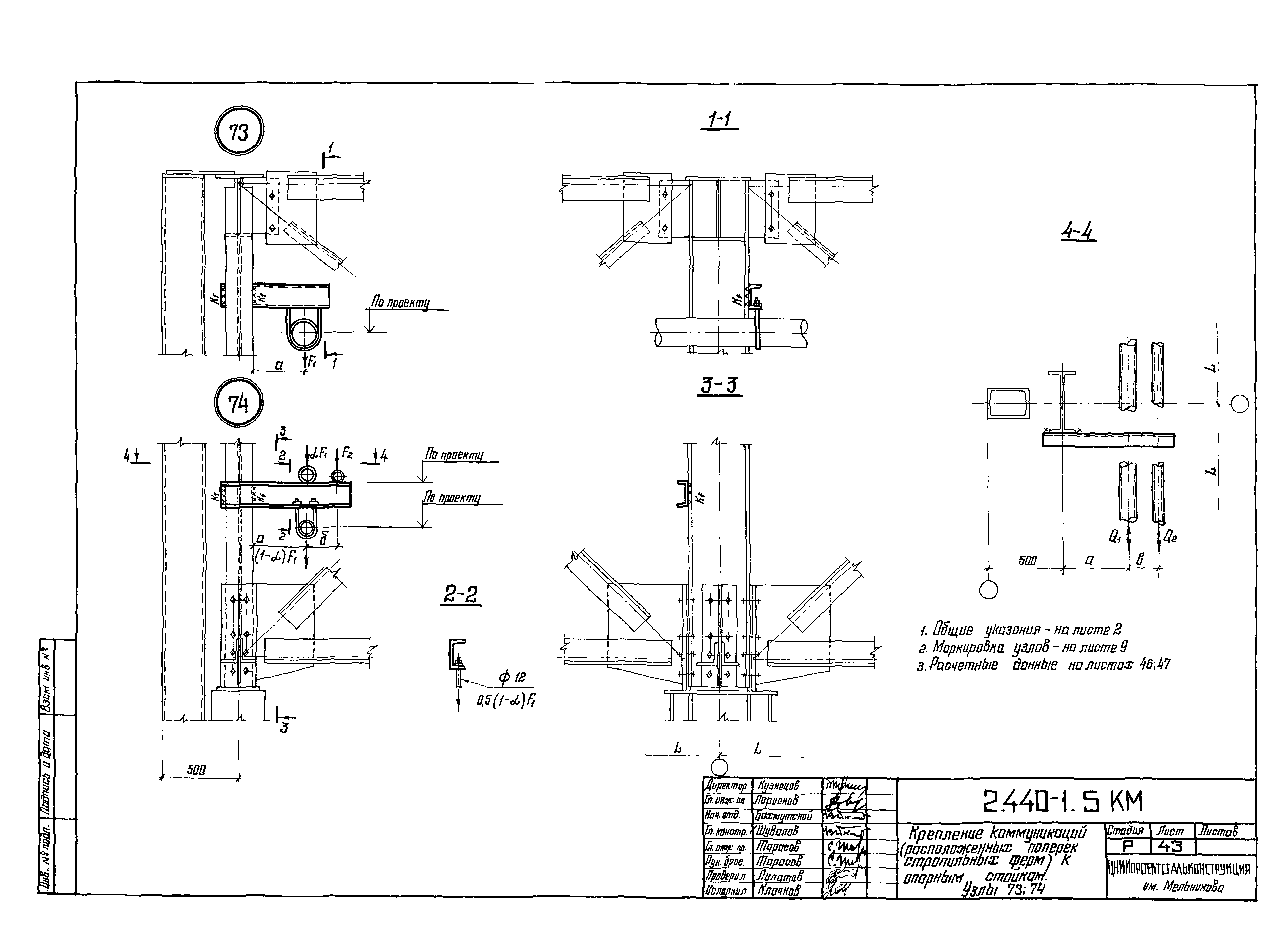
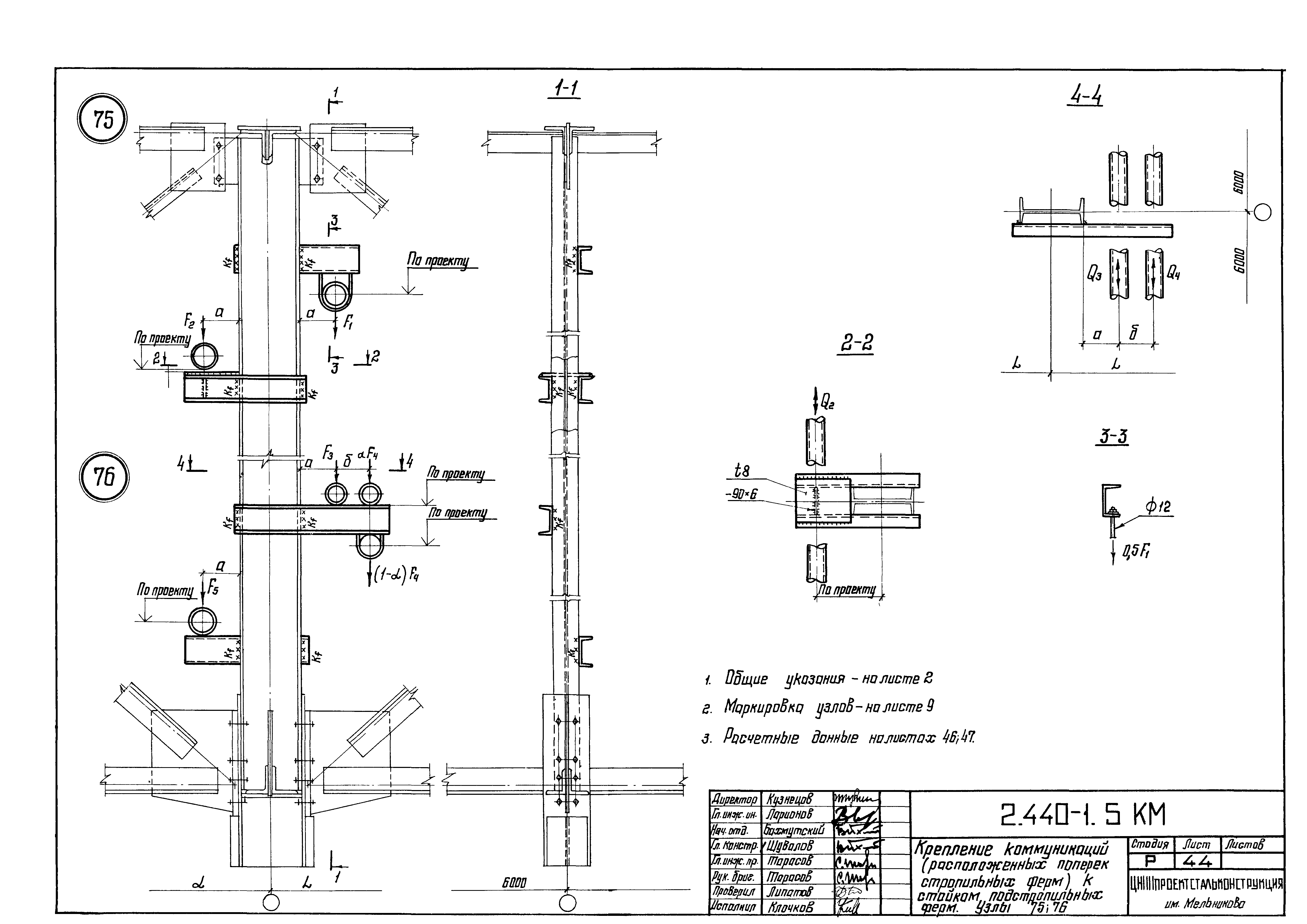
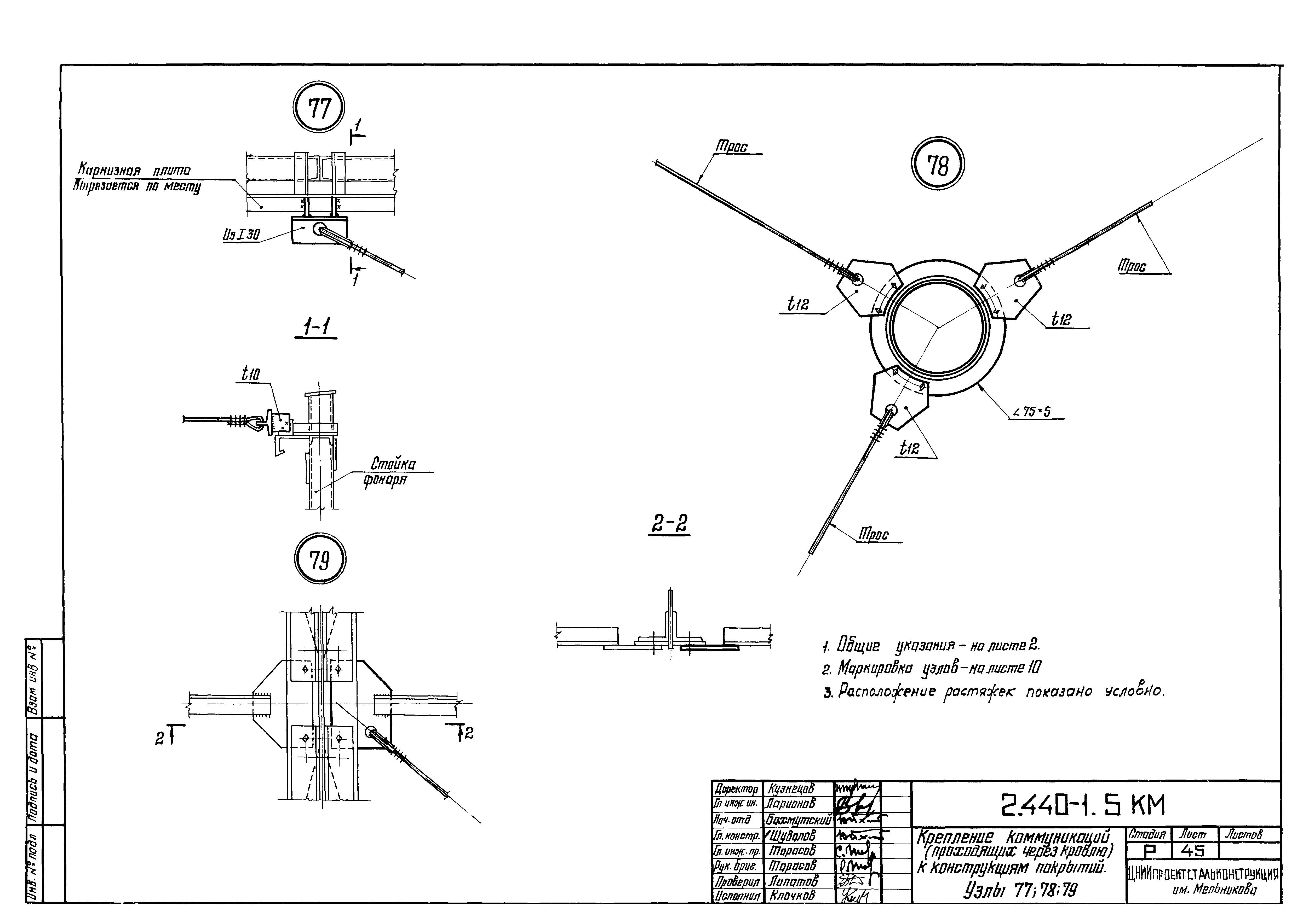
| Оглавление: | 2.440-1.5 КМ л.1.1; 1.2 Пояснительная записка 2.440-1.5 КМ л.2 Общие указания 2.440-1.5 КМ л.3 Маркировка узлов креплений коммуникаций по колоннам крайнего ряда 2.440-1.5 КМ л.4 Маркировка узлов креплений коммуникаций по колоннам крайнего и среднего ряда 2.440-1.5 КМ л.5 Маркировка узлов креплений коммуникаций по колоннам. Разрезы 1-1; 2-2; 3-3 2.440-1.5 КМ л.6 Маркировка узлов креплений коммуникаций по колоннам и стойкам фахверка 2.440-1.5 КМ л.7 Маркировка узлов креплений коммуникаций по подкрановым балкам крайнего и среднего ряда 2.440-1.5 КМ л.8 Маркировка узлов креплений коммуникаций, (расположенных вдоль стропильных ферм) к конструкциям покрытий 2.440-1.5 КМ л.9 Маркировка узлов креплений коммуникаций, (расположенных поперек стропильных ферм) к конструкциям покрытий 2.440-1.5 КМ л.10 Маркировка узлов креплений коммуникаций, проходящих через кровлю 2.440-1.5 КМ л.11 Крепление коммуникаций к колоннам. Узлы 1; 2; 3; 4; 5 2.440-1.5 КМ л.12 Крепление коммуникаций к колоннам. Узлы 6; 7; 8 2.440-1.5 КМ л.13 Крепление коммуникаций к колоннам. Узлы 9; 10 2.440-1.5 КМ л.14 Крепление коммуникаций к колоннам. Узлы 11; 12 2.440-1.5 КМ л.15 Крепление коммуникаций к колоннам. Узлы 13; 14 2.440-1.5 КМ л.16 Крепление коммуникаций к колоннам. Узел 15 2.440-1.5 КМ л.17 Крепление коммуникаций к колоннам. Узел 16 2.440-1.5 КМ л.18 Крепление коммуникаций к колоннам. Узел 17 2.440-1.5 КМ л.19 Крепление коммуникаций к колоннам. Узлы 18; 19 2.440-1.5 КМ л.20 Крепление коммуникаций к подкрановым балкам. Узлы 20; 21 2.440-1.5 КМ л.21 Крепление коммуникаций к подкрановым балкам. Узлы 22; 23 2.440-1.5 КМ л.22 Крепление коммуникаций к подкрановым балкам. Узлы 24; 25 2.440-1.5 КМ л.23 Крепление коммуникаций к подкрановым балкам. Узлы 26; 27 2.440-1.5 КМ л.24 Крепление коммуникаций к подкрановым балкам. Узлы 28; 29; 30 2.440-1.5 КМ л.25 Крепление коммуникаций к подкрановым балкам. Узлы 31; 32 2.440-1.5 КМ л.26 Крепление коммуникаций к подкрановым балкам. Узел 33 2.440-1.5 КМ л.27 Крепление коммуникаций к стойкам фахверка. Узлы 34; 35 2.440-1.5 КМ л.28 Крепление коммуникаций к стойкам фахверка. Узлы 36; 37; 38; 39; 40 2.440-1.5 КМ л.29 Крепление коммуникаций к стойкам фахверка. Узлы 41; 42; 43; 44 2.440-1.5 КМ л.30 Крепление коммуникаций (расположенных вдоль стропильных ферм) к вспомогательным балкам. Узлы 45; 46 2.440-1.5 КМ л.31 Крепление коммуникаций (расположенных вдоль стропильных ферм) к вспомогательным балкам. Узлы 47; 48 2.440-1.5 КМ л.32 Крепление коммуникаций (расположенных вдоль стропильных ферм) к прогонам. Узлы 49; 50 2.440-1.5 КМ л.33 Крепление коммуникаций (расположенных вдоль стропильных ферм) к вспомогательным балкам и распоркам. Узлы 51; 52 2.440-1.5 КМ л.34 Крепление коммуникаций (расположенных вдоль стропильных ферм) к верхним поясам ферм. Узлы 53; 54 2.440-1.5 КМ л.35 Крепление коммуникаций (расположенных вдоль стропильных ферм) к стойкам ферм. Узлы 55; 56 2.440-1.5 КМ л.36 Крепление компенсаторов коммуникаций (расположенных вдоль стропильных ферм) к стойкам подстропильных ферм. Узел 57 2.440-1.5 КМ л.37 Крепление коммуникаций (расположенных поперек стропильных ферм) к поясам ферм. Узлы 58; 59 2.440-1.5 КМ л.38 Крепление коммуникаций (расположенных поперек стропильных ферм) к поясам ферм. Узлы 60; 61; 62 2.440-1.5 КМ л.39 Крепление коммуникаций (расположенных поперек стропильных ферм) к поясам ферм. Узлы 63; 64; 65; 66 2.440-1.5 КМ л.40 Крепление коммуникаций (расположенных поперек стропильных ферм) к опорным стойкам. Узлы 67; 68 2.440-1.5 КМ л.41 Крепление коммуникаций (расположенных поперек стропильных ферм) к опорным стойкам. Узлы 69; 70; 71 2.440-1.5 КМ л.42 Крепление компенсаторов коммуникаций (расположенных вдоль стропильных ферм) к стойкам подстропильных ферм. Узел 72 2.440-1.5 КМ л.43 Крепление коммуникаций (расположенных поперек стропильных ферм) к опорным стойкам. Узлы 73; 74 2.440-1.5 КМ л.44 Крепление коммуникаций (расположенных поперек стропильных ферм) к стойкам подстропильных ферм. Узлы 75; 76 2.440-1.5 КМ л.45 Крепление коммуникаций (проходящих через кровлю) к конструкциям покрытий. Узлы 77; 78; 79 2.440-1.5 КМ л.46 Расчетные данные к узлам креплений коммуникаций 1-5 и 67-76 (схемы №I-III) 2.440-1.5 КМ л.47 Расчетные данные к узлам креплений коммуникаций 1-5 и 67-76 (схемы №IV-V) |
| Разработан: | ЦНИИпроектстальконструкция |
| Утверждён: | 30.03.1984 Госстрой России (Russian Federation Gosstroy 36) |
| Издан: | ЦИТП Госстроя СССР (CITP, Gosstroy (USSR) 1984 г. ) |




















































