Скачать Серия 3.501.2-123 Выпуск 3. Железобетонные конструкцииДата актуализации: 01.01.2021
|
| Обозначение: | Серия 3.501.2-123 |
| Обозначение англ: | Series 3.501.2-123 |
| Статус: | отменен |
| Название рус.: | Выпуск 3. Железобетонные конструкции |
| Дата добавления в базу: | 01.09.2013 |
| Дата актуализации: | 01.01.2021 |
| Дата введения: | 01.01.1981 |
| Дата окончания срока действия: | 01.04.1989 |
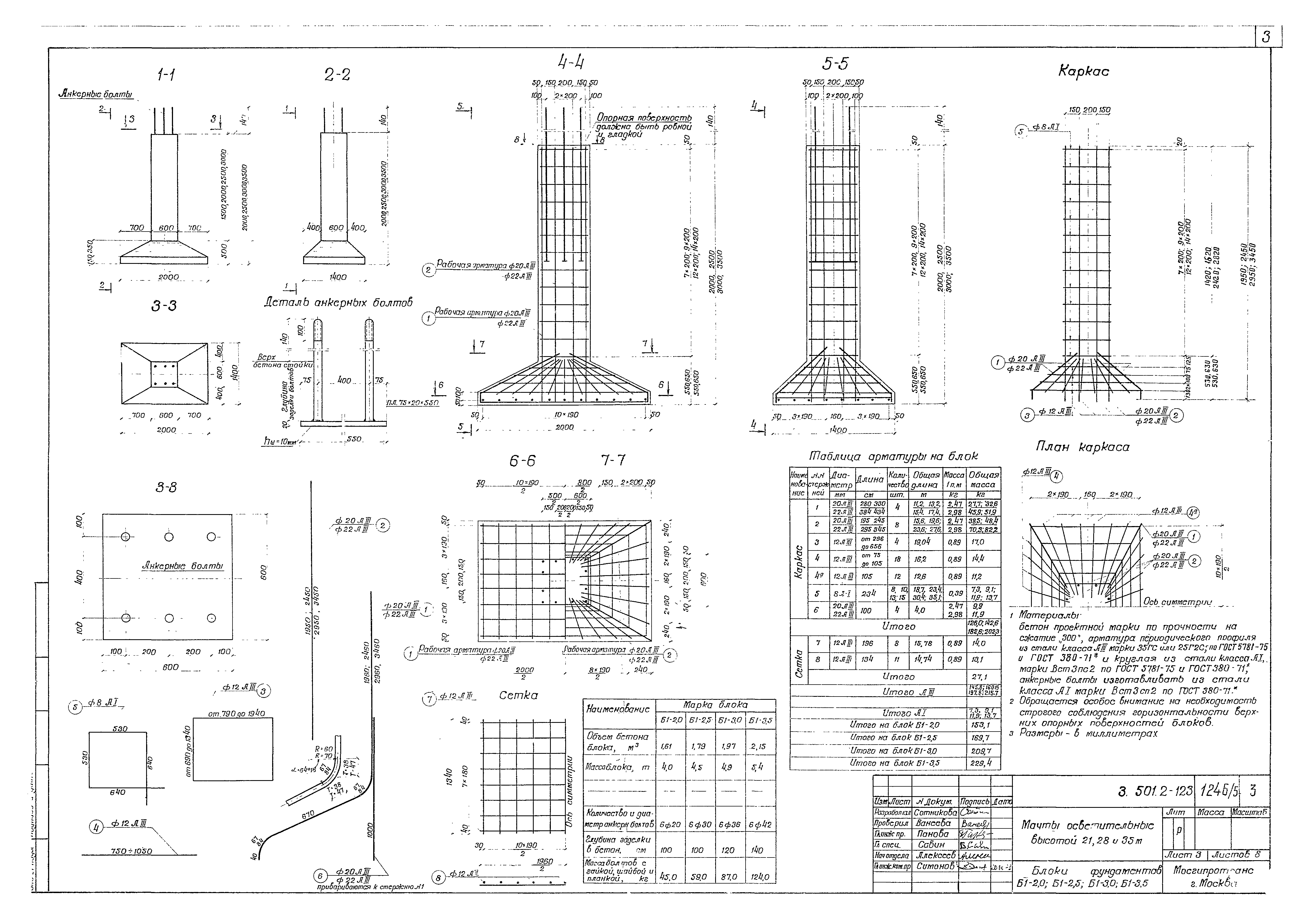
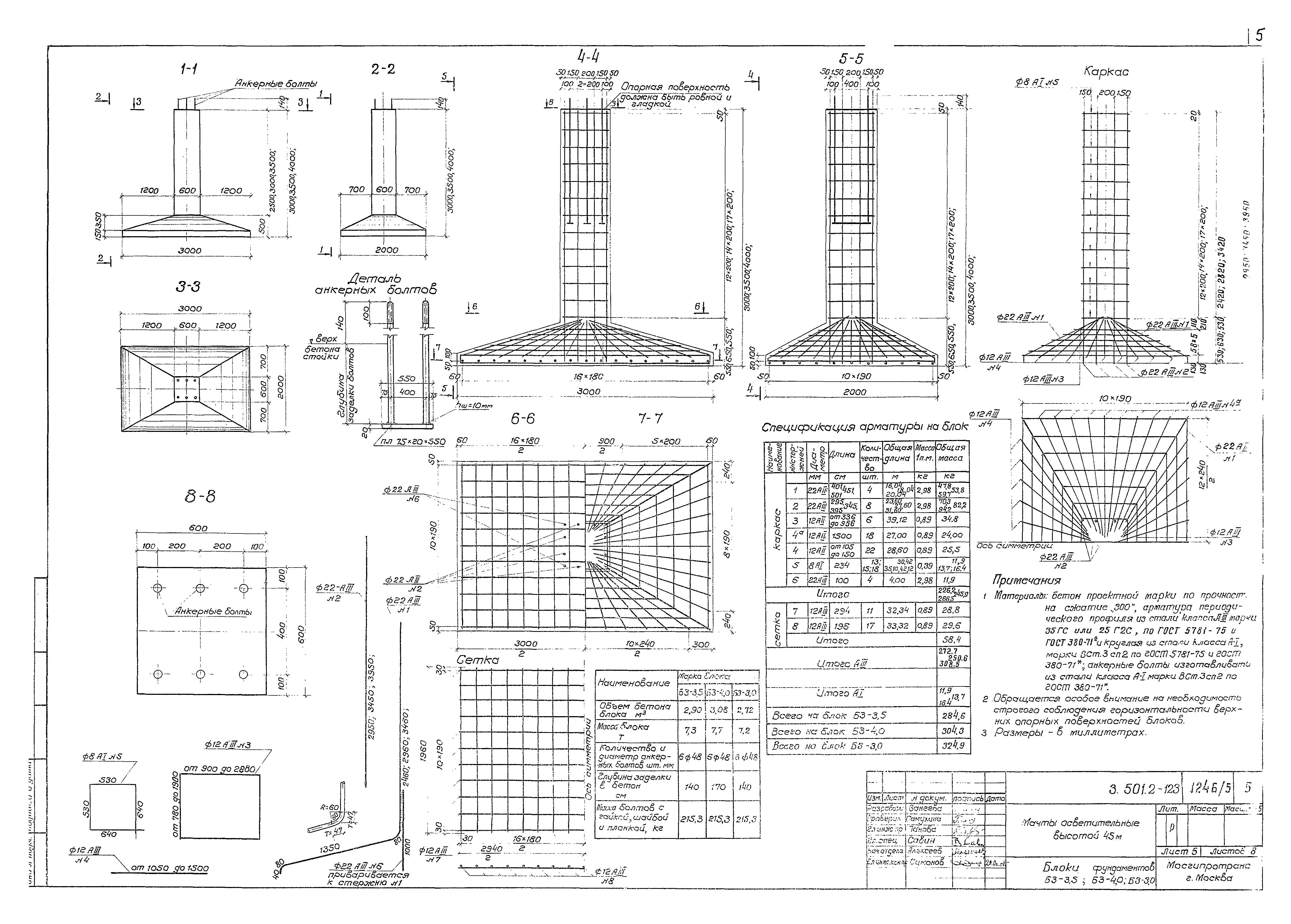
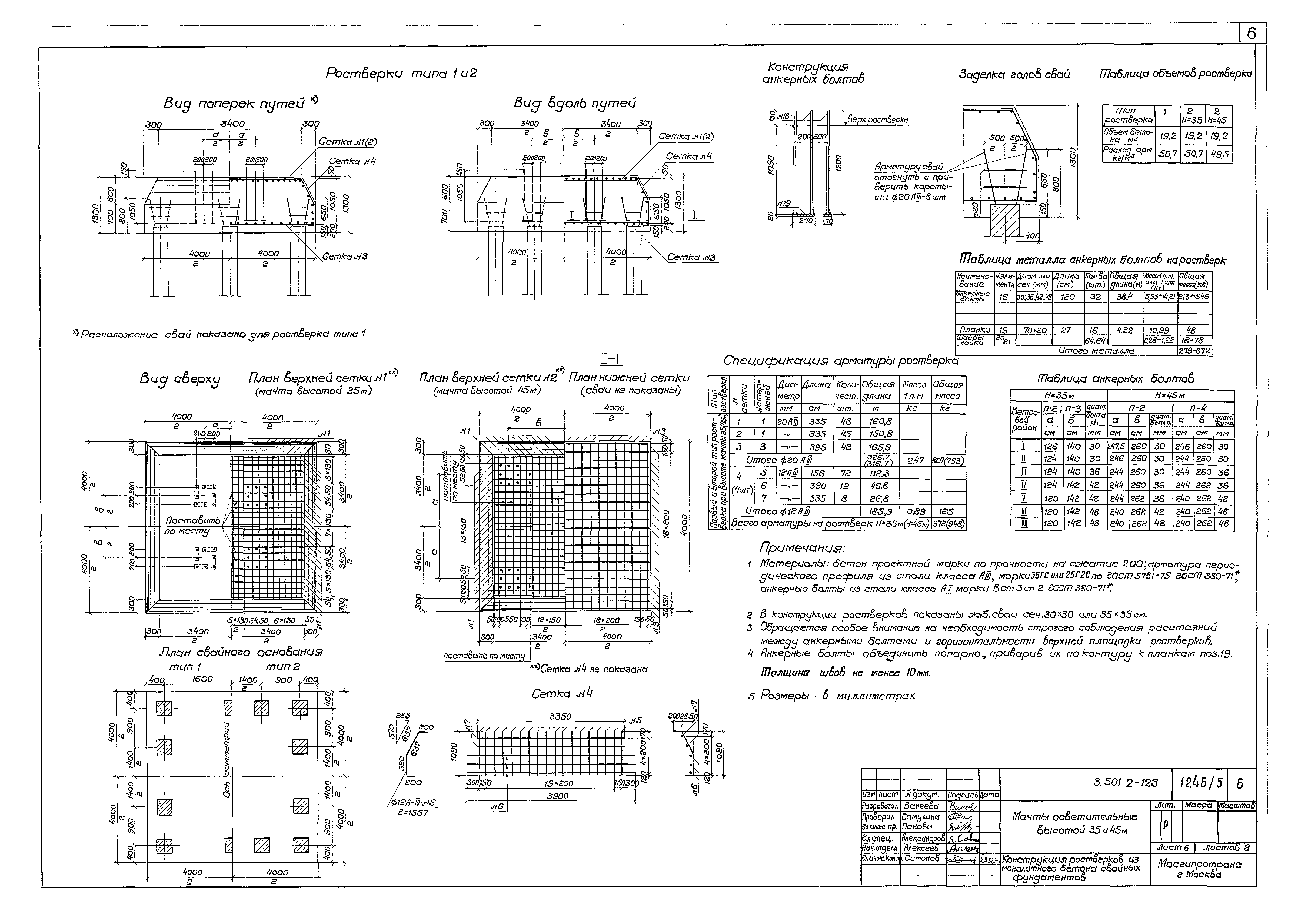
| Оглавление: | 3.501.2-123 1 Титульный лист 3.501.2-123 2 Перечень чертежей и пояснительная записка 3.501.2-123 3 Мачты осветительные высотой 21,28 и 35м. Блоки фундаментов Б1-2;Б1-2,5;Б1-3,0;Б1-3,5 3.501.2-123 4 Мачты осветительные высотой 45м. Блоки фундаментов Б2-2,5;Б2-3,0 3.501.2-123 5 Мачты осветительные высотой 45м. Блоки фундаментов Б3-3,0;Б3-3,5;Б3-4,0 3.501.2-123 6 Мачты осветительные высотой 35 и 45м. Конструкция ростверков из монолитного бетона свайных фундаментов 3.501.2-123 7 Мачты осветительные высотой 45м. Конструкция ростверков из монолитного бетона свайных фундаментов 3.501.2-123 8 Мачты осветительные высотой 21,28,35 и 45м. Нижние плиты фундаментов ПН-1,ПН-2,ПН-3 |
| Разработан: | Мосгипротранс |
| Утверждён: | 18.09.1979 МПС (Ministry of Railroads П-30817) |







