Скачать Шифр М25.1/96/96с Усиление теплозащиты стен и покрытий эксплуатируемых зданий. Материалы для проектирования

Дата актуализации: 01.01.2021

Шифр М25.1/96/96с

Усиление теплозащиты стен и покрытий эксплуатируемых зданий. Материалы для проектирования

Обозначение: Шифр М25.1/96/96с
Обозначение англ: М25.1/96/96с
Статус:не определен законодательством
Название рус.:Усиление теплозащиты стен и покрытий эксплуатируемых зданий. Материалы для проектирования
Дата добавления в базу:01.09.2013
Дата актуализации:01.01.2021
Дата введения:11.04.1997
Дата окончания срока действия:30.06.2003
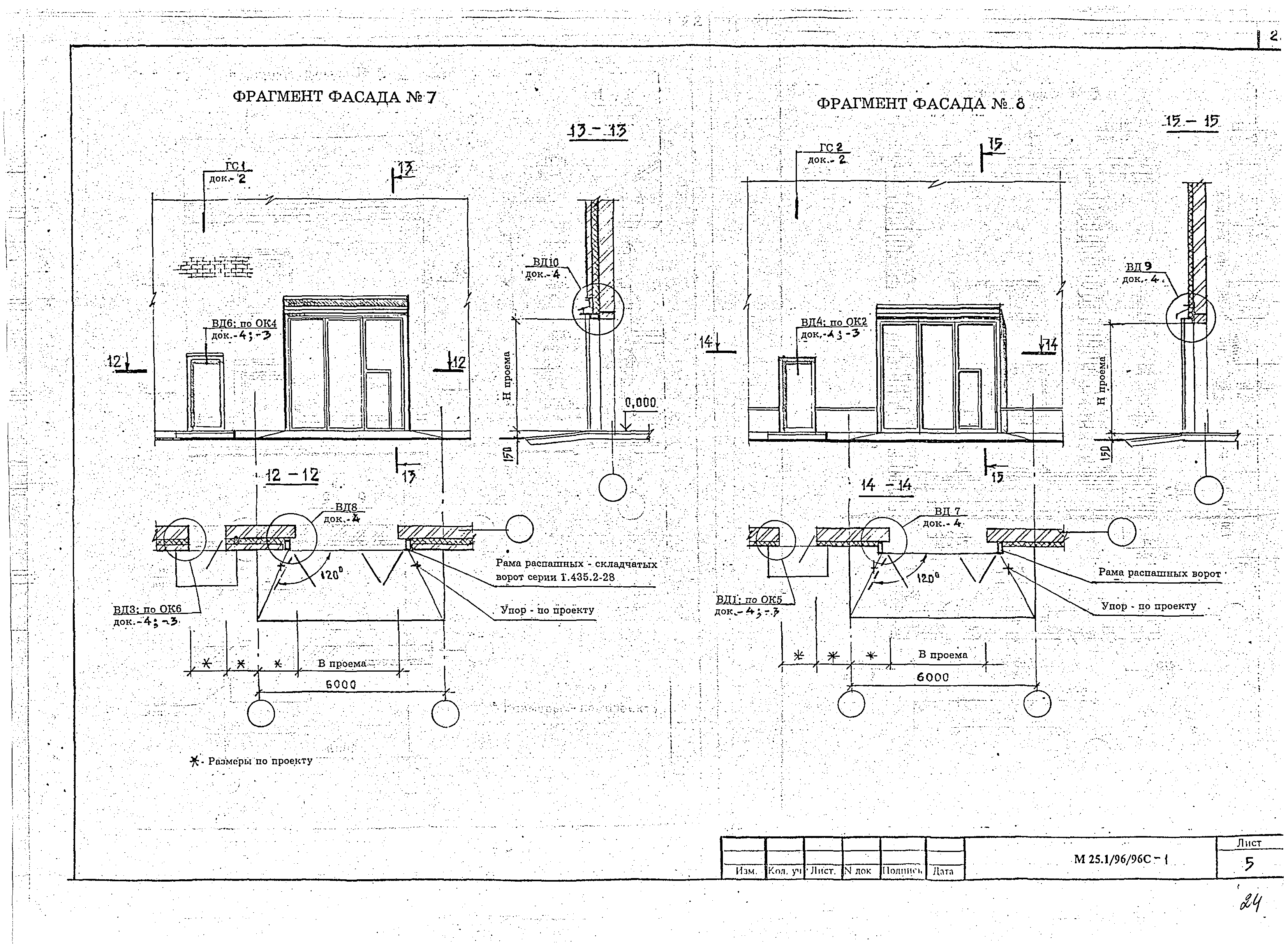
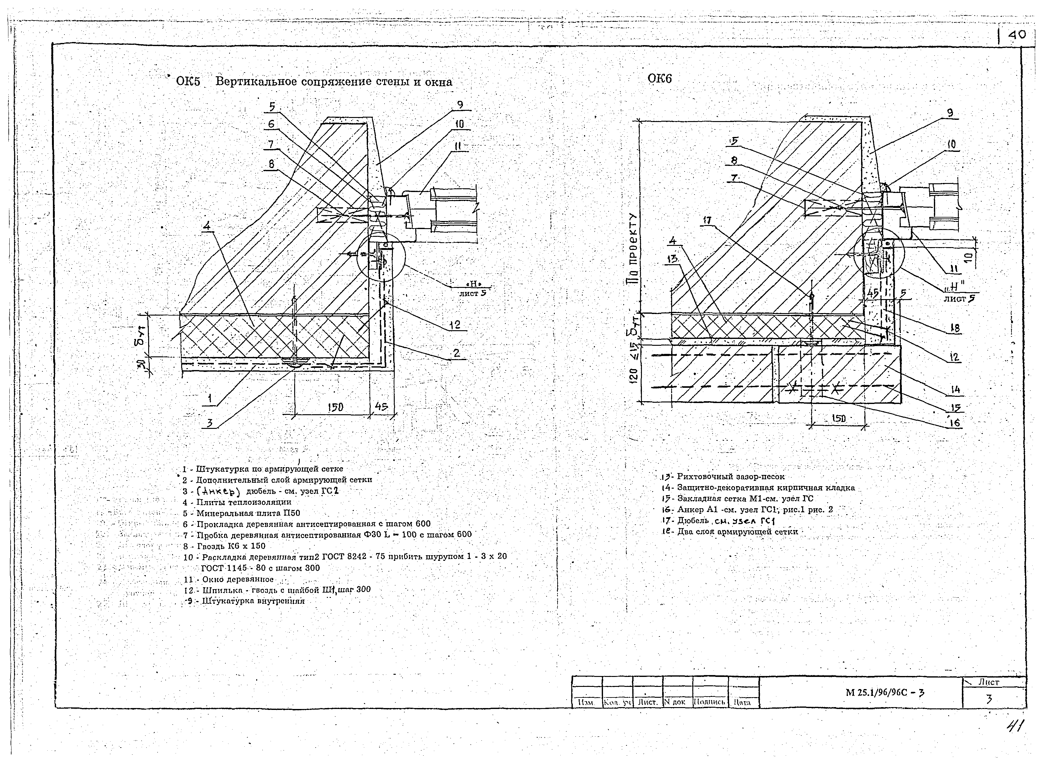
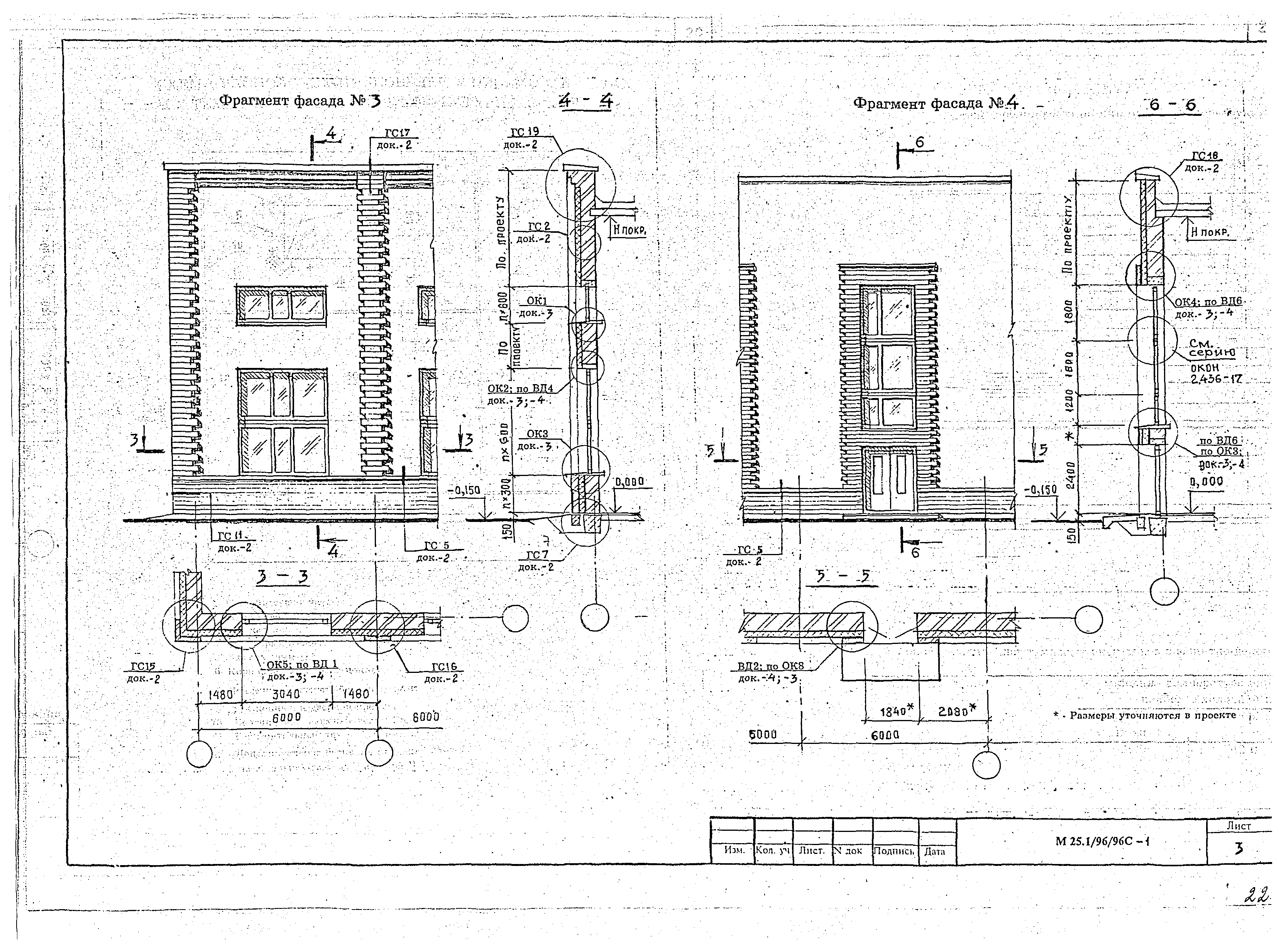
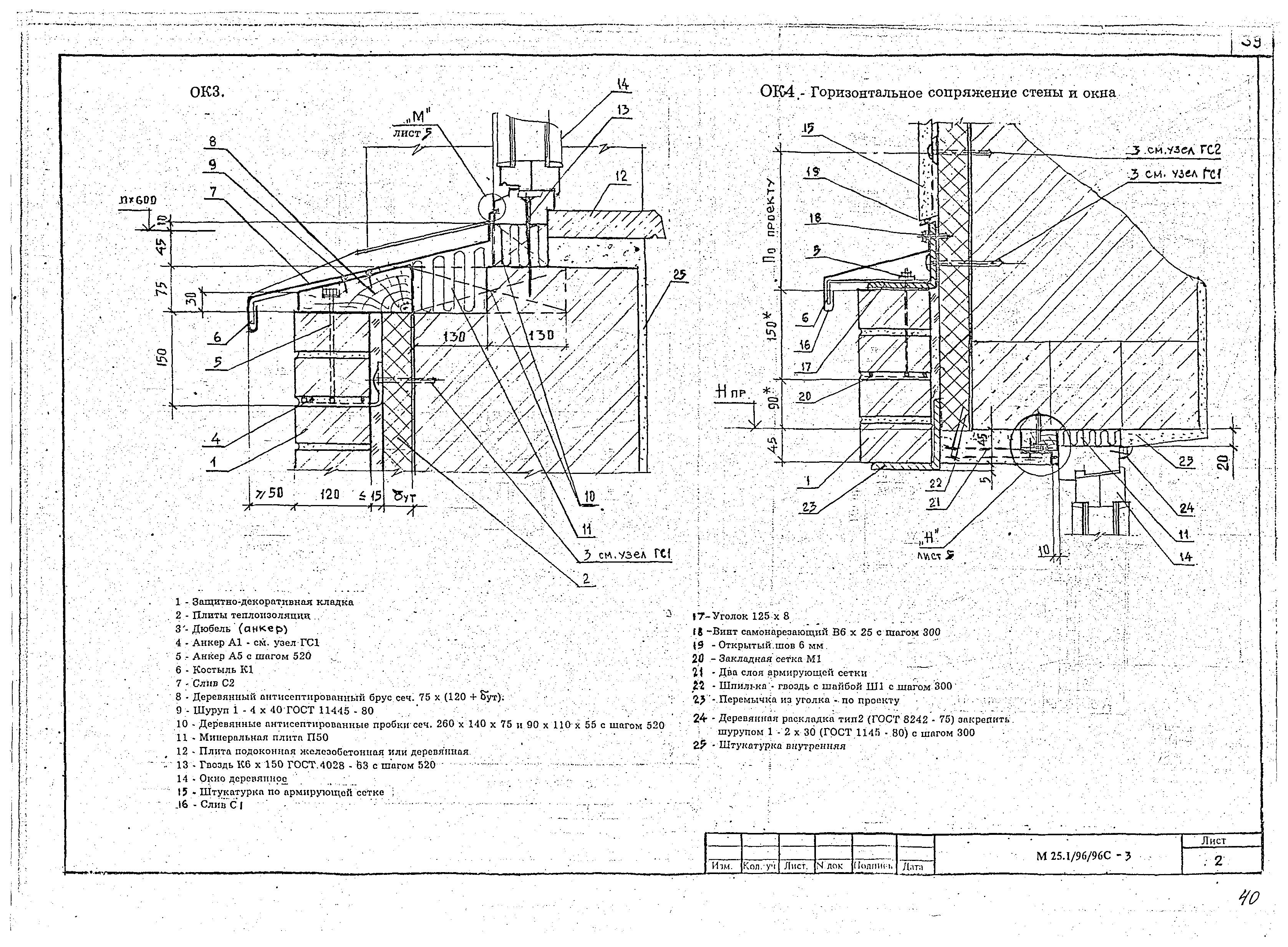
Область применения:Альбом содержит материалы для проектирования и рабочие чертежи узлов и деталей усиления теплозащиты стен и покрытий зданий различного назначения, включая жилые, общественные, административно-бытовые и производственные, с теплоизоляцией из минераловатных плит или пенополистирола.
Разработан: ЦНИИпромзданий
Утверждён:11.04.1997 ЦНИИпромзданий (TsNIIpromzdaniy )
Издан: ЦНИИпромзданий (1997 г. )
Нормативные ссылки:
Шифр М25.1/96/96сШифр М25.1/96/96сШифр М25.1/96/96сШифр М25.1/96/96сШифр М25.1/96/96сШифр М25.1/96/96сШифр М25.1/96/96сШифр М25.1/96/96сШифр М25.1/96/96сШифр М25.1/96/96сШифр М25.1/96/96сШифр М25.1/96/96сШифр М25.1/96/96сШифр М25.1/96/96сШифр М25.1/96/96сШифр М25.1/96/96сШифр М25.1/96/96сШифр М25.1/96/96сШифр М25.1/96/96сШифр М25.1/96/96сШифр М25.1/96/96сШифр М25.1/96/96сШифр М25.1/96/96сШифр М25.1/96/96сШифр М25.1/96/96сШифр М25.1/96/96сШифр М25.1/96/96сШифр М25.1/96/96сШифр М25.1/96/96сШифр М25.1/96/96сШифр М25.1/96/96сШифр М25.1/96/96сШифр М25.1/96/96сШифр М25.1/96/96сШифр М25.1/96/96сШифр М25.1/96/96сШифр М25.1/96/96сШифр М25.1/96/96сШифр М25.1/96/96сШифр М25.1/96/96сШифр М25.1/96/96сШифр М25.1/96/96сШифр М25.1/96/96сШифр М25.1/96/96сШифр М25.1/96/96сШифр М25.1/96/96сШифр М25.1/96/96сШифр М25.1/96/96сШифр М25.1/96/96сШифр М25.1/96/96сШифр М25.1/96/96сШифр М25.1/96/96сШифр М25.1/96/96сШифр М25.1/96/96сШифр М25.1/96/96сШифр М25.1/96/96сШифр М25.1/96/96с