Скачать Типовой проект 902-1-133.88 Альбом 2. Нестандартизированное оборудованиеДата актуализации: 01.01.2021
|
| Обозначение: | Типовой проект 902-1-133.88 |
| Обозначение англ: | 902-1-133.88 |
| Статус: | не определен законодательством |
| Название рус.: | Альбом 2. Нестандартизированное оборудование |
| Дата добавления в базу: | 01.09.2013 |
| Дата актуализации: | 01.01.2021 |
| Дата введения: | 11.03.1988 |
| Дата окончания срока действия: | 30.06.2003 |
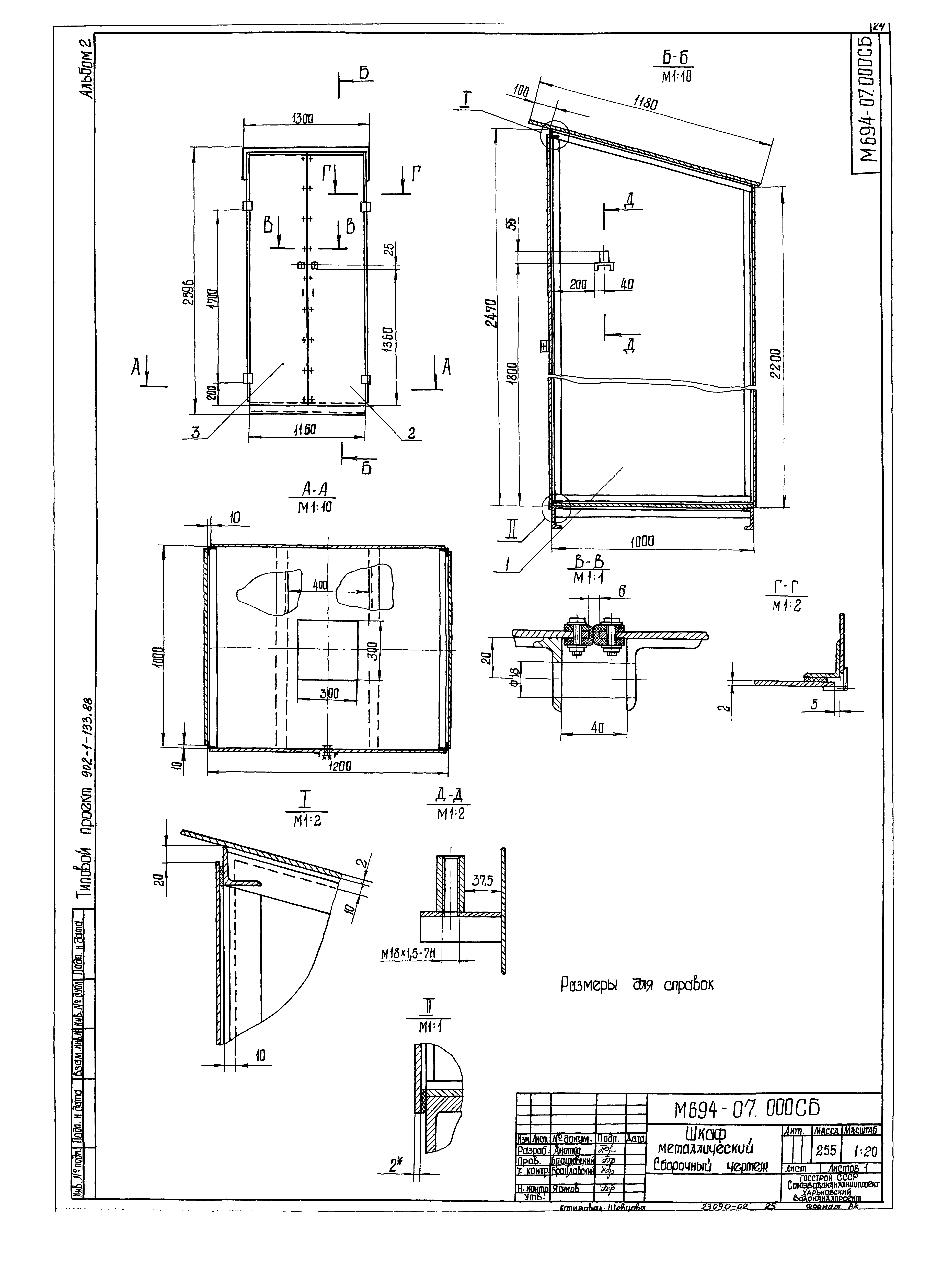
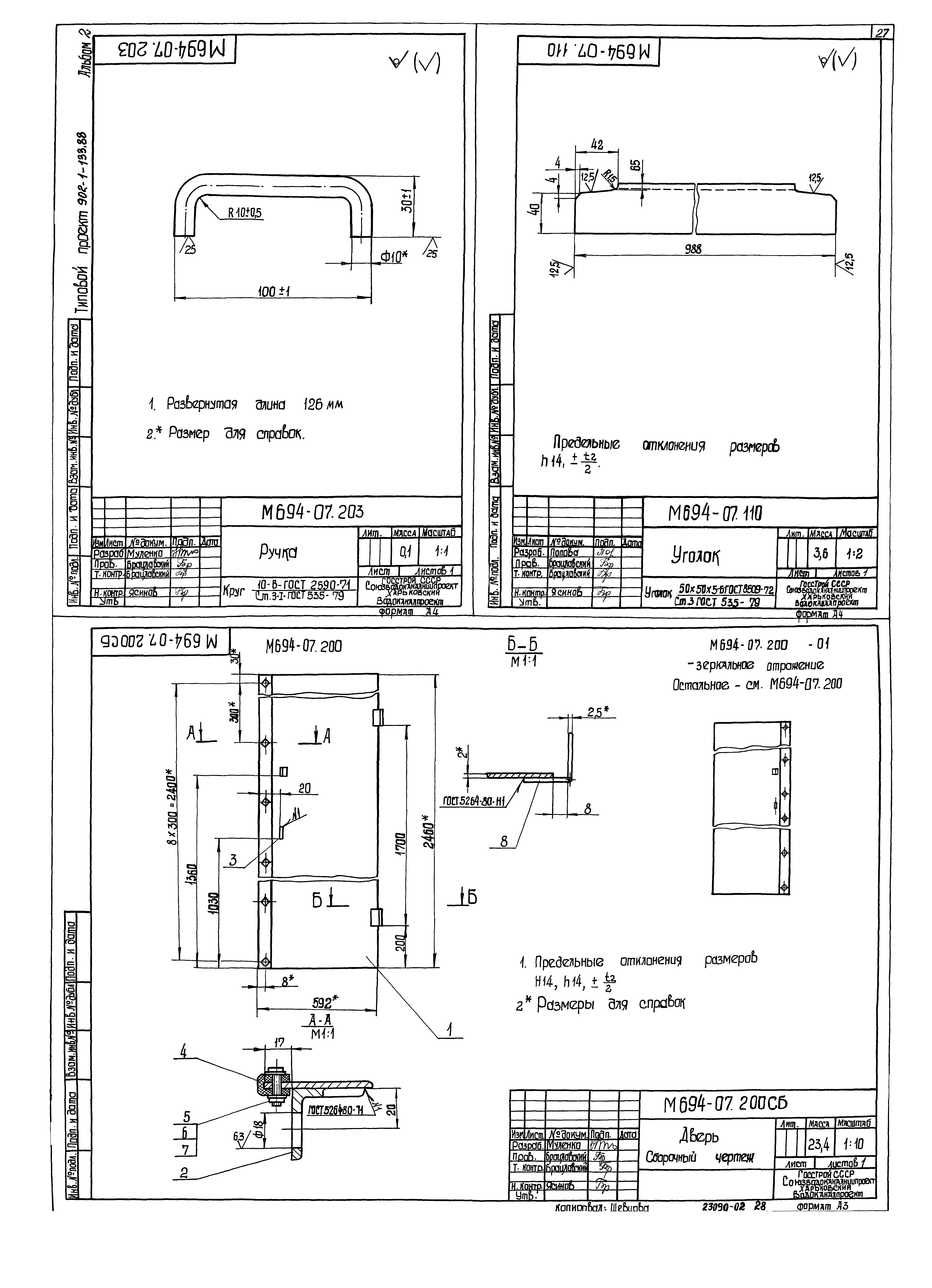
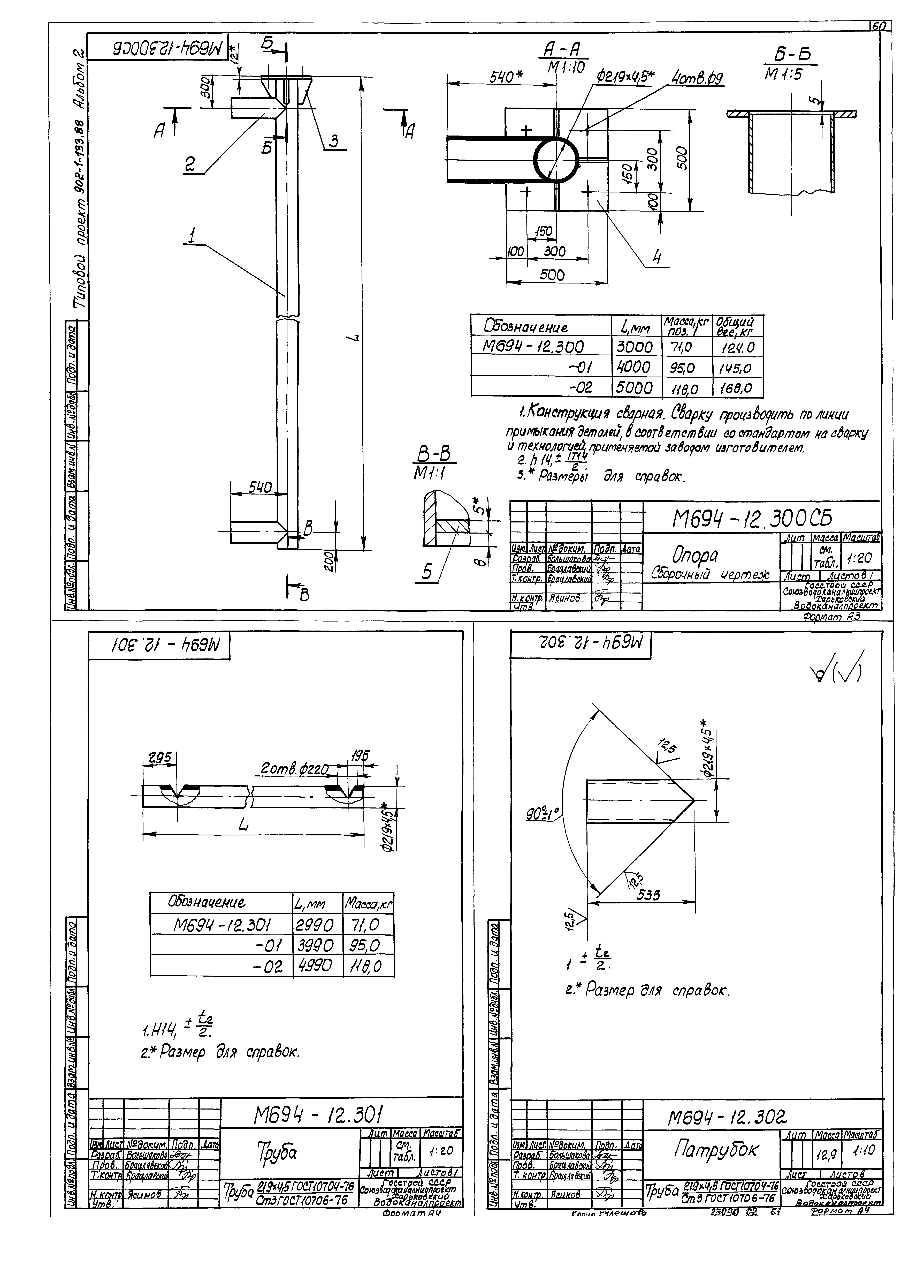
| Оглавление: | Содержание альбома ТП 902-1-133.88 М694-01.000 Решетка-заслонка ТП 902-1-133.88 М694-01.100 Решетка ТП 902-1-133.88 М694-03.000 Запор ТП 902-1-133.88 М694-01.000 СБ Решетка-заслонка. Сборочный чертеж ТП 902-1-133.88 М694-01.101 Упор ТП 902-1-133.88 М694-01.102 Уголок ТП 902-1-133.88 М694-01.100 СБ Решетка. Сборочный чертеж ТП 902-1-133.88 М694-01.103 Пластина ТП 902-1-133.88 М694-01.002 Направляющая ТП 902-1-133.88 М694-01.001 Пластина ТП 902-1-133.88 М694-01.003 Заслонка ТП 902-1-133.88 М694-01.005 Ось ТП 902-1-133.88 М694-01.004 Прокладка ТП 902-1-133.88 М694-02.000 Контейнер решетчатый ТП 902-1-133.88 М694-02.102 Рамка ТП 902-1-133.88 М694-02.000 СБ Контейнер решетчатый. Сборочный чертеж ТП 902-1-133.88 М694-02.400 Ручка ТП 902-1-133.88 М694-02.200 Створка левая ТП 902-1-133.88 М694-012.003 Створка правая ТП 902-1-133.88 М694-02.100 Корпус ТП 902-1-133.88 М694-02.100 СБ Корпус. Сборочный чертеж ТП 902-1-133.88 М694-02.001 Ось ТП 902-1-133.88 М694-02.300 СБ Створка правая. Сборочный чертеж ТП 902-1-133.88 М694-02.106 Щиток ТП 902-1-133.88 М694-02.201 Створка ТП 902-1-133.88 М694-02.302 Платик ТП 902-1-133.88 М694-02.200 СБ Створка левая. Сборочный чертеж ТП 902-1-133.88 М694-02.101 Скоба ТП 902-1-133.88 М694-02.202 Петля ТП 902-1-133.88 М694-02.400 СБ Ручка. Сборочный чертеж ТП 902-1-133.88 М694-02.301 Петля ТП 902-1-133.88 М694-03.002 Петля ТП 902-1-133.88 М694-03.003 Рукоятка ТП 902-1-133.88 М694-03.000 СБ Запор. Сборочный чертеж ТП 902-1-133.88 М694-04.000 Контейнер герметический ТП 902-1-133.88 М694-04.100 Корпус ТП 902-1-133.88 М694-04.200 Крышка ТП 902-1-133.88 М694-04.200 СБ Крышка. Сборочный чертеж ТП 902-1-133.88 М694-04.000 СБ Контейнер герметический. Сборочный чертеж ТП 902-1-133.88 М694-04.100 СБ Корпус. Сборочный чертеж ТП 902-1-133.88 М694-04.101 Цилиндр ТП 902-1-133.88 М694-04.102 Скоба ТП 902-1-133.88 М694-04.201 Ручка ТП 902-1-133.88 М694-04.202 Обечайка ТП 902-1-133.88 М694-05.001 Колесо ТП 902-1-133.88 М694-05.002 Ось ТП 902-1-133.88 М694-05.003 Крючок ТП 902-1-133.88 М694-05.000 Блок ТП 902-1-133.88 М694-05.000 СБ Блок. Сборочный чертеж ТП 902-1-133.88 М694-05.102 Уголок ТП 902-1-133.88 М694-05.101 Скоба ТП 902-1-133.88 М694-05.100 СБ Кронштейн. Сборочный чертеж ТП 902-1-133.88 М694-07.000 Шкаф металлический ТП 902-1-133.88 М694-05.100 Кронштейн ТП 902-1-133.88 М694-06.000 Короб ТП 902-1-133.88 М694-06.100 Корыто ТП 902-1-133.88 М694-06.101 Лоток ТП 902-1-133.88 М694-06.100 СБ Корыто. Сборочный чертеж ТП 902-1-133.88 М694-06.000 СБ Короб. Сборочный чертеж ТП 902-1-133.88 М694-07.000 СБ Шкаф металлический. Сборочный чертеж ТП 902-1-133.88 М694-07.100 Корпус ТП 902-1-133.88 М694-07.200 Дверь ТП 902-1-133.88 М694-07.100 СБ Корпус. Сборочный чертеж ТП 902-1-133.88 М694-07.203 Ручка ТП 902-1-133.88 М694-07.110 Уголок ТП 902-1-133.88 М694-07.200 СБ Дверь. Сборочный чертеж ТП 902-1-133.88 М694-07.101 Боковина ТП 902-1-133.88 М694-07.107 Уголок ТП 902-1-133.88 М694-07.108 Уголок ТП 902-1-133.88 М694-07.105 Уголок ТП 902-1-133.88 М694-07.112 Уголок ТП 902-1-133.88 М694-07.201 Створка ТП 902-1-133.88 М694-07.204 Прокладка ТП 902-1-133.88 М694-06.102 Крышка ТП 902-1-133.88 М694-09.120 Люк ТП 902-1-133.88 М694-09.100 Крышка левая ТП 902-1-133.88 М694-09.200 Крышка правая ТП 902-1-133.88 М694-09.110 Рама ТП 902-1-133.88 М694-09.210 Рама ТП 902-1-133.88 М694-09.100 СБ Крышка левая. Сборочный чертеж ТП 902-1-133.88 М694-09.110 СБ Рама. Сборочный чертеж ТП 902-1-133.88 М694-09.200 СБ Крышка правая. Сборочный чертеж ТП 902-1-133.88 М694-09.210 СБ Рама. Сборочный чертеж ТП 902-1-133.88 М694-09.221 Петля ТП 902-1-133.88 М694-09.222 Лист ТП 902-1-133.88 М694-09.101 Прокладка ТП 902-1-133.88 М694-09.111 Крышка ТП 902-1-133.88 М694-09.112 Ручка ТП 902-1-133.88 М694-09.113 Дуга ТП 902-1-133.88 М694-09.114 Стяжка ТП 902-1-133.88 М694-09.120 СБ Люк. Сборочный чертеж ТП 902-1-133.88 М694-09.218 Пластина ТП 902-1-133.88 М694-09.122 Крюк ТП 902-1-133.88 М694-09.211 Крышка ТП 902-1-133.88 М694-09.212 Переходник ТП 902-1-133.88 М694-10.000 Стрела ТП 902-1-133.88 М694-10.000 СБ Стрела. Сборочный чертеж ТП 902-1-133.88 М694-10.002 Втулка ТП 902-1-133.88 М694-10.003 Вкладыш ТП 902-1-133.88 М694-10.001 Пята ТП 902-1-133.88 М694-10.004 Цапфа ТП 902-1-133.88 М694-10.005 Кронштейн ТП 902-1-133.88 М694-10.006 Ребро ТП 902-1-133.88 М694-10.007 Кожух ТП 902-1-133.88 М694-10.008 Уголок ТП 902-1-133.88 М694-10.009 Уголок ТП 902-1-133.88 М694-10.011 Уголок ТП 902-1-133.88 М694-10.021 Труба ТП 902-1-133.88 М694-10.017 Скоба ТП 902-1-133.88 М694-10.023 Втулка ТП 902-1-133.88 М694-10.022 Пята ТП 902-1-133.88 М694-14.000 Стойка ТП 902-1-133.88 М694-11.000 Труба ТП 902-1-133.88 М694-11.001 Конус ТП 902-1-133.88 М694-11.002 Патрубок ТП 902-1-133.88 М694-11.000 СБ Труба. Сборочный чертеж ТП 902-1-133.88 М694-11.003 Скоба ТП 902-1-133.88 М694-11.004 Ребро ТП 902-1-133.88 М694-11.005 Лист ТП 902-1-133.88 М694-11.008 Труба ТП 902-1-133.88 М694-12.000 Мачта ТП 902-1-133.88 М694-12.200 Ящик ТП 902-1-133.88 М694-12.100 Стойка ТП 902-1-133.88 М694-12.000 СБ Мачта. Сборочный чертеж ТП 902-1-133.88 М694-12.100 СБ Стойка. Сборочный чертеж ТП 902-1-133.88 М694-12.300 Опора ТП 902-1-133.88 М694-12.210 Корпус ТП 902-1-133.88 М694-12.220 Дверь ТП 902-1-133.88 М694-13.005 Скоба ТП 902-1-133.88 М694-12.220 СБ Дверь. Сборочный чертеж ТП 902-1-133.88 М694-12.200 СБ Ящик. Сборочный чертеж ТП 902-1-133.88 М694-12.111 Ребро ТП 902-1-133.88 М694-12.102 Ребро ТП 902-1-133.88 М694-12.104 Фланец ТП 902-1-133.88 М694-12.109 Ребро ТП 902-1-133.88 М694-12.105 Опора ТП 902-1-133.88 М694-12.107 Основание ТП 902-1-133.88 М694-12.201 Стержень ТП 902-1-133.88 М694-12.202 Шайба ТП 902-1-133.88 М694-12.217 Петля ТП 902-1-133.88 М694-12.101 Конус ТП 902-1-133.88 М694-12.108 Кронштейн ТП 902-1-133.88 М694-12.216 Петля ТП 902-1-133.88 М694-12.213 Дно ТП 902-1-133.88 М694-12.210 СБ Корпус. Сборочный чертеж ТП 902-1-133.88 М694-12.214 Скоба ТП 902-1-133.88 М694-12.215 Крюк ТП 902-1-133.88 М694-12.222 Скоба ТП 902-1-133.88 М694-12.223 Скоба ТП 902-1-133.88 М694-12.300 СБ Опора. Сборочный чертеж ТП 902-1-133.88 М694-12.301 Труба ТП 902-1-133.88 М694-12.302 Патрубок ТП 902-1-133.88 М694-12.001 Ребро ТП 902-1-133.88 М694-12.400 СБ Стойка. Сборочный чертеж ТП 902-1-133.88 М694-12.402 Дно ТП 902-1-133.88 М694-12.400 Стойка ТП 902-1-133.88 М694-13.001 Кронштейн ТП 902-1-133.88 М694-13.000 Держатель ТП 902-1-133.88 М694-13.000 СБ Держатель. Сборочный чертеж ТП 902-1-133.88 М694-14.001 Ребро ТП 902-1-133.88 М694-14.002 Направляющая ТП 902-1-133.88 М694-14.000 СБ Стойка. Сборочный чертеж ТП 902-1-133.88 М694-16.000 Кронштейн ТП 902-1-133.88 М694-17.000 Кронштейн ТП 902-1-133.88 М694-15.000 Ограничитель ТП 902-1-133.88 М694-13.003 Крюк ТП 902-1-133.88 М694-13.002 Швеллер ТП 902-1-133.88 М694-15.000 СБ Ограничитель. Сборочный чертеж ТП 902-1-133.88 М694-17.002 Ребро ТП 902-1-133.88 М694-17.003 Ребро ТП 902-1-133.88 М694-16.000 СБ Кронштейн. Сборочный чертеж ТП 902-1-133.88 М694-16.001 Ребро ТП 902-1-133.88 М694-17.001 Пластина ТП 902-1-133.88 М694-17.000 СБ Кронштейн. Сборочный чертеж |
| Разработан: | Харьковский Водоканалпроект |
| Утверждён: | 25.01.1988 Госстрой СССР (Государственный комитет Совета Министров СССР по делам строительства) (USSR Gosstroy 6) |
| Издан: | ГП ЦПП (1996 г. ) |



































































