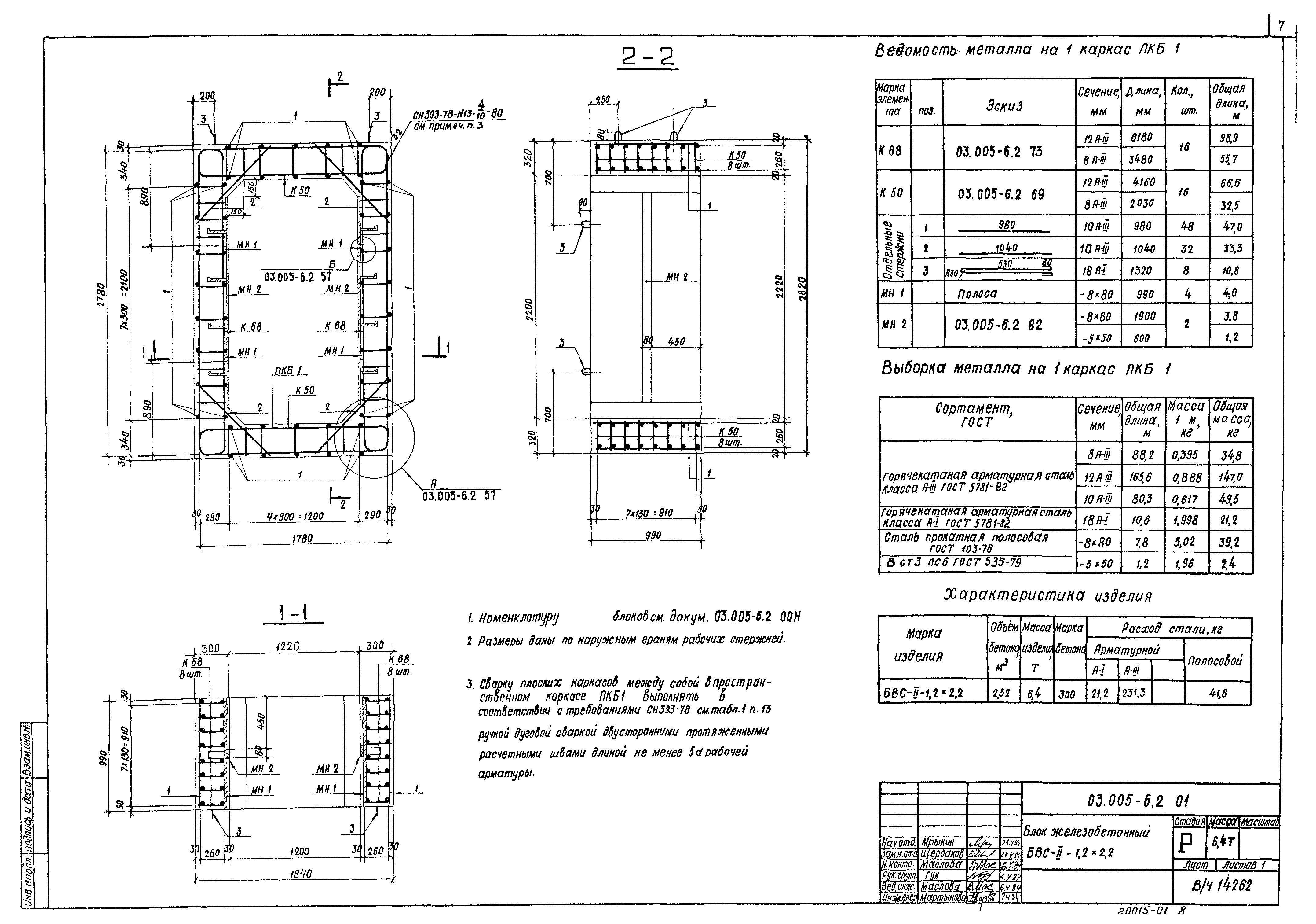
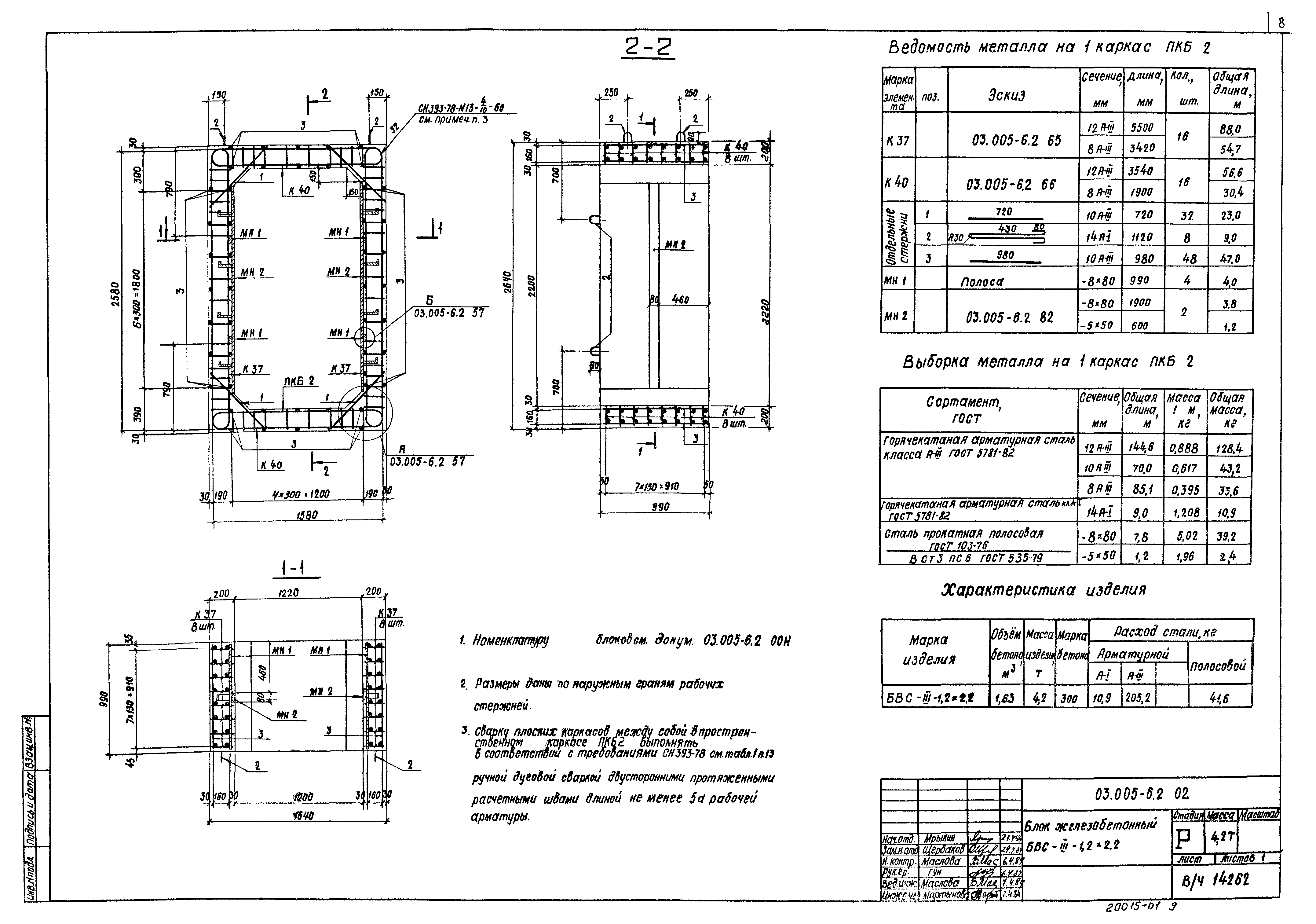
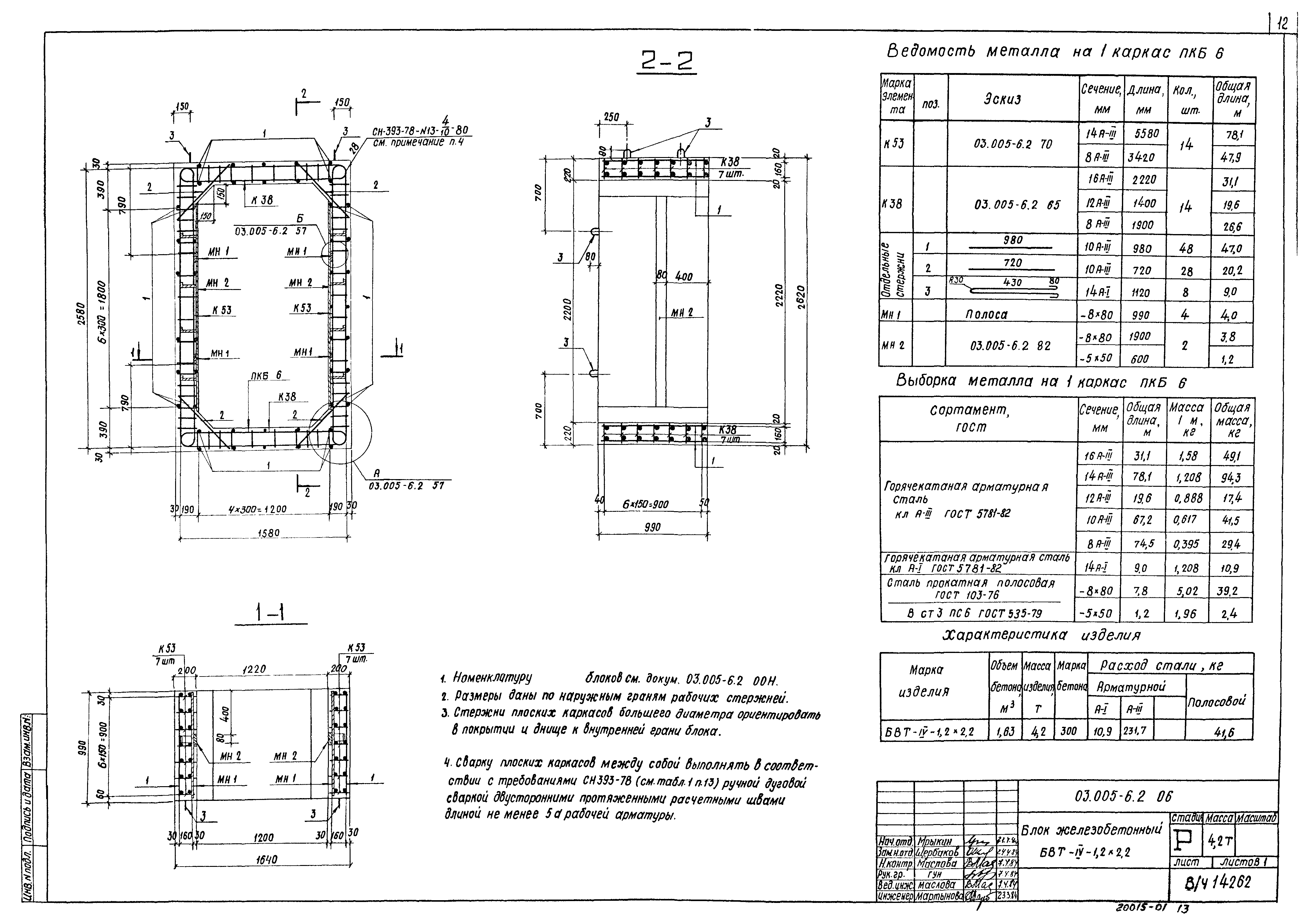
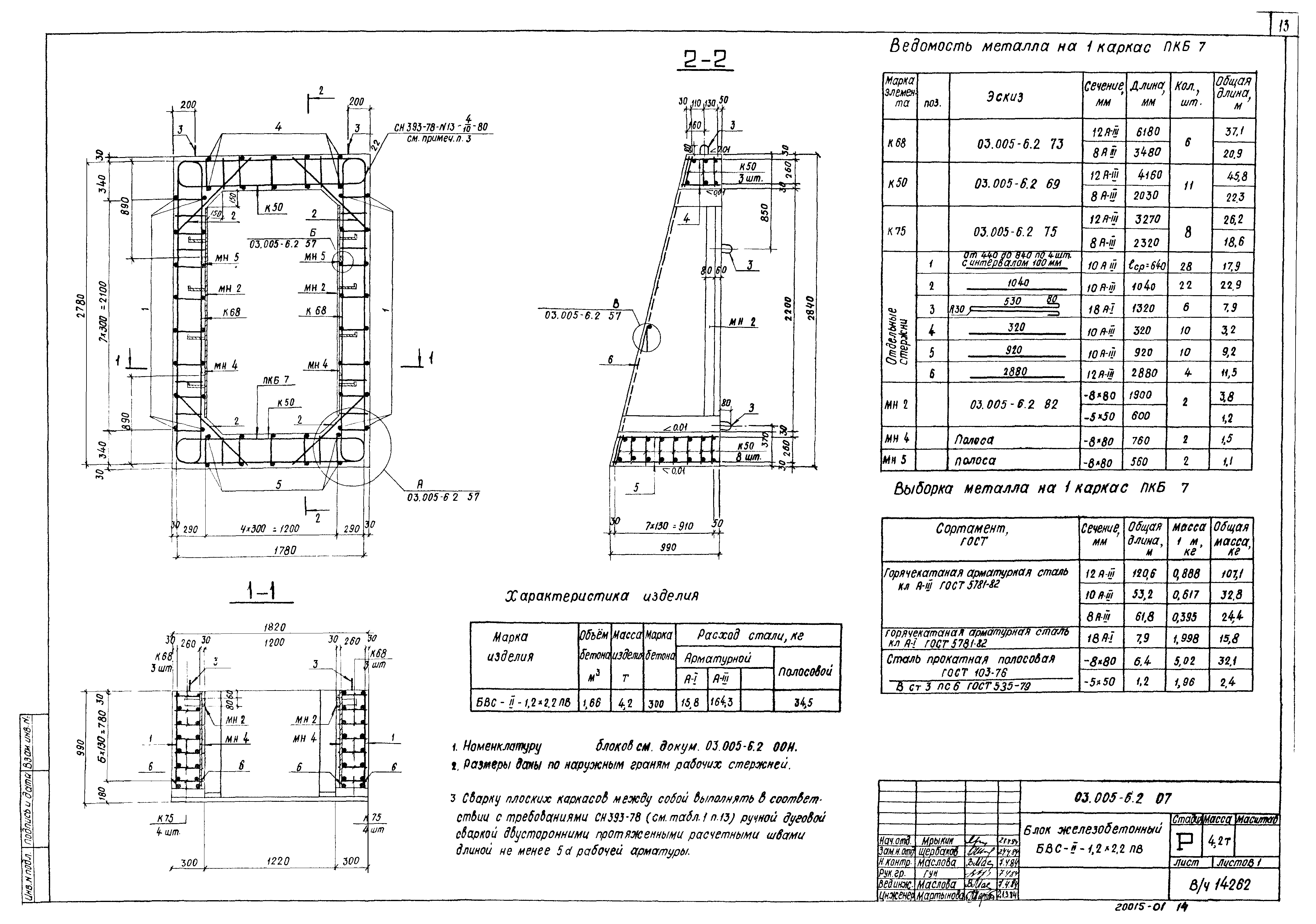
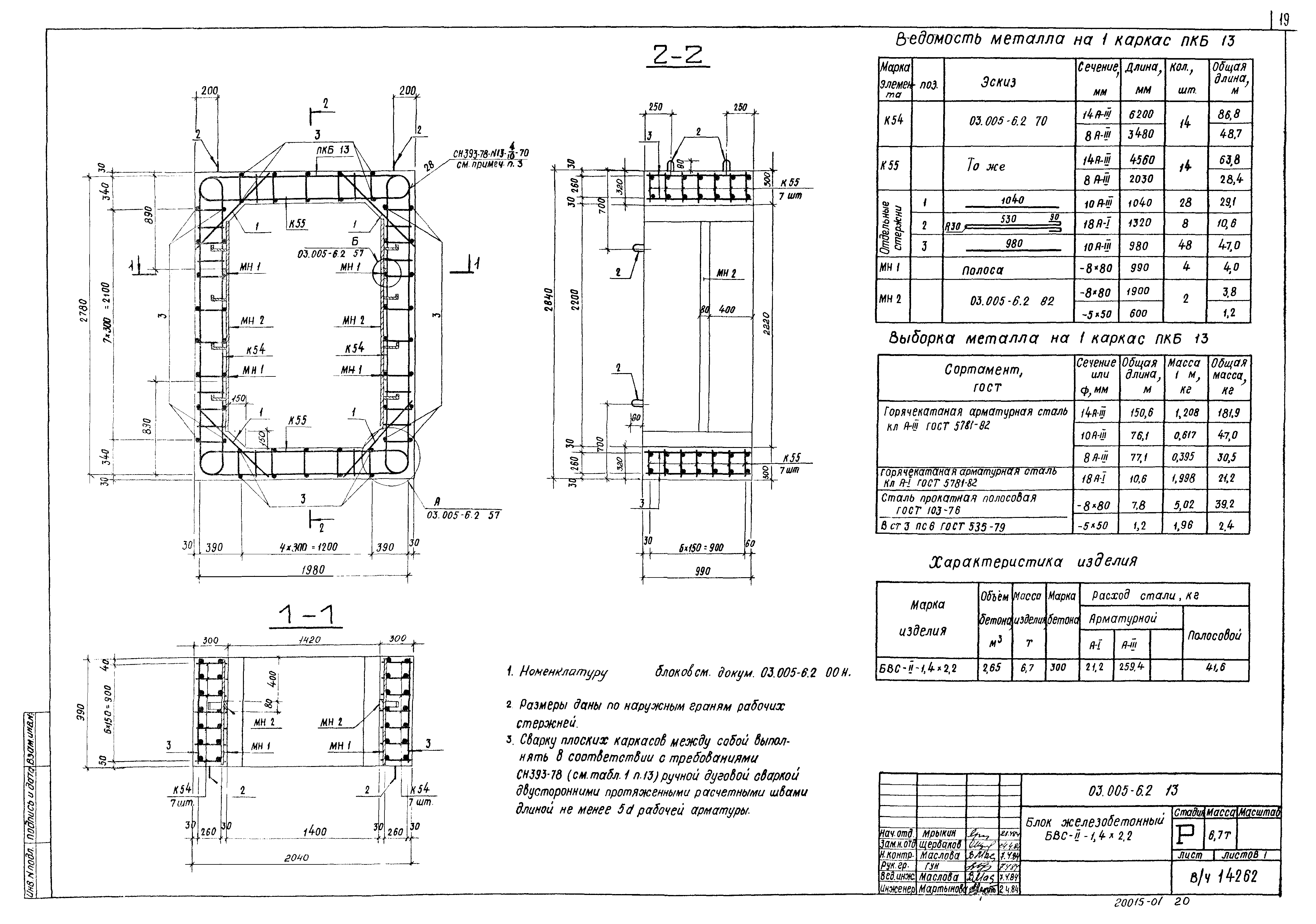
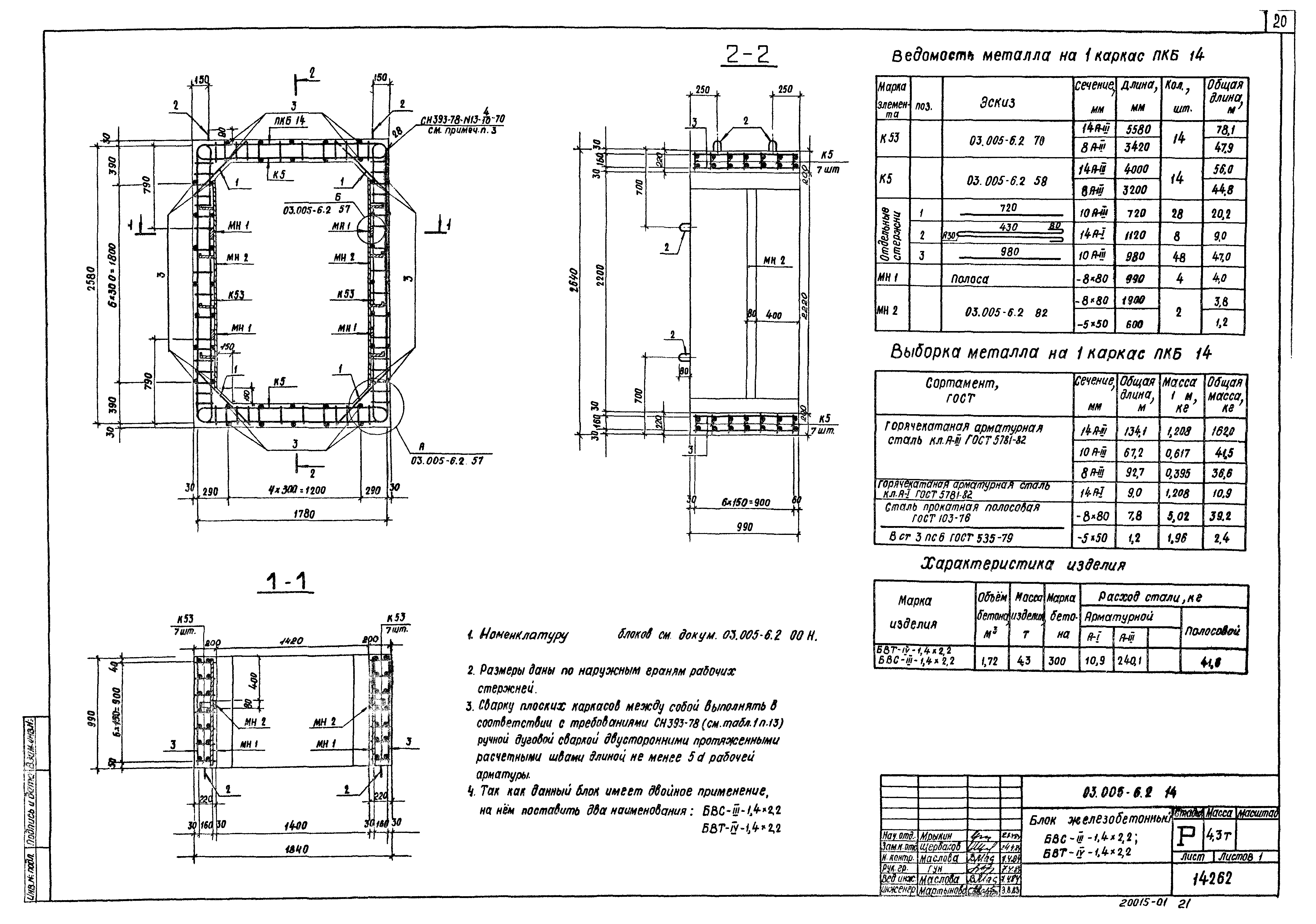
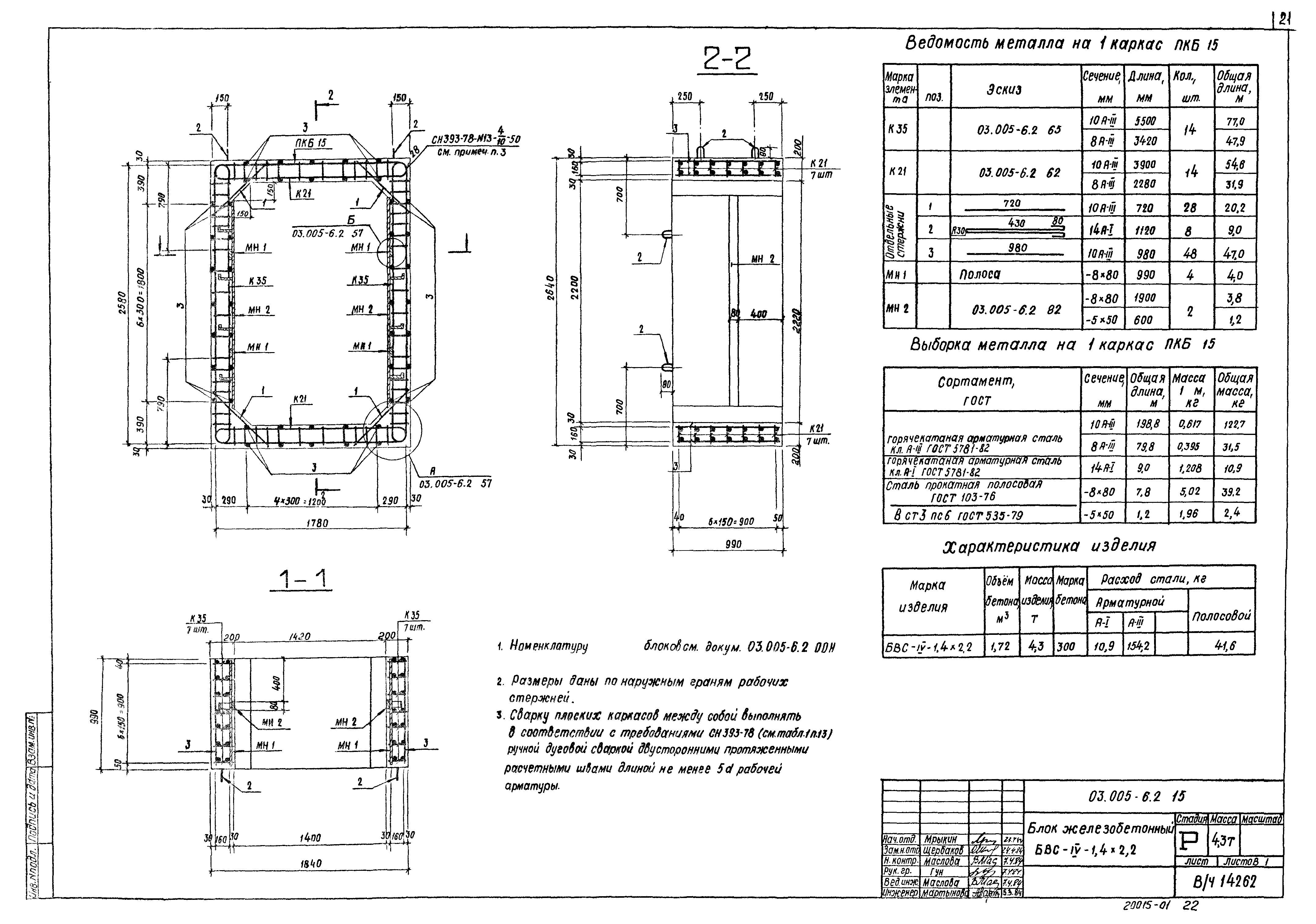
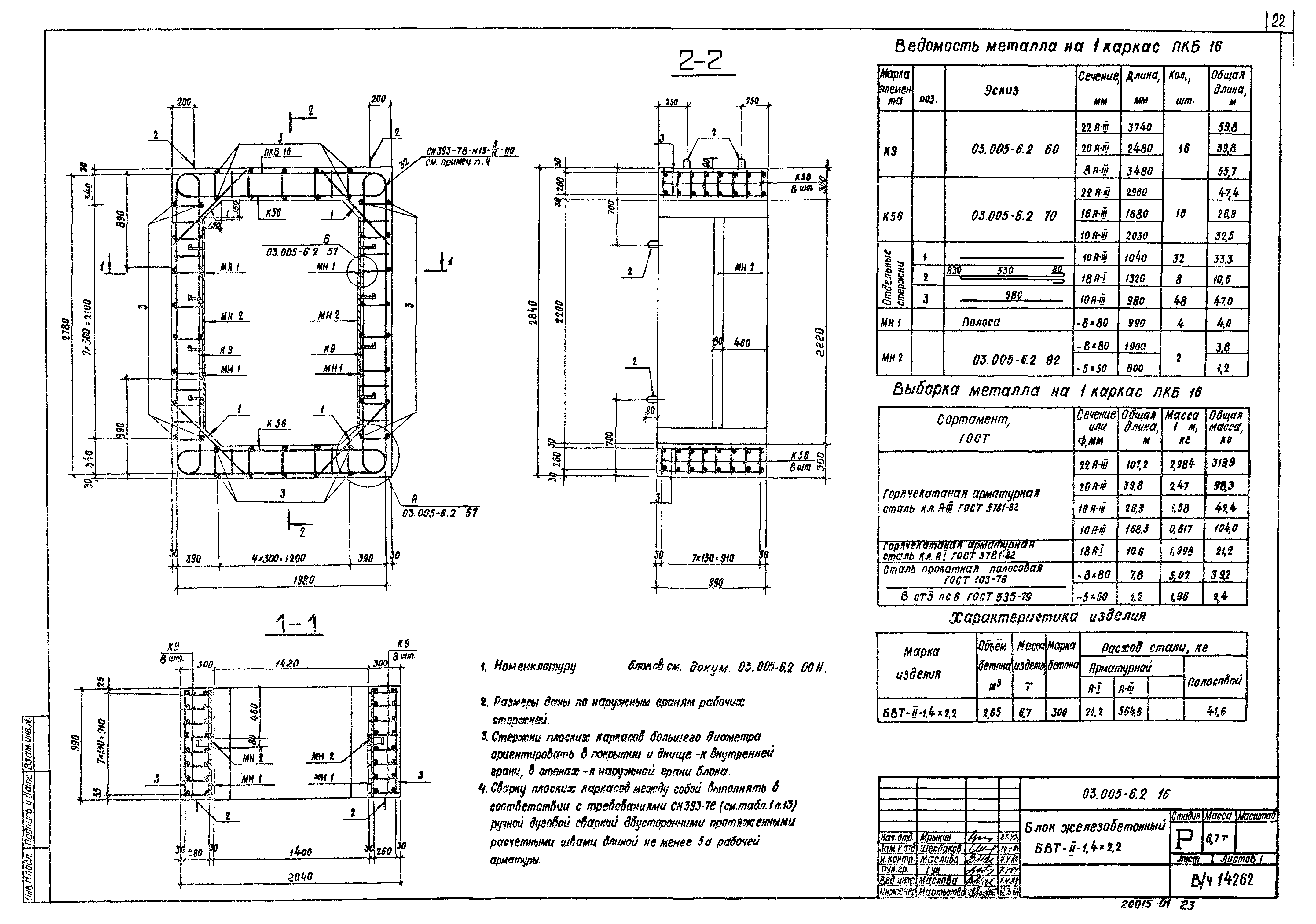
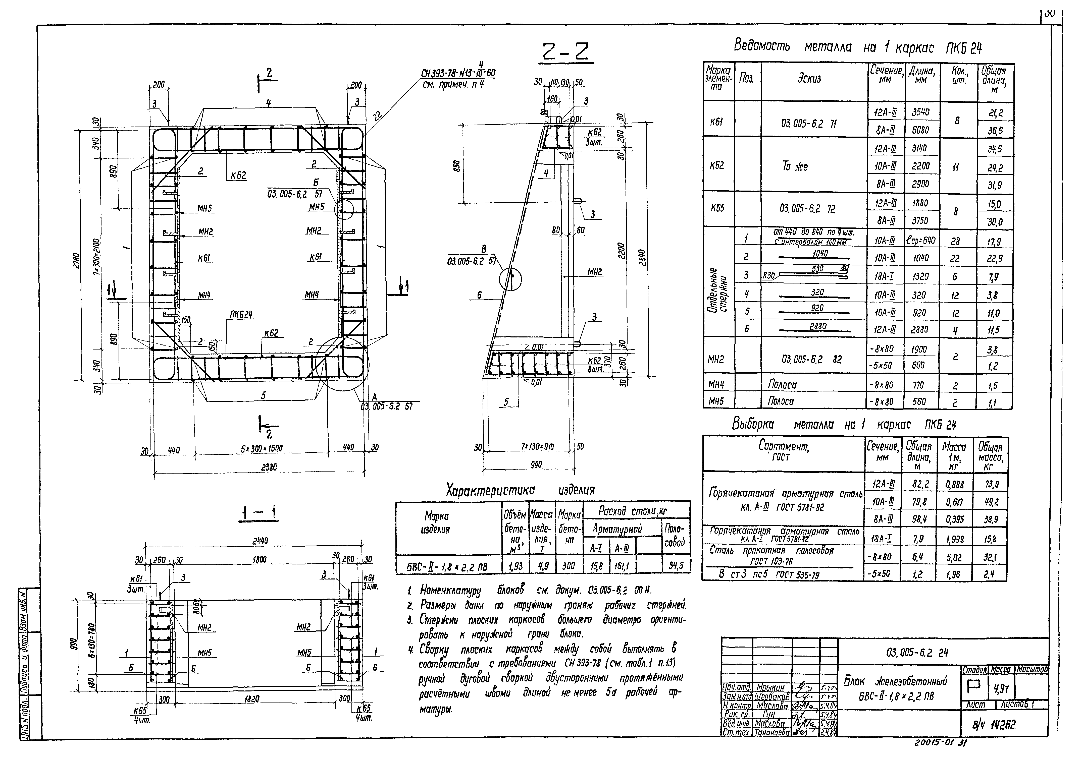
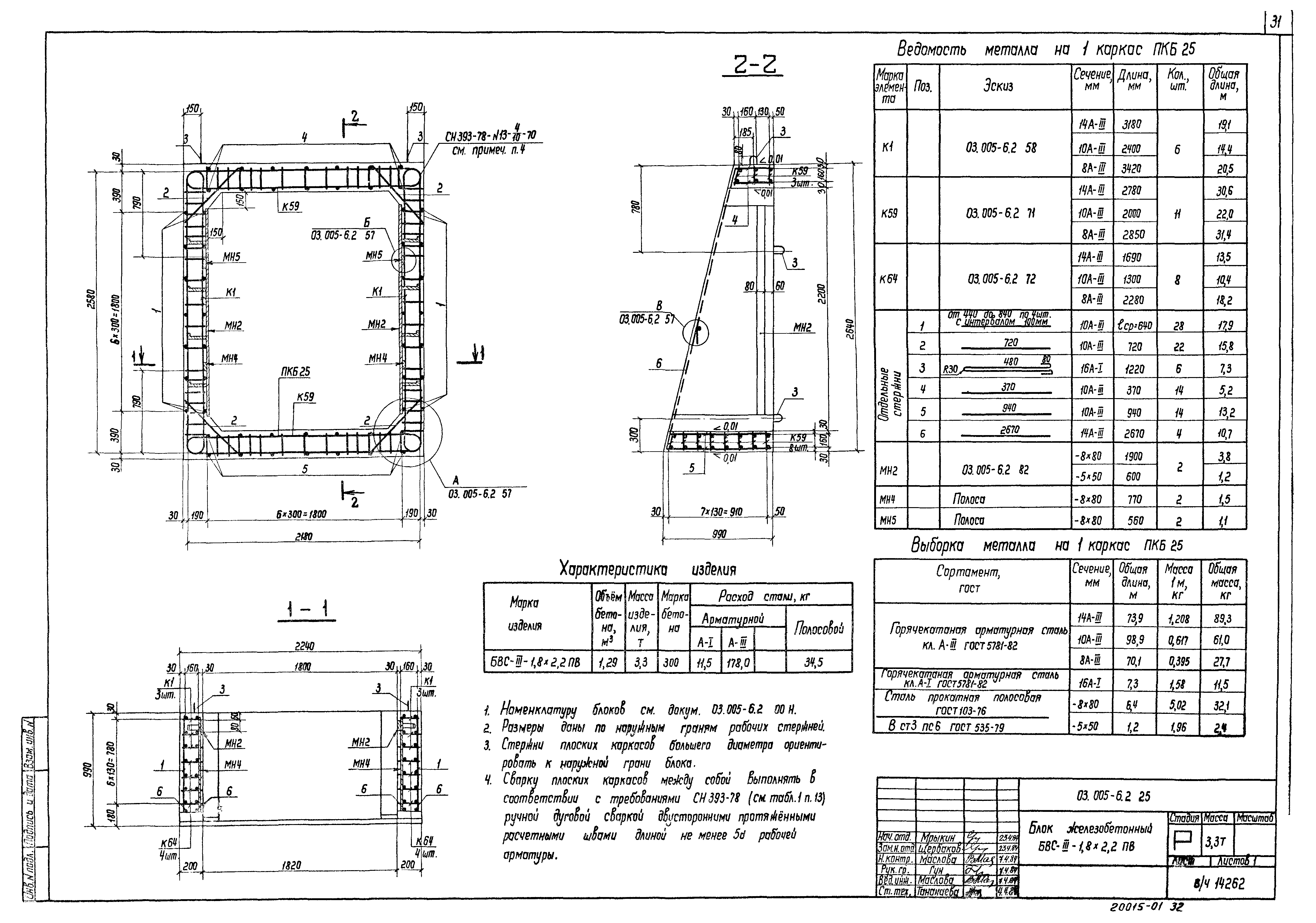
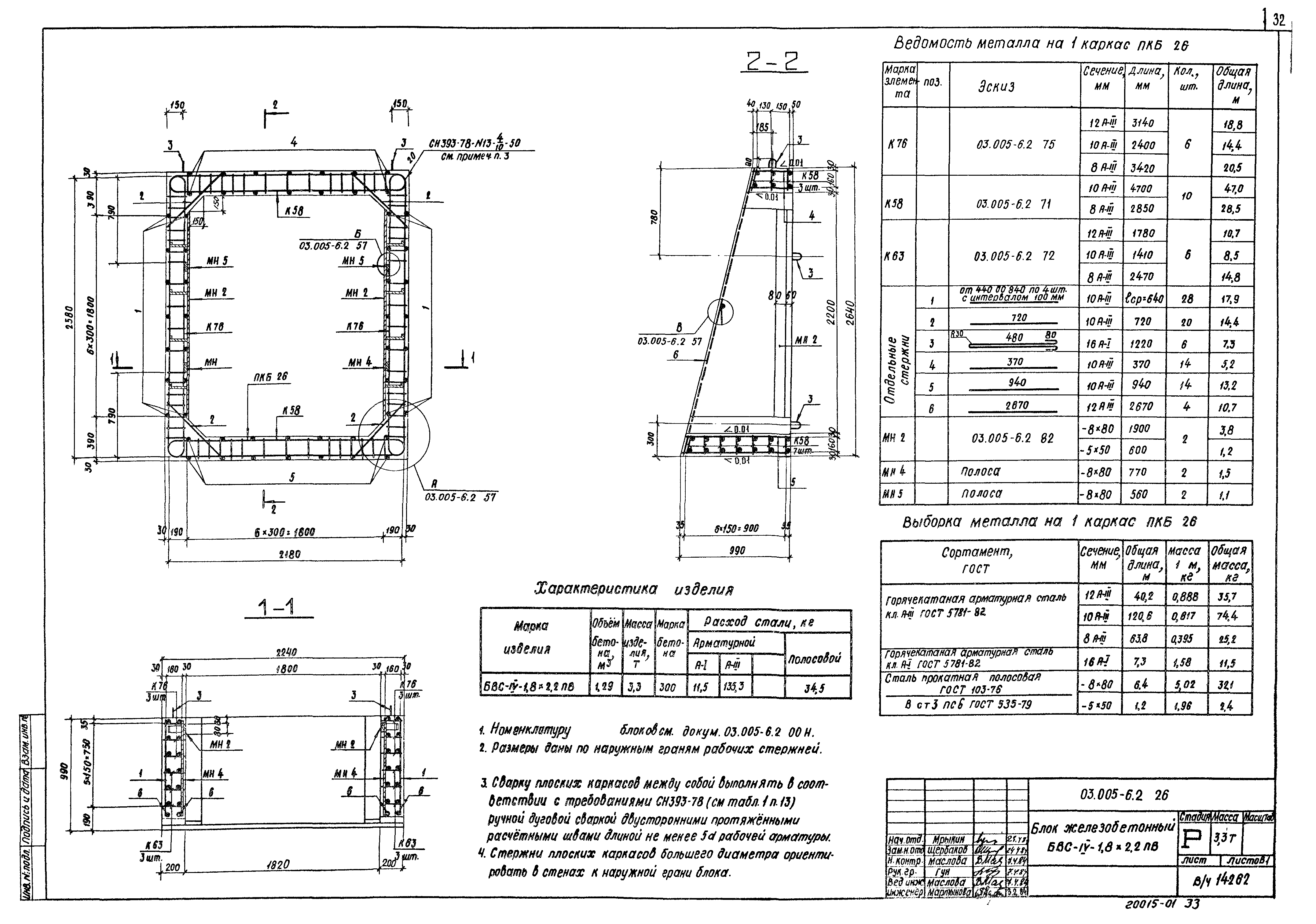
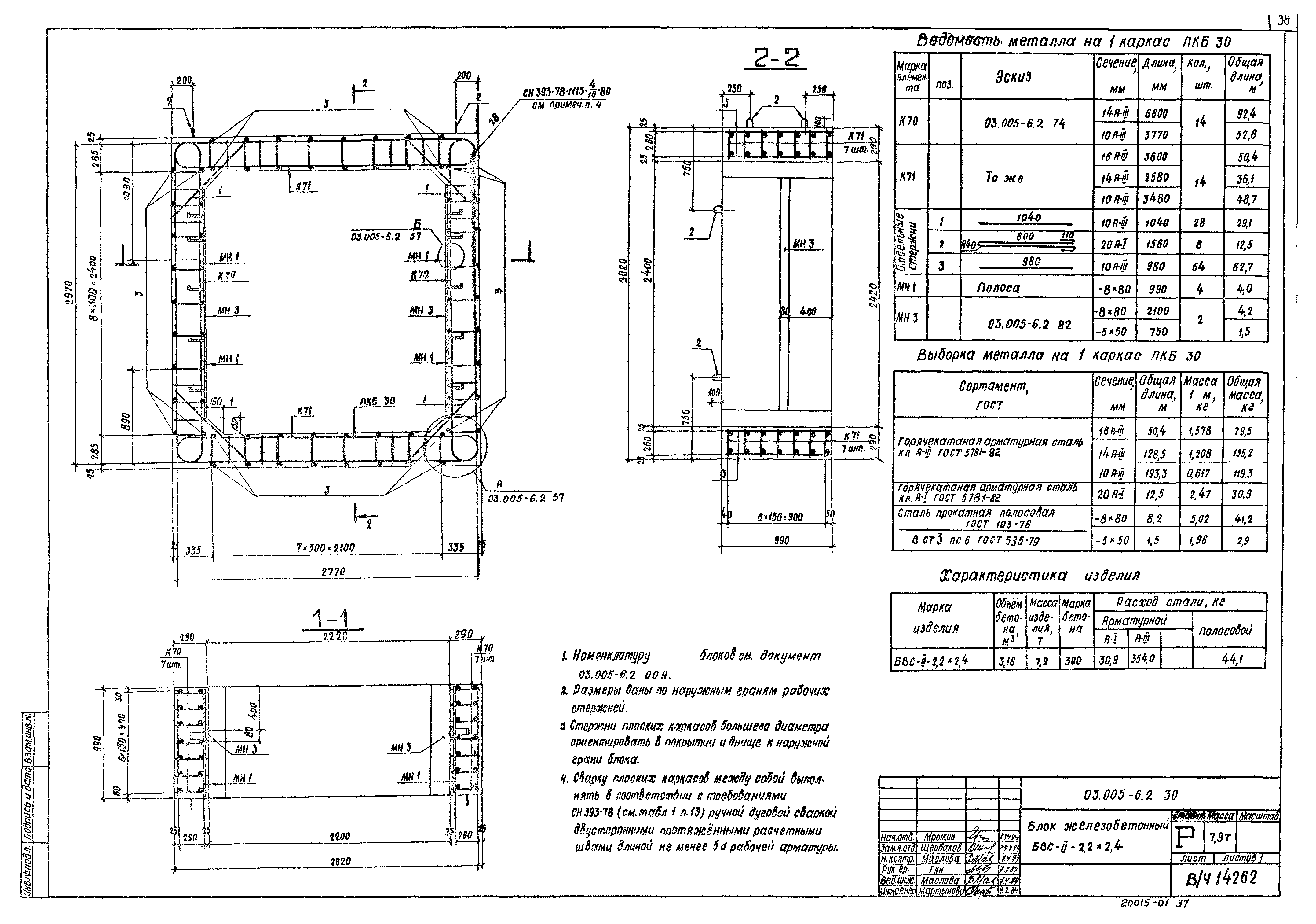
Скачать Серия 03.005-6 Выпуск 2. Сборные железобетонные блоки входов. Рабочие чертежиДата актуализации: 01.01.2021
|
| Обозначение: | Серия 03.005-6 |
| Обозначение англ: | Series 03.005-6 |
| Статус: | не определен законодательством |
| Название рус.: | Выпуск 2. Сборные железобетонные блоки входов. Рабочие чертежи |
| Дата добавления в базу: | 01.09.2013 |
| Дата актуализации: | 01.01.2021 |
| Дата введения: | 21.02.1984 |
| Дата окончания срока действия: | 30.06.2003 |
| Разработан: | В/ч 14262 |
| Утверждён: | 21.02.1984 Госстрой СССР (Государственный комитет Совета Министров СССР по делам строительства) (USSR Gosstroy ВА-8) |
| Заменяет собой: |






















































































