Скачать Серия ЭЛ-ТП.010.06 Стальные опоры из гнутого профиля серии С10П для ВЛ с изолированными проводамиДата актуализации: 01.01.2021
|
| Обозначение: | Серия ЭЛ-ТП.010.06 |
| Обозначение англ: | Series ЭЛ-ТП.010.06 |
| Статус: | не действует |
| Название рус.: | Стальные опоры из гнутого профиля серии С10П для ВЛ с изолированными проводами |
| Дата добавления в базу: | 01.09.2013 |
| Дата актуализации: | 01.01.2021 |
| Дата введения: | 01.02.2005 |
| Дата окончания срока действия: | 01.01.2013 |
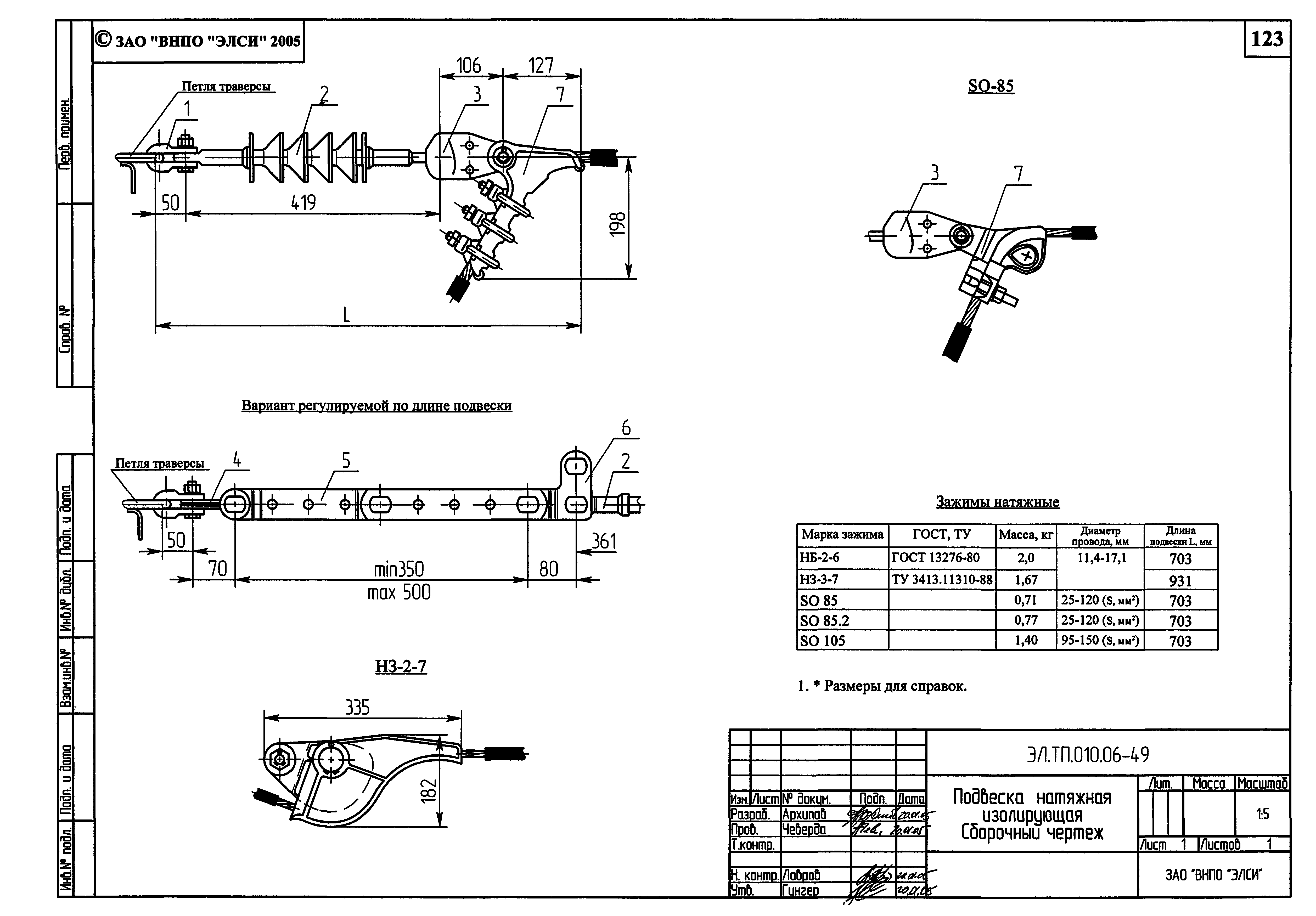
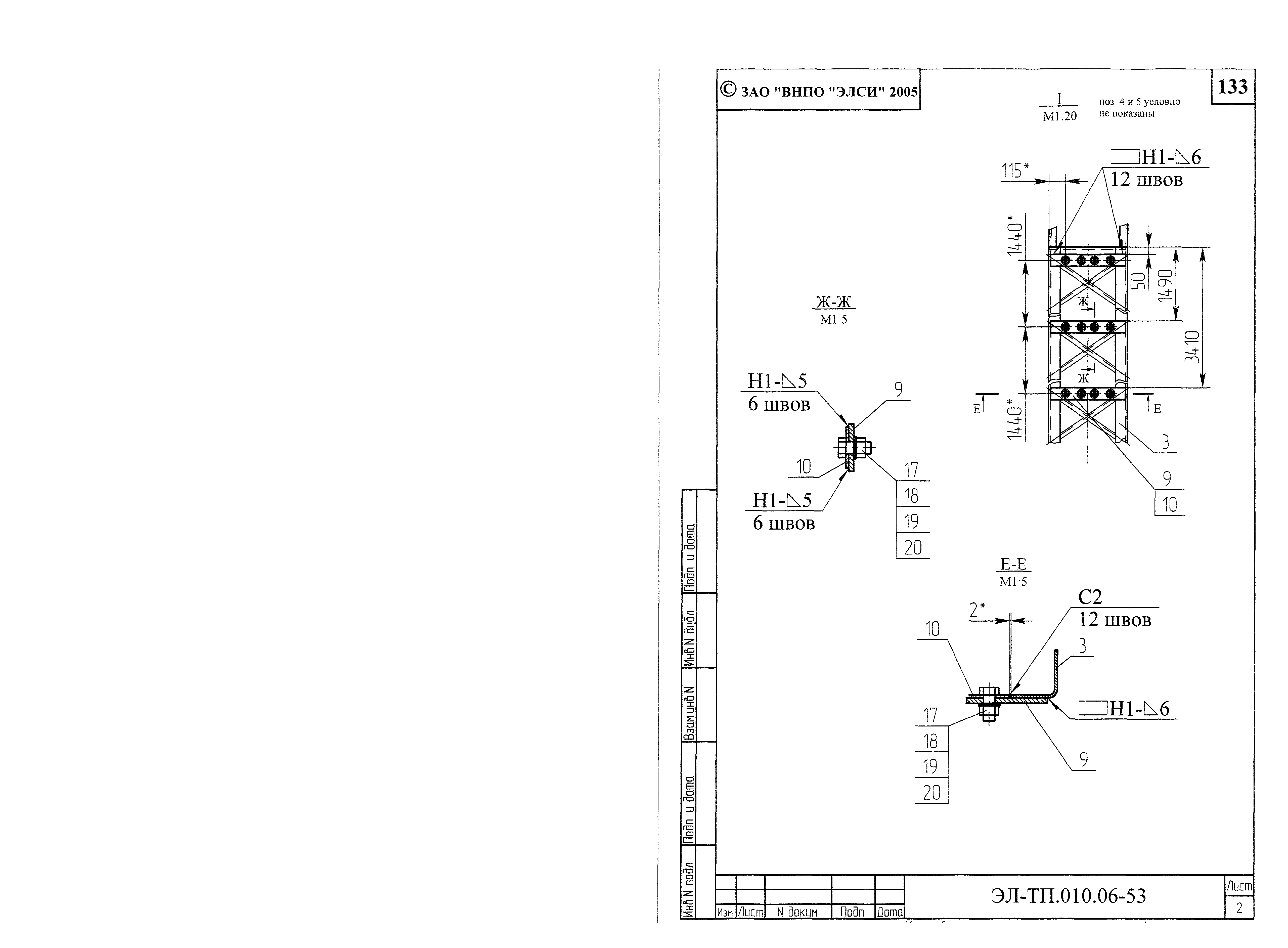
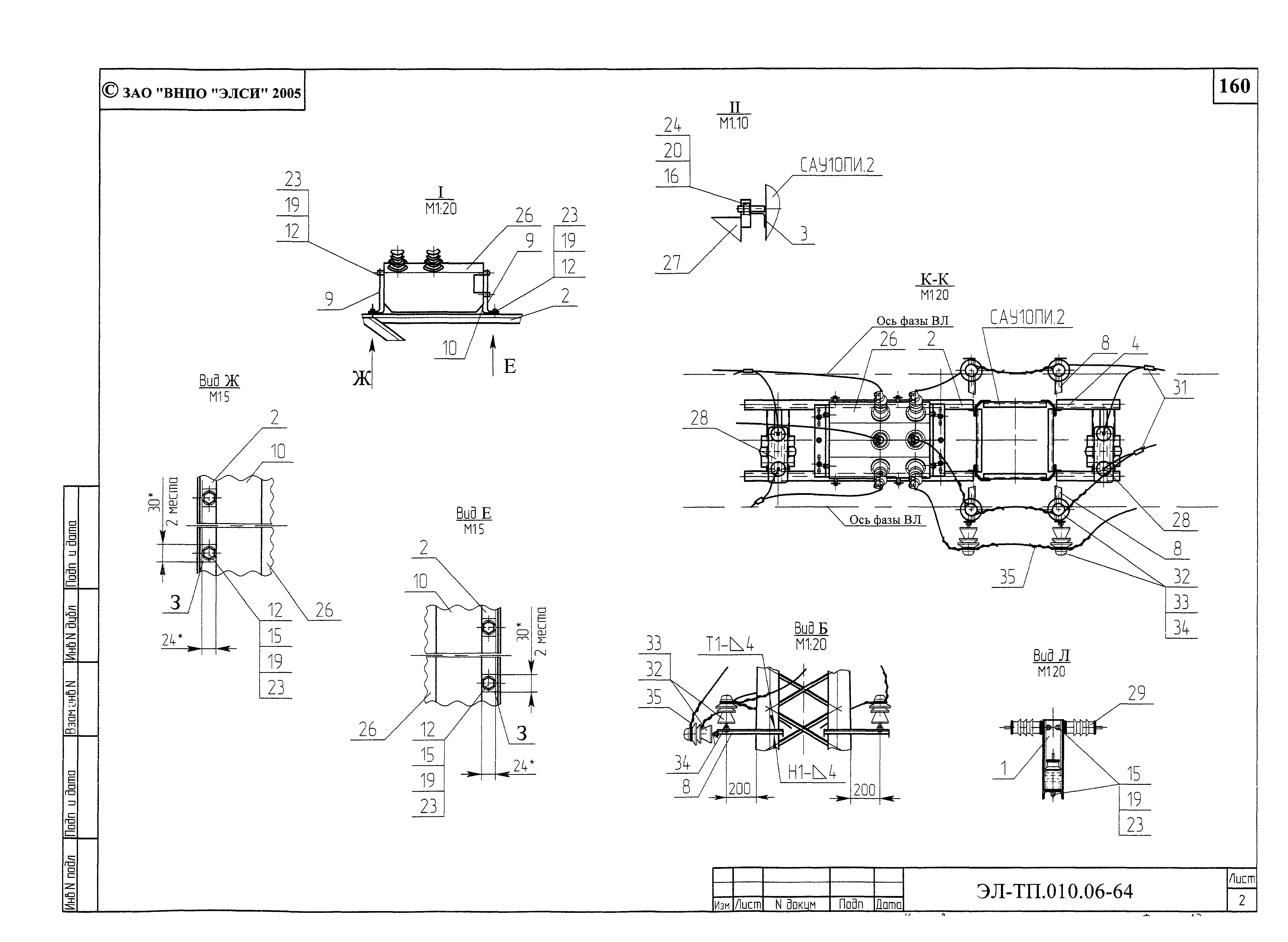
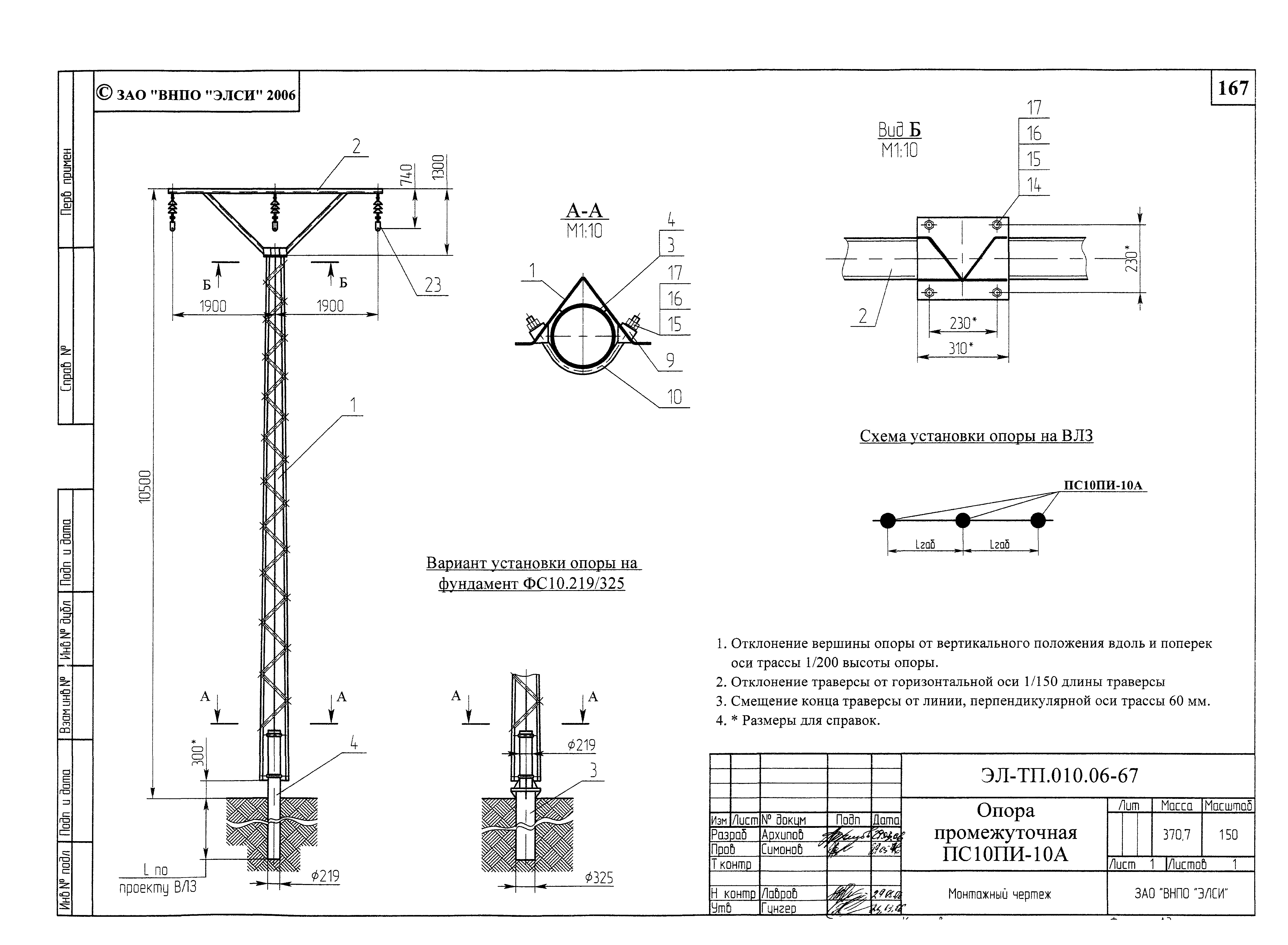
| Оглавление: | Пояснительная записка Введение 1. Общая часть 2. Особенности проектирования ВЛЗ с учетом требований ПУЭ 7-го издания 3. Указания по применению опор 4. Провода, изоляторы, арматура 5. Основные положения по расчету опор 6. Закрепления опор в грунте 7. Технико-экономические показатели 8. Экологические аспекты применения опор 9. Нормативно-техническая документация ЭЛ-ТП.010.06-01 Номенклатура опор ВЛЗ 10 кВ ЭЛ-ТП.010.06-02 Опора промежуточная ПС10ПИ-1А ЭЛ-ТП.010.06-03 Опора промежуточная ПС10ПИ-5А ЭЛ-ТП.010.06-04 Опора промежуточная ПС10ПИ-2А ЭЛ-ТП.010.06-05 Опора промежуточная ПС10ПИ-3А ЭЛ-ТП.010.06-06 Опора промежуточная ПС10ПИ-4А ЭЛ-ТП.010.06-07 Опора промежуточная ПС10ПИ-6А ЭЛ-ТП.010.06-08 Опора промежуточная ПС10ПИ-7А ЭЛ-ТП.010.06-09 Опора промежуточная ПС10ПИ-8А ЭЛ-ТП.010.06-10 Опора промежуточная угловая ПУС10ПИ-1А ЭЛ-ТП.010.06-11 Опора промежуточная угловая ПУС10ПИ-2А ЭЛ-ТП.010.06-12 Опора анкерная (концевая) АС 10ПИ-1А ЭЛ-ТП.010.06-13 Опора анкерная (концевая) АСО 10ПИ-1А ЭЛ-ТП.010.06-14 Опора анкерная угловая АУС10ПИ-1А ЭЛ-ТП.010.06-15 Опора анкерная угловая АУСО10ПИ-1А ЭЛ-ТП.010.06-16 Опора анкерная ответвительная АОС10ПИ-1А ЭЛ-ТП.010.06-17 Опора анкерная ответвительная АОС10ПИ-2А ЭЛ-ТП.010.06-18 Опора анкерная ответвительная АОСО10ПИ-1А ЭЛ-ТП.010.06-19 Опора анкерная ответвительная АОСО10ПИ-2А ЭЛ-ТП.010.06-20 Опора анкерная угловая ответвительная АУОС10П-1А ЭЛ-ТП.010.06-21 Опора анкерная угловая ответвительная АУОСО10ПИ-1А ЭЛ-ТП.010.06-22 Устройство ответвления УОП на промежуточных опорах ПС10ПИ-1А и ПС10ПИ-5А ЭЛ-ТП.010.06-23 Устройство ответвления УОП на промежуточных опорах ПС10ПИ-2А и ПС10ПИ-6А ЭЛ-ТП.010.06-24 Устройство ответвления УОК на анкерной (концевой) опореАС10ПИ-1А ЭЛ-ТП.010.06-25 Устройство ответвления УОК на анкерной (концевой) опоре АСО10ПИ-1 ЭЛ-ТП.010.06-26 Устройство ответвления УОП с разъединителем на промежуточных опорах ПС10ПИ-1А и ПС10ПИ-5А у подстанции ЭЛ-ТП.010.06-27 Устройство ответвления УОП с разъединителем на промежуточных опорах ПСО10ПИ-2А и ПСО10ПИ-6А у подстанции ЭЛ-ТП.010.06-28 Установка разъединителя КР-1 на концевой опоре АС10ПИ-1А ЭЛ-ТП.010.06-29 Установка разъединителя КР-1 на концевой опоре АСО10ПИ-1А ЭЛ-ТП.010.06-30 Установка разъединителя АР-1 на анкерной опоре АС10ПИ-1А ЭЛ-ТП.010.06-31 Установка разъединителя АР-1 на анкерной опоре АСО10ПИ-1 А ЭЛ-ТП.010.06-32 Установка кабельной муфты на концевой опоре АС10ПИ-1А ЭЛ-ТП.010.06-33 Установка кабельной муфты КМ-1 на концевой опоре АСО10ПИ-1А ЭЛ-ТП.010.06-34 Установка разъединителя КР-1 и кабельной муфты КМ-1 на анкерной (концевой) опоре АС 10ПИ-1А ЭЛ-ТП.010.06-35 Установка разъединителя КР-1 и кабельной муфты КМ-1 на анкерной (концевой) опоре АСО10ПИ-1А ЭЛ-ТП.010.06-36 Опоры промежуточные повышенные на стойках С10П7А иС10П11А ЭЛ-ТП.010.06-37 Опора промежуточная пониженная ЭЛ-ТП.010.06-38 Фундамент стойки ФС10.219/325 ЭЛ-ТП.010.06-39 Фундамент стойки Ф10.219 ЭЛ-ТП.010.06-40 Фундамент стойки Ф 10.325 ЭЛ-ТП.010.06-41 Фундамент подкоса ФПШ10.219 ЭЛ-ТП.010.06-42 Фундамент подкоса ФПШ 10.219/325 ЭЛ-ТП.010.06-43 Фундамент Ф530 ЭЛ-ТП.010.06-44 Фундамент поверхностный для промежуточных опор ЭЛ-ТП.010.06-45 Фундамент ФП АУС поверхностный для анкерных и анкерных угловых опор с подкосами ЭЛ-ТП.010.06-46 Фундамент опор ВЛЗ 10 кВ с увеличенной опорной поверхностью ЭЛ-ТП.010.06-47 Антикоррозионная обработка фундаментов ЭЛ-ТП.010.06-48 Подвеска поддерживающая изолирующая ЭЛ-ТП.010.06-49 Подвеска натяжная изолирующая ЭЛ-ТП.010.06-50 Крепление провода СИП (SAX) на штыревом изоляторе Дополнительно разработанные модификации опор ЭЛ-ТП.010.06-51 Установка разъединителя и устройства ответвления на анкерной опоре АС10ПИ-1А ЭЛ-ТП.010.06-52 Опора двухцепная промежуточная 2ПС10ПИ-1 ЭЛ-ТП.010.06-53 Опора двухцепная промежуточная 2ПС10ПИ-2 ЭЛ-ТП.010.06-54 Опора анкерная АС10ПИ-1А (для «Торсады») ЭЛ-ТП.010.06-55 Опора промежуточная ПС10ПИ-1А (для «Торсады») ЭЛ-ТП.010.06-56 Опора промежуточная ПС10ПИ-5А (для «Торсады») ЭЛ-ТП.010.06-57 Опора анкерная АСО10ПИ-1А (для «Торсады») ЭЛ-ТП.010.06-58 Опора промежуточная 2ПС10ПИ-1 (для "Торсады") ЭЛ-ТП.010.06-59 Опора двухцепная анкерная 2АС10ПИ1 ЭЛ-ТП.010.06-60 Опора двухцепная анкерная угловая 2АУС10ПИ-1 ЭЛ-ТП.010.06-61 Опора двухцепная анкерная ответвительная 2АОС10ПИ-1 ЭЛ-ТП.010.06-62 Установка разъединителя на двухцепной анкерной (концевой) опоре 2АС 10ПИ-1 ЭЛ-ТП.010.06-63 Установка разъединителя и кабельной муфты на двухцепной анкерной (концевой) опоре 2АС10ПИ-1 ЭЛ-ТП.010.06-64 Установка реклоузера вакуумного серии РВА/TEL на анкерной опоре АСО10ПИ-1А ЭЛ-ТП.010.06-65 Опора анкерная свободностоящая (для переходов через препятствия) АСО10ПИ-2П ЭЛ-ТП.010.06-66 Опора промежуточная ПС10ПИ-9А (для V-VI ветровых районов) ЭЛ-ТП.010.06-67 Опора промежуточная ПС10ПИ-10А (для V-VI ветровых районов) |
| Разработан: | ЗАО ВНПО ЭЛСИ |
| Утверждён: | 01.02.2005 ЗАО ВНПО ЭЛСИ |
| Заменяет собой: |
|







































































































































































