Скачать Альбом II. Закрепление опор в грунтах. Пояснительная записка. Чертежи фундаментов

Дата актуализации: 01.01.2021

Альбом II. Закрепление опор в грунтах. Пояснительная записка. Чертежи фундаментов

Статус:не определен законодательством
Название рус.:Альбом II. Закрепление опор в грунтах. Пояснительная записка. Чертежи фундаментов
Дата добавления в базу:01.09.2013
Дата актуализации:01.01.2021
Дата введения:12.12.1988
Дата окончания срока действия:30.06.2003
Оглавление:Конструкции опор ВЛ 35 кВ из отработанных бурильных и обсадных труб для районов Западной Сибири
8.0662-2-ПЗ Пояснительная записка
8.0662-2-ПЗ Общая часть
8.0662-2-ПЗ Закрепление промежуточных опор
8.0662-2-ПЗ Нагрузки на фундаменты промежуточных опор
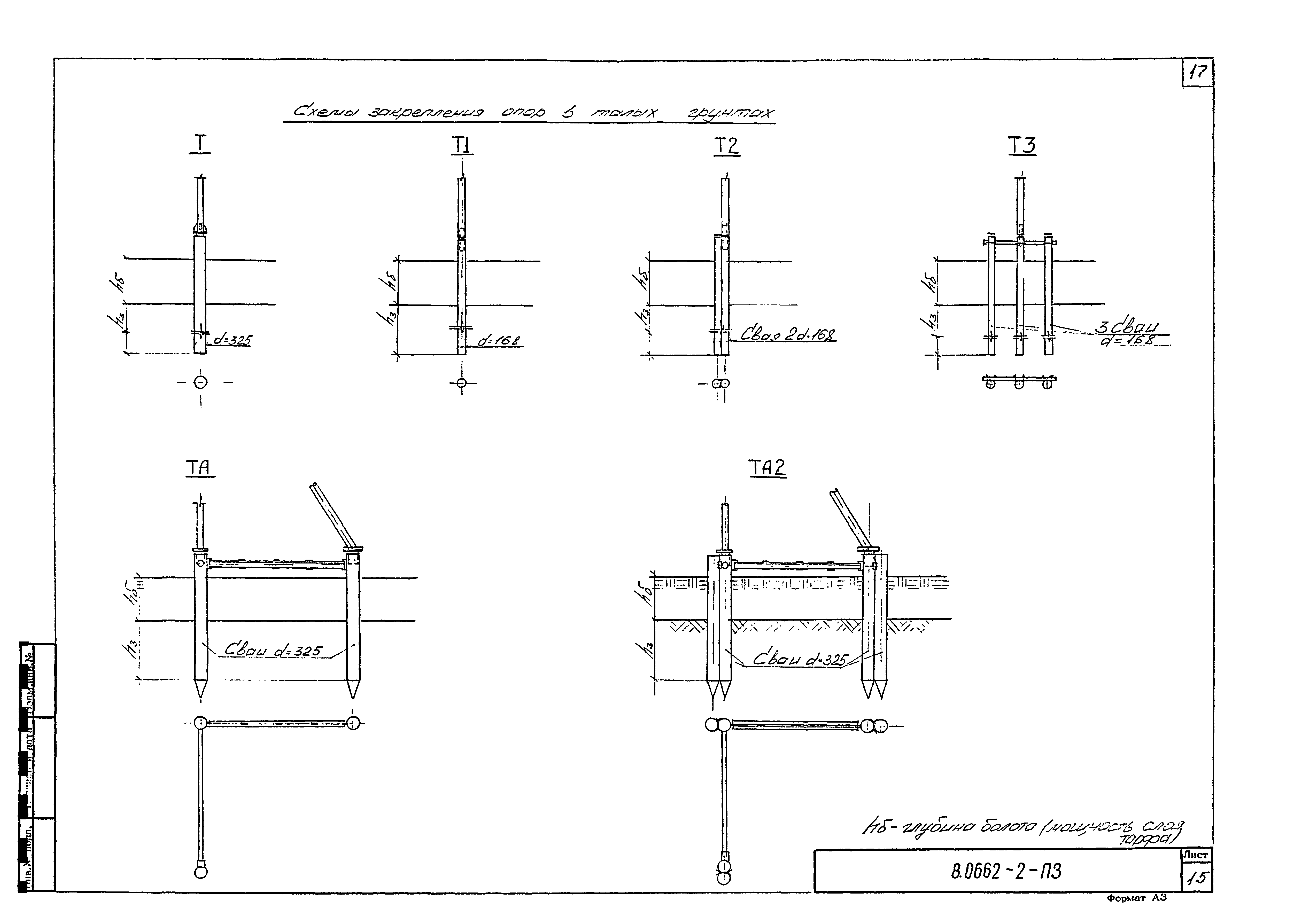
8.0662-2-ПЗ Типы закреплений промежуточных опор в талых грунтах
8.0662-2-ПЗ Общие положения по расчету закреплений промежуточных опор
8.0662-2-ПЗ Подбор закреплений промежуточных опор в талых грунтах
8.0662-2-ПЗ Закрепление сложных опор
8.0662-2-ПЗ Нагрузки на фундаменты сложных опор
8.0662-2-ПЗ Типы закреплений сложных опор в талых грунтах
8.0662-2-ПЗ Общие положения по расчету закреплений сложных опор
8.0662-2-ПЗ Подбор закреплений сложных опор в талых грунтах
8.0662-2-ПЗ Закрепление опор в вечномерзлых грунтах
8.0662-2-ПЗ Закрепление опор в пластичномерзлых и сыпучемерзлых грунтах
8.0662-2-ПЗ Закрепление опор в твердомерзлых грунтах
8.0662-2-ПЗ Подбор закреплений промежуточных опор в вечномерзлых грунтах
8.0662-2-ПЗ Подбор закреплений сложных опор в вечномерзлых грунтах
8.0662-2-ПЗ Защита от коррозии
8.0662-2-ПЗ Защита фундаментов от выпучивания
8.0662-2-ПЗ Указания по производству работ
8.0662-2-ПЗ Схемы, графики и таблицы
8.0662-2-ПЗ Схемы закрепления опор в талых грунтах
8.0662-2-ПЗ Схемы закрепления опор в вечномерзлых грунтах
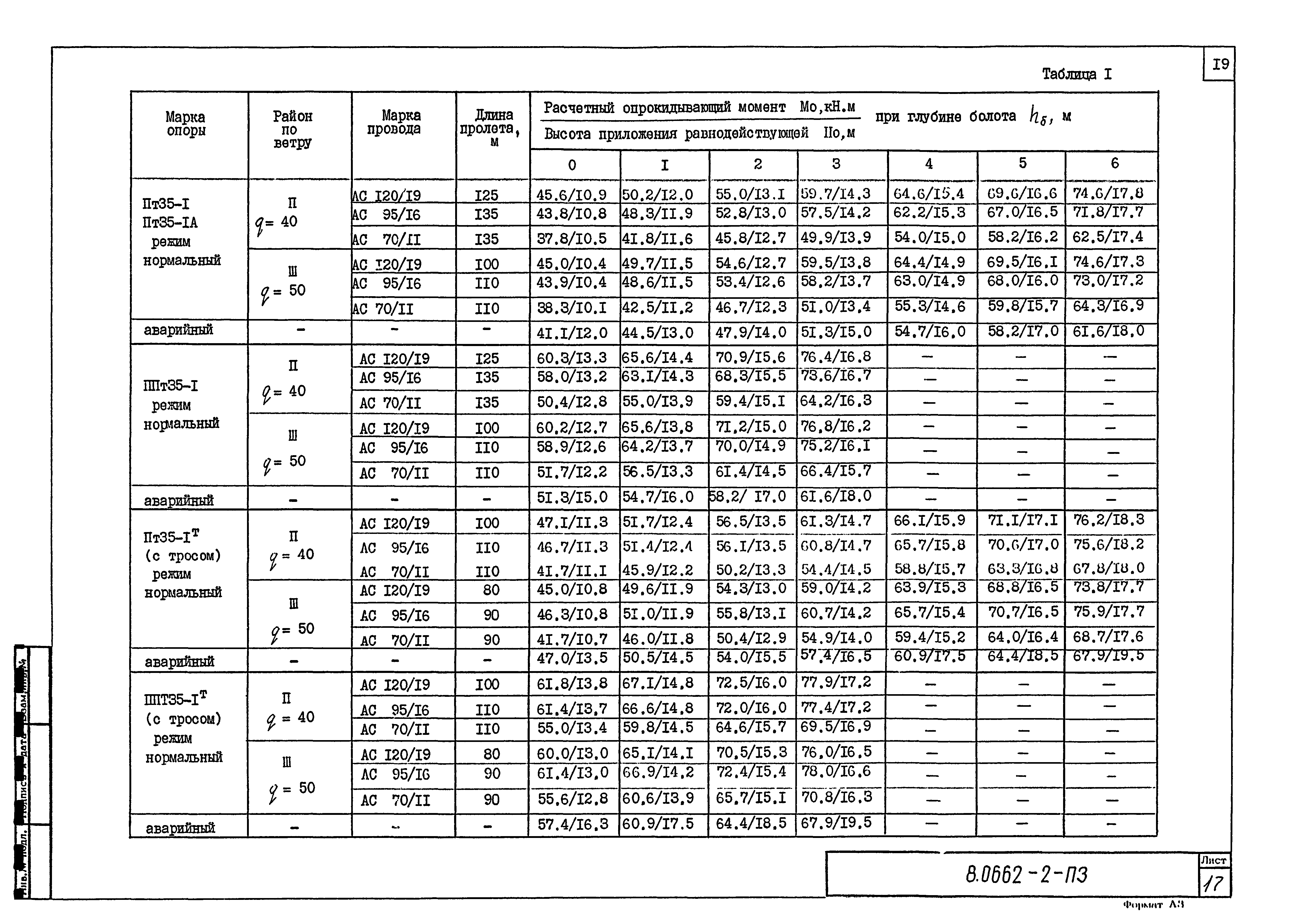
8.0662-2-ПЗ Таблица 1. Опрокидывающие моменты на закрепления промежуточных опор от нагрузок нормального и аварийного режимов
8.0662-2-ПЗ Таблица 2. Вертикальные нагрузки на закрепления промежуточных опор
8.0662-2-ПЗ Таблица 3. Характеристики грунтов для расчета свайных закреплений
8.0662-2-ПЗ Таблица 4. Предельный опрокидывающий момент М(Ю) закреплений марки T.T1 и Т2
8.0662-2-ПЗ Таблица 5. То же закрепления марки Т3
8.0662-2-ПЗ Таблица 6. Расчетные нагрузки на фундаменты опор анкерного типа
8.0662-2-ПЗ Таблица 7. Предельная вертикальная нагрузка для свай на вырывание и сжатие (в талых грунтах)
8.0662-2-ПЗ Таблица 8. Предельная горизонтальная нагрузка на закрепление марки ТА
8.0662-2-ПЗ Таблица 9. Предельная горизонтальная нагрузка на закрепление марки ТА2
8.0662-2-ПЗ Таблица 10. Расчетные силы морозного пучения грунта для свай
8.0662-2-ПЗ Таблица 11. Предельное усилие на вырывание свай по прочности основания в вечномерзлых грунтах
8.0662-2-ПЗ Таблица 12. Предельное усилие на сжатие свай
Чертежи
8.0662-2 КС-1 Закрепление по схемам Т,Т1,Т2 и Т3
8.0662-2 КС-2 Закрепление по схеме ТА
8.0662-2 КС-3 Закрепление по схеме ТА2
8.0662-2 КС-4 Закрепление по схемам Тм, Т1м, Т2м
8.0662-2 КС-5 Закрепление по схеме ТАм
8.0662-2 КС-6 Узлы 1-5. Детали
8.0662-2 КМ-1 Ригель Рт
8.0662-2 КМ-2 Хомут Хт
8.0662-2 КМ-3 Затяжка ЗУ
Разработан: Сельэнергопроект Минэнерго СССР
Утверждён:12.12.1988 Сельэнергопроект