Скачать Шифр М25.3/02 Несущие стены Талдом-Термо с каркасом из термопрофилей и теплоизоляцией из минераловатных плит. Рекомендации по проектированиюДата актуализации: 01.01.2021
|
| Обозначение: | Шифр М25.3/02 |
| Обозначение англ: | М25.3/02 |
| Статус: | не определен законодательством |
| Название рус.: | Несущие стены "Талдом-Термо" с каркасом из термопрофилей и теплоизоляцией из минераловатных плит. Рекомендации по проектированию |
| Дата добавления в базу: | 01.09.2013 |
| Дата актуализации: | 01.01.2021 |
| Дата введения: | 01.01.2003 |
| Дата окончания срока действия: | 30.06.2003 |
| Область применения: | Работа содержит рекомендации по проектированию несущих наружных стен с каркасом из стальных холодноформованных перфорированных профилей фирмы "Линдаб" (Швеция) со слоем теплоизоляции из негорючих минераловатных плит, обшивками из гипсокартонных листов и разными вариантами наружного защитно-декоративного слоя. Конструкции разработаны для общественных, административных, жилых и производственных зданий с сухим или нормальным влажностным режимом помещений для строительства в сухой и нормальной зонах влажности, со снеговой и ветровой нагрузкой для I-IV районов по СНиП 2.01.07-85 |
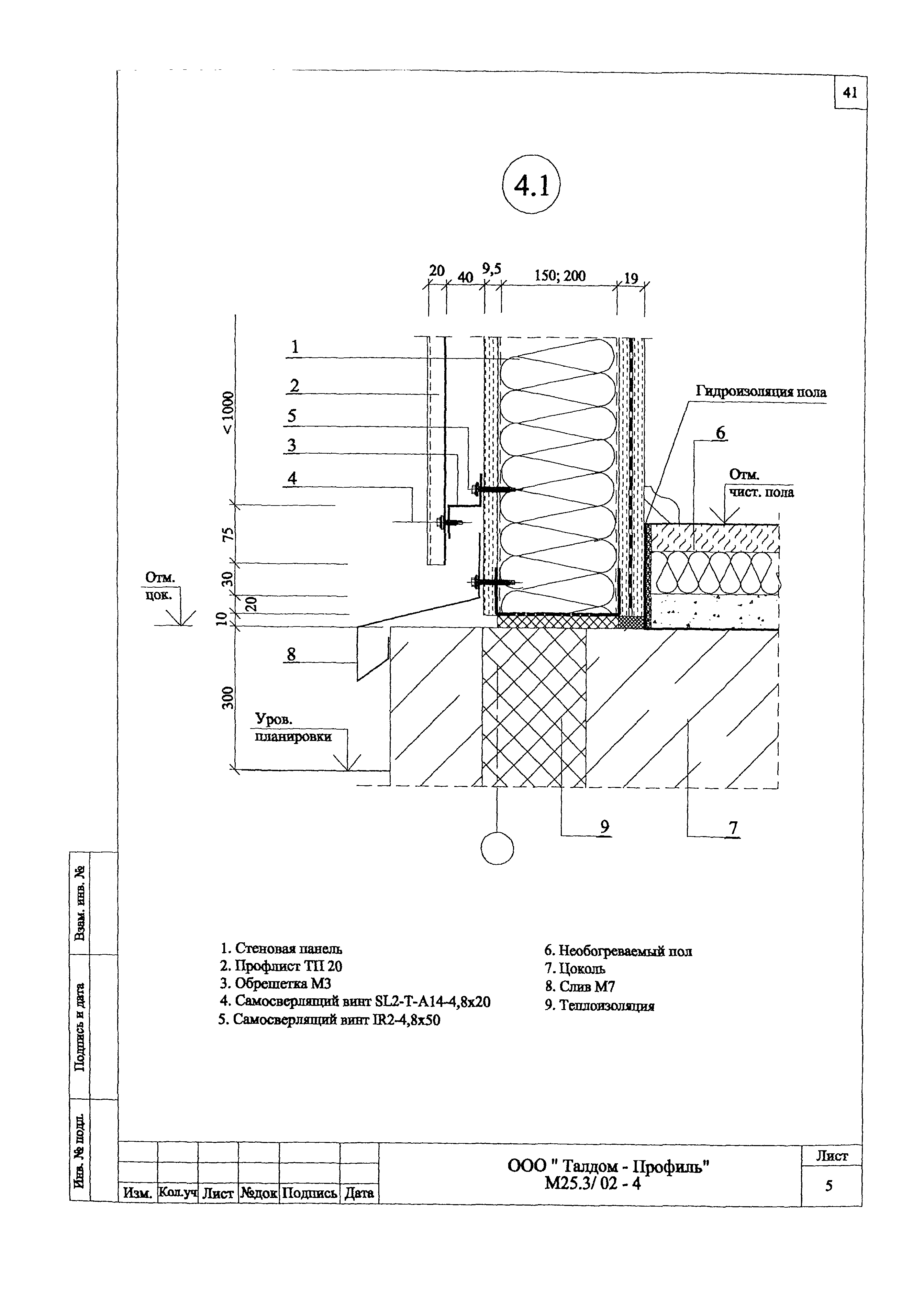
| Оглавление: | М 25.3/02-ПЗ Пояснительная записка 1. Область применения 2. Конструкция стен 3. Нормы теплозащиты зданий и данные по необходимой толщине панели 4. Наружная отделка стен М 25.3/02-1 Схемы сопряжения стен и покрытия. Узлы 1…4 М 25.3/02-2 Монтажная схема панелей. Узлы 5…7 М 25.3/02-3 Монтажная схема установки теплоизоляции и внутренней обшивки. Узлы 8…10 М 25.3/02-4 Облицовка стен профлистом ТП20-С(К). Фасад с вертикальным расположением листа. Схема обрешетки. Узлы 1…10 М 25.3/02-5 Облицовка стен профлистом ТП20-С(К). Фасад с горизонтальным расположением листа. Схема обрешеток. Узлы 1…10 М 25.3/02-6 Облицовка стен кассетами "Талдом-1000". Фасад. Схемы обрешеток. Узлы 1…10 М 25.3/02-7 Облицовка стен кассетами "Талдом-2000". Фасад. Схемы обрешеток. Узлы 1…10 М 25.3/02-8 Облицовка стен кирпичом. Фасад. Схемы обрешетки. Узлы 1…10 М 25.3/02-9 Каркас панелей 1 и 2. Раскладка листов ГКЛ наружной обшивки. Узлы 1…13 М 25.3/02-10 Спецификация профилей конструкций Приложения |
| Утверждён: | 01.01.2003 ОАО ЦНИИпромзданий (TsNIIpromzdaniy OAO ) |
| Принят: | 01.01.2003 ООО Талдом-Профиль |
| Нормативные ссылки: |
|





































































































































