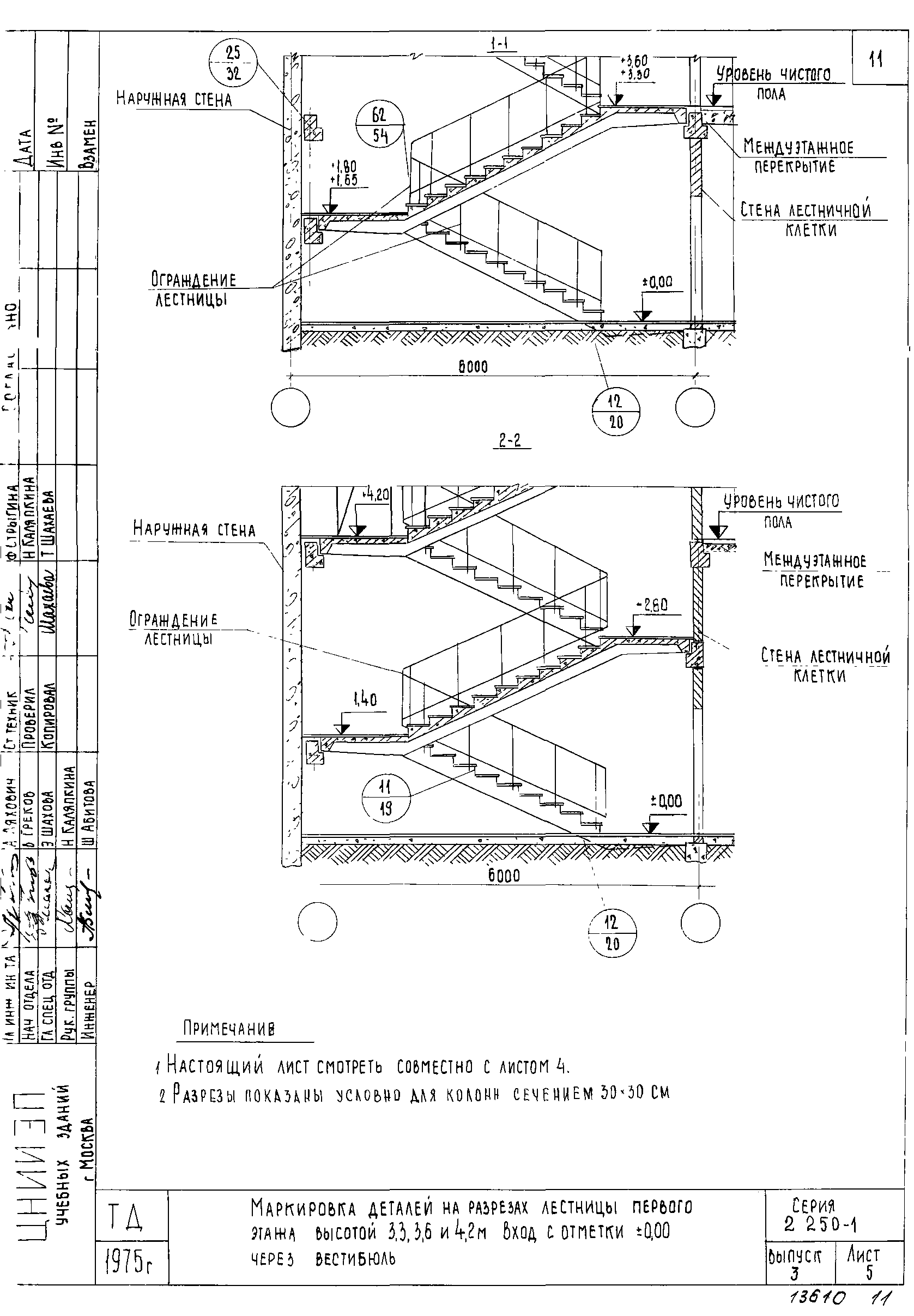
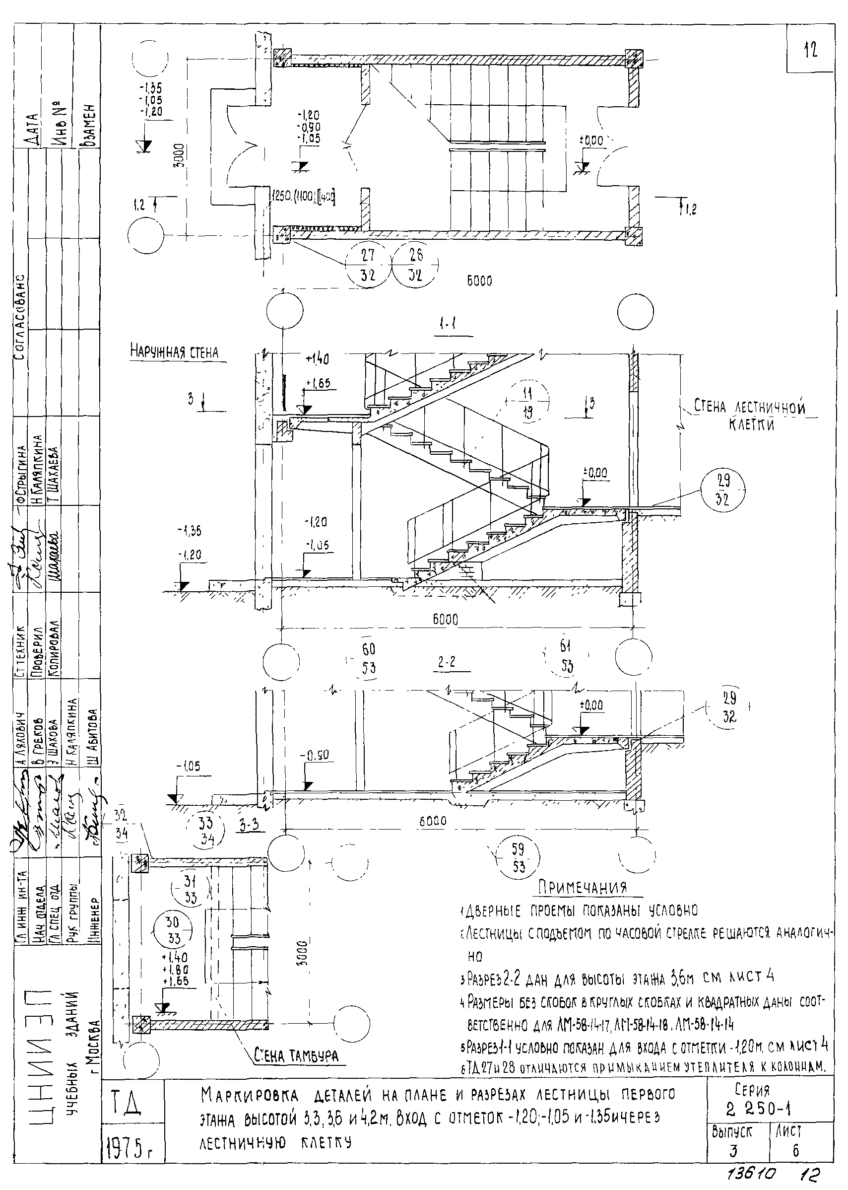
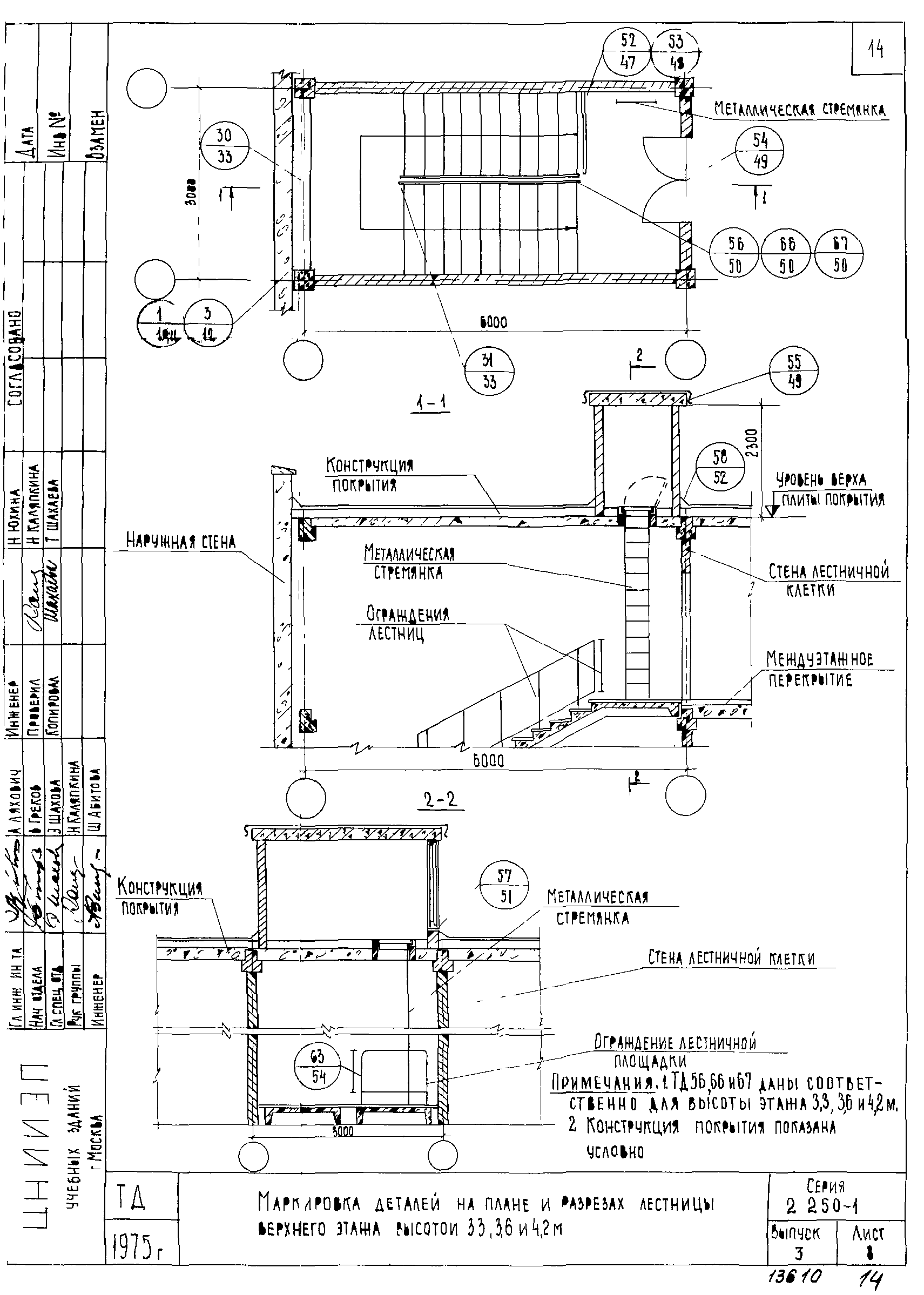
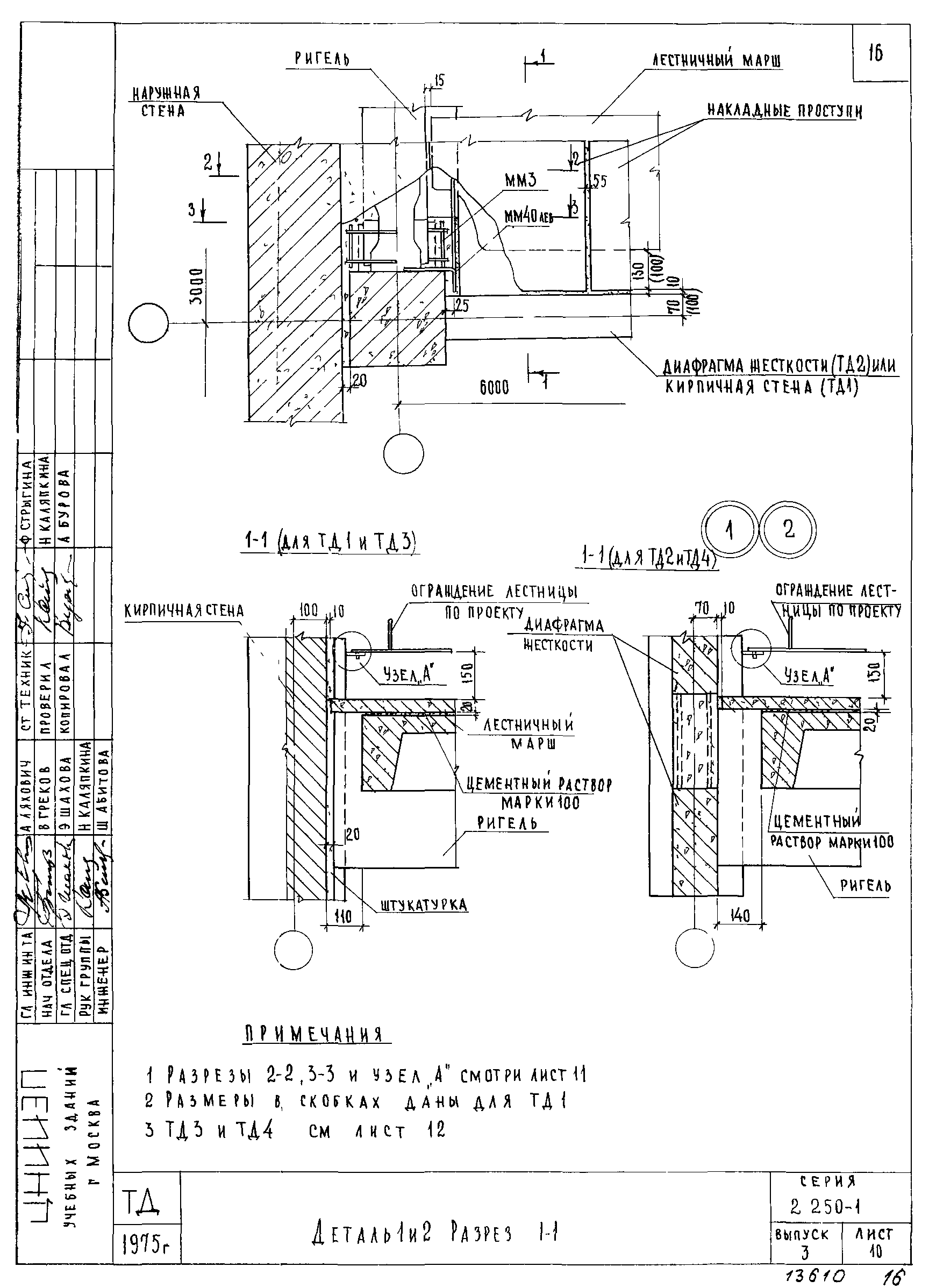
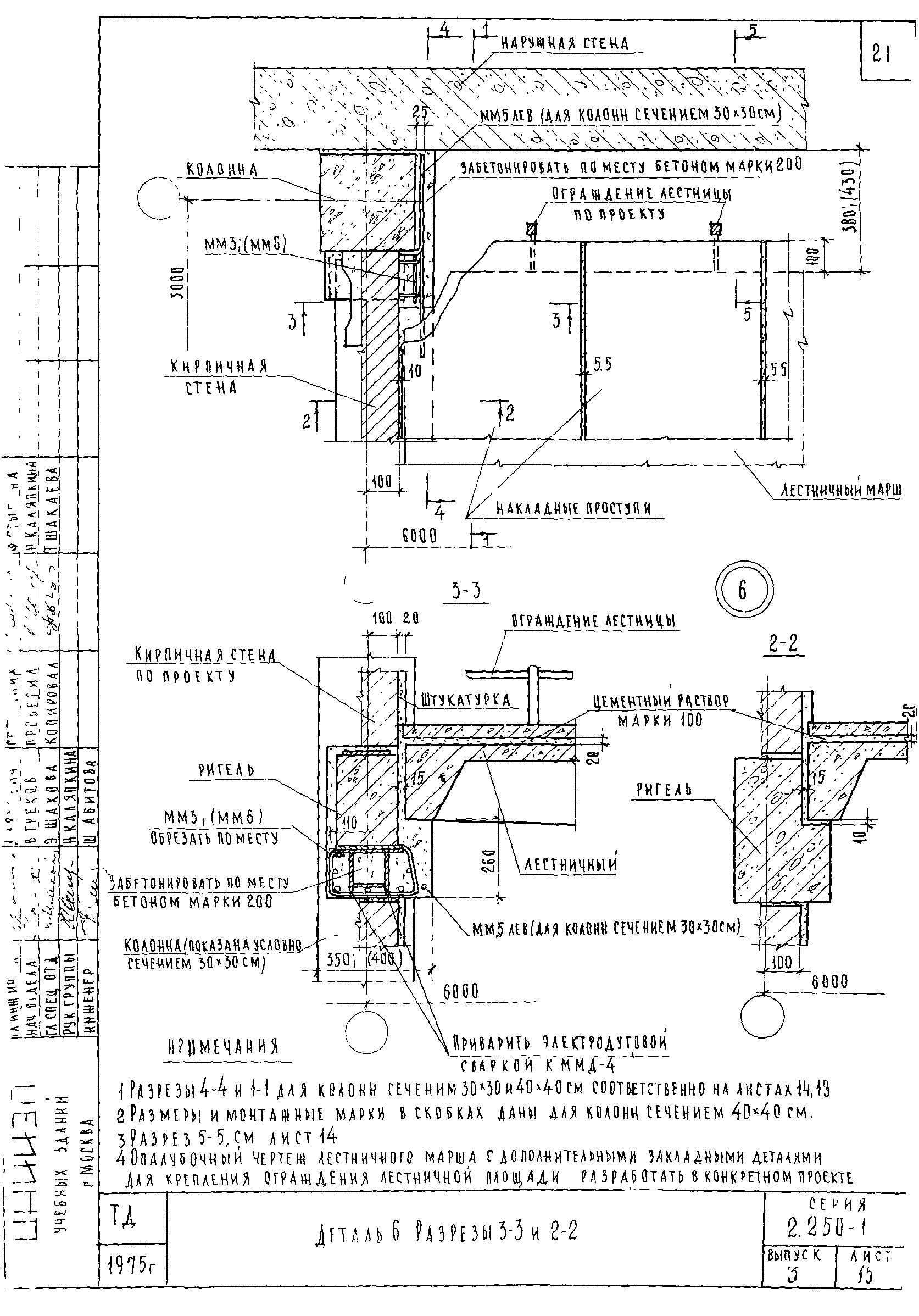
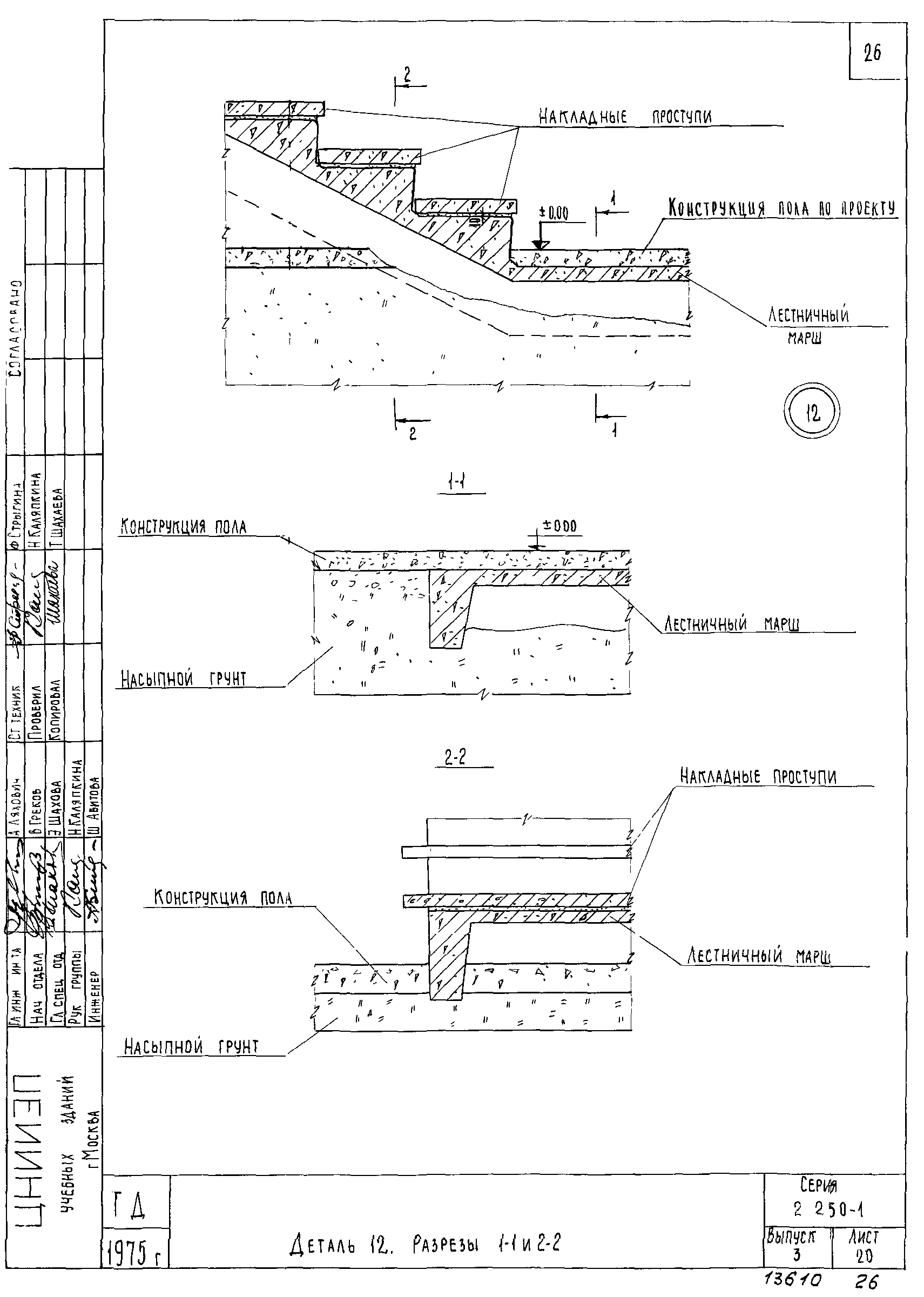
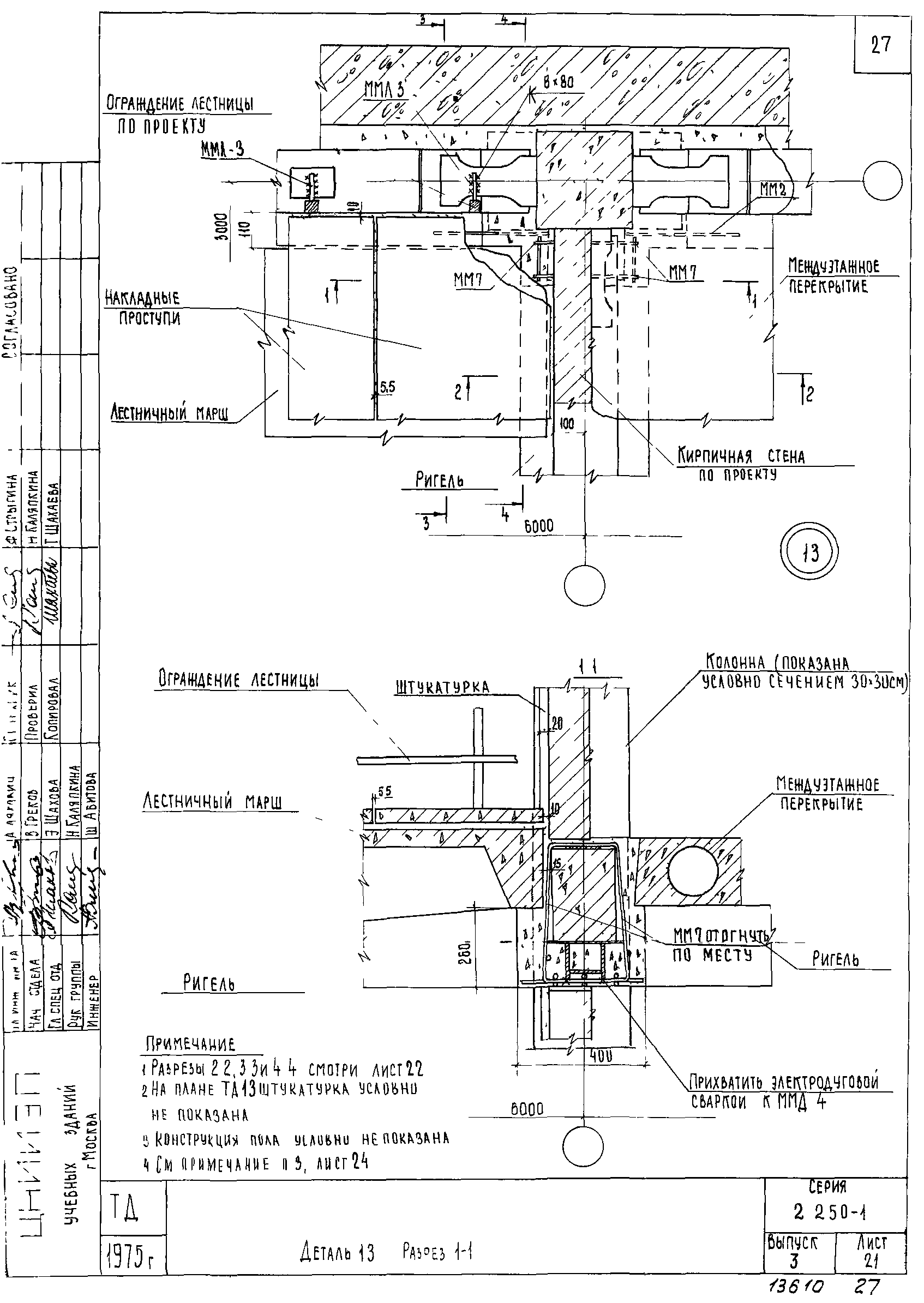
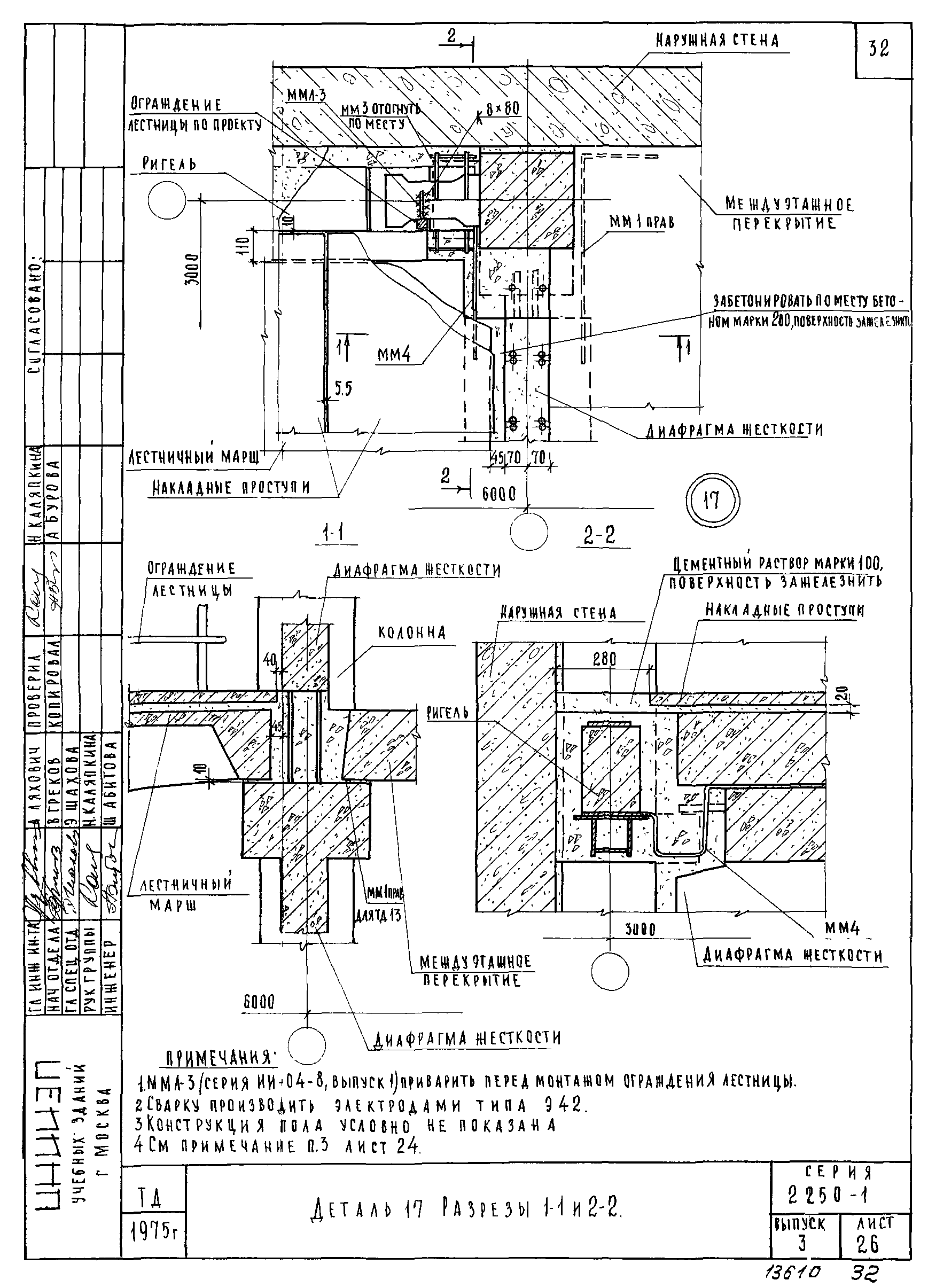
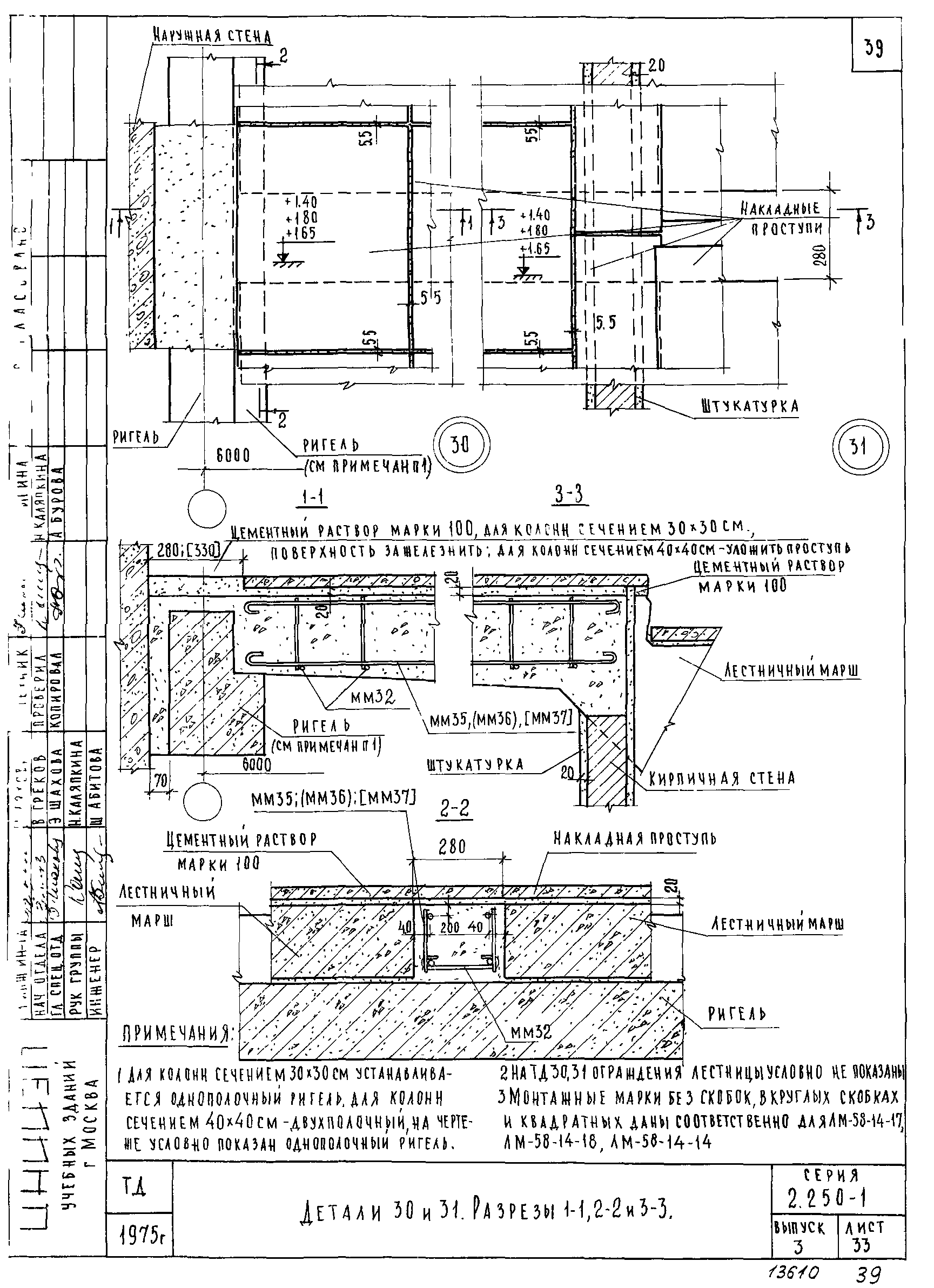
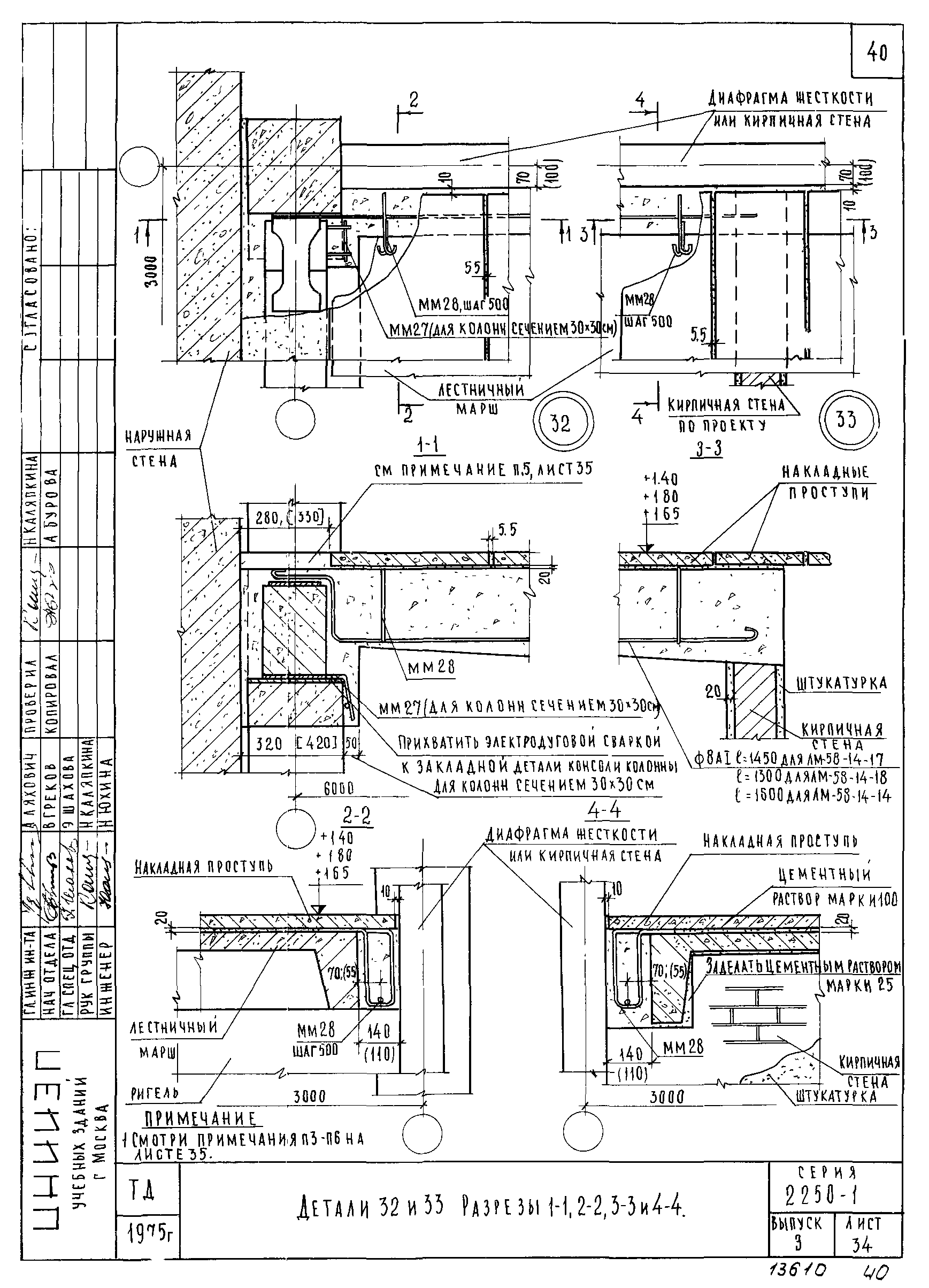
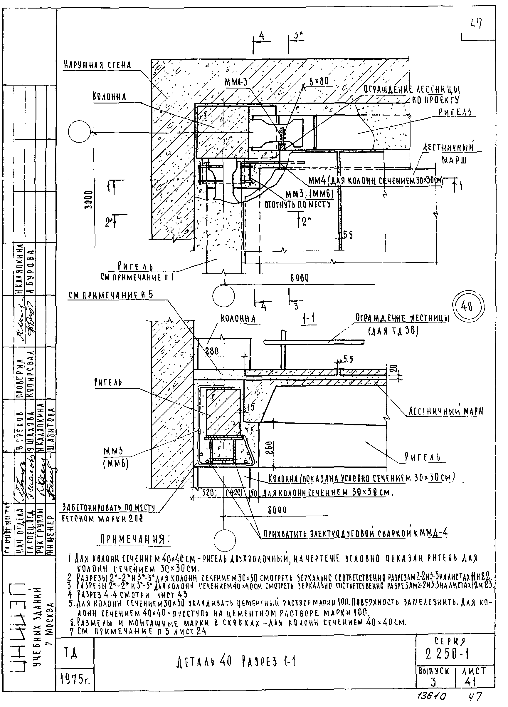
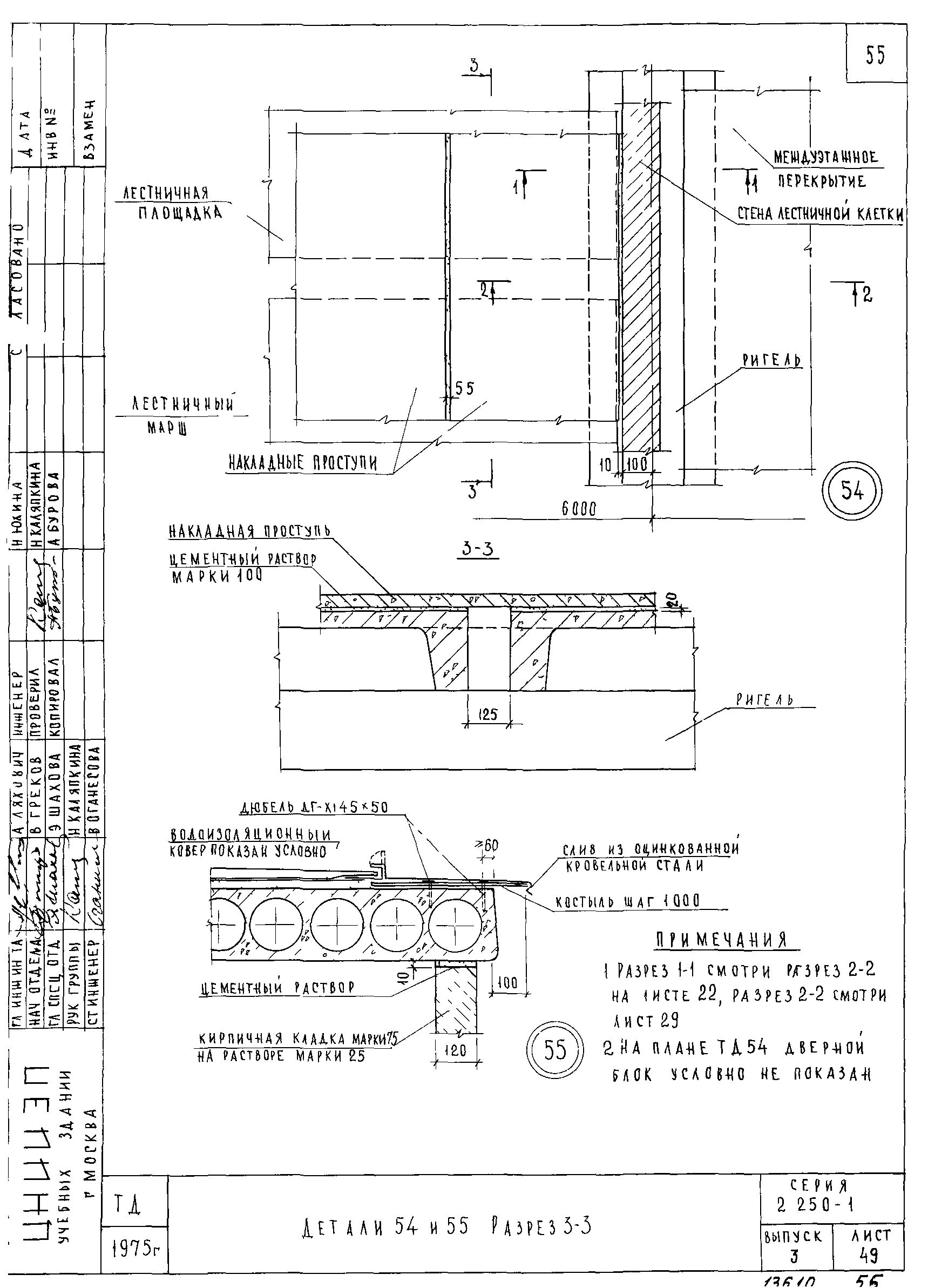
Скачать Серия 2.250-1 Выпуск 3. Лестницы каркасно-панельных зданийДата актуализации: 01.01.2021 Серия 2.250-1
Выпуск 3. Лестницы каркасно-панельных зданий| Обозначение: | Серия 2.250-1 | | Обозначение англ: | Series 2.250-1 | | Статус: | не действует | | Название рус.: | Выпуск 3. Лестницы каркасно-панельных зданий | | Дата добавления в базу: | 01.09.2013 | | Дата актуализации: | 01.01.2021 | | Дата введения: | 15.12.1975 | | Дата окончания срока действия: | 26.02.1987 | | Разработан: | ЦНИИЭП учебных зданий Госгражданстроя
| | Утверждён: | 20.11.1975 Государственный комитет по гражданскому строительству и архитектуре при Госстрое СССР (258)
|
                                                             
|